Study on the Mechanical Performance of H-Shaped Steel-Concrete Laminated Plate Composite Beams under Negative Bending Moment
Abstract
1. Introduction
2. Experimental Overview
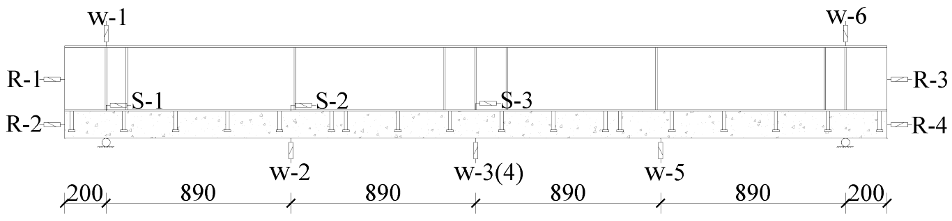
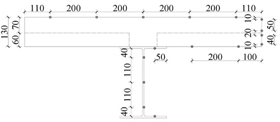
2.1. Experimental Design
2.2. Material Performance Experiments
2.3. Loading Device and Loading Scheme
2.4. Measurement Program
3. Experimental Phenomena and Failure Patterns
4. Experimental Results
4.1. Load-Midspan Displacement Curves
4.2. Load-Slip Distribution
4.3. Crack Distribution and Features
4.4. Stress-Strain of Reinforcement
4.5. Angle Stress-Strain
5. Numerical Simulation
5.1. Finite Element Modeling
5.1.1. Material Constitutive Model
- (1)
- Concrete
- (2)
- Steel Constitutive Model
5.1.2. Meshing and Unit Type Selection
5.1.3. Setting of Interactions

5.1.4. Loads and Boundary Conditions
5.1.5. Analysis Step Setting
5.2. Finite Element Results and Model Validation
5.2.1. Mid-Span Load-Deflection Curves

5.2.2. DAMAGET Damage Clouds

5.3. Computational Model Design


5.4. Summary of This Section
6. Conclusions
- (1)
- All three composite beam specimens were eventually damaged by the pulling of the reinforcement in the concrete slab, showing typical bending damage characteristics and similar ultimate bearing capacity.
- (2)
- No shear failure occurred at the composite surface of the laminated beam, and the overall stressing performance of the composite beam was good. The distribution of cracks in the three groups of composite beams was similar, and the angle steel connectors had the effect of inhibiting longitudinal splitting cracks in the H-shaped steel-concrete laminated plate composite beams.
- (3)
- Precast bottom slab embedded new angle steel connectors of H-shaped steel-concrete laminated plate composite beams were a combination with better performance and greater flexural stiffness.
- (4)
- The slippage of the H-shaped steel-concrete laminated plate composite beam with embedded new angle connections in the precast bottom panel was less than the slippage of the precast bottom slab bent-up bars protruding and the laminated cast slab, with the maximum slippage being only 1/2 of the precast bottom slab bent-up bars protruding.
- (5)
- In the composite structure of H-shaped steel-concrete composite slabs under negative bending moment, shear angle connectors can replace the bent-up bars protruding from the laminated bottom panel to achieve without extending the reinforcement of the laminated bottom panel.
- (6)
- The numerical simulations revealed that the concrete strength had almost no effect on the flexural load capacity of the members. The increase in initial and posterior stiffness was 7.78% and 8.21% when the concrete strength was increased from C20 to C40, and 2.66% and 3.59% when it was increased from C40 to C60.
7. Future Needs and Recommendations
Author Contributions
Funding
Data Availability Statement
Conflicts of Interest
References
- Liu, X.J. Introduction to Assembled Construction; Chongqing University Press: Chongqing, China, 2020. [Google Scholar]
- Xinhua. The 14th Five-Year Plan for the Development of the Construction Industry! China to Vigorously Develop Assembled Buildings—Xinhua [EB/OL]. Available online: http://www.news.cn/2022-02/02/c_1128322599.html (accessed on 4 March 2022).
- Deng, W.; Xiong, Y.; Liu, D.; Zhang, J. Static and fatigue behavior of shear connectors for a steel-concrete composite girder. J. Constr. Steel Res. 2019, 159, 134–146. [Google Scholar] [CrossRef]
- Gu, J.C.; Liu, D.; Deng, W.Q.; Zhang, J.D. Experimental study on the shear resistance of a comb-type performed rib shear connector. J. Constr. Steel Res. 2019, 158, 279–289. [Google Scholar] [CrossRef]
- Yan, L.B.; Han, B.; Fan, L.; Li, X. Fatigue damage of PBH shear connector of steel-concrete composite structure. Eng. Struct. 2020, 213, 110540. [Google Scholar] [CrossRef]
- Bezerra, L.M.; Cavalcante, O.O.; Chater, L.; Bonilla, J. V-shaped shear connector for composite steel-concrete beam. J. Constr. Steel Res. 2018, 150, 162–174. [Google Scholar] [CrossRef]
- Ali, S.; Mahdi, S. Various Types of Sher Connectors in Composite Structures: A Review. Int. J. Phys. Sci. 2012, 7, 2876–2890. [Google Scholar]
- Shim, C.S.; Lee, P.G.; Yoon, T.Y. Static behavior of large stud shear connectors. Eng. Struct. 2004, 26, 1853–1860. [Google Scholar] [CrossRef]
- Shariati, M.; Sulong, N.R.; Suhatril, M.; Shariati, A.; Khanouki, M.A.; Sinaei, H. Comparison of behaviour between channel and angle shear connectors under monotonic and fully reversed cyclic loading. Constr. Build. Mater. 2013, 38, 582–593. [Google Scholar] [CrossRef]
- Yoshioka, H. Design Code for Steel-Concrete Sandwich Structures-Draft; Concrete Library International of JSCE: Tokyo, Japan, 1992. [Google Scholar]
- Tang, L.; Wei, D.; Gao, Z. Flexural Behaviours of CFRP Sheets Reinforced Steel-Concrete Composite Beams. J. Phys. Conf. Ser. 2021, 2011, 012027. [Google Scholar] [CrossRef]
- Turetta, M.; Odenbreit, C.; Khelil, A.; Martin, P.O. Investigation on the flexural behavior of an innovative U-shaped steel-concrete composite beam. Steel Compos. Struct. 2020, 34, 441–452. [Google Scholar]
- Nie, J.G. Steel-Concrete Composite Beam Structures; Science Publishing Beijing: Beijing, China, 2005. [Google Scholar]
- Liu, H.B.; Shi, C.L.; Tan, G.J. Finite element solution of composite beams considering shear slip effect. J. Jilin Univ. 2016, 46, 792–797. [Google Scholar]
- Liu, H.B.; Liu, T.M.; Zhang, Y.L. Flexural behavior of steel-concrete composite continuous beams. J. Jilin Univ. 2009, 39, 1486–1491. [Google Scholar]
- Liu, H.B.; Dai, Y.J.; Han, S. The flexural capacity of prestressed steel lightweight aggregate concrete composite beams. J. Jilin Univ. 2009, 39 (Suppl. S1), 138–140. [Google Scholar]
- Fan, J.S.; Nie, J.G.; Zhang, Y.L. Experimental study of crack resistance of steel-concrete beams. China Civ. Eng. J. 2011, 44, 1–7. [Google Scholar]
- Fan, J.S.; Nie, J.G. Progress in research and application of composite steel-concrete bridges. Prog. Steel Build. Struct. 2006, 8, 35–39. [Google Scholar]
- Nie, J.G.; Fan, J.S. Analysis of composite beam stiffness under negative bending. Eng. Mech. 2002, 19, 33–36. [Google Scholar]
- Hu, S.W.; Ye, X.F. Analysis of the bending capacity of the negative-moment region in pre-stressed continuous composite beam. Eng. Mech. 2013, 30, 160–165. [Google Scholar]
- Nie, J.G.; Tao, M.X.; Nie, X.; Fan, J.S.; Zhang, Z.X.; Tang, H.Y.; Zhu, L.; Li, Y.X. New technique and application of uplift-restricted and slip-permitted connection. China Civ. Eng. J. 2015, 48, 7–14. [Google Scholar]
- Nie, J.G.; Li, Y.X.; Tao, M.X. Slip performance and hysteresis model of a new type of uplift re-restricted-slip-free connectors. Eng. Mech. 2014, 31, 46–52. [Google Scholar]
- Zhuang, L.D.; Chen, W.; Nie, X. Application of uplift-restricted and slip-permitted con- sectors in steel-concrete composite frame structures. J. Build. Struct. 2020, 41, 104–112. [Google Scholar]
- Oehlers, D.J.; Sved, G. Composite beams with limited-slip-capacity shear connectors. J. Struct. Eng. 1995, 121, 932–938. [Google Scholar] [CrossRef]
- Nie, J.G.; Li, Y.X.; Tao, M.X.; Nie, X. Uplift-restricted and slip-permitted t-shape connectors. J. Bridge Eng. 2015, 20, 04014073. [Google Scholar] [CrossRef]
- Duan, L.L. Research on the application of uplift-restricted slip-permitted (URSP) connectors in steel-concrete composite frames. Appl. Sci. 2019, 9, 2235. [Google Scholar] [CrossRef]
- GB 50017-2017. Design Code for Steel Structures; China Construction Industry Press: Beijing, China, 2017. [Google Scholar]
- T/CECS 715-2020. Technical Regulations for the Application of Reinforced Truss Concrete Laminated Slabs; China Construction Industry Press: Beijing, China, 2020. [Google Scholar]
- Ministry of Housing and Urban-Rural Development of the People’s Republic of China. GB 50010-2010 Code for the Design of Concrete Structures; Construction Industry Press: Beijing, China, 2010.
- GB 50010-2010. Code for Design of Concrete Structures; China Architecture & Building Press: Beijing, China, 2010. (In Chinese) [Google Scholar]
- Chen, J.; Wang, S.F.; Xu, H. Mechanical properties of demountable prefabricated composite beams under negative bending moments. J. Jilin Univ. 2021, 52, 604–614. [Google Scholar]
- Guo, Z.H. Principles and Analysis of Reinforced Concrete; Tsinghua University Press: Beijing, China, 2003. [Google Scholar]
- Fan, J.; Gou, S.; Ding, R.; Zhang, J.; Shi, Z. Experimental study on the bending performance of steel-ECC composite beams in the negative moment region. J. Civ. Eng. 2017, 50, 64–72. [Google Scholar]
- Nie, J.G.; Yuan, Y.S. Steel-concrete laminated plate composite beams and their applications. Build. Struct. 1995, 8, 23. [Google Scholar]
- Wang, Y.X.; Fu, C. ABAQUS Structural Engineering Analysis with Detailed Examples; China Construction Industry Press: Beijing, China, 2010. [Google Scholar]
- Wang, Y.Y. Abaqus Analysis User Manual—Materials Volume; Mechanical Industry Press: Beijing, China, 2018. [Google Scholar]
- Ollgaard, J.G.; Slutter, R.G.; Fisher, J.W. Shear strength of stud connectors in lightweight and normal-weight concrete. J. AISC Eng. 1971, 8, 55–64. [Google Scholar]
- Özkılıç, Y.O.; Aksoylu, C.; Arslan, M.H. Numerical evaluation of effects of shear span, stirrup spacing, and angle of stirrup on reinforced concrete beam behavior. Struct. Eng. Mech. Int. J. 2021, 79, 309–326. [Google Scholar]
- Özkılıç, Y.O.; Yazman, Ş.; Aksoylu, C.; Arslan, M.H.; Gemi, L. Numerical investigation of the parameters influencing the behavior of dapped end prefabricated concrete purlins with and without CFRP strengthening. Constr. Build. Mater. 2021, 275, 122–173. [Google Scholar] [CrossRef]
- Özkılıç, Y.O.; Aksoylu, C.; Gemi, L.; Arslan, M.H. Behavior of CFRP-strengthened RC beams with circular web openings in shear zones: Numerical study. Structures 2022, 41, 1369–1389. [Google Scholar] [CrossRef]
- Aksoylu, C.; Özkiliç, Y.O.; Yazman, Ş.; Lokman, G.E.M.İ.; Arslan, M. İnceltilmiş Uçlu Önüretimli Aşık Kirişlerinin Yük Taşıma Kapasitelerinin Deneysel ve Numerik Olarak İrdelenmesi ve Çözüm Önerileri. Teknik Dergi. 2021, 32, 10823–10858. [Google Scholar]
- Özkılıç, Y.O. Cyclic and monotonic performance of stiffened extended end-plate connections with large-sized bolts and thin end-plates. Bull. Earthq. Eng. 2022, 20, 7441–7475. [Google Scholar] [CrossRef]
- Sidoroff, F. Description of Anisotropic Damage Application to Elasticity. In Physical Non-Linearities in Structural Analysis; IUTAM Colloguium, Ed.; Springer: Berlin/Heidelberg, Germany, 1981; pp. 237–244. [Google Scholar]
- Özkılıç, Y.O.; Topkaya, C. Extended end-plate connections for replaceable shear links. Eng. Struct. 2021, 240, 112385. [Google Scholar] [CrossRef]
- Özkılıç, Y.O.; Topkaya, C. The plastic and the ultimate resistance of four-bolt extended end-plate connections. J. Constr. Steel Res. 2021, 181, 106614. [Google Scholar] [CrossRef]
- Özkılıç, Y.O. The capacities of unstiffened T-stubs with thin plates and large bolts. Constr. Steel Res. 2021, 186, 106908. [Google Scholar] [CrossRef]
- Özkılıç, Y.O. A comparative study on yield line mechanisms for four bolted extended end-plated connection. Chall. J. Struct. Mech. 2021, 7, 93–106. [Google Scholar] [CrossRef]
- Özkılıç, Y.O.; Bozkurt, M.B.; Topkaya, C. Mid-spliced end-plated replaceable links for eccentrically braced frames. Eng. Struct. 2021, 237, 112–225. [Google Scholar] [CrossRef]
- Gemi, L.; Madenci, E.; Özkılıç, Y.O. Experimental, analytical and numerical investigation of pultruded GFRP composite beams infilled with hybrid FRP reinforced concrete. Eng. Struct. 2021, 244, 112790. [Google Scholar] [CrossRef]
- Özkılıç, Y.O.; Aksoylu, C.; Arslan, M.H. Experimental and numerical investigations of steel fiber reinforced concrete dapped-end purlins. J. Build. Eng. 2021, 36, 102119. [Google Scholar] [CrossRef]
- Aksoylu, C.; Özkılıç, Y.O.; Arslan, M.H. Damages on prefabricated concrete dapped-end purlins due to snow loads and a novel reinforcement detail. Eng Struct. 2020, 225, 111–225. [Google Scholar] [CrossRef]
- Korkmaz, H.H.; Dere, Y.; Özkılıç, Y.O.; Bozkurt, M.B.; Ecemiş, A.S.; Özdoner, N. Excessive snow induced steel roof failures in Turkey. Eng. Fail. Anal. 2022, 141, 106661. [Google Scholar] [CrossRef]
- Özkılıç, Y.O. Interaction of flange and web slenderness, overstrength factor and proposed stiffener arrangements for long links. J. Constr. Steel Res. 2022, 190, 107–150. [Google Scholar] [CrossRef]


























| Numbers | Length × Width × Thickness/mm | Differences in Connection Methods | Transverse and Longitudinal Reinforcement Mesh | Upper Chord Rebar | Web Reinforcement | Lower Chord Rebar |
|---|---|---|---|---|---|---|
| SCL1 | 3960 × 1020 × 130 (60 + 70) | Bend up bars to anchor into the cast-in-place layer | C8@100 | C10 | A6 | C8 |
| SCL2 | Welding of embedded angles to steel beams | |||||
| ZJB | 3960 × 1020 × 130 | Complete pouring | C8@100 | - | - | - |
| Types | Prefabricated Layer/MPa | Cast-in-Place Layer/MPa |
|---|---|---|
| fcu | 35.6 | 33.2 |
| fc | 27.1 | 25.2 |
| Ec | 3.14 × 104 | 3.08 × 104 |
| Types | fy/MPa | fu/MPa |
|---|---|---|
| HRB400 (10 mm) | 456 | 620 |
| HRB400 (8 mm) | 480 | 660 |
| HPB300 (6 mm) | 452 | 560 |
| Q235 (Steel beam flange) | 270 | 390 |
| Q235 (Steel beam flange) | 278 | 400 |
| Numbers | Pcr/kN | δcr/mm | Py/kN | δy/mm | Pu/kN | δu/mm |
|---|---|---|---|---|---|---|
| SCL1 | 75 | 1.96 | 240.9 | 10.9 | 296.5 | 24.1 |
| SCL2 | 75 | 1.97 | 255.12 | 9.9 | 296.1 | 16.3 |
| ZJB | 60 | 1.95 | 248.2 | 10.3 | 285.3 | 18.2 |
| 30 | 0.1 | 1.16 | 0.666667 | 0.005 |
| Specimen Number | fcu,k | l/mm | q |
|---|---|---|---|
| FEM1 | C20 | 40 | 12 |
| FEM2 | C30 | 40 | 12 |
| FEM3 | C40 | 40 | 12 |
| FEM4 | C50 | 40 | 12 |
| FEM5 | C60 | 40 | 12 |
Publisher’s Note: MDPI stays neutral with regard to jurisdictional claims in published maps and institutional affiliations. |
© 2022 by the authors. Licensee MDPI, Basel, Switzerland. This article is an open access article distributed under the terms and conditions of the Creative Commons Attribution (CC BY) license (https://creativecommons.org/licenses/by/4.0/).
Share and Cite
Liu, J.; Yu, D.; Ding, K. Study on the Mechanical Performance of H-Shaped Steel-Concrete Laminated Plate Composite Beams under Negative Bending Moment. Sustainability 2022, 14, 14702. https://doi.org/10.3390/su142214702
Liu J, Yu D, Ding K. Study on the Mechanical Performance of H-Shaped Steel-Concrete Laminated Plate Composite Beams under Negative Bending Moment. Sustainability. 2022; 14(22):14702. https://doi.org/10.3390/su142214702
Chicago/Turabian StyleLiu, Jianhua, Dehu Yu, and Kewei Ding. 2022. "Study on the Mechanical Performance of H-Shaped Steel-Concrete Laminated Plate Composite Beams under Negative Bending Moment" Sustainability 14, no. 22: 14702. https://doi.org/10.3390/su142214702
APA StyleLiu, J., Yu, D., & Ding, K. (2022). Study on the Mechanical Performance of H-Shaped Steel-Concrete Laminated Plate Composite Beams under Negative Bending Moment. Sustainability, 14(22), 14702. https://doi.org/10.3390/su142214702
