Study on Mine Pressure Behavior Law of Mining Roadway Passing Concentrated Coal Pillar and Goaf
Abstract
:1. Introduction
2. Project Overview and Methods
3. Results
4. Discussion
4.1. Summary of Mine Pressure Law
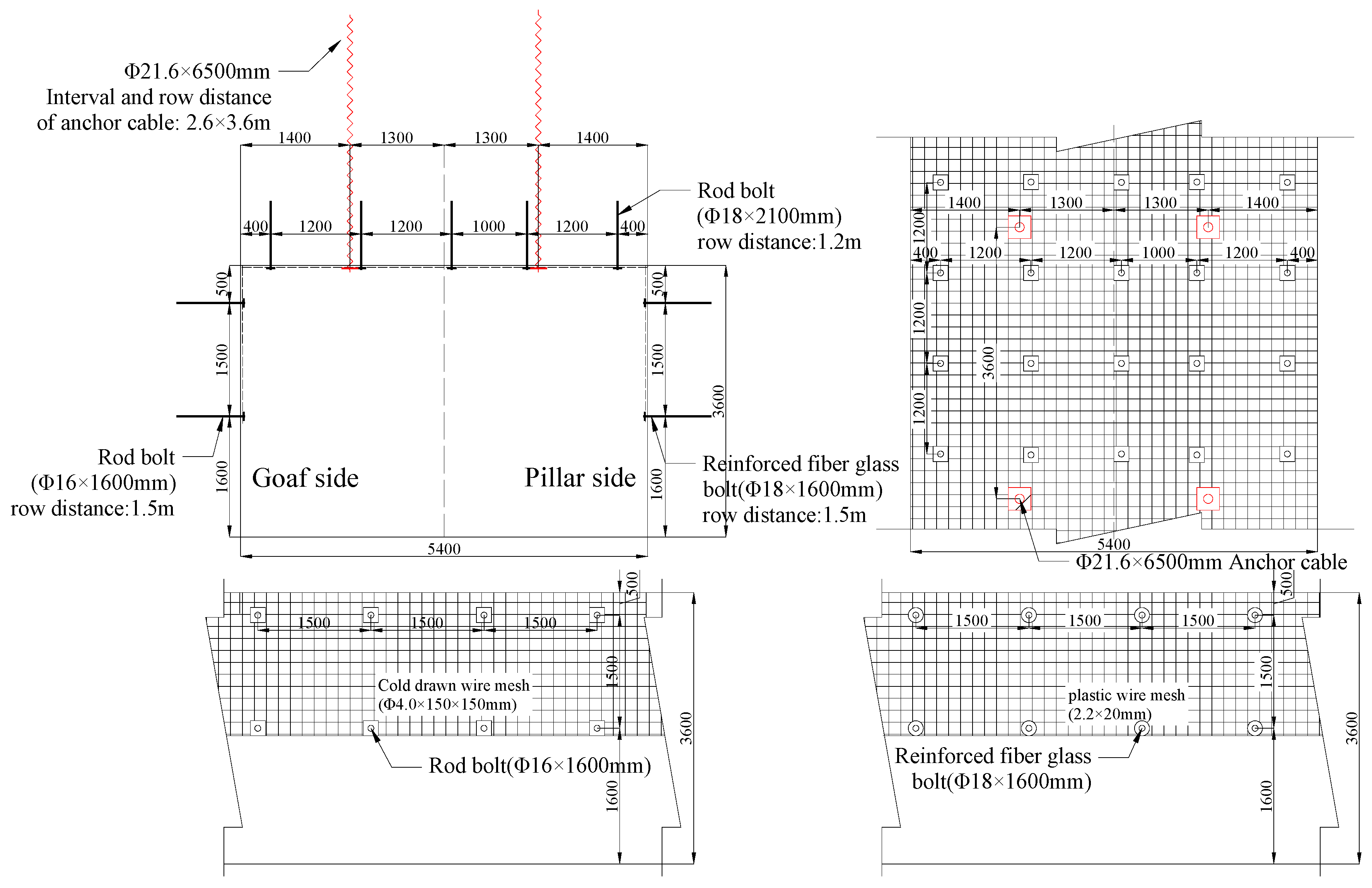
4.2. Support Parameters
4.3. Field Test
5. Conclusions
- (1)
- A special spatial position model (the workfaces of 1–2 coal and 2–2 coal are staggered at a certain angle of 79° in space) was built in a new way which come true by utilizing fish language to change the grid of coordinate in Flac3D numerical simulation software. After applying this way to the background of the Huojitu well, we found that this new way of modeling has great effectiveness.
- (2)
- The stress distribution characteristics of the 22,206 return airway after 1–2 coal mining were obtained. The results showed that the mining of 1–2 coal led to the increase of stress on the 22,206 return airway. The stress in the lower part of the middle coal pillar changed the most, and σvmax and σhmax reached 6.24 MPa and 4.09 MPa, respectively.
- (3)
- Through the numerical simulation analysis, the stress variation law and the evolution of the plastic zone of the 22,206 return airway under the influence of primary and secondary mining were obtained. That is, the 22,206 return airway is affected by the advanced support pressure and the superimposed stress field of the overlying concentrated coal pillar in the advanced workface. Thus, the stress increases (σvmax 8.1 MPa,8.4 MPa respectively in primary and secondary mining) when near the coal pillar and decreases away from the coal pillar. In general, the influence of the 22,206 return airway under the secondary mining is small, the maximum radius of the plastic zone of the roof and floor is 1.3 m and 0.6 m respectively, and the maximum failure radius of the pillar and goaf sides of the roadway is only 0.6 m and 1.5 m, respectively.
- (4)
- A reasonable supporting scheme is proposed and tested. The maximum deformation of the roof and floor is less than 120 mm, and the maximum deformation of the two sides is less than 78 mm.
Author Contributions
Funding
Institutional Review Board Statement
Informed Consent Statement
Data Availability Statement
Conflicts of Interest
References
- Li, C.; Zhang, W.L.; Wang, N.; Hao, C. Roof stability control based on plastic zone evolution during mining. J. Min. Saf. Eng. 2019, 36, 753–761. [Google Scholar] [CrossRef]
- Li, C.; Huo, T.H.; Wu, Z.; Lü, K.; Zhang, B. Mechanism and stability control of nonuniform and violent deformation of dynamic pressure roadway roof. J. Cent. South Univ. Sci. Technol. 2020, 51, 1317–1327. [Google Scholar] [CrossRef]
- Liu, H.T.; Wu, X.Y.; Hao, Z.; Zhao, X.; Guo, X. Evolution law and stability control of plastic zones of retained entry of working face with double roadways layout. J. Min. Saf. Eng. 2017, 34, 689–697. [Google Scholar] [CrossRef]
- Yang, J.Z. Prevention and control technology of shallow buried close distance coal seam over overlying goaf and coal pillar dynamic pressure. J. Coal Sci. Technol. 2015, 43, 9–13, 40. [Google Scholar] [CrossRef]
- Li, H.D.; Yang, H.H.; Zhang, B.; Chen, G.; Xiao, J.R.; Xu, H.J.; Kong, L.H. Study on dynamic load control of fully mechanized mining under concentrated coal pillar in shallow buried room goaf. J. Coal J. 2015, 40, 6–11. [Google Scholar] [CrossRef]
- Zhou, H.F. Analysis of support crushing mechanism of fully mechanized working face passing overlying concentrated coal pillar. J. Coal Sci. Technol. 2014, 42, 120–123, 128. [Google Scholar] [CrossRef]
- Tian, C.; Liu, Y.J.; Zhou, H.F. Technology of fully mechanized working face mining through overlying concentrated coal pillar and goaf. J. Coal Sci. Technol. 2014, 42, 125–128. [Google Scholar] [CrossRef]
- Fu, X.Y.; Li, H.Y.; Li, F.M.; Li, S.G.; Zhang, B.; Li, H.J.; Wei, L.K. Mechanism and prevention of dynamic mine pressure induced by concentrated coal pillars in room-type goaf. J. Coal 2016, 41, 1375–1383. [Google Scholar] [CrossRef]
- Wang, H.; Zhao, Y.X.; Mou, Z.L.; Jiao, Z.H.; Zhang, X.; Lu, Z.G. Induced burst mechanism and prevention method of coal pillar stress deviator concentration area undermine earthquake disturbance. J. China Univ. Min. Technol. 2017, 46, 1202–1210. [Google Scholar] [CrossRef]
- Rezaei, M. Forecasting the stress concentration coefficient around the mined panel using soft computing methodology. Eng. Comput. 2019, 35, 451–466. [Google Scholar] [CrossRef]
- Budi, G.; Nageswara Rao, K.; Mohanty, P. Field and numerical modelling on the stability of underground strata in longwall workings. Energy Geosci. 2023, 4, 1–12. [Google Scholar] [CrossRef]
- Rezaei, M. Long-term stability analysis of goaf area in longwall mining using minimum potential energy theory. J. Min. Environ. 2018, 9, 169–182. [Google Scholar] [CrossRef]
- Zhao, Z.Q.; Ma, N.J.; Liu, H.T.; Guo, X.F. Butterfly failure theory of roadway and its application prospect. J. China Univ. Min. Technol. 2018, 47, 969–978. [Google Scholar] [CrossRef]
- Ma, N.J.; Guo, X.F.; Zhao, Z.Q.; Zhao, X.D.; Liu, H.T. Occurrence mechanism and judgment criteria of butterfly rock burst in homogeneous circular roadway. J. Coal 2016, 41, 2679–2688. [Google Scholar] [CrossRef]
- Li, C.; Li, P.; Lu, S.Y.; Luo, M.; Liu, Y.L.; Zuo, M.H. Failure analysis and control of retained roadway in coal face under fault protection coal pillar. J. Min. Sci. 2020, 5, 519–527. [Google Scholar] [CrossRef]
- Lv, K.; Deng, Z.G.; Feng, J.C.; Xuan, Z.T.; Xiao, J.; Wu, X.Y. Failure mechanism and control technology of surrounding rock of retained roadway under the influence of superimposed mining. J. Min. Saf. Eng. 2019, 36, 685–695. [Google Scholar] [CrossRef]
- Kang, H.P.; Jiang, P.F.; Huang, B.X.; Guan, X.M.; Wang, Z.G.; Wu, Y.Z.; Gao, F.Q.; Yang, J.W.; Cheng, L.X.; Zheng, Y.F.; et al. Collaborative control technology of surrounding rock support-modification-pressure relief in kilometer deep roadway of coal mine. J. Coal 2020, 45, 845–864. [Google Scholar] [CrossRef]
- Feng, J.C.; Ma, N.J.; Cai, M.; Xu, Y.H.; Ma, W. Application of butt-jointed long bolts in roadway support of narrow coal pillar with large mining height in deep mine. Coal Sci. Technol. 2014, 42, 22–24. [Google Scholar] [CrossRef]
- Liu, H.T.; Wang, F.; Jiang, L.S.; Zhao, X.D.; Wan, G.H. Performance study of roof lengthening bolt coupling support system. J. Min. Saf. Eng. 2014, 31, 366–372. [Google Scholar] [CrossRef]
- Liu, H.T.; Wang, F.; Wang, G.H.; Zhao, X.D. Study on the performance of roof lengthening bolt support system in large deformation roadway. J. Coal 2014, 39, 600–607. [Google Scholar] [CrossRef]
- Salamon, M. Mechanism of caving in longwall coal mining. In Rock Mechanics Contribution and Challenges: Proceedings of the 31st US Symposium of Rock Mechanics; CRC Press: Golden, CO, USA, 1990; pp. 161–168. [Google Scholar]
- Li, W.F.; Bai, J.B.; Peng, S.; Wang, X.; Xu, Y. Numerical modeling for yield pillar design: A case study. Rock Mech. Rock Eng. 2015, 48, 305–318. [Google Scholar] [CrossRef]
- Xu, L.; Wei, H.X.; Xiao, Z.Y.; Li, B. Engineering cases and characteristics of deviatoric stress under coal pillar in regional floor. Rock Soil Mech. 2015, 36, 561–568. [Google Scholar] [CrossRef]
- Wang, J.C. Scientific coal mining based on mining strata control. J. Min. Str. Con. Eng. 2019, 1, 40–47. [Google Scholar] [CrossRef]














| Lithologic Characters | Internal Friction Angle/° | Cohesion/MPa | Tensile Strength/MPa | Elastic Modulus/GPa | Poisson | Density/kg·m3 |
|---|---|---|---|---|---|---|
| Yellow soil | 22 | 0.5 | 0.116 | 0.77 | 0.34 | 1750 |
| Medium grained sandstone | 35.6 | 4.8 | 1.73 | 8.22 | 0.22 | 2167 |
| Fine sandstone | 39.9 | 4.5 | 2.8 | 7.3 | 0.25 | 2340 |
| Siltstone | 36.4 | 3.28 | 2.15 | 3.6 | 0.25 | 2400 |
| Siltstone 2 | 26 | 3.3 | 0.68 | 3.6 | 0.25 | 2400 |
| Siltstone 3 | 28 | 4 | 2.15 | 3.6 | 0.25 | 2400 |
| 1–2Coal | 30 | 1.9 | 1.69 | 1.76 | 0.24 | 1280 |
| 2–2Coal | 30 | 2.5 | 1.69 | 7.76 | 0.24 | 1500 |
| Mudstone | 32.3 | 2.8 | 1.5 | 5.3 | 0.16 | 2500 |
| Rock Formation | K (GPa) | G (GPa) | Ρ (kg/m−3) | C (MPa) | φ (°) | σt (MPa) |
|---|---|---|---|---|---|---|
| 1–2 Coal | 7.14 | 4.92 | 1431 | 0.001 | 1 | 0 |
| 2–2 Coal | 7.14 | 4.92 | 1740 | 0.001 | 1 | 0 |
Publisher’s Note: MDPI stays neutral with regard to jurisdictional claims in published maps and institutional affiliations. |
© 2022 by the authors. Licensee MDPI, Basel, Switzerland. This article is an open access article distributed under the terms and conditions of the Creative Commons Attribution (CC BY) license (https://creativecommons.org/licenses/by/4.0/).
Share and Cite
Li, X.; Wei, S.; Wang, J. Study on Mine Pressure Behavior Law of Mining Roadway Passing Concentrated Coal Pillar and Goaf. Sustainability 2022, 14, 13175. https://doi.org/10.3390/su142013175
Li X, Wei S, Wang J. Study on Mine Pressure Behavior Law of Mining Roadway Passing Concentrated Coal Pillar and Goaf. Sustainability. 2022; 14(20):13175. https://doi.org/10.3390/su142013175
Chicago/Turabian StyleLi, Xiaolong, Shengjie Wei, and Jun Wang. 2022. "Study on Mine Pressure Behavior Law of Mining Roadway Passing Concentrated Coal Pillar and Goaf" Sustainability 14, no. 20: 13175. https://doi.org/10.3390/su142013175
APA StyleLi, X., Wei, S., & Wang, J. (2022). Study on Mine Pressure Behavior Law of Mining Roadway Passing Concentrated Coal Pillar and Goaf. Sustainability, 14(20), 13175. https://doi.org/10.3390/su142013175

