Abstract
Sustainable renovation is widely recognised as the optimal solution for the aging of residential buildings. Many aging rammed earth dwellings exist in the Hunan region of China. To guide these rammed earth dwellings to enhance their architectural quality while maximising the benefits from these activities in the environmental, energy, and economic domains, this study proposes a sustainable renovation approach which improves the construction tools, materials, processes, and the building features. In this study, we selected representative dwellings in the Hunan region for case renovation. In addition, the renovated dwellings are evaluated on three aspects: indoor physical environment, satisfaction questionnaire survey of owners and participants, and carbon emissions. The results show that the owners and participants are highly in favour of the sustainable renovation approach. The renovated homes also show improvements in the indoor environment, which can help reduce energy consumption. This study can provide a methodology for the sustainable renovation of aging rammed earth dwellings in Hunan and the other regions of China.
1. Introduction
Climate change is a worldwide problem facing mankind today. The construction sector generates approximately 30% of the world’s greenhouse gas emissions [1,2,3,4]. China, as the world’s largest carbon emitter, is committed to reaching peak carbon emissions by 2030 and becoming a carbon-neutral society by 2060. In China, buildings are responsible for 25% of all carbon emissions [5,6,7]. The development of green building technologies and materials is an important measure to reduce carbon emissions in the construction sector [8]. Earth materials’ processing energy and carbon footprint are 3% and 9% of those of clay bricks and concrete, respectively, offering the advantages of environmental friendliness, low cost, and sustainability [9,10,11]. Moreover, earth materials are one of the oldest building materials widely used even today [12]. However, approximately 50% of the world’s population still lives in various forms of raw earth construction [13,14]. Raw earth construction in China can be traced back to the Yangshao culture, which has a history of 5000–6000 years. At present, at least 100 million people are still living in various forms of raw earth construction in China [15].
Rammed earth construction, as one of the most dominant types of raw earth construction, is widespread in China. Hunan Province, an important province in south-central China, has a long history of rammed earth construction (Figure 1). Rammed earth walls and houses were found in the Neolithic urban site discovered in 1979 in Chengtoushan, Changde. More than 2000 m of rammed earth walls built during the Song dynasty are still found near Sanjiaji in the northwestern part of Changsha. In addition, rammed earth dwellings are found throughout the province. The main rammed earth dwellings in the Hunan region were built in the 1970s–1980s, most of which have aged. These dwellings cannot functionally meet the living space needs of the residents. An increasing number of youths are unwilling to live in these buildings, resulting in many left-behind children and elderly people in the countryside. Moreover, there are even serious structural safety problems, such as cracked walls due to age and disrepair. Aging dwellings are also potentially dangerous to the lives of their occupants. At the end of their lifespan, the dwellings face two solutions: demolition and new construction or renovation. The process of building new dwellings might result in more greenhouse gas emissions than renovation. Renovation is one of the most effective measures to reduce CO2 emissions during the construction process. In addition, aging buildings are not only functionally unsatisfactory for the owner’s lifestyle but also have an increasing impact on energy demand and the environment. This, in turn, leads to the increased emission of greenhouse gases and contributes to climate change. The renovation of residential buildings is a sustainable approach to improve the quality of living in aging homes by effectively reducing unnecessary wastage of building resources and reducing CO2 emissions involved in the construction process.
Figure 1.
Location of Hunan area in China and old rammed earth dwellings.
Currently, extensive research is being conducted on the renovation of existing dwellings in various regions. Sustainable building renovation research has mainly focused on renovation techniques and renovation methods [16,17,18], drivers [19,20,21], and reviews [22,23,24] of building renovation. For example, López-Ochoa (2020) [25] used four insulation materials for four different heating and cooling systems in 10 different models for the energy renovation of residential buildings in cold Mediterranean regions. Ma (2021) [26] discussed the status of homeowner participation in energy retrofit projects in heating zones in northern China and suggested the following three areas of optimisation: steps and procedures for the participation process, composition of the working group responsible for contacting homeowners, and discussion of the content during the process. Khadra [27] developed a weighting factor approach for making sustainability decisions in building retrofitting and proposed a numerical system for comparing different renovation options using the case of Renobuild. Amoruso (2019) [28] used building information modelling and parametric environmental analysis tools to analyse the improvement in visual comfort in the sustainable renovation of a model apartment in Seoul, South Korea. D’Urso (2019) [29] used the parametric design and structural shape of a steel exoskeleton for the renovation of an earthquake-prone apartment building typical of the 1960s in Italy, proposing a holistic approach to sustainable building retrofitting in seismic areas. Hema (2017) [30] used WUFIPro software to study the wall humidity thermostatic efficiency of a representative building in Ouagadougou, describing vernacular architectural practices in Burkina Faso. XinyiHu (2021) [31] developed a framework for a combined active–passive retrofit for energy-efficient retrofitting of agricultural homes without benchmark buildings for farming, along with two months of environmental monitoring, and found that the retrofitting framework improves energy efficiency. Serrano-Jiménez (2021) [32] proposed an appropriate strategy for house retrofit selection and a multicriteria assessment and feasibility study related to the retrofit process based on two reference cases from Sweden. Despite adequate research, only a few studies have been conducted on the renovation of traditional Chinese rammed earth dwellings. Due to the existence of regional cultural and economic differences, the direct introduction of renovation techniques in China is difficult, especially in rural areas; these techniques vary considerably from region to region. Renovation materials also vary from one region to another. Therefore, it is not practical to directly use renovation methods adapted from other regions.
Sustainable building renovation provides an opportunity to address the current energy crisis and global warming challenges and is one of the most direct approaches to address the occupancy of aging buildings [33,34]. This paper presents an approach validated within a case study based on the aging problems observed in earth dwellings and proposes a sustainable renovation method for the existing aging rammed earth dwellings in the Hunan region, with improvements in dwelling functions, construction tools, construction materials, and construction processes. In addition, we select representative dwellings in Hunan region for case renovation. The renovated dwellings are evaluated in terms of factors such as indoor physical environment, satisfaction-questionnaire research of owners and participants, and carbon emissions. Exploring sustainable renovation methods applicable to aging rammed earth dwellings, especially in Hunan region, can contribute to energy-saving and the sustainable development of aging dwellings nationwide and act as a reference for the renovation of aging dwellings in other regions.
2. Methods
This study used a combination of quantitative monitoring, simulations, and qualitative analyses. The sustainable renovation of the framework of existing aging dwellings shown in Figure 2 involves the following two components: (1) proposal of renovation methods for existing residential buildings and (2) evaluation of residential renovation methods. The specifics include three steps. In the first step, the modern living requirements of the aging residential houses are solved. In response to the problem that the living function of the existing aging dwellings does not meet the daily needs of residents, we redesigned the floor plan to satisfy these needs, with the consideration of their original living habits, the local traditional culture, and the environmental conditions of their location. In the second step, the problem of renovation and construction of aging dwellings is solved. For the construction problems of cracked walls, room additions, and room alterations in these dwellings, we optimised traditional construction materials, construction tools, and construction processes considering material costs, material loads on the environment, construction efficiency, wall effects, and worker acceptance. In the third step, the proposed renovation framework is evaluated using a combination of qualitative and quantitative methods, such as quantitative monitoring and analysis of the indoor physical environment, qualitative analysis on the satisfaction questionnaires of owners and participants, and energy consumption of the renovated case dwelling during the construction phase.
Figure 2.
Renovation of the existing dwelling framework.
2.1. Research Case
The research case was selected from a representative traditional rammed earth dwelling, located in Ansha Town, Changsha City, Hunan Province. This dwelling was built in the 1970s, with a construction area of 446 m2. The load-bearing structure of the dwelling was earth wall load-bearing. The roof was covered with traditional green tiles. The back of the dwelling had a hillside and the front had farmland with a good view of the landscape; the west side of the dwelling was connected to the main village road (Figure 3).
Figure 3.
Location and status of renovation cases in Hunan Province, China.
2.2. Qualitative Analysis
Quantitative analyses were used to improve the functional problems of the original dwellings as well as the construction materials, tools, and techniques of traditional rammed earth dwellings. In addition, quantitative analyses of the questionnaire survey were used to assess the satisfaction of owners with the renovated dwellings and participants’ evaluation regarding the renovation process by using the following five aspects: (1) residential function, (2) construction tools, (3) construction materials, (4) construction process, and (5) owner and participant satisfaction questionnaires.
2.2.1. Residential Function
The functions of this residential dwelling included a bedroom, kitchen, hall, bathroom, storage room, and pig pen (Figure 4). The owner was dissatisfied with the functions of the existing rooms; thus, we redesigned these functions to incorporate the owner’s living space needs. The optimisation of the dwelling’s function included functional capacity, durability and reliability, flexibility and adaptability [35], and the outdoor environment on and around the site. In addition, we accounted for the regional and cultural environment in which the dwelling was located, and the renovated dwelling was improved in function while maintaining the owner’s living habits and adapting to the distinctive local culture.
Figure 4.
Floor plan of the aging residence.
In the functional redesign of the dwelling, the residential needs of the owners, such as habits and lifestyles, architectural aesthetics, and adaptability to the local culture and climate, were completely considered. The excessive storage rooms and abandoned pig pen of the original dwelling were removed, and chess and study rooms were added. In addition, the bedrooms and hall on the north side were retained and were kept intact. They remain in use by the owners. The southern part was added with bedrooms and gates to create a traditional enclosed courtyard space, which aligned with the local culture.
2.2.2. Construction Tools
Construction tools directly affect the quality of the finished building and construction time. We investigated the construction tools of traditional rammed earth dwellings in Hunan and proposed improved construction tools using modern materials and means to improve construction efficiency and the quality of renovated dwellings. These improved tools can be reused, and the materials can be recycled without putting a load on the environment. To validate the functional quality of the improved tools, a comparative construction of the same rammed earth material was conducted using traditional and improved construction tools.
2.2.3. Construction Materials
The construction process of new buildings often consumes considerable new building materials, which increases CO2 emissions. Moreover, building material wastage causes resource wastage and increases the environmental load. In addition to water conservation, air pollution control, consideration of thermal impacts, and local infrastructure loads [36], our consideration of the construction materials included two aspects:
(1) Reuse of building material waste. The construction materials of old houses are mainly cedar wood, raw earth, and green tiles. These green construction materials are reused in the renovation of residential dwellings, which not only preserves the cultural memory of the old dwellings but also reduces the environmental load added by the construction materials.
(2) Improvement in wall materials. We previously studied the improvement in the constituent wall materials [37]. The water resistance of the material is improved for the Hunan region with abundant rainfall. The moisture content of the material influences the strength and construction efficiency of the wall. The craftsmen determine the moisture content of traditional raw soil materials based on their experience, and the results are often different for different people. In this study, the Takeme-10 soil moisture meter (measurement accuracy: ±3%) was used to perform 20 measurements at different depths for both traditional and modified rammed earth materials (Figure 5).
Figure 5.
Instruments and construction materials used for testing materials’ moisture content. (a) Soil moisture measuring instrument. (b) High efficiency vertical mixer. (c) Traditional rammed earth materials.
2.2.4. Construction Process
Traditional rammed earth dwellings are often constructed by craftsmen, owners, and neighbours, and require considerable labour. With a decrease in the number of workers engaged in rammed earth dwelling construction in Hunan and the departure of local youth, the difficulty of the traditional construction process has increased. By using improved construction tools, this study investigated traditional construction processes and enhanced them by considering construction efficiency, wall construction effects, and traditional construction habits, which can effectively increase the construction efficiency and final result.
2.2.5. Questionnaire Survey
Satisfaction with the renovated rammed earth buildings and the construction process were assessed using a questionnaire (Table 1). The results of the improved and practiced traditional rammed earth craftsmanship were investigated from the following four aspects: cultural environment, indoor environment, outdoor environment, and overall evaluation. The residents’ satisfaction regarding the improved traditional rammed earth craftsmanship was evaluated based on 13 regional cultural factors.
Table 1.
Questionnaire of residents’ opinions on the renovated residential dwellings and construction techniques.
2.3. Quantitative Analysis
Quantitative analyses were conducted to explore the renovated dwellings for assessing physical indoor environment measurements and carbon emission in the process of residential renovation.
2.3.1. Objective Measurement
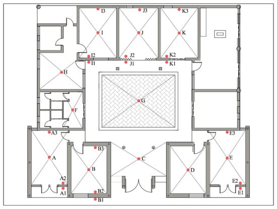
The indoor temperature and humidity of the bedroom of the renovated residential dwelling and those of the neighbours in the same location were monitored (parameters are shown in Table 2 and Figure 6). The selected test time was 28 August 2020, a day with typical summer climate characteristics and sunny weather. In addition, the indoor thermal environment of the renovated residential house was monitored on 6 September (Figure 7). The temperature and humidity meter automatically recorded the data of each test point at 1.5 m from the ground every 10 min, and the wind speed was selected as the average value of each test point every 30 min under natural ventilation for each room represented by each test point [38], as shown in Appendix A.
Table 2.
Test instruments and their parameters.
Figure 6.
Physical environment monitoring instruments. (a) Testo 175H1 temperature and humidity monitoring instrument. (b) Testo 0435 wind speed monitoring instrument.
Figure 7.
Indoor physical environment monitoring points.
2.3.2. Objective Simulation
Simulation software PKPM Green Building and Energy Efficiency Series V3.3 [39] were selected to simulate the carbon emissions of the construction process for the original and renovated dwellings and adjacent brick dwellings, including the production, transportation, and construction stages of the building materials. The data are shown in Figure 8 and Table 3. According to Carbon Emission Calculation Standard for Buildings in China, the carbon emission equation for the production phase of building materials is as follows.
where: Csc is the calculated carbon emission of building materials production, Mi is the consumption of the ith major building material, and Fi is the carbon emission factor of the ith major building material.
Figure 8.
Computer model of the dwelling model.
Table 3.
Carbon emission statistics for the production and transportation phases of building materials.
The carbon emission calculation equation for the transportation phase of building materials is as follows.
where: Cys is the carbon emission of the transportation process of building materials, Mi is the consumption of the ith main building material, Di is the average transportation distance of the ith building material, and Ti is the carbon emission factor per unit of weight of transportation distance under the transportation mode of the ith building material.
The carbon emission calculation equation for the construction phase of building materials is as follows.
where: CJZ is the carbon emissions per unit of floor area during the construction phase of a building, EjZ,i is the total energy use of the ith, and EFi is the carbon emission factor of the ith energy.
3. Renovation of the Rammed Earth Dwelling
This study conducted the sustainable renovation of an existing aging rammed earth dwelling in Hunan Province. The results of the sustainable renovation of the residential house indicated function improvement, construction tool improvement, construction material enhancement, and construction process improvement.
3.1. Function Improvement Results
The final renovation plan is shown in Figure 9. The renovated building was a single-story building with a 500 m2 courtyard, with the following individual room functions: bedroom, kitchen, dining room, study room, bathroom, and hall. No decorative paint was applied to the inner surfaces of the rammed earth walls of the new section, preserving the originality of the rammed earth building itself and the beautiful texture presented by the rammed earth walls. We adopted the reinforcement measure of yellow mud plaster for the preserved walls, which is both energy-saving and unified with the form of the new building. The overall building space was clearly layered and in harmony with the surrounding natural environment.
Figure 9.
(a) Floor plan of the renovated dwelling. (b) Perspective view of the renovated dwelling. (c) The roof frame of the renovated dwelling. (d) The model effect of the renovated dwelling. (e) The facade of the renovated dwelling. (f) The gate of the renovated dwelling.
3.2. Construction Tool Improvement Results
Figure 10 shows a schematic of traditional ramming tools and their use in the Hunan region. Traditional ramming tools mainly include formwork, ramming hammers, tappers, shovels, mixing tools, and transportation tools. The power is often not sufficient for the whole process of traditional craftsmen ramming walls. After removing the mould in traditional rammed earth camping, the wall is in a wet state and the tapper is used to make the wall smoother and denser.
Figure 10.
Schematic of traditional ramming tools and their use in Hunan region. (a) Ramming templates and ramming templates size. (b) Repairing walls with tapper. (c) Ramming hammers and ramming hammers size. (d) Tapping walls with tapper. (e) Tappers and tappers size. (f) Pouring material into the ramming template.
The improved ramming tool is shown in Figure 11. The improved construction tools are made of steel with 15 mm holes left in the formwork, which was held in place by mounting nuts and screws. The constructed moulds could be disassembled and reassembled to accommodate walls with different sizes and forms. The improved ramming moulds could be spliced to form an ‘L’ shape for ramming walls at corners, a ‘T’ shape for those at the intersection of vertical and horizontal wells, and a ‘—’ shape for the straight wall ramming. Through this form, in a version of the rammed earth to complete the moulds, the formwork could be moved vertically upward for the subsequent wall ramming. In addition, a pneumatic tamping machine, instead of the traditional craftsmen, was used to power the construction. This not only provided continuous and sufficient power but also reduced labour.
Figure 11.
Improved ramming tools and production process. (a) ‘—’ shape formwork and ‘—’ shape formwork size. (b) Making moulds. (c) ‘T’ shape formwork and ‘T’ shape formwork size. (d) Air compressed. (e) ‘L’ shape formwork and ‘L’ shape formwork size. (f) Demonstration of the improved tool.
Table 4 compares the performances of the conventional and modified tools in construction walls. In terms of practical operation, as compared to the traditional tool, the improved tool showed a three times improved ramming force, two-and-a-half times improved ramming rate, and significantly better smoothness and shrinkage of the rammed wall. The improved tamping tool was significantly better than the traditional tamping tool in terms of efficiency, process, and effectiveness.
Table 4.
Comparison of the performances of conventional and improved tools in construction walls.
3.3. Construction Material Improvement Results
The percentage of materials used in the renovation process of the old dwelling is shown in Figure 12. We made full use of old materials. The reuse rate of green tiles and raw soil was more than 90%, and green tiles were used to build the floor pavement, while raw soil was used as garden soil and field soil. The reuse rate of fir, which can be reused as beams, rafters, and kitchen wall decoration, was over 80%.
Figure 12.
Percentage of materials used in the renovation process of the old dwelling.
Table 5 shows the statistics of the materials used in the renovation process of the residential dwelling. During the renovation process, we accounted for the eco-efficiency and environmental efficiency of the construction materials and used sustainable materials. The most frequently used materials were wood and green tiles, which can be reused. The main material used to build the walls was red clay, which was obtained from the hills near the dwelling, was free of cost, and could be used as soil for the fields after the wall was removed. The other materials were also bought from the market near the dwelling and were local materials, which also reduced the thermal carbon emissions involved in transportation.
Table 5.
Statistics of materials used in the renovation of the residential dwelling.
Figure 13 shows the measurements of the moisture content of the traditional and improved rammed earth materials. The moisture content of the conventional rammed earth material was 24–30%, with a fluctuation of 17.5% and a standard deviation of 2.2627. The moisture content of the improved material was approximately 15% lower than that of the conventional material, and the fluctuation was 13% lower with a standard deviation of 2.12. The moisture content of the improved material was significantly lower than that of the conventional material, and the improved material was mixed more uniformly. This shows that the mixing effect of the improved tool was better than that of the conventional tool. In addition, the high moisture content of the traditional rammed earth material indicated that after constructing a part of the wall, it takes several days for the moisture content of the wall to decrease before the next construction can occur. This is one of the reasons for the low efficiency of traditional construction. Improving the material helps to speed up the construction process.
Figure 13.
Moisture content measurements of the traditional and improved rammed earth materials.
3.4. Construction Process Improvement Results
The traditional and improved rammed earth wall construction processes are shown in Figure 14. The traditional process involves mould installation, filling, ramming, mould removal, and wall patching. First, the hand-mixed rammed earth material is poured into the installed mould. Second, the wall is rammed using a rammer. The specific ramming is carried out in three stages: in the first stage, the ‘herringbone’ ramming method is used to compact the material layer; in the second stage, the ‘—’ ramming method of compaction is used; and in the third stage, ramming along the mould wall is performed. The improved wall tamping process was also conducted in three stages: in the first stage, the ‘herringbone’ ramming method was used to compact the material layer; in the second stage, the ‘homocentric square’ ramming method was used, where an inward spiral operation is conducted along the mould wall to completely compact the material layer; and in the third stage, ramming was conducted along the mould wall to ensure that the wall surface was compacted and flat.
Figure 14.
(a) Corner ‘staggered lap’ method. (b) Integral ramming method. (c) Traditional wall ramming method. (d) Improved wall ramming method.
Figure 15 shows the construction process of the renovated dwelling. Throughout the construction process, no construction material waste was generated. Both the owner and local residents participated in the construction process. The process could be easily learned, which facilitated the local residents to renovate their old dwellings themselves.
Figure 15.
The construction process of renovated dwellings. (a) Foundation construction. (b) Column-in-wall construction. (c) Column-in-wall construction. (d) Wall corner construction. (e) Moulds installation. (f) The intersection of the new wall and the old one. (g) Wall construction. (h) Renovated dwellings.
3.5. Assessment Results of the Renovation of Residential Dwellings
This study evaluated the sustainable renovation case. The evaluation results showed indoor physical environment measurements, a questionnaire survey, and energy consumption for the renovation process.
3.5.1. Indoor Physical Environment Measurement Results
Figure 16 shows the indoor and outdoor temperature and humidity monitoring results of the renovated and neighbouring residential dwellings. The average temperatures in the renovated residence, neighbouring residence, and outdoors were 28.99, 29.39, and 33.70 °C, with fluctuations of 1.1, 1.1, and 2.1 °C, respectively. The maximum and minimum bedroom temperatures in the renovated dwelling were lower than those in the neighbouring dwelling and outdoors. The average humidity in the renovated dwelling, neighbouring dwelling, and outdoors were 72.96%, 77.12%, and 57.72%, with fluctuations of 9.7%, 9.3%, and 17.00%, respectively. To exclude the effect of natural ventilation on indoor temperature and humidity, the windows of the monitored rooms in both renovated and neighbouring dwellings were closed during the monitoring period, resulting in higher indoor humidity than outdoor humidity in both dwellings.
Figure 16.
(a) Indoor and outdoor temperature and humidity monitoring results of renovated and neighbouring residential dwellings. (b) Indoor and outdoor temperature and humidity statistical analysis of renovated and neighbouring residential dwellings.
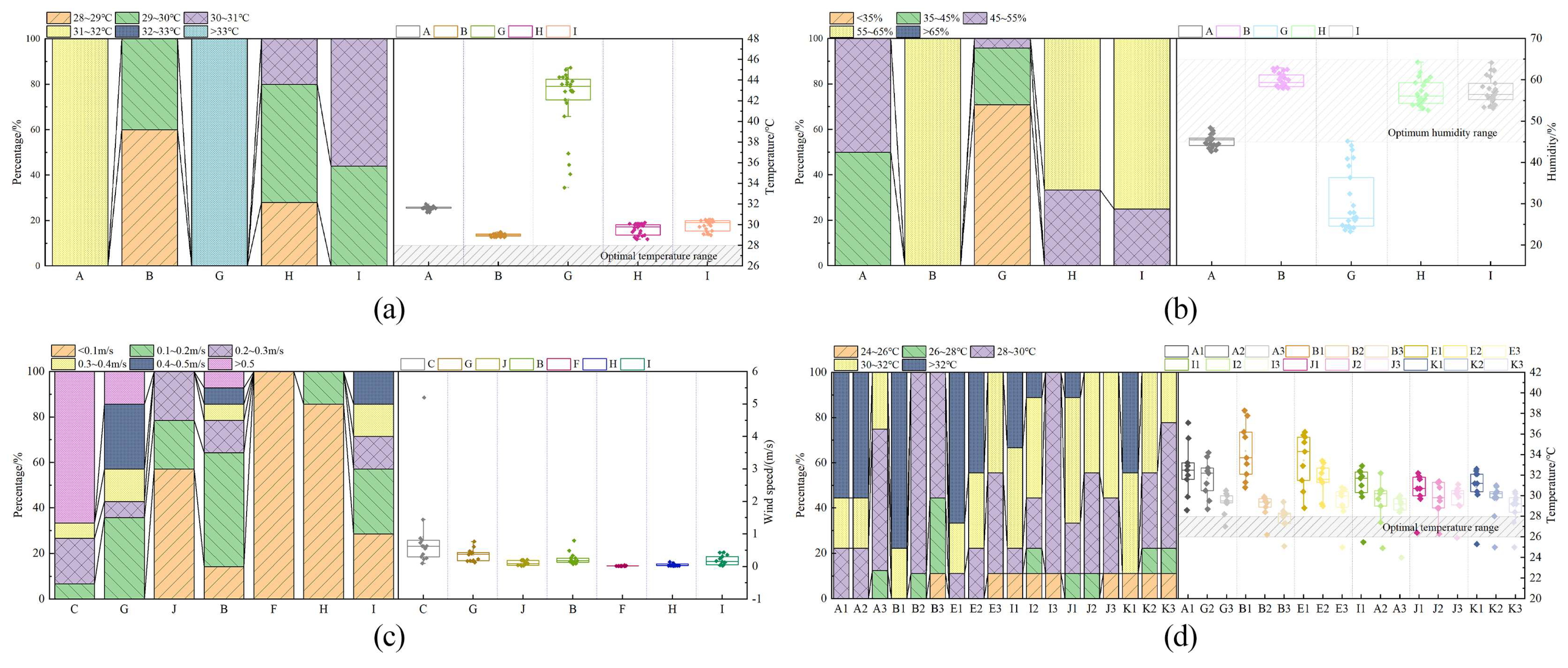
The average temperatures of test points A, B, G, I, and H were 31.58, 28.99, 42.15, 29.54, and 29.944 °C, respectively, and the maximum temperatures were 32, 29.3, 45.2, 30.2, and 30.5 °C. At a maximum outdoor temperature of 45.2 °C, the room temperature was 13.2 °C lower than the outdoor temperature (Figure 17a). The average humidity values at test points A, B, G, I, and H were 45.216%, 59.88%, 30.372%, 56.868%, and 57.372%, respectively, with humidity fluctuations varying as 5.7%, 4.9%, 21.9%, 11.6%, and 11.1% (Figure 17b). The average wind speeds at test points C, G, J, B, F, H, and I were 0.91071, 0.35286, 0.10786, 0.24357, 0.02214, 0.05357, and 0.20214 m/s, respectively (Figure 17c). The average temperature of the wall surfaces in each room was below 27 °C (Figure 17d).
Figure 17.
(a) Statistical analysis of temperature at each monitoring point. (b) Statistical analysis of humidity at each monitoring point. (c) Statistical analysis of wind speed at each monitoring point. (d) Statistical analysis of wall temperature at each monitoring point.
The average temperature and fluctuation of each room in the renovated dwelling were significantly lower than those outdoors. The average temperature of the wall surface inside each room was below 27 °C. The renovated dwelling exhibited good insulation performance. In addition, the humidity at test points A (bedroom 1), B (study room), and G (bedroom 3) was within the comfortable range, while that at test point G (chess room 1) required improvement. This indicates that renovating a residential house can effectively improve the humidity of the room. The indoor ventilation in each room of the renovated dwelling was poor during the monitoring period. This is partly related to the relatively low natural wind speed on the day of monitoring and partly indicates the need for improvement in the window locations, window sizes, and other ventilation openings.
3.5.2. Questionnaire Results
We collected 107 valid questionnaires to assess the satisfaction of the improved rammed earth building and construction process. There were 10 items with a satisfaction value exceeding 1.00 (the three factors of indoor temperature, ventilation, and lighting were selected for research in winter and summer, and in this study, the overall satisfaction evaluation of residents in summer and winter was taken as the research result) and two items with a satisfaction value close to 1.00. Only one item, the convenience of daily life, had a satisfaction value of 0.70 (Table 6). This indicates that the renovation of traditional rammed earth dwellings is generally accepted by the residents.
Table 6.
Satisfaction of the renovated raw earth dwelling.
3.5.3. Carbon Emission
The simulation results of carbon emissions during the construction of original and renovated dwellings and the neighbouring brick dwelling were analysed as shown in Figure 18. The total carbon emission from the production, transportation, and construction of the renovated dwelling was 216.97 t, which is 23.16% less than that of the neighbouring brick dwelling. The carbon emissions of the renovated rammed earth dwelling were 83.7% lower than those of the brick dwelling in the transportation stage and lower than those of both the original dwelling and brick dwelling in the production and construction stages of the building materials. This indicates that the renovated dwelling effectively reduced CO2 emissions during the construction material phase.
Figure 18.
Carbon emissions during the construction of original and renovated dwellings and adjacent brick dwellings. (a) Building materials production stage. (b) Building material transportation stage. (c) Construction stage. (d) Old dwelling. (e) Renovated dwelling. (f) Brick and mortar dwelling.
4. Discussion
The problem of global warming has highlighted the importance of reducing greenhouse gas emitted from the construction industry by using methods, such as developing green building technologies and materials to reduce carbon emissions during the life cycle of buildings, which is a challenging task, especially in China, where buildings account for 25% of total carbon emission. Moreover, a minimum of 100 million people in China still live in various forms of raw earth buildings. These raw earth dwellings are aging and face functional homogeneity and serious structural safety problems. In this situation, sustainable renovation methods are necessary to improve the quality of these aging dwellings and reduce CO2 emissions during building construction. This study proposed a sustainable renovation method for the existing aging raw earth dwellings in Hunan Province. The renovation method was proposed and performance was assessed for typical traditional raw earth dwellings in Hunan region for achieving a healthy environment, satisfaction, and low carbon emission in terms of room function, construction materials, construction tools, and techniques.
This study showed that the existing aging raw earth dwellings can be renovated in a sustainable manner by redesigning room functions and improving construction materials, tools, and techniques. Improved wall construction materials have a highly uniform and low moisture content. In addition, optimised construction tools allow excellent wall construction and optimized construction processes for different wall shapes, further improving the construction efficiency and reducing carbon emissions. The owners’ acceptance of the renovated house is considerably high. The interior physical environment of the renovated houses is better than that of the adjacent houses due to the excellent thermal properties of the raw earth materials. In addition, the renovated house uses considerable waste materials from the old house, and the amount of carbon emitted during the transportation stage of the building materials for this house is 83.7% lower than that for the brick-and-mortar house. During the renovation process, no construction material waste was generated. This renovation method can be easily used for the construction of almost all existing aged raw earth dwellings in Hunan Province and other regions. However, in practical application, the structure of raw earth dwellings in areas with severe seismic hazards must be focused on.
5. Conclusions
Sustainable building renovation is an opportunity to address the current energy crisis and global warming challenges and is one of the most direct ways to address the occupancy of aging buildings. This paper proposes a method for the sustainable renovation of existing aging rammed earth dwellings in the Hunan region. The renovation of the dwellings includes four aspects: plan function, construction tools, construction materials, and construction process. We selected representative dwellings in the Hunan region for the renovation of actual cases. The renovation cases were also evaluated from three aspects: indoor physical environment, satisfaction questionnaire, and CO2 emission. The results indicated that the sustainable renovation approach was highly accepted by the owners and participants and was effective in reducing CO2 emissions during the building material phase. This contributes to the low-carbon sustainable development of aging homes in Hunan and other regions.
- (1)
- The sustainable renovation method was successfully used to renovate aging rammed earth dwellings in Hunan Province. The floor plan function of the renovated dwelling maintains the owner’s living habits and local cultural customs, and meets their living needs. The improved tools can accommodate the construction of walls with different sizes and forms. These tools are significantly better than the traditional ones in terms of power duration and effectiveness. The construction materials make full use of waste materials from old homes, including green tiles, raw earth, and wood. The renovation materials were selected from local materials, effectively reducing costs and carbon emissions incurred during the transportation of building materials. In addition, the improved rammed earth wall materials have a more uniform and lower moisture content, which increases the construction efficiency. The improved construction process also contributes to the integrity of the wall and the construction results.
- (2)
- The assessment results of the renovated houses show that the average indoor temperature of the renovated houses is lower than that of the neighbouring and outdoor dwellings. The indoor humidity fluctuations are also lower than those of the neighbouring and outdoor dwellings. The results of the owner and participant questionnaires indicate that the renovation method is generally accepted by the residents. The carbon emissions caused by the production, transportation, and construction phases of the renovated homes are lower than those caused by the brick homes.
- (3)
- The actual project and evaluation results show that the proposed sustainable renovation method can effectively address the aging problem of rammed earth dwellings in Hunan. However, this study has some shortcomings. In the proposed renovation method, diverse measures to reduce carbon emissions, such as heating, ventilation, air conditioning system optimisation, increasing the area of green vegetation, and using renewable energy, were not completely considered. There was also no analysis of the carbon emissions in the operation and recycling phases of the renovated residential houses. These will be studied in detail in the future.
Author Contributions
Conceptualisation, L.S. and F.Z.; methodology, F.Z.; software, L.S. and Y.Y.; validation, L.S.; formal analysis, F.Z.; investigation, F.Z. and Y.Y.; resources, S.L. and L.S.; data curation, F.Z. and J.S.; writing—original draft preparation, F.Z.; writing—review and editing, Y.Y.; visualisation, F.Z.; supervision, J.S. All authors have read and agreed to the published version of the manuscript.
Funding
This research was funded by the Ministry of Education of Humanities (grant number: 20YJCZH105), Natural Science Foundation of Hunan Province of China (grant number: 2020JJ4720), and the Key R&D Projects of Hunan Province of China (grant number: 2019SK2183).
Institutional Review Board Statement
Not applicable.
Informed Consent Statement
Informed consent was obtained from all subjects involved in the study.
Data Availability Statement
Data available on request due to restrictions of privacy. The data presented in this study are available on request from the corresponding author. The data are not publicly available due to privacy. Please contact corresponding author before use.
Acknowledgments
The authors would like to thank Z.M.Q. and L.Z. for excellent technical support, data curation, and investigation.
Conflicts of Interest
The authors declare no conflict of interest.
Appendix A
Table A1.
The individual rooms represented by each test point.
Figure A1.
(a) Indoor temperature statistics of renovated dwelling and neighboring dwelling. (b) Indoor temperature statistics of renovated dwelling. (c) Indoor humidity statistics of renovated dwelling. (d) Indoor humidity statistics of renovated dwelling and neighboring dwelling. (e) Indoor wind speed statistics of renovated dwelling. (f) Indoor ventilation statistics of renovated dwelling.
References
- Lippiatt, N.; Ling, T.-C.; Pan, S.-Y. Towards carbon-neutral construction materials: Carbonation of cement-based materials and the future perspective. J. Build. Eng. 2020, 28, 101062. [Google Scholar] [CrossRef]
- Shi, Q.; Chen, J.; Shen, L. Driving factors of the changes in the carbon emissions in the Chinese construction industry. J. Clean. Prod. 2017, 166, 615–627. [Google Scholar] [CrossRef]
- Eberhardt, L.C.M.; Rønholt, J.; Birkved, M.; Birgisdottir, H. Circular Economy potential within the building stock-mapping the embodied greenhouse gas emissions of four Danish examples. J. Build. Eng. 2021, 33, 101845. [Google Scholar] [CrossRef]
- Hou, H.; Wang, J.; Yuan, M.; Liang, S.; Liu, T.; Wang, H.; Bai, H.; Xu, H. Estimating the mitigation potential of the Chinese service sector using embodied carbon emissions accounting. Environ. Impact Assess Rev. 2021, 86, 106510. [Google Scholar] [CrossRef]
- Zhang, S.-C.; Yang, X.-Y.; Xu, W.; Fu, Y.-J. Contribution of nearly-zero energy buildings standards enforcement to achieve carbon neutral in urban area by 2060. Adv. Clim. Change Res. 2021, 12, 734–743. [Google Scholar] [CrossRef]
- Wang, J.; Huang, Y.; Teng, Y.; Yu, B.; Wang, J.; Zhang, H.; Duan, H. Can buildings sector achieve the carbon mitigation ambitious goal: Case study for a low-carbon demonstration city in China? Environ. Impact Assess Rev. 2021, 90, 106633. [Google Scholar] [CrossRef]
- Wu, Y.; Shen, L.; Shuai, C.; Jiao, L.; Liao, S.; Guo, Z. Key driving forces on the development of low carbon city (LCC) in China. Ecol. Indic. 2021, 124, 107379. [Google Scholar] [CrossRef]
- Gallipoli, D.; Bruno, A.W.; Perlot, C.; Mendes, J. A geotechnical perspective of raw earth building. Acta Geotech. 2017, 12, 463–478. [Google Scholar] [CrossRef] [Green Version]
- Almusaed, A.; Almssad, A.; Homod, R.Z.; Yitmen, I. Environmental profile on building material passports for hot climates. Sustainability 2020, 12, 3720. [Google Scholar] [CrossRef]
- Jannat, N.; Hussien, A.; Abdullah, B.; Cotgrave, A. Application of agro and non-agro waste materials for unfired earth blocks construction: A review. Constr. Build. Mater. 2020, 254, 119346. [Google Scholar] [CrossRef]
- Mellaikhafi, A.; Tilioua, A.; Souli, H.; Garoum, M.; Hamdi, M.A.A. Characterization of different earthen construction materials in oasis of south-eastern Morocco (Errachidia Province). Case Stud. Constr. Mater. 2021, 14, e00496. [Google Scholar] [CrossRef]
- Schweiker, M.; Endres, E.; Gosslar, J.; Hack, N.; Hildebrand, L.; Creutz, M.; Klinge, A.; Kloft, H.; Knaack, U.; Mehnert, J. Ten questions concerning the potential of digital production and new technologies for contemporary earthen constructions. Build. Environ. 2021, 206, 108240. [Google Scholar] [CrossRef]
- Parracha, J.L.; Lima, J.; Freire, M.T.; Ferreira, M.; Faria, P. Vernacular earthen buildings from Leiria, Portugal–Architectural survey towards their conservation and retrofitting. J. Build. Eng. 2021, 35, 102115. [Google Scholar] [CrossRef]
- Pacheco-Torgal, F.; Jalali, S. Earth construction: Lessons from the past for future eco-efficient construction. Constr. Build. Mater. 2012, 29, 512–519. [Google Scholar] [CrossRef] [Green Version]
- Niroumand, H.; Zain, M.; Jamil, M. Various types of earth buildings. Procedia Soc. Behav. Sci. 2013, 89, 226–230. [Google Scholar] [CrossRef] [Green Version]
- Ma, Z.; Cooper, P.; Daly, D.; Ledo, L. Existing building retrofits: Methodology and state-of-the-art. Energy Build. 2012, 55, 889–902. [Google Scholar] [CrossRef]
- Göswein, V.; Silvestre, J.D.; Monteiro, C.S.; Habert, G.; Freire, F.; Pittau, F. Influence of material choice, renovation rate, and electricity grid to achieve a Paris Agreement-compatible building stock: A Portuguese case study. Build. Environ. 2021, 195, 107773. [Google Scholar] [CrossRef]
- Liu, Y.; Chen, H.; Wang, X.-J. Research on green renovations of existing public buildings based on a cloud model–TOPSIS method. J. Build. Eng. 2021, 34, 101930. [Google Scholar] [CrossRef]
- Tan, Y.; Luo, T.; Xue, X.; Shen, G.Q.; Zhang, G.; Hou, L. An empirical study of green retrofit technologies and policies for aged residential buildings in Hong Kong. J. Build. Eng. 2021, 39, 102271. [Google Scholar] [CrossRef]
- Jiang, Y.; Mohabir, N.; Ma, R.; Wu, L.; Chen, M. Whose village? Stakeholder interests in the urban renewal of Hubei old village in Shenzhen. Land Use Policy 2020, 91, 104411. [Google Scholar] [CrossRef]
- Pan, W.; Pan, M. A ‘demand-supply-regulation-institution’ stakeholder partnership model of delivering zero carbon buildings. Sust. Cities Soc. 2020, 62, 102359. [Google Scholar] [CrossRef]
- Jagarajan, R.; Asmoni, M.N.A.M.; Mohammed, A.H.; Jaafar, M.N.; Mei, J.L.Y.; Baba, M. Green retrofitting–A review of current status, implementations and challenges. Renew. Sust. Energy Rev. 2017, 67, 1360–1368. [Google Scholar] [CrossRef]
- Hashempour, N.; Taherkhani, R.; Mahdikhani, M. Energy performance optimization of existing buildings: A literature review. Sust. Cities Soc. 2020, 54, 101967. [Google Scholar] [CrossRef]
- Jensen, P.A.; Maslesa, E.; Berg, J.B.; Thuesen, C. 10 questions concerning sustainable building renovation. Build. Environ. 2018, 143, 130–137. [Google Scholar] [CrossRef]
- López-Ochoa, L.M.; Las-Heras-Casas, J.; López-González, L.M.; García-Lozano, C. Energy Renovation of Residential Buildings in Cold Mediterranean Zones Using Optimized Thermal Envelope Insulation Thicknesses: The Case of Spain. Sustainability 2020, 12, 2287. [Google Scholar] [CrossRef] [Green Version]
- Ma, J.; Qian, Q.K.; Visscher, H.; Song, K. Homeowners’ Participation in Energy Efficient Renovation Projects in China’s Northern Heating Region. Sustainability 2021, 13, 9037. [Google Scholar] [CrossRef]
- Khadra, A.; Hugosson, M.; Akander, J.; Myhren, J.A. Development of a weight factor method for sustainability decisions in building renovation. Case study using renobuild. Sustainability 2020, 12, 7194. [Google Scholar] [CrossRef]
- Amoruso, F.M.; Dietrich, U.; Schuetze, T. Integrated BIM-parametric workflow-based analysis of daylight improvement for sustainable renovation of an exemplary apartment in Seoul, Korea. Sustainability 2019, 11, 2699. [Google Scholar] [CrossRef] [Green Version]
- D’Urso, S.; Cicero, B. From the efficiency of nature to parametric design. A holistic approach for sustainable building renovation in seismic regions. Sustainability 2019, 11, 1227. [Google Scholar] [CrossRef] [Green Version]
- Hema, C.M.; Van Moeseke, G.; Evrad, A.; Courard, L.; Messan, A. Vernacular housing practices in Burkina Faso: Representative models of construction in Ouagadougou and walls hygrothermal efficiency. Energy Procedia 2017, 122, 535–540. [Google Scholar] [CrossRef]
- Hu, X.; Xiang, Y.; Zhang, H.; Lin, Q.; Wang, W.; Wang, H. Active–passive combined energy-efficient retrofit of rural residence with non-benchmarked construction: A case study in Shandong province, China. Energy Rep. 2021, 7, 1360–1373. [Google Scholar] [CrossRef]
- Serrano-Jiménez, A.; Femenías, P.; Thuvander, L.; Barrios-Padura, Á. A multi-criteria decision support method towards selecting feasible and sustainable housing renovation strategies. J. Clean. Prod. 2021, 278, 123588. [Google Scholar] [CrossRef]
- He, C.; Hou, Y.; Ding, L.; Li, P. Visualized literature review on sustainable building renovation. J. Build. Eng. 2021, 44, 102622. [Google Scholar] [CrossRef]
- Jiménez-Pulido, C.; Jiménez-Rivero, A.; García-Navarro, J. Improved sustainability certification systems to respond to building renovation challenges based on a literature review. J. Build. Eng. 2022, 45, 103575. [Google Scholar] [CrossRef]
- Zhang, H.; Lei, S.L. An assessment framework for the renovation of existing residential buildings regarding environmental efficiency. Procedia Soc. Behav. Sci. 2012, 68, 549–563. [Google Scholar] [CrossRef] [Green Version]
- Amoruso, F.M.; Schuetze, T. Hybrid timber-based systems for low-carbon, deep renovation of aged buildings: Three exemplary buildings in the Republic of Korea. Build. Environ. 2022, 214, 108889. [Google Scholar] [CrossRef]
- Zhang, F.; Shi, L.; Liu, S.; Zhao, M.; Ma, Q. Red loam soils blocks modified using cement-lime: Assessment of its optimum ratio, performance, and practice. Proc. J. Phys. Conf. Ser. 2021, 1965, 012070. [Google Scholar] [CrossRef]
- Zhang, F.; Shi, L.; Liu, S.; Shi, J.; Ma, Q.; Zhang, J. Climate Adaptability Based on Indoor Physical Environment of Traditional Dwelling in North Dong Areas, China. Sustainability 2022, 14, 850. [Google Scholar] [CrossRef]
- Zhang, B.; Li, X.; Lin, B.; Zhu, Y. A CBR-based decision-making model for supporting the intelligent energy-efficient design of the exterior envelope of public and commercial buildings. Energy Build. 2021, 231, 110625. [Google Scholar] [CrossRef]
Publisher’s Note: MDPI stays neutral with regard to jurisdictional claims in published maps and institutional affiliations. |
© 2022 by the authors. Licensee MDPI, Basel, Switzerland. This article is an open access article distributed under the terms and conditions of the Creative Commons Attribution (CC BY) license (https://creativecommons.org/licenses/by/4.0/).



















