Next Article in Journal
Environmental Impacts of Boom-Corridor and Selectively Thinned Small-Diameter-Tree Forests
Previous Article in Journal
Importance of Purchasing Power and Education in the Food Security of Families in Rural Areas—Case Study: Chambo, Ecuador
 
 
Font Type:
Arial Georgia Verdana
Font Size:
Aa Aa Aa
Line Spacing:
Column Width:
Background:
Article

Autonomous Houses and Architecture of Cybernetics in the 1970s: Towards Limits and Undeveloped Potentials of the Sustainable

Department of Architecture, Delft University of Technology, 2628 BL Delft, The Netherlands
Sustainability 2022, 14(10), 6073; https://doi.org/10.3390/su14106073
Submission received: 28 March 2022 / Revised: 5 May 2022 / Accepted: 11 May 2022 / Published: 17 May 2022

Abstract

In 1969, English researcher Gordon Pask published an article named “The Architectural Relevance of Cybernetics”, defining a theoretical framework concerning a cybernetic theory of architecture. Throughout the 1970s, the Cambridge Research Group designed the Autonomous House, a self-sufficient dwelling in terms of energy and food. Part of the Cambridge group approach relates to cybernetics. However, the group did not regard several aspects of cybernetics described in the theoretical framework of Pask. Through a literature review primarily focused on 1970s architectural magazines, this paper analyses which cybernetic aspects were not regarded in the Cambridge Autonomous House and other similar houses as case studies. Through an innovative analytical method, it demonstrates that some limitations of the house design, such as the main focus on costs and technologies, could have been reduced if aspects of cybernetics had been more incorporated. Using cybernetics as a lens represents a method which can be beneficial also in analysing today’s examples of sustainable and autonomous architecture.

1. Introduction and Research Method

The English scientist, designer, researcher, and academic Gordon Pask was a significant contributor to second-order cybernetics [1,2]. In a special issue of Architectural Design Magazine from September 1969, Pask published an article entitled “The Architectural Relevance of Cybernetics” [3], defining a theoretical framework concerning a cybernetic theory of architecture [4]. Throughout the 1970s, the Cambridge Research Group, led by British architects Alexander Pike and John Frazer—a colleague of Gordon Pask at the Architectural Association in London—designed the Autonomous House, a self-sufficient dwelling in terms of energy and food. Few aspects of cybernetics influenced the Cambridge group. As an example, one of the references of the Autonomous House was the Dymaxion House designed by Richard Buckminster Fuller, who noted cybernetics as a key tool with which to solve the world’s problems [5,6]. However, the group did not regard several aspects of cybernetics described in the theoretical framework of Pask. The autonomous houses remained for the most part on the margins, ignored by the mainstream practitioners, intellectuals, and academics and cast apart during the 1980s when the oil price dropped, following the oil crisis in the previous decade [7].
Similar to the situation of today’s climate change emergency, after the 1970s oil crisis in Europe, sustainable architecture attempted to balance energy and resource consumption. In the 1970s, the Cambridge group designed autonomous houses, but they were not successfully built and implemented in the built environment. The reasons were mainly related to the oil price, which decreased after the 1980s, and consequently, the attention towards sustainability and resource scarcity diminished. However, other reasons why the autonomous houses were not successful could be related to their multidisciplinary approach, which mainly focused on some aspects such as technology and the economy, while overlooking other aspects, for example, related to the social domain. The autonomous houses did not focus extensively on social aspects related to the inhabitants, such as daily use of the devices, users’ resource management, maintenance, and DIY construction. Moreover, the houses did not include any strategy of adaptation, development, or evolution concerning the users and the context, use, and post-use. The meaning of the word autonomous was also not clearly defined and analysed. The autonomous houses would not have been cast apart so easily if the above-mentioned aspects had been thoroughly investigated. Second-order cybernetics in general and the framework developed by Pask focus on a multidisciplinary approach, including social and anthropological domains, adaptation, and development. Therefore, this research proposes an innovative method investigating the houses through a lens derived from cybernetics, which has the potential to thoroughly analyse the autonomous houses and respond to the above assumptions.

1.1. Today’s Relevance of Investigating the Autonomous Houses and Cybernetics

This article highlights the crucial relevance of investigating autonomous houses and the second-order cybernetics also for today. Adopting specific perspectives derived from cybernetics to analyse today’s sustainable architectural approaches can be beneficial to assess aspects such as multidisciplinary design processes, including plans of adaptation and development. If a similar cybernetic assessment is conducted, today’s examples of sustainable and autonomous architecture could potentially optimize user experience of resources.
This article also partially fills a research gap regarding the ecological design and its relation to cybernetics during the 1970s. The analysis of experimental ecological design during the 1970s, including autonomous houses, is also relevant because the major histories of modern architecture, such as Curtis’ Modern Architecture Since 1900 [8], Frampton’s Modern Architecture: A Critical History [9], Colquhoun’s Modern Architecture [10], and Tafuri and Dal Co’s Modern Architecture [11], do not focus extensively on it [12]. Autonomous houses rarely figure in architectural history or are treated as specific phenomena [13], decontextualized and disconnected from the non-ecological architecture. Although architectural critic Reyner Banham in his 1969 book, The Architecture of the Well-tempered Environment [14], examined the role of technology and utilities in architecture, he did not address the question of energy autonomy [15]. Autonomous housing analysis is still limited also in recent historical surveys of sustainable architecture and ecological design [13,16,17,18,19,20].
Mainstream and counterculture European architectural periodicals of the 1960s and 1970s (e.g., Architectural Design Magazine [21] and Undercurrents, the magazine of radical science and alternative technology [22]) illustrated several architectural approaches related to autonomous houses and cybernetics. Both autonomous houses and cybernetics were part of a response to a time when the awareness of the natural environment increased in two decades, starting with breakthrough writings such as the 1962 Silent Spring by Rachel Carson [23], and culminating with 1970s oil crisis. As researcher Tanja Herdt, states, “the influence of cybernetics and systems thinking on architectural design during the 1960s and 70s, can be labelled “ecological” in today’s terminology [24] (p. 45)”. She continues, declaring that “Thanks to cybernetics, the idea of ecology changed after World War II to a more integrated vision in which the natural world was no longer seen in opposition to the human-made world [24] (p. 45)” [25]. Architectural scholars Stavros Kousulas and Dulmini Perera state the importance of repositioning cybernetics today as “neither an outdated way of thinking nor as computational practice alone, but as a discourse that continues to offer possibilities for architectural theories and practices [26] (p. 3)”. They edited a journal issue focused on cybernetics, defining today’s “third-order cybernetics” as extending beyond the original scope of living organisms and their environments, including “ecologies of ideas, power, institutions, media, making it high time for architectural and urban studies to take into consideration its ground-breaking potentials [26] (p. 3)”.
This article takes second-order cybernetics as the primary reference to investigate autonomous houses, firstly due to their relation within time and context. Pask’s “Architectural Relevance of Cybernetics” and Pike’s Autonomous House were developed around the same time at the end of the 1960s and in the 1970s, had similar contexts in London and Cambridge, and both men worked with John Frazer. This article refers to cybernetics to compose a theoretical framework to analyse the autonomous houses, mainly for three reasons. The first reason is that cybernetics has a multidomain approach which can be used to assess whether a sustainable project such as the Autonomous House is extensively regarding the whole spectrum of domains or focusing only on some. The second is because Pask’s cybernetic theoretical framework includes a plan for adaptation and development consisting of some evolutionary principles and which can be beneficial to understand to what extent an example such as the Autonomous House was designed considering its post-use, relation to the users, possible future transformation, and end of life. A third crucial aspect related to cybernetics is the definition and the meaning of autonomy. In the 1970s, the term autonomy referring to architecture and cybernetics had a specific meaning, but it was not linked to the project of Pike. This third reason is also essential since assessing the name and the meaning of an innovative project in terms of internal and external communication can contribute to defining a successful or unsuccessful development path.
These three elements, related to multidomain adaptation, development, definition, and communication, can be crucial to investigate and assess the sustainable or circular projects of today. Often, contemporary architectural projects self-reliant in energy and food are either focused only on some domains, have a short-term plan, or are named referring to sustainability, mainly for commercial reasons. Today, the concept of autonomous houses regarding cybernetic-inspired systemic multidomain adaptation and development could be considered highly relevant. In recent years, the global population has increasingly encountered several forms of crises concerning self-isolation due to the COVID-19 pandemic, scarcity in energy and material resources, and climatic changes. Today, constructions of houses and neighbourhoods self-sufficient in energy and food emerge remarkably from local communities via a bottom-up DIY approach, including the projects such as De Ceuvel in Amsterdam by Space&Matter or R-Urban in Paris by Atelier Architecture Autogérée [27], and international architectural firms and developers such as the Danish EFFEKT with ReGen Villages [28].

1.2. Research Method

This article analyses which aspects of cybernetics were not regarded in the autonomous houses, particularly focussing on the second-order cybernetics and the theoretical framework of Gordon Pask. This article uses second-order cybernetics as a lens to investigate autonomous houses, which constitutes an innovative approach to analyse the houses. The methods employed in this research include case studies and a literature review. The case studies consider the design of three different autonomous houses; the first and major case is the Alexander Pike Autonomous House, including its extended research program within the Cambridge group. The Autonomous House was one of the first, most influential, and renowned prototypes of fully autonomous houses in the 1970s [15]. James Thring and Gerry Smith, also from the Cambridge group, and the French Architect Damir Perinic designed the other two houses. This article describes, through the literature review, the limits, potentials, and missed opportunities of the autonomous houses in relation to cybernetics. It demonstrates that some limitations of the houses’ design, such as the main focus on costs and technologies, and the scarce attention on the social space, could have been reduced if aspects of cybernetics were more incorporated. The first part describes the second-order cybernetics, focusing on the main aspects of the theoretical framework of Gordon Pask. The second part analyses the Cambridge group’s autonomous houses, mainly through 1970s architectural magazine reviews, highlighting the few cybernetic aspects incorporated. The third part references sources such as the cyberneticians and biologists Francisco Varela and Humberto Maturana [29] and the cybernetic approach of the Whole Earth Catalog [30].
The literature on autonomous houses and cybernetics that this article reviews was mainly produced in the 1960s and the 1970s. Recently the topics regained some attention. Therefore, most of the available sources regarding the topics are either from the 1960s/70s or from the last two decades (Table 1). The literature reviewed from the end of the 1960s and the 1970s to analyse the autonomous houses is primarily composed of European architectural periodicals and a few other writings. The houses were also investigated through the writings of a few of the contemporary researchers who investigated the autonomous houses, such as Fanny Lopez, Lee Stickells, Lydia Kallipoliti, and Jeremy Till; among them, only Till and Kallipoliti mentioned a link between cybernetics and autonomous houses. The literature chosen to review cybernetics in relation to architecture also refers primarily to writings from the 1960s–1970s in European architectural magazines, with a specific focus on the theoretical framework of Pask, an article by Frazer from the 1960s, the autobiography of Buckminster Fuller, cyberneticians and biologists Francisco Varela and Humberto Maturana, and the cybernetic approach of the Whole Earth Catalog. Only a few contemporary authors wrote about cybernetics concerning the Cambridge autonomous houses, such as Kallipoliti and Till, or concerning architecture in general, such as Frazer, Herdt, and Kousulas and Perera (Table 1).

2. Cybernetics in Architecture: Gordon Pask and a New Theoretical Framework

2.1. The First- and the Second-Order of Cybernetics in Relation to Architecture

In 1948 mathematician and philosopher Norbert Wiener introduced the term cybernetics, defined as the scientific study of control and communication in the animal and the machine [31]. From a cybernetic perspective, living organisms and machines were equated because both entities could be considered as self-regulating machines able to reduce entropy through negative feedback of information. In first-order cybernetics, occurring from 1945 until 1960, systems were characterised by self-regulation, a homeostatic property that guarantees control and stability through feedback loops. The systems were constantly pursuing a goal of equilibrium by eliminating possible unexpected events [32,33]. Second-order cybernetics proposed the first conceptualisation of social and environmental adaptive systems exploring the potentials of positive feedback and the capacity for self-organisation of systems [34]. American architect, engineer systems theorist, researcher, and futurist Buckminster Fuller was a contributor to cybernetics applied to engineering and architecture [35]. Since the 1920s, Fuller has called for a new sort of designer, the “Comprehensive Designer” [36], an “emerging synthesis of artist, inventor, mechanic, objective economist and evolutionary strategist tackling the world’s social and ecological imbalances as a technical problem of the grandest sort [37] (p. 11)”. Historian Fred Turner argues that Buckminster Fuller’s notion of “Comprehensive Designer” inspired the counter-cultural entrepreneur and journalist Stewart Brand, who contributed to cybernetics with his renowned Whole Earth Catalog at the end of the 1960s [30,37,38,39].
The Fun Palace, designed in the 1960s by Cedric Price and Gordon Pask, is the best-known example of second-order cybernetics applied to architecture. The palace was a megastructure with educational and recreational functions, composed of a modular structure within in which the spaces were defined by mobile and flexible elements. In the palace, Gordon Pask created a cybernetic feedback system allowing the users to change the configuration of the spaces, composed of movable walls and prefabricated elements, enabling a wide range of activities [33,40,41].

2.2. Cybernetics in Architecture: Gordon Pask and a New Theoretical Framework

In Architectural Design Magazine in 1969, Gordon Pask wrote an article entitled “The Architectural Relevance of Cybernetics” that soon acquired popularity in the architecture world because Gordon Pask, even if he was not an architect, decided to write about the potentials of architecture and cybernetics [3]. In his article, analysed by multiple authors in recent years, Pask claims that cybernetics can be interpreted in architectural terms, and in some cases even identified with real architectural systems, to form the cybernetic theory of architecture [4]. The article analyses functionalism, computer-aided design, mutualism, flexibility, users’ feedback, and reactive and adaptive systems; it embraces architectural holism, evolutionary ideas, symbolic environments, and the architectural production machinery. Pask argues that in architecture, there is a demand for system-oriented thinking and integration of disciplines such as anthropology, psychology, sociology, ecology, and economics [4].
Concerning the concept of mutualism in architecture, Pask highlights the importance of considering the users’ feedback in architectural design. That is to say, architectural design needs to provide flexibility, and architecture must “mutate” over time and in the long term. He adds that “Systems, notably cities, grow and develop and, in general, evolve (…) An immediate practical consequence of the evolutionary point of view is that architectural designs should have rules for evolution built into them if their growth is to be healthy rather than cancerous. In other words, a responsible architect must be concerned with evolutionary properties; he cannot merely stand back and observe evolution as something that happens to his structures [3] (p. 495)”. Under the guidance of the cybernetic theory in architecture, Pask forecasts rapid advancements in different areas. For example, in the domain of informatics, he estimated the development of useful tools based on computer-assisted design procedures. Pask notes that another advancement regarded an integration of domains, such as concepts of architecture that should be unified with concepts in different disciplines including anthropology, psychology, sociology, ecology, and economics. He returns to the reactive environment and the behaviour of the users, saying that “If there is a human being in the environment, computer, material and all, engages him in dialogue and, within quite wide limits, is able to learn about and adapt to his behaviour pattern. There is thus one sense in which the reactive environment is a controller and another in which it is controlled by its inhabitants [3] (p. 496)”.
The article closes with the subchapter named “A simple cybernetic design paradigm” [3] (p. 496), which elaborates on the reactive and adaptive environment. Pask lists the different stages of architectural design in the context of a reactive cybernetic environment. In the first stage, the architect has to provide a set of constraints allowing for specific modes of evolution. In the following stages, the architect determines the materials comprising the environment and the properties relevant in the dialogue between users and the environment. Pask adds that the architectural design needs to specify what the environment can learn and how it will adapt. Therefore, in the last stage, Pask recommends a choice of a plan for adaptation and development consisting of some evolutionary principles.

2.3. John Frazer as a Link between Gordon Pask and Alexander Pike

John Frazer worked with Alexander Pike on the Autonomous House Project at Cambridge and Gordon Pask on architectural and design education at the Architectural Association School of Architecture in London (AA). Frazer produced several publications analysing the contribution of Gordon Pask in architectural cybernetics. In the first part of a paper named “The Cybernetics of Architecture: A Tribute to the Contribution of Gordon Pask” [42], he analyses some aspects of “The Architectural Relevance of Cybernetics” by Pask. Frazer notes that in the mid-1960s, the mainstream architectural practice was still largely concerned with modernism. However, the enlightened mainstream architectural press, such as Architectural Design under the editorship of Monica Pidgeon, regarded concepts of indeterminacy and interactivity. In the 1960s, avant-garde architectural thinking was concerned with flexibility, impermanence, prefabrication, computers, robotics, and a global approach to energy, resources, and culture. In this interdisciplinary context, system theory and thinking as problem-solving in complex systems in architecture came to embrace cybernetics with Gordon Pask as a contributor [42]. Frazer points out that Gordon Pask identified a significant vacuum in architectural theory and claimed cybernetics as a discipline that could fill the gap to form the theory of architectural cybernetics [42]. Frazer defines the article of Gordon Pask as extraordinary in its identification of a vacuum in contemporary architectural theory [42].
In his publications about cybernetics, Frazer does not mention the Autonomous House. However, it is not a coincidence that Frazer quit the Autonomous House Project when, in 1975, Pike changed the name to the Autarkic House Project. Using the term Autarkic, Pike decided to focus even more on technical and economic self-sufficiency for the average household instead of focusing on the small section of society favouring system change. The self-sufficient house meant technical self-sufficiency, rather than self-administration [6]. Frazer believed that this change of name and direction was a lack of political courage, and, as a consequence, he left the project [6]. Frazer defines Pask’s contribution to cybernetics as “an increasingly environmentally responsive architectural theory that may lead to a more humane and ecologically conscious environment [42] (p. 641)”. Frazer did not directly mention that the Autonomous House Project should have embraced more aspects of cybernetics. Nevertheless, his publications, his working relationships with Pask, and his project resignation suggest that the Autonomous House should have embraced more comprehensively some cybernetic-related aspects such as reactivity, adaptability, evolution, and integration of social anthropological domains rather than mainly focusing on technologies and costs.

3. Three Examples of Autonomous Houses in the 1970s

At the beginning of the 1970s, Alexander Pike wanted to continue the work concerning energy autonomy that was undertaken more than twenty years earlier by Richard Buckminster Fuller with the Dymaxion House (1928), the Autonomous Living Package (1948), and the Mechanical Wing (1938) [6]. Therefore, in 1971 Pike started the Autonomous House Project (AHP) immediately after creating a technical research division within the architecture department at the University of Cambridge, UK. Throughout the 1970s, Alexander Pike and his research group designed the Cambridge Autonomous House. The building inspired similar houses in Europe and globally that were fully or partially self-reliant in terms of energy and food. Like many others designed throughout the 1970s, this autonomous house mainly focused on technical and economic aspects [6,43]. The houses limitedly concerned aspects of Pask’s cybernetic theory, such as adaptive and interactive systems, computer-assisted design, and integration with social, ecologic, and anthropologic domains.
Some years earlier, Fuller applied several aspects of cybernetics, such as interactive and responsive design, computer-assisted design, and self-regulating climatic and information systems, in his works, including the 1967 Expo’s Canada Pavilion [44]. He pointed to cybernetics and systems theory as crucial tools to solve the world’s problems [5]. However, Fuller, defined by Turner as a “technocratic polymath” [39], was inspired by the technocracy intellectual and political movement that, from the Progressive Era through to its peak in the early 1930s, sought to place engineers and other technical experts in charge of production and consumption [44]. Not only did Alexander Pike and the Cambridge Research Group not develop further the cybernetic aspects applied by Fuller, but they engaged with these even less. Alexander Pike and the Cambridge Research Group focused mainly on technical aspects without embracing extensively the other cybernetic aspects, such as adaptive and interactive systems, computer-assisted design, and integration with social, ecologic, and anthropologic domains. As French researcher Fanny Lopez declared, “for Pike, as for Fuller, utopia was technological before it was social [6] (p. 164)”.
This section illustrates the development of the Cambridge Autonomous House designed by Alexander Pike, one of the most renowned autonomous houses of the 1970s. The Cambridge Research Group and the building referenced many other autonomous and semi-autonomous houses in the same decade. Furthermore, this section will analyse the autonomous houses, focussing on aspects derived from second-order cybernetics and Pask’s framework, such as a multidomain approach and plans of adaptation and development. Moreover, the section describes another autonomous house designed by James Thring and Gerry Smith, also members of the Cambridge Research Group. Finally, the third autonomous house analysed was designed by the French architect Damir Perinic. The three houses mainly focused on technical aspects and referenced the construction of the structure of the Dymaxion House by Buckminster Fuller. Regarding cybernetics, the houses partially integrate architectural, technical, and economic domains. However, they do not extensively engage with disciplines such as social, anthropologic, and ecologic domains. Furthermore, the houses’ design processes do not explore the cybernetic paths towards mutualism and adaptive and interactive systems.

3.1. The Cambridge Autonomous House

The Cambridge Autonomous House is the main project and the most important and popular autonomous house designed by the Cambridge Research Group. The year after Pike founded the Cambridge group, John Frazer joined him as a group leader. In 1972 the architect-engineers James Thring and John Littler and the chemical biologist Gerald Smith joined the team. Randall Thomas, Ken Yeang, and later, Brenda and Robert Vale became doctoral researchers associated with the group.
The Cambridge group designed the Autonomous House and other types of autonomous houses to be completely detached from the grids of services. In 1972, the group drew a map around Cambridge, indicating zones disconnected from services, such as sewage, electricity, and water, as possible locations to build autonomous houses. The zones without services were mainly suburban or rural. The group wanted to install autonomous houses where the land was more affordable, avoiding further building density and price speculation in urban areas. The reason for full-autonomy as the main objective was because, in Pike’s opinion, network services imposed severe constraints on planning, tending to promote the growth of concentrations that could be avoided by the alternative strategies permitted by autonomous housing [45]. In 1972, the Cambridge Research Group assessed the feasibility of the autonomous systems integrated into a house [45]. The group concluded that a fully integrated servicing system included too many variables and that a full-scale experimental house as an investigation would be expensive and probably unsuccessful [45]. This conclusion is one of the reasons why a detailed physical model was realised. The study started with the explicit aim to devise a completely self-sufficient house, whereas several other projects at the time had similar objectives, but they aimed at partial autonomy.
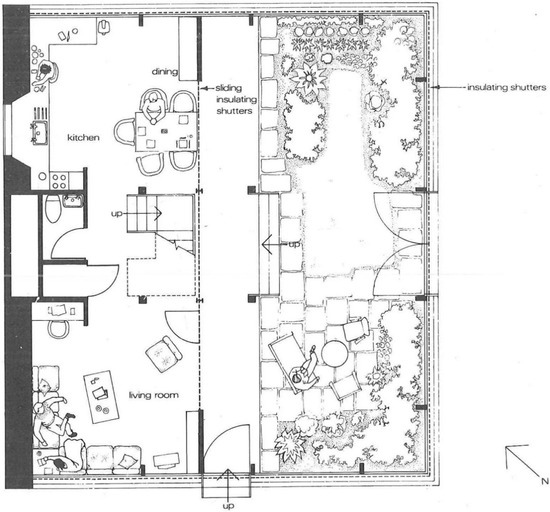
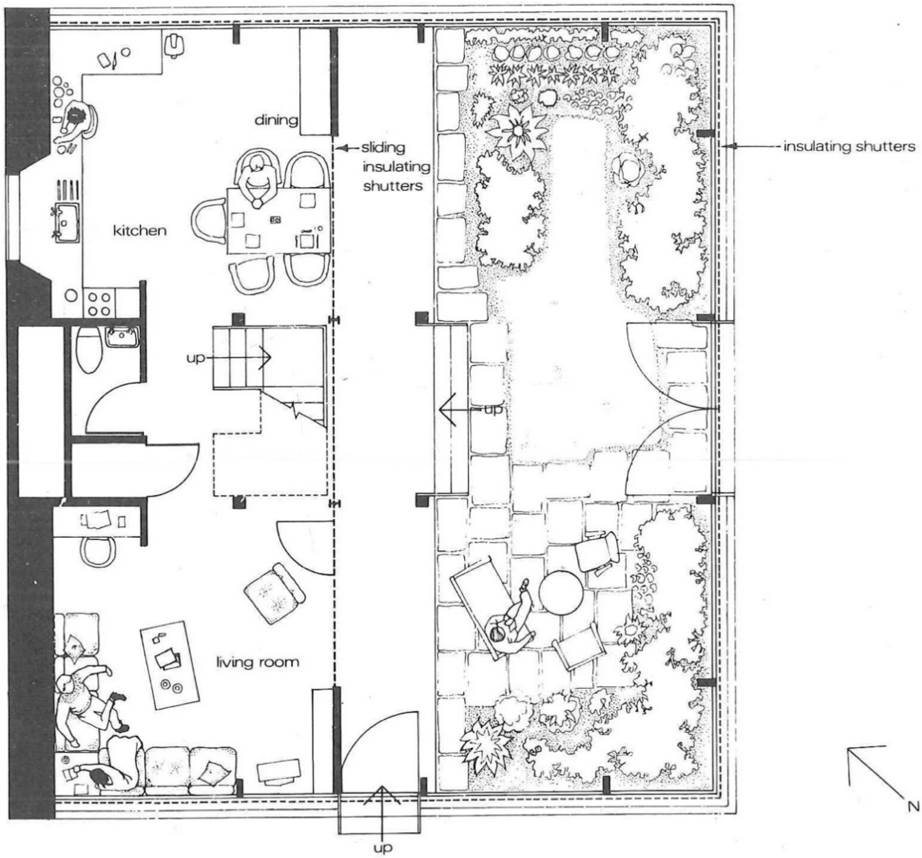
A full-scale mock-up of the house for a family of four was constructed (with a floor area of 65 m2), with an external pending glass facade facing the south (Figure 1, Figure 2, Figure 3, Figure 4 and Figure 5) [46]. The research group worked on the technical efficiency of the house in terms of self-sustainment of energy and food. In addition to that, as noted by James Thring, the group regarded the high levels of comfort of the modern house [6]. The interiors were spacious and had movable partitions for the different seasons. An internal wall created a minimum enclosure for the most severe weather. It consisted of insulating screens that could be opened towards the double-height greenhouse space of 46 m2. It was an in-between indoor/outdoor living space. This space was used to cultivate plants and vegetables, and it could be closed or opened depending on the season. It could also be used for a children’s play area, and it was a volume into which the family could extend when the weather was appropriate. It could offer facilities comparable to those provided by a conventional garden while being available for a more significant part of the year [46]. The high greenhouse space took half of the house volume and, if necessary, could be shut off to reduce heating load. It could provide approximately a quarter of the total yearly amount of food, imparting a sense of spaciousness [43]. The AHP was fully autonomous except for one-third of the food production, which had to be produced somewhere else. The wind provided electricity and space heating; the sun provided space and water heating; a methane digester transformed waste into gas for cooking; precipitation was collected, drinking water was retrieved from a well; and the greenhouse and a productive garden provided food [43]. Wind turbine, solar collectors, water reuse, thermal storage, and food production were all integrated within the building’s volume.
In designing the Pike Autonomous House and other autonomous houses, the Cambridge group did not take as a primary reference cybernetic examples such as the interactiveness and responsiveness to the users of Fuller’s Canada Pavilion, or the feedback system with movable spaces and functions of Price’s Fun Palace. Instead, the group was inspired by some technical aspects of the Fuller Dymaxion House and the autonomous living standard. In 1928 Fuller wrote this on his Dymaxion Houses: “These new homes are structured after the natural system of humans and trees with a central stem or backbone, from which all else is independently hung, utilising gravity instead of opposing it [47] (p. 18)”.
The Dymaxion House was built around a structural, technical, and spatial device, such as the central core, which contains stairs, ventilation ducts, light reflectors, air heating and cooling devices, and gas and water storage (Figure 5). The Cambridge Autonomous House was similarly built. Its core, a technical and spatial device, was the central part of the structure, supporting the wind turbine, staircase, and some services. In another Autonomous House designed by James Thring and Gerry Smith (Figure 6), the staircase was entirely contained by the core. The same applied to other autonomous houses of the time, such as the one designed by the British architect John Shore (Figure 7), who studied at the Architectural Association in London, and the house by the French architect Damir Perinic (Figure 8 and Figure 9).

3.2. James Thring and Gerry Smith Autonomous House

James Thring and Gerry Smith proposed a solution similar to Alexander Pike’s Autonomous House. It is a smaller house with occupancy for three people (Figure 6). One of the main innovations is the movable solar collector working also as insulation panels during the night. The shutters are lowered during the day to admit light to the first floor and raised during the night as insulating shutters. The space for installations is below instead of beside the living space, which allows a useful double function of the solar collectors. That space can also be used for garaging, service elements, and livestock. Most of the services providing energy, food, and water are contained in the central core, integrated into the volume of the building. This house is also 100% autonomous, except for food production. In this case, wind energy provides electricity and space heating, whereas solar energy provides hot water and space heating. A methane digester produces gas from waste for cooking. Rainwater is reused, and livestock and the garden produce a significant part of the food [48]. The living space is entirely on the first floor. Service spaces and technological installations take up the basement, ground floor, roof, and under-roof spaces. The central structural resilient core supports the vibrating wind turbine and hosts the stairs, shower, toilets, and several MEP (i.e., mechanical, electrical, piping) installations, such as the methane digester, heat exchanger, grey water tank, wind tower, and electric batteries. The wind tower integrated into the building structure becomes a design opportunity rather than a constraint. This architectural element, functioning as both a technical and a spatial device, developed further from the wind turbine of Alexander Pike’s house. The latter was placed on top of the roof, supported by four columns and reinforced by four cables tied to the roof’s corners.
Natural light and the view towards the outside from the living room are obtained through the movable solar collector, and the greenhouse is facing the living area. During the day, the solar collector shutter is moved down to the ground floor, preventing the solar light from reaching the space reserved for the garage or livestock. When natural light is minor during the night and the outside is less visible from the inside, the shutter closes off the living space to preserve the heat gained during the day. This procedure happens, especially in winter, when solar rays reach the interiors deeply. In summer, the shape of the cantilevered roof shades the living area, avoiding overheating. Apart from the animals’ dark and cold living conditions, natural light and view are regarded as much as the efficiency of the technology.
In this house, as in the previous one, the architectural design partially engages only with the first stage of a reactive cybernetic environment as described by Pask in “The Architectural Relevance of Cybernetics”. The sliding insulating shutter of the Pike’s house living room is mainly to protect the users from the sunlight, and the sliding shutter of the greenhouse can be closed during the winter against the cold. From a perspective related to cybernetics, the architect could be considered as providing a set of constraints allowing for certain modes of evolution, partly following the first stage of the Pask reactive environment. However, the architect limitedly engaged the first stage and did not implement at all the other two stages, such as the specification of what the environment can learn and how it will adapt, and the definition of a plan for adaptation and development consisting of some evolutionary principles.

3.3. Damir Perinic Autonomous House

In 1977 French architect Damir Perinic, taking the Cambridge group’s autonomous houses as a reference, designed an autonomous house published in Domus [49]. It was for a single household, located in the forest of Rambouillet near Paris. The house produces about 90% of the energy needed for heating and meets 100% of water demand. In terms of performance and technical installations, the wind is the most critical energy source. The water is heated via the wind turbine and solar energy and the total living area of 148 m2 is more significant than the English ones. The installations integrated into the architectural form of the building are a wind turbine, solar collectors, a greenhouse producing food, and a water cycle system [49]. The greenhouse breaks the circular shape of the house, allowing the bedrooms to face the south and receive solar light through the greenhouse. The living room with a massive fireplace/oven is on the northern side. The room does not receive a large amount of direct solar light, which would bring natural warmth in winter. In effect, between the living room and the southern greenhouse, the location of the central core with the technical installations obstructs the access of southern solar light. In addition, the core structurally supports both the house and the wind tower. Moreover, it contains stairs, water storage, pipes, and pumps. The core and the greenhouse both function as technical and spatial devices.
Additionally, in this case, the primary attention to technicalities is evident, whereas the living room, called the “sejour” in French where “jour” means day, barely receives daylight. In regard to the health and behaviour of the inhabitants, their social condition is not a primary issue within the design investigation. The article does not mention cybernetic aspects such as adaptive and interactive systems, computer-assisted design, and integration with social, ecologic, and anthropologic domains.

3.4. The 1970s Autonomous Houses Mainly Focusing on Technical Aspects and Only Limitedly Engaging with Cybernetics

In the 1970s, several innovative European autonomous houses were mainly published by the enlightened architectural press, such as Architectural Design, L’Architecture d’Aujourd’hui, Techniques et Architecture, Casabella, Domus, and Arquitectura; and by the counter-culture press, including Undercurrents and Street Farmer. The authors were architecture critics and the architects of the houses. The descriptions mainly focussed on technical devices, energy, and food production performances. The authors often discussed neither cybernetic aspects such as adaptive and interactive systems, computer-assisted design, and integration with social, ecologic, and anthropologic domains, nor architectural aspects such as social and spatial qualities, typology, and aesthetics. To demonstrate that energy and food autonomy was technically achievable was the primary concern. The only cybernetic aspects which were covered, even if not explicitly declared by the architects, were: the use of computer-assisted design in the research of Pike’s and Thring’s autonomous houses, as explained in the following paragraphs of this article; the integration of economic and ecologic domains in all the houses; and the engagement of the first stage of adaptive and interactive systems, especially in Pike’s house and partially in Thring’s.
In Pike’s and Thring’s houses, the architectural design partially engages with the first stage of a reactive cybernetic environment described by Pask in “The Architectural Relevance of Cybernetics”. Pask notes that in the first stage of a reactive cybernetic environment, the architect has to provide a set of constraints allowing for certain modes of evolution. The autonomous houses did not comprehensively engage with all the stages of a reactive cybernetic environment, as Fuller’s Canada Pavilion and Price’s Fun Palace did. Concerning the first stage, as illustrated with detailed pictures of the house mock-up in his article in Architectural Design, Pike designed two different layers of manoeuvrable shutters (Figure 4). The first is installed on the greenhouse external glass, and the second is located on two levels in front of the living room on the ground floor and the bedroom on the first floor, extending the space towards the greenhouse. The external shutter function protects the greenhouse from overheating and can be closed during the winter against the cold. Nevertheless, the second layer of shutters in front of the living spaces on the two floors offers users a choice regarding dialogue with the interior and exterior environment. The different combinations produced by the three shutters allow for certain modes of evolution in relation to users’ different behaviours in the use of the house’s spaces. Similarly, Thring designed a movable solar collector which can be moved up from the ground to the first floor. The collector closes a space for livestock or storage; when it is moved upstairs, it screens the semi-circular greenhouse space. These manoeuvrable solar collectors are not extensively described and documented in the sources analysed. To some extent, they could still be considered a set of constraints provided by the architect allowing certain modes of evolution in a potential reactive environment.
Pask explains that in the following stages of the reactive cybernetic environment, the architect determines the materials comprising the environment and the properties relevant in the dialogue between users and the environment. Pask adds that the architectural design needs to specify what the environment can learn and how it will adapt. Finally, Pask recommends choosing a plan for adaptation and development in the last stage consisting of some evolutionary principles. The autonomous houses’ architects do not fully determine the properties relevant in the dialogue between users and the environment. Furthermore, they do not specify what the environment can learn and how it will adapt, and they do not recommend a choice of a plan for adaptation and development consisting of some evolutionary principles as the last stage of the reactive cybernetic environment defines.

4. Limits, Potentials and Missed Opportunities of the Autonomous Houses in Relation to Cybernetics

The Cambridge Autonomous House and other autonomous houses of the 1970s did not regard aspects of cybernetics such as mutualism, flexibility, users’ feedback, computer-assisted design, adaptive and interactive systems, and integration of different domains including anthropology, psychology, sociology, ecology, and economics extensively. The primary focus on technical and economic aspects represents the principal limit of the Cambridge Autonomous House and other autonomous houses of the period.
This section illustrates that autonomous houses could have developed further potential links with cybernetics, including a multidomain adaptive-interactive system such as the autonomous service system program with movable walls and computer-assisted design. Furthermore, this section describes the missed opportunity to reinforce the autonomous house’s theoretic definition and research program while relating to the autopoietic cybernetic discourse as described by Lydia Kallipoliti from Princeton University when referencing Chilean biologists Francisco Varela and Humberto Maturana. Finally, it analyses how several autonomous houses missed the opportunity of implementing a bottom-up approach concerning DIY building practices and multidisciplinary cooperation, referencing the cybernetic- and ecological-thinking-based Whole Earth Catalog by Stewart Brand.

4.1. Computer-Assisted Design, Movable Walls, and Autonomous Service System Program as Potential Cybernetic Multidomain Adaptive-Interactive Systems Not Fully Implemented

The autonomous houses from the Cambridge group embraced only a few aspects of cybernetics, such as computer-aided design and partial integration of economic and ecologic domains, following Pask’s argument regarding the demand in architecture for system-oriented thinking and integration of disciplines. However, the group used basic computer modelling only to predict the efficiency of the technologies and their costs over time [45,50]. Concerning the theoretical model of Gordon Pask, researchers did not elaborate on a specific plan to study the users’ feedback and their behaviour in the house. The strategy of building autonomous houses disconnected from the grid in suburban areas without services derived from considerations concerning the cost of the construction, the land, and the infrastructure of the grid of supplies. Not much was researched regarding the social condition and the health of the people living in autonomous houses disconnected from the service grid. The group did not significantly research people’s behaviour who had to invest time daily in operating the technical systems of the house to produce energy and food. In the article entitled “The Autonomous House”, published in Architectural Design in January 1976, Peter Harper claims that the “alienation cost”, as “the total sum of human misery involved in creating and running an autonomous unit [43] (p. 39)”, should be considered. Harper explains that “the running alienation costs fall on to the occupants themselves in the form of vigilance, effort, social tensions, discomfort [43] (p. 39)”. He concludes that it would be difficult to assess the human condition in autonomous houses without extensive research, which was never really executed.
On the one hand, the movable interior partitions of the Cambridge Autonomous House can be considered as part of an adaptive system responding to the users. On the other hand, the partitions were supposed to close during summer to avoid overheating.
The movable walls were foldable and fixed at the edge, allowing only two positions, open or close. The Cambridge group did not study any long-term strategy concerning adaption and interaction, flexibility, and mutuality. Additionally, it lacked any computer assistance in terms of manoeuvring devices and recording the feedback from the users’ actions.
One of the few mentioned long-term multidomain approaches of the Cambridge group was illustrated in a diagram published by the group in Architectural Design in June 1972 (Figure 10 and Figure 11). The diagram with a caption displays the research program for an autonomous servicing system. The research establishes target costs for autonomous systems (Figure 10b); in the first phases, the program tests the feasibility of the systems for building on unserved, underdeveloped, and marginal areas of land (Figure 10e,f). The program also states that multidisciplinary investigations about the assessment of physiological, sociological, and political implications and effects of autonomous systems requires studies in biology, chemistry, engineering, geography, psychology, physics, physiology, and sociology (Figure 10g,h,k) [45]. From the diagram’s caption, it seems that Pike considered a comprehensive intradomain approach in the design and construction of the final houses. However, when the Cambridge group finally planned the third phase of the project (Figure 10; phase C) starting after 1978, with a family living for two years in the first autonomous house built, the focus was mainly on the development of a marketable version of the system in cooperation with the industry. The first goal of the phase was to advertise the house, familiarising the broad public with the “Autonomous House” concept. In the same phase, the team would focus on evaluating the marketing price of the model to establish the production costs and define a sales strategy [6]. Yet the project never reached the third phase since it did not receive the funding due to the different perspectives of Pike and Cambridge University. At the end of the 1970s, energy autonomy detached from services inside a city or a territory already connected to the grid remained only a hypothetical option. It was too complex to assess the economic effects of such domestic microeconomies, their status (private, semi-collective, or public) and their methods of governance. In his Architectural Design article, Peter Harper concludes that these gaps constitute the main weakness of these studies, too often focused on the technical aspects [6,43].
The Cambridge group engaged with system-oriented thinking and integration of disciplines only partially, and mainly in the first phase, whereas in the third phase they mainly focused on economic aspects. If the group would have been able to maintain the system-oriented multidomain approach as defined by Pask, their project could have been centred on multiple goals and perhaps more able to respond to the users’ needs.

4.2. Definition of the Autonomous House as a Cybernetics Autopoietic System as a First Missed Opportunity

Lydia Kallipoliti from Princeton University reminds us that during the 1960s and 1970s, there was a divergence in the definition of “autonomy” in architecture [51]. Three different discourses addressed the term “autonomy”, referring not only to autonomous houses, but also to a discipline, in the case of the Institute for Architecture and Urban Studies founded by Peter Eisenmann, and to a system, in the case of the cyberneticians and biologists Francisco Varela and Humberto Maturana [51].
Kallipoliti explains that the first meaning concerned the houses “autonomous” from the grid of supplies, with the term “Popularised as an ecological and libertarian way of living and acting [51] (p. 125)”. Notions of “autonomy” were “Interrogated as ideational vehicles to reform the boundaries of disciplinary fields, including architectural theory and criticism [51] (p. 125)”. Autonomy was equated with organic self-sufficiency and “Heralded the emancipation of the individual from authoritative state mechanisms [51] (p. 126)”. The second use of the term autonomy concerned American architect Peter Eisenman, founder in the late 1960s of the Institute for Architecture and Urban Studies and editor of its journal, Oppositions. Kallipoliti notes that for the circle around the Oppositions group, autonomy was “a means for distinguishing the unique characteristics of architectural production and deciphering a symbolic logic exclusive to architectural thought; a logic so implicit that cannot migrate to the application of other disciplines [51] (p. 125)”. For the Institute for Architecture and Urban Studies, autonomy “Heralded the emancipation of the discipline itself, by excluding the human from architectural thought and production [51] (p. 126)”. The third meaning was linked to the concurrent fundamental reorientation in the field of cybernetics, “predominantly spearheaded by the autopoietic theory [51] (p. 125)” of Chilean biologists Francisco Varela and Humberto Maturana, from their first publication for a second cybernetics order in 1972 [29]. An “autopoietic” machine was defined as an autonomous, self-maintaining, and operationally closed unity with no apparent inputs and outputs. As Varela and Maturana wrote, “It follows that an autopoietic machine continuously generates and specifies its own organisation through its operation as a system of production of its own components ([51] (p. 126)” [29].
In 1975 Pike decided to change the house’s name from “Autonomous” to “Autarkic”. His goal was not to differentiate from Eisenmann or the cyberneticians, but to proclaim a technical statement that his house was 100% self-sufficient in terms of energy and food. He mainly wanted to distinguish his house from other autonomous houses, which were only partially self-reliant in terms of energy and food. The dispute due to the name change was one of the reasons why Frazer decided to abandon the Cambridge project. Even if Frazer never confirmed it, since he worked for a long time with Pask and published extensively about cybernetics, he might have considered the link with cybernetic theory an opportunity not entirely taken by the Autonomous House Project. The decision of changing the name can be defined as a missed chance to embrace the cybernetic theory. For the cyberneticians Varela and Maturana, autonomy referred to a capsule system without the need of receiving inputs or outputs. The Autonomous House of Pike, completely self-reliant for energy and food, was indeed a system almost without inputs and outputs. Instead of changing to “Autarkic”, Pike could have maintained the name “Autonomous”, integrating the research program with more notions of cybernetics. Such a resolution might have contributed to firmly building the foundations of a more convincing multidomain architectural theory related to cybernetics to support his autonomous house concept. In losing the term Autonomous, the house missed the opportunity to be identified as a relevant example of a cybernetic autopoietic system and to lay the pavement to a common discourse with cyberneticians. Ultimately, the change of the name to Autarkic, which was one of the causes of Frazer’s leave, happened in a period which was the beginning of the decline of the Cambridge Research Group and the autonomous house [6].

4.3. DIY Building Practices and Multidisciplinary Cooperation Referencing the Whole Earth Catalog as a Second Missed Opportunity

Architect and Professor Jeremy Till, in “Scarcity Constructs” [50], states that the autonomous house mainly followed the path of technical instrumentalism, similar to many other contemporary examples in recent years. Moreover, he notes that the Whole Earth Catalog regards cybernetics more comprehensively. He concludes that it would have been interesting if, after the 1970s, the mainstream sustainable architecture would have “More clearly developed the ideas and tools set out in Stewart Brand’s “Whole Earth Catalog”, with its bottom-up and indeterminate approach based on cybernetics and ecological thinking [50] (p. 140)”. Till refers to University of California Professor Simon Sadler in “An Architecture of the Whole” [37] to find a possible response to his assumption. While describing the Whole Earth Catalog approach, Sadler points to some aspects different from the Cambridge Research Group one. The Whole Earth Catalog did not focus mainly on technical and economic features; quite on the contrary, it had a comprehensive approach. The Catalog was informed by system theory, with inventor Buckminster Fuller, mathematician Norbert Wiener, literary philosopher Marshall McLuhan, and anthropologist Gregory Bateson as contributors. The Catalog was an unparalleled resource on ecology, technology, energy, communications, and social experimentation aimed at readers living inside and outside the city, and in the suburbs [37]. The Catalog contained recommendations for products ranging from books to outdoor equipment, from seeds to electronics, and won America’s 1972 National Book Award. Sadler explains that “the cultural footprint of the Catalog spawned an intellectual, social, journalistic, and technological network which survives today [37] (p. 108)”. The Catalog “Advertised itself as a point of “access to tools”, as an assemblage of ideas and techniques, one mode of praxis arranged alongside another, coexisting and competing [37] (p. 111)”. The Catalog also advocated a course towards DIY building practices and multidisciplinary cooperation [37]. Compared to the Cambridge autonomous houses, the Catalog regarded some aspects of cybernetics defined by Pask more comprehensively. By integrating different domains combined with the DIY practice, the Catalog’s bottom-up approach could facilitate a dialogue between users and the environment by defining a plan for adaptation and development.
Differently from the Catalog, Pike’s and other autonomous house approaches were not only mainly related to technical recommendations but also linked to the industrial production of the building components. French researcher Fanny Lopez confirmed that the focus of the Cambridge Research Group was mainly on technologies and pointed out that this approach inevitably increased the costs of the houses [6]. Lee Stickells from the University of Sydney, in “Exiting the Grid: Autonomous House Design in the 1970s [13]” reminds us that also the British counter-cultural group Street Farm, led by Graham Caine who built through DIY practice a partial autonomous house in London, was critical to the Cambridge group [52]. They argued that the Cambridge prototypes were industrially manufactured and not regarding of the DIY approach. They defined the houses as not “autonomous” to build [13].

5. Discussion and Conclusions

This paper has investigated autonomous houses through the lens of cybernetics focusing on aspects such as multidisciplinary approach, design strategies of adaptation and development, and the definition of autonomy regarding cybernetics. The Cambridge Autonomous House was an ambitious and experimental self-reliant house in terms of energy and food. It was designed to be located outside the city, where infrastructures of services were still absent. With such unique premises, a cybernetic strategy studying the behaviours of users would have been undoubtedly helpful. The users’ feedback could have been crucial to study their actions while working every day to produce their everyday groceries, provide fuel, manoeuvre the shutters to avoid overheating, and perform some maintenance of technical devices such as wind turbines, solar panels, water, and septic tanks. The health and social condition of people of different ages and family members could have been studied and tested before and during their living in prototypes. The results and their feedback could have been crucially informative regarding the house and its surroundings in areas disconnected from service infrastructures. Therefore, an analysis of the public functions and spaces in these areas should have been performed. Studying and testing the feedback of the users could have been helpful to plan a strategy regarding the flexibility, mutualism, and evolution in phases of the autonomous houses and neighbourhoods.
Most of the autonomous houses from the 1970s did not embrace a comprehensive cybernetic theory, opting instead to focus on technical and economic aspects excessively. This choice was probably one reason for their abandonment by mainstream architecture and critics during the 1980s. Ironically, when during the 1990s the mainstream architecture widely focused on sustainability, it still mainly enhanced technical and economic aspects. Till writes that so-called sustainable buildings, from the 1970s until today, are primarily “Treated as technical instruments that can be tuned to control carbon emissions in particular [50] (p. 140)”. He explains that since the Pike Autonomous House Project, “The only available response is one of control; buildings are reduced to their measurable aspects, technical objects isolated from wider systems [50] (p. 140)”. He explains by concluding that “It is an approach inscribed in contemporary measures of architectural sustainability such as LEED and BREEAM, which regulate (in every sense of the word) the discourse around sustainability, and at the same time hold out the false promise that technical fixes alone will be able to mitigate underlying scarcities [50] (p. 140)”. From this perspective, the autonomous houses in the 1970s, although opting to focus primarily on technical and economic aspects, did not face the predominant global issue of the scarcity of resources efficiently. Reckoning with the fact that the natural resources are finite could help with understanding that sustainable architectural solutions need to steer more towards sharing natural and human-made resources. In order to accomplish this, the features of cybernetics, such as a multidisciplinary social, anthropological, ecologic, and economical approach regarding users’ feedback and reactive and adaptable systems, should be engaged. The architects of the autonomous houses, by choosing to centre on technical and economic aspects, not only contributed to their decline but also represented a negative example that was taken as a reference during the following decades by mainstream sustainable architecture. The story of the autonomous house demonstrates that architecture is not only about industrial production, technical devices, and economic viability, but it needs to consider also the long-term socio-anthropological aspects concerning the indoor living environment and adaptation and development regarding urban or suburban neighbouring areas. Furthermore, the autonomous house and its missing link to cybernetics show once again that an inextricable part of architecture is the social and cultural cooperation applied to the built environment, which is always one of the primary constituents of architectural practice.
The autonomous houses were ambitious breakthrough design projects attempting to respond to a time when energy and resources globally exposed their scarcity. As highlighted in this article, the houses had several potentials and limitations. The study of framing the potentials and limitations of a similar example is also crucial today. As stated in the 2022 IPCC report [53], the 2020 to 2030 decade has a critical role in “accelerating the learning of know-how and skills, reducing the cost and removing feasibility constraints for achieving high-efficiency buildings at scale and set the sector on the pathway to realise its full potential [53] (p. 72)”. However, often solutions are primarily focused on economic perspectives. As researchers Förster and O’Neill from the University of Manchester [54] state, since the 2008 financial crisis, several new developments are globally dictated by an “emotional capitalism [55] (p. 119)”, which capitalises on the individual well-being rather than sufficiently tackling social and ecological questions. From a different angle, architect Werner Sobek, even as he promotes active—and not passive—solar energy, constantly reminds us how crucial architecture in climate protection should show respect at a planetary scale, i.e., a triple bottom line, using not only less energy and less material, but moreover building less [56]. Because of these mentioned reasons and examples, today it is paramount not only to explore innovative designs and ideas but also to find excellent methods to test and assess these inventions.
Understanding to what extent aspects concerning cybernetics were regarded in the autonomous houses’ architectural approaches can inform today’s architectural projects related to fields such as sustainability and the circular economy. This research has provided an innovative key to read past, contemporary, and future sustainable techniques and technologies integrated into the architecture. The analysis of sustainable architecture through a lens calibrated on a multidisciplinary approach, plans for adaptation and development, and more in general on cybernetics, can provide an insightful, unique, and breakthrough illustration, focusing on the primary reason why a sustainable technique should be originally conceived: saving, sharing, and unlocking the potentials of the common, natural, and human-made resources to preserve the planet and improve human life. Moreover, further unveiling of the sustainable historical architecture of the last decades would fill a gap that is becoming more and more unacceptable to sustain. In education the contemporary history of architecture is only limitedly focused on sustainable case studies, whereas most design studios and architectural practices are centred on sustainability and circularity. Ignoring what already was successfully or unsuccessfully attempted in the field in the past decades would lead us to continuously repeat similar inaccuracies and failures already made in the past.

Funding

This research received no external funding.

Institutional Review Board Statement

Not applicable.

Informed Consent Statement

Not applicable.

Data Availability Statement

Not applicable.

Conflicts of Interest

The authors declare no conflict of interest.

References

  1. Haque, U. The Architectural Relevance of Gordon Pask. Arch. Des. 2007, 77, 54–61. [Google Scholar] [CrossRef]
  2. Glanville, R. Second Order Cybernetics. In Systems Science and Cybernetics; Eolss Publishers: Oxford, UK, 2003; Volume 3, ISBN 978-1-84826-204-1. [Google Scholar]
  3. Pask, G. The Architectural Relevance of Cybernetics. Archit. Des. 1969, 39, 494–496. [Google Scholar]
  4. Frazer, J.H. The Architectural Relevance of Cybernetics. Syst. Res. 1993, 10, 43–48. [Google Scholar] [CrossRef]
  5. Chu, H.; Trujillo, R.G. New Views on R. Buckminster Fuller; Stanford University Press: Redwood City, CA, USA, 2009; ISBN 978-0-8047-5209-1. [Google Scholar]
  6. Lopez, F. Autonomous Housing Project 1971–1979: L’utopie Énergétique d’Alexander Pike. Éric Alonzo Sébastien Marot Dir Marnes Doc. Archit. N°2 Éditions Villette 2011, 133–167. Available online: https://www.academia.edu/10146244/Autonomous_Housing_Project_1971-1979_l_utopie_e_nerge_tique_d_Alexander_Pike (accessed on 25 January 2017).
  7. Ingersoll, R. The Ecology Question and Architecture. In The SAGE Handbook of Architectural Theory; SAGE Publications Ltd.: London, UK, 2012; pp. 573–589. [Google Scholar]
  8. Curtis, W.J.R. Modern Architecture Since 1900; Phaidon Press: New York, NY, USA, 1996; ISBN 978-0-7148-3356-9. [Google Scholar]
  9. Frampton, K. Modern Architecture: A Critical History; Thames & Hudson: London, UK, 2007; ISBN 978-0-500-20395-8. [Google Scholar]
  10. Colquhoun, A. Modern Architecture; Oxford University Press: Oxford, UK, 2002; ISBN 978-0-19-284226-8. [Google Scholar]
  11. Tafuri, M.; Dal Co, F. Modern Architecture; Electa/Rizzoli: New York, NY, USA, 1987; ISBN 978-0-8478-0761-1. [Google Scholar]
  12. Bonnemaison, S.; Macy, C. Architecture and Nature: Creating the American Landscape; Routledge: London, UK, 2003; ISBN 978-1-134-45538-6. [Google Scholar]
  13. Stickells, L. Exiting the Grid: Autonomous House Design in the 1970s. Proc. Soc. Archit. Hist. Aust. N. Z. 2015, 32. Available online: https://www.academia.edu/16106628/Exiting_the_Grid_Autonomous_House_Design_in_the_1970s (accessed on 17 January 2017).
  14. Banham, R. The Architecture of the Well-Tempered Environment; Architectural Press: New York, NY, USA, 1969; ISBN 978-0-226-03696-0. [Google Scholar]
  15. Lopez, F. Dreams of Disconnection: From the Autonomous House to Self-Sufficient Territories; Manchester University Press: Manchester, UK, 2021; ISBN 978-1-5261-4688-5. [Google Scholar]
  16. Borasi, G.; Zardini, M. Sorry, Out of Gas: Architecture’s Response to the 1973 Oil Crisis; Canadian Centre for Architecture: Montreal, QC, Canada, 2007; ISBN 978-88-7570-143-7. [Google Scholar]
  17. Anker, P. From Bauhaus to Ecohouse: A History of Ecological Design; Louisiana State University Press: Baton Rouge, LA, USA, 2010; ISBN 978-0-8071-3650-8. [Google Scholar]
  18. Peressut, L.B.; Forino, I.; Postiglione, G.; Scullica, F. Places & Themes of Interiors. Contemporary Research Worldwide: Contemporary Research Worldwide; FrancoAngeli: Milan, Italy, 2008; ISBN 978-88-464-9429-0. [Google Scholar]
  19. Porteous, C. The New Eco-Architecture: Alternatives from the Modern Movement; Taylor & Francis: Oxford, UK, 2013; ISBN 978-1-136-40849-6. [Google Scholar]
  20. Stickells, L. Journeys with the Autonomous House. Fabrications 2017, 27, 352–375. [Google Scholar] [CrossRef]
  21. Pigeon, M. Architectural Design (AD), Designing for Survival + Piano & Rogers, n. 7; The Standard Catalogue Company Ltd.: London, UK, 1972; Volume 42. [Google Scholar]
  22. Girardet, H. Garden Villages of Tomorrow. Undercurr. Mag. Radic. Sci. Altern. Technol. 1976, 16, 24–27. [Google Scholar]
  23. Carson, R. Silent Spring; Houghton Mifflin Harcourt: Boston, MA, USA, 1962; ISBN 978-0-618-24906-0. [Google Scholar]
  24. Herdt, T. From Cybernetics to an Architecture of Ecology: Cedric Price’s Inter-Action Centre. Footprint 2021, 15, 45–62. [Google Scholar] [CrossRef]
  25. Kallipoliti, L. History of Ecological Design. Oxf. Res. Encycl. Environ. Sci. 2018. Available online: https://www.academia.edu/36516131/History_of_Ecological_Design (accessed on 3 May 2021).
  26. Kousoulas, S.; Perera, D. All Is in Formation: Architecture, Cybernetics, Ecology. Footprint 2021, 15. [Google Scholar] [CrossRef]
  27. Calisto Friant, M.; Vermeulen, W.J.V.; Salomone, R. A Typology of Circular Economy Discourses: Navigating the Diverse Visions of a Contested Paradigm. Resour. Conserv. Recycl. 2020, 161, 104917. [Google Scholar] [CrossRef]
  28. Effekt ReGen Villages. Available online: https://www.effekt.dk/regenvillages (accessed on 30 April 2022).
  29. Maturana, H.R.; Varela, F.J. Autopoiesis and Cognition: The Realization of the Living; Editorial Universitaria S.A.: Santiago Chile, Chile, 1972. [Google Scholar]
  30. Brand, S. Whole Earth Catalog (Fall 1968); Portola Institute: Menlo Park, CA, USA, 1968. [Google Scholar]
  31. Wiener, N. Cybernetics Or Control and Communication in the Animal and the Machine; MIT Press: Cambridge, MA, USA, 1965; ISBN 978-0-262-73009-9. [Google Scholar]
  32. Yiannoudes, S. Architecture and Adaptation: From Cybernetics to Tangible Computing; Routledge: London, UK, 2016; ISBN 978-1-317-55100-3. [Google Scholar]
  33. Chirianni, C. The Cybernetic Relevance of Architecture.; Universidad de Alicante: Escuela Politécnica Superior, Spain, 2018. [Google Scholar]
  34. Von Foerster, H. Cybernetics of Cybernetics: Or the Control and the Communication of Communication.; Biological Computer Laboratory: Champaign, IL, USA, 1974. [Google Scholar]
  35. Marks, R.W.R. Buckminster Fuller | American Engineer, Architect, and Futurist. Available online: https://www.britannica.com/biography/R-Buckminster-Fuller (accessed on 26 May 2020).
  36. Fuller, R.B. Ideas and Integrities: A Spontaneous Autobiographical Disclosure; Collier Books: Springfield, Ohio, 1969. [Google Scholar]
  37. Sadler, S. An Architecture of the Whole. J. Archit. Educ. 2008, 61, 108–129. [Google Scholar] [CrossRef]
  38. Dubberly, H.; Pangaro, P. How Cybernetics Connects Computing, Counterculture, and Design. Dubberly Des. Off. 2015, 1–12. Available online: http://www.dubberly.com/articles/cybernetics-and-counterculture.html (accessed on 21 May 2021).
  39. Turner, F. From Counterculture to Cyberculture: Stewart Brand, the Whole Earth Network, and the Rise of Digital Utopianism; University of Chicago Press: Chicago, IL, USA, 2010; ISBN 978-0-226-81743-9. [Google Scholar]
  40. Mathews, S. From Agit-Prop to Free Space: The Architecture of Cedric Price; Black Dog Pub. Limited: London, USA, 2007; ISBN 978-1-904772-52-1. [Google Scholar]
  41. Mathews, S. The Fun Palace: Cedric Price’s Experiment in Architecture and Technology. Technoetic Arts J. Specul. Res. 2005, 3, 73–92. [Google Scholar] [CrossRef]
  42. Frazer, J. The Cybernetics of Architecture: A Tribute to the Contribution of Gordon Pask. Kybernetes Int. J. Syst. Cybern. 2001, 30, 641–665. [Google Scholar] [CrossRef][Green Version]
  43. Harper, P. The Autonomous Houses. Archit. Des. 1976, 43, 19–49. [Google Scholar]
  44. Massey, J. Buckminster Fuller’s Cybernetic Pastoral: The United States Pavilion at Expo 67. J. Archit. 2016, 21, 795–815. [Google Scholar] [CrossRef]
  45. Pike, A. Cambridge Studies. Archit. Des. 1972, 42, 441–445. [Google Scholar]
  46. Pike, A. The Autonomous House. Archit. Des. 1974, 44, 681–690. [Google Scholar]
  47. Antonelli, P. Safe: Design Takes on Risk; Museum of Modern Art: New York, NY, USA, 2005; ISBN 978-0-87070-580-9. [Google Scholar]
  48. Pigeon, M. Architectural Design (AD), Autonomous Houses, n. 1; The Standard Catalogue Company Ltd.: London, UK, 1976; Volume 46, pp. 50–51. [Google Scholar]
  49. Perinic, D. In Francia Energie Alternative per Una Casa (Alternatives Energies for a House in France). Domus Mag. 1978, 587, 3. [Google Scholar]
  50. Till, J. Scarcity Constructs. In Economy and Architecture; Routledge: London, UK, 2015; pp. 131–140. [Google Scholar]
  51. Kallipoliti, L. Mission Galactic Household: The Resurgence of Cosmological Imagination in the Architecture of the 1960s and 1970s; Princeton University: Princeton, NJ, USA, 2013. [Google Scholar]
  52. Caine, G.; Haggart, B. Ramifications and Propagations of Street Farm. Undercurr. Mag. Radic. Sci. Altern. Technol. 1973, 16, 39–46. [Google Scholar]
  53. Zhongming, Z.; Linong, L.; Xiaona, Y.; Wangqiang, Z.; Wei, L. AR6 Synthesis Report: Climate Change 2022–IPCC; Intergovernment Panel on Climate Change: Geneva, Switzerland, 2022. [Google Scholar]
  54. O’neill, J. Happiness and the Good Life. Environ. Values 2008, 17, 125–144. [Google Scholar] [CrossRef]
  55. Förster, K. Energy Architecture Transition. Oswald Mathias Ungers, IBUS and the Search for Good Architecture. In Negotiating Ungers: The Aesthetics of Sustainability; Common Books: Tokyo, Janpan, 2020. [Google Scholar]
  56. Sobek, W. Architecture Isn’t Here to Stay. Towards a Reversibility of Construction. In Ruby, Ilka & Andreas (Hg.): Re-Inventing Construction; Ruby Press: Berlin, Germany, 2010; ISBN 978-3-9813436-2-5. [Google Scholar]
Figure 1. Alexander Pike, physical model of the Autonomous House (Architectural Design, 1974).
Figure 1. Alexander Pike, physical model of the Autonomous House (Architectural Design, 1974).
Sustainability 14 06073 g001
Figure 2. Alexander Pike, section of the Autonomous House, central structural columns supporting the house, the wind turbine, and the stairs (Architectural Design, 1974).
Figure 2. Alexander Pike, section of the Autonomous House, central structural columns supporting the house, the wind turbine, and the stairs (Architectural Design, 1974).
Sustainability 14 06073 g002
Figure 3. Alexander Pike, ground floor of the Autonomous House (Architectural Design, 1974).
Figure 3. Alexander Pike, ground floor of the Autonomous House (Architectural Design, 1974).
Sustainability 14 06073 g003
Figure 4. Alexander Pike, the living area with insulating shutters open and closed (Architectural Design, 1974).
Figure 4. Alexander Pike, the living area with insulating shutters open and closed (Architectural Design, 1974).
Sustainability 14 06073 g004
Figure 5. Buckminster Fuller’s Dymaxion House, detail of the central core, 1928 (ArchDaily https://www.archdaily.com/401528/ad-classics-the-dymaxion-house-buckminster-fuller, (accessed on 13 March 2020)).
Figure 5. Buckminster Fuller’s Dymaxion House, detail of the central core, 1928 (ArchDaily https://www.archdaily.com/401528/ad-classics-the-dymaxion-house-buckminster-fuller, (accessed on 13 March 2020)).
Sustainability 14 06073 g005
Figure 6. James Thring and Gerry Smith’s Autonomous House, cross section with the structural core supporting the wind turbine, the services, and the stairs (Architectural Design, 1976).
Figure 6. James Thring and Gerry Smith’s Autonomous House, cross section with the structural core supporting the wind turbine, the services, and the stairs (Architectural Design, 1976).
Sustainability 14 06073 g006aSustainability 14 06073 g006b
Figure 7. John Shore, single person Autonomous House with central core containing stairs and services and supporting the wind turbine. The external structure is similar to Fuller’s domes (Architectural Design, 1972).
Figure 7. John Shore, single person Autonomous House with central core containing stairs and services and supporting the wind turbine. The external structure is similar to Fuller’s domes (Architectural Design, 1972).
Sustainability 14 06073 g007
Figure 8. Damir Perinic’s Autonomous House, section, the structural core supports the wind turbine and contains stairs and the installations (Domus, 1978).
Figure 8. Damir Perinic’s Autonomous House, section, the structural core supports the wind turbine and contains stairs and the installations (Domus, 1978).
Sustainability 14 06073 g008
Figure 9. Mock-up of the Damir Perinic Autonomous House with the rectangular greenhouse breaking the cylindrical volume of the house (left); diagram of the installations and the technologies (right): a—wind turbine; b—hydraulic motor converters on multipliers; c—alternator; d—accumulator; e—circuit breaker, regulator, protection; f—lighting; g—auxiliary heating; h—circulation pump heating; i—thermostatic valve; j—convector; k—adjustable solar collector; l—thermostat; m—box E.D.F.; n—hot water; o—sanitary ware; p—device; q—circulation pump + motorized valve; r—wastewater network, domestic hot water lost; s—stale air home, natural ventilation; t—hot air ventilation (Domus, 1978).
Figure 9. Mock-up of the Damir Perinic Autonomous House with the rectangular greenhouse breaking the cylindrical volume of the house (left); diagram of the installations and the technologies (right): a—wind turbine; b—hydraulic motor converters on multipliers; c—alternator; d—accumulator; e—circuit breaker, regulator, protection; f—lighting; g—auxiliary heating; h—circulation pump heating; i—thermostatic valve; j—convector; k—adjustable solar collector; l—thermostat; m—box E.D.F.; n—hot water; o—sanitary ware; p—device; q—circulation pump + motorized valve; r—wastewater network, domestic hot water lost; s—stale air home, natural ventilation; t—hot air ventilation (Domus, 1978).
Sustainability 14 06073 g009
Figure 10. Alexander Pike and James Thring, diagram about the Research Programme for an Autonomous Servicing System. James Thring’s work on the costs of network-distributed services, (b), forms an essential basis for establishing target costs for autonomous systems. Work on (e,f) tests the validity of these systems for building on unserviced, underdeveloped, and marginal areas of land, which might provide greater freedom of choice when making planning decisions. Investigations under (g,h,k) are multidisciplinary, requiring studies in biology, chemistry, engineering, geography, psychology, physics, physiology, and sociology. Development in sections (j,l,m) requires the cooperation of industry. The phases represent divisions between separate sections of the work for evaluation of findings and method of financial support. No time scale can be added at this stage (Architectural Design, 1972).
Figure 10. Alexander Pike and James Thring, diagram about the Research Programme for an Autonomous Servicing System. James Thring’s work on the costs of network-distributed services, (b), forms an essential basis for establishing target costs for autonomous systems. Work on (e,f) tests the validity of these systems for building on unserviced, underdeveloped, and marginal areas of land, which might provide greater freedom of choice when making planning decisions. Investigations under (g,h,k) are multidisciplinary, requiring studies in biology, chemistry, engineering, geography, psychology, physics, physiology, and sociology. Development in sections (j,l,m) requires the cooperation of industry. The phases represent divisions between separate sections of the work for evaluation of findings and method of financial support. No time scale can be added at this stage (Architectural Design, 1972).
Sustainability 14 06073 g010
Figure 11. Alexander Pike, basic diagram for a hypothetical service unit (Architectural Design, 1972).
Figure 11. Alexander Pike, basic diagram for a hypothetical service unit (Architectural Design, 1972).
Sustainability 14 06073 g011
Table 1. The literature on autonomous houses and cybernetics that this article reviews was mainly produced in the 1960s and the 1970s. Recently the topics regained some attention. Therefore, most of the available sources regarding the topics are either from the 1960s/70s or from the last decade. Only Kallipoliti and Till limitedly wrote about cybernetics concerning the Cambridge autonomous houses.
Table 1. The literature on autonomous houses and cybernetics that this article reviews was mainly produced in the 1960s and the 1970s. Recently the topics regained some attention. Therefore, most of the available sources regarding the topics are either from the 1960s/70s or from the last decade. Only Kallipoliti and Till limitedly wrote about cybernetics concerning the Cambridge autonomous houses.
1960–19801980–19901990–20002000–20102010–
Cambridge
Autonomous Houses
Garden Villages of Tomorrow, UC
(Girardet, 1976)
The Autonomous Houses, Architectural Design (AD)
(Harper, 1976)
Cambridge Studies, AD
(Pike, 1972)
The Autonomous House, AD
(Pike, 1974)
Alternatives Energies for a House in France, Domus (Perinic, 1978)
Ramifications and Propagations of
Street Farm, UC (Caine et al., 1972)
L’altra faccia dell’autogestione, Casabella (Ferrari, 1976)
Ecologia y Arquitectura, Arquitectura (Teresa Balseiro, 1975)
L’architecture autonome, L’Architecture d’aujourd’hui (AA)
(Pedregal, 1977)
Architecture and Nature
(Bonemaison et al., 2003)
Sorry, Out of Gas
(Borasi et al., 2007)
From Bauhaus to Ecohouse
(Aker, 2010)
Places & Themes of Interiors
(Peressut, 2008)
Modern Architecture: A Critical History (Frampton, 2007)
Autonomous Housing Project 1971-1979 (Lopez, 2011)
The Ecology Question and Architecture (Ingersoll, 2012)
Exiting the Grid
(Stickells, 2015)
Dreams of Disconnection
(Lopez, 2021)
The New Eco-Architecture
(Porteous, 2013)
Journeys with the Autonomous House (Stickells, 2017)
Cybernetics, second order
(and architecture)
The Architectural Relevance
of Cybernetics (Pask, 1969)
Autopoiesis and Cognition
(Maturana et al., 1972)
Cybernetics of Cybernetics
(Von Foerster, 1974)
Cybernetics Or Control and Communication (Wiener, 1965)
Ideas and Integrities
(Fuller, 1969)
Cybernetic control, AD Magazine, (Vester, 1974)
Crise, Ecologie et cybernetique, AA (Graggen, 1977)
The Architectural Relevanceof Cybernetics (Frazer, 1993)The Architectural Relevance of Gordon Pask (Haque, 2007)
Second order cybernetics
(Glanville, 2003)
New Views on R. Buckminster Fuller (Chu et al., 2009)
From Agit-Prop to Free Space
(Mathews, 2007)
The Cybernetics of Architecture
(Frazer, 2001)
Safe: Design Takes on Risk
(Antonelli, 2005)
The Fun Palace: Cedric Price’s Experiment (Mathews, 2005)
From Cybernetics to an Architecture
of Ecology (Herdt, 2021)
All Is in Formation: Architecture,
Cybernetics (Stavros et al., 2021)
Architecture and Adaptation
(Yiannoudes, 2016)
The Cybernetic Relevance of Architecture (Chirianni, 2018)
Buckminster Fuller’s Cybernetic Pastoral (Massey, 2016)
A Typology of Circular Economy
Discourses (Calisto et al., 2020)
How Cybernetics Connects
Computing (Dubberly, 2015)
1970s Autonomous Houses and CyberneticsWhole Earth Catalog
(Brand, 1968)
An Architecture of the Whole
(Sadler, 2008)
From Counterculture to Cyberculture (Turner, 2010)
All Is in Formation: Architecture, Cybernetics, Ecology (Kousoulas et al., 2020)
Cambridge Autonomous Houses and Cybernetics Mission galactic household
(Kallipolity, 2013)
Scarcity Constructs
(Till, 2015)
History of Ecological Design
(Kallipoliti, 2018)
Publisher’s Note: MDPI stays neutral with regard to jurisdictional claims in published maps and institutional affiliations.

Share and Cite

MDPI and ACS Style

Medici, P. Autonomous Houses and Architecture of Cybernetics in the 1970s: Towards Limits and Undeveloped Potentials of the Sustainable. Sustainability 2022, 14, 6073. https://doi.org/10.3390/su14106073

AMA Style

Medici P. Autonomous Houses and Architecture of Cybernetics in the 1970s: Towards Limits and Undeveloped Potentials of the Sustainable. Sustainability. 2022; 14(10):6073. https://doi.org/10.3390/su14106073

Chicago/Turabian Style

Medici, Piero. 2022. "Autonomous Houses and Architecture of Cybernetics in the 1970s: Towards Limits and Undeveloped Potentials of the Sustainable" Sustainability 14, no. 10: 6073. https://doi.org/10.3390/su14106073

APA Style

Medici, P. (2022). Autonomous Houses and Architecture of Cybernetics in the 1970s: Towards Limits and Undeveloped Potentials of the Sustainable. Sustainability, 14(10), 6073. https://doi.org/10.3390/su14106073

Note that from the first issue of 2016, this journal uses article numbers instead of page numbers. See further details here.

Article Metrics

Back to TopTop