Abstract
Despite insufficient housing facilities, particularly in developing countries, construction systems are generally selected intuitively or based on conventional solutions sanctioned by practice. The present study aims to evaluate different options for the design of low-income housing in Brazil by integrating the life cycle assessment (LCA) into the decision-making process. To achieve this objective, three single-family projects with different construction systems were selected and analyzed. The most sustainable design was selected through the analytic hierarchy process (AHP). The considered parameters, which were obtained through a survey with professionals and customers, included cost, environmental impact, thermal comfort, construction time, and cultural acceptance. LCA and life cycle cost assessment (LCCA) were performed with the frontier’s system considering the cradle-to-gate cycle, which included the extraction of raw materials, manufacture of building materials, and housing construction. The projects were modelled using Autodesk Revit software with the Tally application for LCA evaluation. The results indicated that light steel frame houses present a better behavior than other conventional alternatives, and the integration of building information modelling with LCA and LCCA in the design phase can lead to the development of more sustainable houses.
1. Introduction
The construction supply chain is one of the most important sectors in the global economy. The construction sector, which includes project preparation and material supply, generally provides 5 to 10% of direct and indirect employment around the world and generates 5 to 15% of the GDP on average [1]. In Brazil, the housing sector is responsible for approximately 26% of the total money circulating in the construction industry. One of the factors that contributes to the progress of this sector is insufficient housing, which is common in most developing countries. For Brazil, this housing deficit falls mainly on the low-income population [2]. In addition, in 2020, there were at least 5.1 million homes in precarious conditions, according to data shared by the Brazilian Institute of Geography and Statistics [3].
Despite its benefits, the construction sector is responsible for significant negative impacts on the environment, from the conception of a project to the demolition and/or restoration of a building. Over their life cycle, buildings require approximately 40% of total global energy use, 60% of global electricity, 25% of global water, and 40% of all resources, and they release approximately one-third of global greenhouse gases [1]. Thus, it is important that buildings are generally evaluated from the perspective of sustainable development.
Sustainable development aims to meet the current needs while ensuring that future generations can meet their own needs [4]. It is based on three interdependent aspects: economic development, social development, and environmental protection. However, the existing state of science lacks an objective and universal methodology to assess the sustainability of specific infrastructure projects adequately [5].
The selection of design solutions has a direct influence on the outcome of the environmental performance analysis of buildings [6]. As an environmental management tool, life cycle analysis (LCA) developed rapidly in the last decades and is an internationally recognized study methodology for assessing the performance of a material, product, or building [7,8]. LCA is commonly applied to evaluate the environmental performance of buildings [9], owing to its ability to assess the aspects associated with the development of a product and its potential impact throughout its useful life effectively—from raw material acquisition to processing, manufacturing, use, and finally, its disposal [10]. Based on the sustainability model, considering the environmental, social, and economic aspects, LCA was extended to a life cycle sustainability assessment (LCSA). The LCSA includes life cycle cost (LCC) and social life cycle assessment (SLCA). When assessing investment in infrastructure projects, the social aspect is often underestimated [11]. Construction materials, embodied energy, operational energy, and construction and demolition waste are the most common indicators used in sustainability assessments in the construction industry [12].
The study of the entire life cycle of a building is not simple, which makes it difficult for designers to incorporate it. Moreover, several challenges in the implementation of LCSA exist due to the existence of a variety of metrics and different levels of maturity in the consideration of the set of LCA, LCC, and SLCA [13].
A detailed review of studies conducted in the last decades shows that building typology has a significant effect on energy demand and global warming potential of buildings [14]. Design strategies to improve energy efficiency can decrease the negative impacts of a building. To evaluate and select the most appropriate design strategy, buildings should be analyzed through a multidisciplinary approach based on sustainable development [6].
A sustainable project is designed, constructed, operated, or reused in an ecological and resource-efficient manner [15]. In this sense, it is important to evaluate existing projects through a sustainable perspective. More importantly, architects, engineers, and others involved in the building process have the opportunity to reduce environmental impacts through the implementation of sustainability objectives at the design-development stage of a building project [16].
When comparison of alternatives from multiple criteria is necessary, it is essential to adopt multi-criteria decision making (MCDM) methods. MCDM techniques allow the decision maker to evaluate complex problems involving multiple and divergent criteria based on subjective judgments of a panel of experts or stakeholders. AHP is the most widely used method for decision making [17].
This paper aims to study alternative building systems by integrating LCA and LCSA into the decision-making process. Low-cost housing projects, also known as social interest housing (SIH), were evaluated considering different building systems: reinforced concrete design with ceramic block sealing, structural masonry design, and light steel frame (LSF) design. The building typologies were evaluated by performing LCA and LCCA, considering the life cycle from cradle-to-gate. These criteria were combined with thermal comfort and construction time. In addition, a subjective factor was considered, which is the cultural acceptance of the different building systems. The building information modelling (BIM) platform, integrated with the Tally application in Autodesk Revit, was employed in this study to evaluate the environmental impacts of building materials [18].
This paper is structured as follows: Section 1 presents the motivation and objective of this study. Section 2 describes the concepts and definitions related to LCA and LCCA. Section 3 presents the AHP used for decision making. Section 4 describes the methodology adopted in this study, and results are presented in the following section. Finally, Section 6 concludes the study.
2. Life Cycle Assessment and Life Cycle Costing
An LCA study comprises four phases, which are interrelated and must be traversed several times. The first phase of LCA is the definition of objective and scope and establishment of the purpose, functional unit, and the system boundary, or boundaries [19]. The purpose of LCA states what the intended application is and why the study is being conducted. The system boundary defines the elementary processes to be included. LCA considers all phases of a product′s life cycle, from the extraction and acquisition of raw materials (cradle), through energy and material production, manufacturing, use, and end-of-life treatment, to final disposal (grave). Depending on the objectives and limitations regarding availability of information, it is possible to perform partial LCAs of products, such as cradle-to-gate, from the extraction of raw materials to the factory gate, or gate-to-gate, the life cycle within the factory, and also the gate-to-grave approach, which considers the lifecycle from the use to disposal phase of the product [20]. Ideally, cradle-to-cradle aims for a closed-loop process by using materials totally recyclable or biodegradable [21].
The second phase of LCA is the life cycle inventory analysis. This phase consists of collecting, describing, and verifying all data on inputs, processes, and emissions throughout the life cycle.
The assessment of life cycle impacts, the next stage of LCA, is conducted using various methodologies. Several methods and their respective databases are available from various countries, which can generate differences between analyses and make comparison of different LCAs difficult [22,23,24,25]. The last phase of LCA is interpretation, which deals with the summarization of results seeking conclusions, recommendations and decision-making, and provision of results consistent with the defined objectives and scope. The evaluation of the impacts of construction materials can be made by the use of local Environmental Product Declaration (EPD), when available. In emerging economies, the development of EPD in still incipient [26].
Regarding the economic performance, the analysis of project alternatives can be performed through LCCA. When applied to civil construction projects, the most economical alternatives in the long term and the those where the construction phase has the highest cost can be identified [6,27]. LCCA should be applied in the early stages of the project to allow decision makers to gain a comprehensive understanding of long-term design strategies and to optimize building efficiency [28]. An appropriate method for performing LCCA is that of net present value [29], according to which the LCC is the sum of all costs incurred during the study period, calculated at present value.
An efficient way to survey the inventory is the application of BIM, which is a modelling technology associated with production processes, communication, and analysis of building models. It is a virtual representation of the characteristics of a building, applied throughout its life cycle. BIM is a design tool that facilitates the application of LCA in the construction sector [13,30,31]. Regarding the sustainability of building projects, the integration of BIM tools with LCA methodology is considered as an important step to assist designers in the decision-making processes in the construction industry [13,32].
The most advanced level of integration between BIM and LCA occurs through the use of resources or plug-ins, executed within the BIM modelling tool itself, such as Tally. The Tally application is an LCA tool that aims to calculate the environmental impacts of selected building materials [18]. Tally uses the geometric information of the BIM model along with its inventory to calculate the quantities of materials and life cycle impacts, and allows architects and engineers to quantify the environmental impact and make sustainable decisions during project development [32]. The data for quantifying environmental impact are found in the Tally plug-in itself, which considers the GaBi database as a reference [13,32]. Gabi is compliant with ISO 14040 and 14044, and International Reference Life Cycle Data System Data Network (ILCD DN) requirements. It follows the list of environmental impact categories based on the TRACI 2.1 impact characterization method, which is a midpoint method that considers the environmental conditions of the United States. The original version of TRACI is commonly used in research worldwide [33].
3. Analytic Hierarchy Process
Although there are standardized tools to assess the different life cycle impacts of products, there is no consensus on how to deal simultaneously with three aspects of sustainability. When multiple criteria are involved for the assessment of the conflicting dimensions of sustainability, the use of multi-criteria decision making (MCDM) techniques has proven to be the most suitable approach compared to other methods. MCDM techniques allow the decision maker to evaluate complex problems involving multiple and divergent criteria based on subjective judgments of a panel of experts or stakeholders affected by the decision [5].
Among the decision-making methods, AHP is one of the most-used methods when the objective is to solve different problems in the realization of sustainability projects in the engineering and construction industry [34,35,36]. The method starts from the decomposition of the problem into smaller, hierarchically independent problems, and the criteria, allocated at the same level, are compared in pairs with relative weights assigned to each criterion at each particular level. For comparisons, the fundamental scale of Saaty [37] is used, which quantifies the relative importance among the criteria.
When a group of people is asked to perform the judgments, it is a significant challenge to assess the judgments effectively to obtain the priorities of the criteria and alternatives of a problem. If equal importance is given to the voters of a group, the geometric mean is the correct way to synthesize the judgements given by several people. However, when the evaluations of the judges have different degrees of importance, a weighted geometric mean can be performed to synthesize their evaluations [38,39].
4. Materials and Methods
The present study was divided into three stages. The first stage was the selection of single-family, low-cost housing projects, also designated as SIH. The second stage comprised the evaluation of the sustainability of the projects and the identification of additional criteria for analysis. Finally, in the last stage, a comparison between the projects was made based on the defined criteria.
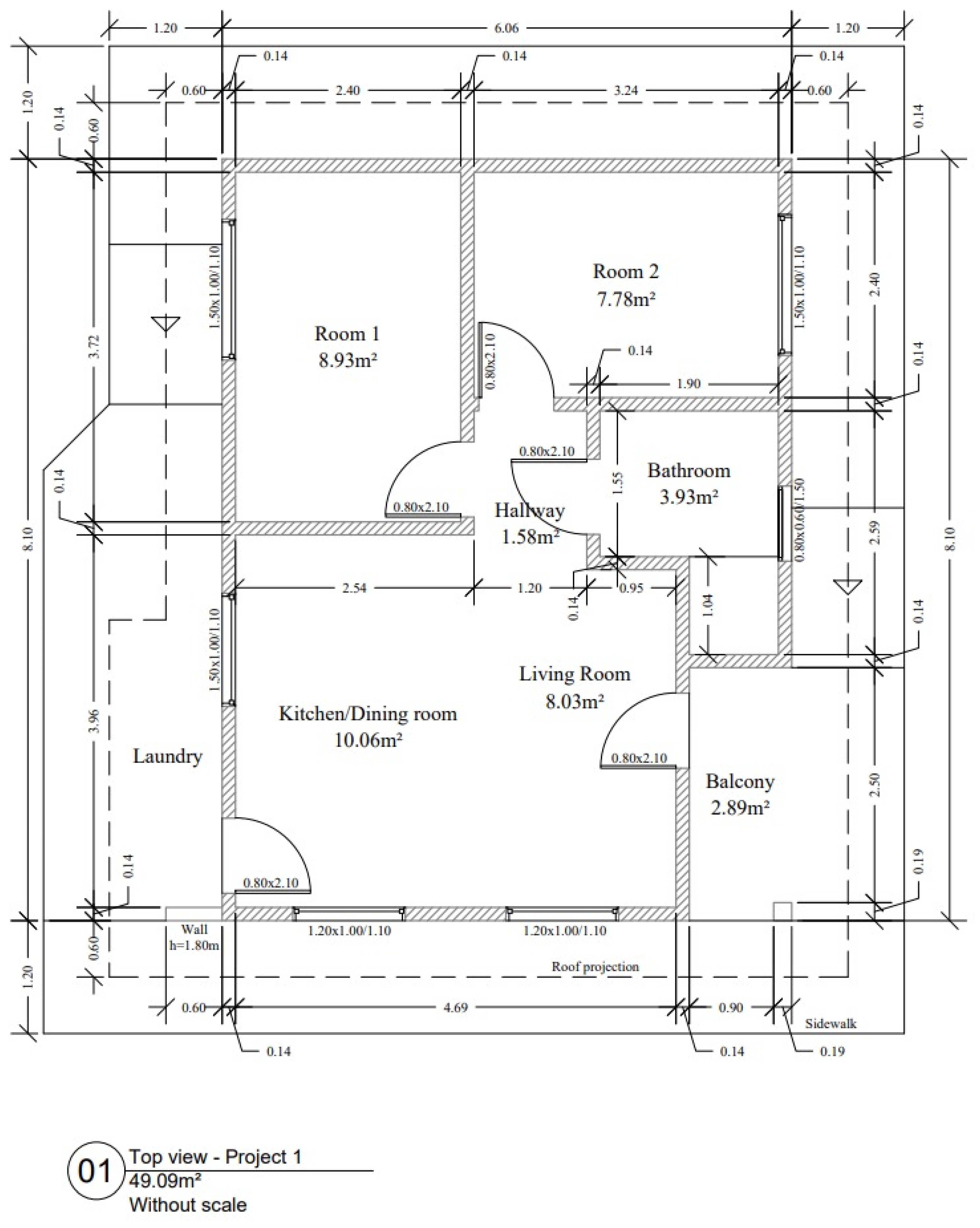
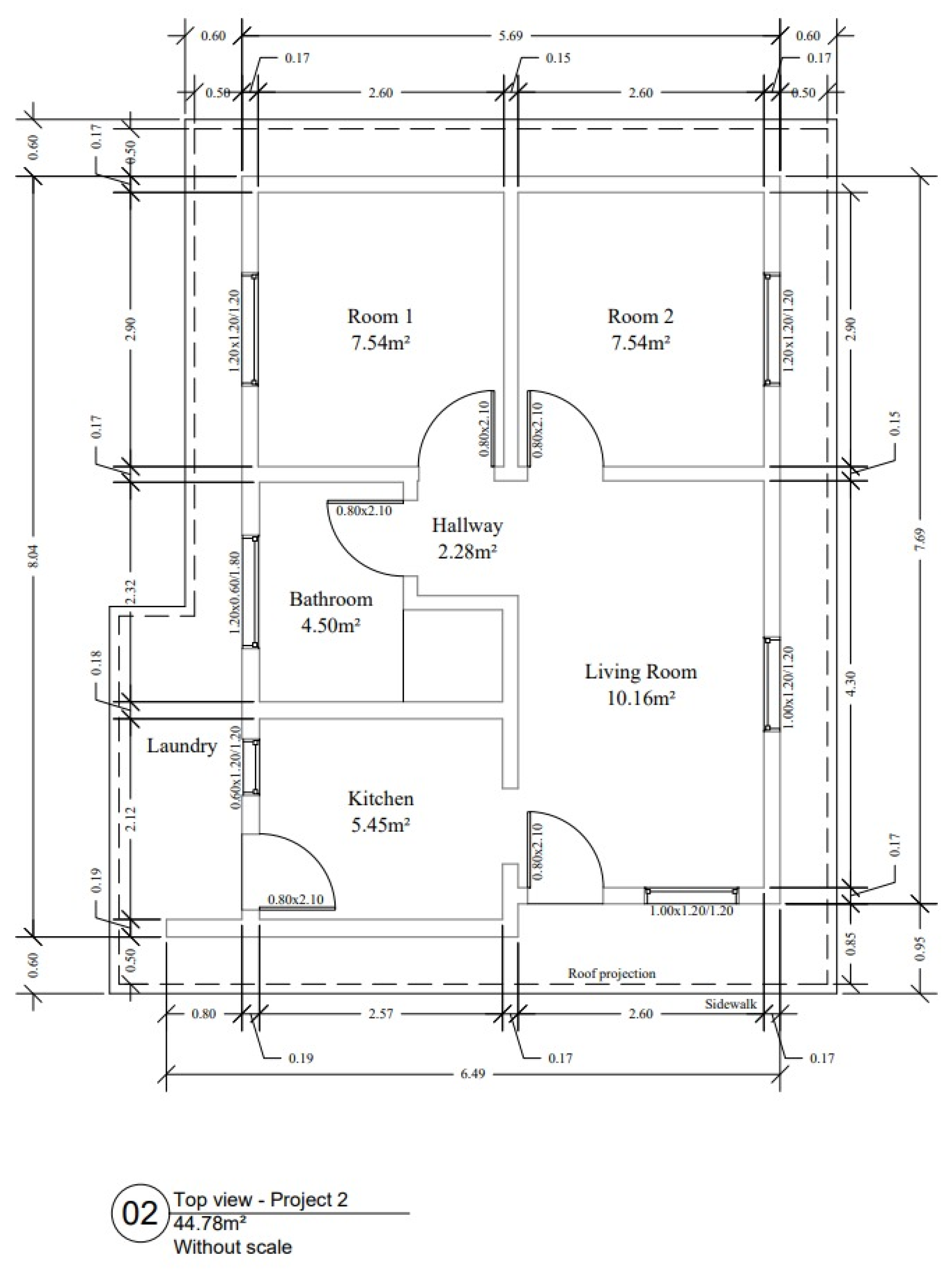
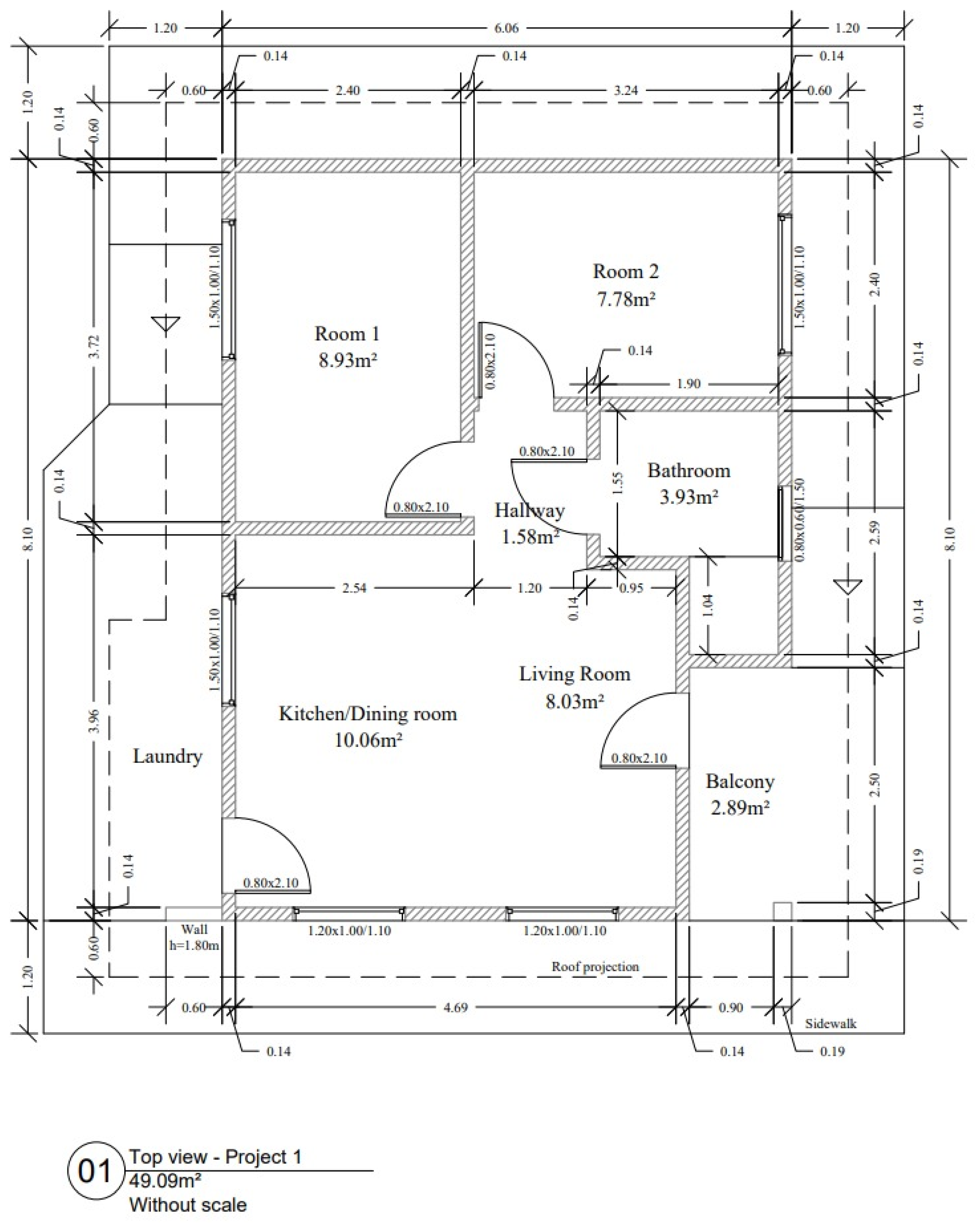
In this study, three housing projects with different construction typologies, obtained from public agencies and designers, were selected. These typologies represent the vast majority of low-income housing in Brazil. Project 1 was a reinforced concrete structure with hollow ceramic bricks walls: a predominant feature in the country′s housing construction (Figure 1). Project 2 was had structural masonry construction (Figure 2), and Project 3 was the Light Steel Frame (LSF) building with cement and gypsum board walls (Figure 3). All projects included a living room, two bedrooms, dining room, kitchen, bathroom, service area, and circulation areas. Because the areas vary from 33.00 to 49.09 m2, one square meter of construction was considered as functional unit to ensure equivalent comparability of results. It was assumed that all the projected dwellings met the function of protecting and providing minimum comfort for families of up to four people [40].
Figure 1.
Project 1: Floor plan.
Figure 2.
Project 2: Floor plan.
Figure 3.
Project 3: Floor plan.
4.1. Life Cycle Assessment
In order to evaluate the environmental impact of each method, an LCA was performed and considered the cradle-to-gate phase, the pre-use phase that involves the extraction and manufacture of construction materials, their transportation to the construction site, and the construction of the dwelling. This phase was selected because the designer has significant decision-making capacity during this stage. The housing construction process includes infrastructure, superstructure, sealing, covering, and roofing. Items such as electrical and plumbing systems were not considered in the analysis because these possess the same weight in the different project typologies.
The life cycle inventory was prepared based on the architectural and complementary projects, with the quantification of the materials required per square meter for the construction of the residences considering the life cycle stages. The material quantities were estimated using Autodesk Revit. For the evaluation of the impacts, the materials used were associated with the materials in the Tally database.
Impact was calculated in terms of global warming potential (GWP), acidification potential (AP), eutrophication potential (EP), smog formation potential (SFP), ozone depletion potential (ODP), primary energy demand (PED), non-renewable energy, and renewable energy.
4.2. Life Cycle Cost Assessment
The cost of each dwelling was calculated based on the inventory of materials through quantities obtained from Autodesk Revit. Because the pre-use phase of the buildings was considered, only the costs of acquisition and installation of materials were calculated, and the other costs throughout the life cycle were not considered. The survey of costs for the construction was based on Brazilian costs and indexes.
4.3. Additional Criteria
Besides the sustainability criteria obtained from the LCA and LCCA study, thermal comfort, execution time, and acceptability of the different construction methods were considered as additional criteria.
To compare the thermal comfort of the studied buildings, the thermal factors of the external vertical partitions (external walls) were considered, based on the values and limits established by Brazilian standards, as well as ordinances of government agencies related to energy efficiency.
The present study considers two different situations for the execution period: the construction of a single residence and the construction of several residences simultaneously, aiming at the most efficient allocation of the team. In the latter case, housing sets with 100 houses were considered, with an execution deadline obtained from existing data in the literature and local research, considering a working day of eight hours a day [41]. The values obtained from the data were averaged because they were quite variable owing to consideration of the specific performance of the work team and year of construction, among other factors.
It is understood that the structural materials should be selected based on tangible criteria, considering factors such as cost, availability of materials in the region, etc. [42]. However, the cultural issue is often a determining factor in this selection. This aspect was considered in the study through questionnaires, in which a total of 109 respondents, including users and designers (civil engineers and architects), attributed relative preferences among the construction alternatives. The same questionnaire was used to collect the relative weights that were attributed to each criterion considered in the decision-making process, through a paired comparison according to the AHP method.
5. Results and Discussion
Initially, from the project inventories, the environmental impacts per square meter of construction were determined, considering the stages from cradle-to-gate. The results for each project are summarized in Table 1 for different impact categories. The alternatives corresponding to the lowest impact, for each category analyzed, are highlighted in bold in Table 1.
Table 1.
Environmental impacts per square meter of construction.
Table 1 shows that, in general, Project 3 generates the lowest impact in most of the categories evaluated. From the analyses performed, it was observed that finishing materials and concrete contributed most to the generation of environmental impacts for Projects 1 and 2. For Project 3, the metals category caused the highest environmental impacts, because the consumption of galvanized steel in this project is higher than the rest of the materials.
In the present study, the result from the impact category Climate Change (or Global Warming Potential, GWP) is considered for comparing the environmental aspects. It is evident that the selection is fully appropriate to goal 13 “Action Against Global Climate Change” of the United Nations Sustainable Development Goals (SDGs) [43].
For the cost surveys of each project, the acquisition and installation costs were considered, including the costs of materials, labor, and equipment. Table 2 shows the LCC values for the three projects. Project 2 had the lowest total cost, but it is only slightly lower than that of Project 1. In contrast, the cost of Project 3 is significantly higher, especially because it is a relatively new construction method in Brazil, a country where masonry constructions predominate. In addition, the materials used in the LSF system for low-cost housing differ slightly from those used in high standard houses. The high price of steel in the international market is also noteworthy.
Table 2.
ACCV results (US$/m2).
The thermal transmittance values of the external vertical partition materials used in each project are listed in Table 3 (only the external vertical wall was considered). These values were calculated based on Brazilian Codes and performance indexes defined by the Brazilian Institute of Metrology, Standardization and Industrial Quality (INMETRO). It was observed that the materials used in Project 3 were more favorable compared with those in the other projects.
Table 3.
Values of thermal transmittance of external vertical seals.
Regarding the schedule, the average construction time was obtained from the existing literature [42], considering the time for the construction of a single residence and 100 residences simultaneously. These results are listed in Table 4. It can be observed that, for the construction of a single residence, Project 3 would progress approximately 32% and 12% faster than Projects 1 and 2, respectively, among the considered construction typologies. When comparing the results of schedule for the simultaneous construction of 100 residences, Project 3 required half of the time required for Project 1, and it progressed 40% faster than Project 2.
Table 4.
Execution schedule (days/m²/residence).
To determine which building method is more accepted from a cultural aspect, an online questionnaire was conducted in which the three building systems were compared. The respondents were asked to make a pairwise comparison between the proposed building models, considering Saaty’s fundamental scale. The questionnaire was answered by 59 construction professionals and 50 users. From the responses obtained, the geometric mean of individual judgments was calculated. Table 5 shows the decision matrix according to the cultural acceptance criterion. According to the relative priorities listed in the last column of the table, it is observed that Project 1 was the most accepted, which is consistent with the current practice in the country. Surprisingly, the LSF system was relatively well accepted; it even had a slightly higher acceptance by users than by professionals. The consistency ratio was found to be equal to zero (less than the 10% limit) and was, therefore, characterized as consistent.
Table 5.
Decision matrix—cultural acceptance criterion.
Table 6 summarizes the results for the considered criteria; the best value corresponding to each criterion is highlighted in bold. The schedule refers to the construction of a single residence. Considering the criteria independently, it can be observed that, despite the higher cost, the LSF system is more advantageous in three of the five criteria.
Table 6.
General results of the criteria considered.
The relative importance of the evaluated criteria was also obtained from the questionnaires. Initially, the criteria relative weights, considering all respondents (designers and users), were determined through the geometric mean of the judgments where all the respondents were assigned equal weights. The relative weights are listed in Table 7. As expected, the cost was observed as the most important criterion for both categories. However, the results also show that the users′ assessment differs significantly from the designers′ perception. It is observed, for instance, that the environmental impact as well as the comfort received significant attention from the users.
Table 7.
Weights assigned to the criteria (in percentage).
Considering the weighted weights, relative to all respondents, the evaluations of each alternative in relation to the criteria considered were obtained. The results are presented in Table 8, including the final values for each project, with the best values highlighted in bold. It can be observed that, despite the significantly higher cost of Project 3, this alternative was the one that obtained the best final score (0.3817), followed by the conventional project. Similar analyses were performed considering the opinions of the designers and users separately. Despite divergences in the importance of the criteria, as shown in Table 7, the final classification of the alternatives was maintained.
Table 8.
Decision matrix-users and designers.
In general, it is observed that decision-making methods can help in obtaining important information for selecting the best project or process. However, in order to indicate which construction method is more sustainable, eventual modifications in the projects may alter the results obtained, either by variations in the consumption of the materials used or their properties. Moreover, the determination of the relative weights of the criteria is also directly related to the results obtained. Thus, additional analyses were performed to evaluate the importance of the weights and criteria used.
Table 9 illustrates the results obtained considering equal weights for all criteria. It is observed that the differences between Projects 1 and 2 are reduced. However, Project 3 still represents the best alternative. This situation only changes when cost assumes preponderant weight, as in the case of Table 10 (50%). Projects 1 and 2 practically do not differ from each other; both have only small advantages over Project 3. The obtained results are summarized in Figure 4.
Table 9.
Decision matrix—equal weights.
Table 10.
Decision matrix-greatest weight given to cost (50%).
Figure 4.
Total and relative results to adopted weights.
Table 11 summarizes the results obtained for the various impacts analyses, considering the weighted weights assigned by professionals and users, presented in Table 8. It was observed that the best alternative, regardless of the type of impact, remains the LSF structure (Project 3). Considering the opinion of each group separately, this result also did not change.
Table 11.
Change in environmental impact assessment criterion.
Finally, the results were evaluated considering the repetitiveness of the buildings, where the schedule includes the execution of 100 residences. As expected, Project 3 became even more preponderant, with the final weight increasing from 0.3817 to 0.3912.
6. Conclusions
This research presents a method to study building alternatives considering sustainability as the main criterion. Three different building solutions for single-family, low-cost housing were analyzed and compared, which represent the vast majority of low-income houses built in Brazil. The proposed model includes criteria related to LCA and LCCA, in addition to evaluating the importance of execution schedule, thermal comfort, and cultural acceptance. The proposed methodology identified the best alternative and also allowed for identifying phases and characteristics that can be improved or combined for a better project than the ones considered. Despite involving data specific to Brazil, the methodology employed in this study can be easily adapted to other regions and localities.
The consideration of more than one criterion requires the use of decision-making methods; therefore, the widely employed AHP method is used in this study.
The observed results show that when only cost is considered, the conventional masonry alternatives are the best options. However, considering other criteria in the analysis, the LSF construction, which has a significantly higher cost, proved to be very attractive owing to factors such as lower environmental impact, shorter execution time, and lower thermal transmittance. It should be noted that the cost is the only one criterion which showed significant variability.
For environmental impact consideration, it was observed that Project 1 (conventional masonry) presents greater environmental impacts than structural masonry and LSF in almost all categories, except in the non-renewable energy consumption category; in this aspect, Project 2 (structural masonry) exhibits a higher impact. For categories of stratospheric ozone depletion and pollution potential, LSF shows greater impacts. Simulations were also performed for different impact measures; however, the final results did not vary.
To compare the thermal comfort of the studied projects, only the thermal transmittance of the external vertical partitions (external walls) was considered. Further studies evaluating the whole building must be encouraged, aiming to include this relevant aspect in a more accurate form.
Cultural acceptance, a subjective criterion, was also added in the comparative analysis. This criterion was measured based on the preference of designers and users, applying paired comparison according to Saaty′s fundamental scale. Although more than a hundred of questionnaires were considered, this number cannot be representative, but intended to substitute the authors’ opinion. Despite the fact that the same questionnaire was used, there was a considerable difference between the degree of importance attributed to different criteria by the two groups. This was observed because significant relevance was given by users to thermal comfort and the environmental impact produced.
In order to find better constructive solutions from the economic and environmental perspective for civil construction projects, we aim to stimulate the study and consideration of projects that have enhanced efficiency in terms of sustainability. Reducing the amount of materials and natural resources, changing the type of material used, or combining different construction methods are the design strategies that can contribute to increasing sustainability and user satisfaction. Accordingly, it is important to highlight that the materials used in LSF constructions are similar to those used in higher standard constructions.
This study attempted to investigate the sustainability of social housing projects and aimed to stimulate the implementation of new certification programs already existing in civil construction, encompassing sustainability concepts. In addition, the present study aims to stimulate professionals involved in the building process to implement sustainability objectives at the design-development stage. In this sense, measures to achieve sustainability have to be developed in an integrated and interdisciplinary environment.
Sustainability should consider environmental aspects, and it is also necessary to perform an integrated analysis between environmental impact, economic, and social aspects. In this case, the social aspect can be related to the housing deficit in emerging countries and the resulting need to build new dwellings with rational use of resources. Therefore, a comparison of projects considering the social aspect of sustainability is recommended for further study.
Once only cradle-to-gate was considered in present study, a comparison of projects regarding demolition and recycling was not included. The assessment of the significance of these aspects on results can be an important addition in future investigations.
Author Contributions
Conceptualization and methodology, P.F.B., M.K., V.Y. and P.C.V.J.; writing—original draft preparation, P.F.B. and M.K.; writing—review and editing, V.Y., P.F.B. and M.K. All authors have read and agreed to the published version of the manuscript.
Funding
The authors acknowledge the financial support of Universidade de Passo Fundo to the first author, the financial support of the Spanish Ministry of Economy and Competitiveness, along with FEDER funding (Project: BIA2017-85098-R) to the second author, and the financial support of the Brazilian National Council for Scientific and Technological Development (CNPq) to the last author.
Institutional Review Board Statement
Not applicable.
Informed Consent Statement
Not applicable.
Data Availability Statement
Not applicable.
Conflicts of Interest
The authors declare no conflict of interest.
References
- Giannetti, B.F.; Demétrio, J.C.; Agostinho, F.; Almeida, C.M.; Liu, G. Towards more sustainable social housing projects: Recognizing the importance of using local resources. Build. Environ. 2018, 127, 187–203. [Google Scholar] [CrossRef]
- De Brito, G.B.; Araújo, J.S.B.; Marafon, G.J. Minha Casa Minha Vida program and its spatial distribution in Rio de Janeiro state. Geo UERJ 2020, 37, e51548. [Google Scholar] [CrossRef]
- How the Pandemic Exposes the Housing Crisis in Brazil. Available online: https://www.rioonwatch.org/?p=60460 (accessed on 12 April 2021).
- Keeble, B.R. The Brundtland report: “Our common future”. Med. War 1988, 4, 17–25. [Google Scholar] [CrossRef]
- Milani, C.J.; Yepes, V.; Kripka, M. Proposal of Sustainability Indicators for the Design of Small-Span Bridges. Int. J. Environ. Res. Public Health 2020, 17, 4488. [Google Scholar] [CrossRef]
- Invidiata, A.; Lavagna, M.; Ghisi, E. Selecting design strategies using multi-criteria decision making to improve the sustainability of buildings. Build. Environ. 2018, 139, 58–68. [Google Scholar] [CrossRef]
- Guineé, J. Life Cycle Sustainability Assessment: What Is It and What Are Its Challenges? In Taking Stock of Industrial Ecology; Clift, R., Druckman, A., Eds.; Springer: Cham, Switzerland, 2016. [Google Scholar] [CrossRef]
- Penadés-Plà, V.; Martí, J.V.; García-Segura, T.; Yepes, V. Life-Cycle Assessment: A Comparison between Two Optimal Post-Tensioned Concrete Box-Girder Road Bridges. Sustainability 2017, 9, 1864. [Google Scholar] [CrossRef]
- Hollberg, A.; Genova, G.; Habert, G. Evaluation of BIM-based LCA results for building design. Autom. Constr. 2020, 109, 102972. [Google Scholar] [CrossRef]
- Sharma, A.; Saxena, A.; Sethi, M.; Shree, V. Life cycle assessment of buildings: A review. Renew. Sustain. Energy Rev. 2011, 15, 871–875. [Google Scholar] [CrossRef]
- Sierra, L.A.; Pellicer, E.; Yepes, V. Method for estimating the social sustainability of infrastructure projects. Environ. Impact Assess. Rev. 2017, 65, 41–53. [Google Scholar] [CrossRef]
- Janjua, S.Y.; Sarker, P.K.; Biswas, W.K. A Review of Residential Buildings’ Sustainability Performance Using a Life Cycle Assessment Approach. J. Sustain. Res. 2019, 1, 190006. [Google Scholar]
- Costa, D.; Quinteiro, P.; Dias, A.C. A systematic review of life cycle sustainability assessment: Current state, methodological challenges, and implementation issues. Sc. Total Environ. 2019, 686, 774–787. [Google Scholar] [CrossRef] [PubMed]
- Bahramian, M.; Yetilmezsoy, K. Life cycle assessment of the building industry: An overview of two decades of research (1995–2018). Energy Build. 2020, 219, 109917. [Google Scholar] [CrossRef]
- Ortiz, O.; Pasqualino, J.C.; Castells, F. Environmental performance of construction waste: Comparing three scenarios from a case study in Catalonia, Spain. Waste Manag. 2010, 30, 646–654. [Google Scholar] [CrossRef]
- Akadiri, P.O.; Chinyio, E.A.; Olomolaiye, P.O. Design of A Sustainable Building: A Conceptual Framework for Implementing Sustainability in the Building Sector. Buildings 2012, 2, 126–152. [Google Scholar] [CrossRef]
- Navarro, I.J.; Yepes, V.; Martí, J.V. A Review of Multicriteria Assessment Techniques Applied to Sustainable Infrastructure Design. Adv. Civ. Eng. Adv. Civ. Eng. 2019, 2019, 6134803. [Google Scholar] [CrossRef]
- TALLY. Tally Methods. Available online: http://choosetally.com/methods/ (accessed on 7 July 2020).
- Buyle, M.; Braet, J.; Audenaert, A. Life cycle assessment in the construction sector: A review. Renew. Sustain. Energy Rev. 2013, 26, 379–388. [Google Scholar] [CrossRef]
- Švajlenka, J.; Kozlovská, M.; Pošiváková, T. Analysis of Selected Building Constructions Used in Industrial Construction in Terms of Sustainability Benefits. Sustainability 2018, 10, 4394. [Google Scholar] [CrossRef]
- Futas, N.; Rajput, K.; Schiano-Phan, R. Cradle to cradle and whole-life carbon assessment—Barriers and opportunities towards a circular economic building sector. IOP Conf. Ser. Earth Environ. Sci. 2019, 225, 012036. [Google Scholar] [CrossRef]
- Dossche, C.; Boel, V.; De Corte, W. Use of Life Cycle Assessments in the Construction Sector: Critical Review. Procedia Eng. 2017, 171, 302–311. [Google Scholar] [CrossRef]
- Saleem, M.; Chhipi-Shrestha, G.; Andrade, M.T.B.; Dyck, R.; Ruparathna, R.; Hewage, K.; Sadiq, R. Life Cycle Thinking–Based Selection of Building Facades. J. Arch. Eng. 2018, 24, 04018029. [Google Scholar] [CrossRef]
- Rocamora, A.M.; Guzmán, J.S.; Marrero, M. LCA databases focused on construction materials: A review. Renew. Sustain. Energy Rev. 2016, 58, 565–573. [Google Scholar] [CrossRef]
- Santoro, J.F.; Kripka, M. Studies on environmental impact assessment of reinforced concrete in different life cycle phases. Int. J. Struct. Glass Adv. Mater. Res. 2017, 1, 32–40. [Google Scholar] [CrossRef]
- Rocha, M.S.R.; Caldeira-Pires, A. Environmental product declaration promotion in Brazil: SWOT analysis and strategies. J. Clean. Prod. 2019, 235, 1061–1072. [Google Scholar] [CrossRef]
- Najjar, M.; Figueiredo, K.; Hammad, A.W.A.; Haddad, A. Integrated optimization with building information modeling and life cycle assessment for generating energy efficient buildings. Appl. Energy 2019, 250, 1366–1382. [Google Scholar] [CrossRef]
- Abouhamad, M.; Abu-Hamd, M. Framework for construction system selection based on life cycle cost and sustainability assessment. J. Clean. Prod. 2019, 241, 118397. [Google Scholar] [CrossRef]
- Gopanagoni, V.; Velpula, S.L. An analytical approach on life cycle cost analysis of a green building. Mater. Today Proc. 2020, 33, 387–390. [Google Scholar] [CrossRef]
- Anand, C.K.; Amor, B. Recent developments, future challenges and new research directions in LCA of buildings: A critical review. Renew. Sustain. Energy Rev. 2017, 67, 408–416. [Google Scholar] [CrossRef]
- Peng, C. Calculation of a building’s life cycle carbon emissions based on Ecotect and building information modeling. J. Clean. Prod. 2016, 112, 453–465. [Google Scholar] [CrossRef]
- Hasik, V.; Escott, E.; Bates, R.; Carlise, S.; Faircloth, B.; Bilec, M.M. Comparative whole-building life cycle assessment of renovation and new construction. Build. Environ. 2019, 161, 106218. [Google Scholar] [CrossRef]
- Bare, J.C.; Gloria, T.P. Environmental impact assessment taxonomy providing comprehensive coverage of midpoints, endpoints, damages, and areas of protection. J. Clean. Prod. 2008, 16, 1021–1035. [Google Scholar] [CrossRef]
- Zamarrón-Mieza, I.; Yepes, V.; Moreno-Jiménez, J.M. A systematic review of application of multi-criteria decision analysis for aging-dam management. J. Clean. Prod. 2017, 147, 217–230. [Google Scholar] [CrossRef]
- Prascevic, N.; Prascevic, Z. Application of fuzzy ahp for ranking and selection of alternatives in construction project management. J. Civ. Eng. Manag. 2017, 23, 1123–1135. [Google Scholar] [CrossRef]
- Kripka, M.; Yepes, V.; Milani, C.J. Selection of sustainable short-span bridge design in Brazil. Sustainability 2019, 11, 1307. [Google Scholar] [CrossRef]
- Saaty, R.W. The analytic hierarchy process-what it is and how it is used. Math. Model. 1987, 9, 161–176. [Google Scholar] [CrossRef]
- Aczél, J.; Saaty, T.L. Procedures for Synthesizing Ratio Judgements. J. Math. Psychol. 1983, 27, 93–102. [Google Scholar] [CrossRef]
- Forman, E.; Peniwati, K. Aggregating individual judgments and priorities with the Analytic Hierarchy Process. Eur. J. Oper. Res. 1998, 108, 165–169. [Google Scholar] [CrossRef]
- Pedro, J.B. How small can a dwelling be? A revision of Portuguese building regulations. Struct. Surv. 2009, 27, 390–410. [Google Scholar]
- Klein, B.G.; Maronesi, V. Budget Comparison of Construction Systems in Conventional Masonry, Structural Masonry and Light Steel Frame for the Construction of Housing Estates (In Portuguese); Civil Engineering Course, Universidade Tecnológica Federal do Paraná: Pato Branco, Brazil, 2013. [Google Scholar]
- Ozimboski, J.M.; Pravia, Z.M.C.; Kripka, M. Optimization of Reinforced Concrete Beams and Steel Beams: A Comparative Study. Int. J. Struct. Glass Adv. Mater. Res. 2020, 4, 160–167. [Google Scholar] [CrossRef]
- PNUD. Sustainable Development Goals. Available online: https://www.undp.org/content/undp/en/home/sustainable-development-goals.html (accessed on 21 February 2021).
Publisher’s Note: MDPI stays neutral with regard to jurisdictional claims in published maps and institutional affiliations. |
© 2021 by the authors. Licensee MDPI, Basel, Switzerland. This article is an open access article distributed under the terms and conditions of the Creative Commons Attribution (CC BY) license (https://creativecommons.org/licenses/by/4.0/).



