Effects of the COVID-19 Pandemic on Indoor Air Quality and Thermal Comfort of Primary Schools in Winter in a Mediterranean Climate
Abstract
1. Introduction
2. Materials and Methods
- Selection and characterisation of case study,
- Development of monitoring campaign,
- Data collection: use of heating, ventilation, and air conditioning (HVAC), ventilation protocols, thermal comfort, and IAQ parameters.
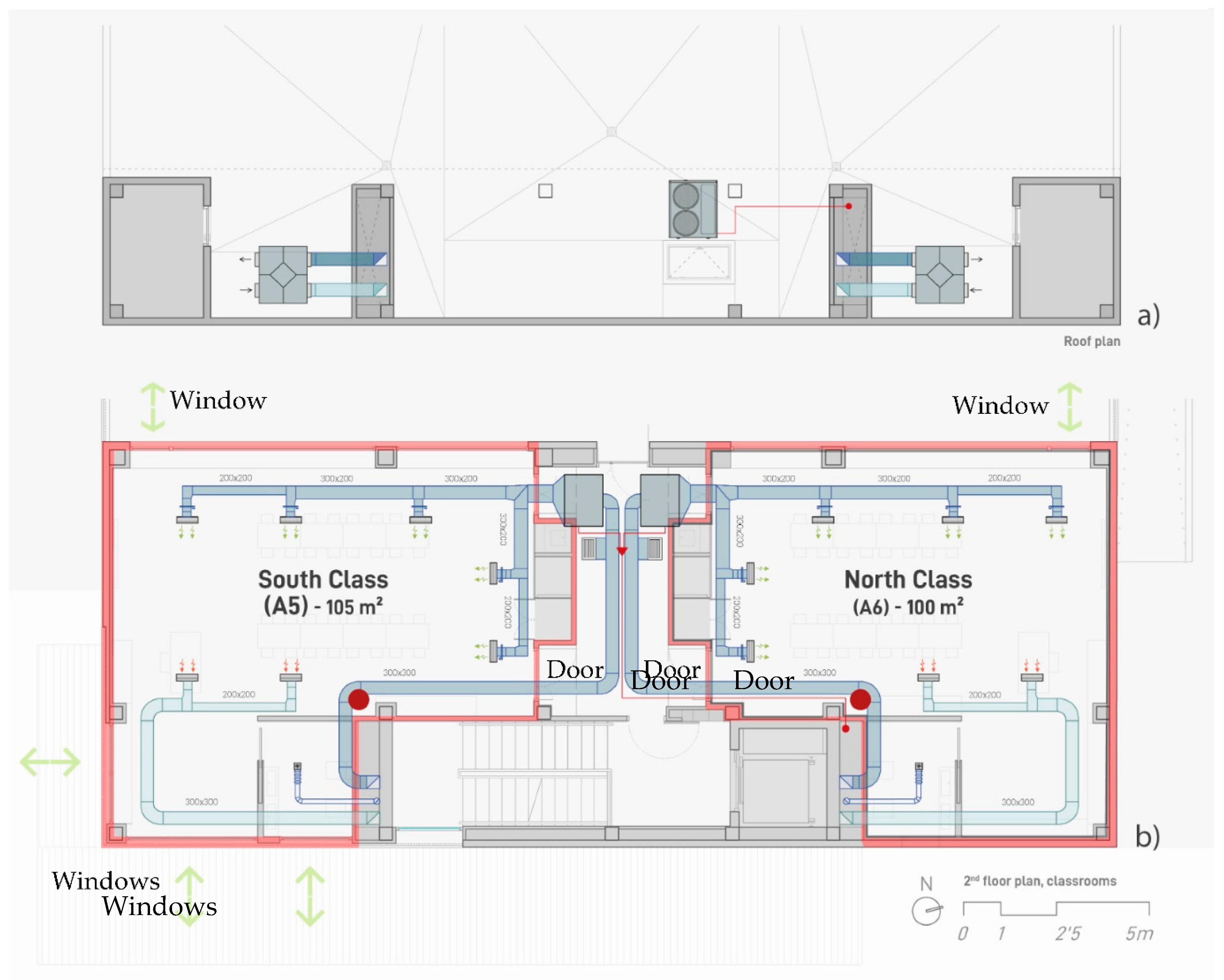
2.1. Characterisation of the Case Study
2.2. Monitoring
- Period 1: From 23 January to 13 March 2020, the last day of face-to-face teaching activity before the lockdown imposed due to the COVID-19 pandemic. In total, this 7-week period is the equivalent of 35 school days.
- Period 2: From 30 November 2020 to 22 January 2021. In total, this 6-week period is the equivalent of 25 school days, including the Christmas holidays.
2.3. Thermal Comfort Analysis
3. Results and Discussion
3.1. Thermal Environment Evaluation
3.2. Indoor Air Quality Evaluation
4. Conclusions
Author Contributions
Funding
Institutional Review Board Statement
Informed Consent Statement
Data Availability Statement
Conflicts of Interest
Abbreviations
| Abbreviation | Nomenclature |
| ACH | Air Change Hour |
| CO2 | Dioxide of Carbon (ppm) |
| HVAC | Heating, Ventilation, and Air Conditioning |
| IAQ | Indoor Air Quality |
| IEQ | Indoor Environmental Quality |
| PPD | Predicted Percentage of Dissatisfied (%) |
| PMV | Predicted Mean Vote |
| RH | Relative Humidity (%) |
| ta | Air Temperature (°C) |
| to | Operative Temperature (°C) |
| tr | Radiant Temperature (°C) |
| TSV | Thermal Sensation Vote |
| TTI | Test Trace and Isolate |
| U | Thermal Transmittance (W/(m2K) |
| VRV | Variable Refrigerant Volume |
| WHO | World Health Organisation |
References
- Yang, B.; Olofsson, T.; Wang, F.; Lu, W. Thermal comfort in primary school classrooms: A case study under subarctic climate area of Sweden. Build. Environ. 2018, 135, 237–245. [Google Scholar] [CrossRef]
- Griffiths, M.; Eftekhari, M. Control of CO2 in a naturally ventilated classroom. Energy Build. 2008, 40, 556–560. [Google Scholar] [CrossRef]
- Salthammer, T.; Uhde, E.; Schripp, T.; Schieweck, A.; Morawska, L.; Mazaheri, M.; Clifford, S.; He, C.; Buonanno, G.; Querol, X.; et al. Children’s well-being at schools: Impact of climatic conditions and air pollution. Environ. Int. 2016, 94, 196–210. [Google Scholar] [CrossRef] [PubMed]
- Shendell, D.G.; Prill, R.; Fisk, W.J.; Apte, M.G.; Blake, D.; Faulkner, D. Associations between classroom CO2 concentrations and student attendance in Washington and Idaho. Indoor Air 2004, 14, 333–341. [Google Scholar] [CrossRef]
- Wargocki, P.; Wyon, D.P. Providing better thermal and air quality conditions in school classrooms would be cost-effective. Build. Environ. 2013, 59, 581–589. [Google Scholar] [CrossRef]
- Petersen, S.; Jensen, K.; Pedersen, A.; Rasmussen, H. The effect of increased classroom ventilation rate indicated by reduced CO2 concentration on the performance of schoolwork by children. Indoor Air 2016, 26, 366–379. [Google Scholar] [CrossRef] [PubMed]
- Alfano, F.R.D. (Ed.) Indoor Environment and Energy Efficiency in Schools; REHVA: Brussels, Belgium, 2010. [Google Scholar]
- Campano, M.A.; Domínguez-Amarillo, S.; Fernández-Agüera, J.; Sendra, J.J. Thermal Perception in Mild Climate: Adaptive Thermal Models for Schools. Sustainability 2019, 11, 3948. [Google Scholar] [CrossRef]
- De Giuli, V.; Da Pos, O.; De Carli, M. Indoor environmental quality and pupil perception in Italian primary schools. Build. Environ. 2012, 56, 335–345. [Google Scholar] [CrossRef]
- Gennaro, G.; Dambruoso, P.R.; Loiotile, A.D.; Di Gilio, A.; Giungato, P.; Tutino, M.; Marzocca, A.; Mazzone, A.; Palmisani, J.; Porcelli, F. Indoor air quality in schools. Environ. Chem. Lett. 2014, 12, 467–482. [Google Scholar] [CrossRef]
- Fernández-Agüera, J.; Campano, M.A.; Domínguez-Amarillo, S.; Acosta, I.; Sendra, J.J. CO2 Concentration and Occupants’ Symptoms in Naturally Ventilated Schools in Mediterranean Climate. Buildings 2019, 9, 197. [Google Scholar] [CrossRef]
- Dorizas, P.V.; Assimakopoulos, M.N.; Helmis, C.; Santamouris, M. An integrated evaluation study of the ventilation rate, the exposure and the indoor air quality in naturally ventilated classrooms in the Mediterranean region during spring. Sci. Total Environ. 2015, 502, 557–570. [Google Scholar] [CrossRef] [PubMed]
- WHO. School Environment: Policies and Current Status; WHO Regional Office for Europe: Copenhagen, Denmark, 2015. [Google Scholar]
- D’Ambrossio Alfano, F.R.; Ianniello, E.; Palella, B.I. PMV-PPD and acceptability in naturally ventilated schools. Build. Environ. 2013, 67, 129–137. [Google Scholar] [CrossRef]
- Chatzidiakou, L.; Mumovic, D.; Summerfield, A. Is CO2 a good proxy for indoor air quality in classrooms? Part 1: The interrelationships between thermal conditions, CO2 levels, ventilation rates and selected indoor pollutants. Build. Serv. Eng. Technol. 2015, 36, 129–161. [Google Scholar] [CrossRef]
- Lipinski, T.; Ahmad, D.; Serey, N.; Jouhara, H. Review of ventilation strategies to reduce the risk of disease transmission in high occupancy buildings. Int. J. Thermofluids 2020, 7–8, 100045. [Google Scholar] [CrossRef]
- Pereira, P.F.; Ramos, N.M.M. The impact of mechanical ventilation operation strategies on indoor CO2 concentration and air exchange rates in residential buildings. Indoor Built Environ. 2020. [Google Scholar] [CrossRef]
- Fisk, W.J. The ventilation problem in schools: Literature review. Indoor Air 2017, 27, 1039–1051. [Google Scholar] [CrossRef] [PubMed]
- Building Bulletin 101. Guidelines on Ventilation, Thermal Comfort and Indoor Air Quality in Schools; Department for Education: London, UK, 2016.
- ASHRAE. Thermal Environmental Conditions for Human Occupancy; ASHRAE Standard 55-2017; American Society of Heating, Refrigerating and Air Conditioning Engineers: Atlanta, GA, USA, 2017. [Google Scholar]
- AIR. Ausschuss für Innenraumrichtwerte (German Committee on Indoor Guide Values); German Federal Environment Agency: Dessau-Roßlau, Germany, 2019. [Google Scholar]
- WHO. Modes of Transmission of Virus Causing Covid-19: Implications for Ipc Precaution Recommendations: Scientific Brief; World Health Organization: Geneva, Switzerland, 2020. [Google Scholar]
- Noorimotlagh, Z.; Jaafarzadeh, N.; Martínez, S.S.; Mirzaee, S.A. A systematic review of possible airborne transmission of the COVID-19 virus (SARS-CoV-2) in the indoor air environment. Environ. Res. 2021, 193, 110612. [Google Scholar] [CrossRef] [PubMed]
- Stage, H.B.; Shingleton, J.; Ghosh, S.; Scarabel, F.; Pellis, L.; Finnie, T. Shut and re-open: The role of schools in the spread of Covid-19 in Europe. medRxiv 2020. [Google Scholar] [CrossRef]
- SickKids. COVID-19: Recommendations for School Reopening. 17 June 2020. Available online: https://www.sickkids.ca/siteassets/news/news-archive/2020/covid19-recommendations-for-school-reopening-sickkids-june.pdf (accessed on 29 July 2020).
- Bonell, C.; Melendez-Torres, G.; Viner, R.M.; Rogers, M.B.; Whitworth, M.; Rutter, H.; Rubin, G.J.; Patton, G. An evidence-base theory of change for reducing SAR-CoV-2 transmission in reopened schools. Health Place 2020, 64, 102398. [Google Scholar] [CrossRef] [PubMed]
- Public Health England. Weekly Coronavirus Disease 2019 (COVID-19) Surveillance Report; Public Health England: London, UK, 2020; Volume 25.
- Panovska-Griffiths, J.; Kerr, C.C.; Stuart, R.M.; Mistry, D.; Klein, D.; Viner, R.M.; Bonell, C. Determining the optimal strategy for reopening schools, the impact of test and trace interventions, and the risk of occurrence of a second COVID-19 epidemic wave in the UK: A modelling study. Lancet Child Adolesc. Health 2020, 4, 817–827. [Google Scholar] [CrossRef]
- Jones, E.; Young, A.; Clevenger, K.; Salimifard, P.; Wu, E.; Luna, M.L.; Lahvis, M.; Lang, J.; Bliss, M.; Azimi, P.; et al. Healthy Schools: Risk Reduction Strategies for Reopening Schools; Harvard, T.H., Ed.; Chan School of Public Health: Boston, MA, USA, 2020. [Google Scholar]
- Tang, S.; Mao, Y.; Jones, R.M.; Tan, Q.; Ji, J.S.; Li, N.; Shen, J.; Lv, Y.; Pan, L.; Ding, P.; et al. Aerosol transmission of SARS-CoV-2? Evidence, prevention and control. Environ. Int. 2020, 144, 106039. [Google Scholar] [CrossRef]
- Morawska, L.; Cao, J. Airborne transmission of SAR-CoV-2: The world should face the reality. Environ. Int. 2020, 139, 105730. [Google Scholar] [CrossRef]
- Dielz, L.; Horve, P.F.; Coll, D.A.; Frez, M.; Elsen, J.A.; Van Den Wymelenberg, K. 2019 novel coronavirus (COVID-19) pandemic: Built environment considerations to reduce transmission. mSystems 2020, 5, e00375-20. [Google Scholar] [CrossRef]
- Buonanno, G.; Stabile, L.; Morawska, L. Estimation of airborne viral emission: Quanta emission rate of SARS-CoV-2 for infection risk assessment. Environ. Int. 2020, 141, 105794. [Google Scholar] [CrossRef]
- ASHRAE. Ventilation for Acceptable Indoor Air Quality, American Society of Heating, Refrigerating and Air-Conditioning Engineers ANSI/ASHRAE Standard 62.1-2019; American Society of Heating, Refrigerating and Air Conditioning Engineers: Atlanta, GA, USA, 2019. [Google Scholar]
- Domínguez-Amarillo, S.; Fernández-Agüera, J.; González, M.M.; Cuerdo-Vilches, T. Overheating in Schools: Factors Determining Children’s Perceptions of Overall Comfort Indoors. Sustainability 2020, 12, 5772. [Google Scholar] [CrossRef]
- CEN. Ventilation for Non-Residential Buildings—Performance Requirements for Ventilation and Room-Conditioning Systems; CEN-EN 13779:2008; Comité Européen de Normalisation: Brussels, Belgium, 2008. [Google Scholar]
- ZEMeds. Promoting Renovation of Schools in a Mediterranean Climate up to Nearly Zero-Energy Buildings. 2016. Available online: http://www.zemeds.eu/ (accessed on 4 January 2021).
- RITE. Reglamento de Instalaciones Técnicas en Edificios (Regulation of Technical Installations in Buildings); Instituto para la Diversificación y Ahorro de la Energía: Madrid, Spain, 2007. [Google Scholar]
- Stabile, L.; Massimo, A.; Canale, L.; Russi, A.; Andrade, A.; Dell’Isola, M. The effect of ventilation strategies on indoor air quality and energy consumptions in classrooms. Buildings 2019, 9, 110. [Google Scholar] [CrossRef]
- Calama-González, C.M.; Suárez, R.; León-Rodríguez, A.L.; Ferrari, S. Assessment of Indoor Environmental Quality for Retrofitting Classrooms with An Egg-Crate Shading Device in A Hot Climate. Sustainability 2019, 11, 1078. [Google Scholar] [CrossRef]
- Abrams, E.M.; McGill, G.; Bhopal, S.S.; Sinha, I.; Fernandes, R.M. COVID-19, asthma, and return to school. Lancet Respir Med. 2020, 8, 847–849. [Google Scholar] [CrossRef]
- Korsavi, S.S.; Montazami, A.; Mumovic, D. Indoor air quality (IAQ) in naturally-ventilated primary schools in the UK: Occupant-related factors. Build. Environ. 2020, 180, 106992. [Google Scholar] [CrossRef]
- ATECYR. Acciones en Centros Educativos: Recomendaciones para la Mejora de la Ventilación en los Sistemas de Climatización y Saneamiento. (Actions in Educational Centres: Recommendations for Improving Ventilation in HVAC and Sanitation Systems); Asociación Técnica Española de Climatización y Refrigeración: Madrid, Spain, 2020. [Google Scholar]
- CSIC. Guía para Ventilación en Aulas (Guidelines for Classroom Ventilation); Instituto de Diagnóstico Ambiental y Estudios del Agua, IDAEA-CSIC, Consejo Superior de Investigaciones Científicas: Barcelona, Spain, 2020. [Google Scholar]
- Martinez-Molina, A.; Boarin, P.; Tort-Ausina, I.; Vivancos, J.L. Post-occupancy evaluation of a historic primary school in Spain: Comparing PMV, TSV and PD for teachers’ and pupils’ thermal comfort. Build. Environ. 2017, 117, 248–259. [Google Scholar] [CrossRef]
- Almeida, S.M.; Canha, N.; Silva, A.; do Carmo Freitas, M.; Pegas, P.; Alves, C.; Pio, C.A. Children exposure to atmospheric particles in indoor of Lisbon primary schools. Atmos. Environ. 2011, 45, 7594–7599. [Google Scholar] [CrossRef]
- Chan, W.R.; Li, X.; Singer, B.C.; Pistochini, T.; Vernon, D.; Outcault, S.; Sanguinetti, A.; Modera, M. Ventilation rates in California classrooms: Why many recent HVAC retrofits are not delivering sufficient ventilation. Build. Environ. 2020, 167, 106426. [Google Scholar] [CrossRef]
- Kottek, M.; Grieser, J.; Beck, C.; Rudolf, B.; Rubel, F. World Map of the Köppen-Geiger climate classification updated. Meteorol. Z. 2006, 15, 259–263. [Google Scholar] [CrossRef]
- CTE. Código Técnico de la Edificación, Documento Básico de Ahorro de energía, Sección HE 1; Dirección General de Arquitectura, Vivienda y Suelo: Madrid, Spain, 2017.
- ISO. Ergonomics of the Thermal Environment—Analytical Determination and Interpretation of Thermal Comfort Using Calculation of the PMV and PPD Indices and Local Thermal Comfort Criteria; ISO 7730:2005; International Organization for Standardization: Geneva, Switzerland, 2005. [Google Scholar]
- CEN. Energy Performance of Buildings—Ventilation for Buildings—Part 1: Indoor Environmental Input Parameters for Design and Assessment of Energy Performance of Buildings Addressing Indoor Air Quality, Thermal Environment, Lighting and Acoustics—Module M1-6; CEN Standard EN 16798-1:2020; Comité Européen de Normalisation: Brussels, Belgium, 2020. [Google Scholar]
- CEN. Energy Performance of Buildings—Ventilation for Buildings—Part. 2: Interpretation of the Requirements in EN 16798-1—Indoor Environmental Input Parameters for Design and Assessment of Energy Performance of Buildings Addressing Indoor Air Quality, Thermal Environment, Lighting and Acoustics (Module M1-6); CEN Standard EN 16798-2:2019; Comité Européen de Normalisation: Brussels, Belgium, 2019. [Google Scholar]
- Alfano, F.D.; Wilkens, O.; Palella, B.I.; Pepe, D.; Riccio, G. Fifty Years of PMV Model: Reliability, Implementation and Design of Software for its Calculation. Atmosphere Z. 2020, 11, 49. [Google Scholar] [CrossRef]









| Element | Composition | Thermal Transmittance | U Limits | Thickness |
|---|---|---|---|---|
| U (W/(m2K)) | (W/(m2K)) [49] | (cm) | ||
| Facade | Concrete prefabricated panel (16 cm), air chamber of variable thickness, self-supporting framework with reinforced plasterboard panels (15 + 15 mm) and mineral wool insulation (40 mm). | 0.57 | 1 | 27 |
| Windows | Aluminium frame (Class 2 air permeability, Class 6A watertightness, and wind resistance Class C2). (A5, A6) Floor-to-ceiling windows of laminated safety glass (6 + 6 mm). (A5) Sliding windows—insulated glass units (4 + 12 + 6 mm). | 4.06 | 4.2 | - |
| Roof | Reinforced concrete slab (35–40 cm high) and lightweight concrete blocks. False ceiling: air chamber, mineral wool insulation (20 mm), and plasterboard panel (13 mm). Non-transitable roof covering with precast concrete flooring | 0.37 | 0.65 | 100–120 |
| Parameter | South Class (A5) | North Class (A6) |
|---|---|---|
| Area | 105.30 m2 | 100.15 m2 |
| % of gaps in the envelope | 30.6% | 22.7% |
| Envelope gap characteristics | Class 2 air permeability. U = 4.06 W/m2·K | |
| Occupation Profile | 25 5-year-old children + 1 teacher | |
| Occupation ratio | 4.05 m2/person | 3.85 m2/person |
| Hours of occupation | 9:00–14:00 h | |
| Required IAQ category: “IDA 2” | ||
| HVAC * systems | Mechanical ventilation: Heat recovery (43–50% of efficiency) | |
| Discharge flow: 0.380 m3/s (per classroom) | ||
| 0.0152 m3/s·person | ||
| Variable Refrigerant Volume system (VRV) | ||
| Outdoor Unit: Heat Pump | ||
| Indoor Unit: Duct Fancoil | ||
| CDL 210 Wöhler Data Logger | ||||
|---|---|---|---|---|
| Parameter | Units | Limit Range | Accuracy | Measuring Interval |
| CO2 concentration | Ppm | 0–6000 | 50 (±5%) | 15 min |
| Air temperature (ta) | °C | −10–60 | ±0.6 | |
| Relative humidity (RH) | % | 5–95 | ±3 | |
| HVAC Protocols | |||
|---|---|---|---|
| Manual airing | Mechanical ventilation and heating | Period 1 January 2020 | |
| No manual airing | Mechanical ventilation + heating 7:30 a.m. to 2:00 p.m. | South Class (A5) | |
| No manual airing | North Class (A6) | ||
| Manual airing (cross) 9:00 a.m. to 2:00 p.m. | Mechanical ventilation + heating 7:30 a.m. to 2:00 p.m. | South Class (A5) | Period 2a January 2021 |
| Manual airing (one window) 11:30 a.m. to 2:00 p.m. | No mechanical ventilation, only heating 7:30 a.m. to 2:00 p.m. | North Class (A6) | |
| Manual airing (cross) 7:30 a.m. to 2:00 p.m. | Neither mechanical ventilation nor heating | South Class (A5) | Period 2b December 2020 |
| Manual airing (one window) 7:30 a.m. to 2:00 p.m. | Neither mechanical ventilation nor heating | North Class (A6) | |
| ASHRAE 55:2017 CAT I (PPD * 10%) [20] | EN 16798-1:2020 CAT II (PPD * 10%) [51] | RITE 2007 [38] | ISO 7730:2005 CAT B (PPD 10%) [50] | ||||||
|---|---|---|---|---|---|---|---|---|---|
| Space | Monitoring Periods | Percentage of Weekly Hours in Discomfort | |||||||
| Below Lower Limit | Total | Below Lower Limit | Total | Below Lower Limit | Total | Below Lower Limit | Total | ||
| South(A5) | 1 | 17% | 63% | 13% | 43% | 30% | 93% | 17% | 60% |
| 2a | 32% | 27% | 24% | 20% | 80% | 70% | 48% | 40% | |
| North(A6) | 1 | 23% | 53% | 20% | 30% | 30% | 77% | 23% | 53% |
| 2a | 56% | 47% | 48% | 40% | 100% | 83% | 76% | 63% | |
| CO2 (ppm) | Air Temperature (°C) | Relative Humidity (%) | ||||||||
|---|---|---|---|---|---|---|---|---|---|---|
| Mean | Min. | Max. | Mean | Min. | Max. | Mean | Min. | Max. | ||
| Period 1 (January 2020) | Outdoor | - | - | - | 13 | 7.4 | 18.7 | 85.7 | 83 | 90 |
| South Class (A5) | 1033 | 618 | 1571 | 23.1 | 13.4 | 29.4 | 53.9 | 37.2 | 75.1 | |
| North Class (A6) | 1079 | 530 | 1726 | 21.9 | 14.5 | 26.8 | 57.3 | 41.5 | 73.4 | |
| Period 2a (January 2021) | Outdoor | - | - | - | 7 | 0 | 14 | 80.4 | 75 | 87 |
| South Class (A5) | 604 | 466 | 781 | 19 | 15 | 22 | 36.8 | 31.7 | 43.2 | |
| North Class (A6) | 740 | 514 | 1177 | 18 | 14 | 20 | 40.9 | 37.4 | 47.2 | |
Publisher’s Note: MDPI stays neutral with regard to jurisdictional claims in published maps and institutional affiliations. |
© 2021 by the authors. Licensee MDPI, Basel, Switzerland. This article is an open access article distributed under the terms and conditions of the Creative Commons Attribution (CC BY) license (http://creativecommons.org/licenses/by/4.0/).
Share and Cite
Alonso, A.; Llanos, J.; Escandón, R.; Sendra, J.J. Effects of the COVID-19 Pandemic on Indoor Air Quality and Thermal Comfort of Primary Schools in Winter in a Mediterranean Climate. Sustainability 2021, 13, 2699. https://doi.org/10.3390/su13052699
Alonso A, Llanos J, Escandón R, Sendra JJ. Effects of the COVID-19 Pandemic on Indoor Air Quality and Thermal Comfort of Primary Schools in Winter in a Mediterranean Climate. Sustainability. 2021; 13(5):2699. https://doi.org/10.3390/su13052699
Chicago/Turabian StyleAlonso, Alicia, Jesús Llanos, Rocío Escandón, and Juan J. Sendra. 2021. "Effects of the COVID-19 Pandemic on Indoor Air Quality and Thermal Comfort of Primary Schools in Winter in a Mediterranean Climate" Sustainability 13, no. 5: 2699. https://doi.org/10.3390/su13052699
APA StyleAlonso, A., Llanos, J., Escandón, R., & Sendra, J. J. (2021). Effects of the COVID-19 Pandemic on Indoor Air Quality and Thermal Comfort of Primary Schools in Winter in a Mediterranean Climate. Sustainability, 13(5), 2699. https://doi.org/10.3390/su13052699

