Sustainable Construction: Improving Productivity through Lean Construction
Abstract
:1. Introduction
- Design: Focusing on the treatment of the habitat and functional conditions of the building.
- Engineering: Referring to the preparation of the design for construction.
- Assembly: On-site construction of the building.
2. Materials and Methods
2.1. Analysis of the Current Situation: Industrial versus Traditional Construction
2.1.1. Products and Technologies
- In situ: Made on-site, semi-finished, they require time to dry or set, they also need auxiliary means, formwork, falsework…
- Workshop: custom-built off-site, available unassembled and ready to install on-site.
- Factory: Standardised, ready to be assembled on-site, adjusts to measurements easily.
- Craftsmanship: Labour-intensive on-site assembly, bonding with binders and adhesives.
- Industrial: Labour-simplified assembly, with standards or instructions, dry assembly by screwing, adjusting, skilled and specialised labour.
2.1.2. Technology and Design
- Rational and contemporary design combined with advanced technology: High tech [14].
- Conservative and outdated design with archaic construction: Traditional design.
- Rational design using traditional construction technology.
- Conservative design using advanced technology.
2.2. Stages of the Construction Project
- Design process: this is a step-by-step refinement of specifications where vague needs and wishes are transformed into requirements, and after a variable number of steps, into detailed designs.
- Construction process: Composed of two different types of flows; material process and construction equipment work processes.
- 0. Initiative:
- 0.1. Market Study
- 0.2. Business Case
- 1. Start:
- 1.1. Project Start
- 1.2. Viability Study
- 1.3. Project Definition
- 2. Design:
- 2.1. Conceptual Design
- 2.2. Preliminary Design
- 2.3. Technical Design
- 2.4. Detail Design
- Materials
- Manpower: M.P.
- Auxiliary resources: A.R.
2.3. Design: Definition of the Programme
2.3.1. Functional Analysis
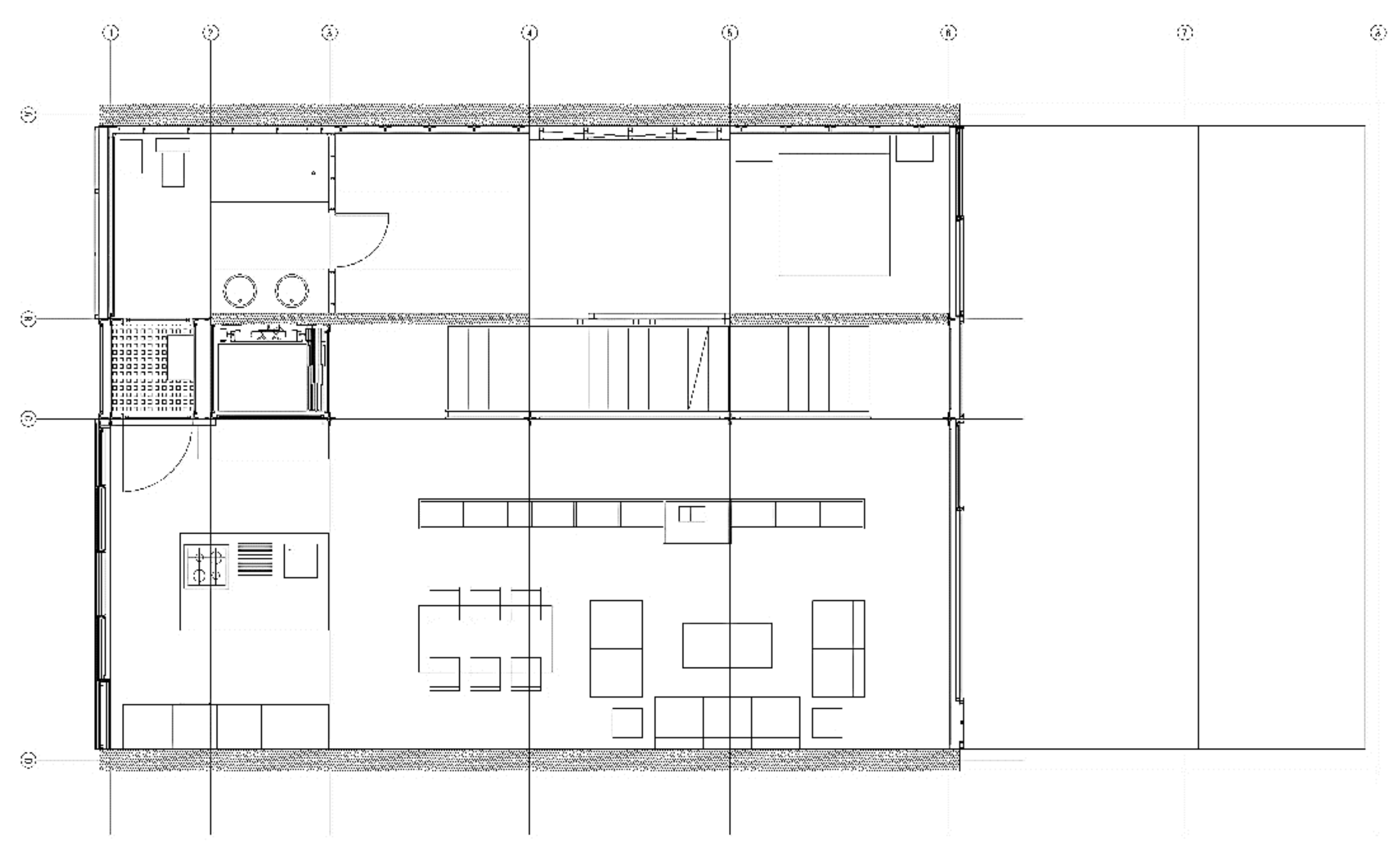
2.3.2. Rational Design: The Architectural Project
- The sphere of the “immediate gesture”: It is made up of the furniture close to each function.
- The “room,” the minimum determined space, configured by each function in a space, delimited by partitions.
- The “flat,” the composition of complete functions of the habitat, configuring the hierarchy of complete functions of a habitat.
Elements of Design
Functionality
- Privacy and community: the private and the common
- Functional spaces
- Sociological changes
Elements Reviewed
- External cladding or skins: façade, roofing
- Supporting plans: floor slabs
- Interior partitions: walls
- Fluid lines: pipelines (electrical, mechanical, gas, etc.)
2.4. Construction Engineering: Price Decomposition Analysis
- Price of materials.
- Manpower price.
- Price of auxiliary resources.
- Coordination times: one task depends on another to continue. Analysing the assembly, looking for solutions of “parallel” tasks and prioritising over “serial” tasks.
- Construction times of semi-finished components that are not finished for their function; looking for “finished” materials that do not require construction times.
- Weather: atmospheric conditions that condition construction (setting, drying); looking for processes and materials, independent of weather conditions.
The Elements of the Material Execution Cost: Current Situation
- Currently, in construction, the cost of the construction elements is involved in a differentiated manner, as explained below with the impact on the implemented component.
- Auxiliary resources: these are correlated by their time of use, which means that the shorter the time, the lower the cost.
- Materials: traditional, obsolete, archaic technology.
- Manpower considerations:Lack of homogeneity.No progress on the technical solution.Construction work is affected by the weather.Improvisation, due to lack of detail in the design.Quantity over quality.
- Auxiliary resources represent two types of units:
- Material considerations:
- Timeframe considerations:
3. Results
- Rational and contemporary design combined with advanced technology: High tech.
- Conservative and outdated design and archaic construction: Traditional design.
- Rational design using a traditional construction technology.
- Conservative design using advanced technology.
- The first two possibilities are coherent and parallel between the design criteria and the technology chosen for their execution; however, the latter two produce an incoherent result.
3.1. Reduction of Architectural Elements
- Elimination of corridors, lobbies, and room separations, resulting in consequent savings:
- -
- Reduction of interior partitions
- -
- Elimination of doors, passages between partitions.
- Compatibility of uses:
- -
- Elimination of intermediate partitions
- -
- Reducing the surface areas dedicated to service areas
- Integration of:
- -
- Structural elements in space divisions: load-bearing walls and bracing planes as implicit partitions.
- -
- Furniture in compartmentalisation with cupboards, shelves, etc.
- Elimination of decorative elements: Skirting boards, ceiling coving, etc.
- Reduction of the cladding of transit spaces: walls and ceilings.
- Elimination of installation aids.
- Elimination of cladding for structural elements (concrete, steel), leaving their exposed qualities.
3.2. Cost Cutting: Resources, Materials and Execution Time
- Materials.
- Manpower.
- Auxiliary resources.
- Materials can also evolve in an increasingly cost-optimised way.
- Break the dependence of the material on manpower, reducing the impact of the former.
- Lower the impact of auxiliary resources.
- More optimised deadlines: overlapping tasks and obtaining shorter deadlines, delays due to waiting times between trades are reduced or eliminated altogether.
- Avoid drying and setting times for hydraulic materials.
3.3. Streamlined Design: Transfer to Implementation (Productivity Improvement)
3.3.1. Decrease the Impact of Manpower on the Materials
- Materials can also evolve in a cost-optimised manner.
- Break the dependence of material on manpower by reducing the impact of the former.
3.3.2. Lower Impact of Auxiliary Resources: Lower Indirect Costs
3.3.3. Shortening the Deadline by Shortened Times
- More optimised lead times: with overlapping tasks and shorter lead times, delays due to waiting times between trades are reduced or eliminated altogether.
- Avoid drying and setting times of hydraulic materials.
- Performance improvement towards lean process technology in construction.
- Decrease the impact of manpower.
- Cost reductions due to elimination/cutting of indirect costs.
- Shortening the time limit for reduced times.
- Decrease the impact of manpower.
- Reduction of costs by eliminating indirect costs: auxiliary resources.
- Shortening of time due to reduced times.
- Decrease the impact of manpower on materials.
- Lower repercussion of auxiliary resources: lower indirect cost.
- Shortening of the timeframe due to reduced times.
4. Discussion
4.1. Coherent Building System
4.2. Economic Parameters
- Break the dependence of the material on manpower, reducing the impact of the former.
- Reducing the effect of auxiliary resources.
- More optimized deadlines, overlapping tasks and obtaining shorter deadlines:
- -
- Delays due to waiting times between trades, which are reduced or eliminated altogether.
- -
- Avoid drying and setting times for hydraulic materials.
- -
- Transferring time from site to “workshop”.
- Simplification of components:
- Habitat revision.
- Reduction of interior partitions.
- Elimination of doors, passages between compartments.
- Reducing dedicated surfaces in service areas: kitchens, offices.
- Structural in the divisions of space: load-bearing walls and bracing planes as implicit partitions.
- 2.
- Simplification of superfluous elements:
- Furniture, in the compartmentalization with cupboards and shelving.
- Reduction of cladding and transit spaces: walls and ceilings and cladding: structural elements: concrete and steel, leaving their qualities visible.
- Exposed installations, elimination of installation aids: chases and skirting boards.
- Reductions of architectural elements, for a design, as a solution of the habitat program.
- Optimization of costs and deadlines in execution:
- Decrease the impact of manpower on materials.
- Lower repercussion of auxiliary means: lower indirect cost.
- Shortening of time due to reduced times.
4.3. 3C System: Compatible Components in Construction
4.4. Lean Construction
- For energy savings: on the construction site, the auxiliary resources are responsible for almost the entire energy consumption. This is discussed in the article with regard to the cost element, that of auxiliary resources.
- On materials, their manufacture (consumption), composition (non-polluting), recycling, proximity (transport savings, etc.) and specifically the focus on the “specialisation” of materials. This is also dealt with under the heading of “cost elements”.
- Cyclical economy: buildings, components and materials must be used for continuous reuse.
- Defects
- Overproduction
- Waiting
- Non-utilized skills/capabilities
- Transportation
- Inventory
- Motion
- Over-processing
- Shell or carcass: structure, foundations, and envelopes.
- Services: installations, ducts, pipelines, and machinery.
- Finishes: flooring, ceilings, walls, and panelling.
- Equipment: furniture and lamps.
5. Conclusions
Author Contributions
Funding
Institutional Review Board Statement
Informed Consent Statement
Acknowledgments
Conflicts of Interest
References
- Resta, B.; Dotti, S.; Gaiardelli, P.; Boffelli, A. Lean Manufacturing and Sustainability: An Integrated View. In Proceedings of the IFIP International Conference on Advances in Production Management Systems, Iguassu Falls, Brazil, 3–7 September 2016; Springer: Berlin/Heidelberg, Germany, 2016; pp. 659–666. [Google Scholar]
- Gao, S.; Low, S.P. The Toyota Way. In Lean Construction Management: The Toyota Way; Gao, S., Low, S.P., Eds.; Springer: Singapore, 2014; pp. 49–100. ISBN 978-981-287-014-8. [Google Scholar]
- Marhani, M.A.; Jaapar, A.; Bari, N.A.A. Lean Construction: Towards Enhancing Sustainable Construction in Malaysia. Procedia—Soc. Behav. Sci. 2012, 68, 87–98. [Google Scholar] [CrossRef] [Green Version]
- Abdelhamid, T. Lean construction: Where are we and how to proceed. Lean Constr. 2004, 1, 24. [Google Scholar]
- Sandvik, C.; Fougner, F. BIM as a Tool for Sustainable Design. Proceedings of 5th fib Congress, Melbourne, Australia, 8 October 2018. [Google Scholar]
- United Nations. Transforming Our World: The 2030 Agenda for Sustainable Development; A/RES/70/1; UN: New York, NY, USA, 2015.
- Bae, J.-W.; Kim, Y.-W. Sustainable Value on Construction Projects and Lean Construction. J. Green Build. 2008, 3, 156–167. [Google Scholar] [CrossRef]
- Goñi, P.M.; Barroso, J.M.G.; Rey, A.R.E. The “Design for Disassembly”, a Lean Methodology. In Proceedings of the 5th European Conference on Energy Efficiency and Sustainability in Architecture and Planning, San Sebastian, Spain, 7–9 July 2014. [Google Scholar] [CrossRef]
- Saieg, P.; Sotelino, E.D.; Nascimento, D.; Caiado, R.G.G. Interactions of Building Information Modeling, Lean and Sustainability on the Architectural, Engineering and Construction Industry: A Systematic Review. J. Clean. Prod. 2018, 174, 788–806. [Google Scholar] [CrossRef]
- Tzortzopoulos, P.; Kagioglou, M.; Koskela, L. Lean Construction: Core Concepts and New Frontiers; Routledge: London, UK, 2020; ISBN 978-0-429-51215-5. [Google Scholar]
- Solaimani, S.; Sedighi, M. Toward a Holistic View on Lean Sustainable Construction: A Literature Review. J. Clean. Prod. 2020, 248, 119213. [Google Scholar] [CrossRef]
- Brookfield, E.; Emmitt, S.; Hill, R.; Scaysbrook, S. The Architectural Technologist’s Role in Linking Lean Design with Lean Construction. In Proceedings of the 12th Annual Conference of the International Group for Lean Construction, Helsingør, Denmark, 3–5 August 2004; p. 7. [Google Scholar]
- Mathaisel, D.F.X. A Lean Architecture for Transforming the Aerospace Maintenance, Repair and Overhaul (MRO) Enterprise. Int. J. Product. Perform. Manag. 2005, 54, 623–644. [Google Scholar] [CrossRef]
- Ogunbiyi, O.; Goulding, J.S.; Oladapo, A. An Empirical Study of the Impact of Lean Construction Techniques on Sustainable Construction in the UK. Constr. Innov. 2014, 14, 88–107. [Google Scholar] [CrossRef]
- Emuze, F.A.; Saurin, T.A. Value and Waste in Lean Construction; Routledge: London, UK, 2015; ISBN 978-1-317-44763-4. [Google Scholar]
- Koskela, L. Application of the New Production Philosophy to Construction; CIFE Technical Report; Stanford University: Stanford, CA, USA, 1992; Volume 72. [Google Scholar]
- Rajadell, M.; Sánchez, J. Lean Manufacturing: La Evidencia de Una Necesidad; Díaz de Santos: Madrid, Spain, 2010. [Google Scholar]
- Corbusier, L.; Eardley, A. The Athens Charter; Grossman Publishers: New York, NY, USA, 1973; ISBN 0-670-13970-X. [Google Scholar]
- Fieber, K.; Mills, J.; Peppa, M.V.; Haynes, I.; Turner, S.; Turner, A.; Douglas, M.; Bryan, P. Cultural heritage through time: A case study at Hadrian’s wall, United Kingdom. ISPRS—Int. Arch. Photogramm. Remote Sens. Spat. Inf. Sci. 2017, 42, 297–302. [Google Scholar] [CrossRef] [Green Version]
- Koolhaas, R.; Obrist, H.U. Project Japan, Metabolism Talks; Taschen: Cologne, Germany, 2011; ISBN 978-3-8365-2508-42019. [Google Scholar]
- Sadler, S. Archigram: Architecture without Architecture; Mit Press: Cambridge, MA, USA, 2005; ISBN 0-262-69322-4. [Google Scholar]
- Garnier, T. An Industrial City; Princeton Architectural Press: New York, NY, USA, 1989; ISBN 0-910413-47-9. [Google Scholar]
- Oechslin, W.; Wang, W. Les Cinq Points d’une Architecture Nouvelle. Assemblage 1987, 4, 83–93. [Google Scholar] [CrossRef]
- Fernández, J.R. La Arquitectura Prefabricada de Rafael de la Hoz en Córdoba: Entre el Detalle Constructivo y la Generación del Proyecto. Universidad de Sevilla, 2016. Available online: https://dialnet.unirioja.es/servlet/tesis?codigo=47825 (accessed on 22 October 2021).
- Radić, J.; Kindij, A.; Mandić Ivanković, A. History of Concrete Application in Development of Concrete and Hybrid Arch Bridges; Chinese-Croatian Joint Colloquium Long Arch Bridges: Brijuni Island, Croatia, 10–14 July 2008; p. 24. [Google Scholar]
- Stanford University and the 1906 Earthquake. Available online: https://quake06.stanford.edu/centennial/gallery/structures/museum/index.html (accessed on 22 October 2021).
- Association pour la mémoire et le rayonnement des travaux d’Eugène Freyssinet (Ed.) Eugène Freyssinet: A Revolution in the Art of Construction; Presses de l’école nationale des ponts et chaussées: Paris, France, 2004; ISBN 978-2-85978-394-5. [Google Scholar]
- Smith, R.E. Prefab Architecture: A Guide to Modular Design and Construction; John Wiley & Sons: Hoboken, NJ, USA, 2010; ISBN 978-0-470-27561-0. [Google Scholar]
- Moles, A.A. Rohmer, Elisabeth Sicología del Espacio; Editorial Ricardo Aguilera: Madrid, Spain, 1972; ISBN 978-84-7005-114-2. [Google Scholar]
- Fernández Alba, A. La Crisis de la Arquitectura Española (1939–1972); E.T.S. Arquitectura (UPM): Madrid, Spain, 1972. [Google Scholar]
- Díaz, H.P.; Rivera, O.G.S.; Guerra, J.A.G. Filosofía Lean Construction para la gestión de proyectos de construcción. Avances Investigacion en Ingeniería 2014, 11, 32–53. [Google Scholar] [CrossRef] [Green Version]
- Kwofie, S.; Pasquire, C. Lean Thinking for Structural Engineers. In Proceedings of the 28th Annual Conference of the International Group for Lean Construction (IGLC), Berkeley, CA, USA, 6–10 July 2020. [Google Scholar]
- Aslam, M.; Gao, Z.; Smith, G. Exploring Factors for Implementing Lean Construction for Rapid Initial Successes in Construction. J. Clean. Prod. 2020, 277, 123295. [Google Scholar] [CrossRef]
- Dehdasht, G.; Ferwati, M.S.; Zin, R.M.; Abidin, N.Z. A Hybrid Approach Using Entropy and TOPSIS to Select Key Drivers for a Successful and Sustainable Lean Construction Implementation. PLoS ONE 2020, 15, e0228746. [Google Scholar] [CrossRef] [PubMed]
- Jamil, A.H.A.; Fathi, M.S. The Integration of Lean Construction and Sustainable Construction: A Stakeholder Perspective in Analyzing Sustainable Lean Construction Strategies in Malaysia. Procedia Comput. Sci. 2016, 100, 634–643. [Google Scholar] [CrossRef] [Green Version]
- Carvalho, B.S.D.; Scheer, S. Lean as an Integrator of Modular Construction. Modul. Offsite Constr. (MOC) Summit Proc. 2019, 149–156. [Google Scholar] [CrossRef] [Green Version]
- Ogunbiyi, O.E. Implementation of the Lean Approach in Sustainable Construction: A Conceptual Framework. Ph.D. Thesis, University of Central Lancashire, Lancashire, UK, 2014. [Google Scholar]
- ISO Comitee ISO 20887:2020 Sustainability in Buildings and Civil Engineering Works—Design for Disassembly and Adaptability—Principles, Requirements and Guidance. Available online: https://www.iso.org/cms/render/live/en/sites/isoorg/contents/data/standard/06/93/69370.html (accessed on 22 October 2021).
- Carvajal-Arango, D.; Bahamón-Jaramillo, S.; Aristizábal-Monsalve, P.; Vásquez-Hernández, A.; Botero, L.F.B. Relationships between Lean and Sustainable Construction: Positive Impacts of Lean Practices over Sustainability during Construction Phase. J. Clean. Prod. 2019, 234, 1322–1337. [Google Scholar] [CrossRef]
- Tafazzoli, M.; Mousavi, E.; Kermanshachi, S. Opportunities and Challenges of Green-Lean: An Integrated System for Sustainable Construction. Sustainability 2020, 12, 4460. [Google Scholar] [CrossRef]
- Bajjou, M.S.; Chafi, A.; Ennadi, A.; El Hammoumi, M. The Practical Relationships between Lean Construction Tools and Sustainable Development: A Literature Review. J. Eng. Sci. Technol. Rev. 2017, 10, 170–177. [Google Scholar] [CrossRef]











Publisher’s Note: MDPI stays neutral with regard to jurisdictional claims in published maps and institutional affiliations. |
© 2021 by the authors. Licensee MDPI, Basel, Switzerland. This article is an open access article distributed under the terms and conditions of the Creative Commons Attribution (CC BY) license (https://creativecommons.org/licenses/by/4.0/).
Share and Cite
Awad, T.; Guardiola, J.; Fraíz, D. Sustainable Construction: Improving Productivity through Lean Construction. Sustainability 2021, 13, 13877. https://doi.org/10.3390/su132413877
Awad T, Guardiola J, Fraíz D. Sustainable Construction: Improving Productivity through Lean Construction. Sustainability. 2021; 13(24):13877. https://doi.org/10.3390/su132413877
Chicago/Turabian StyleAwad, Tamar, Jesús Guardiola, and David Fraíz. 2021. "Sustainable Construction: Improving Productivity through Lean Construction" Sustainability 13, no. 24: 13877. https://doi.org/10.3390/su132413877
APA StyleAwad, T., Guardiola, J., & Fraíz, D. (2021). Sustainable Construction: Improving Productivity through Lean Construction. Sustainability, 13(24), 13877. https://doi.org/10.3390/su132413877

