Environmental Footprint and Economics of a Full-Scale 3D-Printed House
Abstract
:1. Introduction
2. Methodology
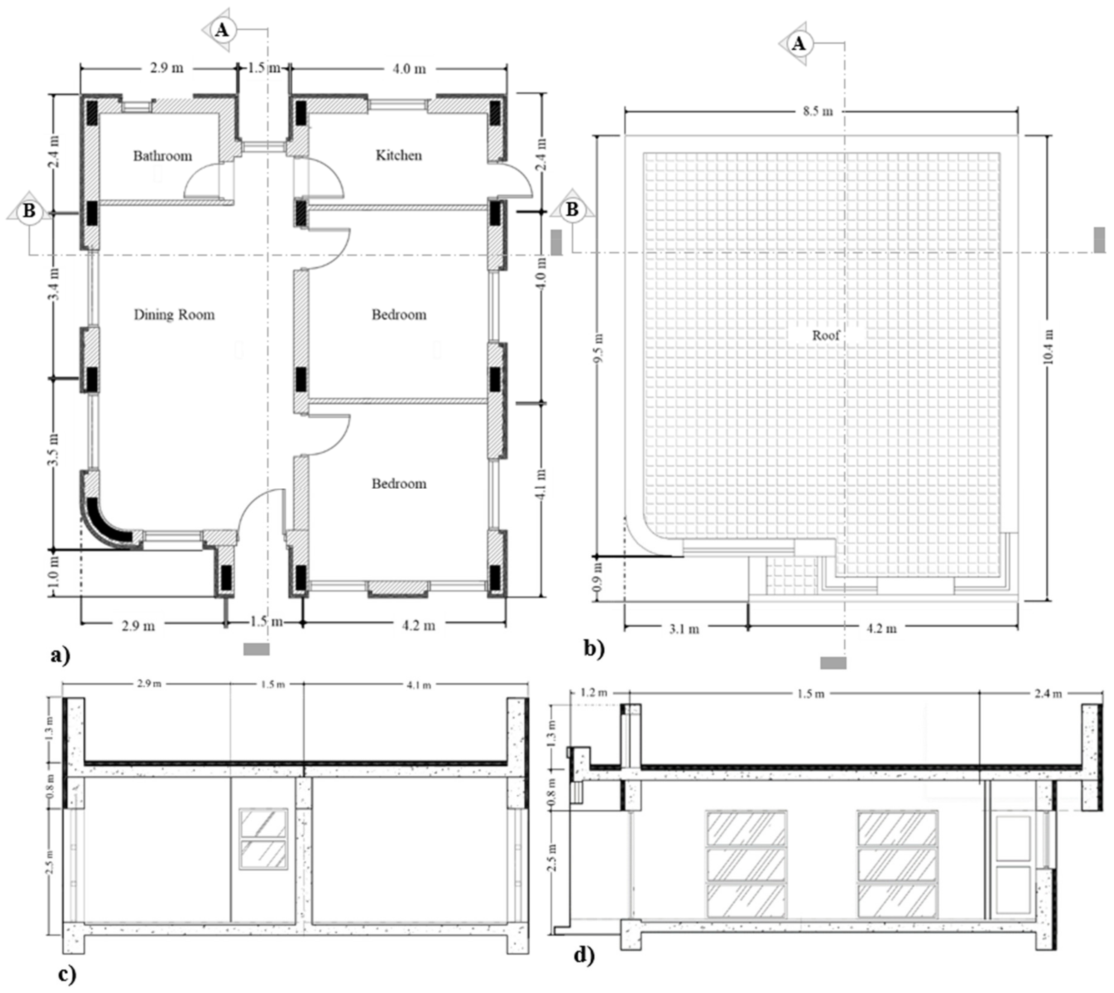
2.1. Structural Systems
2.2. Additive Manufacturing Technology
2.3. Life Cycle Analysis
2.3.1. Goal and Scope Definition
2.3.2. Life Cycle Inventory
2.3.3. Energy Consumption
2.3.4. Life Cycle Impact Assessment
2.4. Life Cycle Costing Analysis
2.5. Eco-Efficiency Analysis
3. Results and Discussion
3.1. Environmental Analysis
3.2. Operational Energy
3.3. Economic Assessment
4. Eco-Efficiency Analysis
5. Sensitivity Analysis
6. Study Limitations
7. Conclusions
Author Contributions
Funding
Conflicts of Interest
Abbreviations
| 3DCP | 3-D Concrete Printing |
| ACI | American Concrete Institute |
| ASCE | American Society of Civil Engineers |
| ASHRAE | American Society of Heating, Refrigerating and Air-Conditioning Engineers |
| BIM | Building information modelling |
| CAD | Computer aided design |
| GWP | Global warming potential |
| EI | Eco-efficiency index |
| GHG | Greenhouse gas |
| HVAC | Heating, ventilation, and air conditioning |
| ISO | International organization for standardization |
| LCA | Life cycle assessment |
| LCC | Life cycle costing analysis |
| LCI | Life cycle inventory |
| LCIA | Life cycle impact analysis |
| PV | Present value |
| STL | STsereo Lithography |
| UAE | United Arab Emirates |
References
- Dixit, M.K. 3-D Printing in Building Construction: A Literature Review of Opportunities and Challenges of Reducing Life Cycle Energy and Carbon of Buildings. IOP Conf. Ser. Earth Environ. Sci. 2019, 290, 012012. [Google Scholar] [CrossRef]
- Agustí-Juan, I.; Habert, G. Environmental Design Guidelines for Digital Fabrication. J. Clean. Prod. 2017, 142, 2780–2791. [Google Scholar] [CrossRef] [Green Version]
- Shehata, M.E.; El-Gohary, K.M. Towards Improving Construction Labor Productivity and Projects’ Performance. Alex. Eng. J. 2011, 50, 321–330. [Google Scholar] [CrossRef] [Green Version]
- Kuzmenko, K.; Gaudilliere, N.; Dirrenberger, J.; Baverel, O. Impact: Design With All Senses; Springer: Cham, Switzerland, 2020. [Google Scholar] [CrossRef]
- Gebler, M.; Schoot Uiterkamp, A.J.M.; Visser, C. A Global Sustainability Perspective on 3D Printing Technologies. Energy Policy 2014, 74, 158–167. [Google Scholar] [CrossRef]
- Saade, M.R.M.; Yahia, A.; Amor, B. How Has LCA Been Applied to 3D Printing? A Systematic Literature Review and Recommendations for Future Studies. J. Clean. Prod. 2020, 244, 118803. [Google Scholar] [CrossRef]
- Wu, P.; Wang, J.; Wang, X. A Critical Review of the Use of 3-D Printing in the Construction Industry. Autom. Constr. 2016, 68, 21–31. [Google Scholar] [CrossRef] [Green Version]
- Kietzmann, J.; Pitt, L.; Berthon, P. Disruptions, Decisions, and Destinations: Enter the Age of 3-D Printing and Additive Manufacturing. Bus. Horiz. 2015, 58, 209–215. [Google Scholar] [CrossRef]
- Feng, L.; Yuhong, L. Study on the Status Quo and Problems of 3D Printed Buildings in China. Glob. J. Hum.-Soc. Sci. 2014, 14, 1–4. [Google Scholar]
- Sinka, M.; Zorica, J.; Bajare, D.; Sahmenko, G.; Korjakins, A. Fast Setting Binders for Application in 3d Printing of Bio-Based Building Materials. Sustainability 2020, 12, 8838. [Google Scholar] [CrossRef]
- Mrazovic, N.; Mocibob, D.; Lepech, M.; Fischer, M. Assessment of Additiveand Conventional Manufacturing: Case Studies Fromthe AEC Industry. In Proceedings of the ISEC 2017-9th International Structural Engineering and Construction Conference, Valencia, Spain, 24–29 July 2017. [Google Scholar] [CrossRef]
- Agustí-Juan, I.; Müller, F.; Hack, N.; Wangler, T.; Habert, G. Potential Benefits of Digital Fabrication for Complex Structures: Environmental Assessment of a Robotically Fabricated Concrete Wall. J. Clean. Prod. 2017, 154, 330–340. [Google Scholar] [CrossRef] [Green Version]
- Van den Heede, P.; De Belie, N. Environmental impact and life cycle assessment (LCA) of traditional and ‘green’ concretes: Literature review and theoretical calculations. Cem. Concr. Compos. 2012, 34, 431–442. [Google Scholar] [CrossRef]
- Agustí-Juan, I.; Habert, G. An Environmental Perspective on Digital Fabrication in Architecture and Construction. In Proceedings of the 21st International Conference on Computer-Aided Architectural Design Research in Asia, Melbourne, Australia, 1 April 2016. [Google Scholar]
- Mohammad, M.; Masad, E.; Al-Ghamdi, S.G. 3D Concrete Printing Sustainability : A Comparative Life Cycle Assessment of Four Construction Method Scenarios. Buildings 2020, 10, 245. [Google Scholar] [CrossRef]
- Han, Y.; Yang, Z.; Ding, T.; Xiao, J. Environmental and Economic Assessment on 3D Printed Buildings with Recycled Concrete. J. Clean. Prod. 2021, 278, 123884. [Google Scholar] [CrossRef]
- Alhumayani, H.; Gomaa, M.; Soebarto, V.; Jabi, W. Environmental Assessment of Large-Scale 3D Printing in Construction: A Comparative Study between Cob and Concrete. J. Clean. Prod. 2020, 270, 122463. [Google Scholar] [CrossRef]
- Tobi, A.L.M.; Omar, S.A.; Yehia, Z.; Al-Ojaili, S.; Hashim, A.; Orhan, O. Cost Viability of 3D Printed House in UK. IOP Conf. Ser. Mater. Sci. Eng. 2018, 319, 012061. [Google Scholar] [CrossRef]
- ACI Committee 318-14. Building Code Requirements for Structural Concrete; American Concrete Institute: Detroit, MI, USA, 2014. [Google Scholar]
- ASCE. ASCE STANDARD Loads for Buildings, Series 7-1; American Society of Civil Engineers: Reston, VA, USA, 2016. [Google Scholar]
- CyBe Construction. (16 December 2020). Meet House. CyBe Construction. Available online: https://cybe.eu/cases/meet-house/ (accessed on 18 June 2020).
- ISO14044. Environmental Management—Life Cycle Assessment—Requirements and Guidelines. Int. J. Life Cycle Assess. 2006, 2006, 652–668. [Google Scholar] [CrossRef]
- ISO 14045. Environmental Management—Ecoefficiency Assessment of Product Systems—Principles, Requirements and Guidelines. 2012. Available online: https://asq.org/quality-press/display-item?item=T921E (accessed on 18 June 2020).
- Pré. Simapro Database Manual. 2020. Available online: https://simapro.com/wp-content/uploads/2020/10/DatabaseManualMethods.pdf (accessed on 18 June 2020).
- Nerella, V.N.; Mechtcherine, V. Studying the Printability of Fresh Concrete for Formwork-Free Concrete Onsite 3D Printing Technology (CONPrint3D). Chapter 16. 3D Concr. Print. Technol. 2019, 333–347. [Google Scholar] [CrossRef]
- Cuéllar-Franca, R.M.; Azapagic, A. Environmental Impacts of the UK Residential Sector: Life Cycle Assessment of Houses. Build. Environ. 2012, 54, 86–99. [Google Scholar] [CrossRef]
- Guardigli, L.; Monari, F.; Bragadin, M.A. Assessing Environmental Impact of Green Buildings through LCA Methods:Acomparison between Reinforced Concrete and Wood Structures in the European Context. Procedia Eng. 2011, 21, 1199–1206. [Google Scholar] [CrossRef] [Green Version]
- Official Journal of the European Union. Directive 2008/98/EC of the european parliament and of the council of 19 November 2008 on Waste and Repealing Certain Directives. Off. J. Eur. Union 2018, 9, 1–59. [Google Scholar]
- Aktacir, M.A.; Büyükalaca, O.; Yilmaz, T. A Case Study for Influence of Building Thermal Insulation on Cooling Load and Air-Conditioning System in the Hot and Humid Regions. Appl. Energy 2010, 87, 599–607. [Google Scholar] [CrossRef]
- Kaszynka, M.; Olczyk, N.; Techman, M.; Skibicki, S.; Zielinski, A.; Filipowicz, K.; Wroblewski, T.; Hoffmann, M. Thermal-Humidity Parameters of 3D Printed Wall. IOP Conf. Ser. Mater. Sci. Eng. 2019, 471, 082018. [Google Scholar] [CrossRef]
- ASTM C168-19. Standard Terminology Relating to Thermal Insulation; ASTM International: West Conshohocken, PA, USA, 2019. [Google Scholar] [CrossRef]
- Yarbrough, D.W. Thermal Insulation for Energy Conservation. In Handbook of Climate Change Mitigation; Springer: New York, NY, USA, 2012; Volume 4, pp. 649–668. [Google Scholar] [CrossRef]
- Ha, J.; Cho, S.; Kim, H.; Song, Y. Energies Annual Energy Consumption Cut-O Ff with Cooling System Design Parameter Changes in Large. Energies 2020, 13, 1–16. [Google Scholar] [CrossRef] [Green Version]
- ASHRAE. Standard Method of Test for the Evaluation of Building Energy Analysis Computer Programs; American Society of Heating, Refrigerating and Air-Conditioning Engineers, Inc.: Atlanta, GA, USA, 2010; Volume 4723, pp. 1–77. [Google Scholar]
- Huijbregts, M.A.J.; Steinmann, Z.J.N.; Elshout, P.M.F.; Stam, G.; Verones, F.; Vieira, M.D.M.; Hollander, A.; Zijp, M.; van Zelm, R. ReCiPe 2016 v1.1. A Harmonized Life Cycle Impact Assessment Method at Midtpoint and Endpoint Level; National Institute for Public Health and the Environment: Bilthoven, The Netherlands, 2017.
- Schultz, T.; Suresh, A. SCS Global Services Report Life Cycle Impact Assessment Methodology for Environmental Paper Network Paper Calculator v4.0. In SCS Global Services Report; Scientific Certification Systems, Inc.: Emeryville, CA, USA, 2018. [Google Scholar]
- Government of Dubai. Dubai Economic Report 2018. Dubai Econ. 2018, 181–184. [Google Scholar]
- Abdallah, M.; Shanableh, A.; Shabib, A.; Adghim, M. Financial Feasibility of Waste to Energy Strategies in the United Arab Emirates. Waste Manag. 2018, 82, 207–219. [Google Scholar] [CrossRef] [PubMed]
- Saling, P.; Kicherer, A.; Dittrich-Krämer, B.; Wittlinger, R.; Zombik, W.; Schmidt, I.; Schrott, W.; Schmidt, S. Eco-Efficiency Analysis by BASF: The Method. Int. J. Life Cycle Assess. 2002, 7, 203–218. [Google Scholar] [CrossRef]
- Huguet Ferran, P.; Heijungs, R.; Vogtländer, J.G. Critical Analysis of Methods for Integrating Economic and Environmental Indicators. Ecol. Econ. 2018, 146, 549–559. [Google Scholar] [CrossRef]
- Koskela, M.; Vehmas, J. Defining Eco-Efficiency: A Case Study on the Finnish Forest Industry. Bus. Strategy Environ. 2012, 21, 546–566. [Google Scholar] [CrossRef]
- Huang, L.; Liu, Y.; Krigsvoll, G.; Johansen, F. Life Cycle Assessment and Life Cycle Cost of University Dormitories in the Southeast China: Case Study of the University Town of Fuzhou. J. Clean. Prod. 2018, 173, 151–159. [Google Scholar] [CrossRef]








| References | Boundary | 3D-Printed Unit | Stages | Impact Assessment Method | Software | Database | Functional Unit | Evaluated Impacts |
|---|---|---|---|---|---|---|---|---|
| [6] | - | Hypothetical house model | Material acquisition; construction Phase | Building Life-cycle Sustainability Impact Assessment Standard | - | Local data; Literature review | 1 m2 wall; 1 m2 roof | Global warming potential; Acidification; Photochemical Pollution; Eutrophication |
| [10] | Cradle to gate | Cube Samples | Production | IPCC 2013 GWP100a | SimaPro 8 | Ecoinvent 3; Previous studies | 1 m3 binder | Global warming potential |
| [15] | Cradle to gate | Wall structure | Production; Construction | TRACI | GaBi 9.2.1.68 | GaBi 2020 | 1 m2 external load-bearing wall | Global warming potential; Acidification potential; Eutrophication potential; Smog formation potential; Fossil fuel depletion |
| [17] | Cradle to Site | One-storey house | Raw materials; Transportation; Construction | ReCiPe Midpoint (H) v1.03 | SimaPro 9.0.0.35 | Ecoinvent v3.1; Literature; Local data | 1 m2 load-bearing wall | global warming; Stratospheric ozone depletion; Fine particulate matter formation; Marine eutrophication; Land use; Mineral resource scarcity; Water use |
| [11] | - | Metallic building components | Raw material processing; Manufacturing; Transportation | - | SimaPro | Local data | 1 steel bracket | Energy consumption; Human health; Water source depletion; Abiotic depletion of fossil fuels |
| [12] | Cradle to gate | Wall Structure | Raw material extraction; Transport; Materials production; Robotic fabrication | Recipe Midpoint (H) v1.12 | SimaPro 8 | Ecoinvent v3.1 | 1 m2 of wall | Climate change; Ozone depletion; Human toxicity; Terrestrial acidification; Freshwater eutrophication; Terrestrial ecotoxicity; Freshwater ecotoxicity; Water depletion; Metal depletion; Fossil depletion |
| [2] | Cradle to grave; Cradle to gate | Wall and roof structures | Materials production; Operation energy | Recipe Midpoint (H) V1.06 | SimaPro 8 | Ecoinvent v2.2 | 1 m2 of wall and roof structures | Climate change; Ozone depletion; Human toxicity; Water depletion; Metal depletion; Fossil depletion |
| Element | Component | Value | |
|---|---|---|---|
| External Wall | Specifications | Length (m) × Height (m) | 37.8 × 2.95 |
| Required concrete (m3) | 6.19 | ||
| Total concrete bricks | 15,478 | ||
| Column | Specifications | Length (cm) × Width (cm) × Height (cm) | 40 × 20 × 295 |
| Total number | 13 | ||
| Reinforcement | Rebar size | 10 | |
| Spacing (cm) | 25 | ||
| Total cross-sectional area (cm2) | 20.5 | ||
| Beam | Specifications | Length (cm) × Width (cm) | 40 × 40 |
| Reinforcement | Rebar size | 22 | |
| Number of rebars | 6 | ||
| Total cross-sectional area (cm2) | 23.22 | ||
| Slab | Specifications | Slab depth (cm) | 0.25 |
| Reinforcement * | Rebar size | 10 | |
| Spacing (cm) | 20 | ||
| Total number of main reinforcements | 78 | ||
| Total number of secondary reinforcements | 95 | ||
| System | Components * | Specifications |
|---|---|---|
| Conventional Concrete ** | Ultimate Compressive Strength (MPa) | 35 |
| Water/cement Ratio | 0.5 | |
| Maximum Aggregate Size (mm) | 20 | |
| Slump (mm) | 20–80 | |
| Mixing Water (kg/m3) | 200 | |
| Density Concrete (kg/m3)Vt | 2355 | |
| 3D Printing Mortar * | Grain Size (mm) | 3 |
| Initial Set (min) | 3 | |
| Final Set (min) | 5 | |
| Layer Thickness (mm) | 40 | |
| Ultimate Compressive Strength (MPa) | 40 | |
| Tensile Strength (N/mm2) | 4 | |
| Flexural Strength (N/mm2) | 6 | |
| Specific Heat Capacity (J/g·K) | 1.1 | |
| Air Void Content (%) | 5.3 |
| Parameter | Value |
|---|---|
| Print Speed (mm/s) | 50–600 |
| Travel speed (km/h) | 3 |
| Precision (mm) | 1:1:1 |
| Layer resolution (mm) | 10–50 |
| Data | 3D Printing * | Conventional Construction ** |
|---|---|---|
| Steel (kg) *** | - | 200 |
| Fly Ash (kg) | 170 | - |
| Micro silica (kg) | 180 | - |
| Superplasticizer (kg) | 10 | - |
| Viscosity modifying admixture | 98,103 | - |
| Cement (kg) | 430 | 300 |
| Coarse Aggregate (kg) | - | 4680 |
| Fine Aggregate (kg) | 645 | 4680 |
| Water (kg) | 180 | 190 |
| Concrete (kg) | - | 340 |
| Wood (m2) | - | 5 |
| Energy Consumption (kWh) | 21 | 68 *** |
| Material Transportation Distance (km) | 100 | 100 |
| Printer Transportation Distance | 6500 | - |
| Impact Category | 3D Printing | Conventional Construction | |
|---|---|---|---|
| Midpoint Indicator | Carcinogenic Toxicity (kg 1,4-DCB) | 4.30 | 168.60 |
| Fossil Resource Scarcity (kg oil eq) | 2.90 | 150.00 | |
| Fresh Water Ecotoxicity (kg 1,4-DCB) | 0.23 | 23.90 | |
| Fresh Water Eutrophication (kg P eq) | 0.002 | 0.20 | |
| Global Warming (kg CO2 eq) | 608.55 | 1154.20 | |
| Ionizing Radiation (kBq Co-60 eq) | 2.58 | 16.50 | |
| Land Occupation (m2a crop eq) | 0.40 | 6.80 | |
| Marine Ecotoxicity (kg 1,4-DCB) | 0.34 | 33.60 | |
| Mineral Resource Scarcity (kg Cu eq) | 0.08 | 30.80 | |
| Non-carcinogenic Toxicity (kg 1,4-DCB) | 11.9 | 675.10 | |
| Ozone Depletion (kg CFC11 eq) | 1.90 × 10−4 | 3.20 × 10−4 | |
| Particulate Matter Formation (kg PM2.5 eq) | 0.02 | 1.70 | |
| Photochemical Oxidant Formation (kg NOx eq) | 0.06 | 2.84 | |
| Terrestrial Acidification (kg SO2 eq) | 2.50 | 4.10 | |
| Water Consumption (m3) | 183.95 | 233.35 | |
| Endpoint Indicator | Human Health (Pt) | 5.30 | 18.63 |
| Ecosystems (Pt) | 0.64 | 1.30 | |
| Resources (Pt) | 0.05 | 0.20 | |
| Parameter | 3D Printing | Conventional System | |||||||||||
|---|---|---|---|---|---|---|---|---|---|---|---|---|---|
| Wall | Floor | Roof | Wall | Floor | Roof | ||||||||
| K (W/m·K) | 0.92 | 0.55 | |||||||||||
| R (m2·K/W) | 0.08 | 0.33 | 0.16 | 0.09 | 0.46 | 0.45 | |||||||
| Thickness (m) | 0.08 | 0.3 | 0.15 | 0.05 | 0.25 | 0.25 | |||||||
| U (W/m2·K) | 3.75 * | 0.27 | 0.10 | 3.6 * | 0.44 | 0.44 | |||||||
| Q (W) | W1 | W2 | W3 | W4 | 201 | 519 | W1 | W2 | W3 | W4 | 858 | 858 | |
| 2189 | 3424 | 3123 | 2783 | 2157 | 3374 | 3077 | 3742 | ||||||
| Σ Q ** (BTU/h) | 49,269 | 52,098 | |||||||||||
| Component | Rate (USD/ton) | 3D Printing | Conventional |
|---|---|---|---|
| Cement | 15 | 45 | 44 |
| Additive | 220 | 8 | - |
| Aggregate | 15 | 10,795 | 10,795 |
| Steel | 500 | - | 1308 |
| Concrete | 60/m3 | - | 25,147 |
| Formwork | 27/m2 | - | 11,933 |
| Present Value (USD) | - | −40,955 | −81,064 |
| Parameter | Reference Value | Sensitivity Analysis Options | |||||
|---|---|---|---|---|---|---|---|
| 3D Printing | Conventional | 3D Printing * | Conventional | ||||
| Mix 1 | Mix 2 | Mix 1 ** | Mix 2 *** | ||||
| Life Cycle Analysis | Steel (kg) *** | - | 200 | - | - | 560 | 61 |
| Fly Ash (kg) | 170 | - | 165 | 165 | - | - | |
| Micro silica (kg) | 180 | - | 83 | 83 | - | - | |
| Superplasticizer (kg) | 10 | - | 8.3 | 8.3 | - | - | |
| Viscosity modifying admixture | 98,103 | - | 98,103 | 98,103 | - | - | |
| Cement (kg) | 430 | 300 | 580 | 300 | 53 | 10 | |
| Coarse Aggregate (kg) | - | 4680 | 1241 | 64 | 1135 | 1280 | |
| Fine Aggregate (kg) | 645 | 4680 | - | - | - | 2 | |
| Water (kg) | 180 | 190 | 232 | 190 | 231 | 822 | |
| Concrete (kg) | - | 340 | - | - | 7 | 140 | |
| Brick (kg) | 197 | - | |||||
| Wood (m2) | - | 5 | - | - | 77 | 25 | |
| Energy Consumption (kWh) **** | 21 | 68 | 2.26 | 2.26 | 11 | 18 | |
| Life Cycle Costing | 3D Printer (USD) | 183,000 | - | - | - | - | |
| Electricity Tariff (USD/kWh) | 0.081 | 0.07–0.101 | |||||
| Sensitivity Analysis Options | Present Value (USD) | |
|---|---|---|
| 3DCP Mix 1 | −32,664 | |
| 3DCP Mix 2 | −32,588 | |
| Conventional Mix 1 | −33,073 | |
| Conventional Mix 2 | −31,451 | |
| 3D Printer | −225,391 | |
| Electricity Tariff | 3DCP | −38,972 to −51,427 |
| Conventional | −75,741 to −87,483 | |
Publisher’s Note: MDPI stays neutral with regard to jurisdictional claims in published maps and institutional affiliations. |
© 2021 by the authors. Licensee MDPI, Basel, Switzerland. This article is an open access article distributed under the terms and conditions of the Creative Commons Attribution (CC BY) license (https://creativecommons.org/licenses/by/4.0/).
Share and Cite
Abdalla, H.; Fattah, K.P.; Abdallah, M.; Tamimi, A.K. Environmental Footprint and Economics of a Full-Scale 3D-Printed House. Sustainability 2021, 13, 11978. https://doi.org/10.3390/su132111978
Abdalla H, Fattah KP, Abdallah M, Tamimi AK. Environmental Footprint and Economics of a Full-Scale 3D-Printed House. Sustainability. 2021; 13(21):11978. https://doi.org/10.3390/su132111978
Chicago/Turabian StyleAbdalla, Hadeer, Kazi Parvez Fattah, Mohamed Abdallah, and Adil K. Tamimi. 2021. "Environmental Footprint and Economics of a Full-Scale 3D-Printed House" Sustainability 13, no. 21: 11978. https://doi.org/10.3390/su132111978
APA StyleAbdalla, H., Fattah, K. P., Abdallah, M., & Tamimi, A. K. (2021). Environmental Footprint and Economics of a Full-Scale 3D-Printed House. Sustainability, 13(21), 11978. https://doi.org/10.3390/su132111978

