Next Article in Journal
Economic and Environmental Sustainability for Aircrafts Service Life
Next Article in Special Issue
Urban Ecosystem-Level Biomimicry and Regenerative Design: Linking Ecosystem Functioning and Urban Built Environments
Previous Article in Journal
Development and Validation of a Roadmap to Assist the Performance-Based Early-Stage Design Process of Adaptive Opaque Facades
 
 
Font Type:
Arial Georgia Verdana
Font Size:
Aa Aa Aa
Line Spacing:
Column Width:
Background:
Article

The Indoor Microclimate of Prefabricated Buildings for Housing: Interaction of Environmental and Construction Measures

by
Darja Kubečková
1,*,
Michal Kraus
2,
Ingrid Juhásová Šenitková
2 and
Magdaléna Vrbová
1
1
Department of Construction, Faculty of Civil Engineering, VSB-Technical University of Ostrava, L. Podéště 1875, 70800 Ostrava, Czech Republic
2
Department of Civil Engineering, Institute of Technology and Business in České Budějovice, Okružní 517/10, 37101 České Budějovice, Czech Republic
*
Author to whom correspondence should be addressed.
Sustainability 2020, 12(23), 10119; https://doi.org/10.3390/su122310119
Submission received: 30 September 2020 / Revised: 28 November 2020 / Accepted: 1 December 2020 / Published: 3 December 2020

Abstract

The current knowledge shows that the interior microclimate of residential buildings that were constructed between 1950 and 1990 using panel construction, not only in the Czech Republic but also in Europe, and were renovated in accordance with applicable legislation related to thermal comfort and energy is significantly affected by gaseous pollutants. At increased concentrations and exposure times, these pollutants negatively affect the interior microclimate and at the same time have a negative effect on the health of users. After the implementation of remediation measures, which are mainly focused on improving the thermal technical parameters of the building envelope, the concentration of CO2 in the indoor environment increases. Carbon dioxide is one of the most important active factors and in terms of the quality of the interior microclimate, it is considered a reliable indicator of whether the interior microclimate can be considered a healthy and favorable environment. It is thus clear that the set and de facto systematized measures in the renovation of the housing stock from the second half of the 20th century has led to energy savings on the one hand, but on the other hand, this has contributed to the hygienic damage of housing units and an unhealthy interior microclimate. The paper aims to define the interaction of interdisciplinary contexts that have led to an increase in the indoor air quality (IAQ) of renovated residential panel buildings.

1. Introduction

The indoor environment of buildings and indoor air quality (IAQ) is one of the basic criteria for evaluating the quality of a building. According to the U.S. Environmental Protection Agency (EPA, Washington, 2013), indoor air can be up to 5 times more polluted than outdoor air [1]. The result of the development of building materials, technologies, heating, ventilation, and air conditioning (HVAC), and especially, the energy requirements for buildings, and finally, the behavior of building users, often deteriorates the quality of the buildings’ indoor environment with all the negative consequences for human health and performance. It is known that the microclimate in residential buildings consists of the building material used for building structures, pollutants that penetrate from the exterior into the indoor environment, the layout of housing units, interior equipment, and also the presence of people living indoors. The indoor environment quality (IEQ) is a multidisciplinary scientific area involving a number of factors such as indoor air quality (IAQ), lighting, thermal comfort, acoustics comfort, ergonomics, and many related factors [2,3]. Indoor air quality (IAQ) is defined by the presence of pollutants (chemical, biological, or physical) and thermal-humidity conditions in the indoor environment that may negatively affect the health, comfort, and performance of building occupants [4,5].
The quality of the interior microclimate of residential buildings is influenced by the trend set after 2010, which consists of the constructing and operation of more energy-efficient buildings, and also—from 1 January 2020 on—constructing new buildings with almost zero-energy consumption. This requirement arises from the implementation of energy law and the EU concept into the legislation of the EU member states [6]. The nearly zero-energy building standard was primarily set out in Directive 2010/31/EU of the European Parliament and the Council on the energy performance of buildings (recast EPBD II; Energy Performance of Building Directive) [7], which was updated in May 2018 (2018/844/EU [8]). The directive defines a nearly zero-energy building as “a building that has a very high energy performance. The nearly zero or very low amount of energy required should be covered to a very significant extent by energy from renewable sources, including energy from renewable sources produced on-site or nearby”. This requirement applies “adequately” to buildings that are intended for renovation and reconstruction, while no decree or directive further defines what the adequacy of reconstruction and renovation measures is. In general, “proportionality” can be seen in the investment costs of renovation, where reconstruction and renovation should be economical and efficient [9] and should extend the lifetime of buildings. In common practice, in the renovation of residential buildings, we encounter mainly measures where attention is paid at the same time to reducing heat loss through transmission, improving the value of the thermal transmittance UN (in W/(m2K)) of the building envelope, and replacing windows. Perimeter walls of residential buildings are equipped with the contact thermal insulation system ETICS (external thermal insulation composite system) [10] when the thickness of the insulation—for example, in the case of panel housing construction from the second half of the 20th century (between 1950 and 1985) in former Czechoslovakia—often reaches up to 200 mm according to the valid legislation. Together with replacing windows, the building envelope after the renovation creates a compact unit, which prevents heat leakage on the one hand, but on the other hand, the building loses natural microventilation and air permeability [11]. In the cases where no recuperation is carried out within the renovation process, or if other construction activities are not carried out, the interior microclimate of residential buildings deteriorates significantly. The countries in Eastern Europe, such as Slovakia, Bulgaria, Hungry, and Serbia, have similar housing stock coming from the Soviet era [12].
This paper builds on a number of studies on previously performed measurements of carbon dioxide in the interiors of buildings [13,14,15,16]. Carbon dioxide (CO2) is one of the biologically active pollutants that originates in occupants’ respiration [17]. The combustion of solid fuels is also a source of carbon dioxide and water vapor. With the increasing concentration of carbon dioxide, the amount of water vapor in the air and thus the relative humidity of the air increases as well. The number of people present in a room, their activities, the size of the room, and insufficient ventilation are the main reasons for the increase in the concentration of carbon dioxide. With increasing airtightness, the problem of increasing CO2 concentration becomes more serious. The study in [18] analyzed the relationship between CO2 concentration, user health, and sick building syndrome. Sick building syndrome (SBS) can be defined as a group of relatively serious illnesses and health problems that people may have because of living in closed rooms for a long time (see Appendix A for the problems caused by the syndrome), [19,20]. Human physiology and its activity in the indoor environment of buildings are among the dominant components that worsen the quality of the indoor environment, increasing CO2 concentration. It is thus clear that all the laws of the building’s environmental system must be respected in the renovation design.

1.1. Development of Standard Requirements and Environmental Aspects

Thermal engineering and energy are an integral part of the architectural and structural design and operation of new or renovated buildings. The development of standard requirements in the Czech Republic has changed significantly since 1960 (Figure 1). Stricter requirements have naturally led to the need to improve the condition of the perimeter walls of panel construction, and the application of the ETICS composite has been a very good technology that meets the set standard requirements in terms of appropriate thickness. However, with the increasing thickness of the ETICS composite, we are increasingly encountering the phenomenon of biodegradation of the facade. It is clear from the well-known building-physical contexts that less heat escapes from renovated apartment buildings through the composite perimeter wall, but less heat escapes through the outer surface of the façade, and the surface becomes colder (Figure 2). Cold surfaces create condensation over a longer period time. This creates a favorable microclimate for the growth of lichens, mosses, and algae because all microorganisms need moisture for their life [11,21]. Condensation in structural plaster structure creates a favorable microclimate for the settlement and growth of microorganisms, which subsequently spread over the entire area or locally. (Figure 3). The biological factors/elements acting on the perimeter cladding of buildings in the form of algae, fungi, and lichens thus negatively affect the aesthetic appearance perception of the building as a whole (Figure 4).
Figure 2 shows the relationship between thermal insulation thickness and facade surface temperature under standard model conditions θe = −15 °C, θi = 21 °C. The facade surface temperature before the application of additional thermal insulation is θse(0) = −13.0 °C. After the application of thermal insulation with a thickness of only 20 mm, there is a significant drop in the temperature by 0.7 °C. After applying ETICS insulation with a thickness of 200 mm, the temperature decreases to θse(200) = −14.7 °C, which is a difference of 1.7 °C [22].
Thus, the growing problem with green facades (Figure 3) is due to the combination of natural influences, poor quality materials, insufficient thickness of thermal insulation (see Appendix B for ETICS thickness issues), and nonprofessional implementation.

1.2. Effects of the Revitalization of the Building Envelope on Indoor Environment Quality

Increasing energy prices and the threat of resource depletion have led to savings, especially in heating sources. This situation was reflected significantly in the Czech Republic after the economic and political changes that occurred in 1989, and its influence continues escalating. A frequently observed and proven problem of these revitalized prefabricated houses is the sealing of natural ventilation slots and the replacement of original windows with new and very tight windows. Due to insufficient ventilation, there is a risk of harmful substances and the deterioration of the quality of the indoor environment. Common pollutants in building interiors include water vapor, carbon dioxide, carbon monoxide, nitrogen oxides, and volatile organic compounds (VOCs) [24,25,26,27] (see Appendix C for more on VOCs). In general, the tighter the building envelope, the higher the concentrations of pollutants measured.
The concentration of carbon dioxide in the interior is a good indicator of the degree of pollution in the indoor environment. CO2 concentration is expressed in ppm (1 ppm = 0.0001% by volume). The concentration of CO2 in the outdoor environment in the Czech Republic is about 400 ppm (the value can be even higher in urban areas, e.g., in Prague, the values are 430–470 ppm). The metabolic production of CO2 is defined as a function of a person’s height, weight, and physical activity. According to this function, the production is about 4–26 L of CO2 per hour.
At the time of the construction of such apartment buildings and houses, no demands were placed on windows and doors (unlike today), and fresh air permanently penetrated the interior through window joints and leaks around the windows. In this natural way, a sufficient supply of fresh air to the interior was ensured. This method of ventilation, along with adequate ventilation of the windows, is called natural ventilation. Natural ventilation requires a certain degree of self-discipline and system from building occupants. If a building is not sufficiently ventilated, the humidity in the apartment increases, and mold is formed (Figure 5) [28,29,30,31,32].
The issue of prefabricated buildings is still relevant after 2010. The implementation of legislative regulations plays an important role in the field of energy-saving and heat protection into the legal frame of the Czech Republic. This applies in particular to the implementation of the European Directive EPBD II (Energy Performance of Building Directive II.). The implementation of the directive into the legislation of the Czech Republic is a process that leads to an increase in the quality of buildings, including prefabricated residential buildings, and the improvement of their technical equipment. The European Union’s objectives therefore include not only reducing the energy consumption of buildings as a contribution to the quality of the environment, but also reducing air pollutants in the process of energy production for heating (especially CO2) and promoting renewable energy sources. High-quality remediation interventions in the application of additional contact insulation with ETICS could reduce heat loss in buildings built with panel technology in the field of thermal engineering and energy. In connection with the current state of panel housing construction, faults and defects of the ETICS can be monitored after the building envelope has been insulated. These defects occur to a fair extent in all basic and modified systems. The evaluation of prefabricated apartment buildings has been carried out continuously by the authors since 2000. As mentioned, the monitoring in the first phase focused on the issue of defects and failures of perimeter cladding related to thermal engineering and energy performance. After 2010, the defects and failures in the area of biodegradation of perimeter cladding with ETICS and the deterioration of the quality of the indoor microclimate were observed. Monitoring was performed in connection with the quality of the indoor environment, in particular high CO2 concentrations, unless a forced ventilation regime is provided. The monitoring of prefabricated houses takes place in the Ostrava-Karviná region, in the cities of Ostrava and Havířov (Czech Republic).
The unifying goal of the research work is to use a representative example that is based on the long-term monitoring of panel residential buildings to show both the need for the interaction of environmental issues and the behavior of building structures in the design and operation of reconstructed buildings. Ensuring a lower energy intensity of panel residential buildings, on the one hand, ensures an economically competitive construction, but on the other hand, it brings a number of specific problems which, without taking into account all contexts, can lead to sick building syndrome and thus contribute to a deteriorating quality of life in residential buildings. The task of reconstruction work of panel residential buildings is not only compliant with legislative and standard requirements in the field of energy consumption but also with a new dimension of construction activities related to construction, architectural, environmental, sociological, and economic requirements.
In the context of the monitored issues, the research question is directed towards whether in the fulfillment of the current energy requirements, the quality of the building envelope exterior in the entire life cycle of the buildings compares with the indoor air quality of prefabricated apartment buildings. The aim of the paper is to demonstrate the deterioration of indoor air quality caused by the revitalization of the building envelope that leads to a reduction in energy consumption in accordance with the requirements of the European Union. Concentrations of carbon dioxide, dust particles, and volatile organic compounds are monitored in typical flats of panel prefabricated buildings.

2. Materials and Methods

The interior microclimate of residential buildings and environmental contexts can be documented on an example of an apartment building that was built in the 1970s. The apartment building is heated by a central source of district heating and there is natural ventilation. Ventilation is conducted only in hygiene rooms (bathroom and toilet). The perimeter cladding based on gas silicate was provided with ETICS in the thickness of 80 mm. In efforts to update the building, the wooden windows were replaced by new plastic windows with double glazing insulation. The roof cladding was also renovated. The insulation thickness of 80 mm was sufficient for the time when the renovation was carried out, that is, in 2005, and in terms of the requirements at that time, the thickness was satisfactory.
The monitored prefabricated buildings are a part of the construction technical survey (TS) that has been carried out by a team of authors since 2000. This monitoring and evaluation has been ongoing until now. Panel residential buildings located in Ostrava and Havířov were evaluated (an overview of the monitored houses is given in Appendix D, Table A2, Table A3 and Table A4). In the first phase of the TS, the condition of the original perimeter cladding was evaluated in terms of thermal properties and then after insulation with ETICS. After 2010, the TS focused on the issue of the biodegradation of ETICS (as a new failure of perimeter cladding) and on the deterioration of the quality of the internal microclimate, after the insulation with ETICS (Appendix D, Figure A1). An example of a case study is representative of this, based on the typological principles of prefabricated residential buildings. This corresponds to the cubature of the bedroom (Appendix D, Figure A2), which can also be adequately related to other monitored structural systems.
Measurements in terms of CO2 concentration were performed during the heating season for ten nights. The meters for measuring air quality parameters were placed in the apartment unit bedroom (40 m3), where a CO2 transmitter was placed. The transmitter recorded data at regular five-minute intervals, and the times 00:00, 01:30, and 05:00 were selected to determine the degree of CO2 concentration while simulating variant conditions of bedroom occupancy and ventilation mode.
The monitored physical quantities included indoor air temperature (°C) and indoor relative humidity (RH in %) with the simultaneous monitoring of CO2 concentration (ppm), PM10 particulate matter concentration (µg/m3), and outdoor air temperature (°C). The physical condition of the users was defined by weight (kg) and height (cm). Variant conditions of bedroom occupancy and method of ventilation and heating are as follows:
  • 1 person, weight: 77 kg, height: 175 cm, window microventilation closed;
  • 1 person, weight: 77 kg, height: 175 cm, window microventilation open;
  • 2 persons, weight: 77 kg, height: 175 cm, weight: 110 kg, height: 180 cm, microventilation closed;
  • 2 persons, weight: 77 kg, height: 175 cm, weight: 110 kg, height: 180 cm, microventilation open.
In the second part of the experiment, attention was paid to dust particles. The concentrations of indoor particles are strongly influenced by climate conditions. On the basis of our previous experimental measurements, it was found that physical factors of the indoor environment (temperature, moisture, air change, air movement, particles deposition, static electricity, and indoor light ions) and the performance of building structures (roughness and porosity of the building material surfaces, and the volume of the room) have a determining influence on the appearance of particulate matter. The measurements were provided for a thoracic fraction of particulate matter expressed as PM10 mass concentration. The mass concentration was obtained after the continuous sampling and following laboratory assessments.
The indoor particles observation was estimated according to the methodology of measuring for a PM10 fraction of suspended particulate matter (CSN EN ISO 16000-1: 2007 Indoor air—Part 1: General aspects of sampling strategy). The indoor monitoring of particulate matter PM10 was carried out with a volumetric particle and pollen sampler, the VPPS 2000 Lanzioni (developed by Lanzioni Spa, Bologna, Italy), with an air flow from 5 to 12 L per minute, located at the center of the monitored room in height 105 cm above the floor (breathing zone for sitting person). The sampling of the indoor air was performed continuously over a 24 h period at an air flow of 600 L per hour. Inorganic analytes were collected on a nitrocellulose membrane filter, Synpor (Pragochem, Czech Republic), with a diameter of 35 mm and a pore size of 0.83 µm. Before sampling, the nitrocellulose membrane filters were kept under constant air temperature and at 50% relative humidity in desiccators for at least 24 h in the laboratory chamber. Then, the filters were weighed. After sampling, the filters were kept under the same conditions for 24 h in other desiccators, and the weight of the filter was measured again. The particular mass concentration was determined by the gravimetric method on the basis of the filter weight increase (with a tolerance of ±0.00001 g).
The concentration of total volatile organic compounds (TVOC) expressed as the concentration of toluene was measured with ppbRAE 3000, which is a photoionization detector (PID) with a UV lamp. This device has a measuring range of 1 ppb (parts per billion) to 10,000 ppm and a measurement accuracy ±3%. A three-second response time allows for real-time monitoring with this instrument. Concerning energy savings, the case study shows that the relationship between the indoor air quality and the quality of the residents’ life in prefabricated apartment buildings is conditioned by the quality of work performed in relation to the thickness of the ETICS. It is necessary to take into account all other aspects such as the quality of windows with controlled microventilation, the ensuring of controlled ventilation, etc.

3. Results

The measured values according to the set environment simulations are given in Table 1. Table 2 takes into account the parameters of the external environment.
The results of experimental measurements on indoor air quality and simulations of room occupancy and ventilation and the interior heating regime in winter indicate the following:
  • A higher concentration of CO2 using a bedroom at night (from 0:00 to 5:00) when occupied by 2 people of an average weight of 93.5 kg and an average height of 177.5 cm, when the microventilation of the window is closed and the temperature in the interior is set to 21.0 °C, show that the condition can be considered hygienically unsuitable from 01:30 until the morning hours; the CO2 concentration exceeding above 1500 ppm already occurs at 01:30, and at 05:00 the CO2 concentration exceeds 2000 ppm.
  • An acceptable condition that is not hygienically harmful is the condition when the room is occupied by one person weighing 77 kg at 175 cm high, when the window microventilation is closed or open, and the interior temperature is set to 21.0 °C.
  • From the measured values it is evident that with the microventilation of the window opened, it is not possible to ensure a constant indoor temperature ti = 21 °C at night when the heating head is set to ti = 21°C; the temperature ti = 21 °C can be ensured by setting the heating head to ti = 23–24 °C, at which point the CO2 concentration can then be considered adequate but at the expense of heat leakage.
  • The CO2 concentration exceeds the limits of 1500 (ppm) from 05:00 when the bedroom is occupied by 1 person weighing 77 kg. When the bedroom is occupied by 2 people weighing 77 and 110 kg, the CO2 concentration exceeding 1500 ppm occurs already at 01:30 am, and at 05:00 the CO2 concentration exceeds 2000 ppm.
Figure 6 illustrates the CO2 concentration (ppm) depending on the type of ventilation.
Exponential trends reflect the level of CO2 concentration for open and closed microventilation. Microventilation (sometimes referred to as slotted ventilation) is the unsealing of the window, balcony, or terrace door based on creating a gap between the sash and the frame. The width of the gap is between 3 and 6 mm. The trends show that microventilation has a positive impact on the quality of the indoor environment in terms of CO2 concentration. However, microventilation presents a number of problems. Due to insufficient air exchange by joint ventilation (microventilation), windows are no longer standardly equipped with joints. Joint ventilation does not provide the necessary air exchange in the summer months, in that there are no temperature and pressure differences. In the winter months, its use is even inappropriate. Warm air from the room when using microventilation will condense in the functional joint and may cause damage to the window structure.
The CO2 concentration of 1500 ppm can be considered as a limit value in terms of negative impact on human health, and the CO2 concentration exceeding 2000 ppm is harmful to human health. This concentration creates a hygienically harmful environment in terms of the interior microclimate. From the measured data during an eight-hour sleep in a bedroom of 40 m3, it can be seen that two people in the night sleep mode stay approximately for 50% of the time in a hygienically defective interior microclimate (Table 3).
The indoor particle concentration measurements in relation to relative air humidity were performed in the range of 35–70% for the global air temperature between 22 and 24 °C (mean value of global air temperature being at 23.2 °C). A linear dependence between the indoor particles concentrations and the relative air humidity is shown in Figure 7.
From the measured results of the particles concentrations, the following can be seen: A PM10 concentration mean value of 38.8 µg/m3 was achieved by a relative air humidity mean value of 37.8%; a PM10 concentration mean value of 29.7 µg/m3 was achieved by a relative air humidity mean value of 47.6%; a PM10 concentration of 22.2 µg/m3 was achieved by a relative air humidity mean value of 56.9%; and a PM10 concentration mean value of 11.1 µg/m3 was achieved by a relative air humidity mean value of 67.8%.
From the results, the decreasing trend of the values for PM10 concentration is evident. The highest value for PM10 concentration (42.3 µg/m3) was achieved by a value of 35.8% for relative air humidity and the lowest (7.4 µg/m3) by a value of 70.1% for relative humidity. The difference between the highest and the lowest concentration values was 34.9 μg/m3. The decrease of relative humidity by about 10% expects a 10 µg/m3 PM10 concentration decrease in the case of the abovementioned determined conditions. The results of the experimental measurements show that the hydrothermal microclimate of the indoor environment has a significant impact on the concentration of dust particles. The lower the relative humidity of the indoor air, the higher the PM10 concentration is. The correlation can be expressed by a linear equation (y = −0.8345x + 68.756) with a reliability coefficient of 97.01%.
A total volatile organic compound concentration limit of <120 ppb was set as a healthy environment reference and a threshold over 1200 ppb for risk environment. These considerations are a general rule, but they are very variable depending on the type of VOC compound present in the air. The indoor average TVOC concentration was below the 1200 ppb threshold with varied distribution. The 95th percentile values were 678 ppb (A) and 429 ppb (B) with no regular behavior patterns. The indoor concentrations are higher in winter than in summer because of the fact that more frequent ventilation contributes to greater dilution (Table 4).

4. Discussion

With the standard technological procedures of thermal insulation in prefabricated residential buildings (i.e., with the application of the ETICS contact thermal insulation system and window replacement) implemented in the second half of the 20th century in order to improve the thermal and energy parameters in the winter, the relative humidity of the interior increases, and the CO2 concentration often rises above the values of 2500 ppm. Microventilation in the night sleep mode at an interior temperature of 21 °C does not ensure air exchange for two people in bedrooms with a volume of 40 m3; on the contrary, it cools down the interior. In areas where there is a higher concentration of airborne dust, there may be situations in which spores diffuse into the indoor environment, either from the air or the biodegraded facades of apartment buildings. Thus, paradoxically, the remediation measures of apartment buildings can contribute to the hygienic defects of the rooms and create an interaction of connections that need to be kept in mind when carrying out remediation measures (Figure 8).
Renovation design of prefabricated residential buildings at the stage of project documentation should take into account all contexts that are related to the improvement of the thermal, technical, and energy parameters of residential buildings. Taking into account the aspect of user comfort is in the interest of users. Owners of refurbished houses should be made aware of the fact that without further technical measures (such as recuperation), they may be exposed to CO2 concentrations ranging from borderline to above the limit, especially in winter.
According to the WHO, volatile organic compounds in the form of pollutants, including CO2, which occur in the indoor environment of buildings, cause sick building syndrome (SBS). For example, the WHO report in 1984 showed that in the United States and European countries, over 30% of the population suffers from sick building syndrome. In the 2002 report, the WHO already noted a higher number of people with disabilities, i.e., up to 60%; after 2014, the value rose to 85% [34].
Around 1,165,000 housing units have been built in the Czech Republic since 1955, mainly using panel construction [35]. The process of panel housing construction was not stopped in former Czechoslovakia. This was due to the time that the then socialist state was going through. In postwar Czechoslovakia decimated by World War II, apartments and the related infrastructure needed to be built quickly. At that time, in terms of the speed of construction, panel construction was the most suitable one. The prefabrication of building components developed intensively in former Czechoslovakia since 1948. The trend in the production of prefabricated components was set at more than 4,600,000 m3 since 1970; after 1980, prefabrication was used in 91% of buildings for housing and civic amenities in the city (Appendix D, Table A1). After that, there was a gradual decline, and the end of the massive production of prefabrication was recorded in 1989 when the Velvet Revolution took place [35]. The construction of such buildings is closely related to a high share of CO2 generation in the form of embodied emissions. The reason for this is a high consumption of concrete, which is highly energy intensive [36]. The current construction industry aims to reduce the consumption of high energy-intensive materials to a minimum and to expand the share of renewable and recycled materials. Appropriate materials and technologies can significantly reduce the environmental and energy impact of building operation and maintenance of the environment. In addition to reducing carbon dioxide emissions, a reduction of operating costs can also be achieved [37].
The rehabilitation of prefabricated apartment buildings from the second half of the 20th century must be understood as positive and necessary because this leads to the extension of the lifetime of prefabricated residential buildings by another 30 years at least. If, in the second half of the 20th century, prefabricated apartment buildings were expected to last 50 years, then it follows that after 2010, the demolition of these houses will have to begin. The idea that the housing estate will be demolished is completely unrealistic, whether from a sociological or economic point of view. The standardized housing construction in former Czechoslovakia has led to the utilization of entire housing estates [35]. The fact is that from the point of view of the Czech Republic, the current housing estates are considered as marginalized; on the contrary, housing estates are home for many inhabitants.

5. Conclusions

The current situation shows that the trend in the field of civil engineering and architecture set after 2000 is mainly aimed at prioritizing the energy efficiency of buildings. The indoor air quality and comfort of users is one of the fundamental pillars of sustainable construction. This set trend with regard to the quality of the interior microclimate of buildings is taken into account especially in the case of new constructions; when designing a building, we respect all constructional, physical, architectural, and structural contexts, including the environmental context, and the building is assessed comprehensively.
In the case of residential buildings that were built in the second half of the 20th century, especially using panel construction, measures in the form of ETICS application lead to a more energy-efficient condition in accordance with the applicable legislation. Without taking into account the connection with the ventilation regime and other environmental contexts, however, these measures create a qualitatively worse interior microclimate and a hygienically harmful indoor environment. Users and owners of residential buildings prefer investments only in insulation. The issue of ventilation is rather marginalized. It is, therefore, necessary to re-evaluate this situation and set measures that allow the renovations to be conceived comprehensively, and the energy efficiency of the building can be carried out in connection with ventilation to ensure the supply of a sufficient amount of fresh air. User instructions that were given as “the user ensures proper ventilation of the apartment” are insufficient and will not solve the problem of ventilation.
Panel residential buildings realized in the second half of the last century in the Ostrava-Karviná region and the whole Czech Republic cannot be considered as a specific and unique phenomenon of the Czech Republic. The trend of this type of construction was reflected in all European countries. Prefabricated residential buildings realized in the second half of the last century were evaluated negatively after 1989, mainly due to the monotony of prefabricated construction, which was caused by volume and the elemental utilization of entire buildings and practically entire prefabricated housing estates. These points are elaborated in the following:
European countries had to deal with similar housing problems, especially after 2nd World War. The identical and different features of the housing policy of European countries, including their dynamics, are evident from a historical point of view: the development of housing policy in many European countries after 1945 shows that in the early 1970s, during the ‘golden era’ of housing policy, which had to solve absolutely fundamental problems, namely the elimination of post-war housing shortages, the renewal of housing stock, including raising housing standards, and at the same time act as a tool to stimulate economic development. After this period, the end of which is not completely uniform in European countries, i.e. since the 1970s, there is a more significant differentiation of individual countries’ approach to housing; countries began to place more emphasis on their traditions and economic possibilities and began to address partial problems concerning only a part of the population, a certain segment of the housing market, etc., which have their own specific features in each country; the reduction of the role of the state and the strengthening of market principles, which requires greater consideration of the specific local situation, also contributed to greater differentiation between the housing policies of individual countries [38].
It is clear from the integration process of the member states of the European Union that the influences of the European Union on the sphere of housing are constantly increasing. These include strengthening the influences, among others, in the rules for awarding public contracts in housing construction, ensuring the impact of investment activities on the environment, strengthening the influence in the field of regulation of construction products and materials, housing financing, property relations, the unification of processes on housing policy, application of the principles of sustainable construction, etc. The implementation of legislative regulations in the field of energy-saving and heat protection into the legal conditions of the member states plays a major role in the area of housing construction.
Within the European Commission, a number of organizations and associations deal with the issue of housing. It is, for example, the European Network for Housing Research (ENHR) that has a number of commissions related to this issue, such as the Commission for Rehabilitation, Modernization and Maintenance of Housing, the Commission for Social Housing, the Commission for Urban Planning, and others. In Europe, the organization CECODHAS (The European Liaison Committee for Social Housing) also focuses on the issue of housing in Europe, and the organization includes the solution of energy issues. Other expert working groups include, for example, the HAS (Housing Studies Association) and the EURA (European Urban Research Association); the issues of housing, energy, and microclimate are addressed at a number of university workplaces, such as TU Delft, Technical University of Vienna, and others.
It is clear from the results of the activities and work of expert commissions that the integration character in housing policy within the member states of the European Union has a long-term character, especially due to the diversity of member states’ housing policies, different concepts of rental housing, social, economic level of member states, etc.
The views and currents of opinion on panel housing construction will be different. In the developed economies of the EU member states, housing construction in panel technologies is intended more for socially weaker groups or is related to migration policy, whereas in postcommunist countries, it is a type of construction that will continue to have a place for thousands of people, and these houses will be home to them. Therefore, all remediation interventions should be effective and high quality, and they should not lead to new defects and failures.
This study should therefore be considered representative. The results can be related to the panel residential construction that was carried out in all postcommunist countries and in which there are similar remediation interventions taking place, as in the Czech Republic. It can be predicted that remediation interventions after the application of ETICS will eliminate the thermal technical deficiencies of the building envelope and improve the energy concept, but on the other hand, they can bring modern failures in the form of biodegradation of facades and the deterioration of indoor air quality.

Author Contributions

Conceptualization, D.K., M.K., and I.J.Š.; methodology, D.K., M.K., and I.J.Š.; validation, D.K., M.K., and I.J.Š., formal analysis, D.K.; investigation, D.K., M.V., and M.K.; resources, D.K. and M.K.; data curation, D.K.; writing—original draft preparation, D.K., M.K., and I.J.Š.; writing—review and editing, D.K., M.K., and I.J.Š.; supervision, M.K.; D.K., M.K., and I.J.Š.; project administration, D.K.; Appendix A, Appendix B, Appendix C and Appendix D, D.K. and M.K. All authors have read and agreed to the published version of the manuscript.

Funding

This research received no external funding.

Acknowledgments

The papers have been supported from the funds of the Ministry of Education, Youth and Sports of the Czech Republic, with support of the development projects in 2017 and Institutional Support 2020.

Conflicts of Interest

The authors declare no conflict of interest.

Appendix A

The syndrome causes problems that are not entirely specific and not too serious. It occurs mainly in renovated or sometimes newly built buildings; it is a building-related disease characterized by a great number of people in a specific building having the same symptoms. SBS causes vision problems (burning, watering eyes, red eyes), skin problems (rashes, itching of the skin), problems of the upper respiratory tract (runny nose, itching in the nose), lower respiratory tract disorders (shortness of breath, chest tightness), headache, sleep disorders, lack of concentration, fatigue, etc. [19,20]. Human physiology and its activity in the indoor environment of buildings are among the dominant components that worsen the quality of the indoor environment, increasing CO2 concentration.

Appendix B

Insufficient thickness of thermal insulation using poor quality materials are not the only factors. Other factors include greenery and mature trees in housing estates and near the facades of apartment buildings, warm winters with a minimum of freezing periods, favorable surface temperatures, and structural plaster of insulated facades, poorly designed or executed plumbing elements on facades, and insufficient experience and poor quality of the work of designers when processing the project documentation. The small thickness of thermal insulation (less than 120 mm) insufficiently causes the dew point to shift toward the exterior and has resulted in a number of negative effects.

Appendix C

Volatile organic compounds (VOCs) comprise the most common type of pollutants in homes. A big group has been detected in the indoor environment, mainly linked to indoor furnishings, finishes, and other building elements such as paint, solvents, adhesives, carpets, fabrics, and textiles [31,32]. It is generally known that exposure to increased airborne concentrations of VOCs can lead to a wide range of toxicological effects, including fatigue, headache, drowsiness, eye irritation, etc., both in the short and long term. However, a wide variety of potential sources and compositions renders it impractical to measure the concentrations of each chemical individually. Therefore, the concept of a total volatile organic compound (TVOC) attempts to address this practical limitation by providing a simple measurement for the aggregate of all volatile organic compounds without making distinctions between individual chemicals. The total concentration of all individual volatile organic compounds in the retention range C6—C16 is expressed as TVOC.
VOCs emissions are the result of two main mass transport processes: diffusion within the material and surface emissions occurring between the material and the overlying air as a consequence of several mechanisms, including evaporation and convection. The reason is their large surface area and their permanent exposure to indoor air.

Appendix D

Development of residential buildings in the Czech Republic, including the cities of Ostrava and Havířov, and the emerging prefabricated panel technologies date back to 1945, practically immediately after the end of the 2nd World War. Already in 1946, the first planned attempt to build a housing estate appeared in Ostrava. From the urban point of view, the concept of a comprehensive solution for a larger territorial unit was encounter in Ostrava. This first planned impulse later became a conceptual system for all Czech Republic [39,40]. The city’s urban concept began to develop in the years 1950–1951. With the existence of this urban concept, conceptual work has become a huge contribution to the systematic development of construction in the Ostrava region, and to some extent this meant the laying of modern urbanism in the Czech Republic. In Ostrava, there were considerations about complex residential buildings, civic amenities of the city, advanced engineering investments and urban composition, which urban planners later encountered in other cities of the Czech republic. Of the entire Czech Republic, the panel technologies assembled in Ostrava were developed the most, not only prefabricated residential buildings developed but also prefabricated panel construction of the city’s civic amenities. The development of prefabrication in the area of residential buildings and the trend in the production of prefabricated components are shown in Table A1. It is clear that prefabricated residential buildings and the construction of civic amenities of the city reached more than 90% in the entire Czech Republic in its final development period (Table A1).
Table A1. Prefabrication in residential construction in the Czech Republic from 1955 to 1980, including civic amenities of the city from the total volume of construction [41].
Table A1. Prefabrication in residential construction in the Czech Republic from 1955 to 1980, including civic amenities of the city from the total volume of construction [41].
YearPrefabrication
1955–196520%
1965–197058%
1970–198090%
However, during the years of intensive panel residential buildings, only the quantity of panel residential buildings came to the fore at the expense of their quality. Defects and failures of prefabricated houses began to manifest themselves (especially thermal technical defects). A significant phenomenon was the absence of regular care and maintenance of these buildings. Since the end of the 1950s, more than fifteen types of basic panel construction systems of residential buildings have been announced and used in the Czech Republic. So-called regional (modified) variants that were announced for these basic types were mainly based on the material base of the region. In connection with the city of Ostrava and Havířov and heavy industry, this was mainly the use of materials such as slag, fly ash, etc. The basic variants for the Czech Republic and the modified variants of panel residential construction in the Moravian-Silesian region are listed in Table A2.
Table A2. Construction systems of prefabricated residential buildings in the Czech Republic implemented in the years from 1955 to 1990 [35].
Table A2. Construction systems of prefabricated residential buildings in the Czech Republic implemented in the years from 1955 to 1990 [35].
Construction and Typology System (Designation)Modified Type (Designation)Modified Type for Ostrava and Havířov (Designation)Building-up SinceNote
T11, T12NoNo1950Construction for the CZ
G 40, G 57G 50, G 56, G 58, G 59, G 57—OLNo1955Construction for the CZ
T13, T16NoNo1955Construction for the CZ, construction in the architectural style of Sorel (socialist realism)
T02BT02B.AT02B-OS1962Construction for the CZ
T03BT02B-3BT03B-OS1965Construction for the CZ
GOSNoGOS 64, GOS 661965Only the Ostrava–Karviná region
T06BNoT06B-OS, T06B-BTS1965Construction for the CZ
T07BNoNo1965Experimental construction
T08BNoNo1965Experimental construction
T09BNoNo1965Experimental construction
PS 61PS 69No1965Only Czech region
VOSNoVOS 661970Only the Ostrava–Karviná region (see Figure A1)
VMOSNoNo1970Only the Ostrava–Karviná region
VPOSNoNo1970Only the Ostrava–Karviná region
BP 70B 70/R, B70—SčBP—70—OS1970Construction in South Moravia and Northern Bohemia
BANKSNoNo1970Construction in northern Bohemia
Larsen—NielsenNoNo1972Only Prague
HKHKS—70No1972Construction in northern and eastern Bohemia
VVÚ—ETANoNo1972Construction in northern Bohemia and Prague
OP1.1OP 1.11, OP 1.13P1.11, P1.131984Construction for the CZ
Explanations: (1) Construction typological series are always marked with an abbreviation (for example, the designation BP means panel block; the number usually indicates the number of flats or also the year of construction; VOS/TOS is the Tower Ostrava System, etc.). After the Second World War, the designation “G” was derived from the name of the town of Gottvaldov, following the example of the surname of the communist President of the Czech Republic Klement Gottwald. After the Velvet Revolution in the then Czechoslovakia in 1989, the city was renamed Zlín, as it was in the prewar period during the era of Tomas Bata. (2) For type series P.1, the numerical designation refers to the design and material design of the perimeter shell. For example, P1.11 perimeter sandwich recessed sandwich, P1.12 perimeter cladding expanded clay concrete, P1.13 perimeter cladding aerated concrete recessed.
In the years 2000–2010, a team of authors carried out the construction and technical survey (TS) of prefabricated residential buildings in the localities of Ostrava and Havířov, part of the Ostrava–Karviná region. The basic goal of the technical survey was to evaluate the construction and technical condition of the existing panel fund. A total of 9 blocks of prefabricated residential buildings with 15 sections were monitored in Ostrava region. An overview of the monitored systems of residential buildings is given in Table A3. In the Havířov locality, a total of 33 blocks of prefabricated residential buildings with 91 sections were monitored. The floors that were monitored in the residential buildings went from the 4th floor to the 12th floor; each floor included 3 to 4 housing units. An overview of the monitored systems of residential buildings is given in Table A4. The results of the survey in the years 2000 to 2010 were published.
Table A3. Number of monitored systems of prefabricated residential buildings in Ostrava.
Table A3. Number of monitored systems of prefabricated residential buildings in Ostrava.
YearNumber of BlocksNumber of Sections
VMOS11
VOS11
GOS12
P1.1311
T06B-OS12
T06B-BTS11
TO2B-OS24
T03B-OS13
Atyp *33
1218
* Atyp means that panel elements from different types of structural systems were used during construction.
Table A4. Number of monitored systems of prefabricated residential houses in the Havířov locality.
Table A4. Number of monitored systems of prefabricated residential houses in the Havířov locality.
YearNumber of BlocksNumber of Sections
T02B-OS731
T03B-OS824
VOS11
T06B-OS25
BP-70-OS69
P1.11921
3391
Explanations: The section has a separate entrance and staircase. The technical survey was carried out in the Havířov locality in cooperation with the housing cooperative. The cooperative owns a total of 214 blocks of flats realized in prefabricated technologies; 214 blocks include 539 sections.
Selected systems of prefabricated residential buildings were continuously monitored in the years 2010 to 2019, with a link to biodegradation and indoor air quality, after the additional thermal insulation ETICS and the replacement of windows in the perimeter cladding.
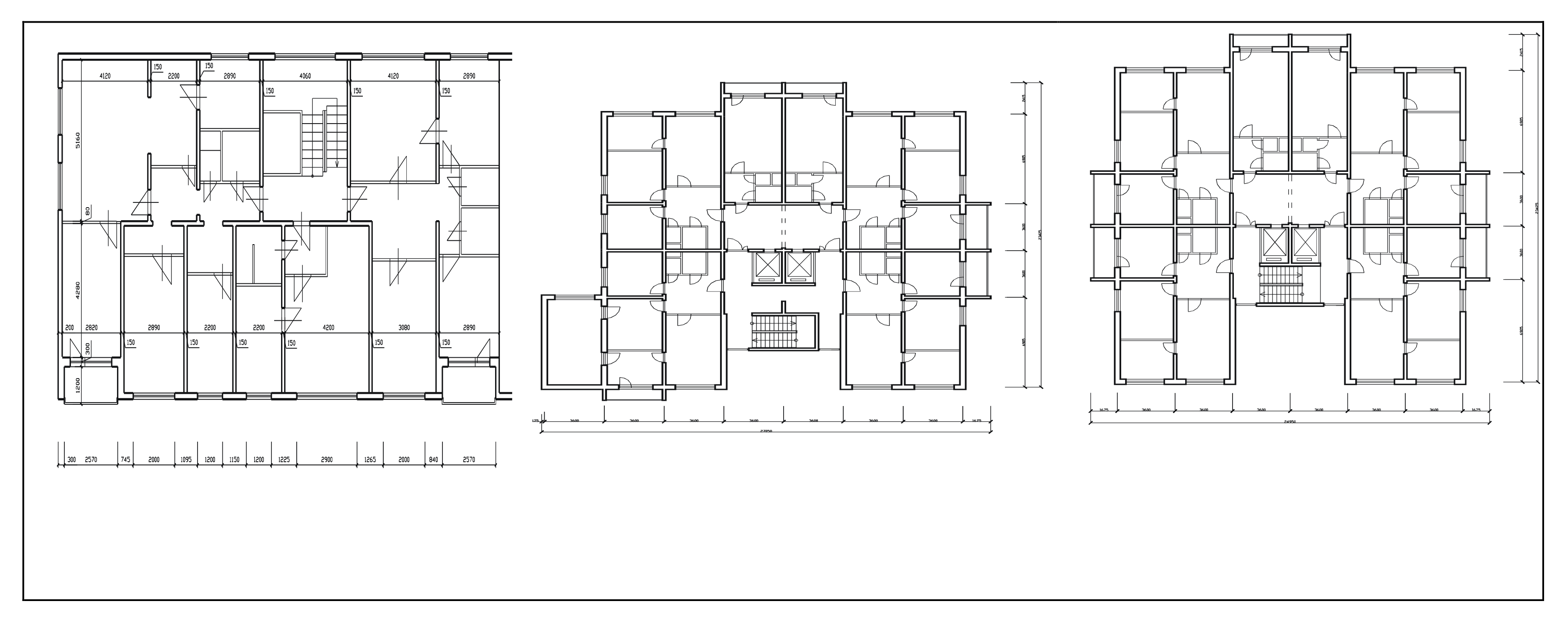
Rooms were selected to measure the quality of the indoor environment. This is a representative sample. The typology of the panel residential buildings is very similar (Figure A2). Therefore, the volume of the room (m3) corresponds to a representative sample and can be adequately applied to panel residential buildings carried out in the second half of the last century, i.e., construction that was rehabilitated by ETICS, with the simultaneous replacement of windows without ventilation flaps.
Figure A1. Examples of the typology of prefabricated residential buildings VOS/TOS (before remediation (a) and after remediation (b)). Source of photo: author.
Figure A1. Examples of the typology of prefabricated residential buildings VOS/TOS (before remediation (a) and after remediation (b)). Source of photo: author.
Sustainability 12 10119 g0a1
Figure A2. Examples of the typology of prefabricated residential buildings (floor plans of a common floor: type GOS, T06B-OS, T06-BTS: floor plan of a typical floor). Source of design: author.
Figure A2. Examples of the typology of prefabricated residential buildings (floor plans of a common floor: type GOS, T06B-OS, T06-BTS: floor plan of a typical floor). Source of design: author.
Sustainability 12 10119 g0a2

References

  1. USEPA. Indoor Air Quality. Available online: https://www.epa.gov/report-environment/indoor-air-quality (accessed on 13 July 2020).
  2. Almeida, R.M.S.F.; de Freitas, V.P.; Delgado, J.M.P.Q. School Buildings Rehabilitation: Indoor Environmental Quality and Enclosure Optimization; Springer: Berlin/Heidelberg, Germany, 2015. [Google Scholar]
  3. Parsons, K.C. Ergonomics of the physical environment: International ergonomics standards concerning speech communication, danger signals, lighting, vibration and surface temperatures. Appl. Ergon. 1995, 65, 281–292. [Google Scholar] [CrossRef]
  4. Shrubsole, C.; Dimitroulopoulou, S.; Foxall, K.; Gadeberg, B.; Doutsi, A. IAQ guidelines for selected volatile organic compounds (VOCs) in the UK. Build. Environ. 2019, 165, 106382. [Google Scholar] [CrossRef]
  5. Kubba, S. Chapter Seven–Indoor Environmental Quality. In Handbook of Green Building Design and Construction, 2nd ed.; Elsevier: Amsterdam, The Netherlands, 2012; pp. 313–316. [Google Scholar]
  6. Average EU Building heat load for HVAC equipment (Final Report). Available online: Htts://ec.europa.eu/energy/sities/files/documents/2014 (accessed on 13 July 2020).
  7. Recast EPBD. Directive 2010/31/EU of the European Parliament and of the Council of 19 May 2010 on the energy performance of buildings (recast). Off. J. Eur. Union 2010, 18, 13–35. [Google Scholar]
  8. European Commission. Directive 2018/844/EU Energy performance of buildings. Off. J. Eur. Union 2018, 2018, 75–91. [Google Scholar]
  9. Building Code n. 183/2006. Collection Laws Czech Repub. 2006, 63, 2226–2328.
  10. Michalak, J.; Czernik, S.; Marcinek, M.; Michałowski, B. Environmental burdens of External Thermal Insulation Systems. Expanded Polystyrene vs. Mineral Wool: Case Study from Poland. Sustainability 2020, 12, 4532. [Google Scholar] [CrossRef]
  11. Kubečková, D.; Vlček, P.; Kubečka, K. Environmental aspects of the design of buildings. In Proceedings of the International Multidisciplinary Scientific GeoConference Surveying Geology and Mining Ecology Management, SGEM, Albena, Bulgary, 19–25 June 2014; book 5. Volume 3, pp. 135–142. [Google Scholar]
  12. Csoknyai, T.; Hrabovszky-Horváth, S.; Georgiev, Z.; Jovanovic-Popovic, M.; Stankovic, B.; Villatoro, O.; Szendrö, G. Building stock characteristics and energy performance of residential buildings in Eastern-European countries. Energy Build. 2016, 132, 39–52. [Google Scholar] [CrossRef]
  13. Kraus, M.; Juhásová Šenitková, I. Indoor Environment in Residential Prefabricated Buildings. In IOP Conference Series: Materials Science and Engineering 2017; IOP Publishing: Bristol, UK, 2017; Volume 245, p. 042072. [Google Scholar] [CrossRef]
  14. Leivo, V.; Mari Turunen, M.; Aaltonen, A.; Kiviste, M.; Du, L.; Haverinen-Shaughnessy, U. Impacts of Energy Retrofits on Ventilation Rates, CO2-levels and Occupants’ Satisfaction with Indoor Air Quality. Energy Procedia 2016, 96, 260–265. [Google Scholar] [CrossRef]
  15. Kim, J.; Hong, T.; Kong, M.; Jeong, K. Building occupants’ psycho-physiological response to indoor climate and CO2 concentration changes in office buildings. Build. Environ. 2020, 169, 106596. [Google Scholar] [CrossRef]
  16. Schibuola, L.; Tambani, C. Indoor environmental quality classification of school environments by monitoring PM and CO2 concentration levels. Atmos. Pollut. Res. 2020, 11, 332–342. [Google Scholar] [CrossRef]
  17. Shriram, S.; Ramamurthy, K.; Ramakrishnan, S. Effect of occupant-induced indoor CO2 concentration and bioeffluents on human physiology using a spirometric test. Build. Environ. 2019, 149, 58–67. [Google Scholar] [CrossRef]
  18. Apte, M.G.; Fisk, W.J.; Daisey, J.M. Associations between indoor CO2 concentrations and sick building syndrome symptoms in U.S. Office Buildings: An analysis of the 1994–1996 BASE study data. Indoor Air 2000, 10, 246–257. [Google Scholar] [CrossRef] [PubMed]
  19. USEPA. Indoor Air Facts No. 4 Sick Building Syndrome. Available online: https://www.epa.gov/indoor-air-quality-iaq/indoor-air-facts-no-4-sick-building-syndrome (accessed on 23 October 2020).
  20. Kalender Smajlović, S.; Kukec, A.; Dovjak, M. Association between Sick Building Syndrome and Indoor Environmental Quality in Slovenian Hospitals: A Cross-Sectional Study. Int. J. Environ. Res. Public Health 2019, 16, 3224. [Google Scholar] [CrossRef]
  21. Talaei, M.; Mahdavinejad, M.; Azari, R. Thermal and energy performance of algae bioreactive façades: A review. J. Build. Eng. 2020, 28, 101011. [Google Scholar] [CrossRef]
  22. Vrbová, M. Factors Influencing Microbial Growth on the Facades of Prefabricated Houses. Thesis for the Dissertation (Report of Presentation). Ph.D. Thesis, VSB-TU Ostrava, Ostrava, Czech Republic, 2020. [Google Scholar]
  23. Kukutschová, J.; Doležalová, H. The Report of the Results of the Determination of Biotic Disturbances in Plaster; Nanotechnology Centre, VSB-TU Ostrava: Ostrava, Czech Republic, 2013. [Google Scholar]
  24. Shen, G.; Ainiwaer, S.; Zhu, Y.; Zheng, S.; Hou, W.; Shen, H.; Chen, Y.; Wang, X.; Cheng, H.; Tao, S. Quantifying source contributions for indoor CO2 and gas pollutants based on the highly resolved sensor data. Environ. Pollut. 2020, 267, 115493. [Google Scholar] [CrossRef]
  25. Becerra, J.A.; Lizana, J.; Gil, M.; Barrios-Padura, A.; Blondeau, P.; Chacartegui, R. Identification of potential indoor air pollutants in schools. J. Clean. Prod. 2020, 242, 118420. [Google Scholar] [CrossRef]
  26. Jeong, C.H.; Salehi, S.; Wu, J.; North, M.L.; Kim, J.S.; Chow, C.W.; Evans, G.J. Indoor measurements of air pollutants in residential houses in urban and suburban areas: Indoor versus ambient concentrations. Sci. Total Environ. 2019, 693, 133446. [Google Scholar] [CrossRef]
  27. Bhargava, A.; Khanna, R.N.; Bhargava, S.K.; Kumar, S. Exposure risk to carcinogenic PAHs in indoor-air during biomass combustion whilst cooking in rural India. Atmos. Environ. 2004, 38, 4761–4767. [Google Scholar] [CrossRef]
  28. Carbal, J.P.S. Can we use indoor fungi as bioindicators of indoor air quality? Historical perspectives and open questions. Sci. Total Environ. 2010, 408, 4285–4295. [Google Scholar]
  29. Basińska, M.; Michalkiewict, M.; Ratajczak, K. Impact of physical and microbiological parameters on proper indoor air quality in nursery. Environ. Int. 2019, 132, 105098. [Google Scholar] [CrossRef] [PubMed]
  30. Liu, S.; Cao, Q.; Zhao, X.; Lu, Z.; Deng, Z.; Dong, J.; Lin, X.; Qing, K.; Zhang, W.; Chen, Q. Improving indoor air quality and thermal comfort in residential kitchens with a new ventilation system. Build. Environ. 2020, 180, 107016. [Google Scholar] [CrossRef]
  31. Zhang, X.; Li, X.; Wang, Z.; Deng, G.; Wang, Z. Exposure level and influential factors of HCHO, BTX and TVOC from the interior redecoration of residences. Build. Environ. 2020, 168, 106494. [Google Scholar] [CrossRef]
  32. Hormigos-Jimenez, S.; Padilla-Marcos, M.A.; Meiss, A.; Gonzalez-Lezcano, R.A.; Feijó-Muňos, J. Ventilation rate determination method for residential buildings according to TVOC emissions from building materials. Build. Environ. 2017, 123, 555–563. [Google Scholar] [CrossRef]
  33. Air Quality (Data Information). Czech Hydrometeorological Institute. Available online: www.chmu.cz (accessed on 10 July 2020).
  34. World Health Organization. Available online: www.who.int (accessed on 13 July 2020).
  35. Kubečková, D. Past and Perspectives of Panel Housing Construction; Inaugural Lecture; VSB-TUO: Ostrava, Czech Republic, 2010. [Google Scholar]
  36. Tiwari, P.; Parikh, J. Cost of CO2 reduction in building construction. Energy 1995, 20, 531–547. [Google Scholar] [CrossRef]
  37. Chiang, Y.H.; Li, V.J.; Zhou, L.; Wong, F. Evaluating Sustainable Building-Maintenance Projects: Balancing Economic, Social, and Environmental Impacts in the Case of Hong Kong. J. Constr. Eng. Manag. 2016, 142, 06015003. [Google Scholar] [CrossRef]
  38. Housing Policy. Ministry of Regional Development CZ. Available online: https://www.mmr.cz/cs/ministerstvo/bytova-politika (accessed on 1 August 2020).
  39. Kubečková, D. Regeneration of Prefab Buildings in the Czech republic with view Ostrava region. In Proceedings of the International conference ENHR, Camridge, UK, 2–6 July 2004; p. 134. [Google Scholar]
  40. Foltýn, E. Ostrava. Sborník Příspěvků k Dějinám a Výstavbě Města Ostravy 13; Publishing Profil: Ostrava, Czech Republic, 1985; pp. 127–160. [Google Scholar]
  41. Horáček, M. Prefab Buildings; Publishing House of Technical Literature Prague: Prague, Czech Republic, 1997. [Google Scholar]
Figure 1. Development of thermal technical requirements in the Czech Republic in the years 1960–2019 [22].
Figure 1. Development of thermal technical requirements in the Czech Republic in the years 1960–2019 [22].
Sustainability 12 10119 g001
Figure 2. Thermal, energy, and environmental context with regard to the legislation in force in the Czech Republic and in relation to panel construction implemented in the second half of the 20th century.
Figure 2. Thermal, energy, and environmental context with regard to the legislation in force in the Czech Republic and in relation to panel construction implemented in the second half of the 20th century.
Sustainability 12 10119 g002
Figure 3. Laboratory analyses of samples taken from infested exterior plasters and colonization of facades of prefabricated apartment buildings equipped with ETICS (external thermal insulation composite system), microorganisms of the genus Cyanobacteria, genus Chroococcidiopsis, terrestrial algae of the genus Chlorophyceae (colony forming) [23] (a) Biodegradation cell clusters-plaster diagnosis by confocal microscopy”; (b) Presence of biological structures in plaster-diagnostics using scanning electron microscopy; (c) Genus of microorganisms Clorophyceae-colonial species; (d) The presence of fungal spores in the plaster.
Figure 3. Laboratory analyses of samples taken from infested exterior plasters and colonization of facades of prefabricated apartment buildings equipped with ETICS (external thermal insulation composite system), microorganisms of the genus Cyanobacteria, genus Chroococcidiopsis, terrestrial algae of the genus Chlorophyceae (colony forming) [23] (a) Biodegradation cell clusters-plaster diagnosis by confocal microscopy”; (b) Presence of biological structures in plaster-diagnostics using scanning electron microscopy; (c) Genus of microorganisms Clorophyceae-colonial species; (d) The presence of fungal spores in the plaster.
Sustainability 12 10119 g003
Figure 4. Facade with ETICS insulation of 100 mm thickness damaged by biodegradation.
Figure 4. Facade with ETICS insulation of 100 mm thickness damaged by biodegradation.
Sustainability 12 10119 g004
Figure 5. An example of signs of insufficient ventilation and increased relative humidity.
Figure 5. An example of signs of insufficient ventilation and increased relative humidity.
Sustainability 12 10119 g005
Figure 6. Results of CO2 concentration with/without microventilation.
Figure 6. Results of CO2 concentration with/without microventilation.
Sustainability 12 10119 g006
Figure 7. Indoor particles concentrations and relative humidity.
Figure 7. Indoor particles concentrations and relative humidity.
Sustainability 12 10119 g007
Figure 8. Interaction of environmental and design measures in relation to the application of ETICS.
Figure 8. Interaction of environmental and design measures in relation to the application of ETICS.
Sustainability 12 10119 g008
Table 1. Results of CO2 concentration measurement in the variants of ventilation mode.
Table 1. Results of CO2 concentration measurement in the variants of ventilation mode.
Observed Nighttime
00:0001:3005:00
CO2RHTemperature *CO2RHTemperature *CO2RHTemperature *
(ppm)(%)(°C)(ppm)(%)(°C)(°C)(%)(°C)
MicroventilationMicroventilationMicroventilation
NoYesNoYesNoYesNoYesNoYesNoYesNoYesNoYesNoYes
112851182525021.420.5129010015249.820.719.92858941574921.119.5
214041190565020.819.7154710105749.120.619.11786940564920.719.1
312131109565120.919.812739985749.620.619.11641953574820.819.0
412441207565321.518.914349905749.621.019.01798950574821.219.8
513531257584921.419.1153910015949.021.018.91855987594921.319.7
612641182545121.219.517079795748.921.519.11922910595021.819.7
712611210545221.119.118739905849.021.119.62371899614921.519.1
812101198524920.819.0167910015848.821.019.02431891604821.819.2
912581199564821.319.215849985748.321.818.92450901614821.519.0
1013011198535121.219.117019865949.121.719.12480900614921.219.1
* Danfoss heating heads with indoor temperature setting ti = 21 °C.
Table 2. Parameters of the outdoor environment.
Table 2. Parameters of the outdoor environment.
Outdoor Air Temperature (°C)PM10 (µg/m3) 1
−3.0 to +2.025.0 to 37.2
Mean temperatureMean PM10 concentration
1 PM10—3 h sliding at night, at 25.0–29.0 µg/m3 [33].
Table 3. Evaluation of the condition in terms of hygienic safety.
Table 3. Evaluation of the condition in terms of hygienic safety.
Outdoor Air Temperature (°C)Heating Head Temperature (°C)OccupancyMicroventilationEvaluation of the Condition
−3.0 to +2.021.01noHygienically acceptable until 05:00. CO2 concentration to 1500 ppm
−3.0 to +2.021.02noHygienically unsuitable CO2 concentration above 2000 ppm
−3.0 to +2.023.02yesHygienically acceptable until 05.00 CO2 concentration to 1500 ppm, after 05.00 hygienically unsuitable
Table 4. TVOC concentration in the bedroom (A) and kitchen (B).
Table 4. TVOC concentration in the bedroom (A) and kitchen (B).
KitchenBedroom
Time0:0001:3005:0000:0001:3005:00
CO2 (ppm)148018702150135016202420
TVOC (ppb)658872493452667589
RH (%)39.649.862.737.261.458.3
Temperature (°C)22.121.821.122.224.223.7
Publisher’s Note: MDPI stays neutral with regard to jurisdictional claims in published maps and institutional affiliations.

Share and Cite

MDPI and ACS Style

Kubečková, D.; Kraus, M.; Šenitková, I.J.; Vrbová, M. The Indoor Microclimate of Prefabricated Buildings for Housing: Interaction of Environmental and Construction Measures. Sustainability 2020, 12, 10119. https://doi.org/10.3390/su122310119

AMA Style

Kubečková D, Kraus M, Šenitková IJ, Vrbová M. The Indoor Microclimate of Prefabricated Buildings for Housing: Interaction of Environmental and Construction Measures. Sustainability. 2020; 12(23):10119. https://doi.org/10.3390/su122310119

Chicago/Turabian Style

Kubečková, Darja, Michal Kraus, Ingrid Juhásová Šenitková, and Magdaléna Vrbová. 2020. "The Indoor Microclimate of Prefabricated Buildings for Housing: Interaction of Environmental and Construction Measures" Sustainability 12, no. 23: 10119. https://doi.org/10.3390/su122310119

APA Style

Kubečková, D., Kraus, M., Šenitková, I. J., & Vrbová, M. (2020). The Indoor Microclimate of Prefabricated Buildings for Housing: Interaction of Environmental and Construction Measures. Sustainability, 12(23), 10119. https://doi.org/10.3390/su122310119

Note that from the first issue of 2016, this journal uses article numbers instead of page numbers. See further details here.

Article Metrics

Back to TopTop