Design and Operation of Constructions: A Healthy Living Environment-Parametric Studies and New Solutions
Abstract
1. Introduction
2. Materials and Methods
- Comparative study—The energy saving criterion (Table 3). In order to save energy in operation, the comparison is made between the values of the thermal resistance corrected on elements calculated for the real building and the normative values of the minimum thermal resistance corrected (the reference building).
- Comparative study—The hygienic-sanitary and comfort criterion of the real living apartment (Table 3). In order to ensure hygienic-sanitary conditions and comfort in operation, there is a comparison between the values of the thermal resistance corrected on elements calculated at the real building and the normed values: the minimum thermal resistance required for hygienic-sanitary considerations on the whole building, for exterior walls.
- Comparative study—The energy requirement and the energy performance class of the real apartment and the virtual apartment are presented in Table 4. The energy performance class allows, by analysing the parameters contained in the EPCs, the comparative study of CO2 equivalent emissions in the cases of the real and virtual apartments.
3. Results
3.1. The Relevant Results of Case Study 1
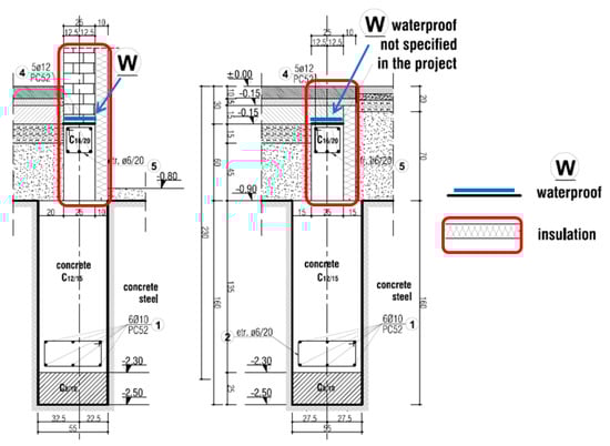
- Conception—Design: (1) partial/total disposal of the polycarbonate panels (walls) in the fenced yard area designed by the architectural project to facilitate air circulation when ventilation of apartment is intended; (2) adjusting the heating installation/respecting the heating project, with the verification under pressure of the installation; (3) preventing the rise of the groundwater to the surface, in the walls of ceramic blocks (by applying an additional waterproofing layer, between the elevation and the masonry or by local vitrification in the affected area); (4) the proper waterproofing of the socle, on the splashing area on the sidewalk; and (5) possibly, completing the corner over the entire height with polystyrene profile of 3–5 cm, in order to correct the thermal bridge.
- Execution: (1) carrying out the works in the hot season, to evaporate the water stored in/to dry the walls; (2) uncovering at least the base of the building in the area of axis E and corner 3-E in the warm season and allowing to dry/evaporate the water, with the restoration of the thermo-system after the warm period; (3) the rehabilitation of the sidewalk along the E axis, in compliance with the recommendations of the geotechnical study, respectively the removal of superficial water from the building area, the sidewalk should have an outward slope of at least 3%; and (4) ventilation of the layer/film between the support and polystyrene, under the slab over the ground floor by making perforations through the thermo-system, up to the support/masonry covering of the perforations with the perforated covers set on the entire (lateral) facade at 50–75 cm.
- Exploitation: (1) rational use of the living space through proper and efficient ventilation of the apartment, at a minimum rate of 0.5 m3/h; (2) the correct exploitation of the living space (ventilation, adequate furniture, not drying the laundry in the apartment, arranging and using the hood in the kitchen, not keeping pets inside, allowing sunlight to enter), taking into account the large number of people occupying a small space; (3) monitoring the humidity level by arranging a hygrometer to monitor the humidity, identifying and eliminating the sources of humidity; (4) installing dehumidifiers; and (5) achieving and maintaining constant interior temperature (20–21 °C) during the cold season.
3.2. The Relevant Results of Case Study 2
- (1)
- According to the energy performance certificates [31,32,33,34] presented in Figure 8, the studied apartment is in the energy class D, having the energy rating 79. Under normal operating conditions, with heated neighbourhoods, the apartment would be in energy class C, with energy rating 87, because, in order to obtain the same thermal comfort, a significantly lower amount of energy would be consumed for heating the apartment, which would mean reduced costs with heating.
- (2)
- The system of heat dividers and thermostatic valves is not efficient in this case, noting that the costs of those who do not heat the apartments decrease on account of those who extra heat, due to the lack of heated neighbourhoods.
- (3)
- The use value of the apartment is diminished.
- (4)
- The market value of the apartment is diminished.
- Conception—Design: (1) adjusting by the owner of the heating installation; and (2) rehabilitation of the studied apartment with its enveloping towards the unheated neighbourhoods (and to the outside), which means additional expenses for it, that exceeds the purpose for which the building was designed.
- Exploitation: (1) the compulsoriness to heat all the apartments of the building; and (2) rational use of the living space.Additionally, the solutions to prevent hygienic-sanitary discomfort in living spaces are linked to the next aspects:
- Conception—Design—Execution: (1) the beneficiary should request a complete project with execution details; (2) consistent design with studying the orientation of the functions of a living space towards the cardinal points, taking measures to remove the water from/near the building, preventing the hygienic-sanitary discomfort through conception and design, respectively avoiding the material repercussions imposed by healing/solving it; (3) correct execution; and (4) performing plastering and finishing works in the hot season, for the evaporation of the water stored in or drying the walls.
- Operation: (1) occupying the built spaces by an adequate number of persons; (2) in the case of apartment blocks, there should be the obligation to heat all the apartments of the building; (3) smart ventilation of occupied spaces; proper ventilation (with heat recovery in the cold season); (4) monitoring the humidity level; (5) installing dehumidifiers, if necessary; (6) achieving and maintaining constant indoor temperature in the cold season; and (7) periodic auditing/expertise of the constructions. During the operation of the studied apartment, different situations of operating the neighbouring apartments may occur such as giving up their heating, which requires another way of maintaining/operating the apartment in question. This fact further justifies what the present paper proposes: By means of legislative interventions it is required to periodically audit the living conditions—our research proposes an interval of no more than 10 years, equal to that of the validity of the EPCs.
- p10—Penalty coefficient depending on the state of the interior walls in terms of their moisture content;
- p11—Penalty coefficient according to the state of the ceilings in terms of their moisture content;
- p12—Penalty coefficient depending on the condition of the floors in terms of their moisture content; determined according to Table 6. The numbering of the other coefficients will be shifted, thus reaching a number of 15 coefficients of penalty for the certified building.
4. Discussion
5. Conclusions
Author Contributions
Funding
Acknowledgments
Conflicts of Interest
References
- Bruce, N.; Perez-Padilla, R.; Albalak, R. Indoor air pollution in developing countries: A major environmental and public health challenge. Bull. World Health Organ. 2000, 78, 1078–1092. [Google Scholar] [PubMed]
- WHO. Household Air Pollution and Health. Available online: https://www.who.int/news-room/fact-sheets/detail/household-air-pollution-and-health (accessed on 3 September 2019).
- Bornehag, C.G.; Blomquist, G.; Gyntelberg, F.; Järvholm, B.; Malmberg, P.; Nordvall, L.; Nielsen, A.; Pershagen, G.; Sundell, J. Dampness in buildings and health: Nordic interdisciplinary review of the scientific evidence on associations between exposure to ‘dampness’ in buildings and health effects (NORDDAMP). Indoor Air 2001, 11, 72–86. [Google Scholar] [CrossRef] [PubMed]
- Pekkanen, J.; Hyvärinen, A.; Haverinen-Shaughnessy, U.; Korppi, M.; Putus, T.; Nevalainen, A. Moisture damage and childhood asthma: A population-based incident case-control study. Eur. Respir. J. 2007, 29, 509–515. [Google Scholar] [CrossRef] [PubMed]
- Zheng, T.; Niu, S.; Lu, B.; Fan, X.; Sun, F.; Wang, J.; Zhang, Y.; Zhang, B.; Owens, P.; Hao, L.; et al. Childhood asthma in Beijing, China: A population-based case-control study. Am. J. Epidemiol. 2002, 156, 977–983. [Google Scholar] [CrossRef] [PubMed]
- Zock, J.P.; Jarvis, D.; Luczynska, C.; Sunyer, J.; Burney, P. European Community Respiratory Health Survey. Housing characteristics reported mold exposure, and asthma in the European Community Respiratory Health Survey. J. Allergy Clin. Immunol. 2002, 110, 285–292. [Google Scholar] [CrossRef] [PubMed]
- Popescu, D.; Prada, M. Some aspects about smart building management systems—Solutions for green, secure and smart buildings. In Recent Advances in Environmental Science, Proceedings of the 9th International Conference on Energy, Environment, Ecosystems and Sustainable Development; WSEAS Press: Lemesos, Cyprus, 2013; pp. 126–132. [Google Scholar]
- Popescu, D.E.; Prada, M.F.; Dodescu, A.; Hemanth, J.; Bungau, C. A secure confident cloud computing architecture solution for a smart campus. In Proceedings of the 7th International Conference on Computers Communications and Control (ICCCC), Oradea, Romania, 8–12 May 2018; pp. 240–245. [Google Scholar]
- Prada, M.F.; Popescu, D.E.; Bungau, C. Building education, source of energy saving in Romania. In Proceedings of the 15th National Technical-Scientific Conference on Modern Technologies for the 3rd Millennium, Oradea, Romania, 27–28 November 2015; pp. 157–162. [Google Scholar]
- Vasile, V.; Petran, H.; Dima, A.; Petcu, C. Indoor Air Quality—A Key Element of the Energy Performance of the Buildings. Energy Procedia 2016, 96, 277–284. [Google Scholar] [CrossRef]
- Mohareb, E.; Hashemi, A.; Shahrestani, M.; Sunikka-Blank, M. Retrofit Planning for the Performance Gap: Results of a Workshop on Addressing Energy, Health and Comfort Needs in a Protected Building. Energies 2017, 10, 1177. [Google Scholar] [CrossRef]
- Prada, M.; Popescu, D.E.; Bungau, C.; Pancu, R.; Bungau, C. Parametric Studies on European 20-20-20 Energy Policy Targets in University Environment. J. Environ. Prot. Ecol. 2017, 18, 1146–1157. [Google Scholar]
- Prada, M.F.; Brata, S.; Tudor, D.F.; Popescu, D.E. Aspects of Reducing of Gas Emissions according to the EU Energy Policy Targets. J. Environ. Prot. Ecol. 2013, 14, 209–2013. [Google Scholar]
- EUROPEAN COMMISSION (EC): 2030 Climate & Energy Framework. Available online: https://ec.europa.eu/clima/policies/strategies/2030_en (accessed on 17 August 2019).
- EC 2011. Communication from the Commission to the European Parliament, the Council, the European Economic and Social Committee and the Committee of the Regions ‘Roadmap to a Resource Efficient Europe’, COM (2011) 571 Final of 20 September 2011. Available online: http://www.europarl.europa.eu/meetdocs/2009_2014/documents/com/com_com(2011)0571_/com_com(2011)0571_en.pdf (accessed on 22 September 2019).
- Prüss-Üstün, A.; Wolf, J.; Corvalán, C.F.; Bos, R.; Neira, M.P. Preventing Disease Through Healthy Environments: A Global Assessment of the Burden of Disease from Environmental Risks; World Health Organization: Geneva, Switzerland, 2016; Available online: https://apps.who.int/iris/handle/10665/204585 (accessed on 20 July 2019).
- EU. Decision No 1386/2013/EU of the European Parliament and of the Council of 20 November 2013 on a General Union Environment Action Programme to “2020 Living well, within the limits of our planet.”. Off. J. Eur. Union 2013, 354, 171–200. [Google Scholar]
- Ionescu, G.; Rada, E.C.; Cioca, L.I. Municipal solid waste sorting and treatment schemes for the maximization of material and energy recovery in a latest EU member. Environ. Eng. Manag. J. 2015, 14, 2537–2544. [Google Scholar] [CrossRef]
- Popescu, D.E.; Bungau, C.; Prada, M.; Domuta, C.; Bungau, S.; Tit, D.M. Waste management strategy at a public university in smart city context. J. Environ. Prot. Ecol. 2016, 17, 1011–1020. [Google Scholar]
- EEA/JRC 2013. Environment And Human Health, EEA Report No 5/2013, European Environment Agency and the European Commission’s Joint Research Centre. Available online: file:///C:/Users/User/Downloads/Environment%20and%20human%20health%20-%20joint%20EEA-JRC%20report.pdf (accessed on 22 September 2019).
- EC. Communication from the Commission to the European Parliament, the Council, the European Economic and Social Committee and the Committee of the Regions: Green infrastructure—Enhancing Europe’s Natural Capital, COM/2013/0249 Final. 2013. Available online: https://eur-lex.europa.eu/legal-content/EN/TXT/?uri=CELEX%3A52013DC0249 (accessed on 22 September 2019).
- Bîrsan, R. Construction Market in 2018 and 2019. (in Romanian: Piaţa Construcţiilor în 2018 şi 2019) 2019. Available online: https://www.fortza.net/piata-constructiilor-in-2018-si-2019 (accessed on 30 August 2019).
- NIOSH (The National Institute for Occupational Safety and Health). Centers for Disease Control and Prevention. Dampness and Mold in Buildings. 2013. Available online: https://www.cdc.gov/niosh/topics/indoorenv/mold.html (accessed on 30 August 2019).
- Vesselenyi, T.; Bungau, C.; Husi, G. Research equipment and computation techniques for intelligent building applications. In Proceedings of the 2014 IEEE/SICE International Symposium on System Integration, Tokyo, Japan, 13–15 December 2014; pp. 228–233. [Google Scholar]
- Dan, S.; Iures, L.; Badea, C. Impact of structural rehabilitation of existing buildings on energy saving in constructions. In Proceedings of the 13th SGEM—International Multidisciplinary Scientific GeoConference of Modern Management of Mine Producing, Geology and Environmental Protection, Albena, Bulgaria, 16–22 June 2013; pp. 451–456. Available online: http://toc.proceedings.com/19963webtoc.pdf (accessed on 30 August 2019).
- D2.2 European Climate Zones and Bioclimatic Design Requirements. Available online: https://ec.europa.eu/research/participants/documents/downloadPublic?documentIds=080166e5ac7b5027&appId=PPGMS (accessed on 3 November 2019).
- C107-2005-Normative Regarding the Thermotechnical Calculation of the Building Elements of the Buildings Updated on 28 March 2016. Available online: https://lege5.ro/Gratuit/geydknzugezq/ordinul-nr-386-2016-pentru-modificarea-si-completarea-reglementarii-tehnice-normativ-privind-calculul-termotehnic-al-elementelor-de-constructie-ale-cladirilor-indicativ-c-107-2005-aprobata-prin-ordinu/2016 (accessed on 12 November 2019).
- Multiannual monthly Averages 1961–1990. (In Romanian: Medii Lunare Multianuale 1961–1990.) Romanian National Administration of Meteorology (In Romanian: Administrația Natională de Meteorologie). Available online: https://www.marefa.org (accessed on 3 November 2019).
- Drăgan, D. The geotechnical study elaborated by the company SC Proiect Geo 2003 SRL with no. 1847/2016. (in Romanian: Studiul geotehnic elaborat de firma SC Proiect Geo 2003 SRL cu nr. 1847/2016). 2003. [Google Scholar]
- Mc 001/1—2006. Methodology for Calculating the Energy Performance of Buildings; Part I—Building Envelopment. (In Romanian: Metodologie de Calcul a Performanţei Energetice a Clădirilor; Partea I—Anvelopa clădirii.). Available online: https://www.mdrap.ro/userfiles/reglementari/Domeniul_XXVII/27_11_MC_001_1_2_3_2006.pdf (accessed on 17 July 2019).
- Mc 001/2—2006. Methodology for Calculating the Energy Performance of Buildings; Part II—Energy Performance of Installations. (In Romanian: Metodologie de Calcul a Performanţei Energetice a Clădirilor; Partea a II-a—Performanţa Energetică a Instalaţiilor.). Available online: https://www.mdrap.ro/userfiles/reglementari/Domeniul_XXVII/27_11_MC_001_4_5_2009.pdf (accessed on 20 July 2019).
- Mc 001/3—2006. Methodology for Calculating the Energy Performance of Buildings; Part III—the Audit and the Performance Certificate of the Building. (In Romanian: Metodologie de Calcul a Performanţei Energetice a Clădirilor; Partea a III-a—audiTul şi Certificatul de Performanţă a Clădirii.). Available online: https://www.mdrap.ro/userfiles/reglementari/Domeniul_XXVII/27_11_MC_001_1_2_3_2006.pdf (accessed on 20 July 2019).
- Mc 001/4—2009—Methodology for Calculating the Energy Performance of Buildings; Part IV—Summary of Calculation of the Energy Performance of Buildings and Apartments. (In Romanian: Metodologie de Calcul a Performanţei Energetice a Clădirilor; Partea a IV-a—Breviar de Calcul al Performantei Energetice a Cladirilor si Apartamentelor.). Available online: https://www.mdrap.ro/userfiles/reglementari/Domeniul_XXVII/27_11_MC_001_4_5_2009.pdf (accessed on 20 July 2019).
- C107/1-7/2005, Norms Regarding the Calculation of the Global Coefficients of Thermal Insulation in the Residential Buildings. (In Romanian: Normativ Privind Calculul Coeficienţilor Globali de Izolare Termică la Clădirile de Locuit.). Available online: http://www.stim.ugal.ro/crios/Support/IEACA/Anexe/C107-1-3-2005.pdf (accessed on 30 August 2019).
- Wolkoff, P. Indoor air humidity, air quality, and health—An overview. Int. J. Hyg. Environ. Health 2018, 221, 376–390. [Google Scholar] [CrossRef] [PubMed]
- La Fleur, L.; Rohdin, P.; Moshfegh, B. Energy Use and Perceived Indoor Environment in a Swedish Multifamily Building before and after Major Renovation. Sustainability 2018, 10, 766. [Google Scholar] [CrossRef]
- NSC (The National Safety Council). The Official Magazine of the NSC Congress & Expo. NIOSH Releases Resources on Dampness and Mold Assessment. Available online: https://www.safetyandhealthmagazine.com/articles/17912-niosh-releases-dampness-and-mold-assessment-resources (accessed on 3 September 2019).









| The Thermo-Technical Characteristics of the Exterior Walls—the Envelope | ||||||
|---|---|---|---|---|---|---|
| Orientation | Surface [m2] | Component Layers (i→e) | Reduction Coefficient r | Corrected Resistance R′ [m2K/W] | ||
| Material | Thickness [m] | |||||
| N-V | 22.15 | Mortar | 0.020 | 0.65 | 0.61 | |
| N-E | 12.68 | ACC Masonry | 0.125 | |||
| S-V | 4.29 | Reinforced concrete | 0.175 | |||
| Mortar | 0.020 | |||||
| Thermo-technical characteristics of the surfaces to unheated neighbourhoods | ||||||
| Description | Surface [m2] | Component Layers (i→e) | Reduction Coefficient r | Corrected Resistance R′ [m2K/W] | ||
| Material | Thickness [m] | |||||
| Floor | 71.07 | Decking | 0.05 | 0.8 | 0.24 | |
| Plate concrete | 0.12 | |||||
| Plaster | 0.02 | |||||
| Wall | 13.21 | Reinforced concrete | 0.14 | 0.23 | ||
| Thermo-technical characteristics of the PVC joinery—Envelope (without shutters) | ||||||
| Description | Orientation | Surface [m2] | Sealing Degree | Corrected Resistance R′ [m2K/W] | ||
| Insulated windows/doors interior opening | N-V | 7.77 | With sealing measures | 0.500 | ||
| Construction Element/Type | Total (m2) | R′med [m2K/W] | |
|---|---|---|---|
| Studied Apartment | |||
| Exterior carpentry | PVC | 13.05 | 0.306 |
| Exterior walls | Exterior wall | 39.12 | |
| Unheated neighbourhoods | Unheated wall | 84.28 | |
| Total | 136.45 | ||
| Virtual apartment | |||
| Exterior carpentry | PVC | 13.05 | 1.505 |
| Exterior walls | Exterior wall | 39.12 | |
| Unheated neighbourhoods | - | - | |
| Total | 52.17 | ||
| Description of Surfaces to the Neighbour | Surface [m2] | Corrected Resistance R′ | R′min | R0′nec |
|---|---|---|---|---|
| [m2K/W] | ||||
| Floor | 71.07 | 0.24 | 2.00 | 0.31 |
| Wall | 13.21 | 0.23 | 1.40 | 0.24 |
| Parameter | Unit of Measure | Apartment | Difference | |
|---|---|---|---|---|
| Real | Virtual | % | ||
| Average resistance Rm′ | [m2K/W] | 0.306 | 1.505 | −79.67 |
| Total annual specific energy requirement | [kWh/m2 year] | 350.69 | 252.78 | +38.7 |
| Specific annual energy requirement for heating | 209.52 | 111.61 | +87.0 | |
| Energy performance class | - | D | C | - |
| CO2 equivalent emissions | [kg CO2/m2 year] | 168.33 | 121.33 | +38.7 |
| Situation | Coefficient |
|---|---|
| Exterior walls | p9 |
| Dry exterior walls | 1.00 |
| The outside walls have stains of condensation (in the cold season) | 1.02 |
| The exterior walls show traces of dampness | 1.05 |
| Situation | Coefficient |
|---|---|
| Interior walls | p10 |
| Dry interior walls | 1.00 |
| The interior walls have stains of condensation (in the cold season) | 1.02 |
| The interior walls show traces of dampness | 1.05 |
| Ceiling | p11 |
| Dry ceiling | 1.00 |
| Ceilings have stains of condensation (in the cold season) | 1.02 |
| The ceilings show traces of dampness | 1.05 |
| Floors | p12 |
| Dry floors | 1.00 |
| Floors have stains of condensation (in the cold season) | 1.02 |
| The floors show traces of dampness | 1.05 |
© 2019 by the authors. Licensee MDPI, Basel, Switzerland. This article is an open access article distributed under the terms and conditions of the Creative Commons Attribution (CC BY) license (http://creativecommons.org/licenses/by/4.0/).
Share and Cite
Bungău, C.C.; Prada, I.F.; Prada, M.; Bungău, C. Design and Operation of Constructions: A Healthy Living Environment-Parametric Studies and New Solutions. Sustainability 2019, 11, 6824. https://doi.org/10.3390/su11236824
Bungău CC, Prada IF, Prada M, Bungău C. Design and Operation of Constructions: A Healthy Living Environment-Parametric Studies and New Solutions. Sustainability. 2019; 11(23):6824. https://doi.org/10.3390/su11236824
Chicago/Turabian StyleBungău, Constantin C., Ioana Francesca Prada, Marcela Prada, and Constantin Bungău. 2019. "Design and Operation of Constructions: A Healthy Living Environment-Parametric Studies and New Solutions" Sustainability 11, no. 23: 6824. https://doi.org/10.3390/su11236824
APA StyleBungău, C. C., Prada, I. F., Prada, M., & Bungău, C. (2019). Design and Operation of Constructions: A Healthy Living Environment-Parametric Studies and New Solutions. Sustainability, 11(23), 6824. https://doi.org/10.3390/su11236824

