Study on Dry Deashing and Desulfurization of Pulverized Coal via Pulsating Circulating Airflow Technology
Highlights
- Designed a novel pulsating airflow system for coal powder stratification;
- Optimized deashing via airflow velocity and pulsation frequency adjustment;
- Under the optimal process parameters, the ash content of the cleaned coal was reduced by 14.96%;
- The optimal deashing process parameters were verified using interaction response surface methodology;
- XRF analysis indicated a reduction of 0.354% in sulfur content in the treated clean coal.
Abstract
1. Introduction
2. Materials and Methods
2.1. Materials
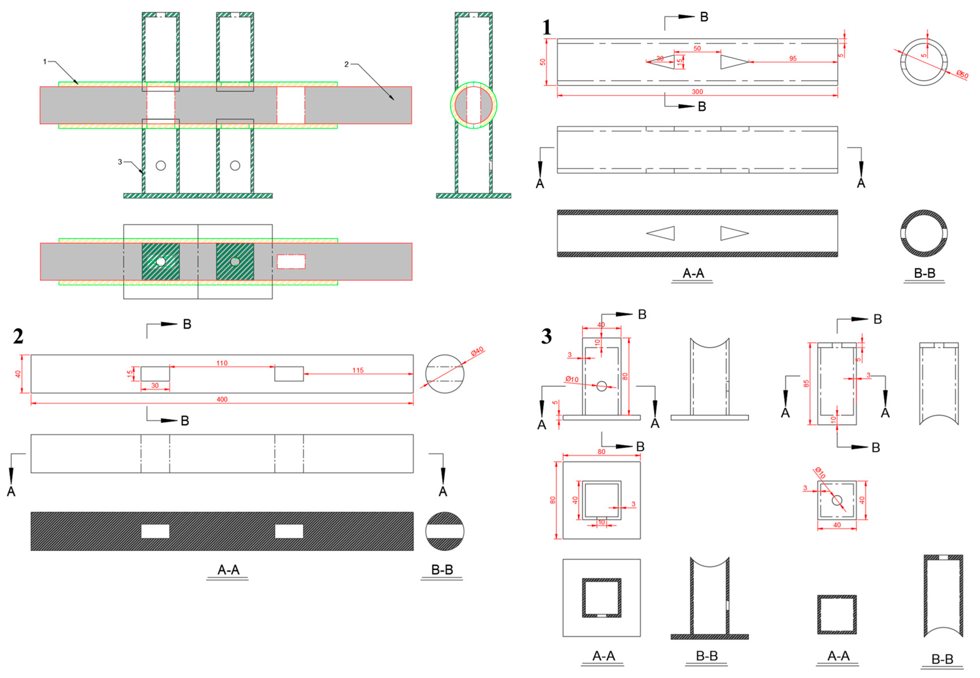
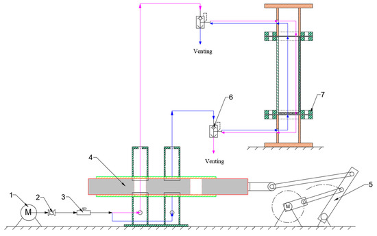
2.2. Apparatus
2.3. Methods
3. Results and Discussion
3.1. Optimization of Separation Parameters
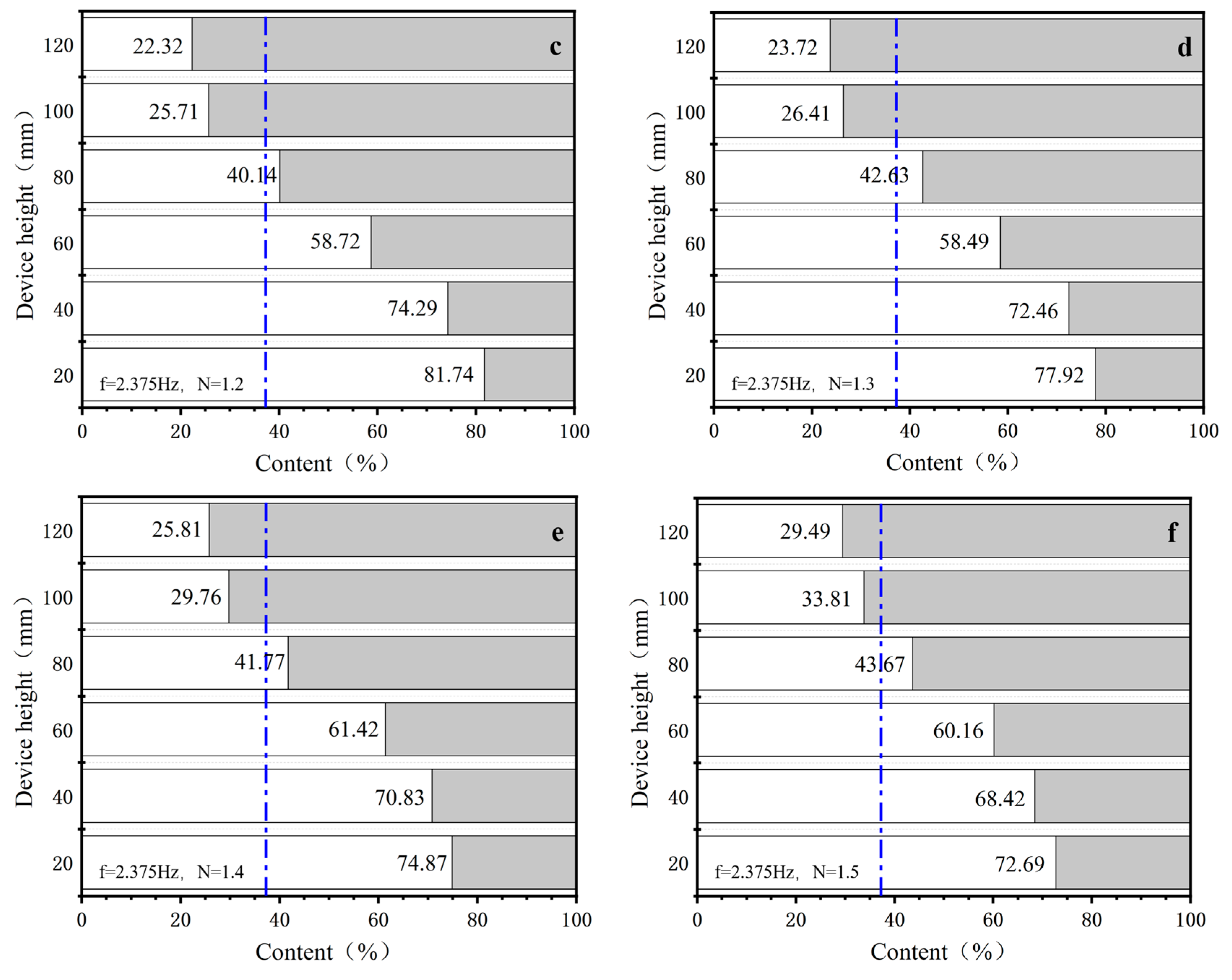
3.1.1. Effect of Gas Velocity on Separation Performance
3.1.2. Effect of Circulating Airflow Frequency on Separation Performance
3.2. Quadratic Equation of the Standard Deviation of Ash Segregation
3.3. Evaluation of Sulfur Removal Efficiency
3.4. Comparison of the Pulsating Airflow Separation with Other Dry Beneficiation Methods
4. Conclusions
- (1)
- Gas velocity and pulsating airflow frequency significantly influence the de-ashing performance of pulverized coal. After being strengthened by pulsating circulating airflow, efficient separation of coal particles smaller than 1 mm can be achieved, exhibiting a significant reduction in ash content. As the gas velocity and airflow frequency increase, the standard deviation of ash segregation (σash) shows an increasing and decreasing trend. Comprehensive analysis reveals optimal de-ashing efficiency when fluidization number N = 1.2 and the circulating airflow frequency f = 2.375 Hz is achieved. Under these conditions, a pronounced stratification is observed, with σash reaching 25%. The ash content of the cleaned coal is reduced to 22.32%, representing a 14.96% decrease compared to the initial ash content.
- (2)
- Based on the interaction between the fluidization number and the circulating airflow frequency, a regression model for the standard deviation of ash segregation (σash) in separating pulverized coal particles smaller than 1 mm was developed using Design-Expert experimental design software.The relative error between the experimentally obtained standard deviation of ash segregation under optimal process conditions and the value predicted by the model was only 2.33%, indicating that the proposed regression model is highly reliable.(σash) = −133.18 + 186.138 × Q + 38.585 × E − 12.025 × Q × E − 66.196 × Q2 − 4.931 × E2
- (3)
- The pulsating circulating airflow significantly affected the removal of sulfur from pulverized coal, with the sulfur content in the cleaned coal reduced by 2.13% compared to the raw coal. Other harmful elements were also partially removed, with the contents of Si, Al, and Cl reduced by 3.63%, 1.59%, and 0.089%, respectively. These results demonstrate that the pulsating circulating airflow can effectively remove harmful elements from coal particles with a diameter of less than 1 mm.
Author Contributions
Funding
Institutional Review Board Statement
Informed Consent Statement
Data Availability Statement
Conflicts of Interest
References
- Chen, Q.R.; Yang, Y.F. Development of dry beneficiation of coal in China. Coal Prep. 2003, 23, 3–12. [Google Scholar] [CrossRef]
- China National Bureau of Statistics. Statistical Communiqué on the National Economy and Social Development of the People’s Republic of China in 2024. Available online: https://www.stats.gov.cn/sj/zxfb/202502/t20250228_1958817.html (accessed on 27 May 2025).
- Iordanidis, A.; Asvesta, A.; Kapageridis, I.; Vasileiadou, A.; Koios, K.; Oikonomidis, S.; Kantiranis, N. A Comprehensive Analytical Characterization of Greek Lignite Bottom Ash Samples. Therm. Sci. 2021, 25, 1879–1889. [Google Scholar] [CrossRef]
- Dong, L.; Wang, Z.M.; Zhou, E.H.; Wang, X.; Li, G.M.; Fan, X.C.; Zhang, B.; Duan, C.L.; Chen, Z.Q.; Luo, Z.F.; et al. A novel dry beneficiation process for coal. Int. J. Coal Prep. Util. 2022, 42, 1105–1125. [Google Scholar] [CrossRef]
- Dwari, R.K.; Rao, K.H. Dry beneficiation of coal—A review. Miner. Process. Extr. Metall. Rev. 2007, 28, 177–234. [Google Scholar] [CrossRef]
- Zhao, Y.M.; Li, G.M.; Luo, Z.F.; Zhang, B.; Dong, L.; Liang, C.C.; Duan, C.L. Industrial Application of a Modularized Dry-Coal-Beneficiation Technique Based on a Novel Air Dense Medium Fluidized Bed. Int. J. Coal Prep. Util. 2017, 37, 44–57. [Google Scholar] [CrossRef]
- Zhou, C.Y.; Liu, X.B.; Zhao, Y.M.; Yang, X.L.; Li, Y.J.; Dong, L.; Duan, C.L.; Rao, Z.H. Recent progress and potential challenges in coal upgrading via gravity dry separation technologies. Fuel 2021, 305, 121430. [Google Scholar] [CrossRef]
- Dong, L.; Zhao, Y.M.; Peng, L.P.; Zhao, J.; Luo, Z.F.; Liu, Q.X.; Duan, C.L. Characteristics of pressure fluctuations and fine coal preparation in gas-vibro fluidized bed. Particuology 2015, 21, 146–153. [Google Scholar] [CrossRef]
- Yang, X.L.; Fu, Z.J.; Zhao, J.; Zhou, E.H.; Zhao, Y.M. Process analysis of fine coal preparation using a vibrated gas-fluidized bed. Powder Technol. 2015, 279, 18–23. [Google Scholar] [CrossRef]
- Sahu, A.K.; Biswal, S.K.; Parida, A. Development of Air Dense Medium Fluidized Bed Technology for Dry Beneficiation of Coal—A Review. Int. J. Coal Prep. Util. 2009, 29, 216–241. [Google Scholar] [CrossRef]
- Fan, M.; Chen, Q.; Zhao, Y.; Tao, D.; Luo, Z.; Zhang, X.; Tao, X.; Yang, G. Fine coal dry classification and separation. Miner. Metall. Process. 2006, 23, 17–21. [Google Scholar] [CrossRef]
- Oda, T.; Kunisue, Y.; Masuda, S. Pulverized Coal Beneficiation by Dry Type High-Gradient Magnetic Separation Process. IEEE Trans. Magn. 1983, 19, 2121–2123. [Google Scholar] [CrossRef]
- Zhang, B.; Luo, Z.F.; Zhao, Y.M.; Lv, B.; Song, S.L.; Duan, C.L.; Chen, Z.Q. Effect of a high-density coarse-particle layer on the stability of a gas-solid fluidized bed for dry coal beneficiation. Int. J. Miner. Process. 2014, 132, 8–16. [Google Scholar] [CrossRef]
- Yu, X.; Luo, Z. Effect of 0-1 mm pulverized coal on desulfurization and upgrading of low grade lignite in dry cascade separation bed with compound force field. Fuel 2022, 309, 122116. [Google Scholar] [CrossRef]
- Sosnowski, T.R.; Gizynska, K.; Zywczyk, L. Fluidization and break-up of powder particle aggregates during constant and pulsating flow in converging nozzles. Colloids Surf. A-Physicochem. Eng. Asp. 2014, 441, 905–911. [Google Scholar] [CrossRef]
- Yang, Y.; Ge, L.H.; He, Y.Q.; Xie, W.N.; Ge, Z.Z. Mechanism and Fine Coal Beneficiation of a Pulsating Airflow Classifier. Int. J. Coal Prep. Util. 2019, 39, 20–32. [Google Scholar] [CrossRef]
- Dong, L.; Zhang, B.; Zhang, Y.; Zhao, Y.M.; Zhou, E.H.; Lv, P.; Duan, C.L. Kinetic characteristics of the particles in a dense-phase pulsed fluidized bed for dry beneficiation. Can. J. Chem. Eng. 2017, 95, 1133–1140. [Google Scholar] [CrossRef]
- Li, Y.; Zhou, C.; Lv, G.; Ren, Y.; Zhao, Y.; Liu, Q.; Rao, Z.; Dong, L. Prediction of minimum fluidization velocity in pulsed gas-solid fluidized bed. Chem. Eng. J. 2021, 417, 127965. [Google Scholar] [CrossRef]
- Li, J.; Aranson, I.S.; Kwok, W.K.; Tsimring, L.S. Periodic and disordered structures in a modulated gas-driven granular layer. Phys. Rev. Lett. 2003, 90, 134301. [Google Scholar] [CrossRef]
- GB/T 212-2008; Proximate Analysis of Coal. General Administration of Quality Supervision, Inspection and Quarantine of the People’s Republic of China: Beijing, China, 2008.
- GB/T 478-2008; Sieve Analysis of Coal. General Administration of Quality Supervision, Inspection and Quarantine of the People’s Republic of China: Beijing, China, 2008.
- Yu, X.; Luo, Z.; Li, H.; Yang, X.; Zhou, E.; Jiang, H.; Wu, J.; Song, S.; Cai, L. Effect of vibration on the separation efficiency of high-sulfur coal in a compound dry separator. Int. J. Miner. Process. 2016, 157, 195–204. [Google Scholar] [CrossRef]
- Yang, F.; Zhang, M.R.; Ren, G.J.; Yao, S.Y.; Zhou, E.H. Study on the Separation Effect and Mechanism of 6-0.5 mm Coal in Fluidized Bed with Vibratory Combined Force Field. Energies 2023, 16, 1133. [Google Scholar] [CrossRef]
- Mohanta, S.K.; Dwari, R.K. Tribo-electrostatic separation of coal and mineral particles: A review. Int. J. Coal Prep. Util. 2025. [Google Scholar] [CrossRef]















| Mt (%) | Aad (%) | Vdaf (%) | FC (%) | True Density (g/cm3) |
|---|---|---|---|---|
| 1.21 | 37.28 | 13.17 | 48.34 | 1.807 |
| Density (g/cm3) | Yield (%) | Ash Content (%) | Cumulative Floats | Cumulative Sinks | Separating Density | |||
|---|---|---|---|---|---|---|---|---|
| Yield (%) | Ash Content (%) | Yield (%) | Ash Content (%) | Density (g/cm3) | Yield (%) | |||
| <1.4 | 8.05 | 10.36 | 8.05 | 10.36 | 100.00 | 37.28 | 1.4 | 37.47 |
| 1.4~1.5 | 29.42 | 13.26 | 37.47 | 12.64 | 91.95 | 39.64 | 1.5 | 51.95 |
| 1.5~1.6 | 22.53 | 25.78 | 60 | 17.57 | 62.53 | 52.05 | 1.6 | 27.74 |
| 1.6~1.8 | 10.42 | 38.17 | 70.42 | 20.62 | 40.00 | 66.85 | 1.7 | 10.42 |
| 1.8~2.0 | 5.76 | 50.85 | 76.18 | 22.91 | 29.58 | 76.95 | 1.9 | 5.76 |
| >2.0 | 23.82 | 83.26 | 100 | 37.28 | 23.82 | 83.26 | 2.1 | 23.82 |
| Total | 100 | 37.28 | - | - | - | - | - | - |
| Frequency | 1.275 | 1.533 | 1.895 | 2.375 | 2.817 | |
|---|---|---|---|---|---|---|
| N = 1.1 | (σash)p | 15.284 | 17.537 | 21.089 | 24.314 | 23.084 |
| (σash)p/(σash)c | 1.028 | 1.18 | 1.419 | 1.636 | 1.553 | |
| N = 1.2 | (σash)p | 16.925 | 18.784 | 21.659 | 25 | 22.501 |
| (σash)p/(σash)c | 1.139 | 1.264 | 1.457 | 1.682 | 1.514 | |
| N = 1.3 | (σash)p | 17.172 | 18.024 | 20.671 | 23.052 | 21.53 |
| (σash)p/(σash)c | 1.155 | 1.212 | 1.391 | 1.551 | 1.449 |
| Group | Clean Coal Ash Content (%) | σash (%) | Average (%) | SD (%) |
|---|---|---|---|---|
| 1 | 22.32 | 25.002% | 25.129 | 0.125 |
| 2 | 22.09 | 25.134% | ||
| 3 | 22.27 | 25.252% |
Disclaimer/Publisher’s Note: The statements, opinions and data contained in all publications are solely those of the individual author(s) and contributor(s) and not of MDPI and/or the editor(s). MDPI and/or the editor(s) disclaim responsibility for any injury to people or property resulting from any ideas, methods, instructions or products referred to in the content. |
© 2025 by the authors. Licensee MDPI, Basel, Switzerland. This article is an open access article distributed under the terms and conditions of the Creative Commons Attribution (CC BY) license (https://creativecommons.org/licenses/by/4.0/).
Share and Cite
Yue, X.; Chen, S.; Zhou, Y. Study on Dry Deashing and Desulfurization of Pulverized Coal via Pulsating Circulating Airflow Technology. Materials 2025, 18, 2625. https://doi.org/10.3390/ma18112625
Yue X, Chen S, Zhou Y. Study on Dry Deashing and Desulfurization of Pulverized Coal via Pulsating Circulating Airflow Technology. Materials. 2025; 18(11):2625. https://doi.org/10.3390/ma18112625
Chicago/Turabian StyleYue, Xinjian, Shanshi Chen, and Yongmin Zhou. 2025. "Study on Dry Deashing and Desulfurization of Pulverized Coal via Pulsating Circulating Airflow Technology" Materials 18, no. 11: 2625. https://doi.org/10.3390/ma18112625
APA StyleYue, X., Chen, S., & Zhou, Y. (2025). Study on Dry Deashing and Desulfurization of Pulverized Coal via Pulsating Circulating Airflow Technology. Materials, 18(11), 2625. https://doi.org/10.3390/ma18112625

