Effect of Pre-Heating on Residual Stresses and Deformation in Laser-Based Directed Energy Deposition Repair: A Comparative Analysis
Abstract
1. Introduction
2. Methodology and Materials
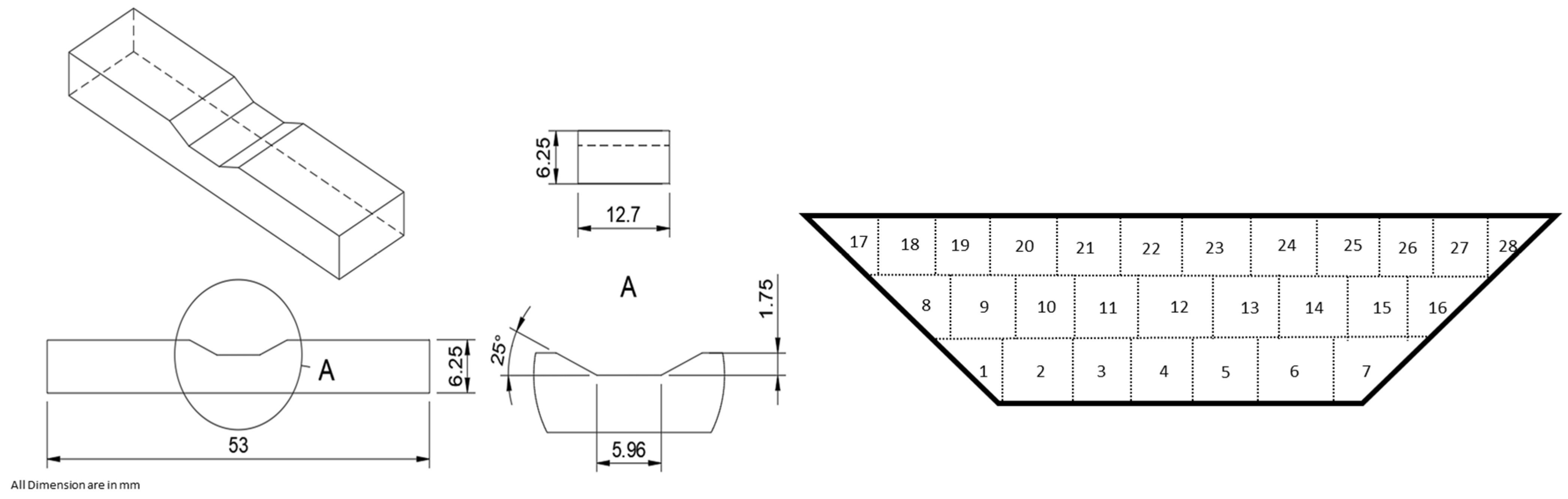
2.1. Tool Path Generation
2.2. Experimental Setup
2.3. Numerical Analysis
2.3.1. Thermal Model
2.3.2. Mechanical Model
2.4. Material Applied during Analyses
3. Results and Discussion
3.1. Thermal Validation and Results
3.2. Residual Stress Evolution and Final Deformation Validation
3.3. Effect of Pre-Heat on Residual Stress and Final Deformation
4. Conclusions
- A sophisticated methodology, utilizing simple trigonometry, was employed to develop a tool path generator capable of accommodating various trapezoidal shapes with differing depths and side wall angles. The tool path is adaptable to process parameters such as scan speed, hatch spacing, and power. This code successfully generates tool paths for both in-house-built systems and event series for Abaqus CAE.
- An uncoupled 3D numerical model was conducted for thermal and mechanical analysis, and its validity was confirmed through comparison with experimental results, including thermal history data and final distortion measurements.
- The study concluded that residual stresses decreased by more than 71% when the substrate was pre-heated to 700 °C and subsequently cooled down to 500 °C (Case 6). Similarly, cooling down to 300 °C (Case 5) also resulted in a reduction of residual stress to 70%.
Author Contributions
Funding
Institutional Review Board Statement
Informed Consent Statement
Data Availability Statement
Acknowledgments
Conflicts of Interest
References
- Li, L.; Zhang, X.; Liou, F. Experimental and Numerical Investigation in Directed Energy Deposition for Component Repair. Materials 2021, 14, 1409. [Google Scholar] [CrossRef] [PubMed]
- Fang, J.X.; Wang, J.X.; Wang, Y.J.; He, H.T.; Zhang, D.B.; Cao, Y. Microstructure Evolution and Deformation Behavior during Stretching of a Compositionally Inhomogeneous TWIP-TRIP Cantor-like Alloy by Laser Powder Deposition. Mater. Sci. Eng. A 2022, 847, 143319. [Google Scholar] [CrossRef]
- Zhang, X.; Li, W.; Adkison, K.M.; Liou, F. Damage Reconstruction from Tri-Dexel Data for Laser-Aided Repairing of Metallic Components. Int. J. Adv. Manuf. Technol. 2018, 96, 3377–3390. [Google Scholar] [CrossRef]
- Fang, J.X.; Ma, G.Z.; Tian, H.L.; Li, S.B.; Huang, H.S.; Liu, Y.; Jiang, Y.L.; Liu, B. Transformation-Induced Strain of a Low Transformation Temperature Alloy with High Hardness during Laser Metal Deposition. J. Manuf. Process. 2021, 68, 1585–1595. [Google Scholar] [CrossRef]
- Al Rashid, A.; Khan, S.A.; Koç, M. Product, Process, Property, and Performance (PPPP) Relationship of 3D-Printed Polymers and Polymer Composites: Numerical and Experimental Analysis. Adv. Ind. Eng. Polym. Res. 2023, 7, 245–254. [Google Scholar] [CrossRef]
- Khan, S.A.; Al Rashid, A.; Muhammad, J.; Ali, F.; Koc, M. 3D Printing for Rapid Response to Climate Change: Challenges and Emergency Needs. Intell. Sustain. Manuf. 2024, 1, 10004. [Google Scholar] [CrossRef]
- Pantazopoulos, G.; Zormalia, S. Analysis of the Failure Mechanism of a Gripping Tool Steel Component Operated in an Industrial Tube Draw Bench. Eng. Fail. Anal. 2011, 18, 1595–1604. [Google Scholar] [CrossRef]
- Fang, J.X.; Dong, S.Y.; Li, S.B.; Wang, Y.J.; Xu, B.S.; Li, J.; Liu, B.; Jiang, Y.L. Direct Laser Deposition as Repair Technology for a Low Transformation Temperature Alloy: Microstructure, Residual Stress, and Properties. Mater. Sci. Eng. A 2019, 748, 119–127. [Google Scholar] [CrossRef]
- Al Rashid, A.; Koç, M. Additive Manufacturing for Sustainability and Circular Economy: Needs, Challenges, and Opportunities for 3D Printing of Recycled Polymeric Waste. Mater. Today Sustain. 2023, 24, 100529. [Google Scholar] [CrossRef]
- Farooq, M.U.; Anwar, S.; Ullah, R.; Guerra, R.H. Sustainable Machining of Additive Manufactured SS-316L Underpinning Low Carbon Manufacturing Goal. J. Mater. Res. Technol. 2023, 24, 2299–2318. [Google Scholar] [CrossRef]
- Gong, Z.; Zhang, T.; Chen, Y.; Lu, J.; Ding, X.; Zhang, S.; Lan, M.; Shen, Y.; Wang, S. Effect of Laser Shock Peening on Stress Corrosion Cracking of TC4/2A14 Dissimilar Metal Friction Stir Welding Joints. J. Mater. Res. Technol. 2024, 30, 1716–1725. [Google Scholar] [CrossRef]
- Tariq, U.; Joy, R.; Wu, S.H.; Mahmood, M.A.; Malik, A.W.; Liou, F. A State-of-the-Art Digital Factory Integrating Digital Twin for Laser Additive and Subtractive Manufacturing Processes. Rapid Prototyp. J. 2023. ahead-of-print. [Google Scholar] [CrossRef]
- Mahmood, M.A.; Tariq, U. A Novel Framework Using FEM and Machine Learning Models with Experimental Verification for Inconel-718 Rapid Part Qualification by Laser Powder Bed Fusion. Int. J. Adv. Manuf. Technol. 2023, 129, 1567–1584. [Google Scholar] [CrossRef]
- Wang, J.; Pan, Z.; Wang, Y.; Wang, L.; Su, L.; Cuiuri, D.; Zhao, Y.; Li, H. Evolution of Crystallographic Orientation, Precipitation, Phase Transformation and Mechanical Properties Realized by Enhancing Deposition Current for Dual-Wire Arc Additive Manufactured Ni-Rich NiTi Alloy. Addit. Manuf. 2020, 34, 101240. [Google Scholar] [CrossRef]
- Joy, R.; Wu, S.-H.; Tariq, U.; Mahmood, M.A.; Liou, F. Effect Of Inter-Layer Dwell Time on Residual Stresses in Directed Energy Deposition of High Strength Steel Alloy. In Proceedings of the 34th Annual International Solid Freeform Fabrication Symposium—An Additive Manufacturing Conference, Austin, TX, USA, 14–16 August 2023. [Google Scholar]
- Xie, J.; Zhou, Y.; Zhou, C.; Li, X.; Chen, Y. Microstructure and Mechanical Properties of Mg–Li Alloys Fabricated by Wire Arc Additive Manufacturing. J. Mater. Res. Technol. 2024, 29, 3487–3493. [Google Scholar] [CrossRef]
- Wu, S.-H.; Tariq, U.; Joy, R.; Sparks, T.; Flood, A.; Liou, F. Experimental, Computational, and Machine Learning Methods for Prediction of Residual Stresses in Laser Additive Manufacturing: A Critical Review. Materials 2024, 17, 1498. [Google Scholar] [CrossRef] [PubMed]
- Kumar, M.S.; Yang, C.-H.; Farooq, M.U.; Kavimani, V.; Adesoji, A.A. Enhanced Structural Integrity of Laser Powder Bed Fusion Based AlSi10Mg Parts by Attaining Defect Free Melt Pool Formations. Sci. Rep. 2023, 13, 16672. [Google Scholar] [CrossRef] [PubMed]
- Hu, J.C.; Yang, K.; Wang, Q.Y.; Zhao, Q.C.; Jiang, Y.H.; Liu, Y.J. Ultra-Long Life Fatigue Behavior of a High-Entropy Alloy. Int. J. Fatigue 2024, 178, 108013. [Google Scholar] [CrossRef]
- Chen, F.; Zhang, H.; Li, Z.; Luo, Y.; Xiao, X.; Liu, Y. Residual Stresses Effects on Fatigue Crack Growth Behavior of Rib-to-Deck Double-Sided Welded Joints in Orthotropic Steel Decks. Adv. Struct. Eng. 2023, 27, 35–50. [Google Scholar] [CrossRef]
- Wu, Y.; Chen, J.; Zhang, L.; Ji, J.; Wang, Q.; Zhang, S. Effect of Boron on the Structural Stability, Mechanical Properties, and Electronic Structures of Γ′-Ni3Al in TLP Joints of Nickel-Based Single-Crystal Alloys. Mater. Today Commun. 2022, 31, 103375. [Google Scholar] [CrossRef]
- Hua, L.; Liu, Y.; Qian, D.; Xie, L.; Wang, F.; Wu, M. Mechanism of Void Healing in Cold Rolled Aeroengine M50 Bearing Steel under Electroshocking Treatment: A Combined Experimental and Simulation Study. Mater. Charact. 2022, 185, 111736. [Google Scholar] [CrossRef]
- Xie, J.; Chen, Y.; Wang, H.; Zhang, T.; Zheng, M.; Wang, S.; Yin, L.; Shen, J.; Oliveira, J.P. Phase Transformation Mechanisms of NiTi Shape Memory Alloy during Electromagnetic Pulse Welding of Al/NiTi Dissimilar Joints. Mater. Sci. Eng. A 2024, 893, 146119. [Google Scholar] [CrossRef]
- Song, J.; Chen, Y.; Hao, X.; Wang, M.; Ma, Y.; Xie, J. Microstructure and Mechanical Properties of Novel Ni–Cr–Co-Based Superalloy GTAW Joints. J. Mater. Res. Technol. 2024, 29, 2758–2767. [Google Scholar] [CrossRef]
- Zhao, Y.; Liu, K.; Zhang, H.; Tian, X.; Jiang, Q.; Murugadoss, V.; Hou, H. Dislocation Motion in Plastic Deformation of Nano Polycrystalline Metal Materials: A Phase Field Crystal Method Study. Adv. Compos. Hybrid Mater. 2022, 5, 2546–2556. [Google Scholar] [CrossRef]
- Liu, X.; Wan, Q.H.; Zhu, B.W.; Liu, W.H.; Li, L.X.; Xu, C.C.; Guo, P.C. Effect of Low-Angle Grain Boundary and Twin on Precipitation Mechanism in Pre-Rolled AZ91 Magnesium Alloy. J. Mater. Sci. 2024, 59, 3662–3675. [Google Scholar] [CrossRef]
- Meng, B.; Wang, J.; Chen, M.; Zhu, S.; Wang, F. Study on the Oxidation Behavior of a Novel Thermal Barrier Coating System Using the Nanocrystalline Coating as Bonding Coating on the Single-Crystal Superalloy. Corros. Sci. 2023, 225, 111591. [Google Scholar] [CrossRef]
- Zhu, Q.; Chen, J.; Gou, G.; Chen, H.; Li, P. Ameliorated Longitudinal Critically Refracted—Attenuation Velocity Method for Welding Residual Stress Measurement. J. Mater. Process. Technol. 2017, 246, 267–275. [Google Scholar] [CrossRef]
- Zhang, Z.; Chen, J.; Wang, J.; Han, Y.; Yu, Z.; Wang, Q.; Zhang, P.; Yang, S. Effects of Solder Thickness on Interface Behavior and Nanoindentation Characteristics in Cu/Sn/Cu Microbumps. Weld. World 2022, 66, 973–983. [Google Scholar] [CrossRef]
- Oh, W.J.; Lee, W.J.; Kim, M.S.; Jeon, J.B.; Shim, D.S. Repairing Additive-Manufactured 316L Stainless Steel Using Direct Energy Deposition. Opt. Laser Technol. 2019, 117, 6–17. [Google Scholar] [CrossRef]
- Pinkerton, A.J. Advances in the Modeling of Laser Direct Metal Deposition. J. Laser Appl. 2015, 27, S15001. [Google Scholar] [CrossRef]
- Zhang, X.; Pan, T.; Li, W.; Liou, F. Experimental Characterization of a Direct Metal Deposited Cobalt-Based Alloy on Tool Steel for Component Repair. JOM 2019, 71, 946–955. [Google Scholar] [CrossRef]
- Paul, C.P.; Alemohammad, H.; Toyserkani, E.; Khajepour, A.; Corbin, S. Cladding of WC–12 Co on Low Carbon Steel Using a Pulsed Nd:YAG Laser. Mater. Sci. Eng. A 2007, 464, 170–176. [Google Scholar] [CrossRef]
- Zhang, X.; Li, W.; Chen, X.; Cui, W.; Liou, F. Evaluation of Component Repair Using Direct Metal Deposition from Scanned Data. Int. J. Adv. Manuf. Technol. 2018, 95, 3335–3348. [Google Scholar] [CrossRef]
- Wilson, J.M.; Piya, C.; Shin, Y.C.; Zhao, F.; Ramani, K. Remanufacturing of Turbine Blades by Laser Direct Deposition with Its Energy and Environmental Impact Analysis. J. Clean. Prod. 2014, 80, 170–178. [Google Scholar] [CrossRef]
- Paydas, H.; Mertens, A.; Carrus, R.; Lecomte-Beckers, J.; Tchuindjang, J.T. Laser Cladding as Repair Technology for Ti–6Al–4V Alloy: Influence of Building Strategy on Microstructure and Hardness. Mater. Des. 2015, 85, 497–510. [Google Scholar] [CrossRef]
- Rahito; Wahab, D.A.; Azman, A.H. Additive Manufacturing for Repair and Restoration in Remanufacturing: An Overview from Object Design and Systems Perspectives. Processes 2019, 7, 802. [Google Scholar] [CrossRef]
- Luo, Y.; Liu, X.; Chen, F.; Zhang, H.; Xiao, X. Numerical Simulation on Crack–Inclusion Interaction for Rib-to-Deck Welded Joints in Orthotropic Steel Deck. Metals 2023, 13, 1402. [Google Scholar] [CrossRef]
- Wang, Z.; Zhou, T.; Zhang, S.; Sun, C.; Li, J.; Tan, J. Bo-LSTM Based Cross-Sectional Profile Sequence Progressive Prediction Method for Metal Tube Rotate Draw Bending. Adv. Eng. Inform. 2023, 58, 102152. [Google Scholar] [CrossRef]
- Long, X.; Lu, C.; Su, Y.; Dai, Y. Machine Learning Framework for Predicting the Low Cycle Fatigue Life of Lead-Free Solders. Eng. Fail. Anal. 2023, 148, 107228. [Google Scholar] [CrossRef]
- Long, X.; Su, T.; Lu, C.; Wang, S.; Huang, J.; Chang, C. An Insight into Dynamic Properties of SAC305 Lead-Free Solder under High Strain Rates and High Temperatures. Int. J. Impact Eng. 2023, 175, 104542. [Google Scholar] [CrossRef]
- Deng, J.; Wu, R.; Sun, Z.; Qian, D.; Zhang, Y. A Prediction Model of Ultimate Forming Dimension for Profile Ring with Outer Groove in Ring Rolling Process. Int. J. Adv. Manuf. Technol. 2024, 130, 491–510. [Google Scholar] [CrossRef]
- Zhou, J.; Qi, Q.; Liu, Q.; Wang, Z.; Ren, J. Determining Residual Stress Profile Induced by End Milling from Measured Thin Plate Deformation. Thin-Walled Struct. 2024, 200, 111862. [Google Scholar] [CrossRef]
- Wang, L.; Zou, T.; Cai, K.; Liu, Y. Rolling Bearing Fault Diagnosis Method Based on Improved Residual Shrinkage Network. J. Braz. Soc. Mech. Sci. Eng. 2024, 46, 172. [Google Scholar] [CrossRef]
- Shi, J.; Zhao, B.; Tu, L.; Xin, Q.; Xie, Z.; Zhong, N.; Lu, X. Transient Lubrication Analysis of Journal-Thrust Coupled Bearing Considering Time-Varying Loads and Thermal-Pressure Coupled Effect. Tribol. Int. 2024, 194, 109502. [Google Scholar] [CrossRef]
- Gao, Q.; Ding, Z.; Liao, W.H. Effective Elastic Properties of Irregular Auxetic Structures. Compos. Struct. 2022, 287, 115269. [Google Scholar] [CrossRef]
- Li, J.; Wang, Z.; Zhang, S.; Lin, Y.; Wang, L.; Sun, C.; Tan, J. A Novelty Mandrel Supported Thin-Wall Tube Bending Cross-Section Quality Analysis: A Diameter-Adjustable Multi-Point Contact Mandrel. Int. J. Adv. Manuf. Technol. 2023, 124, 4615–4637. [Google Scholar] [CrossRef]
- Newkirk, J.W. Multi-Layer Laser Metal Deposition Process by Presented to the Faculty of the Graduate School of the Missouri University of Science and Technology in Partial Fulfillment of the Requirements for the Degree Master of Science in Manufacturing Engineering App. Master’s Thesis, Missouri University of Science and Technology, Rolla, MO, USA, 2014. [Google Scholar]
- Lu, X.; Lin, X.; Chiumenti, M.; Cervera, M.; Hu, Y.; Ji, X.; Ma, L.; Yang, H.; Huang, W. Residual Stress and Distortion of Rectangular and S-Shaped Ti-6Al-4V Parts by Directed Energy Deposition: Modelling and Experimental Calibration. Addit. Manuf. 2019, 26, 166–179. [Google Scholar] [CrossRef]
- Hodek, J.; Vavřík, J.; Urbánek, M.; Džugan, J. Numerical simulation development and computational optimization for directed energy deposition additive manufacturing process. Materials 2020, 13, 2666. [Google Scholar] [CrossRef] [PubMed]
- Smith, M. ABAQUS/Standard User’s Manual, Version 6.9; Dassault Systèmes Simulia Corp: Johnston, RI, USA, 2009. [Google Scholar]
- Rehan, M.; Khan, S.A.; Naveed, R.; Usman, M.; Anwar, S.; AlFaify, A.Y.; Pruncu, C.I.; Lamberti, L. Experimental Investigation of the Influence of Wire Offset and Composition on Complex Profile WEDM of Ti6Al4V Using Trim-Pass Strategy. Int. J. Adv. Manuf. Technol. 2023, 127, 1209–1224. [Google Scholar] [CrossRef]
- Tariq, U.; Joy, R.; Wu, S.-H.; Arif Mahmood, M.; Woodworth, M.M.; Liou, F. Optimization of Computational Time for Digital Twin Database in Directed Energy Deposition for Residual Stresses; University of Texas at Austin: Austin, TX, USA, 2023. [Google Scholar]
- Khalil, A.K.; Yip, W.S.; Rehan, M.; To, S. A Novel Magnetic Field Assisted Diamond Turning of Ti-6Al-4 V Alloy for Sustainable Ultra-Precision Machining. Mater. Today Commun. 2023, 35, 105829. [Google Scholar] [CrossRef]
- Mahmood, M.A.; Popescu, A.C.; Hapenciuc, C.L.; Ristoscu, C.; Visan, A.I.; Oane, M.; Mihailescu, I.N. Estimation of Clad Geometry and Corresponding Residual Stress Distribution in Laser Melting Deposition: Analytical Modeling and Experimental Correlations. Int. J. Adv. Manuf. Technol. 2020, 111, 77–91. [Google Scholar] [CrossRef]
- Wu, Q.; Mukherjee, T.; Liu, C.; Lu, J.; DebRoy, T. Residual Stresses and Distortion in the Patterned Printing of Titanium and Nickel Alloys. Addit. Manuf. 2019, 29, 100808. [Google Scholar] [CrossRef]

















| a (mm) | b (mm) | cf (mm) | cr (mm) | ff | fr |
|---|---|---|---|---|---|
| 1.1 | 1.5 | 2.2 | 1.1 | 0.6 | 1.4 |
| Temperature (°C) | Density (kg/m3) | Thermal Conductivity (W/m. °C) | Heat Capacity (J/kg °C) | Poisson’s Ratio | Thermal Expansion Coefficient (μm/m/°C) | Young’s Modulus (Gpa) | Elastic Limit (Mpa) |
|---|---|---|---|---|---|---|---|
| 20 | 4420 | 7 | 546 | 0.345 | 8.78 | 110 | 850 |
| 205 | 4395 | 8.75 | 584 | 0.35 | 10 | 100 | 630 |
| 500 | 4350 | 12.6 | 651 | 0.37 | 11.2 | 76 | 470 |
| 995 | 4282 | 22.7 | 753 | 0.43 | 12.3 | 15 | 13 |
| 1100 | 4267 | 19.3 | 641 | 0.43 | 12.4 | 5 | 5 |
| 1200 | 4252 | 21 | 660 | 0.43 | 12.42 | 4 | 1 |
| 1600 | 4198 | 25.8 | 732 | 0.43 | 12.5 | 1 | 0.5 |
| 1650 | 3886 | 83.5 | 831 | 0.43 | 12.5 | 0.1 | 0.1 |
| 2000 | 3818 | 83.5 | 831 | 0.43 | 12.5 | 0.01 | 0.01 |
Disclaimer/Publisher’s Note: The statements, opinions and data contained in all publications are solely those of the individual author(s) and contributor(s) and not of MDPI and/or the editor(s). MDPI and/or the editor(s) disclaim responsibility for any injury to people or property resulting from any ideas, methods, instructions or products referred to in the content. |
© 2024 by the authors. Licensee MDPI, Basel, Switzerland. This article is an open access article distributed under the terms and conditions of the Creative Commons Attribution (CC BY) license (https://creativecommons.org/licenses/by/4.0/).
Share and Cite
Tariq, U.; Wu, S.-H.; Mahmood, M.A.; Woodworth, M.M.; Liou, F. Effect of Pre-Heating on Residual Stresses and Deformation in Laser-Based Directed Energy Deposition Repair: A Comparative Analysis. Materials 2024, 17, 2179. https://doi.org/10.3390/ma17102179
Tariq U, Wu S-H, Mahmood MA, Woodworth MM, Liou F. Effect of Pre-Heating on Residual Stresses and Deformation in Laser-Based Directed Energy Deposition Repair: A Comparative Analysis. Materials. 2024; 17(10):2179. https://doi.org/10.3390/ma17102179
Chicago/Turabian StyleTariq, Usman, Sung-Heng Wu, Muhammad Arif Mahmood, Michael M. Woodworth, and Frank Liou. 2024. "Effect of Pre-Heating on Residual Stresses and Deformation in Laser-Based Directed Energy Deposition Repair: A Comparative Analysis" Materials 17, no. 10: 2179. https://doi.org/10.3390/ma17102179
APA StyleTariq, U., Wu, S.-H., Mahmood, M. A., Woodworth, M. M., & Liou, F. (2024). Effect of Pre-Heating on Residual Stresses and Deformation in Laser-Based Directed Energy Deposition Repair: A Comparative Analysis. Materials, 17(10), 2179. https://doi.org/10.3390/ma17102179

