The Seismic Performance of New Self-Centering Beam-Column Joints of Conventional Island Main Buildings in Nuclear Power Plants
Abstract
:1. Introduction
2. Experimental Program
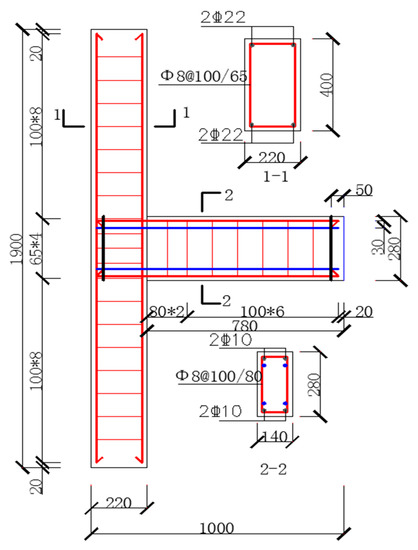
2.1. Test Specimens
2.2. Materials
2.2.1. SMA Materials
2.2.2. Steel Plate, Reinforced Steel, and Concrete Materials
2.3. Load Equipment
2.4. Layout of Test Points
2.5. Loading History
3. Results and Analysis
3.1. Test Phenomenon
3.1.1. Comparison Test Piece PJD-1
3.1.2. Comparison Test Piece SJD-1
3.1.3. Test Piece PSJD-1 and Test Piece PSJD-2
3.2. Beam End Load–Displacement Hysteresis Curve
- (1)
- Comparing Figure 12a,c, it can be seen that the pinching phenomenon of the hysteretic curve of the PJD node is obvious. The hysteretic curve of the PSJD-1 node is rounder than that of the PJD-1 node, and the ultimate bearing capacity is increased by about 44%, indicating that the structural form of the built-in SMA reinforcement-steel end plate improves the hysteretic energy dissipation capacity of the node and significantly improves the bearing capacity of the node.
- (2)
- Although the ultimate bearing capacity of the SJD-1 node is lower than that of the PJD-1 node, the residual displacements at all levels before failure are much smaller. This shows that the SMA bar material can significantly improve the self-centering ability of the structure.
- (3)
- Although the PSJD-2 joint failed prematurely in this test, it can be seen, by comparing Figure 12a,c, that the residual deformation of the PJD-1 joint after complete unloading at each loading stage is very large. The hysteresis curve of the PSJD-1 node is obviously ‘flag-shaped’. After each loading stage is completely unloaded, the residual deformation of the node is very small, indicating that the new node has a good self-centering ability.
3.3. Skeleton Curve
- (1)
- The ultimate bearing capacity of the PSJD-1 node and the area surrounded by the skeleton curve and the abscissa axis are larger than those of the PJD-1 node. Although the PSJD-2 node fails earlier, the ultimate bearing capacity before failure and the area surrounded by the abscissa axis are further improved compared to those of the PSJD-1 node. This shows that the ultimate bearing capacity and the energy dissipation capacity of the joint can be significantly improved by adding a super-elastic SMA reinforcement-steel end plate and by increasing the reinforcement ratio of the corresponding SMA reinforcement.
- (2)
- In the initial elastic stage, the skeleton curve slope of the PJD-1 node is much larger than that of the SJD-1 node, indicating that SMA material will reduce the initial stiffness of the component under the same longitudinal reinforcement ratio. This is because the Young’s modulus of the SMA bars (65.4 GPa) is much smaller than that of the steel bars (203 GPa).
- (3)
- In the yield stage, the yield displacement value of the PSJD-1 joint is significantly larger than that of the PJD-1 joint, and the bearing capacity of the PJD-1 joint and the SJD-1 joint decreases rapidly after yield. However, the bearing capacity of the new joint PSJD-1 is relatively stable after yield and can withstand relatively larger deformation, indicating that the built-in super-elastic SMA reinforcement-steel end plate can delay the yield of the joint to a certain extent and improve the ductility and damage resistance of the joint.
3.4. Residual Displacement of the Beam End
3.5. Energy Consumption Capacity
- (1)
- When the specimen is in the elastic stage, the steel bars and SMA bars in the joint do not yield, and the energy dissipation capacity of each joint is very low.
- (2)
- When the specimen is in the plastic stage, the slope of the displacement–energy curve at the beam end of the PSJD-1 node and the PSJD-2 node is greater than that of the PJD-1 node, and the slope of the SJD-1 node is the smallest, indicating that the energy dissipation capacity of the new node is better than that of the ordinary node, while the energy dissipation capacity of the SJD-1 node is the weakest. When the beam end displacement exceeds 20 mm, the energy dissipation capacity of the PJD-1 node tends to be stable, while the energy dissipation of the PSJD-1 node continues to increase. This shows that the built-in SMA rib-steel end plate can effectively improve the energy dissipation capacity of the joint under large displacement deformation.
- (3)
- Comparing the PSJD-1 and PSJD-2 joints, it can be seen that, with an increase in the SMA reinforcement ratio, the energy dissipation capacity of the new joints is further improved.
3.6. Stiffness Degradation
- (1)
- Comparing the initial stiffness of the four nodes, it can be seen that the initial stiffnesses of the PSJD-1 node, the PSJD-2 node, and the PJD-1 node show little difference. The initial stiffness of the SJD joints is obviously smaller than that of the PJD-1 joints, because the Young’s modulus of the SMA bars is much smaller than that of the steel bars.
- (2)
- When the ductility factor is less than 1, the stiffness degradation rate of the SJD-1 joint is the fastest; this is because the surface of the SMA reinforcement is relatively smooth, and the bonding force between the SMA reinforcement and the concrete is low. After the concrete cracks, the penetrating cracks are quickly formed, and the stiffness decreases rapidly. When the ductility coefficient is greater than 1, the stiffness degradation of the SJD-1 joint is limited; this is because that with a large amount of concrete cracking out of work, the stiffness ratio increases, and the SMA tendons have excellent super-elasticity.
- (3)
- Comparing the PSJD-1 node, the PSJD-2 node, and the PJD-1 node shows that, when the ductility coefficient is less than 1, the stiffness degradation rates of the PSJD-1 and PSJD-2 nodes are significantly smaller than those of ordinary nodes. When the ductility coefficient is greater than 1, although the premature failure of the internal components of the PSJD-2 node causes the stiffness of the node to rapidly degrade, and thus loses comparability, the stiffness of the PSJD-1 node is greater than that of the ordinary node, and the degradation rate is slower. This shows that the stiffness degradation rate of the node can be delayed with a built-in SMA reinforcement-steel end plate, so that the lateral displacement margin of the structure is larger, which can effectively improve the seismic performance of the structure.
4. Numerical Simulation
4.1. Model Establishment and Verification
4.1.1. Constitutive Model of SMA Material
- In the elastic stage, when the stress does not exceed , the loading and unloading processes develop linearly with stiffness .
- In the phase transformation stage, when the stress value exceeds , continuous loading develops with as the stiffness, and this stage ends when the strain reaches ; when unloading in this stage, the stiffness decreases linearly with k1 and then decreases linearly with .
- In the hardening stage, when the strain value is such that ≤ ε ≤ , the loading and unloading processes develop along a straight line with slope r × k1. When the unloading strain value is less than , the continuous unloading is the same as the (1)(2) stage. In general, the strain value does not exceed .
4.1.2. Constitutive Model of the Steel Bar and the Steel Plate
4.1.3. Theoretical Model of Concrete
4.1.4. Types of Beam-Column Elements
4.1.5. Fiber Model
4.2. Model Validation and Parameter Analysis
4.2.1. Model Validation
4.2.2. Parameter Analysis
- Effect of the SMA Reinforcement Ratio
- 2.
- Effect of Different Axial Pressure Ratio
5. Conclusions and Discussions
- (1)
- The self-centering performance of the joint can be improved by adding super-elastic SMA reinforcement in conventional concrete joints. However, replacing all the longitudinal reinforcement at the beam end with SMA reinforcement not only greatly reduces the bearing capacity and stiffness of the joint, but also makes the failure mode of the joint brittle.
- (2)
- The structural form of the built-in SMA reinforcement-steel end plate can significantly improve the bearing capacity of the joint and improve the cracking damage degree of the joint, so as to improve the post-earthquake reparability of the joint.
- (3)
- The stiffness degradation of the joint can be delayed by using the built-in SMA reinforcement-steel end plate structure, and the joint has good displacement ductility and self-centering energy dissipation performance. When the peak displacement of the beam end is 30 mm, the PSJD-1 joint can recover the deformation up to 57%.
- (4)
- For the new joint constructed with built-in SMA reinforcement and a steel end plate, under the premise of suitable reinforcement, increasing the reinforcement ratio of the SMA reinforcement within a certain range can further improve the bearing capacity and self-centering energy dissipation performance of the joint.
- (5)
- Within a certain range, increasing or reducing the axial compression ratio at the column end has little effect on the overall seismic performance of the new joint.
- (6)
- It is worth noting that the above conclusions are obtained by experiments at room temperature. The tested joints embedded with an Ni–Ti SMA bar are suitable for use in relatively stable environments at room temperature. However, Ni–Ti alloys may not be suitable for outdoor applications because of their extreme sensitivity to temperature. In order to address this limitation, on the one hand, experimental or numerical simulation research on the influence of temperature sensitivity on test results should be carried out. On the other hand, other types of hyperelastic materials, such as monocrystalline materials with a large pseudoelasticity change limit, a high energy dissipation and excellent low-temperature properties, should also be considered for outdoor applications.
Author Contributions
Funding
Institutional Review Board Statement
Informed Consent Statement
Data Availability Statement
Acknowledgments
Conflicts of Interest
Abbreviations
| RC | Reinforced concrete |
| SMA | Shape memory alloy |
| VIC-3D | Video image correlate-3D |
| FRP | Fiber-reinforced polymer |
| BFRP | Basalt fiber-reinforced polymer |
| PSJD-1 | Ordinary longitudinal reinforcement plus hybrid joint with 8mm diameters of SMA reinforcement |
| PSJD-2 | Ordinary longitudinal reinforcement plus hybrid joint with 10mm diameters of SMA reinforcement |
| PJD-1 | Ordinary reinforced concrete beam-column joint |
| SJD-1 | Concrete joint with SMA longitudinal reinforcement in beam |
| XJD | Ordinary longitudinal reinforcement plus hybrid joints with SMA reinforcement |
| g | Gravitational acceleration |
| Yield Strength | |
| Ultimate Strength | |
| δ | Elongation Rate |
References
- Qing, M.; Wu, Y.; Zhang, J.; Meng, A.; Zhang, T.; Yang, C.; Liu, F. The development on seismic design and evaluation of CGNPC after Fukushima accident. Chin. Eng. Sci. 2013, 15, 46–51. [Google Scholar] [CrossRef]
- Wang, X.; Lyu, D. Research review of seismic margin assessment methods for nuclear power plants. China Saf. Sci. J. 2015, 25, 116–122. [Google Scholar] [CrossRef]
- Wang, X.; Lyu, D. Review of seismic probability risk assessment of nuclear power plants. China Civ. Eng. J. 2016, 49, 52–68. [Google Scholar] [CrossRef]
- Ying, Z.; Hao, W.; Anqi, G. Earthquake engineering: From earthquake resistance, energy dissipation, and isolation, to resilience. Eng. Mech. 2019, 36, 1–12. [Google Scholar] [CrossRef]
- Liu, W.; Zhang, H.; Huang, Y.; Wang, Y.; Guan, Z. Investigation and discussion of the building seismic damage after Qinghai Maduo Ms7.4 earthquake in 2021. World Earthq. Eng. 2021, 37, 57–64. [Google Scholar] [CrossRef]
- Dai, B.; Tao, Z.; Ye, L.; Gao, Y.; Huang, F. Investigation and analysis of seismic damage to the renovated rural dilapidated residences in Mojiang M5.9 earthquake. J. Hunan Univ. (Nat. Sci.) 2021, 48, 121–131. [Google Scholar] [CrossRef]
- Guo, L.; Liu, J.; Wen, W.; Du, K.; Ding, Y. Investigation and analysis on seismic damage characteristics of building structures in Yangbi M6.4 earthquake in Yunnan province. World Earthq. Eng. 2021, 37, 64–72. [Google Scholar] [CrossRef]
- Tan, H.; Lu, H.; Zhang, G. Damage and analysis of frame structures in wenchuan earthquake. World Earthq. Eng. 2016, 32, 91–96. [Google Scholar]
- An, X.; Li, D. Typical earthquake damage analysis of Ludian earthquake with Ms 6.5. Build. Struct. 2020, 50, 28–36. [Google Scholar] [CrossRef]
- Wei, C.; Wen, Z.; Ju, Y.; Wang, D. Experimental study on seismic behavior and restoring force model of spatial beam-column subassemblies with high strength reinforcements and high strength concrete. J. Build. Struct. 2021, 42, 145–154. [Google Scholar] [CrossRef]
- Rong, X.; Su, T.; Yang, C.; Li, Q. Research on seismic behavior of exterior joints with high-strength reinforced bars and high-toughness concrete. Ind. Constr. 2017, 47, 26–29. [Google Scholar] [CrossRef]
- Zhang, J.; Rong, X.; Wu, H. Experimental research on hysteretic behavior of exterior joints with 600 megapascal reinforced bars. Ind. Constr. 2017, 47, 30–33. [Google Scholar] [CrossRef]
- Yan, C.; Yong, Y.; Jia, J.; Zhang, J.; Liu, S. Study on restoring force model of steel reinforced ultra high strength concrete column and concrete beam joints. China Civ. Eng. J. 2014, 47, 193–197. [Google Scholar] [CrossRef]
- Ahmed, M.; Liang, Q.Q.; Patel, V.I.; Hadi, M.N. Nonlinear analysis of rectangular concrete-filled double steel tubular short columns incorporating local buckling. Eng. Struct. 2018, 175, 13–26. [Google Scholar] [CrossRef]
- Ahmed, M.; Liang, Q.Q.; Patel, V.I.; Hadi, M.N. Numerical analysis of axially loaded circular high strength concrete-filled double steel tubular short columns. Thin-Walled Struct. 2019, 138, 105–116. [Google Scholar] [CrossRef]
- Liang, Q.Q. Nonlinear analysis of circular double-skin concrete-filled steel tubular columns under axial compression. Eng. Struct. 2017, 131, 639–650. [Google Scholar] [CrossRef] [Green Version]
- Lian, M.; Li, S.; Li, X.-L. Seismic Story Shear Distribution Based on Inelastic State of Eccentrically Braced Frame with Vertical Link Composite High Strength Steel. Int. J. Steel Struct. 2021, 21, 1260–1279. [Google Scholar] [CrossRef]
- Shahverdi, M.; Czaderski, C.; Motavalli, M. Iron-based shape memory alloys for prestressed near-surface mounted strengthening of reinforced concrete beams. Constr. Build. Mater. 2016, 112, 28–38. [Google Scholar] [CrossRef]
- Qian, H.; Li, H.; Song, G.; Guo, W. Recentering shape memory alloy passive damper for structural vibration control. Math. Probl. Eng. 2013, 2013, 963530. [Google Scholar] [CrossRef] [Green Version]
- Asgarian, B.; Salari, N.; Saadati, B. Application of Intelligent Passive Devices Based on Shape Memory Alloys in Seismic Control of Structures. Structure 2016, 5, 161–169. [Google Scholar] [CrossRef] [Green Version]
- Rahman Bhuiyan, M.A.; Alam, M.S. Seismic vulnerability assessment of a multi-span continuous highway bridge fitted with shape memory alloy bars and laminated rubber bearings. Earthq. Spectra 2012, 28, 1379–1406. [Google Scholar] [CrossRef]
- Dieng, L.; Helbert, G.; Chirani, S.A.; Lecompte, T.; Pilvin, P. Use of Shape Memory Alloys damper device to mitigate vibration amplitudes of bridge cables. Eng. Struct. 2013, 56, 1547–1556. [Google Scholar] [CrossRef]
- Fang, C.; Wang, W.; Chen, Y.Y. State-of-the-art for application of superelastic shape memory alloy in seismic resistant steel structures. J. Build. Struct. 2019, 40, 1–12. [Google Scholar] [CrossRef]
- Huang, B.; Lao, Y.; Chen, J.; Song, Y. Dynamic Response Analysis of a Frame Structure with Superelastic Nitinol SMA Helical Spring Braces for Vibration Reduction. J. Aerosp. Eng. 2018, 31, 04018096. [Google Scholar] [CrossRef]
- Shu, G.; Li, R. Experiment study on seismic performance of pin-connected steel frame-self-centering-energy-dissipation bracing substructure. J. Southeast Univ. (Nat. Sci. Ed.) 2021, 51, 187–194. [Google Scholar] [CrossRef]
- Wang, J.; Mou, S.; Liu, H. Study on the influencing factors of energy dissipation capacity of SMA-laminated rubber composite isolation bearing. J. Seismol. Res. 2017, 40, 70–74, 167. [Google Scholar] [CrossRef]
- DesRoches, R.; Delemont, M. Seismic retrofit of simply supported bridges using shape memory alloys. Eng. Struct. 2002, 24, 325–332. [Google Scholar] [CrossRef]
- Qian, H.; Li, H.; Song, G. Experimental investigations of building structure with a superelastic shape memory alloy friction damper subject to seismic loads. Smart Mater. Struct. 2016, 25, 125026. [Google Scholar] [CrossRef]
- Mirzai, N.M.; Mansouri, I.; Tezcan, J.; Awoyera, P.O.; Hu, J.W. Estimating optimum parameters of a new SMA damper under different earthquake ground motions. Structures 2021, 33, 2700–2712. [Google Scholar] [CrossRef]
- Hu, S.; Qi, G.; Jiang, G.; Xiong, J. Experimental study on seismic performance for an innovative self-centering SMA brace. Eng. Mech. 2021, 38, 109–118, 142. [Google Scholar] [CrossRef]
- Masi, A.; Santarsiero, G. Seismic Tests on RC Building Exterior Joints with Wide Beams. Adv. Mater. Res. 2013, 787, 771–777. [Google Scholar] [CrossRef]
- Santarsiero, G.; Masi, A. Analysis of slab action on the seismic behavior of external RC beam-column joints. J. Build. Eng. 2020, 32, 101608. [Google Scholar] [CrossRef]
- Realfonzo, R.; Napoli, A.; Pinilla, J.G.R. Cyclic behavior of RC beam-column joints strengthened with FRP systems. Constr. Build. Mater. 2014, 54, 282–297. [Google Scholar] [CrossRef]
- Gand, A.K.; Yeboah, D.; Khorami, M.; Olubanwo, A.O.; Lumor, R. Behaviour of strengthened timber beams using near surface mounted Basalt Fibre Reinforced Polymer (BFRP) rebars. Eng. Solid Mech. 2018, 6, 341–352. [Google Scholar] [CrossRef]
- Gand, A.K.; Sharif, S.; Saidani, M.; Lumor, R.; Fom, P.B.; Yeboah, D.; Ogbologugo, U. Performance of lightweight granulated glass concrete beams reinforced with basalt FRP bars. Eng. Solid Mech. 2019, 7, 247–262. [Google Scholar] [CrossRef]
- Shayanfar, M.A.; Rostamian, M.; Ghanooni-Bagha, M.; Tajban, A.; Nemati, S. Evaluating the plasticity of concrete beam-column connections reinforced with FRP composite rebars. Eng. Solid Mech. 2018, 6, 331–340. [Google Scholar] [CrossRef]
- Qian, H.; Pei, J.; Li, Z.; Kang, L. Experimental study on seismic performance of self-centering beam-column joints reinforced with superelastic SMA and ECC. China Civ. Eng. J. 2020, 53, 64–73, 80. [Google Scholar] [CrossRef]
- Yan, S.; Du, C.; Xiao, Z.; Jiang, X.; Niu, J. Analysis of recoverable deformation behavior of Fe based shape memory alloy concrete frame joints. J. Seismol. Res. 2020, 43, 491–499, 602. [Google Scholar] [CrossRef]
- Oudah, F.; El-Hacha, R. Joint performance in concrete beam-column connections reinforced using SMA smart material. Eng. Struct. 2017, 151, 745–760. [Google Scholar] [CrossRef]
- Dong, J. Experimental research on the self-centering device based on large diameter SMA bar. Struct. Eng. 2018, 34, 101–108. [Google Scholar] [CrossRef]
- Ni, Y.; Sun, L. Experimental study on high-strength concrete under uniaxial compression based on VIC-3D technology. Concrete 2014, 11, 19–23. [Google Scholar] [CrossRef]
- Wang, L.; Hu, J.; Chen, G.; Gong, N. Experimental investigation on interface mechanics of asphalt mixture based on technology of VIC-3D. J. Funct. Mater. 2015, 46, 3115–3120, 3126. [Google Scholar] [CrossRef]
- Tan, Y.; Hou, M.; Zhang, L.; Zhang, K. Studying the strain field distribution of asphalt mixture with the digital speckle correlation method. Road Mater. Pavement Des. 2014, 15, 90–101. [Google Scholar] [CrossRef]
- Wei, K.; Yuan, F.; Dong, Z.; Shao, X.; Wu, G. Precision analysis and civil application of multi-camera digital image correlation method based on encoded targets. J. Southeast Univ. (Nat. Sci. Ed.) 2021, 51, 219–226. [Google Scholar] [CrossRef]
- Zeren, G. Research on Accuracy Verification Method and Engineering Application of Digital Image Correlation; University of Science and Technology of China: Hefei, China, 2020. [Google Scholar] [CrossRef]
- Auricchio, F.; Taylor, R.L.; Lubliner, J. Shape-memory alloys: Macromodelling and numerical simulations of the superelastic behavior. Comput. Methods Appl. Mech. Eng. 1997, 146, 281–312. [Google Scholar] [CrossRef]
- Menegotto, M.; Pinto, P.E. Method of Analysis for cyclically loaded R.C. plane frames including changes in geometry and nonelastic behavior of elements under combined normal force and bending. Proceeding, Symposium on the Resistance and Ultimate Deformability of Structures Acted on by Well Defined Repeated loads. Int. Assoc. Bridge Struct. Eng. 1973, 36, 15–22. [Google Scholar]
- Spacone, E.; Filippou, F.C.; Taucer, F.F. Fiber Beam-column Model for Nonlinear Analysisof R/C Frames: Part1 Formulation. Earthq. Eng. Struct. Dyn. 1996, 25, 711–725. [Google Scholar] [CrossRef]
- Meng, Z. Nonlinear Analysis of Circular Steel Tubular Composite Columns with Recycled Aggregate Concrete Based on OpenSees; Xi’an University of Technology: Xi’an, China, 2020. [Google Scholar] [CrossRef]
- Jia, N. Nonlinear Analysis of Unbonded Partially Prestressed Concrete Beams Based on OpenSees; Hunan University: Changsha, China, 2016. [Google Scholar]


























| Specimen Number | Column Reinforcement | Beam Reinforcement | Axial Compression Ratio | Test Purpose | ||
|---|---|---|---|---|---|---|
| Longitudinal Reinforcement | Hooped Reinforcement | Longitudinal Reinforcement | SMA Reinforcement Ratio (%) | |||
| PJD-1 | 4 × C22 | A8@65/100 | 4 × C10 | 0 | 0.25 | contrast test |
| SJD-1 | 4 × C22 | A8@65/100 | 4 × SMA bars (10 mm) | 0.800 | 0.25 | contrast test |
| PSJD-1 | 4 × C22 | A8@65/100 | 4 × C10 + 4 × SMA bars (8 mm) | 0.513 | 0.25 | model test |
| PSJD-2 | 4 × C22 | A8@65/100 | 4 × C10 + 4 × SMA bars (10 mm) | 0.800 | 0.25 | model test |
| Material Name | Density ( ) | Young’s Modulus (GPa) | Tensile Strength (MPa) | Yield Strength (MPa) | Restoration Strain (%) |
|---|---|---|---|---|---|
| Ni–Ti | 7800 | 65.4 | 600 | 390 | 4.5 |
| Type of Steel Bar | Steel Bar Diameter d (mm) | Yield Strength (MPa) | Ultimate Strength (MPa) | Young’s Modulus (MPa) | Elongation Rate δ (%) |
|---|---|---|---|---|---|
| HPB300 | 6 | 310.67 | 460.56 | 1.90 × 105 | 19.12 |
| 8 | 323.98 | 462.73 | 1.92 × 105 | 19.38 | |
| HRB400 | 10 | 448.56 | 601.09 | 2.03 × 105 | 19.96 |
| 22 | 438.64 | 573.86 | 1.98 × 105 | 20.60 |
| Measurement Items of Concrete Test Block | First Group | Second Heat | End Value | ||||
|---|---|---|---|---|---|---|---|
| 1 | 2 | 3 | 4 | 5 | 6 | ||
| Failing load (kN) | 543.13 | 436.56 | 455.34 | 485.01 | 411.73 | 470.97 | |
| Average value (kN) | 445.95 | 455.90 | 450.93 | ||||
| Compression strength (MPa) | 42.37 | 43.31 | 42.84 | ||||
| Node Number | PJD-1 | SJD-1 | PSJD-1 | PSJD-2 |
|---|---|---|---|---|
| Y1 (mm) | 8.13 | 2.11 | 9.20 | 0.71 |
| Y2 (mm) | 9.59 | 3.82 | 11.37 | 2.19 |
| Y3 (mm) | 11.36 | 5.52 | 13.73 | 3.72 |
| Y4 (mm) | 13.15 | 7.22 | 15.63 | 5.26 |
| Y5 (mm) | 14.93 | 8.92 | 17.74 | 6.81 |
| Y6 (mm) | 16.66 | 10.63 | 19.89 | 8.35 |
| Y7 (mm) | 18.39 | — | 22.05 | — |
| sinα (×10−2) | 2.90 | 2.80 | 3.60 | 2.50 |
| Plastic hinge end number | 5 | 1 | 5 | 4 |
| Plasticity hinge length d (mm) | 300 | 60 | 300 | 240 |
| Parameter | Physical Significance | Value |
|---|---|---|
| First stiffness (N/mm) | 75,000 | |
| Second stiffness (N/mm) | 1827 | |
| Positive phase transition stress (MPa) | 400 | |
| Inverse phase transition stress coefficient | 0.80 | |
| Sliding strain | 0.06 | |
| Hardening strain | 0.06 | |
| Hardening stiffness coefficient | 0.39 |
| Node Trial Number | SMA Bar Diameter (mm) | Axial Compression Ratio |
|---|---|---|
| XJD-1 | 8 | 0.25 |
| XJD-2 | 10 | 0.25 |
| XJD-3 | 12 | 0.25 |
| XJD-4 | 10 | 0.3 |
| XJD-5 | 10 | 0.35 |
Publisher’s Note: MDPI stays neutral with regard to jurisdictional claims in published maps and institutional affiliations. |
© 2022 by the authors. Licensee MDPI, Basel, Switzerland. This article is an open access article distributed under the terms and conditions of the Creative Commons Attribution (CC BY) license (https://creativecommons.org/licenses/by/4.0/).
Share and Cite
Pei, Q.; Wu, C.; Cheng, Z.; Ding, Y.; Guo, H. The Seismic Performance of New Self-Centering Beam-Column Joints of Conventional Island Main Buildings in Nuclear Power Plants. Materials 2022, 15, 1704. https://doi.org/10.3390/ma15051704
Pei Q, Wu C, Cheng Z, Ding Y, Guo H. The Seismic Performance of New Self-Centering Beam-Column Joints of Conventional Island Main Buildings in Nuclear Power Plants. Materials. 2022; 15(5):1704. https://doi.org/10.3390/ma15051704
Chicago/Turabian StylePei, Qiang, Cong Wu, Zhi Cheng, Yu Ding, and Hang Guo. 2022. "The Seismic Performance of New Self-Centering Beam-Column Joints of Conventional Island Main Buildings in Nuclear Power Plants" Materials 15, no. 5: 1704. https://doi.org/10.3390/ma15051704
APA StylePei, Q., Wu, C., Cheng, Z., Ding, Y., & Guo, H. (2022). The Seismic Performance of New Self-Centering Beam-Column Joints of Conventional Island Main Buildings in Nuclear Power Plants. Materials, 15(5), 1704. https://doi.org/10.3390/ma15051704

