Experimental Study of the Influence of the Surface Preparation on the Fatigue Behavior of Polyamide Single Lap Joints
Abstract
1. Introduction
2. Materials and Methods
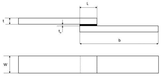
2.1. Materials and Geometry
2.2. Surface Pretreatments
- (1)
- Degreasing: it was carried out by wiping the surfaces by means of a clean cloth soaked with Henkel 7063 cleaner (Henkel Italia, Milano, Italy);
- (2)
- Abrasion: the pretreatment was performed using an aluminum Oxide, 320 grit sandpaper until the effect of the abrasion was barely visible. The abrasion was followed by wiping and degreasing by means of Henkel 7063 cleaner;
- (3)
- APPT: the plasma treatment was performed by means of the Plasma Beam system, supplied by Diener (Diener electronic GmbH, Ebhausen, Germany) and equipped with a 300 W generator. The atmospheric air was used as both processes and cooling gasses. The treatment was carried out as described in [25]. The considered process parameters were the surface-to-nozzle distance (D) and the treatment speed (v). Every combination obtained by varying each parameter between two levels was tested: D could assume the value 5 mm or 10 mm, while v could be equal to 100 mm/s or 200 mm/s;
- (4)
- Abrasion + APPT: even some specimens pretreated with both abrasion and plasma (with the only combination of parameters D = 5 mm and v = 100 mm/s) were realized in order to allow the assessment of the combined effect of the two treatments on the mechanical fatigue properties.
2.3. Surface Characterization
2.4. Mechanical Characterization
2.5. Statistical Analysis
3. Results
3.1. Surface Characterization
3.2. Static Tests Results
3.3. Fatigue Tests Results
4. Conclusions
Author Contributions
Funding
Institutional Review Board Statement
Informed Consent Statement
Data Availability Statement
Acknowledgments
Conflicts of Interest
Appendix A
| Factor B | Factor A–Level A1 | Factor A–Level A2 | Mean Values (Row) |
|---|---|---|---|
| Level B1 | T11 | T21 | S1. |
| Level B2 | T12 | T22 | S2. |
| Mean values (column) | S.1 | S.2 | S.. |
References
- Vendemiatti, C.; Hosokawa, R.; Rangel, R.; Bortoleto, J.; Cruz, N.C.; Rangel, E. Wettability and surface microstructure of polyamide 6 coated with SiOXCYHZ films. Surf. Coat. Technol. 2015, 275, 32–40. [Google Scholar] [CrossRef]
- Zhu, L.; Teng, W.; Xu, H.; Liu, Y.; Jiang, Q.; Wang, C.; Qiu, Y. Effect of absorbed moisture on the atmospheric plasma etching of polyamide fibers. Surf. Coat. Technol. 2008, 202, 1966–1974. [Google Scholar] [CrossRef]
- Gao, Z.; Sun, J.; Peng, S.; Yao, L.; Qiu, Y. Surface modification of a polyamide 6 film by He/CF4 plasma using atmospheric pressure plasma jet. Appl. Surf. Sci. 2009, 256, 1496–1501. [Google Scholar] [CrossRef]
- Gao, Z.; Peng, S.; Sun, J.; Yao, L.; Qiu, Y. Influence of processing parameters on atmospheric pressure plasma etching of polyamide 6 films. Appl. Surf. Sci. 2009, 255, 7683–7688. [Google Scholar] [CrossRef]
- Lennon, P.; Espuche, E.; Sautereau, H.; Sage, D. Influence of microwave plasma treatment on the wettability and the adhesive properties of polyamides films with an epoxy resin. Int. J. Adhes. Adhes. 1999, 19, 273–279. [Google Scholar] [CrossRef]
- Hnilica, J.; Potocnakova, L.; Stupavska, M.; Kudrle, V. Rapid surface treatment of polyamide 12 by microwave plasma jet. Appl. Surf. Sci. 2014, 288, 251–257. [Google Scholar] [CrossRef]
- Pappas, D.; Bujanda, A.; Demaree, J.D.; Hirvonen, J.K.; Kosik, W.; Jensen, R.; McKnight, S. Surface modification of polyamide fibers and films using atmospheric plasmas. Surf. Coat. Technol. 2006, 201, 4384–4388. [Google Scholar] [CrossRef]
- Mandolfino, C.; Lertora, E.; Gambaro, C. Influence of cold plasma treatment parameters on the mechanical properties of polyamide homogeneous bonded joints. Surf. Coat. Technol. 2017, 313, 222–229. [Google Scholar] [CrossRef]
- Ashcroft, I.A.; Hughes, D.J.; Shaw, S.J.; Wahab, M.A.; Crocombe, A. Effect of Temperature on the Quasi-static Strength and Fatigue Resistance of Bonded Composite Double Lap Joints. J. Adhes. 2001, 75, 61–88. [Google Scholar] [CrossRef]
- Harris, J.; Fay, P. Fatigue life evaluation of structural adhesives for automative applications. Int. J. Adhes. Adhes. 1992, 12, 9–18. [Google Scholar] [CrossRef]
- Ishii, K.; Imanaka, M.; Nakayama, H.; Kodama, H. Evaluation of the fatigue strength of adhesively bonded CFRP/metal single and single-step double-lap joints. Compos. Sci. Technol. 1999, 59, 1675–1683. [Google Scholar] [CrossRef]
- Mostovoy, S.; Ripling, E.J. Flaw tolerance of a number of a number of commercial and experimental adhesives. Adhes. Sci. Technol. 1975, 9, 513–562. [Google Scholar]
- Zhang, Z.; Shang, J.K.; Lawrence, F.V. A Backface Strain Technique for Detecting Fatigue Crack Initiation in Adhesive Joints. J. Adhes. 1995, 49, 23–36. [Google Scholar] [CrossRef]
- Shenoy, V.; Ashcroft, I.A.; Critchlow, G.W.; Crocombe, A.; Abdel-Wahab, M. An investigation into the crack initiation and propagation behavior of bonded single-lap joints using backface strain. Int. J. Adhes. Adhes. 2009, 29, 361–371. [Google Scholar] [CrossRef]
- Quaresimin, M.; Ricotta, M. Fatigue behavior and damage evolution of single lap bonded joints in composite material. Compos. Sci. Technol. 2006, 66, 176–187. [Google Scholar] [CrossRef]
- Fernández, M.; de Moura, M.; da Silva, L.; Marques, A. Composite bonded joints under mode I fatigue loading. Int. J. Adhes. Adhes. 2011, 31, 280–285. [Google Scholar] [CrossRef]
- Huang, Y.; Bu, Y.; Zhou, L.; Zhu, J.; Shi, H.; Xie, H.; Feng, X. Fatigue crack growth and propagation along the adhesive interface between fiber-reinforced composites. Eng. Fract. Mech. 2013, 110, 290–299. [Google Scholar] [CrossRef]
- Jeandrau, J.-P.; Peyrac, C.; Lefebvre, F.; Renard, J.; Gantchenko, V.; Patamaprohm, B.; Guinault, C. Fatigue Behaviour of Adhesive Joints. Procedia Eng. 2015, 133, 508–517. [Google Scholar] [CrossRef]
- De Goeij, W.; Van Tooren, M.; Beukers, A. Composite adhesive joints under cyclic loading. Mater. Des. 1999, 20, 213–221. [Google Scholar] [CrossRef]
- De Barros, S.; Kenedi, P.; Ferreira, S.; Budhe, S.; Bernardino, A.; Souza, L. Influence of mechanical surface treatment on fatigue life of bonded joints. J. Adhes. 2017, 93, 599–612. [Google Scholar] [CrossRef]
- Bland, D.J.; Kinloch, A.J.; Watts, J.F. The Role of the Surface Pretreatment in the Durability of Aluminium-Alloy Structural Adhesive Joints: Mechanisms of Failure. J. Adhes. 2013, 89, 369–397. [Google Scholar] [CrossRef][Green Version]
- Pereira, A.; Ferreira, J.; Antunes, F.; Bártolo, P. Study on the fatigue strength of AA 6082-T6 adhesive lap joints. Int. J. Adhes. Adhes. 2009, 29, 633–638. [Google Scholar] [CrossRef]
- Gomatam, R.R.; Sancaktar, E. Effects of various adherend surface treatmens on fatigue behavior of joints bonded with a silver-filled electronically conductive adhesive. J. Adhes. Sci. Technol. 2005, 19, 659–678. [Google Scholar] [CrossRef]
- Kim, W.; Lee, J. Adhesion strength and fatigue life improvement of co-cured composite/metal lap joints by silane-based interphase formation. J. Adhes. Sci. Technol. 2007, 21, 125–140. [Google Scholar] [CrossRef]
- Moroni, F.; Musiari, F.; Sciancalepore, C.; Messori, M. Influence of atmospheric pressure plasma process parameters on the mechanical behavior of thermoplastic joints. Int. J. Adhes. Adhes. 2020, 102, 102650. [Google Scholar] [CrossRef]
- Platt, D.K. Engineering and High Performance Plastics. Rapra Technology Market Report; Smithers Rapra Press: Shrewsbury, UK, 2003. [Google Scholar]
- Teroson PU 9225 Technical Data Sheet. Available online: http://tds.henkel.com/tds5/Studio/ShowPDF/TEROSON%20PU%209225-EN?pid=TEROSON%20PU%209225&format=MTR&subformat=TERO&language=EN&plant=WERCS (accessed on 1 January 2021).
- ASTM D3163-01(2014), Standard Test Method for Determining Strength of Adhesively Bonded Rigid Plastic Lap-Shear Joints in Shear by Tension Loading; ASTM International: West Conshohocken, PA, USA, 2014.
- Geometrical Product Specifications (GPS)—Surface Texture: Areal—Part 2: Terms, Definitions and Surface Texture Parameters; ISO 25178-2:2012; International Organization for Standardization: Geneva, Switzerland, 2012.
- ASTM D3166-99(2020), Standard Test Method for Fatigue Properties of Adhesives in Shear by Tension Loading (Metal/Metal); ASTM International: West Conshohocken, PA, USA, 2020.
- Turner, D.Z. Digital Image Correlation Engine (DICe) Reference Manual, Sandia Report, SAND2015-10606 O, 2015. Available online: https://www.osti.gov/biblio/1245432-digital-image-correlation-engine (accessed on 20 February 2021).
- Croccolo, D.; De Agostinis, M.; Fini, S.; Olmi, G.; Bogojevic, N. Ciric-Kostic, S. Effects of build orientation and thickness of allowance on the fatigue behavior of 15-5 PH stainless steel manufactured by DMLS. Fatigue Fract. Eng. Mater. Struct. 2018, 41, 900–916. [Google Scholar] [CrossRef]


























| Material | Polyamide (PA) |
| Supplier | Ensinger |
| Commercial name | Tecamid 66 MO (PA66) |
| Color | Black |
| Modulus of elasticity (MPa) | 3200 |
| Yield stress (MPa) | 83 |
| Additives | < 2 w/w% (black pigment and molybdenum bisulfite) |
| Dimension | Value in mm |
|---|---|
| Adherend thickness, t | 6.6 |
| Adhesive thickness, ta | 0.3 |
| Overlap length, L | 10 |
| Adherend length, b | 100 |
| Adherend width, W | 25 |
| Surface Treatment | Sa (μm) |
|---|---|
| Degreasing | 0.45 |
| Abrasion | 3.15 |
| APPT (D = 5 mm, v = 100 mm/s) | 0.49 |
| Abrasion + APPT (D = 5 mm, v = 100 mm/s) | 2.85 |
| Surface Treatment | µ (1/ln(MPa)) | k1/µ (MPa) | R2 (-) |
|---|---|---|---|
| Degreasing | 15.15 | 3.66 | 0.54 |
| Abrasion | 12.82 | 6.62 | 0.83 |
| Abrasion + APPT (D = 5 mm, v = 100 mm/s) | 8.47 | 12.87 | 0.82 |
| APPT (D = 5 mm, v = 100 mm/s) | 6.80 | 13.00 | 0.99 |
| APPT (D = 10 mm, v = 100 mm/s | 5.00 | 22.45 | 0.89 |
| APPT (D = 5 mm, v = 200 mm/s) | 7.52 | 10.69 | 0.86 |
| APPT (D = 10 mm, v = 200 mm/s) | 4.52 | 26.03 | 0.94 |
| Surface Treatment | Sum of Squares | DOF | Variance | Fisher’s Ratio | p-Value |
|---|---|---|---|---|---|
| Effect of abrasion | 0.03029 | 1 | 0.03029 | 24.430 | <0.00001 |
| Effect of plasma treatment | 0.00750 | 1 | 0.00750 | 6.052 | 0.017 |
| Interaction | 0.00037 | 1 | 0.00037 | 0.297 | 0.588 |
| Error | 0.05951 | 48 | 0.00124 | - | - |
| Surface Treatment | Sum of Squares | DOF | Variance | Fisher’s Ratio | p-Value |
|---|---|---|---|---|---|
| Effect of distance, D | 0.00741 | 1 | 0.00740 | 5.506 | 0.024 |
| Effect of treatment speed, v | 0.00090 | 1 | 0.00090 | 0.336 | 0.418 |
| Interaction | 0.00057 | 1 | 0.00057 | 0.427 | 0.517 |
| Error | 0.05379 | 40 | 0.00134 | - | - |
| Surface Treatment | Percentage of Fatigue Life Spent for Initiation of Defect |
|---|---|
| Degreasing | 70 ± 7% |
| Abrasion | 56 ± 7% |
| APPT (D = 5 mm, v = 100 mm/s) | 61 ± 5% |
| Abrasion + APPT (D = 5 mm, v = 100 mm/s) | 50 ± 6% |
Publisher’s Note: MDPI stays neutral with regard to jurisdictional claims in published maps and institutional affiliations. |
© 2021 by the authors. Licensee MDPI, Basel, Switzerland. This article is an open access article distributed under the terms and conditions of the Creative Commons Attribution (CC BY) license (http://creativecommons.org/licenses/by/4.0/).
Share and Cite
Musiari, F.; Moroni, F. Experimental Study of the Influence of the Surface Preparation on the Fatigue Behavior of Polyamide Single Lap Joints. Materials 2021, 14, 1008. https://doi.org/10.3390/ma14041008
Musiari F, Moroni F. Experimental Study of the Influence of the Surface Preparation on the Fatigue Behavior of Polyamide Single Lap Joints. Materials. 2021; 14(4):1008. https://doi.org/10.3390/ma14041008
Chicago/Turabian StyleMusiari, Francesco, and Fabrizio Moroni. 2021. "Experimental Study of the Influence of the Surface Preparation on the Fatigue Behavior of Polyamide Single Lap Joints" Materials 14, no. 4: 1008. https://doi.org/10.3390/ma14041008
APA StyleMusiari, F., & Moroni, F. (2021). Experimental Study of the Influence of the Surface Preparation on the Fatigue Behavior of Polyamide Single Lap Joints. Materials, 14(4), 1008. https://doi.org/10.3390/ma14041008
