FCG Modelling Considering the Combined Effects of Cyclic Plastic Deformation and Growth of Micro-Voids
Abstract
:1. Introduction
2. Numerical Model
2.1. Material Constitutive Model
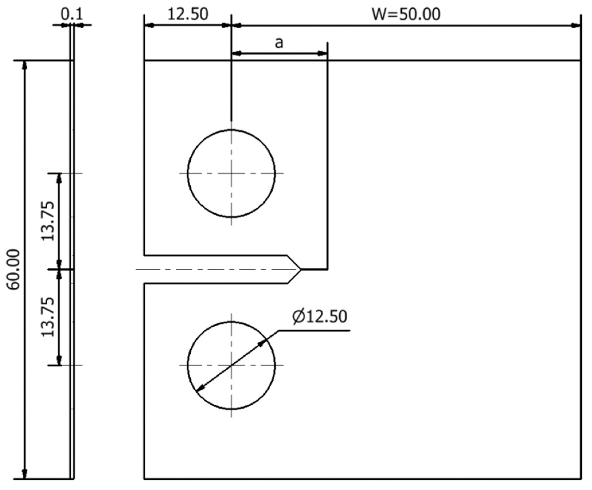
2.2. Geometry, Mesh and Loading Case
2.3. FCG Algorithm
3. Results
3.1. Fatigue Crack Growth Rate
3.2. Cumulative Plastic Strain
3.3. Size of the Plastic Zone at the Crack Tip
3.4. Plasticity Induced Crack Closure
3.5. Porosity versus Plastic Deformation
3.6. Stress Triaxiality
4. Discussion
5. Conclusions
- The inclusion of micro-voids in the model based on cumulative plastic strain produced an unexpected decrease in da/dN for low values of ΔK. On the other hand, at relatively high values of ΔK, the GTN model increased the FCG rate.
- The inclusion of porosity in the analysis increases the plastic deformation level at the crack tip as well as the size of the plastic zones ahead of the crack tip.
- This higher plastic deformation results in higher plastic wakes at the crack flanks, decreasing the crack opening level.
- At low values of ΔK, the inclusion of micro-voids increased plasticity induced crack closure (PICC), promoting the reduction in da/dN. At high values of ΔK, there is no PICC even with GTN. Therefore, the variations of da/dN are linked with changes of PICC. Disabling the contact of crack flanks results in an increase in da/dN with GTN, for all values of ΔK studied.
- There is a global trend for the increase in porosity with plastic strain. However, an oscillatory behaviour is observed in each load cycle, since the stress at the crack tip is of compressive nature during the unloading phase. This induces a partial close of the micro-voids on the material. The increase in crack length and, therefore, of ΔK, also increases the porosity level.
- Regardless, the variation of porosity with plastic strain is relatively complex. This complexity was explained by the strong link found between stress triaxiality and porosity level.
Author Contributions
Funding
Institutional Review Board Statement
Informed Consent Statement
Data Availability Statement
Conflicts of Interest
Nomenclature
| Initial crack length | |
| Swift law material parameters | |
| Constants of the Paris-Erdogan law | |
| Parameter of the Armstrong and Frederick kinematic law | |
| Fatigue crack growth rate | |
| Void volume fraction | |
| Initial void volume fraction | |
| Total void volume fraction that can be nucleated by the plastic strain rate | |
| Effective porosity due to nucleation of micro-voids | |
| Maximum load in a loading cycle | |
| Minimum load in a loading cycle | |
| Crack opening load | |
| Portion of load cycle during which the crack is open | |
| Stress ratio | |
| Standard deviation (Gaussian distribution) of the nucleation process | |
| Deviatoric back-stress tensor | |
| Kinematic saturation stress | |
| Isotropic saturation stress | |
| Elastic CTOD range | |
| Total CTOD range | |
| Stress intensity factor range | |
| Number of load cycles | |
| Hydrostatic-pressure | |
| Void interaction parameters | |
| Plastic strain rate tensor | |
| Mean nucleation strain | |
| Critical plastic strain | |
| Deviatoric component of the plastic strain rate tensor | |
| Volumetric component of the plastic strain rate tensor | |
| Equivalent plastic strain | |
| Equivalent plastic strain rate | |
| Stress tensor | |
| Deviatoric component of the Cauchy stress tensor | |
| von Mises Equivalent stress | |
| Maximum stress | |
| Minimum stress | |
| Flow stress | |
| Poisson’s ratio | |
| Plastic multiplier |
References
- Campbell, J. Invisible Macrodefects In Castings. J. Phys. IV 1993, 3, C7-861–C7-872. [Google Scholar] [CrossRef]
- Masuo, H.; Tanaka, Y.; Morokoshi, S.; Yagura, H.; Uchida, T.; Yamamoto, Y.; Murakami, Y. Influence of Defects, Surface Roughness And Hip on the Fatigue Strength of Ti-6al-4v Manufactured by Additive Manufacturing. Int. J. Fatigue 2018, 117, 163–179. [Google Scholar] [CrossRef]
- Heier, J.W.A.E. Fatigue Crack Growth Thresholds—The Influence of Young’s Modulus and Fracture Surface Roughness. Int. J. Fatigue 1998, 20, 737–742. [Google Scholar] [CrossRef]
- Hamam, R.; Pommier, S.; Bumbieler, A.F. Mode I Fatigue Crack Growth under Biaxial Loading. Int. J. Fatigue 2005, 27, 1342–1346. [Google Scholar] [CrossRef]
- Sunder, R. Unraveling the Science of Variable Amplitude Fatigue. J. ASTM Int. 2011, 9, 1–32. [Google Scholar] [CrossRef]
- Yoshinaka, F.; Nakamura, T.; Takaku, A.K. Effects of Vacuum Environment on Small Fatigue Crack Propagation in Ti–6al–4v. Int. J. Fatigue 2016, 91, 29–38. [Google Scholar] [CrossRef]
- Borrego, L.P.; Costa, J.M.; Ferreira, A.J.M. Fatigue Crack Growth in Thin Aluminium Alloy Sheets under Loading Sequences With Periodic Overloads. Thin Walled Struct. 2005, 43, 772–788. [Google Scholar] [CrossRef] [Green Version]
- Borges, M.; Neto, D.M.; Antunes, A.F.V. Numerical Simulation of Fatigue Crack Growth Based on Accumulated Plastic Strain. Theor. Appl. Fract. Mech. 2020, 108, 102676. [Google Scholar] [CrossRef]
- Borges, M.F.; Neto, D.M.; Antunes, A.F.V. Revisiting Classical Issues of Fatigue Crack Growth Using a Non-Linear Approach. Materials 2020, 13, 5544. [Google Scholar] [CrossRef]
- Neto, D.M.; Borges, M.F.; Antunes, F.V.; Jesus, A.J. Mechanisms of Fatigue Crack Growth in Ti-6al-4v Alloy Subjected to Single Overloads. Theor. Appl. Fract. Mech. 2021, 114, 103024. [Google Scholar] [CrossRef]
- Neto, R.S.D.M.; Borges, M.F.; Antunes, F.V. Numerical Analysis of Super Block 2020 Loading Sequence. Eng. Fract. Mech. 2020. submitted. [Google Scholar]
- Ferreira, F.F.; Neto, D.M.; Jesus, J.S.; Prates, P.A.; Antunes, A.F.V. Numerical Prediction of the Fatigue Crack Growth Rate in Slm Ti-6al-4v Based on Crack Tip Plastic Strain. Metals 2020, 10, 1133. [Google Scholar] [CrossRef]
- Imad, N.B.A.A. A Ductile Fracture Analysis Using a Local Damage Model. Int. J. Press. Vessel. Pip. 2008, 85, 219–227. [Google Scholar] [CrossRef]
- Dhar, S.; Dixit, P.M.; Sethuraman, A.R. A Continuum Damage Mechanics Model for Ductile Fracture. Int. J. Press. Vessel. Pip. 2000, 77, 335–344. [Google Scholar] [CrossRef]
- Chen, X.F.; Chow, C.L.; Duggan, A.B.J. A Ductile Damage Model Based on Endochronic Plastic Theory and Its Application in Failure Analysis. In Advances in Engineering Plasticity and Its Applications; Lee, W.B., Ed.; Elsevier: Oxford, UK, 1993; pp. 333–340. [Google Scholar]
- Simo, J.C.; Ju, J.W. Strain- and Stress-Based Continuum Damage Models—I. Formulation. Int. J. Solids Struct. 1987, 23, 821–840. [Google Scholar] [CrossRef]
- Xue, L. Damage Accumulation and Fracture Initiation in Uncracked Ductile Solids Subject to Triaxial Loading. Int. J. Solids Struct. 2007, 44, 5163–5181. [Google Scholar] [CrossRef] [Green Version]
- Rahimidehgolan, F.; Majzoobi, G.; Alinejad, F.; Sola, A.J.F. Determination of the Constants of Gtn Damage Model Using Experiment, Polynomial Regression and Kriging Methods. Appl. Sci. 2017, 7, 1179. [Google Scholar] [CrossRef] [Green Version]
- Wei, Y.; Chow, C.L.; Duggan, A.B.J. A Damage Model of Fatigue Analysis for Al Alloy 2024-T3. In Advances in Engineering Plasticity and Its Applications; Lee, W.B., Ed.; Elsevier: Oxford, UK, 1993; pp. 325–332. [Google Scholar]
- Lemaitre, J. Phenomenological Aspects of Damage. In A Course on Damage Mechanics; Springer: Berlin/Heidelberg, Germany, 1996; pp. 1–37. [Google Scholar]
- Gurson, A.L. Continuum Theory of Ductile Rupture by Void Nucleation and Growth: Part I—Yield Criteria and Flow Rules for Porous Ductile Media. J. Eng. Mater. Technol. 1977, 99, 2–15. [Google Scholar] [CrossRef]
- Steglich, D.; Pirondi, A.; Bonora, N.; Brocks, W. Micromechanical Modelling of Cyclic Plasticity Incorporating Damage. Int. J. Solids Struct. 2005, 42, 337–351. [Google Scholar] [CrossRef]
- Tvergaard, V. Influence of Voids on Shear Band Instabilities under Plane Strain Conditions. Int. J. Fract. 1981, 17, 389–407. [Google Scholar] [CrossRef]
- Tvergaard, V. On Localization in Ductile Materials Containing Spherical Voids. Int. J. Fract. 1982, 18, 237–252. [Google Scholar] [CrossRef]
- Chu, C.C.; Needleman, A. Void Nucleation Effects in Biaxially Stretched Sheets. J. Eng. Mater. Technol. 1980, 102, 249–256. [Google Scholar] [CrossRef]
- Luccioni, B.; Oller, S.; Danesi, R. Coupled Plastic-Damaged Model. Comput. Methods Appl. Mech. Eng. 1996, 129, 81–89. [Google Scholar] [CrossRef]
- Ma, Y.-S.; Sun, D.-Z.; Andrieux, F.; Zhang, K.-S. Influences of Initial Porosity, Stress Triaxiality And Lode Parameter On Plastic Deformation And Ductile Fracture. Acta Mech. Solida Sin. 2017, 30, 493–506. [Google Scholar] [CrossRef]
- Teng, B.; Wang, W.; Xu, Y. Ductile Fracture Prediction in Aluminium Alloy 5a06 Sheet Forming Based on Gtn Damage Model. Eng. Fract. Mech. 2017, 186, 242–254. [Google Scholar] [CrossRef]
- Anderson, T.L. Fracture Mechanics: Fundamentals and Applications. 2005, pp. 73–74. Available online: http://Site.Ebrary.Com/Id/11166314 (accessed on 20 June 2021).
- Branco, R.; Silva, J.M.; Infante, V.; Antunes, F.; Ferreira, F. Using A Standard Specimen for Crack Propagation under Plain Strain Conditions. Int. J. Struct. Integr. 2010, 1, 332–343. [Google Scholar] [CrossRef]
- Branco, R.; Antunes, F.V.; Ricardo, L.C.H.; Costa, J.D. Extent of Surface Regions near Corner Points of Notched Cracked Bodies Subjected to Mode-I Loading. Finite Elem. Anal. Des. 2012, 50, 147–160. [Google Scholar] [CrossRef]
- Chen, C.R.; Kolednik, O.; Heerens, J.; Fischer, F.D. Three-Dimensional Modeling of Ductile Crack Growth: Cohesive Zone Parameters and Crack Tip Triaxiality. Eng. Fract. Mech. 2005, 72, 2072–2094. [Google Scholar] [CrossRef]
- Wang, B.; Hu, N.; Kurobane, Y.; Makino, Y.; Lie, S.T. Damage Criterion and Safety Assessment Approach to Tubular Joints. Eng. Struct. 2000, 22, 424–434. [Google Scholar] [CrossRef]
- Anvari, M.; Scheider, I.; Thaulow, C. Simulation of Dynamic Ductile Crack Growth Using Strain-Rate and Triaxiality-Dependent Cohesive Elements. Eng. Fract. Mech. 2006, 73, 2210–2228. [Google Scholar] [CrossRef] [Green Version]
- Oliveira, M.C.; Alves, J.L.; Menezes, A.L.F. Algorithms and Strategies for Treatment of Large Deformation Frictional Contact in the Numerical Simulation of Deep Drawing Process. Arch. Comput. Methods Eng. 2008, 15, 113–162. [Google Scholar] [CrossRef] [Green Version]
- Menezes, L.F.; Teodosiu, C. Three-Dimensional Numerical Simulation of the Deep-Drawing Process Using Solid Finite Elements. J. Mater. Process. Technol. 2000, 97, 100–106. [Google Scholar] [CrossRef] [Green Version]
- Chen, D.; Li, Y.; Yang, X.; Jiang, W.; Guan, L. Efficient Parameters Identification of A Modified GTN Model of Ductile Fracture Using Machine Learning. Eng. Fract. Mech. 2021, 245, 107535. [Google Scholar] [CrossRef]
- ASTM E 647-11: Standard Test Method for Measurement of Fatigue Crack Growth Rates; American Society for Testing and Materials: Philadelphia, PA, USA, 2011.
- Hughes, T.J.R. Generalization of Selective Integration Procedures to Anisotropic and Nonlinear Media. Int. J. Numer. Methods Eng. 1980, 15, 1413–1418. [Google Scholar] [CrossRef]
- Antunes, F.V.; Camas, D.; Correia, L.; Branco, R. Finite Element Meshes for Optimal Modelling of Plasticity Induced Crack Closure. Eng. Fract. Mech. 2015, 142, 184–200. [Google Scholar] [CrossRef] [Green Version]
- Zhao, L.; Tong, J.; Byrne, J. The Evolution of The Stress-Strain Fields Near a Fatigue Crack Tip and Plasticity-Induced Crack Closure Revisited. Fatigue Fract. Eng. Mater. Struct. 2004, 27, 19–29. [Google Scholar] [CrossRef]
- Vor, K.; Gardin, C.; Sarrazin-Baudoux, C.; Petit, J. Wake Length and Loading History Effects on Crack Closure of through-Thickness Long and Short Cracks in 304l: Part Ii–3d Numerical Simulation. Eng. Fract. Mech. 2013, 99, 306–323. [Google Scholar] [CrossRef]
- Rodrigues, D.M.; Antunes, F.V. Finite Element Simulation of Plasticity Induced Crack Closure with Different Material Constitutive Models. Eng. Fract. Mech. 2009, 76, 1215–1230. [Google Scholar] [CrossRef] [Green Version]
- Rice, J.R.; Tracey, D.M. On the Ductile Enlargement of Voids in Triaxial Stress Fields. J. Mech. Phys. Solids 1969, 17, 201–217. [Google Scholar] [CrossRef] [Green Version]
- Nizery, E.; Proudhon, H.; Buffiere, J.-Y.; Cloetens, P.; Morgeneyer, T.F.; Forest, S. Three-Dimensional Characterization of Fatigue-Relevant Intermetallic Particles in High-Strength Aluminium Alloys Using Synchrotron X-ray Nanotomography. Philos. Mag. 2015, 95, 2731–2746. [Google Scholar] [CrossRef]
- Marques, B.; Borges, M.F.; Antunes, F.V.; Vasco-Olmo, J.M.; Díaz, F.A.; James, M.N. Limitations of Small-Scale Yielding for Fatigue Crack Growth. Eng. Fract. Mech. 2021, 252, 107806. [Google Scholar] [CrossRef]













| Material | E (GPa) | ν (-) | Y0 (MPa) | k (MPa) | n (-) | XSat (MPa) | CX (-) |
|---|---|---|---|---|---|---|---|
| AA2024-T351 | 72.26 | 0.29 | 288.96 | 389.00 | 0.056 | 111.84 | 138.80 |
| Material | f0 | q1 | q2 | q3 |
|---|---|---|---|---|
| AA2024-T351 | 0.01 | 1.5 | 1 | 2.25 |
Publisher’s Note: MDPI stays neutral with regard to jurisdictional claims in published maps and institutional affiliations. |
© 2021 by the authors. Licensee MDPI, Basel, Switzerland. This article is an open access article distributed under the terms and conditions of the Creative Commons Attribution (CC BY) license (https://creativecommons.org/licenses/by/4.0/).
Share and Cite
Sérgio, E.R.; Antunes, F.V.; Borges, M.F.; Neto, D.M. FCG Modelling Considering the Combined Effects of Cyclic Plastic Deformation and Growth of Micro-Voids. Materials 2021, 14, 4303. https://doi.org/10.3390/ma14154303
Sérgio ER, Antunes FV, Borges MF, Neto DM. FCG Modelling Considering the Combined Effects of Cyclic Plastic Deformation and Growth of Micro-Voids. Materials. 2021; 14(15):4303. https://doi.org/10.3390/ma14154303
Chicago/Turabian StyleSérgio, Edmundo R., Fernando V. Antunes, Micael F. Borges, and Diogo M. Neto. 2021. "FCG Modelling Considering the Combined Effects of Cyclic Plastic Deformation and Growth of Micro-Voids" Materials 14, no. 15: 4303. https://doi.org/10.3390/ma14154303
APA StyleSérgio, E. R., Antunes, F. V., Borges, M. F., & Neto, D. M. (2021). FCG Modelling Considering the Combined Effects of Cyclic Plastic Deformation and Growth of Micro-Voids. Materials, 14(15), 4303. https://doi.org/10.3390/ma14154303

