Investigation of Wood Flour Size, Aspect Ratios, and Injection Molding Temperature on Mechanical Properties of Wood Flour/Polyethylene Composites
Abstract
1. Introduction
2. Materials and Methods
2.1. Materials
2.2. Wood–Plastic Composite Specimens Preparation
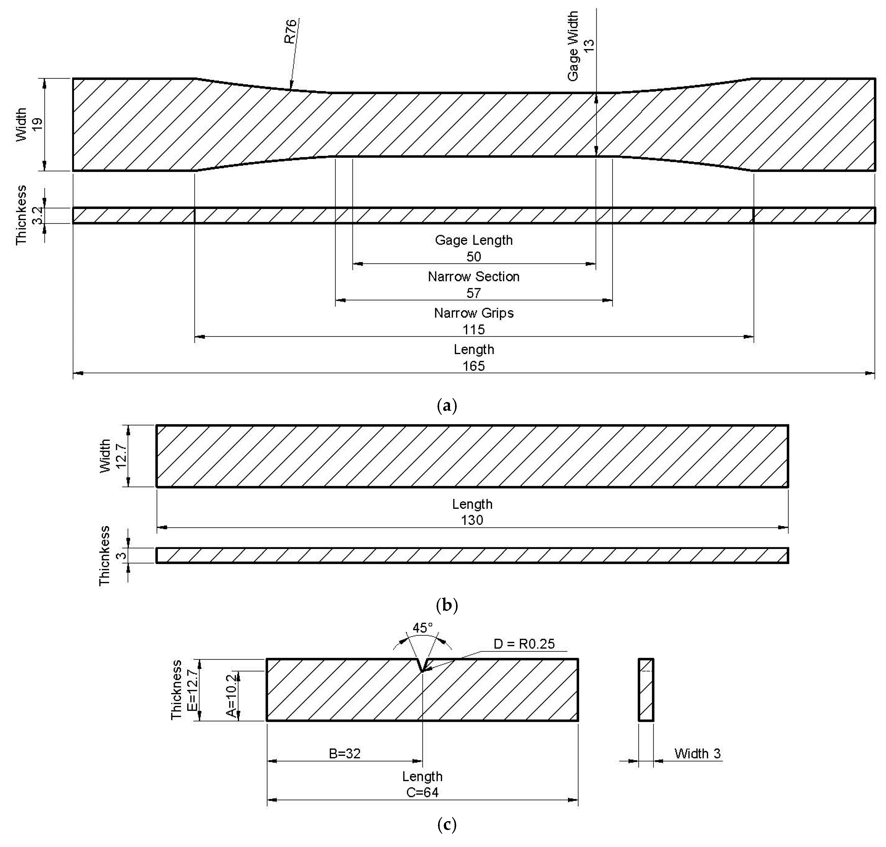
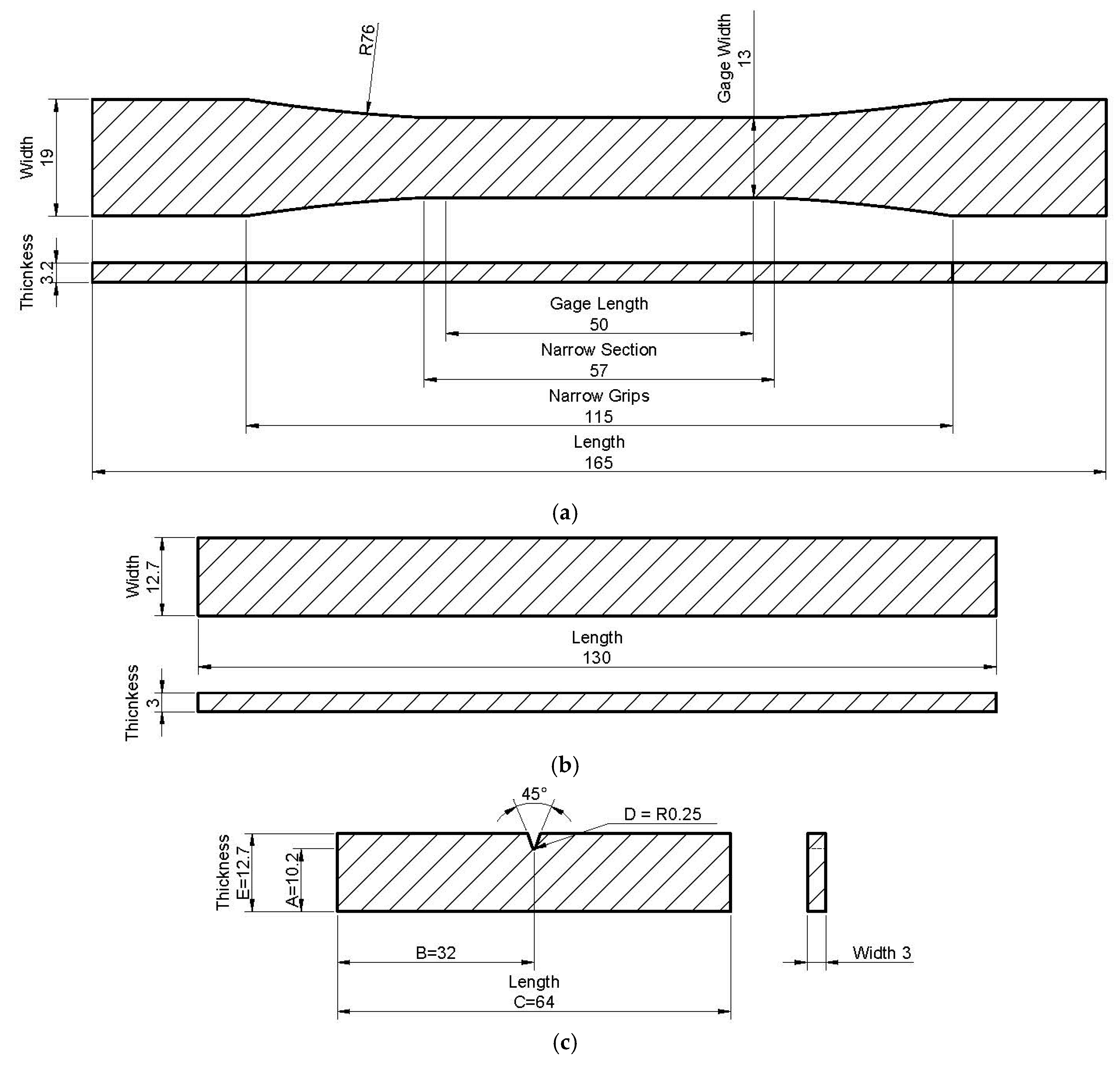
2.3. Mechanical Testing
2.4. Filler Dimension Analysis
2.5. Statistical Analysis
3. Results
3.1. Effect of Mesh Dimensions on Mechanical Properties
3.1.1. Dimensions of Flour
3.1.2. Experimental Test Results
3.2. Effect of Injection Mold Temperature on Mechanical Properties
4. Discussion
5. Conclusions
- Homogeneous and uniform distribution of wood flour and uniform wetting of polymer particles is necessary to improve the resulting composites’ properties.
- Reducing the aspect ratio increases the effect of filler reinforcement in composites and improves the stress distribution in the specimens.
- Finer particles than larger ones can create a more cohesive environment and better withstand the stresses applied.
- Impact energy increases with the increment of wood flour aspect ratio.
- Increasing the injection mold temperature up to 185 °C, better and sufficient heat transfer was performed, and the adhesion was improved. In addition, the tensile, flexural, and impact energy were increased.
- At 200 °C, the polymer’s adhesion properties, joint surface, and joint surface quality shrank, and the tensile and flexural strength decreased.
- As the injection mold temperature increased to 185 °C, the polymer’s stiffness increased, and the tensile and flexural modulus increased.
- The increase in flexural modulus indicates a decrease in the composite material deformation under load, which is a positive factor in engineering structures that must withstand a large load without deformation.
Author Contributions
Funding
Institutional Review Board Statement
Informed Consent Statement
Data Availability Statement
Acknowledgments
Conflicts of Interest
References
- Hao, X.; Yi, X.; Sun, L.; Tu, D.; Wang, Q.; Ou, R. Mechanical Properties, Creep Resistance, and Dimensional Stability of Core/Shell Structured Wood Flour/Polyethylene Composites with Highly Filled Core Layer. Constr. Build. Mater. 2019, 226, 879–887. [Google Scholar] [CrossRef]
- Kim, J.K.; Pal, K. Recent Advances in the Processing of Wood-Plastic Composites; Engineering Materials; Springer: Berlin, Heidelberg, 2011; Volume 32, ISBN 978-3-642-14876-7. [Google Scholar]
- Stokke, D.D.; Gardner, D.J. Fundamental Aspects of Wood as a Component of Thermoplastic Composites. J. Vinyl. Addit. Technol. 2003, 9, 96–104. [Google Scholar] [CrossRef]
- Delviawan, A.; Kojima, Y.; Kobori, H.; Suzuki, S.; Aoki, K.; Ogoe, S. The Effect of Wood Particle Size Distribution on the Mechanical Properties of Wood–Plastic Composite. J. Wood Sci. 2019, 65, 67. [Google Scholar] [CrossRef]
- Sun, L.; Zhou, H.; Zong, G.; Ou, R.; Fan, Q.; Xu, J.; Hao, X.; Guo, Q. Effects of SiO2 Filler in the Shell and Wood Fiber in the Core on the Thermal Expansion of Core–Shell Wood/Polyethylene Composites. Polymer 2020, 12, 2570. [Google Scholar] [CrossRef] [PubMed]
- Fabiyi, J.S.; McDonald, A.G.; McIlroy, D. Wood Modification Effects on Weathering of HDPE-Based Wood Plastic Composites. J. Polym. Environ. 2009, 17, 34–48. [Google Scholar] [CrossRef]
- Fabiyi, J.S.; McDonald, A.G. Effect of Wood Species on Property and Weathering Performance of Wood Plastic Composites. Compos. Part A Appl. Sci. Manuf. 2010, 41, 1434–1440. [Google Scholar] [CrossRef]
- Jain, N.K.; Gupta, M.K. Hybrid Teak/Sal Wood Flour Reinforced Composites: Mechanical, Thermal and Water Absorption Properties. Mater. Res. Express 2018, 5, 125306. [Google Scholar] [CrossRef]
- Feifel, S.; Stübs, O.; Seibert, K.; Hartl, J. Comparing Wood–Polymer Composites with Solid Wood: The Case of Sustainability of Terrace Flooring. Eur. J. Wood Wood Prod. 2015, 73, 829–836. [Google Scholar] [CrossRef]
- Hietala, M.; Samuelsson, E.; Niinimäki, J.; Oksman, K. The Effect of Pre-Softened Wood Chips on Wood Fibre Aspect Ratio and Mechanical Properties of Wood–Polymer Composites. Compos. Part A Appl. Sci. Manuf. 2011, 42, 2100–2116. [Google Scholar] [CrossRef]
- Mohanty, S.; Nayak, S.K.; Verma, S.K.; Tripathy, S.S. Effect of MAPP as a Coupling Agent on the Performance of Jute–PP Composites. J. Reinf. Plast. Compos. 2004, 23, 625–637. [Google Scholar] [CrossRef]
- Chen, H.C.; Chen, T.Y.; Hsu, C.H. Effects of Wood Particle Size and Mixing Ratios of HDPE on the Properties of the Composites. Holz Als Roh- Und Werkst. 2006, 64, 172–177. [Google Scholar] [CrossRef]
- Migneault, S.; Koubaa, A.; Erchiqui, F.; Chaala, A.; Englund, K.; Krause, C.; Wolcott, M. Effect of Fiber Length on Processing and Properties of Extruded Wood-Fiber/HDPE Composites. J. Appl. Polym. Sci. 2008, 100, 1085–1092. [Google Scholar] [CrossRef]
- Migneault, S.; Koubaa, A.; Erchiqui, F.; Chaala, A.; Englund, K.; Wolcott, M.P. Effects of Processing Method and Fiber Size on the Structure and Properties of Wood–Plastic Composites. Compos. Part A Appl. Sci. Manuf. 2009, 40, 80–85. [Google Scholar] [CrossRef]
- Huang, H.B.; Du, H.H.; Wang, W.H.; Wang, H.G. Effects of the Size of Wood Flour on Mechanical Properties of Wood-Plastic Composites. Adv. Mater. Res. 2011, 393–395, 76–79. [Google Scholar] [CrossRef]
- Adhikary, K.B.; Pang, S.; Staiger, M.P. Dimensional Stability and Mechanical Behaviour of Wood–Plastic Composites Based on Recycled and Virgin High-Density Polyethylene (HDPE). Compos. Part B Eng. 2008, 39, 807–815. [Google Scholar] [CrossRef]
- Godard, F.; Vincent, M.; Agassant, J.-F.; Vergnes, B. Rheological Behavior and Mechanical Properties of Sawdust/Polyethylene Composites. J. Appl. Polym. Sci. 2009, 112, 2559–2566. [Google Scholar] [CrossRef]
- Tazi, M.; Erchiqui, F.; Kaddami, H. Influence of SOFTWOOD-Fillers Content on the Biodegradability and Morphological Properties of WOOD-Polyethylene Composites. Polym. Compos. 2018, 39, 29–37. [Google Scholar] [CrossRef]
- Yang, T.-C.; Chien, Y.-C.; Wu, T.-L.; Hung, K.-C.; Wu, J.-H. Effects of Heat-Treated Wood Particles on the Physico-Mechanical Properties and Extended Creep Behavior of Wood/Recycled-HDPE Composites Using the Time–Temperature Superposition Principle. Materials 2017, 10, 365. [Google Scholar] [CrossRef]
- Khamedi, R.; Hajikhani, M.; Ahmaditabar, K. Investigation of Maleic Anhydride Effect on Wood Plastic Composites Behavior. J. Compos. Mater. 2019, 53, 1955–1962. [Google Scholar] [CrossRef]
- Nourbakhsh, A.; Ashori, A. Fundamental Studies on Wood–Plastic Composites: Effects of Fiber Concentration and Mixing Temperature on the Mechanical Properties of Poplar/PP Composite. Polym. Compos. 2008, 29, 569–573. [Google Scholar] [CrossRef]
- ASTM D638-10. Standard Test. Method for Tensile Properties of Plastics; ASTM: West Conshohocken, PA, USA, 2010. [Google Scholar]
- ASTM D790-10. Flexural Properties of Unreinforced and Reinforced Plastics and Electrical Insulating Materials; ASTM: West Conshohocken, PA, USA, 2010. [Google Scholar]
- ASTM D256-10. Standard Test Methods for Determining the Izod Pendulum Impact Resistance of Plastics; ASTM: West Conshohocken, PA, USA, 2010. [Google Scholar]
- Tazi, M.; Sukiman, M.S.; Erchiqui, F.; Imad, A.; Kanit, T. Effect of Wood Fillers on the Viscoelastic and Thermophysical Properties of HDPE-Wood Composite. Int. J. Polym. Sci. 2016, 2016, 1–6. [Google Scholar] [CrossRef]
- Adhikary, K.B.; Park, C.B.; Islam, M.R.; Rizvi, G.M. Effects of Lubricant Content on Extrusion Processing and Mechanical Properties of Wood Flour-High-Density Polyethylene Composites. J. Compos. Mater. 2011, 24, 155–171. [Google Scholar] [CrossRef]
- Nourbakhsh, A.; Karegarfard, A.; Ashori, A.; Nourbakhsh, A. Effects of Particle Size and Coupling Agent Concentration on Mechanical Properties of Particulate-Filled Polymer Composites. J. Compos. Mater. 2010, 23, 169–174. [Google Scholar] [CrossRef]
- Farhadinejad, Z.; Ehsani, M.; Khosravian, B.; Ebrahimi, G. Study of Thermal Properties of Wood Plastic Composite Reinforced with Cellulose Micro Fibril and Nano Inorganic Fiber Filler. Eur. J. Wood Wood Prod. 2012, 70, 823–828. [Google Scholar] [CrossRef]
- Lai, C.Y.; Sapuan, S.M.; Ahmad, M.; Yahya, N.; Dahlan, K.Z.H.M. Mechanical and Electrical Properties of Coconut Coir Fiber-Reinforced Polypropylene Composites. Polym. Plast. Technol. Eng. 2005, 44, 619–632. [Google Scholar] [CrossRef]
- Kiaei, M.; Moghdam, Y.R.; Kord, B.; Samariha, A. The Effect of Nano-MgO on the Mechanical and Flammability Properties of Hybrid Nano Composites from Wood Flour-Polyethylene. Maderas Cienc Y Tecnol. 2017. [Google Scholar] [CrossRef]
- Cui, Y.; Lee, S.; Noruziaan, B.; Cheung, M.; Tao, J. Fabrication and Interfacial Modification of Wood/Recycled Plastic Composite Materials. Compos. Part A Appl. Sci. Manuf. 2008, 39, 655–661. [Google Scholar] [CrossRef]
- Hemmasi, A.H.; Ghasemi, I.; Bazyar, B.; Samariha, A. Studying the Effect of Size of Bagasse and Nanoclay Particles on Mechanical Properties and Morphology of Bagasse Flour/Recycled Polyethylene Composites. BioResources 2013, 8. [Google Scholar] [CrossRef]
- Febrianto, F.; Setyawati, D.; Karina, M.; Bakar, E.S.; Hadi, Y.S. Influence of Wood Flour and Modifier Contents on the Physical and Mechanical Properties of Wood Flour-Recycle Polypropylene Composites. J. Biol. Sci. 2006, 6, 337–343. [Google Scholar] [CrossRef][Green Version]
- Dominkovics, Z.; Dányádi, L.; Pukánszky, B. Surface Modification of Wood Flour and Its Effect on the Properties of PP/Wood Composites. Compos. Part A Appl. Sci. Manuf. 2007, 38, 1893–1901. [Google Scholar] [CrossRef]
- Jose, M.V.; Dean, D.; Tyner, J.; Price, G.; Nyairo, E. Polypropylene/Carbon Nanotube Nanocomposite Fibers: Process–Morphology–Property Relationships. J. Appl. Polym. Sci. 2007, 103, 3844–3850. [Google Scholar] [CrossRef]
- Andrews, R.; Jacques, D.; Minot, M.; Rantell, T. Fabrication of Carbon Multiwall Nanotube/Polymer Composites by Shear Mixing. Macromol. Mater. Eng. 2002, 287, 395. [Google Scholar] [CrossRef]
- Yeh, S.-K.; Gupta, R.K. Improved Wood–Plastic Composites through Better Processing. Compos. Part A Appl. Sci. Manuf. 2008, 39, 1694–1699. [Google Scholar] [CrossRef]
- Garrote, G.; Domínguez, H.; Parajó, J.C. Study on the Deacetylation of Hemicelluloses during the Hydrothermal Processing of Eucalyptus Wood. Holz Roh Werkst. 2001, 59, 53–59. [Google Scholar] [CrossRef]
- Çolak, S.; Çolakoğlu, G.; Aydin, I. Effects of Logs Steaming, Veneer Drying and Aging on the Mechanical Properties of Laminated Veneer Lumber (LVL). Build. Environ. 2007, 42, 93–98. [Google Scholar] [CrossRef]
- Rowell, R.M. Handbook of Wood Chemistry and Wood Composites; CRC Press: Boca Raton, FL, USA, 2012; ISBN 9780429109096. [Google Scholar]








| Specimen | MAPE 1 (%) | Heavy Polyethylene (%) | Wood Flour (%) | Mesh Dimensions | Injection Mold Temperature (°C) |
|---|---|---|---|---|---|
| 1 | 3 | 50 | 50 | +30/−40 | 200 |
| 2 | 3 | 50 | 50 | +70/−80 | 200 |
| 3 | 3 | 50 | 50 | +100/−120 | 200 |
| 4 | 3 | 50 | 50 | +100/−120 | 170 |
| 5 | 3 | 50 | 50 | +100/−120 | 185 |
| Mesh Dimensions | Length (µm) | Diameter (µm) | Aspect Ratio (l/d) | Specimen |
|---|---|---|---|---|
| +30/−40 | 3239.99 | 1060.01 | 3.07 | 1 |
| +70/−80 | 646.13 | 208.1 | 3.16 | 2 |
| +100/−120 | 243.4 | 158.5 | 1.6 | 3, 4, 5 |
| Mechanical Properties | p-Value | |
|---|---|---|
| Tensile (MPa) | Strength | 0.000 ** |
| Modulus | 0.118 | |
| Flexural (MPa) | Strength | 0.012 * |
| Modulus | 0.281 | |
| Impact energy (J) | 0.003 * | |
| Mechanical Properties | p-Value | |
|---|---|---|
| Tensile (MPa) | Strength | 0.000 ** |
| Moduli | 0.631 | |
| Flexural (MPa) | Strength | 0.222 |
| Moduli | 0.124 | |
| Impact energy (J) | 0.030 * | |
Publisher’s Note: MDPI stays neutral with regard to jurisdictional claims in published maps and institutional affiliations. |
© 2021 by the authors. Licensee MDPI, Basel, Switzerland. This article is an open access article distributed under the terms and conditions of the Creative Commons Attribution (CC BY) license (https://creativecommons.org/licenses/by/4.0/).
Share and Cite
Golmakani, M.E.; Wiczenbach, T.; Malikan, M.; Aliakbari, R.; Eremeyev, V.A. Investigation of Wood Flour Size, Aspect Ratios, and Injection Molding Temperature on Mechanical Properties of Wood Flour/Polyethylene Composites. Materials 2021, 14, 3406. https://doi.org/10.3390/ma14123406
Golmakani ME, Wiczenbach T, Malikan M, Aliakbari R, Eremeyev VA. Investigation of Wood Flour Size, Aspect Ratios, and Injection Molding Temperature on Mechanical Properties of Wood Flour/Polyethylene Composites. Materials. 2021; 14(12):3406. https://doi.org/10.3390/ma14123406
Chicago/Turabian StyleGolmakani, Mohammad E., Tomasz Wiczenbach, Mohammad Malikan, Reza Aliakbari, and Victor A. Eremeyev. 2021. "Investigation of Wood Flour Size, Aspect Ratios, and Injection Molding Temperature on Mechanical Properties of Wood Flour/Polyethylene Composites" Materials 14, no. 12: 3406. https://doi.org/10.3390/ma14123406
APA StyleGolmakani, M. E., Wiczenbach, T., Malikan, M., Aliakbari, R., & Eremeyev, V. A. (2021). Investigation of Wood Flour Size, Aspect Ratios, and Injection Molding Temperature on Mechanical Properties of Wood Flour/Polyethylene Composites. Materials, 14(12), 3406. https://doi.org/10.3390/ma14123406

