Shear Behavior of Concrete Beams Reinforced with a New Type of Glass Fiber Reinforced Polymer Reinforcement: Experimental Study
Abstract
1. Introduction
2. Experimental Program
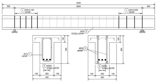
2.1. Test Specimens
2.2. Material Properties
2.3. Instrumentation, Test Setup and Procedure
3. Experimental Results and Discussion
3.1. Rebar Test
3.2. Beam Test
3.2.1. Failure Load and Mode of Failure
3.2.2. Load Deflection Behavior
3.2.3. Strains in GFRP Stirrups and Headed Bars
4. Conclusions
Author Contributions
Funding
Conflicts of Interest
References
- Li, G.; Zhao, J.; Wang, Z. Fatigue Behavior of Glass Fiber-Reinforced Polymer Bars after Elevated Temperatures Exposure. Materials 2018, 11, 1028. [Google Scholar] [CrossRef] [PubMed]
- Benmokrane, B.; Ali, A.H.; Mohamed, H.M.; El Safty, A.; Manalo, A. Laboratory assessment and durability performance of vinyl-ester, polyester, and epoxy glass-FRP bars for concrete structures. Compos. Part B Eng. 2017, 114, 163–174. [Google Scholar] [CrossRef]
- Kosior-Kazberuk, M.; Wasilczyk, R. Influence of static long-term loads and cyclic freezing/thawing on the behaviour of concrete beams reinforced with BFRP and HFRP bars. In Proceedings of the MATEC Web of Conferences, 3rd Scientific Conference Environmental Challenges in Civil Engineering (ECCE 2018), Opole, Poland, 23–25 April 2018. [Google Scholar] [CrossRef]
- Bywalski, C.; Drzazga, M.; Kamiński, M.; Kaźmierowski, M. Analysis of calculation methods for bending concrete elements reinforced with FRP bars. Arch. Civ. Mech. Eng. 2016, 16, 901–912. [Google Scholar] [CrossRef]
- Błaszczyński, T.; Łowińska-Kluge, A. The influence of internal corrosion on the durability of concrete. Arch. Civ. Mech. Eng. 2012, 12, 219–227. [Google Scholar] [CrossRef]
- Mias, C.; Torres, L.; Turon, A.; Barris, C. Experimental study of immediate and time-dependent deflections of GFRP reinforced concrete beams. Compos. Struct. 2013, 96, 279–285. [Google Scholar] [CrossRef]
- Prusiel, J.A.; Rogowski, M.G. Obciążenia termiczne w eksploatowanym żelbetowym kominie przemysłowym (Thermal loads in operated RC industrial chimney). Mater. Bud. 2018, 4, 74–75. (In Polish) [Google Scholar] [CrossRef]
- D’Antino, T.; Pisani, M.A.; Poggi, C. Effect of the environment on the performance of GFRP reinforcing bars. Compos. Part B Eng. 2018, 141, 123–136. [Google Scholar] [CrossRef]
- Kosior-Kazberuk, M. Application of basalt-FRP bars for reinforcing geotechnical concrete structures. In Proceedings of the MATEC Web of Conferences, International Geotechnical Symposium “Geotechnical Construction of Civil Engineering & Transport Structures of the Asian-Pacific Region” (GCCETS 2018), Yuzhno-Sakhalinsk, Russia, 4–7 July 2019. [Google Scholar] [CrossRef]
- Urbański, M.; Łapko, A.; Garbacz, A. Investigation on Concrete Beams Reinforced with Basalt Rebars as an Effective Alternative of Conventional R/C Structures. Procedia Eng. 2013, 57, 1183–1191. [Google Scholar] [CrossRef]
- Fib Task Group 9.3. FRP: Reinforcement for Concrete Structures. In FRP Reinforcement in RC Structures; Technical Report; Bulletin 40; International Federation for Structural Concrete (fib): Lausanne, Switzerland, 2007; ISBN 978-2-88394-080-2. [Google Scholar]
- ACI Committee 440. ACI 440.1R-15—Guide for the Design and Construction of Structural Concrete Reinforced with Fiber-Reinforced Polymer (FRP) Bars; American Concrete Institute: Farmington Hills, MI, USA, 2015; ISBN 978-1-942727-10-1. [Google Scholar]
- Nagasaka, T.; Fukuyama, H.; Tanigaki, M. Shear performance of concrete beams reinforced with FRP stirrups. In Proceedings of the International Symposium on Fiber-Reinforced-Plastic Reinforcement for Concrete Structures (FRPRCS-1), Vancouver, Canada, 28–31 March 1993; pp. 789–812. [Google Scholar]
- Shehata, E.F.G. Fiber Reinforced Polymer (FRP) for Shear Reinforcement in Concrete Structures. Ph.D. Thesis, Department of Civil and Geological Engineering, University of Manitoba, Winnipeg, MB, Canada, March 1999. [Google Scholar]
- Ahmed, E.A.M. Shear Behaviour of Concrete Beams Reinforced with Fibre-Reinforced Polymer (FRP) Stirrups. Ph.D. Thesis, Universite de Sherbrooke, Sherbrooke, QC, Canada, June 2009. [Google Scholar]
- Bentz, E.C.; Massam, L.; Collins, M.P. Shear strength of large concrete members with FRP reinforcement. J. Compos. Constr. 2010, 14, 637–646. [Google Scholar] [CrossRef]
- Oller, E.; Mari, A.R.; Cladera, A.; Bairan, J.M. Shear design of FRP reinforced concrete beams without transverse reinforcement. Compos. Part B Eng. 2014, 57, 228–241. [Google Scholar] [CrossRef]
- Kosior-Kazberuk, M.; Krassowska, J. Failure mode in shear of steel fiber reinforced concrete beams. In Proceedings of the MATBUD’2018—8th Scientific-Technical Conference on Material Problems in Civil Engineering, Cracow, Poland, 25–27 June 2018. [Google Scholar] [CrossRef]
- Acciai, A.; D’Ambrisi, A.; de Stefano, M.; Feo, L.; Focacci, F.; Nudo, R. Experimental response of FRP reinforced members without transverse reinforcement: Failure modes and design issues. Compos. Part B Eng. 2016, 89, 397–407. [Google Scholar] [CrossRef]
- Oller, E.; Mari, A.R.; Cladera, A.; Bairan, J.M. Shear design of reinforced concrete beams with FRP longitudinal and transverse reinforcement. Compos. Part B Eng. 2015, 74, 104–122. [Google Scholar] [CrossRef]
- Lee, S.; Lee, C. Prediction of shear strength of FRP-reinforced concrete flexural members without stirrups using artificial neural networks. Eng. Struct. 2014, 61, 99–112. [Google Scholar] [CrossRef]
- Wegian, F.M.; Abdalla, H.A. Shear capacity of concrete beams reinforced with fiber reinforced polymers. Compos. Struct. 2005, 71, 130–138. [Google Scholar] [CrossRef]
- Yang, K.H.; Mun, J.H. Cyclic Flexural and Shear Performances of Beam Elements with Longitudinal Glass Fiber Reinforced Polymer (GFRP) Bars in Exterior Beam-Column Connections. Appl. Sci. 2018, 8, 2353. [Google Scholar] [CrossRef]
- Kurth, M. Zum Querkrafttragverhalten von Betonbauteilen mit Faserverbundkunststoff-Bewehrung (Shear Behaviour of Concrete Members With Fibre Reinforced Polymers as Internal Reinforcement). Ph.D. Thesis, Rheinisch-Westfälische Technische Hochschule Aachen, Aachen, Germany, December 2012. (In German). [Google Scholar]
- Jumaa, G.B.; Yousif, A.R. Size effect on the shear failure of high-strength concrete beams reinforced with basalt FRP bars and stirrups. Constr. Build. Mater. 2019, 209, 77–94. [Google Scholar] [CrossRef]
- Razaqpur, G.; Spadea, S. Shear Strength of FRP Reinforced Concrete Members with Stirrups. J. Compos. Constr. 2015, 19. [Google Scholar] [CrossRef]
- Drzazga, M. Stany Graniczne Betonowych Belek Zbrojonych na Ścinanie Prętami z Włókien Szklanych, Poddanych Działaniu Obciążeń Doraźnych (The Limit States of Concrete Beams Reinforced with Glass Fiber Reinforced Polymer Shear Reinforcement, Subject to Short Term Load). Ph.D. Thesis, Wrocław University of Science and Technology, Wrocław, Poland, July 2019. (In Polish). [Google Scholar]
- Krall, M.; Polak, M.A. Concrete beams with different arrangements of GFRP flexural and shear reinforcement. Eng. Struct. 2019, 198. [Google Scholar] [CrossRef]
- Chin, W.J.; Park, Y.H.; Cho, J.R.; Lee, J.Y.; Yoon, Y.S. Flexural Behavior of a Precast Concrete Deck Connected with Headed GFRP Rebars and UHPC. Materials 2020, 13, 604. [Google Scholar] [CrossRef] [PubMed]
- Vint, L.M. Investigation of Bond Properties Of Glass Fibre Reinforced Polymer (GFRP) Bars in Concrete under Direct Tension. Ph.D. Thesis, Department of Civil Engineering, University of Toronto, Toronto, ON, Canada, November 2012. [Google Scholar]
- Rduch, A.; Rduch, Ł.; Walentyński, R. Właściwości i zastosowanie kompozytowych prętów zbrojeniowych (Properties and application of composite reinforcement rods). Przegląd Bud. 2017, 88, 43–46. (In Polish) [Google Scholar]
- ACI Committee 440. ACI 440.3R-04—Guide Test Methods for Fiber-Reinforced Polymers (FRPs) for Reinforcing or Strengthening Concrete Structures; American Concrete Institute: Farmington Hills, MI, USA, 2004; ISBN 9780870317811. [Google Scholar]
- ISO 10406-1:2015 Fibre-Reinforced Polymer (FRP) Reinforcement of Concrete—Test Methods—Part 1: FRP Bars and Grids; International Organization for Standardization (ISO): Geneva, Switzerland, 2015.

















| Beam Support Zone | Tensile Longitudinal Reinforcement (Shear Zone) | Shear Reinforcement | |||||
|---|---|---|---|---|---|---|---|
| Diameter, ∅L | Reinforcement Type | Diameter, ∅w | Reinforcement Type | Spacing, s | |||
| (mm) | (-) | (%) | (mm) | (-) | (mm) | (%) | |
| B-1_160 | 20 | Steel | 1.37 | 12 | GFRP stirrups | 160 | 0.71 |
| B-1_220 | 220 | 0.51 | |||||
| B-2_160 | 20 | GFRP | 1.37 | 12 | GFRP stirrups | 160 | 0.71 |
| B-2_220 | 220 | 0.51 | |||||
| B-3_160 | 20 | GFRP | 1.37 | 12 | GFRP headed bars | 160 | 0.71 |
| B-3_220 | 220 | 0.51 | |||||
| B-4_160 | 20 | Steel | 1.37 | 12 | GFRP headed bars | 160 | 0.71 |
| B-4_220 | 220 | 0.51 | |||||
| Type of Bar | Sample Number | df | Fu | fu | Ef | εu |
|---|---|---|---|---|---|---|
| (mm) | (kN) | (MPa) | (GPa) | (‰) | ||
| Straight bars | P-12_1 | 11.8 | 141.9 | 1298 | 57.8 | 22.4 |
| P-12_2 | 12.0 | 134.4 | 1188 | 53.3 | 22.3 | |
| P-12_3 | 12.1 | 150.1 | 1305 | 61.3 | 21.3 | |
| P-12_4 | 11.9 | 156.4 | 1406 | 62.4 | 22.5 | |
| P-12_5 | 12.1 | 149.2 | 1298 | 55.6 | 23.3 | |
| Average: | 12.0 | 146.4 | 1299 | 58.1 | 22.4 | |
| Headed bars | G-12_1 | 12.1 | 62.3 | 542 | 65.8 | - |
| G-12_2 | 12.2 | 64.9 | 555 | 63.1 | - | |
| G-12_3 | 12.0 | 61.2 | 541 | 63.5 | - | |
| G-12_4 | 12.3 | 67.2 | 566 | 57.7 | - | |
| G-12_5 | 11.8 | 56.9 | 520 | 59.3 | - | |
| Average: | 12.1 | 62.5 | 545 | 61.9 | - |
© 2020 by the authors. Licensee MDPI, Basel, Switzerland. This article is an open access article distributed under the terms and conditions of the Creative Commons Attribution (CC BY) license (http://creativecommons.org/licenses/by/4.0/).
Share and Cite
Bywalski, C.; Drzazga, M.; Kaźmierowski, M.; Kamiński, M. Shear Behavior of Concrete Beams Reinforced with a New Type of Glass Fiber Reinforced Polymer Reinforcement: Experimental Study. Materials 2020, 13, 1159. https://doi.org/10.3390/ma13051159
Bywalski C, Drzazga M, Kaźmierowski M, Kamiński M. Shear Behavior of Concrete Beams Reinforced with a New Type of Glass Fiber Reinforced Polymer Reinforcement: Experimental Study. Materials. 2020; 13(5):1159. https://doi.org/10.3390/ma13051159
Chicago/Turabian StyleBywalski, Czesław, Michał Drzazga, Maciej Kaźmierowski, and Mieczysław Kamiński. 2020. "Shear Behavior of Concrete Beams Reinforced with a New Type of Glass Fiber Reinforced Polymer Reinforcement: Experimental Study" Materials 13, no. 5: 1159. https://doi.org/10.3390/ma13051159
APA StyleBywalski, C., Drzazga, M., Kaźmierowski, M., & Kamiński, M. (2020). Shear Behavior of Concrete Beams Reinforced with a New Type of Glass Fiber Reinforced Polymer Reinforcement: Experimental Study. Materials, 13(5), 1159. https://doi.org/10.3390/ma13051159

