A Novel Methodology for Calculating Combustion Characteristics Across the Combustion Zone Length
Abstract
1. Introduction
1.1. Challenges in Combustor Design
1.2. Existing Approaches to Combustion Modeling
- Empirical Methods: These methods rely on experimental data and correlations to predict combustion characteristics. While computationally efficient, they often lack theoretical rigor and may not account for all relevant variables, such as turbulence and chemical kinetics. For example, combustion efficiency is typically estimated using empirical equations based on emission indices, which may not fully capture the effects of turbulence, mixing, and chemical kinetics [11].
- Differential Equation-Based Methods: These models are derived from fundamental physical laws, such as the Navier–Stokes equations, and are typically solved analytically or semi-analytically. They offer greater theoretical rigor but are often limited by simplifying assumptions, such as the assumption of an infinitesimally thin combustion zone, which may not be valid for turbulent flames. For instance, Reference [12] describes a reactor-based model that cannot be derived from the Navier–Stokes equations but is still based on differential equations. These models are particularly useful for understanding the fundamental physics of combustion but may struggle to capture the full complexity of turbulent flows.
- Computational Fluid Dynamics (CFD) Simulations: CFD simulations are numerical solutions to the differential equations governing fluid flow, heat transfer, and chemical reactions. They provide detailed insights into complex flow dynamics and are widely used for combustor design and optimization [13]. However, they require significant computational resources and are often limited by the accuracy of turbulence and chemical kinetics models. For example, Reference [14] demonstrates the use of CFD simulations to model turbulent combustion, highlighting the importance of accurate turbulence modeling in capturing the behavior of turbulent flames.
1.3. Gaps in Existing Research
1.4. Novelty and Objectives of the Study
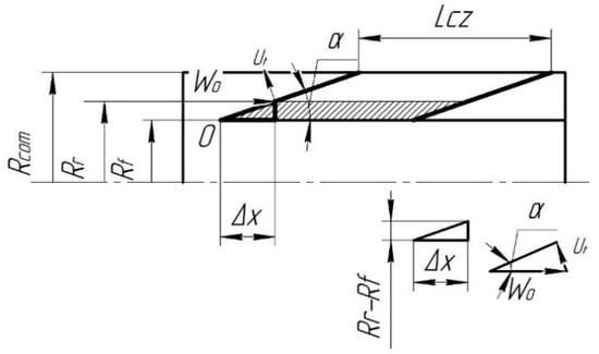
- Simplified Mixture Flow Trajectories: The model divides the combustion zone into smaller regions and calculates parameters locally, allowing for precise predictions of temperature and combustion efficiency.
- Novel Combustion Efficiency Equation: The model introduces a computationally efficient and theoretically rigorous method for calculating combustion efficiency along the combustor length. This equation accounts for the logarithmic and sigmoid-like growth patterns observed in experimental studies, ensuring accurate predictions across the entire combustion zone. Specifically, it captures the rapid initial increase in efficiency as combustion initiates, followed by a gradual leveling off as the reaction approaches completion.
- Integration of Turbulence and Chemical Kinetics: The model incorporates simplified turbulence parameters and chemical kinetics to capture the complex interactions between flow dynamics and combustion processes.
2. Mathematical Model
2.1. Fundamentals and Theory
2.2. Combustion Efficiency
3. Validation of the Mathematical Model
3.1. Experimental Setup
- Air Supply System: Equipped with a main blower (32 kW, 200 kW) and an auxiliary blower (2.2 kW), along with ducts, bypasses, and throttle valves to regulate airflow. The air was heated to 180 °C using a heat exchanger and a closed-loop air heating system to prevent contamination of combustion products (Figure 5).
- Fuel Supply System: Consisting of propane/butane, natural gas, and CO₂ containers, gas reducers, isolation valves, mixers, and nozzles. Precise fuel regulation was ensured through gas reducers and stopcocks.
- Measurement System: Included a calibrated orifice plate for air flow measurement, thermocouples for temperature monitoring, and a gas analyzer (Polar-T) for gas composition analysis. Sampling was performed via a two-tube system: one cooled for “frozen” gas samples and another heated to 700–800 K to prevent condensation.
3.2. Working Regime for the Nodular Combustor
3.3. Computational Fluid Dynamics Simulations for the Modular Combustor
- Geometric and Meshing Details: In the CFD simulations of the combustion chamber, the geometric model was constructed using NX software NX 10.0 and meshed in ANSYS, ANSYS 19R1 yielding approximately 2.5 million tetrahedral elements (Figure 7). The mesh generation process incorporated various refinements to capture intricate flow dynamics accurately, especially near the walls and critical geometric regions.
- Simulation Approach: The CFD simulations were carried out using ANSYS Fluent 19R1 to analyze the fluid flow characteristics. The simulations employed the Reynolds-averaged Navier–Stokes (RANS) equations, which are commonly used for modeling turbulent flows. Specifically, the k-ε RNG turbulence model was chosen due to its proven reliability in combustion simulations. This model accounts for the effects of turbulence in various fluid dynamic scenarios and has been widely applied in similar contexts. To accurately model the chemical reactions involved in the combustion process, the Kee chemical kinetics mechanism was implemented. This mechanism, widely used in combustion modeling, provides a detailed representation of reaction pathways and species interactions, enhancing the predictive capabilities of the simulation. Additionally, to ensure the accuracy and consistency of the simulations, identical boundary conditions to the experimental setup were applied, as referenced in previous studies [25,26].
- Convergence and Averaging: Simulations ran for ~10,000 iterations, with results averaged over the last 2000 iterations to account for steady-state behavior.
3.4. Results and Comparison for the Modular Combustor
4. Validation of the Mathematical Model for the Second Design
4.1. Working Regime for the Two-Zone Combustor
4.2. Computational Fluid Dynamics Simulations for the Two-Zone Combustor
4.3. Results and Comparison for the Two-Zone Combustor
5. Conclusions
- Validation of the Mathematical Model: The mathematical model was validated against experimental data for two different burner designs: a single-zone combustion burner and a two-zone tubular combustion burner operating in reverse flow. In both cases, the model showed reasonable predictive accuracy, with temperature distributions and predicted combustion efficiencies deviating by less than 15% from experimental measurements. This divergence may be attributed to simplifications in the model, which certainly increase accuracy with their reduction but also increase complexity.
- Validation Across Multiple Burner Designs: The model was rigorously validated on two distinct burner designs, each with unique geometric and operational characteristics. This validation demonstrates the quality of the model and its simplicity of use. However, in more complex combustion chambers, the model faces challenges in accurately dividing the combustion zones according to the direction of flow.
- Novelty of the Combustion Efficiency Equation: The model introduces a computationally efficient and theoretically rigorous method for calculating combustion efficiency along the burner. This method exhibits a sigmoid-like exponential growth behavior, reflecting the physical reality of combustion efficiency increasing rapidly at first as the reaction initiates and then leveling off as the reaction approaches completion. This behavior captures the gradual improvement in combustion efficiency observed in experiments, providing a more accurate representation of the combustion process.
- Comparison with Other Methods: It must be acknowledged that there are more accurate calculation methods than the proposed model, such as CFD and others. However, these methods are often more expensive, labor-intensive, and complex. The proposed model, in contrast, offers a computationally efficient and user-friendly alternative, providing quick insights for the preliminary design and optimization of combustion systems. While automation in CFD methods accelerates data acquisition, it can inadvertently distance researchers from the underlying physical phenomena. In contrast, the proposed method emphasizes active user engagement with computational methods, fostering a stronger comprehension of the underlying principles and ensuring robust and innovative outcomes.
Author Contributions
Funding
Data Availability Statement
Conflicts of Interest
Abbreviations
| Subscripts | |
| SST | shear stress transport |
| CFD | computational fluid dynamics |
| Symbols | |
| η | combustion efficiency |
| ρo | density of the fresh mixture |
| wo | velocities of the fresh mixture |
| Tc | combustion temperature |
| Po | air compressor pressure |
| To | air compressor temperature |
References
- Liu, Y.; Sun, X.; Sethi, V.; Nalianda, D.; Li, Y.G.; Wang, L. Review of modern low emissions combustion technologies for aero gas turbine engines. Prog. Aerosp. Sci. 2017, 94, 12–45. [Google Scholar] [CrossRef]
- Guellouh, N.; Szamosi, Z.; Siménfalvi, Z. Combustors with low emission levels for aero gas turbine engines. Int. J. Eng. Manag. Sci. 2019, 4, 503–514. [Google Scholar] [CrossRef]
- Zhao, Q.; Gao, Y.; Liu, C.; Mu, Y.; Xu, G.; Zhu, J. Experimental investigation into the effect of main stage swirl on flow and spray characteristics inside a stratified partially premixed combustor. Proc. Inst. Mech. Eng. Part A J. Power Energy 2023, 237, 765–776. [Google Scholar] [CrossRef]
- Ju, H.; Zhou, R.; Zhang, D.; Deng, P.; Wang, Z. Effects of Oxygen Concentration on Soot Formation in Ethylene and Ethane Fuel Laminar Diffusion Flames. Energies 2024, 17, 3866. [Google Scholar] [CrossRef]
- Huang, T.; Ren, X.; Chen, Y.; Ma, J.; Yi, D.; Wan, Z.; Yu, B.; Zeng, W. Transient Combustion Characteristics of Methane–Hydrogen Mixtures in Porous Media Burner. ACS Omega 2024, 9, 19525–19535. [Google Scholar] [CrossRef] [PubMed]
- Kiss, A.; Szabó, B.; Kun, K.; Weltsch, Z. Prediction of Efficiency, Performance, and Emissions Based on a Validated Simulation Model in Hydrogen–Gasoline Dual-Fuel Internal Combustion Engines. Energies 2024, 17, 5680. [Google Scholar] [CrossRef]
- Parente, A.; de Joannon, M. MILD Combustion: Modelling Challenges, Experimental Configurations, and Diagnostic Tools. Front. Mech. Eng. 2021, 7, 726633. [Google Scholar] [CrossRef]
- Orlik, E.V.; Starov, A.V.; Shumsky, V.V. Determination of burnout completeness in a combustion model by the gas-dynamic method. Combust. Explos. Phys. 2004, 40, 23–34. (In Russian) [Google Scholar]
- Baklanov, A.V. Development of the two-fuel combustion chamber and calculation of processes for the theory of turbulent burning. Sib. Aerosp. J. 2024, 25, 372–383. [Google Scholar] [CrossRef]
- Lefebvre, A.H.; Ballal, D.R. Gas Turbine Combustion: Alternative Fuels and Emissions; CRC Press: Boca Raton, FL, USA, 2010. [Google Scholar]
- Şöhret, Y.; Kıncay, O.; Karakoç, T.H. Combustion efficiency analysis and key emission parameters of a turboprop engine at various loads. J. Energy Inst. 2015, 88, 490–499. [Google Scholar] [CrossRef]
- Sychenkov, V.A.; Baklanov, A.V.; Yousef, W.M. Calculation of Parameters for Combustor with the Air–Fuel Mixture Premixing. Russ. Aeronaut. 2021, 64, 277–282. [Google Scholar] [CrossRef]
- Mishra, N. Efficient Solvers for Nonlinear Partial Differential Equations in Computational Fluid Dynamics. Adv. Nonlinear Var. Inequalities 2023, 26, 76–93. [Google Scholar] [CrossRef]
- Li, Y.; Li, R.; Li, D.; Bao, J.; Zhang, P. Combustion characteristics of a slotted swirl combustor: An experimental test and numerical validation. Int. Commun. Heat Mass Transf. 2015, 66, 140–147. [Google Scholar] [CrossRef]
- Tzyan, S. Aerodynamics of rarefied gases. In Gas Dynamics; Publishing House of the Academy of Sciences: Kyiv, Ukraine, 1950. [Google Scholar]
- Scurlock, A.C. Flame Stabilization Studies; M.I.T. Progress Report; Massachusetts Institute of Technology: Cambridge, MA, USA, 1947. [Google Scholar]
- Billig, F.S. Diffusion Flames; McGraw-Hill: New York, NY, USA, 1950. [Google Scholar]
- Talantov, A.V. Basics of calculating the simplest direct-flow combustion chamber. Izv. VUZ. Aviats. Tekh. 1958, 3, 95–104. (In Russian) [Google Scholar]
- Mingazov, B.G.; Aleksandrov, Y.B.; Kosterin, A.V.; Tokmovtsev, Y.V. Combustion Processes and Automated Design of Combustion Chambers of Gas Turbine Engines and Gas Turbine Plants; Manual; Publishing House of KNITU-KAI: Kazan, Russia, 2015. (In Russian) [Google Scholar]
- Aleksandrov, Y.B.; Mingazov, B.G. Determination of completeness of combustion, temperature and emission characteristics in a swirl flow based on the theory of turbulent combustion. Vestn. Samara Univ. Aerosp. Mech. Eng. 2024, 23, 123–136. [Google Scholar] [CrossRef]
- Zeldovich, Y.B. Selected Works of Yakov Borisovich Zeldovich, Volume I: Chemical Physics and Hydrodynamics; Section 19: A Theory of Thermal Flame Propagation; Princeton University Press: Princeton, NJ, USA, 2014; Volume 140, pp. 262–270. [Google Scholar]
- Williams, F.A. Combustion Theory; CRC Press: Boca Raton, FL, USA, 2018. [Google Scholar]
- Vulis, L.A. Thermal Regimes of Combustion; Russian Edition—1954; McGraw-Hill: New York, NY, USA, 1961. [Google Scholar]
- Savchenko, V.P. Generalization of the experience of organizing turbulent combustion in combustion chambers of aerospace and power-generating engines. Bull. Samara State Aerosp. Univ. 2002, 2, 97–111. (In Russian) [Google Scholar]
- Sabirzyanov, A.N.; Yavkin, V.B.; Aleksandrov, Y.B.; Markushin, A.N.; Baklanov, A.V. Modeling of emission characteristics of gas turbine engine combustion chambers. In Problems and Prospects of Development of Aviation, Land Transport and Energy “ANTE-2013”, Proceedings of the VII International Scientific and Technical Conference, Samara, Russia, 15–17 May 2013; Samara State Aerospace University: Samara, Russia, 2013; Volume 1, p. 355. [Google Scholar]
- Sabirzyanov, A.N.; Yavkin, V.B.; Aleksandrov, Y.B.; Markushin, A.N.; Baklanov, A.V. Emission characteristics and temperature non-uniformity at the exit from the gas turbine combustion chamber. Bull. Samara State Aerosp. Univ. Named After Acad. S. P. Korolev 2013, 41, 165–172. Available online: https://cyberleninka.ru/article/n/emissionnye-harakteristiki-i-temperaturnaya-neravnomernost-na-vyhode-iz-kamery-sgoraniya-gtu/viewer (accessed on 1 January 2020).
- Gerlinger, P.; Stoll, P.; Kindler, M.; Schneider, F.; Aigner, M. Numerical investigation of mixing and combustion enhancement in supersonic combustors by strut induced streamwise vorticity. Aerosp. Sci. Technol. 2008, 12, 159–168. [Google Scholar] [CrossRef]

















| Boundary | Value |
|---|---|
| Air inlet mass flow rate | 0.034 kg/s |
| Air inlet temperature | 353 K |
| Air inlet pressure | 1.1 × 105 Pa |
| Air excess ratio α | 2.5 |
| Boundary | Case 1 | Case 2 | Case 3 | Case 4 | Case 5 | Case 6 |
|---|---|---|---|---|---|---|
| Air inlet mass flow rate, g/s | 266.6 | 263.6 | 269.5 | 205.9 | 218.3 | 225.5 |
| Fuel inlet mass flow rate, g/s | 5.9 | 4.2 | 3.66 | 4.4 | 3.3 | 3.2 |
| Air inlet temperature, K | 277 | 277 | 277 | 423 | 423 | 423 |
Disclaimer/Publisher’s Note: The statements, opinions and data contained in all publications are solely those of the individual author(s) and contributor(s) and not of MDPI and/or the editor(s). MDPI and/or the editor(s) disclaim responsibility for any injury to people or property resulting from any ideas, methods, instructions or products referred to in the content. |
© 2025 by the authors. Licensee MDPI, Basel, Switzerland. This article is an open access article distributed under the terms and conditions of the Creative Commons Attribution (CC BY) license (https://creativecommons.org/licenses/by/4.0/).
Share and Cite
Yousef, W.; Li, Z.; Zhou, K.; Yan, J. A Novel Methodology for Calculating Combustion Characteristics Across the Combustion Zone Length. Energies 2025, 18, 1470. https://doi.org/10.3390/en18061470
Yousef W, Li Z, Zhou K, Yan J. A Novel Methodology for Calculating Combustion Characteristics Across the Combustion Zone Length. Energies. 2025; 18(6):1470. https://doi.org/10.3390/en18061470
Chicago/Turabian StyleYousef, Wisam, Ziwan Li, Kai Zhou, and Jianping Yan. 2025. "A Novel Methodology for Calculating Combustion Characteristics Across the Combustion Zone Length" Energies 18, no. 6: 1470. https://doi.org/10.3390/en18061470
APA StyleYousef, W., Li, Z., Zhou, K., & Yan, J. (2025). A Novel Methodology for Calculating Combustion Characteristics Across the Combustion Zone Length. Energies, 18(6), 1470. https://doi.org/10.3390/en18061470
