Energy, Economic and Environmental Analysis of Alternative, High-Efficiency Sources of Heat and Energy for Multi-Family Residential Buildings in Order to Increase Energy Efficiency in Poland
Abstract
1. Introduction
2. Research Methodology
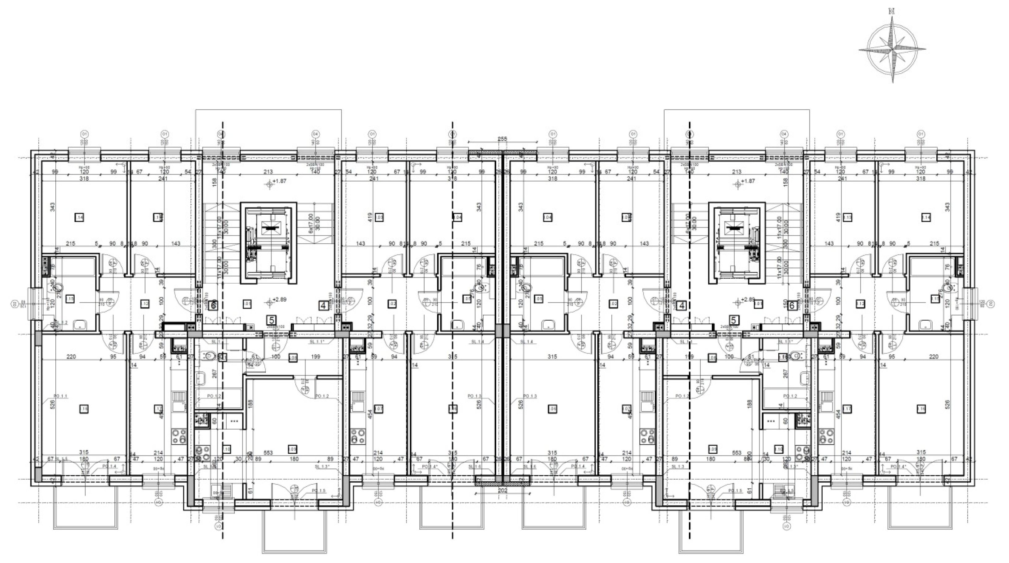
2.1. Description of the Analysed Building
2.2. Energy Analysis
2.3. Economic Analysis
2.4. Environmental Analysis
3. Analysis of Alternative Sources of Energy and Heat
- -
- the assessment of the annual demand for usable energy for heating, ventilation, hot water preparation;
- -
- the list of energy carriers available on a given plot;
- -
- the selection of two energy supply systems for analysis: a conventional system and an alternative system or a conventional system and a hybrid system, understood as a combination of the conventional and the alternative systems;
- -
- the optimization and comparative calculations for selected energy supply systems;
- -
- the results of the comparative analysis and the choice of the building’s energy supply system.
- -
- systems based on energy from renewable sources, e.g., photovoltaic installations;
- -
- systems that involve the use of high-efficiency cogeneration, i.e., the simultaneous generation of heat and electricity;
- -
- heating or cooling systems based on energy from renewable energy sources or heat pumps;
- -
- systems using waste energy from technological processes, e.g., from production processes, as alternative sources of heat.
- -
- Class A1—a building with mechanical supply and exhaust ventilation with heat recovery and with designed external partitions, meeting the requirements for buildings with passive energy characteristics and with minimized effects of thermal bridges, in accordance with [13];
- -
- Class A2—a building with mechanical exhaust ventilation and designed external partitions, meeting the requirements for buildings with passive energy characteristics and with minimized effects of thermal bridges, in accordance with [13];
- -
- Class A3—a building with natural ventilation and with designed external partitions, meeting the requirements for buildings with passive energy characteristics and with minimized effects of thermal bridges, in accordance with [13];
- -
- Class B1—a building with mechanical supply and exhaust ventilation with heat recovery and with designed external partitions meeting the minimum requirements of technical conditions [13];
- -
- Class B2—a building with mechanical exhaust ventilation and designed external partitions meeting the minimum requirements of technical conditions [13];
- -
- Class B3—a building with natural ventilation and with designed external partitions meeting the minimum requirements of technical conditions [13].
- -
- Natural ventilation: air supply through window diffusers and exhaust through ventilation ducts,
- -
- Mechanical exhaust ventilation: air supply through window diffusers and mechanical exhaust through fans installed on ventilation ducts,
- -
- Mechanical supply and exhaust ventilation: implemented by the supply and exhaust ventilation unit with heat recovery. An average annual heat recovery of 75% was assumed for the calculations.
- Variant W1—eco-pea coal boiler house;
- Variant W2—biomass boiler house–pellets;
- Variant W3—natural gas condensing boiler;
- Variant W4—a heating substation supplied from the heating network from a coal-fired heating plant;
- Variant W5—a heating substation supplied from the heating network from a coal-fired heating plant;
- Variant W6—an air-to-water heat pump and, as a peak source of heat, a heating center supplied from a heating network from coal-fired cogeneration;
- Variant W7—an air-to-water heat pump supplied by a 21.6 kWp PV photovoltaic installation and a thermal center supplied by a coal-fired cogeneration heating network as the peak heat source;
- Variant W8—air-to-water heat pump and natural gas condensing boiler house as the peak heat source;
- Variant W9—air-to-water heat pump supplied by a 28 kWp PV photovoltaic installation and a natural gas condensing boiler house as the peak heat source;
- Variant W10—glycol–water heat pump;
- Variant W11—glycol–water heat pump supplied by a 20.4 kWp photovoltaic PV installation;
- Variant W12—a glycol–water heat pump and a natural gas condensing boiler house as the peak heat source;
- Variant W13—glycol–water heat pump supplied by a 25.2 kWp PV photovoltaic installation and a natural gas condensing boiler house as the peak heat source;
- Variant W14—an air-to-water heat pump supplied by natural gas and a natural gas condensing boiler house as the peak heat source;
- Variant W15—an air-to-water heat pump supplied by natural gas and a natural gas condensing boiler house as the peak heat source, and an additional 18 kWp photovoltaic PV installation.
4. Conclusions
5. Summary
- -
- as it is impossible to reduce water consumption for hygienic and sanitary purposes, it is necessary to use highly efficient heat and energy sources based on renewable energy;
- -
- when designing an energy-saving building, the first step is to reduce the demand for usable energy for heating and ventilation purposes;
- -
- the use of mechanical supply and exhaust ventilation with heat recovery in the building is a solution that improves energy efficiency and ensures the appropriate microclimate in the rooms;
- -
- the reduction of heat loss by penetration through external partitions is a solution that improves energy efficiency: solutions that increase thermal insulation should be used;
- -
- the recommended solution for the optimal source of heat and energy should be technically feasible and consider the plot size or the roof area for a PV installation;
- -
- in order to increase the energy efficiency of a building, solutions based on high-efficiency heat sources should be applied;
- -
- for environmental reasons, the most advantageous solution is the use of renewable energy sources (RES);
- -
- solutions based on renewable energy sources are characterized by high investment costs, which, for financial reasons, limits the possibility of their use by potential investors. It is therefore recommended to perform economic analyses based on the LCC indicator at the design stage.
Author Contributions
Funding
Data Availability Statement
Conflicts of Interest
References
- United Nations Environment Programme, Global Alliance for Buildings and Construction. The 2020 Global Status Report for Buildings and Construction. Towards a Zero- Emissions, Efficient and Resilient Buildings and Construction Sector; United Nations Environment Programme: Nairobi, Kenya, 2020. [Google Scholar]
- European Commision. A European Green Deal. Striving to Be the First Climate-Neutral Continent. Available online: European Parliament. Directive 2018/844 of the European Parliament and of the Council of 30 May 2018 Amending Directive 2010/31/EU on the Energy Performance of Buildings and Directive 2012/27/EU on the Energy Efficiency. Off. J. Eur. Union 2018, L156, 75–91. Available online: https://eur-lex.europa.eu/legal-content/EN/TXT/?uri=celex%3A32018L0844 (accessed on 1 September 2022).
- Bandeiras, F.; Gomes, M.; Coelho, P.; Fernandes, J. Towards net zero energy in industrial and commercial buildings in Portugal. Renew. Sustain. Energy Rev. 2020, 119, 109580. [Google Scholar] [CrossRef]
- Tori, F.; Bustamante, W.; Vera, S. Analysis of Net Zero Energy Buildings public policies at the residential building sector: A comparison between Chile and selected countries. Energy Policy 2022, 161, 112707. [Google Scholar] [CrossRef]
- Ma, Y.; Zedan, S.; Liu, A.; Miller, W. Impact of a Warming Climate on Hospital Energy Use and Decarbonization: An Australian Building Simulation Study. Buildings 2022, 12, 1275. [Google Scholar] [CrossRef]
- Almutairi, K.; Aungkulanon, P.; Algarni, S.; Alqahtani, T.; Keshuov, S.A. Solar irradiance and efficient use of energy: Residential construction toward net-zero energy building. Sustain. Energy Technol. Assess. 2022, 53, 102550. [Google Scholar] [CrossRef]
- Nindartin, A.; Moon, H.-W.; Park, S.-J.; Lee, K.-T.; Im, J.-B.; Kim, J.-H. Influencing of the Building Energy Policies upon the Efficiency of Energy Consumption: The Case of Courthouse Buildings in South Korea. Energies 2022, 15, 6679. [Google Scholar] [CrossRef]
- Li, X.; Lin, A.; Young, C.-H.; Dai, C.-H.; Wang, C.-H. Energetic and economic evaluation of hybrid solar energy systems in a residential net-zero energy building. Appl. Energy 2019, 254, 113709. [Google Scholar] [CrossRef]
- Directive 2018/2001 of the European Parliament and of the Council of 11 December 2018 on the Promotion of the Use of Energy from Renewable Sources. Available online: https://eur-lex.europa.eu/legal-content/EN/TXT/PDF/?uri=CELEX:32018L2001 (accessed on 5 October 2022).
- Resolution No. 91 of the Council of Ministers of 22 June 2015 on the Adoption of the National Plan to Increase the Number of Low-Energy Buildings. Available online: https://www.iea.org/policies/12230-national-plan-to-increase-the-number-of-low-energy-buildings (accessed on 5 October 2022).
- IEA. Act of 29 August 2014 on the Energy Performance of Buildings with Later Changes; IEA: Paris, France, 2014. [Google Scholar]
- Polish Ministry of Infrastructure. Regulation of the Minister of Infrastructure of 12 April 2002 on Technical Conditions to Be Met by Buildings and Their Location–Technical Conditions. With Later Changes; Polish Ministry of Infrastructure: Kraków, Poland, 2002.
- Kristowski, A.; Grzyl, B.; Szczepański, M.; Jakubczyk-Gałczyńska, A. Model for calculating the life cycle cost of a structure on the example of a single-family residential building. Przegląd Bud. 2021, 7–8, 137–141. [Google Scholar]
- Sowa, J. Budynki o Niemal Zerowym Zużyciu Energii; Warsaw University of Technology: Warsaw, Poland, 2017; pp. 1–351. [Google Scholar]
- Szymańska, E.J. Analysis of Residential Buildings in Poland for Potential Energy Renovation toward Zero-Emission Construction. Energies 2022, 15, 9327. [Google Scholar] [CrossRef]
- IEA. Regulation of the Minister of Development of 11 September 2020 on the Detailed Scope and Form of the Construction Design; IEA: Paris, France, 2020. [Google Scholar]
- Grygierek, K. Energy and Environmental Analysis of Single-Family Houses Located in Poland. Energies 2020, 13, 2740. [Google Scholar] [CrossRef]
- Alsayed, M.F.; Tayeh, R.A. Life cycle cost analysis for determining optimal insulation thickness in Palestinian buildings. J. Build. Eng. 2019, 22, 101–112. [Google Scholar] [CrossRef]
- Ascione, F.; Bianco, N.; De Masi, R.F.; Mauro, G.M.; Vanoli, G.P. Design of the building envelope: A novel multi-objective approach for the optimization of energy performance and thermal comfort. Sustainability 2015, 7, 10809–10836. [Google Scholar] [CrossRef]
- Atmaca, A.; Atmaca, N. Comparative life cycle energy and cost analysis of post-disaster temporary housings. Appl. Energy 2016, 171, 429–443. [Google Scholar] [CrossRef]
- Braulio-Gonzalo, M.; Bovea, M.D. Environmental and cost performance of building’s envelope insulation materials to reduce energy demand: Thickness optimization. Energy Build. 2017, 150, 527–545. [Google Scholar] [CrossRef]
- Invidiata, A.; Ghisi, E. Life-cycle energy and cost analyses of window shading used to improve the thermal performance of houses. J. Clean. Prod. 2016, 133, 1371–1383. [Google Scholar] [CrossRef]
- Islam, H.; Jollands, M.; Setunge, S.; Haque, N.; Bhuiyan, M.A. Life cycle assessment and life cycle cost implications for roofing and floor designs in residential buildings. Energy Build. 2015, 104, 250–263. [Google Scholar] [CrossRef]
- Jaber, S.; Ajib, S. Optimum, technical and energy efficiency design of residential building in Mediterranean region. Energy Build. 2011, 43, 1829–1834. [Google Scholar] [CrossRef]
- Kaynakli, O. Parametric investigation of optimum thermal insulation thickness for external walls. Energies 2011, 4, 913–927. [Google Scholar] [CrossRef]
- Pal, S.K.; Takano, A.; Alanne, K.; Palonen, M.; Siren, K. A multi-objective life cycle approach for optimal building design: A case study in Finnish context. J. Clean. Prod. 2017, 143, 1021–1035. [Google Scholar] [CrossRef]
- Tong, S.; Li, H. Life-cycle cost analysis of roofing technologies in tropical areas. Energy Build. 2017, 151, 283–292. [Google Scholar] [CrossRef]
- Udawattha, C.; Halwatura, R. Life cycle cost of different walling material used for affordable housing in tropics. Case Stud. Constr. Mater. 2017, 7, 15–29. [Google Scholar] [CrossRef]
- IEA. Regulation of the Minister of Infrastructure and Development of 6 September 2019 on the Methodology for Determining the Energy Performance of a Building or Part of a Building and Energy Performance Certificates; IEA: Paris, France, 2019. [Google Scholar]
- PN-EN 12831:2006; Heating Installations in Buildings. Calculation Method of Designed Heat Load. Polish Comitee of Normalisation: Warsaw, Poland, 2006.
- Priority Program of the National Fund for Environmental Protection and Water Management of Subsidies to Loans for the Construction of Energy-Efficient Houses–NF15 and NF40; Energy Efficient Houses. In Guide to Good Practices Prepared on the Basis of the Study of the National Energy Conservation Agency S.A.; Warsaw, Poland; 2012. Available online: http://www.nfosigw.gov.pl/srodkikrajowe/programy/doplaty-do--kredytow-na-domyenergooszczedne/podrecznik-dobrych-praktyk/ (accessed on 1 September 2022).















| No. | Building Type | PE Value [kWh/(m2·Year)] |
|---|---|---|
| 1. | Single-family residential building (no cooling) | 70 |
| 2. | Single-family residential building (with cooling) | 70 + 5∙Af,c/Af |
| 3. | Multi-family residential building (no cooling) | 65 |
| 4. | Multi-family residential building (with cooling) | 65 + 5∙Af,c/Af |
| 5. | Collective residential building (no cooling) | 75 + 25 |
| 6. | Collective residential building (with cooling) | 75 + 25 + 25∙Af,c/Af |
| 7. | Public building (no cooling) | 45 + 50 |
| 8. | Public building (with cooling) | 45 + 50 + 25∙Af,c/Af |
| 9. | Storage building (no cooling) | 70 + 50 |
| 10. | Storage building (with cooling) | 70 + 50 + 25∙Af,c/Af |
| 11. | Industrial building (no cooling) | 70 + 50 |
| 12. | Industrial building (with cooling) | 70 + 50 + 25∙Af,c/Af |
| No. | Method of Supplying the Building or Its Part with Energy | Type of Energy Carrier or Energy | wi | EC CO2 Emission Indicators [kg/kWh] |
|---|---|---|---|---|
| 1 | Local energy generation within the building | Heating oil | 1.10 | 0.267 |
| 2 | Natural gas | 1.10 | 0.199 | |
| 3 | Liquefied gas | 1.10 | 0.227 | |
| 4 | Coal | 1.10 | 0.341 | |
| 5 | Lignite | 1.10 | 0.402 | |
| 6 | Solar energy | 0 | 0 | |
| 7 | Wind energy | 0 | 0 | |
| 8 | Geothermal energy | 0 | 0 | |
| 9 | Biomass | 0.20 | 0 | |
| 10 | Biogas | 0.50 | 0 | |
| 11 | District heating from cogeneration | Coal or natural gas | 0.80 | 0.337/0.199 |
| 12 | Biomass, biogas | 0.15 | 0 | |
| 13 | District heating from a heating plant | Coal | 1.30 | 0.341 |
| 14 | Natural gas or heating oil | 1.20 | 0.199/0.267 | |
| 15 | System power grid | Electrical power | 3.00 | 0.708 |
| No. | Partition Type | U [W/(m2·K)] |
|---|---|---|
| 1. | External wall | 0.20 |
| 2. | Flat roof | 0.15 |
| 3. | Ceiling above the garage | 0.25 |
| 4. | Windows | 0.90 |
| 5. | External door | 1.30 |
| No. | Partition Type | U [W/(m2·K)] |
|---|---|---|
| 1. | External wall | 0.12 |
| 2. | Flat roof | 0.10 |
| 3. | Ceiling above the garage | 0.20 |
| 4. | Windows | 0.80 |
| 5. | External door | 1.00 |
Disclaimer/Publisher’s Note: The statements, opinions and data contained in all publications are solely those of the individual author(s) and contributor(s) and not of MDPI and/or the editor(s). MDPI and/or the editor(s) disclaim responsibility for any injury to people or property resulting from any ideas, methods, instructions or products referred to in the content. |
© 2023 by the authors. Licensee MDPI, Basel, Switzerland. This article is an open access article distributed under the terms and conditions of the Creative Commons Attribution (CC BY) license (https://creativecommons.org/licenses/by/4.0/).
Share and Cite
Alsabry, A.; Szymański, K.; Michalak, B. Energy, Economic and Environmental Analysis of Alternative, High-Efficiency Sources of Heat and Energy for Multi-Family Residential Buildings in Order to Increase Energy Efficiency in Poland. Energies 2023, 16, 2673. https://doi.org/10.3390/en16062673
Alsabry A, Szymański K, Michalak B. Energy, Economic and Environmental Analysis of Alternative, High-Efficiency Sources of Heat and Energy for Multi-Family Residential Buildings in Order to Increase Energy Efficiency in Poland. Energies. 2023; 16(6):2673. https://doi.org/10.3390/en16062673
Chicago/Turabian StyleAlsabry, Abdrahman, Krzysztof Szymański, and Bartosz Michalak. 2023. "Energy, Economic and Environmental Analysis of Alternative, High-Efficiency Sources of Heat and Energy for Multi-Family Residential Buildings in Order to Increase Energy Efficiency in Poland" Energies 16, no. 6: 2673. https://doi.org/10.3390/en16062673
APA StyleAlsabry, A., Szymański, K., & Michalak, B. (2023). Energy, Economic and Environmental Analysis of Alternative, High-Efficiency Sources of Heat and Energy for Multi-Family Residential Buildings in Order to Increase Energy Efficiency in Poland. Energies, 16(6), 2673. https://doi.org/10.3390/en16062673

