Internal Flow Field and Loss Analysis of a Magnetic Drive Pump’s Cooling Circuit
Abstract
1. Introduction
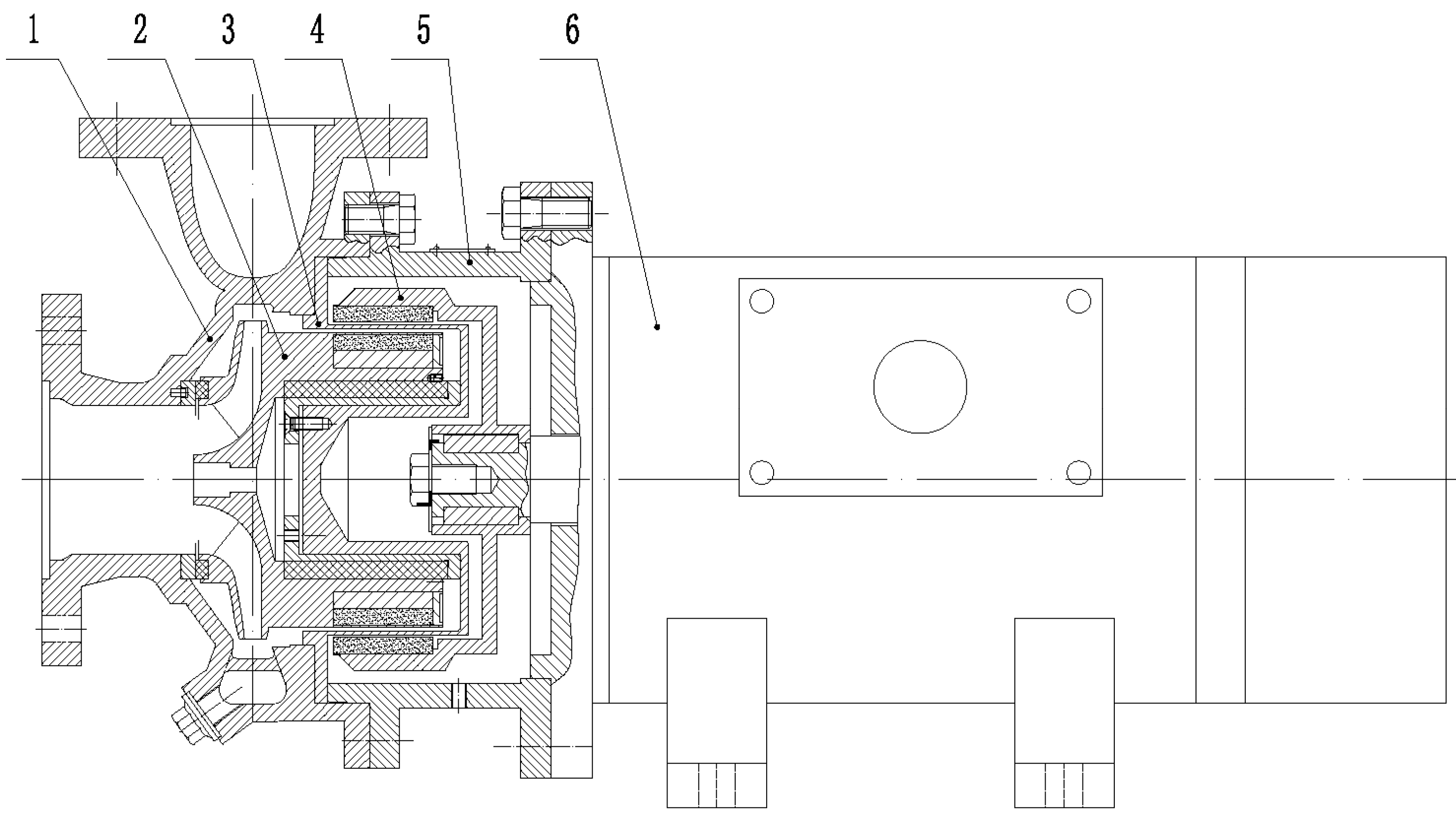
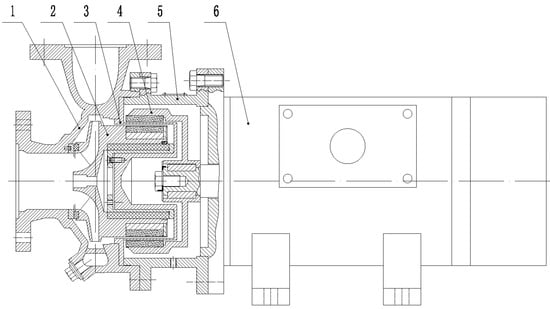
2. Object of Study
3. Numerical Method
4. Test Setup
5. Results and Discussions
5.1. Discussion of the Initial Pump Flow Field
5.2. Discussion of Cooling Circuit for Different Schemes
5.3. Magnetic Eddy Current Loss in Various Schemes
5.4. Experimental Confirmation
- In the simulation, the surface roughness of the cooling circuit is set to 3.2 μm, and the manufacturing error of the experimental inner magnetic rotor and containment shell may deviate from this value. The other two designs’ inner magnetic rotors are made individually, and the surface roughness of the cooling circuit may also differ. These factors may increase the differential in water friction loss.
- The increases in the magnet length will lead to an increase in the mass of the inner magnetic rotor. When the magnetic drive pump is operating at a high speed, its power consumption increases. Furthermore, in the simulation, the inner and outer walls of the cooling circuit are specified as perfect cylindrical surfaces, but the magnetic drive pump may work with an eccentric inner magnetic rotor, thus increasing the difference between the simulation findings and the actual values.
6. Conclusions
- The pressure and velocity distribution in the magnetic drive pump’s cooling circuit is less impacted by the pump flow rate. The cooling flow rate falls as the pump flow rate increases, and the cooling flow rate of 1.3 Q reduces by 8.4% compared to 0.7 Q. The water friction loss in the circuit varies little, depending on the flow conditions.
- Changing the length of the magnetic coupling has little effect on the pressure and velocity distribution of the cooling circuit. However, as the magnetic coupling length rises, the cooling flow rate steadily drops, and the water friction loss increases linearly. When compared to the 30 mm scheme, the cooling flow rate of the magnet length 55 mm scheme reduced by 14.5%, while the water friction loss rose by 33.67%.
- The maximum temperature in the cooling circuit occurs at the bottom of the containment shell. The temperature rise in the cooling circuit increases as the pump flow rate and magnet length increase. At the rated flow rate, the cooling circuit temperature rise with a 50 mm magnet length is 23.1% more than with a 30 mm magnet length.
- As the magnet length increases, the maximum magnetic torque and eddy current losses of the magnetic coupling grow linearly. Compared to the 30 mm scheme, the maximum magnetic torque and eddy current losses of the 55 mm scheme rise by 45%.
Author Contributions
Funding
Data Availability Statement
Conflicts of Interest
References
- Kim, S.H.; Shin, J.W.; Ishiyama, K. Magnetic bearings and synchronous magnetic axial coupling for the enhancement of the driving performance of magnetic wireless pumps. IEEE Trans. Magn. 2014, 50, 4003404. [Google Scholar] [CrossRef]
- Xu, Z.; Kong, F.; Zhang, K.; Zhu, H.; Wang, J.; Qiu, N. Optimization of the impeller for hydraulic performance improvement of a high-speed magnetic drive pump. Adv. Mech. Eng. 2022, 14, 16878132221104576. [Google Scholar] [CrossRef]
- Tani, N.; Yamanishi, N.; Tsujimoto, Y. Influence of Flow Coefficient and Flow Structure on Rotational Cavitation in Inducer. J. Fluids Eng. 2012, 134, 021302. [Google Scholar] [CrossRef]
- Al-Obaidi, A.R. Investigation of the influence of various numbers of impeller blades on internal flow field analysis and the pressure pulsation of an axial pump based on transient flow behavior. Heat Transfer. 2020, 49, 2000–2024. [Google Scholar] [CrossRef]
- Bronzeri, R.B.; Chabu, I.E. Concept Validation of an Automotive Variable Flow Water Pump With an Eddy Current Magnetic Coupling. IEEE Trans. Transp. Electrif. 2021, 7, 2939–2950. [Google Scholar] [CrossRef]
- Kong, F.; Shen, X.; Wang, W.; Zhou, S. Performance study based on inner flow field numerical simulation of magnetic drive pumps with different rotate speeds. Chin. J. Mech. Eng. 2012, 25, 137–143. [Google Scholar] [CrossRef]
- Mitsuo, U.; Takaaki, M.; Isamu, A.; Shin, O.; Toshiaki, K. Development of the floating centrifugal pump by use of non contact magnetic drive and its performance. Int. J. Rotating Mach. 2004, 10, 337–344. [Google Scholar]
- Zhao, F.; Kong, F.; Zhou, Y.; Xia, B.; Bai, Y. Optimization design of the impeller based on orthogonal test in an ultra-low specific speed magnetic drive pump. Energies 2019, 12, 4767. [Google Scholar] [CrossRef]
- Bao, X.H.; Sheng, H.J. Analysis of Water Friction Loss and Calculation of Rotor 3D Temperature Field for Wet Submersible Motor. Appl. Mech. Mater. 2013, 325–326, 437–440. [Google Scholar] [CrossRef]
- Kim, W.S.; Yun, J.E. CFD analysis on the balancing hole design for magnetic drive centrifugal pumps. Energies 2020, 13, 5865. [Google Scholar] [CrossRef]
- Zhou, Y.; Kong, F.; Bai, Y. Design and numerical analysis of cooling circuit for multistage canned pump. AIP Conf. Proc. 2017, 1839, 020127. [Google Scholar]
- Bai, Y.; Kong, F.; Wang, J.; Qiu, N. Design of cooling circuit of new mine high speed rescue pump. J. China Coal Soc. 2019, 44, 717–723. [Google Scholar]
- Tan, L.; Shi, W.; Kong, F.; Zhang, D. Design and numerical simulation of cooling circuit in magnetic pumps. Trans. Chin. Soc. Agric. Eng. 2015, 31, 84–91. [Google Scholar]
- Gao, Z.; Zhang, J.; Li, W.; Hu, C.; Si, C.; Hong, F.; Liu, J.; Shi, X. The flow-heat coupling study of cooling circulating channel of magnetic drive pump. Mechanics 2021, 27, 285–294. [Google Scholar] [CrossRef]
- Gao, Z.; Hu, C.; Liu, J.; Su, H. The study on internal flow characteristics of magnetic drive pump. IEEE Access 2019, 7, 100001–100013. [Google Scholar]
- Gao, Z.; Hu, C.; Liu, J.; Hong, F. The study on pressure pulsation of cooling circulating channel of magnetic drive pump. J. Vibroengineering 2019, 21, 1456–1471. [Google Scholar] [CrossRef]
- Pan, Z.; Haik, Y.; Kilani, M.; Chen, C.J. Force and torque characteristics for magnetically driven blood pump. J. Magn. Magn. Mater. 2002, 241, 292–302. [Google Scholar]
- Kong, F.; Zhang, Y.; Shao, F.; Wang, Z.; Xue, L. Eddy current loss of containment shell of high-speed magnetic driving pump. Trans. Chin. Soc. Agric. Eng. 2012, 28, 61–65. [Google Scholar]
- Tao, Y.; Bai, Y.; Wu, Y. Influence of Blade Thickness on Solid–Liquid Two-Phase Flow and Impeller Wear in a Ceramic Centrifugal Slurry Pump. Processes 2021, 9, 1259. [Google Scholar] [CrossRef]
- Thakkar, S.; Vala, H.; Patel, V.K.; Patel, R. Performance improvement of the sanitary centrifugal pump through an integrated approach based on response surface methodology, multi-objective optimization and CFD. J. Braz. Soc. Mech. Sci. Eng. 2021, 43, 24. [Google Scholar] [CrossRef]
- Qian, B.; Wu, P.; Huang, B.; Zhang, K.; Wu, D. Optimization of a Centrifugal Impeller on Blade Thickness Distribution to Reduce Hydro-induced Vibration. J. Fluids Eng. 2019, 142, 021202. [Google Scholar] [CrossRef]
- Xu, Z.; Kong, F.; Zhang, H.; Zhang, K.; Wang, J.; Qiu, N. Research on Visualization of Inducer Cavitation of High-Speed Centrifugal Pump in Low Flow Conditions. J. Mar. Sci. Eng. 2021, 9, 1240. [Google Scholar] [CrossRef]
- Morini, G.L. Viscous heating in liquid flows in micro-channels. Int. J. Heat Mass Transf. 2005, 48, 3637–3647. [Google Scholar] [CrossRef]
- Suzzi, N.; Lorenzini, M. Viscous heating of a laminar flow in the thermal entrance region of a rectangular channel with rounded corners and uniform wall temperature. Int. J. Therm. Sci. 2019, 145, 106032. [Google Scholar] [CrossRef]
- Lorenzini, M.; Daprà, I.; Scarpi, G. Heat transfer for a Giesekus fluid in a rotating concentric annulus. Appl. Therm. Eng. 2017, 122, 118–125. [Google Scholar] [CrossRef]
- Cheng, C.; Wang, H.; Li, X.; Lin, Q. Experimental study on eddy current loss and water friction loss of high-speed shielded motor. J. Rocket Propuls. 2019, 45, 66–70. [Google Scholar]






















| Parameters | Value |
|---|---|
| Flow rate Q/m3/h | 30 |
| Head H/m | 130 |
| Rotational speed n/rpm | 8000 |
| Specific speed ns | 69.2 |
| Impeller diameter D2/mm | 120 |
| No. of blades | 5 |
| Parameters | Value |
|---|---|
| Outer magnet internal diameter | 127 mm |
| Outer magnet external diameter | 140 mm |
| Inner magnet internal diameter | 106 mm |
| Inner magnet external diameter | 117 mm |
| External diameter of inner magnetic rotor | 120 mm |
| Magnet length | 40 mm |
| No. of magnetic pole pairs | 18 |
| Domain | No. of Grid | Min. Orthogonal Quality |
|---|---|---|
| Suction pipe | 190,610 | 0.68 |
| Front pump chamber | 370,440 | 0.30 |
| Impeller | 653,660 | 0.31 |
| Cooling circuit | 765,115 | 0.32 |
| Volute | 385,007 | 0.22 |
| Discharge pipe | 86,720 | 0.74 |
| Scheme | Magnet Length (mm) | Containment Shell Length (mm) |
|---|---|---|
| 1 | 30 | 43 |
| 2 | 35 | 48 |
| 3 | 40 | 53 |
| 4 | 45 | 58 |
| 5 | 55 | 68 |
Disclaimer/Publisher’s Note: The statements, opinions and data contained in all publications are solely those of the individual author(s) and contributor(s) and not of MDPI and/or the editor(s). MDPI and/or the editor(s) disclaim responsibility for any injury to people or property resulting from any ideas, methods, instructions or products referred to in the content. |
© 2023 by the authors. Licensee MDPI, Basel, Switzerland. This article is an open access article distributed under the terms and conditions of the Creative Commons Attribution (CC BY) license (https://creativecommons.org/licenses/by/4.0/).
Share and Cite
Xu, Z.; Kong, F.; Zhang, K.; Wang, Y.; Wang, J.; Qiu, N. Internal Flow Field and Loss Analysis of a Magnetic Drive Pump’s Cooling Circuit. Energies 2023, 16, 840. https://doi.org/10.3390/en16020840
Xu Z, Kong F, Zhang K, Wang Y, Wang J, Qiu N. Internal Flow Field and Loss Analysis of a Magnetic Drive Pump’s Cooling Circuit. Energies. 2023; 16(2):840. https://doi.org/10.3390/en16020840
Chicago/Turabian StyleXu, Zhenfa, Fanyu Kong, Kun Zhang, Yinfeng Wang, Jiaqiong Wang, and Ning Qiu. 2023. "Internal Flow Field and Loss Analysis of a Magnetic Drive Pump’s Cooling Circuit" Energies 16, no. 2: 840. https://doi.org/10.3390/en16020840
APA StyleXu, Z., Kong, F., Zhang, K., Wang, Y., Wang, J., & Qiu, N. (2023). Internal Flow Field and Loss Analysis of a Magnetic Drive Pump’s Cooling Circuit. Energies, 16(2), 840. https://doi.org/10.3390/en16020840

