Geometric Aspects of Assessing the Anticipated Energy Demand of a Designed Single-Family House
Abstract
:1. Introduction
- The other indicators are fixed;
- The elements (parameters related to materials, construction solutions, thickness of insulation layers, etc.) are the same for all tested buildings.
2. Materials and Methods
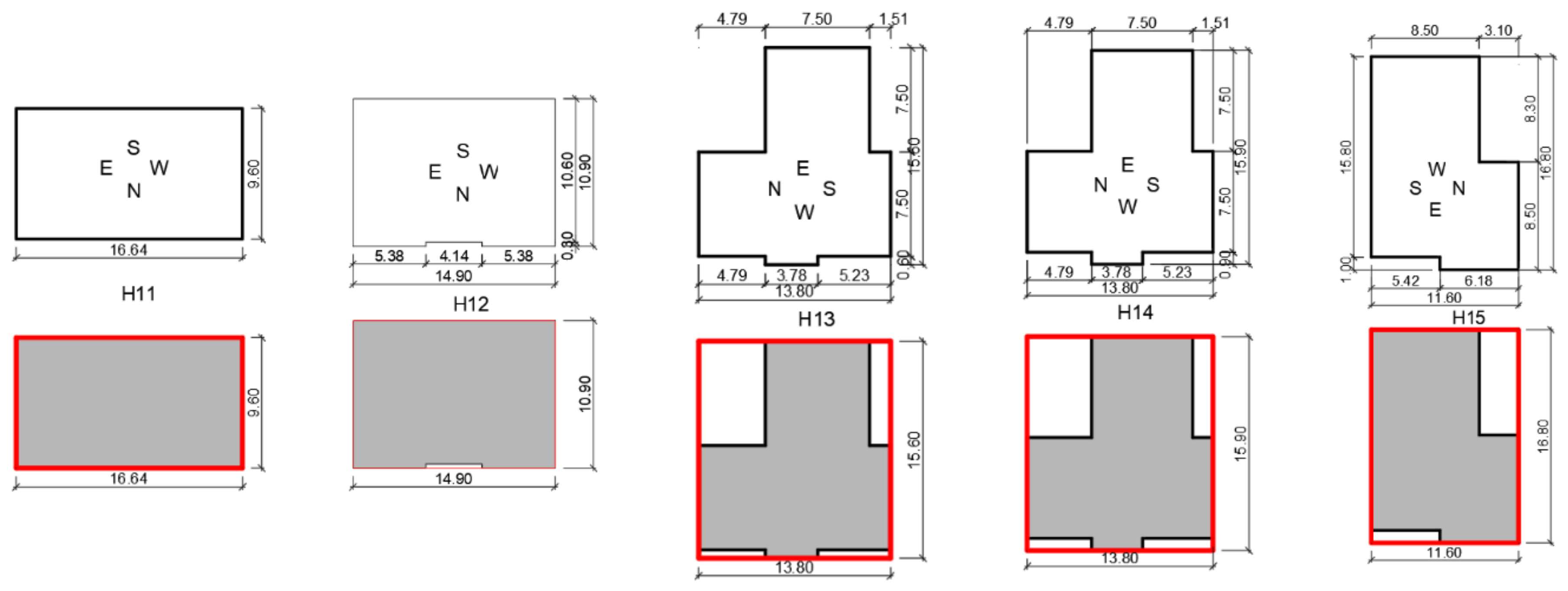
2.1. Selection of a Group of Buildings for Analysis
2.2. Definitions of Geometric Indicators and Research Hypoteses
2.3. Selected Designs of Single-Family Houses—The General Characteristics
2.4. Detailed Assumptions Regarding the Glazing Size in Analyzed Buildings
- The window-to-wall ratio is constant for a given façade in all buildings in the collection H1–H30;
- Specific window-to-wall ratios are assigned to the different directions of a compass: E—22%, S—40%, W—30%, N—8%;
- There is a constant ratio of the height (hw) to the width (w) of the window;
- The windows are single-leaf, three in all directions except the northern N, where we have provided one window.
2.5. Methodology for Calculating Energy Demand, Program Validation, and Calculation Assumptions
- = totalized loads of internal convection;
- (Tsi − Tz) = convective heat dissipation from the zone surfaces;
- (Tzi − Tz) = heat exchange as a result of inter-zone air mixing;
- (T∞ − Tz) = heat exchange as a result of infiltration of external air;
- = output of air systems;
- energy hidden in the air zone;
- Cz = ;
- = density of zone air;
- Cp = specific heat of zone air;
- CT = multiplier of sensible heat capacity [40].
- The average efficiency of the heating system is 0.77 (as a heat source, a gas condensing boiler, and a plate radiator system);
- There is no building cooling system;
- The consumption rate of domestic hot water is 1.4 L/(m2day), mains supply temperature is 10 °C, delivery temperature is 55 °C;
- The average efficiency of the hot water preparation system is 0.43.
3. Results and Discussion
3.1. Analysis of Energy Indicators
3.2. Analysis of the Dependence of Indicators
4. Conclusions
Author Contributions
Funding
Institutional Review Board Statement
Informed Consent Statement
Data Availability Statement
Conflicts of Interest
Symbols and Abbreviations
| Symbol | Abbreviation | Unit |
| Ah | usable heated area of building | m2 |
| Af | base area of building | m2 |
| P | perimeter of the plan of building | m |
| h | height of external wall | m |
| A | total area of building | m2 |
| Aw | window opening area | m2 |
| hw | window height | m |
| w | window width | m |
| k | the ratio of hw and w | - |
| n | number of windows | - |
| heat capacity of the zone | J/K | |
| zone air temperature | °C | |
| t | time | s |
| Nl | number of internal loads | - |
| internal load | W | |
| Ns | number of zone surfaces | - |
| hi | convective heat transfer coefficient | W/(m2·K) |
| Ai | area of zone surface | m2 |
| Tsi | temperature of zone surface | °C |
| inter-zone mass flow rate | kg/s | |
| cp | air specific heat | J/(kg·K) |
| Tsi | temperature of zone surface | °C |
| Nz | number of adjacent zones | - |
| Tzi | temperature of adjacent zone | °C |
| infiltration mass flow rate | kg/s | |
| Tamb | ambient air temperature | °C |
| HVAC system mass flow rate | kg/s | |
| Ts | supply air temperature | °C |
Appendix A



References
- Tsemekidi Tzeiranaki, S.; Bertoldi, P.; Diluiso, F.; Castellazzi, L.; Economidou, M.; Labanca, N.; Ribeiro Serrenho, T.; Zangheri, P. Analysis of the EU Residential Energy Consumption: Trends and Determinants. Energies 2019, 12, 1065. [Google Scholar] [CrossRef] [Green Version]
- Coma, J.; Maldonado, J.M.; de Gracia, A.; Gimbernat, T.; Botargues, T.; Cabeza, L.F. Comparative Analysis of Energy Demand and CO2 Emissions on Different Typologies of Residential Buildings in Europe. Energies 2019, 12, 2436. [Google Scholar] [CrossRef] [Green Version]
- National Plan for Increasing the Number of Nearly Zero-Energy Buildings as Required by Directive 2010/31/EU on the Energy Performance of Buildings (EPBD recast)—Poland. J. Law Rep. Pol. 2015, Item 614. (In Polish)
- Statistics Poland. Household Energy Consumption in 2018, Warsaw, Poland. 2019. Available online: https://stat.gov.pl/obszary-tematyczne/srodowisko-energia/energia/zuzycie-energii-w-gospodarstwach-domowych-w-2018-roku,2,4.html (accessed on 20 May 2020).
- BPIE; Staniaszek, D.; Firląg, S.Z. Financing Building Energy Performance Improvement in Poland. Status Report. 2016. Available online: http://bpie.eu/publication/financing-building-energy-performance-improvement-in-poland-status-report/ (accessed on 20 May 2020).
- Chen, S.; Zhang, G.; Xia, X.; Setunge, S.; Shi, L. A review of internal and external influencing factors on energy efficiency design of buildings. Energy Build. 2020, 216, 109944. [Google Scholar] [CrossRef]
- Koźniewski, E.; Banaszak, K. Geometric Aspects of Assessing the Amount of Material Consumption in the Construction of a Designed Single-Family House. Energies 2020, 13, 5382. [Google Scholar] [CrossRef]
- D’Amico, B.; Pmponi, F. A Compactness Measure of Sustainable Building Forms. R. Soc. Open. Sci. 2019, 6, 181265. [Google Scholar] [CrossRef] [Green Version]
- Yoshino, H.; Hong, T.; Nord, N. IEA EBC annex 53: Total energy use in buildings—Analysis and evaluation methods. Energy Build. 2017, 152, 124–136. [Google Scholar] [CrossRef] [Green Version]
- Obrecht, T.; Vesn, M.P.; Leskovar, Ž. Influence of the orientation on the optimal glazing size for passive houses in different European climates (for non-cardinal directions). Sol. Energy 2019, 189, 15–25. [Google Scholar] [CrossRef]
- Hong, T.; Taylor-Lange, S.C.; D’Oca, S.; Yan, D.; Corgnati, S.P. Advances in research and applications of energy-related occupant behavior in buildings 2016. Energy Build. 2016, 116, 694–702. [Google Scholar] [CrossRef] [Green Version]
- Tukhtamisheva, A.; Adilova, D.; Banionis, K.; Levinskytė, A.; Bliūdžius, R. Optimization of the Thermal Insulation Level of Residential Buildings in the Almaty Region of Kazakhstan. Energies 2020, 13, 4692. [Google Scholar] [CrossRef]
- Kormaníková, L.; Kormaníková, E.; Katunský, D. Shape Design and Analysis of Adaptive Structures. Procedia Eng. 2017, 190, 7–14. [Google Scholar] [CrossRef]
- Chwieduk, D.; Chwieduk, M. Determination of the Energy Performance of a Solar Low Energy House with Regard to Aspects of Energy Efficiency and Smartness of the House. Energies 2020, 13, 3232. [Google Scholar] [CrossRef]
- Allouhi, A.; El Fouih, Y.; Kousksou, T.; Jamil, A.; Zeraouli, Y.; Mourad, Y. Energy consumption and efficiency in buildings: Current status and future trends. J. Clean. Prod. 2015, 109, 118–130. [Google Scholar] [CrossRef]
- Depecker, P.; Menezo, C.; Virgone, J.; Lepers, S. Design of buildings shape and energetic consumption. Build. Environ. 2001, 36, 627–635. [Google Scholar] [CrossRef]
- Jedrzejuk, H.; Marks, W. Optimization of shape and functional structure of buildings as well as heat source utilisation. Partial problem solution. Build. Environ. 2002, 37, 1037–1043. [Google Scholar] [CrossRef]
- Parasonic, J.; Keizikas, A.; Endriukaitytė, A.; Kalibatienė, D. Architectural Solutions to Increase the Energy Efficiency of Buildings. J. Civ. Eng. Manag. 2012, 18, 71–80. [Google Scholar] [CrossRef]
- Pessenlehner, W.; Mahdavi, A. Building Morphology, Transparence, and Energy Performance. In Proceedings of the 8th International IBPSA Conference, Eindhoven, The Netherlands, 11–14 August 2003; pp. 1025–1032. [Google Scholar]
- Ourghi, R.; Al-Anzi, A.; Krarti, M. A simplified analysis method to predict the impact of shape on annual energy use for office buildings. Energy Convers. Manag. 2007, 48, 300–305. [Google Scholar] [CrossRef]
- McKeen, P.; Fung, A.S. The Effect of Building Aspect Ratio on Energy Efficiency: A Case Study for Multi-Unit Residential Buildings in Canada. Buildings 2014, 4, 336–354. [Google Scholar] [CrossRef]
- Rodrigues, E.; Amaral, A.R.; Gaspar, A.R.; Gomes, A. How reliable are geometry-based building indices as thermal performance indicators? Energy Convers. Manag. 2015, 101, 561–578. [Google Scholar] [CrossRef]
- Koźniewski, E.; Żaba, A.; Dudzik, P. The Compactness Indicators of Solids Applied to Analysis of Geometric Efficiency of Buildings. J. Civ. Eng. Manag. 2019, 25, 742–756. [Google Scholar] [CrossRef] [Green Version]
- Eurostat—Statistic Explained. Living Conditions in Europe—Housing. 2021. Available online: https://ec.europa.eu/eurostat/statistics-explained/index.php?title=Living_conditions_in_Europe_-_housing (accessed on 10 March 2022).
- Statistics Poland. Statistical Analyses. Construction Result in 2020; Statistical Office in Lublin: Lublin, Poland, 2021; p. 18.
- Report on the Construction of Houses in Poland in 2018. Available online: https://www.nieruchomosci.egospodarka.pl/154042,Budowa-domow-w-Polsce-2018,1,80,1.html (accessed on 10 March 2022).
- Legal Act of the Sejm of the Republic of Poland of 17 September 2021 amending the Act—Building Law and the Act on Spatial Planning and Development. Journal of Laws of 2021, item 1986.
- Peel, M.C.; Finlayson, B.L.; McMahon, T.A. Updated world map of the Köppen-Geiger climate classification. Hydrol. Earth Syst. Sci. 2007, 11, 1633–1644. [Google Scholar] [CrossRef] [Green Version]
- Polish Ministry of Transport, Construction and Maritime Economy. Regulation of the Minister of Transport, Construction and Maritime Economy of 5 July 2013 on the Technical Conditions that Buildings and Their Location Should Satisfy; Polish Ministry of Transport, Construction and Maritime Economy: Warsaw, Poland, 2015.
- Software Informer Home Page. The THERM 6.3 Software, the Lawrence Berkeley National Laboratory (LBNL) Berkeley, USA. Available online: https://therm.software.informer.com/ (accessed on 1 April 2021).
- Pacheco, R.; Ordonez, J.; Martinez, G. Energy efficient design of building: A review. Renew. Sustain. Energy Rev. 2012, 16, 3559–3573. [Google Scholar] [CrossRef]
- Goia, F. Search for the optimal window-to-wall ratio in office buildings in different European climates and the implications on total energy saving potential. Sol. Energy 2016, 132, 467–492. [Google Scholar] [CrossRef]
- Software Informer Home Page. DesignBuilder Software—Private Limited Company No. 04514127; DESIGNBUILDER SOFTWARE LIMITED, Stroud House, Stroud, Loucestershire, UK. Available online: https://designbuilder.co.uk/download/previous-versions (accessed on 1 April 2021).
- Fathalian, A.; Kargarsharifabad, H. Actual validation of energy simulation and investigation of energy management strategies (Case Study: An office building in Semnan, Iran). Case Stud. Therm. Eng. 2018, 12, 510–516. [Google Scholar] [CrossRef]
- Ismail, A.M.; Abo Elela, M.M.; Ahmed, E.B. Calibration of Design Builder program. J. Am. Sci. 2015, 11, 96–102. [Google Scholar]
- Baharvand, M.; Ahmad, M.H.B.; Safikhani, T.; Majid, R.B.A. DesignBuilder verification and validation for indoor natural Ventilation. J. Basic Appl. Sci. Res. 2013, 3, 182–189. [Google Scholar]
- Raji, B.; Tenpierik, M.; Bokel, R.; van den Dobbelsteen, A. Natural summer ventilation strategies for energy-saving in high-rise buildings: A case study in The Netherlands. Int. J. Vent. 2019, 19, 25–48. [Google Scholar] [CrossRef] [Green Version]
- Roshan, G.; Arab, M.; Klimenko, V. Modeling the impact of climate change on energy consumption and carbon dioxide emissions of buildings in Iran. J. Environ. Health Sci. Eng. 2019, 17, 889–906. [Google Scholar] [CrossRef]
- Al-Sakkaf, A.; Mohammed Abdelkader, E.; Mahmoud, S.; Bagchi, A. Studying Energy Performance and Thermal Comfort Conditions in Heritage Buildings: A Case Study of Murabba Palace. Sustainability 2021, 13, 12250. [Google Scholar] [CrossRef]
- U.S. Department of Energy. EnergyPlus™ Version 9.3.0 Documentation. Engineering Reference. Build: baff08990c. 2020. Available online: https://www.google.com/url?sa=t&rct=j&q=&esrc=s&source=web&cd=&ved=2ahUKEwi_5aqBpbftAhUllosKHQCPDR0QFjAAegQIBRAC&url=https%3A%2F%2Fenergyplus.net%2Fsites%2Fall%2Fmodules%2Fcustom%2Fnrel_custom%2Fpdfs%2Fpdfs_v9.3.0%2FEngineeringReference.pdf&usg=AOvVaw1drV7NwKPCki4unAIb0UZ6 (accessed on 1 April 2021).
- EnergyPlus—Weather Data by Location. Available online: https://energyplus.net/weather-location/europe_wmo_region_6/POL//POL_Bialystok.122950_IMGW (accessed on 1 April 2021).
- Sadowska, B. The Impact of Climate Conditions on Energy Consumption for Heating and Cooling of Residential Buildings. Econ. Environ. 2018, 67, 189–197. Available online: https://www.ekonomiaisrodowisko.pl/journal/article/view/128/122 (accessed on 1 April 2022).
- National Fund for Environmental Protection and Water Management. Priority Program—Effective Use of Energy. Subsidies for Loans for the Construction of Energy-Efficient Houses. Available online: http://oze.nfosigw.gov.pl/oferta-finansowania/srodki-krajowe/programy-priorytetowe/doplaty-do--kredytow-na-domy-energooszczedne/informacje-o-programie/ (accessed on 10 March 2022). (In Polish)
- Passipedia—The Passive House Resource. Criteria for the Passive House, EnerPHit and PHI Low Energy Building Standard. Available online: https://passipedia.org/_media/picopen/9f_160815_phi_building_criteria_en.pdf (accessed on 10 March 2022).







| (a) | ||||||||||||||||
| Parameter | Unit | Building Number | ||||||||||||||
| H1 | H2 | H3 | H4 | H5 | H6 | H7 | H8 | H9 | H10 | H11 | H12 | H13 | H14 | H15 | ||
| Ah | m2 | 112.28 | 115.06 | 121.74 | 121.64 | 123.32 | 122.67 | 127.84 | 130.99 | 132.62 | 134.85 | 136.94 | 138.49 | 136.37 | 137.23 | 138.98 |
| A/V | m−1 | 1.12 | 1.11 | 1.09 | 1.10 | 1.10 | 1.15 | 1.07 | 1.10 | 1.08 | 1.07 | 1.07 | 1.06 | 1.10 | 1.10 | 1.09 |
| EWA/FA | - | 1.02 | 0.99 | 0.95 | 0.96 | 0.96 | 1.10 | 0.90 | 0.97 | 0.92 | 0.89 | 0.89 | 0.87 | 0.98 | 0.98 | 0.94 |
| RCcd | - | 1.032 | 1.023 | 1.018 | 1.022 | 1.024 | 1.073 | 1.004 | 1.036 | 1.020 | 1.011 | 1.011 | 1.008 | 1.046 | 1.048 | 1.033 |
| (b) | ||||||||||||||||
| Parameter | Unit | Building Number | ||||||||||||||
| H16 | H17 | H18 | H19 | H20 | H21 | H22 | H23 | H24 | H25 | H26 | H27 | H28 | H29 | H30 | ||
| Ah | m2 | 141.58 | 142.55 | 142.31 | 148.09 | 152.19 | 152.12 | 154.08 | 155.41 | 156.58 | 157.57 | 156.22 | 158.53 | 160.76 | 167.83 | 169.98 |
| A/V | m−1 | 1.08 | 1.08 | 1.09 | 1.07 | 1.06 | 1.06 | 1.07 | 1.07 | 1.07 | 1.06 | 1.08 | 1.06 | 1.08 | 1.08 | 1.07 |
| EWA/FA | - | 0.92 | 0.91 | 0.95 | 0.88 | 0.85 | 0.87 | 0.90 | 0.89 | 0.88 | 0.85 | 0.91 | 0.87 | 0.91 | 0.93 | 0.89 |
| RCcd | - | 1.031 | 1.026 | 1.042 | 1.021 | 1.013 | 1.021 | 1.034 | 1.030 | 1.029 | 1.020 | 1.040 | 1.027 | 1.044 | 1.058 | 1.043 |
| Material Layers | Thickness (m) | Thermal Conductivity (W/m K) | Density (kg/m3) | |
|---|---|---|---|---|
| External walls | EPS Expanded polystyrene | 0.20 | 0.04 | 15 |
| Aerated concrete block | 0.24 | 0.24 | 750 | |
| Plastering | 0.01 | 0.82 | 1680 | |
| Celling under an unoccupied attic | Mineral wool | 0.24 | 0.036 | 99 |
| Reinforced concrete slab | 0.15 | 1.70 | 2200 | |
| Plastering | 0.01 | 0.82 | 1680 | |
| Pitched roof—unoccupied attic | Clay tile—roofing | 0.025 | 1.00 | 2000 |
| Mineral wool | 0.24 | 0.036 | 99 | |
| Plasterboard | 0.025 | 0.25 | 2800 | |
| Floor on the ground | Floor screed | 0.05 | 0.41 | 1200 |
| EPS Expanded polystyrene | 0.15 | 0.04 | 15 | |
| Cast concrete | 0.10 | 1.13 | 2000 | |
| (a) | ||||||||||||||||
| Areas [m2] | Building Number | |||||||||||||||
| H1 | H2 | H3 | H4 | H5 | H6 | H7 | H8 | H9 | H10 | H11 | H12 | H13 | H14 | H15 | ||
| Base area (Af) | 134.41 | 136.84 | 143.79 | 143.96 | 145.91 | 149.08 | 149.35 | 155.29 | 155.79 | 157.44 | 159.74 | 161.17 | 162.02 | 163.15 | 163.73 | |
| Total glazing area (0.15 Af) | 20.16 | 20.53 | 21.57 | 21.59 | 21.89 | 22.36 | 22.40 | 23.29 | 23.37 | 23.62 | 23.96 | 24.18 | 24.30 | 24.47 | 24.56 | |
| Window opening area (Aw) of individual façades | E | 4.44 | 4.52 | 4.75 | 4.75 | 4.82 | 4.92 | 4.93 | 5.12 | 5.14 | 5.20 | 5.27 | 5.32 | 5.35 | 5.38 | 5.40 |
| S | 8.06 | 8.21 | 8.63 | 8.64 | 8.75 | 8.94 | 8.96 | 9.32 | 9.35 | 9.45 | 9.58 | 9.67 | 9.72 | 9.79 | 9.82 | |
| W | 6.05 | 6.16 | 6.47 | 6.48 | 6.57 | 6.71 | 6.72 | 6.99 | 7.01 | 7.08 | 7.19 | 7.25 | 7.29 | 7.34 | 7.37 | |
| N | 1.61 | 1.64 | 1.73 | 1.73 | 1.75 | 1.79 | 1.79 | 1.86 | 1.87 | 1.89 | 1.92 | 1.93 | 1.94 | 1.96 | 1.96 | |
| (b) | ||||||||||||||||
| Areas [m2] | Building Number | |||||||||||||||
| H16 | H17 | H18 | H19 | H20 | H21 | H22 | H23 | H24 | H25 | H26 | H27 | H28 | H29 | H30 | ||
| Base area (Af) | 166.42 | 167.03 | 168.19 | 172.66 | 176.40 | 176.96 | 180.27 | 181.42 | 182.59 | 182.78 | 183.22 | 184.45 | 188.48 | 197.62 | 198.51 | |
| Total glazing area (0.15 Af) | 24.96 | 25.05 | 25.23 | 25.90 | 26.46 | 26.54 | 27.04 | 27.21 | 27.39 | 27.42 | 27.48 | 27.67 | 28.27 | 29.64 | 29.78 | |
| Window opening area (Aw) of individual façades | E | 5.49 | 5.51 | 5.55 | 5.70 | 5.82 | 5.84 | 5.95 | 5.99 | 6.03 | 6.03 | 6.05 | 6.09 | 6.22 | 6.52 | 6.55 |
| S | 9.99 | 10.02 | 10.09 | 10.36 | 10.58 | 10.62 | 10.82 | 10.89 | 10.96 | 10.97 | 10.99 | 11.07 | 11.31 | 11.86 | 11.91 | |
| W | 7.49 | 7.52 | 7.57 | 7.77 | 7.94 | 7.96 | 8.11 | 8.16 | 8.22 | 8.23 | 8.24 | 8.30 | 8.48 | 8.89 | 8.93 | |
| N | 2.00 | 2.00 | 2.02 | 2.07 | 2.12 | 2.12 | 2.16 | 2.18 | 2.19 | 2.19 | 2.20 | 2.21 | 2.26 | 2.37 | 2.38 | |
| (a) | ||||||||||||||||
| Dimension of the Windows of Individual Façades (m) | Building Number | |||||||||||||||
| H1 | H2 | H3 | H4 | H5 | H6 | H7 | H8 | H9 | H10 | H11 | H12 | H13 | H14 | H15 | ||
| E façade | hw | 1.11 | 1.12 | 1.15 | 1.15 | 1.16 | 1.17 | 1.17 | 1.19 | 1.20 | 1.20 | 1.21 | 1.22 | 1.22 | 1.22 | 1.23 |
| w | 1.33 | 1.34 | 1.38 | 1.38 | 1.39 | 1.40 | 1.40 | 1.43 | 1.43 | 1.44 | 1.45 | 1.46 | 1.46 | 1.47 | 1.47 | |
| S façade | hw | 1.50 | 1.51 | 1.55 | 1.55 | 1.56 | 1.58 | 1.58 | 1.61 | 1.61 | 1.62 | 1.63 | 1.64 | 1.64 | 1.65 | 1.65 |
| w | 1.80 | 1.81 | 1.86 | 1.86 | 1.87 | 1.89 | 1.89 | 1.93 | 1.93 | 1.94 | 1.96 | 1.97 | 1.97 | 1.98 | 1.98 | |
| W façade | hw | 1.30 | 1.31 | 1.34 | 1.34 | 1.35 | 1.37 | 1.37 | 1.39 | 1.40 | 1.40 | 1.41 | 1.42 | 1.42 | 1.43 | 1.43 |
| w | 1.56 | 1.57 | 1.61 | 1.61 | 1.62 | 1.64 | 1.64 | 1.67 | 1.67 | 1.68 | 1.70 | 1.70 | 1.71 | 1.71 | 1.72 | |
| N façade | hw | 1.16 | 1.17 | 1.20 | 1.20 | 1.21 | 1.22 | 1.22 | 1.25 | 1.25 | 1.25 | 1.26 | 1.27 | 1.27 | 1.28 | 1.28 |
| w | 1.39 | 1.40 | 1.44 | 1.44 | 1.45 | 1.47 | 1.47 | 1.50 | 1.50 | 1.51 | 1.52 | 1.52 | 1.53 | 1.53 | 1.54 | |
| (b) | ||||||||||||||||
| Dimension of the Windows of Individual Façades (m) | Building Number | |||||||||||||||
| H16 | H17 | H18 | H19 | H20 | H21 | H22 | H23 | H24 | H25 | H26 | H27 | H28 | H29 | H30 | ||
| E façade | hw | 1.24 | 1.24 | 1.24 | 1.26 | 1.27 | 1.27 | 1.29 | 1.29 | 1.29 | 1.29 | 1.30 | 1.30 | 1.31 | 1.35 | 1.35 |
| w | 1.48 | 1.48 | 1.49 | 1.51 | 1.53 | 1.53 | 1.54 | 1.55 | 1.55 | 1.55 | 1.56 | 1.56 | 1.58 | 1.62 | 1.62 | |
| S façade | hw | 1.67 | 1.67 | 1.67 | 1.70 | 1.71 | 1.72 | 1.73 | 1.74 | 1.74 | 1.75 | 1.75 | 1.75 | 1.77 | 1.81 | 1.82 |
| w | 2.00 | 2.00 | 2.01 | 2.04 | 2.06 | 2.06 | 2.08 | 2.09 | 2.09 | 2.09 | 2.10 | 2.10 | 2.13 | 2.18 | 2.18 | |
| W façade | hw | 1.44 | 1.44 | 1.45 | 1.47 | 1.48 | 1.49 | 1.50 | 1.51 | 1.51 | 1.51 | 1.51 | 1.52 | 1.53 | 1.57 | 1.58 |
| w | 1.73 | 1.73 | 1.74 | 1.76 | 1.78 | 1.78 | 1.80 | 1.81 | 1.81 | 1.81 | 1.82 | 1.82 | 1.84 | 1.89 | 1.89 | |
| N façade | hw | 1.29 | 1.29 | 1.30 | 1.31 | 1.33 | 1.33 | 1.34 | 1.35 | 1.35 | 1.35 | 1.35 | 1.36 | 1.37 | 1.41 | 1.41 |
| w | 1.55 | 1.55 | 1.56 | 1.58 | 1.59 | 1.60 | 1.61 | 1.62 | 1.62 | 1.62 | 1.62 | 1.63 | 1.65 | 1.69 | 1.69 | |
| (a) | |||||||||||||||
| Building Number | |||||||||||||||
| H1 | H2 | H3 | H4 | H5 | H6 | H7 | H8 | H9 | H10 | H11 | H12 | H13 | H14 | H15 | |
| 1 | 6223.47 | 6300.67 | 6567.16 | 6546.40 | 6630.77 | 6974.10 | 6802.19 | 7062.08 | 7083.25 | 7146.96 | 7240.44 | 7215.11 | 7405.89 | 7447.18 | 7445.68 |
| 2 | 2015.37 | 2065.31 | 2185.17 | 2183.36 | 2213.53 | 2201.85 | 2294.62 | 2351.15 | 2380.35 | 2420.45 | 2457.93 | 2485.75 | 2447.69 | 2463.20 | 2494.58 |
| 3 | 8238.84 | 8365.98 | 8752.33 | 8729.76 | 8844.30 | 9175.95 | 9096.81 | 9413.23 | 9463.60 | 9567.41 | 9698.37 | 9700.86 | 9853.58 | 9910.38 | 9940.26 |
| 4 | 112.28 | 115.06 | 121.74 | 121.64 | 123.32 | 122.67 | 127.84 | 130.99 | 132.62 | 134.85 | 136.94 | 138.49 | 136.37 | 137.23 | 138.98 |
| 5 | 1.12 | 1.11 | 1.09 | 1.10 | 1.10 | 1.15 | 1.07 | 1.10 | 1.08 | 1.07 | 1.07 | 1.06 | 1.10 | 1.10 | 1.09 |
| 6 | 55.43 | 54.76 | 53.94 | 53.82 | 53.77 | 56.85 | 53.21 | 53.91 | 53.41 | 53.00 | 52.87 | 52.10 | 54.31 | 54.27 | 53.57 |
| 7 | 17.95 | 17.95 | 17.95 | 17.95 | 17.95 | 17.95 | 17.95 | 17.95 | 17.95 | 17.95 | 17.95 | 17.95 | 17.95 | 17.95 | 17.95 |
| 8 | 73.38 | 72.71 | 71.89 | 71.77 | 71.72 | 74.80 | 71.16 | 71.86 | 71.36 | 70.95 | 70.82 | 70.05 | 72.26 | 72.22 | 71.52 |
| 9 | 8082.43 | 8182.69 | 8528.78 | 8501.82 | 8611.39 | 9057.27 | 8834.01 | 9171.53 | 9199.03 | 9281.77 | 9403.17 | 9370.27 | 9618.04 | 9671.66 | 9669.71 |
| 10 | 4686.91 | 4803.05 | 5081.79 | 5077.58 | 5147.74 | 5120.58 | 5336.33 | 5467.79 | 5535.70 | 5628.95 | 5716.12 | 5780.81 | 5692.30 | 5728.37 | 5801.35 |
| 11 | 347.15 | 355.75 | 376.39 | 376.06 | 381.28 | 379.27 | 395.25 | 404.98 | 410.01 | 416.92 | 423.37 | 428.17 | 421.61 | 424.28 | 429.69 |
| 12 | 1638.32 | 1678.89 | 1776.35 | 1774.88 | 1799.40 | 1789.91 | 1865.33 | 1911.28 | 1935.05 | 1967.61 | 1998.08 | 2020.69 | 1989.76 | 2002.37 | 2027.87 |
| 13 | 14,754.81 | 15,020.37 | 15,763.31 | 15,730.34 | 15,939.81 | 16,347.03 | 16,430.92 | 16,955.58 | 17,079.78 | 17,295.25 | 17,540.74 | 17,599.95 | 17,721.71 | 17,826.68 | 17,928.62 |
| 14 | 71.98 | 71.12 | 70.06 | 69.89 | 69.83 | 73.83 | 69.10 | 70.02 | 69.36 | 68.83 | 68.67 | 67.66 | 70.53 | 70.48 | 69.58 |
| 15 | 41.74 | 41.74 | 41.74 | 41.74 | 41.74 | 41.74 | 41.74 | 41.74 | 41.74 | 41.74 | 41.74 | 41.74 | 41.74 | 41.74 | 41.74 |
| 16 | 3.09 | 3.09 | 3.09 | 3.09 | 3.09 | 3.09 | 3.09 | 3.09 | 3.09 | 3.09 | 3.09 | 3.09 | 3.09 | 3.09 | 3.09 |
| 17 | 14.59 | 14.59 | 14.59 | 14.59 | 14.59 | 14.59 | 14.59 | 14.59 | 14.59 | 14.59 | 14.59 | 14.59 | 14.59 | 14.59 | 14.59 |
| 18 | 131.41 | 130.54 | 129.48 | 129.32 | 129.26 | 133.26 | 128.53 | 129.44 | 128.79 | 128.26 | 128.09 | 127.08 | 129.95 | 129.90 | 129.00 |
| 19 | 1.02 | 0.99 | 0.95 | 0.96 | 0.96 | 1.10 | 0.90 | 0.97 | 0.92 | 0.89 | 0.89 | 0.87 | 0.98 | 0.98 | 0.94 |
| 20 | 1.032 | 1.023 | 1.018 | 1.022 | 1.024 | 1.073 | 1.004 | 1.036 | 1.020 | 1.011 | 1.011 | 1.008 | 1.046 | 1.048 | 1.033 |
| (b) | |||||||||||||||
| Building Number | |||||||||||||||
| H16 | H17 | H18 | H19 | H20 | H21 | H22 | H23 | H24 | H25 | H26 | H27 | H28 | H29 | H30 | |
| 1 | 7528.96 | 7591.50 | 7610.67 | 7769.71 | 7907.92 | 7891.23 | 8050.62 | 8129.73 | 8154.85 | 8131.25 | 8251.53 | 8179.12 | 8419.77 | 8899.09 | 8911.83 |
| 2 | 2541.17 | 2558.69 | 2554.36 | 2658.10 | 2731.69 | 2730.43 | 2765.65 | 2789.41 | 2810.40 | 2828.34 | 2803.99 | 2845.52 | 2885.51 | 3012.45 | 3051.00 |
| 3 | 10,070.13 | 10,150.19 | 10,165.03 | 10,427.81 | 10,639.61 | 10,621.66 | 10,816.27 | 10,919.14 | 10,965.25 | 10,959.59 | 11,055.52 | 11,024.64 | 11,305.28 | 11,911.54 | 11,962.83 |
| 4 | 141.58 | 142.55 | 142.31 | 148.09 | 152.19 | 152.12 | 154.08 | 155.41 | 156.58 | 157.57 | 156.22 | 158.53 | 160.76 | 167.83 | 169.98 |
| 5 | 1.08 | 1.08 | 1.09 | 1.07 | 1.06 | 1.06 | 1.07 | 1.07 | 1.07 | 1.06 | 1.08 | 1.06 | 1.08 | 1.08 | 1.07 |
| 6 | 53.18 | 53.25 | 53.48 | 52.47 | 51.96 | 51.88 | 52.25 | 52.31 | 52.08 | 51.60 | 52.82 | 51.59 | 52.37 | 53.02 | 52.43 |
| 7 | 17.95 | 17.95 | 17.95 | 17.95 | 17.95 | 17.95 | 17.95 | 17.95 | 17.95 | 17.95 | 17.95 | 17.95 | 17.95 | 17.95 | 17.95 |
| 8 | 71.13 | 71.20 | 71.43 | 70.42 | 69.91 | 69.82 | 70.20 | 70.26 | 70.03 | 69.55 | 70.77 | 69.54 | 70.32 | 70.97 | 70.38 |
| 9 | 9777.87 | 9859.09 | 9883.99 | 10,090.53 | 10,270.03 | 10,248.35 | 10,455.35 | 10,558.09 | 10,590.71 | 10,560.06 | 10,716.27 | 10,622.23 | 10,934.77 | 11,557.26 | 11,573.81 |
| 10 | 5909.70 | 5950.44 | 5940.37 | 6181.63 | 6352.77 | 6349.84 | 6431.74 | 6487.00 | 6535.81 | 6577.53 | 6520.91 | 6617.49 | 6710.49 | 7005.70 | 7095.35 |
| 11 | 437.71 | 440.73 | 439.98 | 457.85 | 470.53 | 470.31 | 476.38 | 480.47 | 484.09 | 487.18 | 482.98 | 490.14 | 497.03 | 518.89 | 525.53 |
| 12 | 2065.75 | 2079.99 | 2076.47 | 2160.80 | 2220.62 | 2219.60 | 2248.23 | 2267.54 | 2284.61 | 2299.18 | 2279.39 | 2313.16 | 2345.67 | 2448.85 | 2480.20 |
| 13 | 18,191.03 | 18,330.25 | 18,340.81 | 18,890.81 | 19,313.94 | 19,288.10 | 19,611.70 | 19,793.10 | 19,895.23 | 19,923.96 | 19,999.55 | 20,043.02 | 20,487.95 | 21,530.70 | 21,674.88 |
| 14 | 69.06 | 69.16 | 69.45 | 68.14 | 67.48 | 67.37 | 67.86 | 67.94 | 67.64 | 67.02 | 68.60 | 67.00 | 68.02 | 68.86 | 68.09 |
| 15 | 41.74 | 41.74 | 41.74 | 41.74 | 41.74 | 41.74 | 41.74 | 41.74 | 41.74 | 41.74 | 41.74 | 41.74 | 41.74 | 41.74 | 41.74 |
| 16 | 3.09 | 3.09 | 3.09 | 3.09 | 3.09 | 3.09 | 3.09 | 3.09 | 3.09 | 3.09 | 3.09 | 3.09 | 3.09 | 3.09 | 3.09 |
| 17 | 14.59 | 14.59 | 14.59 | 14.59 | 14.59 | 14.59 | 14.59 | 14.59 | 14.59 | 14.59 | 14.59 | 14.59 | 14.59 | 14.59 | 14.59 |
| 18 | 128.49 | 128.59 | 128.88 | 127.56 | 126.91 | 126.80 | 127.28 | 127.36 | 127.06 | 126.45 | 128.02 | 126.43 | 127.44 | 128.29 | 127.51 |
| 19 | 0.92 | 0.91 | 0.95 | 0.88 | 0.85 | 0.87 | 0.90 | 0.89 | 0.88 | 0.85 | 0.91 | 0.87 | 0.91 | 0.93 | 0.89 |
| 20 | 1.031 | 1.026 | 1.042 | 1.021 | 1.013 | 1.021 | 1.034 | 1.030 | 1.029 | 1.020 | 1.040 | 1.027 | 1.044 | 1.058 | 1.043 |
| No. | Correlation Coefficient | Value of Correlation Coefficient |
|---|---|---|
| 1 | cor(EWA/FA, HOI) | 0.971238166 |
| 2 | cor(EWA/FA, OEI) | 0.971245364 |
| 3 | cor(EWA/FA, HFI) | 0.971238166 |
| 4 | cor(EWA/FA, FEI) | 0.971255187 |
| 5 | cor(A/V, HOI) | 0.971238166 |
| 6 | cor(A/V, OEI) | 0.971245364 |
| 7 | cor(A/V, HFI) | 0.971238166 |
| 8 | cor(A/V, FEI) | 0.971255187 |
| No. | Correlation Coefficient | Value of Correlation Coefficient |
|---|---|---|
| 1 | cor(RCcd, HOI) | 0.926253214 |
| 2 | cor(RCcd, OEI) | 0.926285641 |
| 3 | cor(RCcd, HFI) | 0.986353334 |
| 4 | cor(RCcd, FEI) | 0.986271961 |
Publisher’s Note: MDPI stays neutral with regard to jurisdictional claims in published maps and institutional affiliations. |
© 2022 by the authors. Licensee MDPI, Basel, Switzerland. This article is an open access article distributed under the terms and conditions of the Creative Commons Attribution (CC BY) license (https://creativecommons.org/licenses/by/4.0/).
Share and Cite
Koźniewski, E.; Sadowska, B.; Banaszak, K. Geometric Aspects of Assessing the Anticipated Energy Demand of a Designed Single-Family House. Energies 2022, 15, 3308. https://doi.org/10.3390/en15093308
Koźniewski E, Sadowska B, Banaszak K. Geometric Aspects of Assessing the Anticipated Energy Demand of a Designed Single-Family House. Energies. 2022; 15(9):3308. https://doi.org/10.3390/en15093308
Chicago/Turabian StyleKoźniewski, Edwin, Beata Sadowska, and Karolina Banaszak. 2022. "Geometric Aspects of Assessing the Anticipated Energy Demand of a Designed Single-Family House" Energies 15, no. 9: 3308. https://doi.org/10.3390/en15093308
APA StyleKoźniewski, E., Sadowska, B., & Banaszak, K. (2022). Geometric Aspects of Assessing the Anticipated Energy Demand of a Designed Single-Family House. Energies, 15(9), 3308. https://doi.org/10.3390/en15093308

