Renovation of Public Lighting Systems in Cultural Landscapes: Lighting and Energy Performance and Their Impact on Nightscapes
Abstract
1. Introduction
2. Case Study
2.1. Ex-Ante Lighting Systems
2.2. Ex-Post Lighting Systems
3. Methods
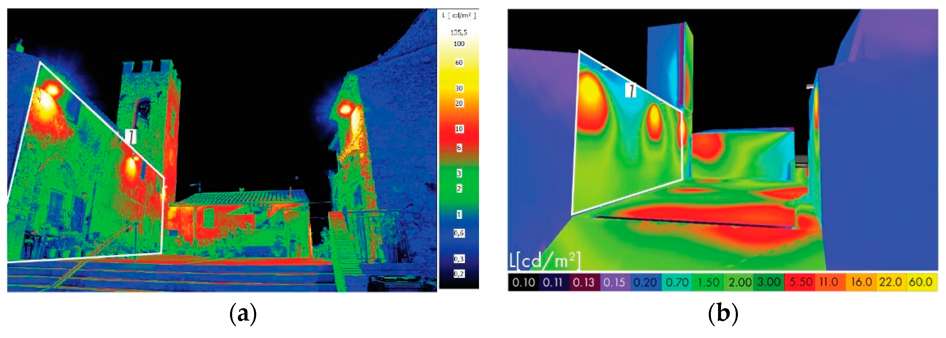
3.1. Identification of Significant Observation Points
3.2. Definition of the 3D Model, Measurement Campaing and Calibration of the Model
3.3. Lighting Simulations and Analysis of the Results
4. Results
4.1. Lighting Performance
- The average luminance (Lav) is the average value of the luminance calculated on the roadway.
- The overall uniformity (Uo) of the road surface luminance is the ratio between the minimum and the average value.
- the Threshold Increment (TI) is the parameter which expresses the disability glare as percentage increase in luminance contrast threshold (between object and background) that is required to make it visible in presence of disability glare generated by road lighting luminaires.
- the Edge Illuminance Ratio (EIR) is the ratio between the average horizontal illuminance on a strip nearby the carriageway and the average horizontal illuminance inside the carriageway, on a strip that have the width of one driving lane.
- The average illuminance (Eav) is the horizontal illuminance averaged over a road area.
- The minimum illuminance (Emin) is the lowest illuminance on a road area.
- The minimum semi-cylindrical illuminance (Esc,min) in a plane above a road area is the lowest semi-cylindrical illuminance on a plane at a specified height (in this case 1.50 m) above a road area.
- The minimum vertical illuminance (Ev,min) on a plane above a road area is the lowest vertical plane illuminance on a plane at a specified height (in this case 1.50 m) above the road area.
4.2. Energy Performance
4.3. Visual Perception (Nightscape)
5. Discussion
6. Conclusions
Author Contributions
Funding
Acknowledgments
Conflicts of Interest
References
- Bonomolo, M.; Beccali, M.; Galatioto, A.; Pulvirenti, E. A smart lighting network design for urban rehabilitation and environmental sustainability: A case study of Bagheria. In Proceedings of the 9th Conference on Sustainable Development of Energy, Water and Environment Systems, Venice, Italy/Istanbul, Turkey, 20–27 September 2014; pp. 1–19. [Google Scholar]
- Albino, V.; Berardi, U.; Dangelico, R.M. Smart Cities: Definitions, Dimensions, Performance, and Initiatives. J. Urban Technol. 2015, 22, 3–21. [Google Scholar] [CrossRef]
- De Paz, J.F.; Bajo, J.; Rodríguez-González, S.; González, G.V.; Corchado, J. Intelligent system for lighting control in smart cities. Inf. Sci. 2016, 372, 241–255. [Google Scholar] [CrossRef]
- Peña-García, A.; Hurtado, A.; Aguilar-Luzón, M.C. Impact of public lighting on pedestrians’ perception of safety and well-being. Saf. Sci. 2015, 78, 142–148. [Google Scholar] [CrossRef]
- Seshadri, K. City Beautification at Night. J. Illum. Eng. Inst. Jpn. 1997, 81, 139–140. [Google Scholar] [CrossRef]
- Radulovic, D.; Skok, S.; Kirincic, V. Energy efficiency public lighting management in the cities. Energy 2011, 36, 1908–1915. [Google Scholar] [CrossRef]
- Leccese, F.; Tuoni, G. On the environmental pollution and energy waste due to urban lighting. WIT Trans. Ecol. Environ. 2003, 63, 285–297. [Google Scholar]
- Cellucci, L.; Burattini, C.; Drakou, D.; Gugliermetti, F.; Bisegna, F.; Vollaro, A.D.L.; Salata, F.; Golasi, I. Urban Lighting Project for a Small Town: Comparing Citizens and Authority Benefits. Sustainability 2015, 7, 14230–14244. [Google Scholar] [CrossRef]
- Kostic, M.; Djokic, L. Recommendations for energy efficient and visually acceptable street lighting. Energy 2009, 34, 1565–1572. [Google Scholar] [CrossRef]
- European Commission. Eurelectric, Electricity for More Efficiency: Electric Technologies and Their Energy Savings Potential; European Commission: Brussels, Belgium, 2004. [Google Scholar]
- Gil-De-Castro, A.; Moreno-Munoz, A.; Larsson, A.; De La Rosa, J.J.G.; Bollen, M.H.J. LED street lighting: A power quality comparison among street light technologies. Light. Res. Technol. 2013, 45, 710–728. [Google Scholar] [CrossRef]
- Annunziato, M.; Giuliani, G.; Gozo, N.; Consonni, C.H.; Frascone, A.; Bucci, F.; Lo Bue, B. Progetto Lumière: Efficienza Energetica nell’Illuminazione Pubblica. Percorso e Metodologia di Sviluppo. ENEA Report RdS/2011/275. 2011. Available online: https://www.enea.it/it/Ricerca_sviluppo/documenti/ricerca-di-sistema-elettrico/illuminazione-pubblica/18-lumiere.pdf (accessed on 20 January 2020).
- Gozo, N.; Blaso, L.; Caiaffa, E.; Fumagalli, S.; Giuliani, G.; Leonardi, G.; Novelli, C.; Pizzuti, S.; Zini, P.; Marino, F. Metodologia, Progettazione Macrofunzionale e Casi D’uso di una Infrastruttura Pubblica Energivora. ENEA Report RdS/PAR2015/001. 2015. Available online: www.enea.it/it/Ricerca_sviluppo/documenti/ricerca-di-sistema-elettrico/adp-mise-enea-2015-2017/illuminazione/rds_par2015-001.pdf (accessed on 20 January 2020).
- Beccali, M.; Bonomolo, M.; Lo Brano, V.; Ciulla, G.; Di Dio, V.; Massaro, F.; Favuzza, S. Energy saving and user satisfaction for a new advanced public lighting system. Energy Convers. Manag. 2019, 195, 943–957. [Google Scholar] [CrossRef]
- Pattison, P.M.; Hansen, M.; Tsao, J.Y. LED lighting efficacy: Status and directions. Comptes Rendus Phys. 2018, 19, 134–145. [Google Scholar] [CrossRef]
- Tähkämö, L.; Halonen, L. Life cycle assessment of road lighting luminaires—Comparison of light-emitting diode and high-pressure sodium technologies. J. Clean. Prod. 2015, 93, 234–242. [Google Scholar] [CrossRef]
- Islam, G.; Darbayeva, E.; Rymbayev, Z.; Dikhanbayeva, D.; Rojas-Solórzano, L.R. Switching-off conventional lighting system and turning-on LED lamps in Kazakhstan: A techno-economic assessment. Sustain. Cities Soc. 2019, 51, 101790. [Google Scholar] [CrossRef]
- Djuretic, A.; Kostic, M. Actual energy savings when replacing high-pressure sodium with LED luminaires in street lighting. Energy 2018, 157, 367–378. [Google Scholar] [CrossRef]
- Yoomak, S.; Jettanasen, C.; Ngaopitakkul, A.; Bunjongjit, S.; Leelajindakrairerk, M. Comparative study of lighting quality and power quality for LED and HPS luminaires in a roadway lighting system. Energy Build. 2018, 159, 542–557. [Google Scholar] [CrossRef]
- Escolar, S.; Carretero, J.; Marinescu, M.-C.; Chessa, S. Estimating Energy Savings in Smart Street Lighting by Using an Adaptive Control System. Int. J. Distrib. Sens. Netw. 2014, 10, 10. [Google Scholar] [CrossRef]
- Beccali, M.; Bonomolo, M.; Ciulla, G.; Galatioto, A.; Lo Brano, V.L. Improvement of energy efficiency and quality of street lighting in South Italy as an action of Sustainable Energy Action Plans. The case study of Comiso (RG). Energy 2015, 92, 394–408. [Google Scholar] [CrossRef]
- Carli, R.; Dotoli, M.; Pellegrino, R. ICT and optimization for the energy management of smart cities: The street lighting decision panel. In Proceedings of the 2015 IEEE 20th Conference on Emerging Technologies & Factory Automation (ETFA), Luxembourg, 8–11 September 2015; pp. 1–6. [Google Scholar] [CrossRef]
- Carli, R.; Dotoli, M.; Pellegrino, R. A decision-making tool for energy efficiency optimization of street lighting. Comput. Oper. Res. 2018, 96, 223–235. [Google Scholar] [CrossRef]
- Pagden, M.; Ngahane, K.; Amin, S.R. Changing the colour of night on urban streets—LED vs. part-night lighting system. Socio-Econ. Plan. Sci. 2020, 69, 100692. [Google Scholar] [CrossRef]
- Novikova, A.; Stamo, I.; Stelmakh, K.; Hessling, M. Guideline on Finding a Suitable Financing Model for Public Lighting Investment. Interreg Central Europe, Dynamic Light Project. 2017. Available online: http://www.interreg-central.eu/Content.Node/Dynamic-Light/Dynamic-Light-D.T2.3.2-Novikova-et-al.-2017-Financing-Model-.pdf (accessed on 22 October 2020).
- Achsani, R.A.; Wonorahardjo, S. Studies on Visual Environment Phenomena of Urban Areas: A Systematic Review. In IOP Conference Series: Earth and Environmental Science; IOP Publishing: Bristol, UK, 2020; Volume 532, p. 012016. [Google Scholar] [CrossRef]
- Sozen, M.S.; Baskan, T.; Pollard, N.; Schwarcz, P.; Tammes, A. CIE 234:2019: A Guide to Urban Lighting Masterplanning; CIE Technical Report; CIE Central Bureau: Wien, Austria, 2019. [Google Scholar] [CrossRef]
- Valetti, L.; Pellegrino, A.; Aghemo, C. Cultural landscape: Towards the design of a nocturnal lightscape. J. Cult. Herit. 2020, 42, 181–190. [Google Scholar] [CrossRef]
- Valetti, L.; Pellegrino, A. Analysis and design approach for a nocturnal image of the cultural landscape. In Proceedings of the 29th CIE SESSION, Washington, DC, USA, 14–22 June 2019; pp. 811–822. [Google Scholar] [CrossRef]
- Guo, Q.; Lin, M.; Meng, J.-H.; Zhao, J.-L. The development of urban night tourism based on the nightscape lighting projects—A case study of Guangzhou. Energy Procedia 2011, 5, 477–481. [Google Scholar] [CrossRef]
- Kumar, A.; Shaw, R. Transforming rural light and dark under planetary urbanisation: Comparing ordinary countrysides in India and the UK. Trans. Inst. Br. Geogr. 2020, 45, 155–167. [Google Scholar] [CrossRef]
- Micelli, E.; Pellegrini, P. Wasting heritage. The slow abandonment of the Italian Historic Centers. J. Cult. Herit. 2018, 31, 180–188. [Google Scholar] [CrossRef]
- Santander, A.A.; Azkarate, A.; Arana, A.D.L.F. Historic Urban Landscapes: A Review on Trends and Methodologies in the Urban Context of the 21st Century. Sustainability 2018, 10, 2603. [Google Scholar] [CrossRef]
- Provincia di Grosseto, Piano Territoriale di Coordinamento della Provincia di Grosseto. La Qualità del Paesaggio [Territorial Plan, Province of Grosseto. The Landcsape Quality]. 2010. Available online: https://www.regione.toscana.it/documents/10180/70960/Grosseto/6020ff20-7997-4aa0-a3fe-223a5626cf82;jsessionid=F1C7EB3A7B903C93826901776DCB6785.web-rt-as01-p2?version=1.0 (accessed on 20 January 2020).
- Citter, C. L’assetto urbanistico del castello di Montepescali nel Medioevo [The urban structure of the castle of Montepescali in the Middle Ages]. In Progetto Montepescali; Portici Editore: Grosseto, Italy, 1997; pp. 31–52. [Google Scholar]
- Citter, C. L’edilizia Storica di tre Castelli Medievali. Batignano, Istia d’Ombrone, Montepescali [The Historical Structure of Three Medieval Castles. Batignano, Istia d’Ombrone, Montepescali]; Portici Editore: Grosseto, Italy, 1995. [Google Scholar]
- Kruisselbrink, T.; Dangol, R.; Rosemann, A. Photometric measurements of lighting quality: An overview. Build. Environ. 2018, 138, 42–52. [Google Scholar] [CrossRef]
- Ente Nazionale Italiano di Unificazione. UNI 11248:2016 Road Lighting—Selection of Lighting Classes; Ente Nazionale Italiano di Unificazione: Milan, Italy, 2016. [Google Scholar]
- Petritoli, E.; Leccese, F.; Pizzuti, S.; Pieroni, F. Smart lighting as basic building block of smart city: An energy performance comparative case study. Meas. J. Int. Meas. Confed. 2019, 136, 466–477. [Google Scholar] [CrossRef]
- European Committee for Standardization (CEN). EN 13201-2:2015 Road Lighting—Part 2: Performance Requirements; CEN: Brussels, Belgium, 2015. [Google Scholar]
- European Committee for Standardization (CEN). EN 13201-5: 2015 Road Lighting—Part 5: Energy Performance Indicators; CEN: Brussels, Belgium, 2015. [Google Scholar]
- DM 27 September 2017. Criteri Ambientali Minimi per L’acquisizione di Sorgenti Luminose per Illuminazione Pubblica, L’acquisizione di Apparecchi per Illuminazione Pubblica, L’affidamento del Servizio di Progettazione di Impianti per Illuminazione Pubblica [Minimum Environmental Criteria for Public Procurement of Lamps, Luminaries and Design Entrustment for Public Lighting]. Integrated with DM 28 March 2018 “Criteri Ambientali Minimi per l’Affidamento del Servizio di Illuminazione Pubblica”; Update of CAM Adopted with DM 23 December 2013 (in G.U. n.18 23 January 2014) [Minimum Environmental Criteria for the Entrustment of Public Lighting Series]. Available online: https://www.minambiente.it/sites/default/files/archivio/allegati/GPP/GU_244_Illuminazione_Pubblica.pdf and https://www.gazzettaufficiale.it/atto/serie_generale/caricaDettaglioAtto/originario?atto.dataPubblicazioneGazzetta=2018-04-28&atto.codiceRedazionale=18A02943&elenco30giorni=true (accessed on 23 October 2020).
- Boyce, P. Human Factors in Lighting, 3rd ed.; CRC Press: Boca Raton, FL, USA, 2014. [Google Scholar]
- Valetti, L. Luce e Paesaggio Culturale: Proposta per una Metodologia di Analisi per il Progetto Dell’immagine Notturna di un Patrimonio Diffuso [Light and Cultural Landscape: Proposal for an Analysis Methodology for the Design of the Nocturnal Image of a Widespread Heritage]. Ph.D. Thesis, Politecnico di Torino, Turin, Italy, 2020. Available online: http://hdl.handle.net/11583/2842517 (accessed on 20 January 2020).












| Description | N. of Luminaires | Luminaire Image | Photometric Diagram | Lamp Typology | Power [W] | Luminous Flux [lm] | CCT [K] | 
|---|---|---|---|---|---|---|---|
| Street lighting luminaires | 228 |  |  | HPS | 65 W | 5300 Lm | 2000 K | 
| 2 |  |  | HPS | 50 W | 4400 Lm | 2000 K | |
| Square lighting luminaires | 10 |  |  | MH | 150 W | 9370 Lm | 3000 K | 
| Architectural lighting luminaires | 3 |  |  | F | 85 W | 1750 Lm | 3000 K | 
| 8 |  |  | MH | 150 W 1 230 W | 13,500 Lm 25,000 Lm | 3000 K | |
| 8 |  |  | MH | 83 W | 2500 Lm | 3000 K | 
| Description | N. of Luminaires | Luminaire Image | Photometric Diagram | Lamp Typology | Power [W] | Luminous Flux [lm] | CCT [K] | 
|---|---|---|---|---|---|---|---|
| Street lighting luminaires | 228 |  |  | LED | 21 W | 2500 Lm | 3000 K | 
| 2 |  |  | LED | 13 W | 2000 Lm | 3000 K | |
| Square lighting luminaires | 10 |  |  | LED | 58 W | 10,000 Lm | 3000 K | 
| Architectural lighting luminaires NOT REPLACED | 3 |  |  | F | 85 W | 1750 Lm | 3000 K | 
| 8 |  |  | MH | 150 W 1 230 W | 13,500 Lm 25,000 Lm | 3000 K | |
| 8 |  |  | MH | 83 W | 2500 Lm | 3000 K | 
| Lav (1) [cd/m2] | Lav (2) [cd/m2] | Lav (3) [cd/m2] | Lav (4) [cd/m2] | |
|---|---|---|---|---|
| Ex-ante | 1.26 | 0.65 | 0.61 | 0.78 | 
| Ex-post | 1.25 | 0.70 | 0.65 | 0.77 | 
| RD | −0.79% | 7.69% | 6.56% | −1.28% | 
| Ex-Ante | Ex-Post | |
|---|---|---|
| Lav (1) [cd/m2] | 5.32 | 5.72 | 
| RD | 7.52% | |
| Lav [cd/m2] | Uo | TI | EIR | ||
|---|---|---|---|---|---|
| Standard Requirement 1 | >0.75 | >0.40 | <15% | >0.30 | |
| M-S1 | Ex-ante | 0.43 | 0.40 | 74% | 0.70 | 
| Ex-post | 0.88 | 0.54 | 12% | 0.39 | |
| RD | +52% | +26% | −83% | −45% | |
| M-S2 | Ex-ante | 0.68 | 0.30 | 96% | 0.56 | 
| Ex-post | 1.16 | 0.46 | 13% | 0.37 | |
| RD | +42 | +35% | −87% | −34% | |
| Eav [lx] | Emin [lx] | Esc, min [lx] | Ev, min [lx] | ||
|---|---|---|---|---|---|
| Standard Requirement 1 | 10 < Eav < 15 | >2 | >2 | >3 | |
| P-S1 | Ex-ante | 6.19 | 3.57 | 1.25 | 1.71 | 
| Ex-post | 14.26 | 8.53 | 1.42 | 0.70 | |
| RD | +56% | +58% | +11% | −59% | |
| P-S2 | Ex-ante | 5.70 | 3.24 | 1.37 | 1.67 | 
| Ex-post | 13.70 | 8.70 | 1.80 | 1.72 | |
| RD | +58% | +62% | +23% | +2% | |
| P-S3 | Ex-ante | 4.36 | 2.00 | 1.37 | 1.44 | 
| Ex-post | 10.41 | 3.60 | 0.95 | 1.09 | |
| RD | +58% | +44% | −30% | −24% | |
| Eav [lx] | Emin [lx] | Esc, min [lx] | Ev, min [lx] | ||
|---|---|---|---|---|---|
| Standard Requirement 1 | 10 < Eav < 15 | >2 | >2 | >3 | |
| P-S4 | Ex-ante | 94.35 | 60.89 | 11.41 | 4.77 | 
| Ex-post | 96.95 | 90.03 | 46.85 | 30.10 | |
| RD | +3% | +33% | +76% | +75% | |
| Street and Square Lighting | Arch. Lighting | |||
|---|---|---|---|---|
| Total Power [W] | Equivalent Hours [h] | Total Power [W] | Equivalent Hours [h] | |
| Ex-ante | 17,560 | 4200 | 2439 | 4200 | 
| Ex-post | 6714 | 3351 | 2439 | 2100 | 
| RD | −62% | 0% | ||
| Energy Demand (No Step-Dimming) [kWh] | ||||
|---|---|---|---|---|
| Street Lighting | Square Lighting | Arch. Lighting | Total | |
| Ex-ante | 81,448 | 7607 | 12,446 | 101,501 | 
| Ex-post | 27,051 | 2558 | 10,756 | 38,475 | 
| RD | −66.8% | −66.4% | −28.8% | −62.1% | 
| Energy Demands (with Step-Dimming) [kWh] | ||||
|---|---|---|---|---|
| Street Lighting | Square Lighting | Arch. Lighting | Total | |
| Ex-ante | 81,448 | 7607 | 12,446 | 101,501 | 
| Ex-post | 21,583 | 2041 | 6223 | 29,847 | 
| RD | −73.5% | −73.2% | −50% | −70.6% | 
| TOE | CO2 | |
|---|---|---|
| Ex-ante | 18.98 | 32.88 | 
| Ex-post | 5.58 | 9.67 | 
| RD | −70% | −70% | 
| DPr | DP | DE | IPEI | Energy Class | ||
|---|---|---|---|---|---|---|
| M-S1 | Ex-ante | 0.040 | 0.28 | 11.26 | 7.00 | G | 
| Ex-post | 0.042 | 0.02 | 1.40 | 0.54 | A3+ | |
| RD | - | −92% | −88% | −92% | - | |
| M-S2 | Ex-ante | 0.040 | 0.06 | 2.13 | 1.37 | D | 
| Ex-post | 0.042 | 0.01 | 0.50 | 0.19 | A6+ | |
| RD | - | −85% | −77% | −86% | - | |
| DPr | DP | DE | IPEI | Energy Class | ||
|---|---|---|---|---|---|---|
| P-S1 | Ex-ante | 0.048 | 0.53 | 21.13 | 11.04 | G | 
| Ex-post | 0.051 | 0.04 | 2.63 | 0.86 | B | |
| RD | - | −92% | −88% | −92% | - | |
| P-S2 | Ex-ante | 0.048 | 0.20 | 4.90 | 4.26 | G | 
| Ex-post | 0.051 | 0.027 | 1.17 | 0.50 | A3+ | |
| RD | - | −86% | −76% | −88% | - | |
| P-S3 | Ex-ante | 0.048 | 0.13 | 2.45 | 2.78 | F | 
| Ex-post | 0.051 | 0.02 | 0.58 | 0.32 | A5+ | |
| RD | - | −88% | −76% | −88% | - | |
| DPr | DP | DE | IPEI | Energy Class | ||
|---|---|---|---|---|---|---|
| P-S4 | Ex-ante | 0.048 | 0.09 | 42.22 | 1.82 | E | 
| Ex-post | 0.051 | 0.01 | 4.06 | 0.19 | A6+ | |
| RD | - | −89% | −90% | −90% | - | |
| Lav [cd/m2] | ||||||
|---|---|---|---|---|---|---|
| (a) 1 | (b) 1 | (c) | (d) | (e) | (f) | |
| Ex-ante | 1.25 | 1.56 | 0.14 | 0.70 | 0.65 | 0.62 | 
| Ex-post | 0.96 | 1.24 | 0.03 | 0.32 | 0.24 | 0.36 | 
| RD | −23% | −21% | −79% | −54% | −63% | −42% | 
| Luminance Contrast [–] | ||
|---|---|---|
| Bell Tower | Context | Belvedere Tower | Context | |
| Ex-ante | 1.37 | 1.96 | 
| Ex-post | 3.04 | 4.22 | 
| Lav [cd/m2] | |||||||
|---|---|---|---|---|---|---|---|
| (a) 1 | (b) 1 | (c) | (d) | (e) | (f) | (g) | |
| Ex-ante | 1.47 | 1.56 | 0.30 | 0.64 | 0.40 | 0.68 | 0.62 | 
| Ex-post | 1.41 | 1.24 | 0.09 | 0.21 | 0.09 | 0.29 | 0.36 | 
| RD | −4% | −21% | −70% | −67% | −78% | −57% | −42% | 
| Luminance Contrast [–] | ||
|---|---|---|
| Cassero Tower | Context | Belvedere Tower | Context | |
| Ex-ante | 1.78 | 1.95 | 
| Ex-post | 5.78 | 4.96 | 
| Lav [cd/m2] | ||||
|---|---|---|---|---|
| (a) 1 | (b) 1 | (c) | (d) | |
| Ex-ante | 4.95 | 4.88 | 6.08 | 5.92 | 
| Ex-post | 5.09 | 4.81 | 9.46 | 5.97 | 
| RD | 3% | −1% | 56% | 1% | 
| Luminance Contrast [–] | ||
|---|---|---|
| Cassero Tower | Cassero Façade | Cassero Tower | Façade (c) | |
| Ex-ante | −0.01 | −0.20 | 
| Ex-post | −0.06 | −0.49 | 
| Publisher’s Note: MDPI stays neutral with regard to jurisdictional claims in published maps and institutional affiliations. | 
© 2021 by the authors. Licensee MDPI, Basel, Switzerland. This article is an open access article distributed under the terms and conditions of the Creative Commons Attribution (CC BY) license (http://creativecommons.org/licenses/by/4.0/).
Share and Cite
Valetti, L.; Floris, F.; Pellegrino, A. Renovation of Public Lighting Systems in Cultural Landscapes: Lighting and Energy Performance and Their Impact on Nightscapes. Energies 2021, 14, 509. https://doi.org/10.3390/en14020509
Valetti L, Floris F, Pellegrino A. Renovation of Public Lighting Systems in Cultural Landscapes: Lighting and Energy Performance and Their Impact on Nightscapes. Energies. 2021; 14(2):509. https://doi.org/10.3390/en14020509
Chicago/Turabian StyleValetti, Lodovica, Francesca Floris, and Anna Pellegrino. 2021. "Renovation of Public Lighting Systems in Cultural Landscapes: Lighting and Energy Performance and Their Impact on Nightscapes" Energies 14, no. 2: 509. https://doi.org/10.3390/en14020509
APA StyleValetti, L., Floris, F., & Pellegrino, A. (2021). Renovation of Public Lighting Systems in Cultural Landscapes: Lighting and Energy Performance and Their Impact on Nightscapes. Energies, 14(2), 509. https://doi.org/10.3390/en14020509
 
        

 
       