Optimization Analysis of the Structural Design of NNBI Cryosorption Pumps
Abstract
:1. Introduction
2. Analysis of Transmission Probability
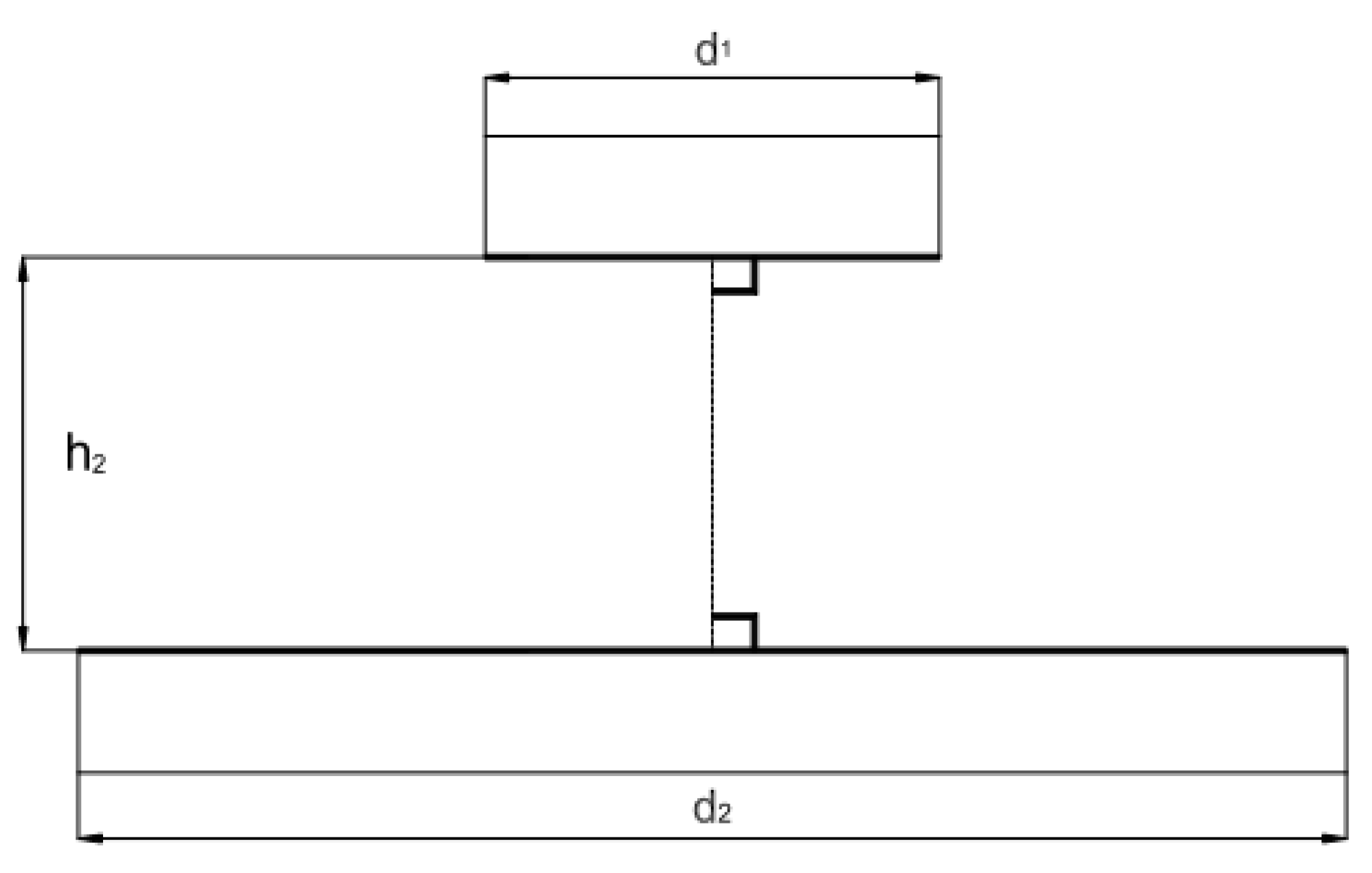
2.1. Structure of the Model
2.2. The Model of Gas Movement
- When gas molecules are incident from the intake surface, they follow Knudsen’s law, and the incident positions are evenly distributed.
- In the steady state, the number of gas molecules incident from the intake surface per second is constant.
- Diffuse reflection occurs when gas molecules collide with the wall, and the resulting reflection angles follows Knudsen’s law [14].
- A limited number of test particles represent a larger number of physical molecules and the quantities derived from the test particles are scaled up to match the physical numbers.
- The hydrogen molecular mean free path (20 °C, 10−2 Pa) is about 0.5 m, and the representative physical length scale L of the shield space is about 0.22 m. Kn = λ/L > 1 [14]. Therefore, the status of gas molecules in the cryosorption pump is molecule flow, there is no mutual collisions between molecules, only the collisions between the molecules and the walls.
- The gas molecules flying from the inlet that do not touch the cryopanels and are reflected back to the inlet will be absorbed by the inlet.
- As long as the intake continues, the cryopanels will continue to absorb gas molecules and there is no maximum pumping capacity.
2.3. Physical Parameters and Boundary Conditions
2.3.1. Temperature
2.3.2. Sticking Coefficient
2.3.3. Gas Inflow
2.3.4. Calculation Formula of Transmission Probability
3. Results and Discussion
3.1. The Stages of the Cooling Structure
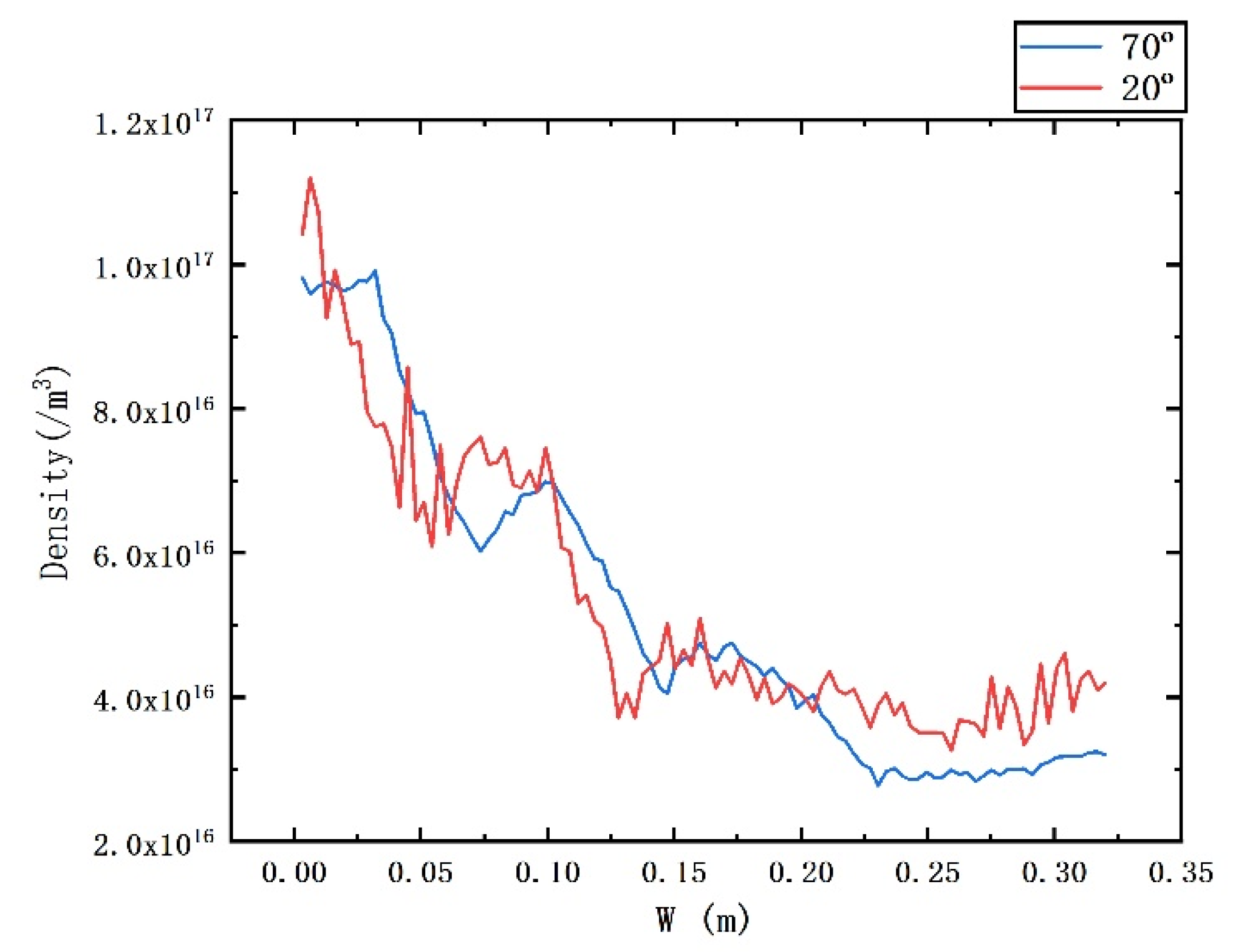
3.2. Cryopanels’ Layout
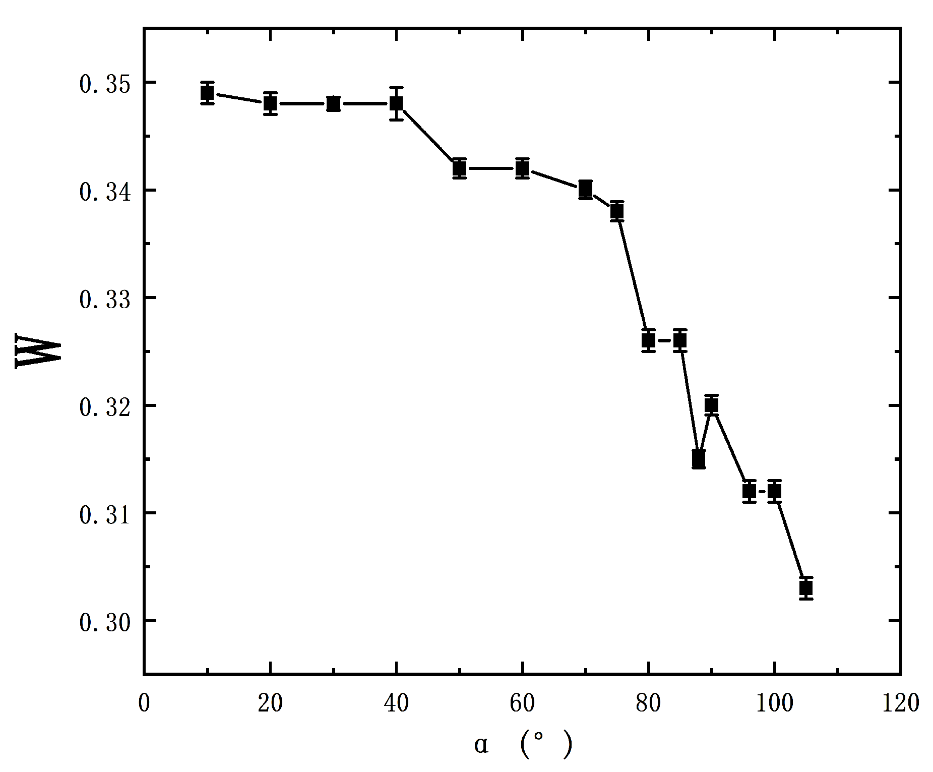
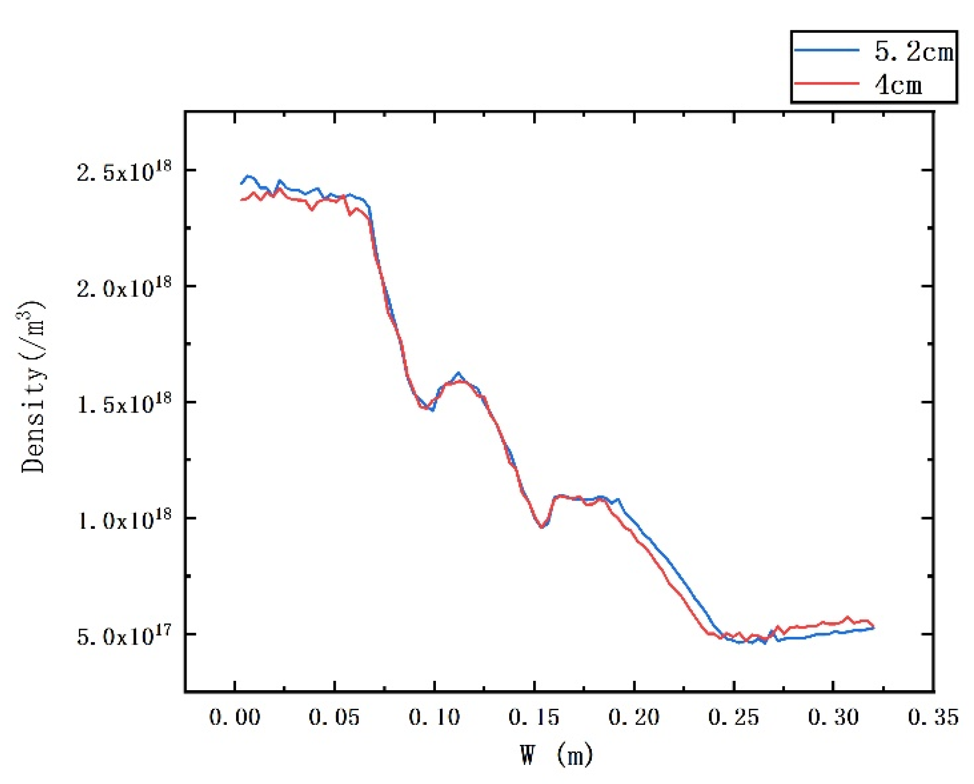
3.3. Optimization of the Structural Parameters
4. Analysis of Radiation Heat Loads
4.1. Model Establishment and Physical Parameter Setting
4.2. Results and Discussion
5. Conclusions
Author Contributions
Funding
Data Availability Statement
Conflicts of Interest
References
- Zhang, X.; Wang, X.; Hu, C.; Jiang, C.; Xie, Y.; Zhao, Y. The development of data acquisition and processing application system for RF ion source. Plasma Sci. Technol. 2017, 19, 075602. [Google Scholar] [CrossRef]
- Liang, G. Research on the development and characteristics of the neutral beam implanted RF negative ion source. J. Univ. South China (Sci. Technol.) 2011, 25, 74–77. [Google Scholar]
- Dremel, M.; Day, C.; Hemsworth, R.; Pearce, R.; Mayaux, C. Cryopump design for the ITER heating neutral beam injector. Nucl. Fusion 2009, 49, 075035. [Google Scholar] [CrossRef]
- Dremel, M.; Day, C.; Hanke, S.; Luo, X. Cryopump design development for the ITER Neutral Beam Injectors. Fusion Eng. Des. 2009, 84, 689–693. [Google Scholar] [CrossRef]
- Yoshida, H.; Shiro, M.; Arai, K.; Akimichi, H.; Hirata, M. Calculation and uncertainty evaluation of conductance of a precise orifice for orifice-flow method. Vacuum 2009, 84, 277–279. [Google Scholar] [CrossRef]
- Zheng, Q.; Xu, J.; Yang, B.; Yu, B. Transmission probability for Knudsen diffusion in a single chamber-throat pore. Vacuum 2011, 85, 1017–1020. [Google Scholar] [CrossRef]
- Zhang, Y.; Han, J.; He, J.; Li, J. Monte carlo simulation of transmission probability of circular, right-angle elbow pipe. Chin. J. Vac. Sci. Technol. 2013, 33, 1169–1173. [Google Scholar]
- Kesevan, R.; Pons, J.-L. Introduction to Molflow+. J. Vac. Sci. Technol. 2009, 27, 1017. [Google Scholar] [CrossRef]
- Li, C. Research on Application Software Development in Vacuum System Design. Master’s Thesis, Northeast University, Shenyang, China, 2012. [Google Scholar]
- Ady, M.; Kersevan, R. Introduction to the Latest Version of the Test-particle. In Proceedings of the IPAC, Dresden, Germany, 15–20 June 2014; pp. 2348–2350. [Google Scholar]
- Zhang, B.; Wang, J.; Wei, W.; Fan, L.; Pei, X.; Hong, Y.; Wang, Y. Monte carlo simulation of transmission probability of molecular gas flow through vacuum pipes. Chin. J. Vac. Sci. Technol. 2014, 34, 571–574. [Google Scholar]
- Garion, C. Monte Carlo method implemented in a finite element code with application to dynamic vacuum in particle accelerators. Vacuum 2010, 84, 274–276. [Google Scholar] [CrossRef]
- Molflow Website. Available online: http://cern.ch/test-molflow (accessed on 20 November 2020).
- Hu, C.; Cheng, B.; Xie, Y.; Tao, L.; Wei, J.; Ma, C.; Yang, S.; Yi, W. Analysis of the in-fluence of the structure of radiation shield on its transmission probability for a cryo-condensation pump. Fusion Eng. Des. 2017, 121, 137–144. [Google Scholar] [CrossRef]





















| Group | W | Standard Deviation |
|---|---|---|
| A | 0.29 | 0.01 |
| B | 0.3 | 0.005 |
| C | 0.311 | 0.004 |
| D | 0.324 | 0.008 |
Publisher’s Note: MDPI stays neutral with regard to jurisdictional claims in published maps and institutional affiliations. |
© 2021 by the authors. Licensee MDPI, Basel, Switzerland. This article is an open access article distributed under the terms and conditions of the Creative Commons Attribution (CC BY) license (https://creativecommons.org/licenses/by/4.0/).
Share and Cite
Lang, J.; Hu, C.; Xie, Y.; Tong, Y. Optimization Analysis of the Structural Design of NNBI Cryosorption Pumps. Energies 2021, 14, 3628. https://doi.org/10.3390/en14123628
Lang J, Hu C, Xie Y, Tong Y. Optimization Analysis of the Structural Design of NNBI Cryosorption Pumps. Energies. 2021; 14(12):3628. https://doi.org/10.3390/en14123628
Chicago/Turabian StyleLang, Jiaqi, Chundong Hu, Yuanlai Xie, and Yunhua Tong. 2021. "Optimization Analysis of the Structural Design of NNBI Cryosorption Pumps" Energies 14, no. 12: 3628. https://doi.org/10.3390/en14123628
APA StyleLang, J., Hu, C., Xie, Y., & Tong, Y. (2021). Optimization Analysis of the Structural Design of NNBI Cryosorption Pumps. Energies, 14(12), 3628. https://doi.org/10.3390/en14123628

