Next Article in Journal
Biofuel Application as a Factor of Sustainable Development Ensuring: The Case of Russia
Previous Article in Journal
Metal Hydride Beds-Phase Change Materials: Dual Mode Thermal Energy Storage for Medium-High Temperature Industrial Waste Heat Recovery
 
 
Font Type:
Arial Georgia Verdana
Font Size:
Aa Aa Aa
Line Spacing:
Column Width:
Background:
Article

A Simulated Study of Building Integrated Photovoltaics (BIPV) as an Approach for Energy Retrofit in Buildings

Architectural Engineering & Environmental Design, Arab Academy for Science, Technology & Maritime Transport, Alexandria 1029, Egypt
*
Author to whom correspondence should be addressed.
Energies 2019, 12(20), 3946; https://doi.org/10.3390/en12203946
Submission received: 12 September 2019 / Revised: 10 October 2019 / Accepted: 14 October 2019 / Published: 17 October 2019
(This article belongs to the Section G: Energy and Buildings)

Abstract

:
Building envelopes can play a significant role in controlling energy consumption, especially in hot regions because of the wide variety of envelope materials and technologies that have been developed. Currently, because of the high rise in energy prices, especially with the high demand of fossil energy in the building sector worldwide, using curtain walls for maintaining adequate lighting in public buildings could lead to higher energy consumption because of the continuous exposure to the sun in hot regions. For this reason, studying the use of renewable or smart alternatives in the building sector to ensure a cleaner, greener environment by deploying sustainable technology in order to reduce energy demand and support economic long-term solutions would be important for solving such a problem. This paper aims at studying the use of renewable energy technologies and alternatives; represented in new building integrated photovoltaics (BIPVs) technology that could be integrated within building skin to reduce energy demand. The methodology follows a quantitative comparative approach, using an energy simulation software to study two different types of BIPV technology (BISOL Premium BXO 365 Wp monocrystalline and BXU 330 Wp, polycrystalline) on an existing building by retrofitting a part of its curtain wall. This is to conclude the energy saving percentage and feasibility of both alternatives.

Graphical Abstract

1. Introduction

Building envelopes play a key role in the collective building energy consumption, because retrofitting existing building envelopes offer new opportunities to reduce energy consumption, especially with the availability of new systems, materials, and technologies. This is considered one of the main approaches to achieve renewability in the built environment [1].
Building envelope retrofit may also include aesthetic or structural aspects, but these aspects do not contribute to raising building energy efficiency. However, this paper focuses on energy retrofitting in buildings, tackling energy-use aspects [2]. Retrofitting an existing building skin could be more budget friendly than constructing a whole new one. Since the buildings sector in Egypt consumes a huge amount of energy (more than 60% of the total consumption of electricity is due to residential, commercial, and institutional buildings) [3], it is extremely important to offer energy conservation alternatives that can minimize the energy used in heating, cooling, and lighting [3].
A considerable amount of literature has been published in building energy related fields including energy efficiency, energy conservation, and renewable energy approaches. In this paper, building envelope energy retrofit strategies are highlighted to study its impact on energy usage in buildings. The paper contributes through the study of combining energy efficiency and renewable energy strategies in the building retrofit process and how it impacts the energy performance in existing buildings through the energy retrofit process. The study is conducted through computer simulation, using DesignBuilder software to compare the performance of two different types of building integrated photovoltaics (BIPV) technology (BISOL Premium BXO 365 Wp monocrystalline and BXU 330 Wp, polycrystalline) on an existing building by partial retrofit of its curtain wall. This is to conclude the amount of energy saved and feasibility of both alternatives.

2. Literature Review

Retrofitting refers to a modification process of completed and constructed buildings, this could be inclusive to the building systems or extend even more to include structure. The process is performed at a point following its initial construction and occupation as an aim for enhancing the building performance. Many aspects should be taken into consideration when retrofitting an existing building, which include: indoor air quality (IAQ), retrofit cost, construction burden, and retrofit aesthetics to the current occupants [4]. In many cases, retrofit targets the building energy performance enhancement which is often provided by an optimization process that is completely dependent on proper retrofitting strategies. The building envelope thermal characteristics are studied to enhance the building energy performance [5]. To retrofit a building envelope, interferences generally include fenestrations (windows, doors), roof, and walls. The vertical envelope, such as building facades, represents a huge area that can be utilized and integrated with photovoltaics. PV systems could be classified into two main types: building attached PVs (BAPVs) and building integrated PVs (BIPVs). The first system, BAPVs, has no impact on the building structure and functions, while the latter, BIPV, is currently one of the most growing technologies, and refers to photovoltaics that could be integrated into the building facade or roof to generate clean solar energy [6].
The PV modules replace conventional building materials and power generators used in envelopes, which consequently reduces photovoltaics incremental and life-cycle costs. One of the main benefits of the BIPV systems is the lower costs in comparison to PV systems that require a dedicated mounting system, in addition to the environmental benefits caused by decreasing the usage of fossil fuels and carbon emissions [7] as shown in Figure 1. Moreover, BIPV systems can either be integrated with the available building structure and utility grid, keeping the same building external appearance, or they may be designed as a stand-alone system [8]. In this paper, a quantitative comparative study is conducted through a building performance simulation (BPS) process to compare the performance of two different types of BIPV.

Building Performance Simulation (BPS)

In the building performance simulation (BPS) based process, a virtual model is constructed to determine the best retrofit strategies through predictive performance simulations. The simulation leads to the assessment of results against pre-conceived and determined performance criteria. In case of deficient results, the retrofit strategy/action is altered and the process is repeated as shown in Figure 2 [4].
The (BPS) based retrofit design process as shown in Figure 3 is composed mainly of three phases as follows [4]:
  • Phase 1: Building energy auditing.
  • Phase 2: Development of retrofit strategies/actions.
  • Phase 3: Simulated implementation of retrofit strategies/actions.
Phase 1: Building Energy Auditing (BEA)
The BEA is used to evaluate the current energy usage situation in the studied building. Consequently, this will determine the possible retrofit strategies in the building envelope and its components. The strategies should aim at pollution prevention or cleaner processes in energy use; through studying the full spectrum of environmental costs to be integrated in the decision-making process [9].
Energy audits play an essential role in energy retrofit programs in order to identify the areas and spaces with energy preserving possibilities [1]. In this phase, an assessment for the actual consumed energy is done by evaluating the current energy data or utility bills from which building energy performance could be determined (heating, cooling, ventilation, lighting, and electronics). This is regarded as an indication for building energy competence in its existing situation. Data analysis may suggest problematic components in a construction within the scope of energy performance measures [10].
Phase 2: Development of Retrofit Strategies/Actions
The energy consumption in buildings consists mainly of heating, cooling, lighting, electronics, and daily maintenance. Reducing energy consumption in buildings may involve improving thermal insulation properties, improving building cooling/heating efficiency, improving automatic control system, using renewable energy generation resources and raising awareness of energy conservation and encouraging energy conserving behaviors [11]. This is normally associated with the study of envelopes, including roofs, windows, walls, and over cladding systems [5]. The research will focus mainly on building envelope energy retrofit (technologies for fenestrations and curtain walls) by following the strategy of using renewable energy generation resources through a combination between the energy retrofit strategies of building envelopes and the use of BIPV technology to improve the buildings’ energy performance.
A. Energy Retrofit of Fenestrations
Fenestrations should provide sufficient lighting to building indoors, creating a visual link between the internal and external environments. Fenestrations U-value is typically 4–10 times higher than other elements in the building skin [12], which is why a large amount of energy loss occurs through curtain walls. Integrating smart materials in curtain walls with energy-efficient types is very important in regard to increasing buildings’ current energy sufficiency [12]. Energy retrofit curtain walls can include facade replacement, recladding, and over cladding.
B. Facade Replacement
This approach involves complete replacement of the existing facade and related building components in Figure 4. The full replacement intends to meet the current user and building performance demands [13]. A completely new facade thermal competency improvements can open opportunities to more sustainable and efficient forms of air conditioning causing less loads. In order to improve the energy performance of the building and daylight levels, the facade replacement strategies is used with BIPV technology in energy retrofit at the building envelope.
Phase 3: Simulated Implementation of Retrofit Strategies/Actions
The final phase is to construct and implement the proposed retrofit strategies/actions through computer simulation to improve the overall building performance and achieve the optimized design.

3. The Case Study

The case study was carried out in an administrative building which is currently used as an educational building operated by the Arab Academy for Science, Technology and Maritime transport, Smart Village campus, Giza governorate as shown in Figure 5 Egypt has an excellent potential for the use of solar energy applications as a source of renewable energy because of the subtropical location as shown in Figure 4 [14]; solar radiation in Egypt varies between 5.4 to 7.1 KWh/m2 from north to south elevations [15].
The building has a reinforced concrete structure (Skelton system), elevations are mainly tinted double glass, while the ground floor is shaded in all elevations. The building’s roof is flat and well insulated. This building was selected because of the presence of large area of curtain walls in its facade. The building consists of two basements of a total area of 8000 m2, and six typical floors of an area of 2000 m2 each and 27 m height as shown in Figure 6. The building has central heating, cooling, and ventilation systems to acclimatize the indoor air quality. The cooling system is used mainly during the summer using an air-cooled liquid chiller (package direct expansion unit) with heat recovery systems that run on electricity. The comfort temperature ranges from 20 °C for circulation spaces to 22 °C in offices. The two basement floors are mechanically ventilated.

4. Methodology

The methodology starts with an evaluation of the building’s actual energy consumption through data collected from Administration of Physical resources and logistics AAST smart village, in comparison with a model built by designBuilder software version 5.1 in order to study the energy consumption and error percentage between the actual and built model. The model is used to study the usage of BIPV system in building envelopes and the amount of energy reduction while using this system to enhance energy performance in buildings. The methodology includes three phases:
  • Phase 1: Building energy auditing.
  • Phase 2: Possible retrofit strategies/actions.
  • Phase 3: Simulated implementation of retrofit strategies/actions.
Phase 1: Building Energy Auditing (BEA)
The BEA is used to evaluate the current energy usage situation in the studied building, this will lead to determine the possible retrofit strategies in the building envelope and its components. The envelope energy auditing includes the fenestrations, external walls, and roof, in addition to the mechanical system used in the building.
A. Envelope Energy Auditing
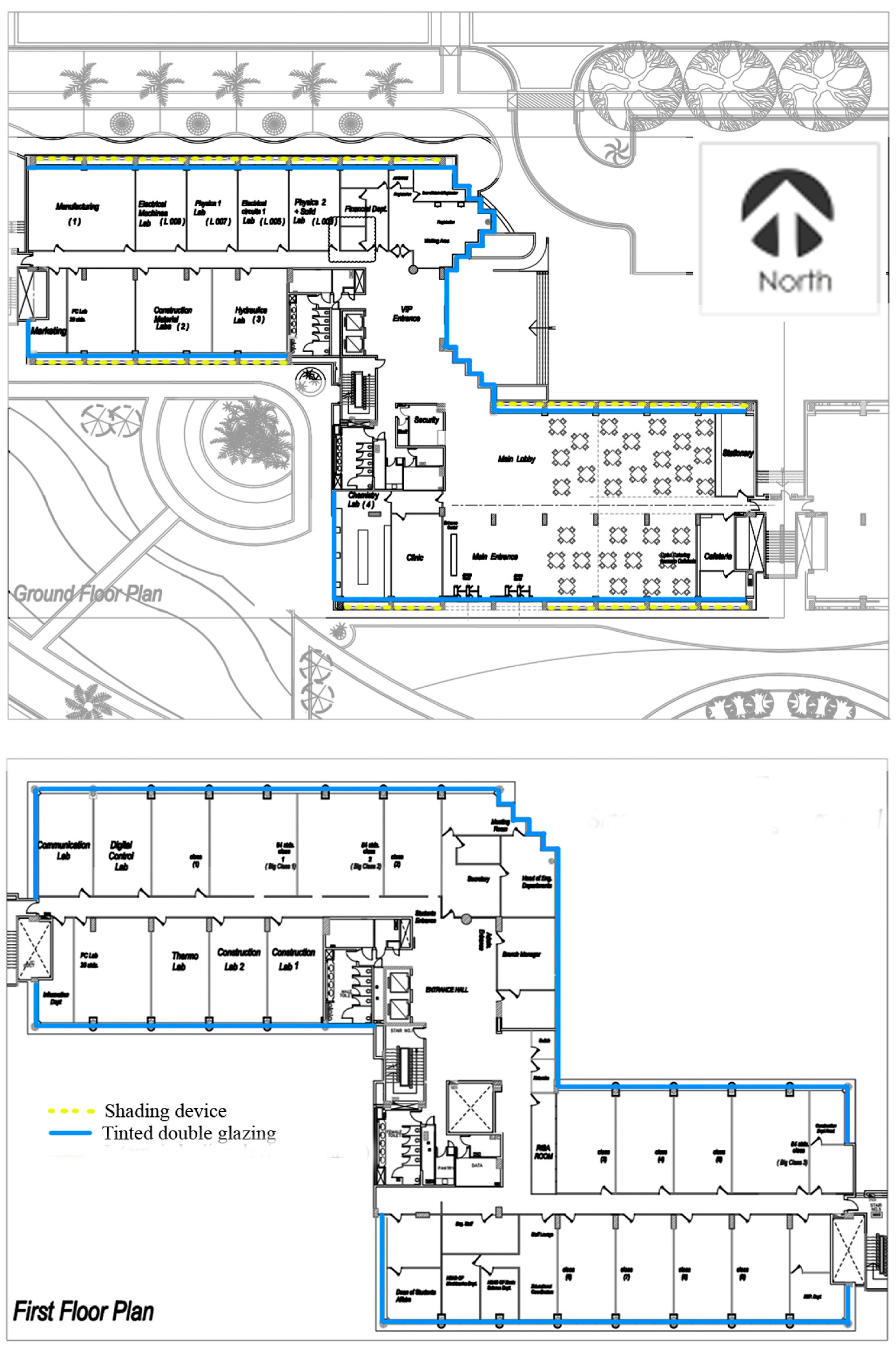
Fenestrations: The absence of fenestrations in all the facades causes a permanent use of Heating, ventilation, and air conditioning (HVAC) system that leads to high energy consumption. The curtain wall facade is tinted double glass (U-value 3.77 W/m2K). The used tinted glass leads to inefficiently used day lighting, as blinds are installed in all spaces to avoid direct sun light in Figure 7. Shading treatments are used in the ground floor in the south, east, and west elevations in Figure 6.
External Walls: Brick walls of 20 cm thickness, 2 cm interior and exterior plaster with a total U-value of 2.04 W/m2K are used without any insulation.
Roof: Reinforced concrete roof of 20 cm thickness is used, and the interior paint and insulation material have a U-value of 0.57 W/m2K.
B. Mechanical System Auditing
HVAC system: The building is fully air conditioned, the HVAC system is “Package Direct Expansion Unit,” and an air handling unit is on the top of the building.
Electrical system: Is traditional linear fluorescent 500 Lux.
Phase 2: Possible Retrofit Strategies/Actions
Through the studied BEA, critical energy issues are identified; accordingly, improvements that could be carried out are applied in the energy simulation program for assessment. According to the studied retrofit strategies in the literature review, partial replacement with BIPV panels to the building skin was chosen in order to maintain the facade grid design without modifications in its dimensions [5]. The simulation examined two different types of BIPV systems through partial facade replacement. The two types are the BISOL Premium BXO 365 Wp monocrystalline, and the BXU 330 Wp, polycrystalline [17]. These types will not change the external appearance and will generate electricity to reduce energy consumption in this building.
The energy consumption is calculated through the energy simulation software (Energy Plus, through the DesignBuilder interface, for energy simulations version 5.1) and the readings of the actual monthly consumption is used for verification.
The model is divided into several blocks representing each floor, which are then divided into eight zones representing the four elevations. The building data was collected by the researcher through frequent visits and a review of its construction specifications. Some information about the building materials used was based on the information contained in the simulation program used in the study. The research study was conducted on 6th of October city in Giza Governorate, Egypt. The city has an arid, desert climate with average temperatures of 35 °C between May and October, and a mild 15 °C winter from November to April. The number of occupants is 1800 persons with 12 operating hours during the week days; the building’s typical working hours are from 6 am to 6 pm, and the power is only off during the weekends–except for control rooms.
In the building simulation process, establishing an appropriate base case that represent a model for the building existing situation is the key step in evaluating energy consumption. Through the comparison between the base case monthly and annual consumption results to the actual energy consumption, the difference is 1.9% more than the actual consumption which is an acceptable percentage in simulation, Figure 8 and Figure 9.
Phase 3: Simulated Implementation of Retrofit Strategies/Actions
The simulation test started with the replacement of the solid parts (marked in black at the north and south elevations) of the building’s curtain wall as shown in Figure 10 with two types of BIPV (Case 1: BISOL Premium BXO 365 Wp, monocrystalline and Case 2: BISOL Premium BXU 330 Wp, polycrystalline). The partial replacement of the facade represented in the solid parts makes up 508.08 m2 of the total area, which is 7128 m2.
Case 1: Partial Replacement of Curtain Wall with BISOL BIPV (BISOL Premium BXO 365 Wp, Monocrystalline)
The BISOL Premium BXO 365 Wp, monocrystalline electrical, thermal and mechanical specifications are summarized in Table 1, the specifications were used during the simulation process in order to study the energy performance of the used materials.
Case 2: Partial Replacement of Curtain Wall with BISOL BIPV (BISOL Premium BXU 330 Wp, Polycrystalline)
In case 2, The BISOL Premium BXO 330 Wp, polycrystalline electrical, thermal and mechanical specifications are summarized in Table 2, the specifications were used during the simulation process in order to study the energy performance of the used materials.

5. Results

5.1. Simulation Results for Case 1

The total replaced area of the curtain wall is 508.08 m2 with a cost of $110 per meter [17] with a cost of $55,888.80, in addition to PV electrical installations, with a total cost of $5000 as shown in Table 3.
In case 1, BIPV units with a total area of 508.08 m2 and cell efficiency of 20.8%, the material succeeded to reduce 7.04% of the total energy consumption according to the simulation process as shown in Figure 11 and Figure 12. The total cost of 508.8 m2 of BIPV is $60,888. The electricity prices of this building category are $0.090/KWH as shown in Table 4.
As a result of case 1 simulation, the energy saved is approximately 142,740 KWH, which represents 7.04% of the actual energy consumption in one year. The payback period of case 1 of BIPV is 4.7 years.

5.2. Simulation Results for Case 2

The total replaced area of the curtain wall in case 2 is 508.08 m2 as well, with a cost of $110 per meter [17], the total costing $46,235.28, in addition to PV electrical installations with a total cost of $5000 as shown in Table 5.
In case 2 BIPV units with total area of 508.08 m2 and cell efficiency 19.2%, the material succeeded to reduce the total energy consumption with 5.47% as shown in Figure 13 and Figure 14. The total cost of 508.8 m2 of BIPV = $51,235.3 as shown in Table 6.
As a result of case 2 simulation, the energy saved will be approximately 111,070 KWH, which represents 5.47% of the actual energy consumption in one year. The payback period of case 2 of BIPV is 5.13 years.

6. Discussion

Through the previous comparative study, building envelope energy retrofit strategies show that building envelope component’s thermal properties have a significant impact on the building’s energy consumption as shown in both cases 1 and 2.
In case 1, the partial envelope replacement with BISOL Premium BXO 365 Wp monocrystalline succeeded in saving 7.04% of the total energy consumption in one year with the initial cost of $60,888.8 and payback period of 4.7 years. While in case 2, the partial envelope replacement with BISOL Premium BXU 330 Wp, polycrystalline saved 5.47% of the total energy consumption in one year with the initial cost of $51,235.3 and payback period of 5.13 years. As a result, case 1 has proved to be more efficient and feasible because of a higher energy saving percentage in addition to a shorter payback period. In this paper, the operational cost is the only factor calculated, however, the environmental costs should be investigated separately in future studies. The energy saved in both cases 1 and 2 is achieved by the partial replacement of only 7.13% of the total facade area which can shed light on different alternatives and replacement approaches that can be used for saving more energy and the feasibility of this replacement as shown in Figure 15.

7. Conclusions

The study has shown a simulated comparison between two types of building integrated photovoltaics BIPV used, BISOL Premium BXO 365 Wp monocrystalline and BXU 330 Wp, polycrystalline. The studied types showed good performance, although they have been used in a limited area of only two facades.
The BIPV could keep the building’s appearance unchanged, which represents an ideal retrofit strategy for keeping appearance in addition to reducing energy consumption. BIPV has a great potential in Egypt because of hot weather and difference in solar radiations between the north and south elevations. Computer analysis and simulation is currently having a great impact on the design decision. Simulation studies are pursued for understanding the building energy performance, electricity usage, and the energy potential of the building facade. Through the simulated study, the BISOL Premium BXO 365 Wp monocrystalline has proven to be more energy efficient and feasible because of a higher saving percentage in addition to a shorter payback period.

Author Contributions

Conceptualization, Y.F. and F.H.; methodology, Y.F.; software, F.H.; validation, Y.F., F.H.; analysis, Y.F. and F.H.; investigation, Y.F.; resources, F.H.; data curation, F.H.; writing—original draft preparation, Y.F.; writing—review and editing, Y.F. and F.H.; visualization, Y.F.; supervision, Y.F.

Funding

This research received no external funding.

Acknowledgments

The authors would like to thank the Administration of Physical resources and logistics at the Arab Academy for Science, Technology and Maritime Transport-Smart Village campus for their support in providing the required data needed to build the simulation model.

Conflicts of Interest

The authors declare no conflict of interest.

References

  1. Ma, Z.; Cooper, P.; Daly, D.; Ledo, L. Existing building retrofits: Methodology and state-of-the-art. Energy Build. 2012, 55, 890–901. [Google Scholar] [CrossRef]
  2. Albadry, S. Feasibility of Converting Existing Residential Buildings to Net Zero-Energy Buildings in Egypt. Master’s Thesis, HBKU Press, Cairo, Egypt, 2016. [Google Scholar]
  3. Sciences NIoB. wbdg. 2016. Available online: https://www.wbdg.org/resources/retro_sustperf.php (accessed on 29 September 2016).
  4. Mondrup, T.F.; Karlshøj, J.; Vestergaard, F. Building Performance Simulation tools for planning of energy efficiency retrofits. In 10th Nordic Symposium on Building Physics; Lund University: Lund, Sweden, 2014. [Google Scholar]
  5. Basarir, B.; Diri, B.S.; Diri, C. Energy efficient retrofit methods at the building envelopes of the school buildings. Retrieved 2012, 10, 2016. [Google Scholar]
  6. Biyik, E. A key review of building integrated photovoltaic (BIPV) systems. Eng. Sci. Technol. 2017, 20, 833–858. [Google Scholar] [CrossRef]
  7. Ferrara, H.R.; Wilson, W. Sprenger. In The Performance of Photovoltaic (PV) Systems; Pearsall, N., Ed.; Woodhead Publishing: Freiburg, Germany, 2017. [Google Scholar]
  8. Hayter, S.J.; Kandt, A. Renewable Energy Applications for Existing Buildings. In Proceedings of the 48th AiCARR International Conference, Baveno-Lago Maggiore, Italy, 22–23 September 2011; NREL National Renewable Energy Laboratory: Baveno, Italy, 2011. [Google Scholar]
  9. Dumitru, A.P. The Importance of Environmental Costs in the Current International Economic Context. Glob. Econ. Obs. 2018, 81–87. [Google Scholar]
  10. International Energy Agency. Building Energy Performance Metrics: Supporting Energy Efficiency Progress in Major Economies; IEA publications: Paris, France, 2015. [Google Scholar]
  11. Xu, P.; Shen, Y.; Hua, J. Effectiveness of Energy Retrofit Methods in Public Buildings in China; Johnson Controls Inc.: Washington, DC, USA, 2012. [Google Scholar]
  12. Barton, R.; Erhorn, H.; Morck, O.; Mroz, T.; Schmidt, F. Retrofitting in Educational Buildings—Energy Concept Adviser for Technical Retrofit Measures; Technical Synthesis Report; Faber Maunsell: London, UK, 2007. [Google Scholar]
  13. Patterson, M. Facade retrofit for tall curtain wall buildings. In Metals in Construction Facades Conference; Advanced Technology Studio Enclos: New York, NY, USA, 2012. [Google Scholar]
  14. Meteoblue. 2018. Available online: https://content.meteoblue.com/nl/meteoscool/general-climate-zones (accessed on 9 October 2019).
  15. Samir, H.; Ali, N. Applying Building-Integrated Photovoltaics (BIPV) in Existing Buildings, Opportunities and Constraints in Egypt. In Green Urbanism; IEREK: Lecce, Italy, 2016; pp. 614–625. [Google Scholar]
  16. Masraya, S. 2010–2013. Available online: http://www.imagesjourney.com/ImageInfoPreview.aspx?PhotoId=112337 (accessed on 1 March 2017).
  17. BIOSL Solar Company. BISOL PV Modules; Bisol production Ltd.: Prebold, Slovenia, 2019; Available online: https://www.bisol.com/en/products/pv-modules.html (accessed on 25 August 2019).
Figure 1. Combining energy efficiency and renewable energy strategies significantly reduces total building conventional energy use [8] (Modified by the researcher).
Figure 1. Combining energy efficiency and renewable energy strategies significantly reduces total building conventional energy use [8] (Modified by the researcher).
Energies 12 03946 g001
Figure 2. Building performance simulation-based process [4] (Modified by the researcher).
Figure 2. Building performance simulation-based process [4] (Modified by the researcher).
Energies 12 03946 g002
Figure 3. The building performance simulation-based retrofit design process [4] (Modified by the researcher).
Figure 3. The building performance simulation-based retrofit design process [4] (Modified by the researcher).
Energies 12 03946 g003
Figure 4. Location of Egypt in a subtropical climatic zone [14].
Figure 4. Location of Egypt in a subtropical climatic zone [14].
Energies 12 03946 g004
Figure 5. Building location in Smart Village campus using Google Maps.
Figure 5. Building location in Smart Village campus using Google Maps.
Energies 12 03946 g005
Figure 6. Building main elevation [16].
Figure 6. Building main elevation [16].
Energies 12 03946 g006
Figure 7. Ground and 1st floor plan for the studied building
Figure 7. Ground and 1st floor plan for the studied building
Energies 12 03946 g007
Figure 8. Comparison between monthly results (Base Case Design builder software and electricity consumption bills).
Figure 8. Comparison between monthly results (Base Case Design builder software and electricity consumption bills).
Energies 12 03946 g008
Figure 9. Comparison between annual results (Base Case Design builder software and electricity consumption bills).
Figure 9. Comparison between annual results (Base Case Design builder software and electricity consumption bills).
Energies 12 03946 g009
Figure 10. Replacement of the solid parts of the building curtain wall.
Figure 10. Replacement of the solid parts of the building curtain wall.
Energies 12 03946 g010
Figure 11. Simulation results for case 1 (Design Builder).
Figure 11. Simulation results for case 1 (Design Builder).
Energies 12 03946 g011
Figure 12. Simulation results for case 1 (Design Builder).
Figure 12. Simulation results for case 1 (Design Builder).
Energies 12 03946 g012
Figure 13. Simulation results for case 2 (DesignBuilder).
Figure 13. Simulation results for case 2 (DesignBuilder).
Energies 12 03946 g013
Figure 14. Simulation results for case 2 (DesignBuilder).
Figure 14. Simulation results for case 2 (DesignBuilder).
Energies 12 03946 g014
Figure 15. Comparison between cases 1 and 2 in saving cost and payback period.
Figure 15. Comparison between cases 1 and 2 in saving cost and payback period.
Energies 12 03946 g015
Table 1. Specifications of BISOL Premium BXO 365 Wp monocrystalline [17].
Table 1. Specifications of BISOL Premium BXO 365 Wp monocrystalline [17].
Electrical Specifications
STC (Standard Test Conditions)
(AM 1.5, 1000 W/m2, 25 °C)
NOCT (Nominal Operating Cell Temperature)
(AM 1.5, 800 W/m2, wind 1 m/s, cell temperature 44 °C)
Maximum Power PMPP [W]365270
MPP Voltage VMPP [V]38.235.1
Thermal Specifications:
Solar Cell Efficiency ɳC [%]20.8
Module Efficiency ɳM [%]18.7
Mechanical Specifications
Length x Width x Thickness1966 mm × 991 mm × 40 mm and (1654 mm × 991 mm × 40 mm)
Weight22 kg
Solar Cells72 mono c-Si in series/156 mm × 156 mm
Junction Box/ConnectorsThree bypass diodes/MC4 compatible/IP 67
Table 2. Specifications of (BISOL Premium BXU 330 Wp, polycrystalline) [17].
Table 2. Specifications of (BISOL Premium BXU 330 Wp, polycrystalline) [17].
Electrical Specifications
STC (Standard Test Conditions)
(AM 1.5, 1000 W/m2, 25 °C)
NOCT (Nominal Operating Cell Temperature)
(AM 1.5, 800 W/m2, wind 1 m/s, cell temperature 44 °C)
Maximum Power PMPP [W]330246
MPP Voltage VMPP [V]36.934.1
Thermal Specifications:
Solar Cell Efficiency ɳC [%]19.2
Module Efficiency ɳM [%]16.9
Mechanical Specifications
Length x Width x Thickness1966 mm × 991 mm × 40 mm and (1654 mm × 991mm × 40mm)
Weight22 kg
Solar Cells72 mono c-Si in series/156 mm × 156 mm
Junction Box/ConnectorsThree bypass diodes/MC4 compatible/IP 67
Table 3. Retrofit cost for building integrated photovoltaics (BIPV) used in Case 1 (DesignBuilder simulation).
Table 3. Retrofit cost for building integrated photovoltaics (BIPV) used in Case 1 (DesignBuilder simulation).
UnitArea (m2)Cost (USD)
PV Panels508.08$55,888.80
PV Electrical Installations $5000.00
Total $60,888.8
Table 4. Energy saved and payback period for case 1 (Researcher).
Table 4. Energy saved and payback period for case 1 (Researcher).
BIPV Area508.08 m2
Case 1 cell efficiency20.8%
The total cost of 508.8 m2 of BIPV + PV Electrical$55,888 + 5000 = $60,888
The electricity prices of this building category$0.090/KWH
Generated electricity from BIPV (Figure 8)142.74 MWH = 142740 KWH
The electricity prices saved from BIPV case 1142,740 × 0.090 = $12,846 per year
Payback period60,888.8/12,846 = 4.7 year
Table 5. Renewable energy cost produced by PV Panel–Case 02 (Design Builder simulation).
Table 5. Renewable energy cost produced by PV Panel–Case 02 (Design Builder simulation).
UnitArea (m2)Cost (USD)
PV Panels508.08$46,235.28
PV Electrical $5000.00
Total $51,235.3
Table 6. Energy saved and payback period for case 2 (Researcher).
Table 6. Energy saved and payback period for case 2 (Researcher).
BIPV Area508.08 m2
cell efficiency19.2%
The total cost of 508.8 m2 of BIPV + PV Electrical46235.28 + 5000 = $51,235.3
The electricity prices of this building category$0.090/KWH
Generated electricity from BIPV (Figure 13).111.07 MWH = 111070 KWH
The electricity prices saved from BIPV case 2111070 × 0.090 = $9996 per year
Return on51235.3/9996 = 5.13 year

Share and Cite

MDPI and ACS Style

Farghaly, Y.; Hassan, F. A Simulated Study of Building Integrated Photovoltaics (BIPV) as an Approach for Energy Retrofit in Buildings. Energies 2019, 12, 3946. https://doi.org/10.3390/en12203946

AMA Style

Farghaly Y, Hassan F. A Simulated Study of Building Integrated Photovoltaics (BIPV) as an Approach for Energy Retrofit in Buildings. Energies. 2019; 12(20):3946. https://doi.org/10.3390/en12203946

Chicago/Turabian Style

Farghaly, Yasser, and Fatma Hassan. 2019. "A Simulated Study of Building Integrated Photovoltaics (BIPV) as an Approach for Energy Retrofit in Buildings" Energies 12, no. 20: 3946. https://doi.org/10.3390/en12203946

APA Style

Farghaly, Y., & Hassan, F. (2019). A Simulated Study of Building Integrated Photovoltaics (BIPV) as an Approach for Energy Retrofit in Buildings. Energies, 12(20), 3946. https://doi.org/10.3390/en12203946

Note that from the first issue of 2016, this journal uses article numbers instead of page numbers. See further details here.

Article Metrics

Back to TopTop