Abstract
Resilient stormwater infrastructure is one of the fundamental components of resilient and sustainable cities. For this, the resilience assessment of stormwater infrastructure against earthquake hazards is crucial for municipal authorities. The objective of this study is to develop a resilience assessment framework for stormwater pipe infrastructure against seismic hazards. A Bayesian belief network (BBN)-based stormwater infrastructure resilience model is constructed based on the published literature and expert knowledge. The developed framework is implemented in the city of Regina, Canada, to assess the city’s stormwater pipe infrastructure resilience. The outcome of the model indicates that proposed BBN-based stormwater infrastructure resilience model can effectively quantify uncertainties and handle the nonlinear relationships between several reliability and recovery factors. The model is also capable of identifying the most sensitive and vulnerable stormwater pipes within the network.
1. Introduction
Storm sewer drainage systems play a crucial role in preventing flooding by diverting excessive rain and groundwater that runs off impervious surfaces such as roofs, parking lots, sidewalks, and paved streets into nearby waterways through a network of drains and underground pipes [1]. These systems vary in design, ranging from simple residential drainage to complex municipal drains. It is important to manage the stormwater infrastructure system effectively as these infrastructures can be impacted severely due to natural hazards [2]. The potential natural hazards and their consequences on stormwater pipelines are mentioned in Table 1 [3].
Table 1.
Potential natural hazards and their consequences on pipelines (modified after Mundy [3]).
During earthquakes, pipelines can be impacted in various ways, with the most common being shear forces resulting from fault movement and joint disconnection forces due to ground dislocation and liquefaction [4]. The ISO 16134 International Standard for Earthquake & Seismic Resilience recognizes ductile iron as the most resilient pipe material due to its high tensile strength, joint strength, and capacity to withstand deflection and strain. The development of new Earthquake Resistant Ductile Iron Pipe (ERDIP) systems that incorporate advanced connections with high axial ranges has further enhanced the resilience of pipelines to higher levels of seismic activity [3]. Pipeline failures during earthquakes are more widespread and frequent than commonly acknowledged and can seriously hinder emergency response efforts in some cases [5]. Earthquake damage to pipelines can result in an immediate breach or cause stress to accumulate at specific points along the line, leading to a breach days or even weeks after the earthquake, despite the surface appearing stable [6]. Therefore, it is vital to develop a resilient stormwater infrastructure system.
Bruneau et al. [7] and Cimellaro et al. [8] defined physical and social systems’ resiliency with four “R”, which are robustness, redundancy, resourcefulness, and rapidity. The ability of infrastructure to withstand stress and continue functioning without losing critical functions is known as robustness, which is a crucial component of resilience. This means that a network’s ability to function even after being exposed to external pressures or disruptions is an important aspect of its robustness. Redundancy allows for alternative options, decisions, and substitutions within a system to provide different recovery options in the event of a disaster. Resourcefulness refers to the capacity to manage the aftermath of a disaster on the system, such as mobilizing essential workers, operations, and materials for rapid recovery. Rapidity measures how quickly the network can be repaired and restored to its original function after a hazard, and is a critical component of resilience [9].
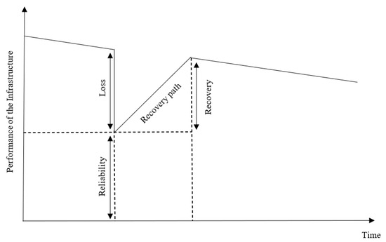
In this context, it is important to note that robustness is a subset of reliability, whereas resourcefulness, rapidity, and redundancy are subsets of recovery. As a result, this study considers reliability and recovery as the primary factors for evaluating resilience [10]. The life cycle of an infrastructure can be represented in Figure 1, which displays its performance before, during, and after a hazard. This diagram provides an overview of the infrastructure’s service life and how it performs in the event of a significant failure or disaster.
Figure 1.
Infrastructure’s performance throughout the service life (modified after Sen et al. [10]).
Figure 1 presents the infrastructure system’s performance. The performance of an infrastructure system gradually deteriorates over time due to its usage. In the event of a disaster, there is a sudden decline in performance, referred to as the failure path or loss, which is determined by the type of catastrophe and the system’s robustness. The recovery time and path, on the other hand, are dependent on the type of infrastructure system and the availability of resources. It is uncertain how the failure and recovery path will unfold [10].
Since the concept of resilience has been introduced in stormwater systems, resilience measures have been recognized as crucial in the decision-making process for developing strategies to prepare for, respond to, and recover from unexpected disruptive events affecting water infrastructure systems. Conducting a stormwater resilience analysis can offer several benefits, including identifying and comparing the resilience of systems under different organizational, economic, environmental, and social conditions; identifying vulnerable areas that require improvement through resilience strategies; and enhancing clarity in the design of infrastructure systems [11,12].
Therefore, the main research aim of this study is to develop a stormwater pipe resilience model against earthquakes to improve the management of the stormwater pipelines. The specific highlighted objectives and contributions of this study are as follows:
- To create a stormwater pipeline resilience assessment model considering safety and recovery criteria.
- To apply the Bayesian belief network (BBN) method for robust modeling of the causal relationship between the resilience indicators.
- To evaluate recovery and reliability factors of stormwater pipe infrastructure system and evaluate the sensitivities for informed decision making on pipeline management.
The remainder of this study is organized into four sections. The literature is reviewed in Section 2. Section 3 shows the research methods that have been used in this study. Data collection is explained in Section 4. In the last chapter, which is Section 5, the development of the BBN model in this study is shown.
2. Literature Review
The first section of this piece of writing discusses the various methods used to determine infrastructure resiliency, while the second section presents a literature review related to the resilience of water pipe infrastructure.
2.1. Infrastructure Resilience Methodology
In various studies, different methodologies have been employed to investigate infrastructure resilience. For instance, Murdock et al. [13] utilized a response curve approach to assess the resilience of critical infrastructure to flooding. Meanwhile, Muller [14] proposed a fuzzy-rule-based approach to select alternative architectures in an interconnected infrastructure system to enhance overall system resilience. This method takes into account the most important factors in decision making for resilience strategies. The study concluded by proposing a method based on existing resilience architecting strategies that combine essential system aspects using fuzzy memberships and fuzzy rule sets.
Rehak et al. [15] proposed a method called the Critical Infrastructure Elements Resilience Assessment (CIERA) for assessing the resilience of critical infrastructure elements. The approach involves a statistical evaluation of the elements’ robustness, ability to recover from disruptive events, and capacity to adapt to past experiences. This method includes assessing both technical and organizational resilience and identifying weaknesses that need to be addressed to improve resilience. In another study, Yuan et al. [16] emphasized the importance of critical infrastructures, such as road networks, in providing transportation to hospitals and shelters during disasters. They proposed an Internet of People-enabled framework to evaluate the performance failure of road networks during disasters and provide a performance failure rate as a measure of road network resilience.
2.2. Water Pipe Infrastructure Resilience
The importance of resilience in water infrastructure systems is emphasized by identifying its critical features, such as being prepared for hazardous situations and considering its interdependence with the electrical infrastructure. This is done to enable water infrastructure system managers to improve the system’s resilience. Matthews [17] conducted research on this topic, which included describing and quantifying critical characteristics of water infrastructure system resilience, such as redundancy in water systems and storage in wastewater systems. Other studies, such as those conducted by Cimellaro et al. [18] and Ouyang and Dueñas-Osorio [19], also emphasize the importance of understanding resilience in water infrastructure systems. The operation of water distribution systems can be disrupted by various types of hazards and disasters, whether they are natural or caused by human activity. Natural hazards are physical events that can occur quickly or slowly over time. These hazards are categorized into different types as shown in Table 2 [20]. In the following subsections, the literature related to hazards for water infrastructure is shown in detail.
Table 2.
Natural hazards [20].
2.3. Natural Hazards
Quitana et al. [21] conducted research on the ability of drinking water systems to withstand natural hazards, focusing on the resilience of critical infrastructure. Stip et al. [22] carried out a study aimed at informing water system managers about the importance of, and strategies for, increasing the resilience of water service infrastructure to natural hazards and climate risks. Stip et al. [22] also mentioned that, in selecting resilience measures, water systems managers have to take into account six principles and incorporate the decision-making concept under deep uncertainty.
2.3.1. Earthquake
Developed countries possess better protection against catastrophic disasters than developing countries due to their abundance of financial and technological resources, as well as their organized design codes and administration processes. Infrastructure systems in developing countries are more vulnerable to catastrophic disasters [4,23]. Nazarnia et al. [23] evaluated the infrastructure resilience in developing countries by focusing on the water system in the Kathmandu Valley after the 2015 Nepalese earthquake. They created a framework for the systemic evaluation of infrastructure resilience to assess the water supply system in that area. Similarly, Mostafavi et al. [24] studied the resilience of the water infrastructure in the Kathmandu Valley following the 2015 Nepalese earthquake using a system approach. Mostafavi et al. [24] identified the factors and their relationships that impacted the resilience of the Kathmandu Valley water system. The research findings underscored the factors that decreased resilience in the system, including the supply–demand imbalance, aging infrastructure, and a lack of disaster management procedures.
2.3.2. Flood and Coastal
The water infrastructure in coastal areas is highly susceptible to climate-sensitive hazards such as salt intrusion, rainfall, tides, and storm surges, which can have detrimental impacts on both infrastructure and human health. In their study, Allen et al. [25] investigated the increasing frequency, magnitude, and consequences of flooding hazards on water infrastructure and public health due to rising sea levels.
2.3.3. Weather–Climate
Falco and Webb [26] explained that extreme weather events, including rising global temperatures and climate change, can have significant impacts on water infrastructure, leading to consequences such as disrupted clean water distribution, wastewater treatment, and stormwater control. Hossain et al. [27] defined weather–climate-resilient water infrastructure as infrastructure capable of forecasting, adapting to, and recovering from external disruptions caused by adverse weather and climate conditions and providing necessary services. Stip et al. [22] conducted a study to advise water system managers on strategies for enhancing the resilience of water service arrangements to natural hazards and climate risks.
2.4. Terrorist Attacks
In a society disturbed over the possibility of terrorism, the privacy and security of infrastructure data are critical. Nevertheless, the study on infrastructure security is complex in this situation because searches on real systems cannot be announced. “Virtual cities” are one potential key to this issue, and a library of these virtual cities is now under extension [28]. Brumbelow et al. [28] conducted a study about virtual cities for water distribution and infrastructure systems.
The reviewed studies are presented in Table 3, covering various water infrastructure systems. However, there is a lack of literature specifically addressing the resilience of stormwater pipe infrastructure to earthquake hazards. This thesis aims to fill this gap by focusing on the resilience of stormwater pipes and their contributing factors against earthquake hazards, making it a unique contribution to the existing literature.
Table 3.
List of studies related to natural hazards.
2.5. Research Gap
In most of the earlier analyses, the earthquake resilience of stormwater pipelines is not highlighted comprehensively, considering the safety and recovery criteria. Studying earthquake resilience of stormwater pipelines is important because with that study, most influential factors, their weights, and their importance can be determined, and executors/utility engineers can use the information to make the infrastructure more resilient against earthquake hazards. The majority of the previous studies focused primarily on water distribution systems, with very few on stormwater pipeline failure and resilience. Studying the resiliency of the stormwater system is as important as other water systems because if a stormwater pipe cracks and fails after an earthquake hazard, the extra runoff that does not soak into the ground will not go to the stormwater pipe system and will cause flooding. There were few analyses regarding the resiliency, reliability, and recovery factors of stormwater pipes, as most of the previous studies mainly focused on risks and not resiliency. In this study, the Bayesian belief network (BBN) method has been used for probabilistic modeling and the quantification of resilience for stormwater pipeline systems engineering with limited information. Furthermore, a geographic information system (GIS) tool is implemented in this research for data inventories, visualization, and evaluations.
3. Methodology
A novel approach is proposed in this study to address the limitations of existing seismic resilience methods. The proposed method is a combination of ArcGIS and BBN and can capture the interrelationships between different factors, measure uncertainty, and integrate data and knowledge-based sources. Figure 2 demonstrates the process workflow of this approach.
Figure 2.
Workflow process.
3.1. Infrastructure Resilience Parameter Identification
Physical and social systems resiliency can be defined by robustness, redundancy, resourcefulness, and rapidity [7,8,29]. In the first step, essential factors and the following parameters must be selected in order to develop the framework for stormwater infrastructure resiliency against earthquakes. Figure 3 highlights the critical parameters for stormwater pipeline resilience against earthquake hazards.
Figure 3.
Hierarchical representation of stormwater pipe’s resilience against earthquake hazards.
3.2. Hierarchical Model Development
In this study, resilience is connected to the reliability and recovery of the infrastructure [10,29]. Figure 3 highlights the hierarchical representation of the resilience framework. Based on Figure 3, the reliability of this infrastructure is connected to three main factors: pipe condition, earthquake magnitude, and the land use type the pipe is located in. The four factors that determine the condition of a pipe are its age, material, diameter, and length. Research by Dong and Frangopol [30] and Vishwanath and Banerjee [31] suggests that newly installed pipes are better able to withstand earthquakes than older pipes, and that stronger materials provide more reliability against earthquakes. Regarding earthquake magnitude, it is obvious: higher magnitudes will cause more damage to the pipe.
Additionally, there are three key elements associated with the process of recovery, which include the cost of repairs, the rate at which repairs are completed, and the monitoring of the structure. Regular structural monitoring of stormwater pipes can help in swiftly diagnosing issues and determining the condition of the pipes after incidents, ultimately leading to a faster recovery process. This has been noted in studies conducted by Gay and Sinha [32] and Mebarki et al. [33].
Repair cost depends on the degree of damage [34]. The rate at which repairs can be completed is determined by three factors: the extent of the damage, the availability of resources, and the accessibility to those resources. In particular, the recovery process may be delayed if there is a lack of pipe materials during or after a disaster, as noted in the study by Sen et al. [10]. Similarly, disturbances that affect the accessibility of resources can also slow down the recovery process.
3.3. Bayesian Belief Network (BBN)
A BBN is a set of graphical models that gives a slight description of the probabilistic dependencies among a provided collection of random variables [35]. A BBN can also be described as a graph-based model containing edges and nodes. Nodes in a BBN outline model variables and edges that describe the relationships among the nodes and also the conditional dependencies [35,36]. In a BBN, the nodes are classified into a finite collection of variables with their probability amounts [37].
A BBN is a directed acyclic graph which includes a set of vertices which are variables or nodes and a set of edges which are arcs or links. As mentioned earlier, a BBN is a graphical model for reasoning under uncertainty where the nodes describe random variables and the links describe conditional dependencies among the variables [38,39]. The strength of the dependencies between variables and their parent nodes in a Bayesian network is determined by the conditional probability tables (CPTs) assigned to each dependent node (or child). These tables outline the probability of a child node being in a certain state given any combination of parent node states. This allows for the calculation of the likelihood of certain events or outcomes based on the probabilities of related variables in a given scenario [39].
The conditional probability distribution (CPD) of the variable Xi delivered by its direct parents’ node is expressed as P(Xi|pa(Xi)), of which pa(Xi) is a set of all parents of the variable . The joint probability distribution of each variable defined in V and P(V) will be created from the CPDs as:
Probability updating is one of the critical features that a BBN controls. It allows the decision makers to refresh the probability of the variable P(Xi), providing a new view named evidence e. The updated probability can be presented as
where P(V|e) is the updated joint probability; is the summation over all values of V except e [40].
3.4. Data Collection
The goal of this study is to find influential factors that can guarantee storm pipeline infrastructures’ resilience against earthquake hazards and, after that, find out the recovery, reliability, and resiliency index for each of the pipes to see how much the infrastructure will be resilient in the aftermath of seismic hazards. To this end, the first thing that needs to be done is the finding of the influential factors on recovery, reliability, and resiliency or, in other words, the input data to the proposed model along with their scales and states. This study utilized expert judgment and input from experienced professionals to identify the most significant inputs. The experts were chosen from a pool of academics and engineers with expertise in the area of stormwater pipeline assessment, and their information is presented in Table 4. Initially, the academics provided guidance on relevant inputs and potential outcomes based on the existing literature in the field. From there, the input of the experienced professionals was gathered to further refine the most important variables.
Table 4.
Details of the Experts.
3.4.1. Input Factors
Figure 3 illustrates a hierarchical representation of the resilience factors associated with stormwater pipes in the context of earthquake hazards, along with the specific factors involved. Table 5 presents the finalized input factors for assessing the resilience of stormwater pipes against earthquakes, including their respective states and scales. The inputs used in this study are pipe age, pipe material, pipe diameter, pipe length, land use type, earthquake magnitude, financial resources, approachability, structural monitoring, and degree of damage.
Table 5.
Inputs, scales, and the state of the model (modified after Garshasbi and Kabir [41]).
The age, material, and diameter of stormwater pipes are important factors that affect their resiliency. Pipe age is categorized as new (excellent), moderate, or old (poor). Different pipe materials, such as PVC, CSP, AC, Steel, RCP, CONC, and TILE, are also categorized as poor, moderate, or excellent. Pipe diameter is used to determine the flow through the pipes and is categorized as large (excellent), medium (moderate), or small (poor). Figure 4 shows the variation of pipe diameter in the city of Regina with different colors, where green pipes indicate smaller diameter and red pipes indicate larger diameter.
Figure 4.
Pipe diameter differences in the city of Regina.
The pipe length is assessed by m, and small (excellent), medium (moderate), and large (poor) scales are considered for them. Land use refers to the purpose for which an area is being used and its impact on the consequences of pipe failure. The consequences of a pipe failure on land used for commercial or institutional purposes will be more severe than on open spaces or railways. The quality of land use is classified as poor, moderate, or excellent.
The earthquake magnitude is another factor that affects the model’s input. Table 5 was created based on Michigan Tech [42] and Track [43] to list the different states and scales of earthquake magnitudes. Although approachability and financial resources are in good condition in the city of Regina, they are important factors to consider in recovery processes and will be evaluated in different scenarios and states. Structural monitoring, unfortunately, is not in good condition in the city of Regina. The level of damage is another recovery factor that will be evaluated in various scenarios.
3.4.2. Dependent Factors
In this study, seven dependent factors are finalized by assessing the different consequences due to the failure of pipes. The dependent factors and their states are provided in Table 6.
Table 6.
Dependent factors and their states and scales (modified after Sen et al. [10]).
3.5. BBN Model Development
For the BBN model development, five experts participated in the process. Initially, the suitable and appropriate criteria and sub-criteria for the stormwater pipe resilience framework have been presented in Table 5 and Table 6. Then, the parent and child nodes have been verified to develop the causal diagram. Figure 5 illustrates the proposed BBN model for the resiliency of stormwater pipes where 10 parent or independent nodes and 7 child or dependent nodes are connected with 17 links. The BBN model structure development was accomplished using Netica software Version 5.0 [44].
Figure 5.
Proposed BBN model for the resiliency of stormwater pipe.
The dependencies between the child nodes and the parent nodes were quantified using CPT. The CPT values of the child nodes were based on expert judgment or knowledge elicitation. Table 7 presents an example (node: speed of repair) of determining the conditional probabilities based on knowledge elicitation. The speed of repair child node depends on the resource availability, approachability, and degree of damage parent nodes. According to Table 7, if the resource availability and approachability are low and the degree of damage is low, the corresponding CPT values for speed of repair are 98, 2, and 0, which indicate that the conditional probabilities for speed of repair being in the state of slow, moderate, and fast are 98.0%, 2.0%, and 0%, respectively. The CPTs of the other child nodes were calculated in a similar way. The Netica considers uniform probabilities for missing entries or for nodes whose CPTs are incomplete or absent.
Table 7.
Sample conditional probability tables for the child node Speed of Repair.
3.6. Model Validation
For validating the proposed model, a set of qualitative and quantitative validation procedures have been done in the following subsections.
3.6.1. Extreme Condition Test
The study analyzed two extreme conditions to assess the resilience of stormwater pipe infrastructure. Extreme A represents the best possible states of all the parent nodes, while Extreme B represents the worst possible states of all the parent nodes. The developed BBN framework was applied to both scenarios, and the results are presented in Table 8.
Table 8.
Extreme condition test for the proposed BBN model.
3.6.2. Scenario Analysis
In a scenario analysis, various hypothetical scenarios are taken into consideration instead of two extreme conditions. Table 9 shows the states of the parent nodes and the resilience probability distribution for five scenarios.
Table 9.
Scenario analysis for the proposed BBN model.
In Scenario 1, all the parent nodes are in the best states except pipe age, which is in a poor condition (old). In this scenario, the resiliency decreased from 82.2 ± 11 to 75.2 ± 17. Scenario 2 is same as scenario 1, except the pipe age is in a moderate condition. It is shown that the resiliency increased from 75.2 ± 17 to 81.1 ± 13 in comparison with scenario 1. In scenario 3, all the parent nodes are in the best condition except high earthquake magnitude and high degree of damage. In this case, the resiliency decreases from 82.2 ± 11 to 58.1 ± 24.
Scenario 4 has a different status to scenario 1 to 3. In scenario 4, all the parent nodes are considered in the worst condition except high financial resources and approachability. It shows an increase in resiliency from 19.8 ± 14 to 30.5 ± 19. In scenario 5, same as scenario 4, all the parent nodes are considered in the worst condition but in this scenario the structural monitoring considered as excellent. The resiliency number in scenario 5 increased from 19.8 ± 14 to 22.1 ± 16.
3.6.3. Sensitivity Analysis
This study includes sensitivity analysis to identify critical factors for stormwater pipe infrastructure resilience and to quantitatively validate the model. Sensitivity analysis provides information on how sensitive the model’s outputs are to small changes in uncertain input variables. The variance reduction technique is used in this study to determine the sensitivity of the BBN model. This technique calculates the variance reduction of the expected value of a query node (resilience) resulting from a change in a variable node (such as age, diameter, or length). This approach has been used in previous studies [45,46,47] and is employed here to validate the proposed model. Therefore, the variance of the actual value of R given the evidence O and V(R/o) is calculated employing the subsequent equation [44,48]:
where o is the state of the varying variable node O, r is the state of the query node R, p(r/o) is the conditional probability of r given o, is the numeric value corresponding to state r, and E(R/o) is the expected real value of R after the new finding o for node O [46]. The sensitivity analysis outcomes by the parent nodes for the child node resiliency are shown in Table 10 and summarized in Figure 6.
Table 10.
Sensitivity analysis of resiliency node.
Figure 6.
Sensitivity analysis of the proposed resilience framework for stormwater pipe infrastructure.
According to the Table 10, degree of damage showed the highest contribution to variance (8.94%), followed by land use type (8.05%). Being the most sensitive parameters, changes in degree of damage and land use type have the substantial effect on the final output resiliency. To a lesser degree, financial resources, earthquake magnitude, and approachability show sensitivities of 1.36%, 1.06%, and 0.915%, respectively. Finally, structural monitoring, pipe age, pipe material, pipe diameter, and pipe length showed lower sensitivity in the range of 0.07% to 0.55%.
4. Results and Discussions
Table 11 indicates five samples of stormwater pipe characteristics and corresponding resiliency. Similarly, the resiliency of the 8464 stormwater pipes of the city of Regna is defined using the developed BBN model. Figure 7 shows the sparsity of resiliency of stormwater pipes in the city of Regina. Pipe age, material, diameter, length, and land use type are unique for each and every pipe in this model. On the other hand, constant states were considered for other factors, which were the same in the whole city. Earthquake magnitude is considered medium in the city, financial resources and approachability are considered high, degree of damage is considered medium, and structural monitoring is considered poor. As it is obvious from Figure 7 and the data, the resiliency numbers are between 40.60 and 65.56 percent.
Table 11.
Five samples for resiliency of pipes with inputs and outcome.
Figure 7.
The sparsity of resiliency of stormwater pipes of city of Regina.
Figure 8 presents the resiliency of the city of Regina’s stormwater pipes. The more the color of the feature tends to be green, the more resilient it is. On the basis of Table 6, a resiliency between 34% to 66% is considered moderate resiliency. Based on the inputs that were put, in the whole city, for medium earthquake magnitude, the resiliency is moderate for all of the stormwater pipes in the city of Regina.
Figure 8.
The resiliency of the city of Regina’s stormwater pipes.
5. Conclusions
This study gives a framework for assessing the city of Regina’s stormwater pipe resilience against earthquake hazards by using a BBN approach. To this end, the actual data from a stormwater pipe system of Regina in Canada have been obtained from the open data website of the city of Regina. Data have been opened and extracted through ArcGIS (ArcMap 10.5.1) software. To assess stormwater pipes’ resiliency against the earthquake hazard, finding the factors and the relationships between them is the initial priority. After determining the stormwater pipes’ resilience, three distinct performance states for each of the pipes were generated. The belief values computed through the proposed framework can indicate the potential resilience of a stormwater pipe towards earthquake hazards.
As one of the conclusions of this study, between reliability and recovery, resiliency is more sensitive to reliability than recovery. With regard to independent factors, the degree of damage factor is considered as the most sensitive factor in comparison with other factors in finding the resiliency of the stormwater pipe system of the city of Regina. Based on Figure 8, and all the inputs that were put in the model in the whole city for a medium earthquake magnitude, the resiliency is moderate for all of the stormwater pipes in the city of Regina as the resiliency for all of the pipes is between 40.60 and 65.56 percent.
The analysis output will aid in identifying the crucial factors by assessing the resiliency of each pipe in the entire system, allowing the agency to promptly address the critical factors and improve their strength, thereby enhancing the resilience of the stormwater pipe infrastructure. Thus, the study’s results can accurately help decision makers determine the resiliency of the stormwater pipe infrastructure. The study’s findings and figures can guide the management in preparing for potential earthquake hazards and recovering from such events. By identifying the most resilient pipes, the managers can improve the resilience of other pipes to withstand future earthquake hazards.
The effectiveness of the model is limited by the accuracy of the information and opinions provided by the experts regarding the related factors and their relationships. Thus, it is recommended to establish a global network system with the collaboration of experts from earthquake-prone countries, such as Japan and Turkey, to ensure the comprehensive and accurate evaluation of the model.
For further research, the current framework for resilient stormwater pipe infrastructure can be expanded to encompass other hazards, such as droughts, floods, landslides, climate change, and tsunamis. Furthermore, a more comprehensive framework that considers vulnerability, robustness, and recovery, with more complex dependencies at the factor level, can be developed. Other mathematical theories of uncertainty, such as rough sets theory and fuzzy sets theory, could also be utilized to assess resiliency. To validate the BBN method, the simple multi-attribute rating technique (SMART) or Dubois and Prade’s method for the compound rule can be used for examining multiple criteria. Furthermore, a similar assessment can be applied to provide a consequence model for various buried infrastructures, such as oil and gas pipelines and drinking water, in future studies.
Author Contributions
Conceptualization, M.G. and G.K.; methodology, M.G.; software, M.G.; validation, M.G., G.K. and S.D.; formal analysis, M.G.; investigation, M.G.; resources, M.G. and G.K.; data curation, M.G.; writing—original draft preparation, M.G.; writing—review and editing, G.K. and S.D.; visualization, M.G.; supervision, G.K.; project administration, G.K. All authors have read and agreed to the published version of the manuscript.
Funding
The authors acknowledge the financial support through Natural Science and Engineering Research Council of Canada Discovery Grant Program (RGPIN-2019-04704).
Institutional Review Board Statement
Not applicable.
Informed Consent Statement
Not applicable.
Data Availability Statement
The anonymized data are available from the corresponding author.
Acknowledgments
The authors would like to thank the experts in providing their feedback for performing this study.
Conflicts of Interest
The authors declare no conflict of interest.
References
- Makropoulos, C.; Butler, D.; Maksimovic, C. GIS-Supported Stormwater Source Control Implementation and Urban Flood Risk Mitigation. In Advances in Urban Stormwater and Agricultural Runoff Source Controls; Springer: Dordrecht, The Netherlands, 2001; pp. 95–105. [Google Scholar] [CrossRef]
- Dinyake, T.S.; Telukdarie, A.; Mwanza, B.G. Development of Integrated Stormwater Asset Management Framework. In Proceedings of the 2022 IEEE International Conference on Industrial Engineering and Engineering Management (IEEM), Kuala Lumpur, Malaysia, 7–10 December 2022; pp. 0364–0368. [Google Scholar]
- Mundy, R.; Sp, E.; Dbia, A. Considering Resiliency When Choosing Pipe Materials. Available online: https://www.mcwaneductile.com/blog/considering-resiliency-when-choosing-pipe-materials/ (accessed on 1 June 2021).
- Pang, R.; Zai, D.; Xu, B.; Liu, J.; Zhao, C.; Fan, Q.; Chen, Y. Stochastic dynamic and reliability analysis of AP1000 nuclear power plants via DPIM subjected to mainshock-aftershock sequences. Reliab. Eng. Syst. Saf. 2023, 235, 109217. [Google Scholar] [CrossRef]
- Pang, R.; Xu, B.; Zhou, Y.; Song, L. Seismic time-history response and system reliability analysis of slopes considering uncertainty of multi-parameters and earthquake excitations. Comput. Geotech. 2021, 136, 104245. [Google Scholar] [CrossRef]
- Chen, K.; Pang, R.; Xu, B. Stochastic dynamic response and seismic fragility analysis for high concrete face rockfill dams considering earthquake and parameter uncertainties. Soil Dyn. Earthq. Eng. 2023, 167, 107817. [Google Scholar] [CrossRef]
- Bruneau, M.; Eeri, M.; Reinhorn, A.; Eeri, M. Exploring the Concept of Seismic Resilience for Acute Care Facilities. Earthq. Spectra 2007, 23, 41–62. [Google Scholar] [CrossRef]
- Cimellaro, G.P.; Renschler, C.; Reinhorn, A.M.; Arendt, L. PEOPLES: A Framework for Evaluating Resilience. J. Struct. Eng. 2016, 142, 04016063. [Google Scholar] [CrossRef]
- Wilkinson, S.; Costello, S.; Sajoudi, M. What Is Resilience? Available online: https://www.buildmagazine.org.nz/index.php/articles/show/what-is-resilience (accessed on 1 June 2021).
- Sen, M.K.; Dutta, S.; Kabir, G.; Pujari, N.N.; Laskar, S.A. An integrated approach for modelling and quantifying housing infrastructure resilience against flood hazard. J. Clean. Prod. 2021, 288, 125526. [Google Scholar] [CrossRef]
- Sharifi, A.; Yamagata, Y. On the suitability of assessment tools for guiding communities towards disaster resilience. Int. J. Disaster Risk Reduct. 2016, 18, 115–124. [Google Scholar] [CrossRef]
- Shin, S.; Lee, S.; Judi, D.R.; Parvania, M.; Goharian, E.; McPherson, T.; Burian, S.J.; Judi, D.; Burian, S. A Systematic Review of Quantitative Resilience Measures for Water Infrastructure Systems. Water 2018, 10, 164. [Google Scholar] [CrossRef]
- Murdock, H.J.; De Bruijn, K.M.; Gersonius, B. Assessment of Critical Infrastructure Resilience to Flooding Using a Response Curve Approach. Sustainability 2018, 10, 3470. [Google Scholar] [CrossRef]
- Muller, G. Fuzzy Architecture Assessment for Critical Infrastructure Resilience. Procedia Comput. Sci. 2012, 12, 367–372. [Google Scholar] [CrossRef]
- Rehak, D.; Senovsky, P.; Hromada, M.; Lovecek, T. Complex approach to assessing resilience of critical infrastructure elements. Int. J. Crit. Infrastruct. Prot. 2019, 25, 125–138. [Google Scholar] [CrossRef]
- Yuan, F.; Liu, R.; Mao, L.; Li, M. Internet of people enabled framework for evaluating performance loss and resilience of urban critical infrastructures. Saf. Sci. 2020, 134, 105079. [Google Scholar] [CrossRef]
- Matthews, J.C. Disaster Resilience of Critical Water Infrastructure Systems. J. Struct. Eng. 2016, 142, C6015001. [Google Scholar] [CrossRef]
- Cimellaro, G.P.; Solari, D.; Bruneau, M. Physical infrastructure interdependency and regional resilience index after the 2011 Tohoku Earthquake in Japan. Earthq. Eng. Struct. Dyn. 2014, 43, 1763–1784. [Google Scholar] [CrossRef]
- Ouyang, M.; Dueñas-Osorio, L. An approach to design interface topologies across interdependent urban infrastructure systems. Reliab. Eng. Syst. Saf. 2011, 96, 1462–1473. [Google Scholar] [CrossRef]
- EM-DAT. The International Disaster Database. Available online: http://www.em-dat.net/ (accessed on 1 June 2021).
- Quitana, G.; Molinos-Senante, M.; Chamorro, A. Resilience of critical infrastructure to natural hazards: A review focused on drinking water systems. Int. J. Disaster Risk Reduct. 2020, 48, 101575. [Google Scholar] [CrossRef]
- Stip, C.; Mao, Z.; Bonzanigo, L.; Browder, G.; Tracy, J. Water Infrastructure Resilience. Available online: https://openknowledge.worldbank.org/handle/10986/31911 (accessed on 1 June 2021).
- Nazarnia, H.; Mostafavi, A.; Pradhananga, N.; Ganapati, E.; Khanal, R.R. Assessment of Infrastructure Resilience in Developing Countries: A Case Study of Water Infrastructure in the 2015 Nepalese Earthquake. Available online: https://www.icevirtuallibrary.com/doi/pdf/10.1680/tfitsi.61279.627/ (accessed on 1 June 2021).
- Mostafavi, A.; Ganapati, N.E.; Nazarnia, H.; Pradhananga, N.; Khanal, R. Adaptive Capacity under Chronic Stressors: Assessment of Water Infrastructure Resilience in 2015 Nepalese Earthquake Using a System Approach. Nat. Hazards Rev. 2018, 19, 05017006. [Google Scholar] [CrossRef]
- Allen, T.R.; Crawford, T.; Montz, B.; Whitehead, J.; Lovelace, S.; Hanks, A.D.; Christensen, A.R.; Kearney, G.D. Linking Water Infrastructure, Public Health, and Sea Level Rise: Integrated Assessment of Flood Resilience in Coastal Cities. Public Work. Manag. Policy 2018, 24, 110–139. [Google Scholar] [CrossRef]
- Falco, G.J.; Webb, W.R. Water Microgrids: The Future of Water Infrastructure Resilience. Procedia Eng. 2015, 118, 50–57. [Google Scholar] [CrossRef]
- Hossain, F.; Arnold, J.; Beighley, E.; Brown, C.; Burian, S.; Chen, J.; Madadgar, S.; Mitra, A.; Niyogi, D.; Pielke, R.; et al. Local-To-Regional Landscape Drivers of Extreme Weather and Climate: Implications for Water Infrastructure Resilience. J. Hydrol. Eng. 2015, 20, 02515002. [Google Scholar] [CrossRef]
- Brumbelow, K.; Torres, J.; Guikema, S.; Bristow, E.; Kanta, L. Virtual cities for water distribution and infrastructure system research. In World Environmental and Water Resources Congress 2007: Restoring Our Natural Habitat; American Society of Civil Engineers: Reston, VA, USA, 2007. [Google Scholar]
- Cimellaro, G.P.; Reinhorn, A.M.; Bruneau, M. Framework for analytical quantification of disaster resilience. Eng. Struct. 2010, 32, 3639–3649. [Google Scholar] [CrossRef]
- Dong, Y.; Frangopol, D.M. Probabilistic Time-Dependent Multihazard Life-Cycle Assessment and Resilience of Bridges Considering Climate Change. J. Perform. Constr. Facil. 2016, 30, 04016034. [Google Scholar] [CrossRef]
- Vishwanath, B.S.; Banerjee, S. Life-Cycle Resilience of Aging Bridges under Earthquakes. J. Bridg. Eng. 2019, 24, 04019106. [Google Scholar] [CrossRef]
- Gay, L.F.; Sinha, S.K. Resilience of civil infrastructure systems: Literature review for improved asset management. Int. J. Crit. Infrastruct. 2013, 9, 330. [Google Scholar] [CrossRef]
- Mebarki, A.; Jerez, S.; Prodhomme, G.; Reimeringer, M. Natural hazards, vulnerability and structural resilience: Tsunamis and industrial tanks. Geomatics, Nat. Hazards Risk 2016, 7, 5–17. [Google Scholar] [CrossRef]
- Ouyang, M.; Wang, Z. Resilience assessment of interdependent infrastructure systems: With a focus on joint restoration modeling and analysis. Reliab. Eng. Syst. Saf. 2015, 141, 74–82. [Google Scholar] [CrossRef]
- Cavalieri, F.; Franchin, P.; Gehl, P.; D’ayala, D. Bayesian networks and infrastructure systems: Computational and methodological challenges. In Risk and Reliability Analysis: Theory and Applications; Springer Series in Reliability Engineering; Springer: Cham, Switzerland, 2017; pp. 385–415. [Google Scholar] [CrossRef]
- Gehl, P.; Cavalieri, F.; Franchin, P. Approximate Bayesian network formulation for the rapid loss assessment of real-world infrastructure systems. Reliab. Eng. Syst. Saf. 2018, 177, 80–93. [Google Scholar] [CrossRef]
- Tien, I.; Der Kiureghian, A. Algorithms for Bayesian network modeling and reliability assessment of infrastructure systems. Reliab. Eng. Syst. Saf. 2016, 156, 134–147. [Google Scholar] [CrossRef]
- Khakzad, N.; Khan, F.; Amyotte, P.; Cozzani, V. Domino Effect Analysis Using Bayesian Networks. Risk Anal. 2012, 33, 292–306. [Google Scholar] [CrossRef] [PubMed]
- Ramírez, P.A.P.; Utne, I.B. Use of dynamic Bayesian networks for life extension assessment of ageing systems. Reliab. Eng. Syst. Saf. 2015, 133, 119–136. [Google Scholar] [CrossRef]
- Yodo, N.; Wang, P.; Zhou, Z. Predictive Resilience Analysis of Complex Systems Using Dynamic Bayesian Networks. IEEE Trans. Reliab. 2017, 66, 761–770. [Google Scholar] [CrossRef]
- Garshasbi, M.; Kabir, G. Earthquake Resilience Framework for a Stormwater Pipe Infrastructure System Integrating the Best Worst Method and Dempster–Shafer Theory. Sustainability 2022, 14, 2710. [Google Scholar] [CrossRef]
- Michigan Tech. Earthquake Magnitude Scale. Geological and Mining Engineering and Sciences, UPSeis. 2021. Available online: https://www.mtu.edu/geo/community/seismology/learn/earthquake-measure/magnitude/ (accessed on 22 December 2021).
- Track, E. Recent Earthquakes Near Saskatchewan, Canada. Earthquake Track. 2021. Available online: https://earthquaketrack.com/r/saskatchewan-canada/recent (accessed on 22 December 2021).
- Norsys Software Corp. Netica Version 4.16. Norsys Software Corp, Canada. 2021. Available online: www.norsys.com (accessed on 10 September 2021).
- Jensen, F.V. An Introduction to Bayesian Networks 210; UCL Press: London, UK, 1996. [Google Scholar]
- Kabir, G.; Balek, N.B.C.; Tesfamariam, S. Consequence-based framework for buried infrastructure systems: A Bayesian belief network model. Reliab. Eng. Syst. Saf. 2018, 180, 290–301. [Google Scholar] [CrossRef]
- Laskey, K. Sensitivity analysis for probability assessments in Bayesian networks. IEEE Trans. Syst. Man Cybern. 1995, 25, 901–909. [Google Scholar] [CrossRef]
- Pearl, J. Probabilistic Reasoning in Intelligent Systems: Networks of Plausible Inference; Morgan Kaufmann Publishers Inc.: San Francisco, CA, USA, 1988. [Google Scholar]
Disclaimer/Publisher’s Note: The statements, opinions and data contained in all publications are solely those of the individual author(s) and contributor(s) and not of MDPI and/or the editor(s). MDPI and/or the editor(s) disclaim responsibility for any injury to people or property resulting from any ideas, methods, instructions or products referred to in the content. |
© 2023 by the authors. Licensee MDPI, Basel, Switzerland. This article is an open access article distributed under the terms and conditions of the Creative Commons Attribution (CC BY) license (https://creativecommons.org/licenses/by/4.0/).










