The Evolution of Cold Adaptation Technology within Ancient Buildings in Amur River Basin Viewed from Archaeology
Abstract
1. Technical Features of Building Cold Climate Adaptability
2. Passive Insulation Technology of Building Enclosure Structure
2.1. The Material Construction Method
2.2. The Thermal Parameters of Wall Materials
Ro = Ri + R + Re. m k/w
3. Active Heating Measures
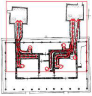
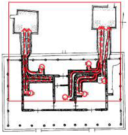
3.1. Evolution of Hypocaust Types
3.2. The Indoor Temperature Simulation of Ancient Buildings with Hypocaust
4. Discussion
5. Conclusions
Funding
Data Availability Statement
Conflicts of Interest
References
- Olgyay, V.; Olgyay, A.; Lyndon, D.; Olgyay, V.W.; Reynolds, J.; Yeang, K. Design with Climate: Bioclimatic Approach to Architectural Regionalism-New and Expanded Edition; Princeton University Press: Princeton, NJ, USA, 2015. [Google Scholar]
- Lanier, G.M. Vernacular Architecture in the Twenty-First Century: Theory, Education and Practice. J. Archit. Educ. 2009, 63, 160–161. [Google Scholar] [CrossRef]
- Biradar, V.K.; Mama, S. Vernacular Architecture: A Sustainable Approach. In Understanding Built Environment. Springer Transactions in Civil and Environmental Engineering; Seta, F., Biswas, A., Khare, A., Sen, J., Eds.; Springer: Singapore, 2017. [Google Scholar] [CrossRef]
- Salman, M. Sustainability and Vernacular Architecture: Rethinking What Identity Is. In Urban and Architectural Heritage Conservation within Sustainability; IntechOpen: London, UK, 2018. [Google Scholar] [CrossRef]
- Cristiano, S.; Falchetti, C. Vernacular Wisdom as a Path Toward Low-energy Ecologically Sustainable Housing and Settlements: Participatory Design and Building to Rehabilitate Local Adobe Bricks in El Salvador. J. World Archit. 2019, 4, 1–8. [Google Scholar] [CrossRef]
- Beccali, M.; Strazzeri, V.; Germanà, M.L.; Melluso, V.; Galatioto, A. Vernacular and bioclimatic architecture and indoor thermal comfort implications in hot-humid climates: An overview. Renew. Sustain. Energy Rev. 2018, 82, 1726–1736. [Google Scholar] [CrossRef]
- Amraoui, K.; Sriti, L.; Di Turi, S.; Ruggiero, F.; Kaihoul, A. Exploring building’s envelope thermal behavior of the neo-vernacular residential architecture in a hot and dry climate region of Algeria. Build. Simul. 2021, 14, 1567–1584. [Google Scholar] [CrossRef]
- Mariana, C.; Dipasquale, L.; Mecca, S. Versus: Heritage for Tomorrow: Vernacular Knowledge for Sustainable Architecture; Firenze University Press: Florence, Italy, 2014; 286p, ISBN 978-88-6655-741-8. [Google Scholar]
- Rajapaksha, I.; Fioritob, F.; Lazer, E. Exploring thermal comfort in the context of historical conservation. A study of the vernacular architecture of Pompeii. Archit. Sci. Rev. 2018, 61, 4–14. [Google Scholar] [CrossRef]
- Zhai, Z.J.; Previtali, J.M. Ancient vernacular architecture: Characteristics categorization and energy performance evaluation. Energy Build. 2010, 42, 357–365. [Google Scholar] [CrossRef]
- Santamouris, M. (Ed.) Advances in Passive Cooling, 1st ed.; Routledge Press: London, UK, 2007. [Google Scholar] [CrossRef]
- Zhu, J.; Chew, D.A.; Lv, S.; Wu, W. Optimization method for building envelope design to minimize carbon emissions of building operational energy consumption using orthogonal experimental design (OED). Habitat Int. 2013, 37, 148–154. [Google Scholar] [CrossRef]
- Lin, Y.; Yang, W. An ANN-exhaustive-listing method for optimization of multiple building shapes and envelope properties with maximum thermal performance. Front. Energy 2021, 15, 550–563. [Google Scholar] [CrossRef]
- Liu, W.; Liu, D. Interpreting the Information of Spatial Organization and Distribution of Settlements from a Perspective of Landscape Archaeology: A Case Study on the Historic Sites of Settlements in Han and Wei Dynasties on Sanjiang Plain. J. Archit. 2019, 11, 83–90. [Google Scholar]
- Idchabani, R.; Khyad, A.; El Ganaoui, M. Optimizing insulation thickness of external walls in cold region of Morocco based on life cycle cost analysis. Energy Procedia 2017, 139, 117–121. [Google Scholar] [CrossRef]
- Yu, H. The re-examination of the animal skeleton circles in Yanjiagang site. Archeaology 2011, 7, 52–60. [Google Scholar]
- Zhang, T.; Zhu, G.; Yang, H. Yinggeling Site, Ning’an County, Heilongjiang. Archaeology 1981, 6, 481–491. [Google Scholar]
- Zhang, W.; Zhang, X.; Tian, H. Brief report on excavation of Fenglin City Site in Youyi County, Heilongjiang in 2000. Archaeology 2013, 4, 539–575. [Google Scholar]
- Heilongjiang Provincial Institute of Cultural Relics and Archaeology. Balhae Capital: 1998~2007 Report; Cultural Relics Publishing House: Beijing, China, 2009; ISBN 9787501027507.
- Song, Y.; Fu, J. Excavation of No.6 House Site at Lantouwopu Site, Dehui City, Jilin. Archaeology 2003, 8, 739–750. [Google Scholar]
- Liu, Y.; Zhao, Y. The Excavation of Gate on the South Wall of the Southern City of the Shangjing City Site of the Jin Dynasty in Acheng District, Harbin. Archaeology 2019, 5, 45–65. [Google Scholar]
- Zhao, J.; Liu, Q.; Ma, J.; Zhou, X.; Wang, Z.; Zhao, B. The Jin Dynasty Changbai Mountain Temple Site in Antu County, Jilin. Archaeology 2018, 7, 67–81. [Google Scholar]
- Liu, J. Neolithic Site of Changling City Jilin province. Archaeology 1992, 8, 673–688. [Google Scholar]
- Liu, D.; Sun, Z. A Reasearch on the Forms of Architecture in Balhae Kingdom and the Restoration of the Imperial Palaces in Shangjing; Harbin Institute of Technology Press: Harbin, China, 2018; Volume 6, ISBN 978756035830. [Google Scholar]
- Bansal, N.K. Characteristic parameters of a hypocaust construction. Build. Environ. 1998, 3, 305–318. [Google Scholar] [CrossRef]
- Yeo, M.-S.; Yang, I.-H.; Kim, K.-W. Historical changes and recent energy saving potential of residential heating in Korea. Energy Build. 2003, 35, 715–727. [Google Scholar] [CrossRef]
- Institute of History of Natural Sciences, Chinese Academy of Sciences. History of Architectural Technology in Ancient China; Science Press: Beijing, China, 1985; Volume 10, ISBN 9787030019905. [Google Scholar]
- Jin, T.; Wang, X.; Wang, S. Balhae House Site, Xiaodiying Site, Dongning County, Heilongjiang. Archaeology 2003, 3, 230–238. [Google Scholar]
- Yang, H. A preliminary study of ancient fire kang in the northeast of China. North. Cult. Relics 2004, 1, 40–48. [Google Scholar]
- Zhao, Y.; Zheng, J. Excavation of Xingnong city site Bohal Period in Hailin City, Heilongjiang Province. Archaeology 2005, 3, 21–35+2. [Google Scholar]
- Yang, H.; Tan, Y.; Lin, X. Excavation report of Tongren site in Suibin, Heilongjiang Province. Archaeology 2006, 1, 115–140+147–156. [Google Scholar]
- Jilin Provincial Institute of Cultural Relics and Archaeology. 2009–2010 Excavation Report of the Liaojin Site in Yongping, Baicheng; Science Press: Beijing, China, 2015; ISBN 9787030469120. [Google Scholar]
- Li, D.; Xie, F.; Qu, Q.; Wang, X.; Jiang, W. Excavation report of Bakeshu Site Jin Dynasty in Lishu County, Jilin Province. North Cult. Relics 2009, 4, 31–35. [Google Scholar]
- Zhuang, Z.; Li, Y.; Chen, B. Thermal storage performance analysis on Chinese kangs. Energy Build. 2009, 41, 452–459. [Google Scholar] [CrossRef]
- Yates, A.P. An Evaluation and Model of the Chinese Kang System to Improve Domestic Comfort in Northeast Rural China. Master’s Thesis, University of Colorado, Boulder, CO, USA, 2013. Available online: https://scholar.colorado.edu/concern/graduate_thesis_or_dissertations/p2676v93m (accessed on 18 November 2019).
- Wang, Z.; Duan, M.; Zhao, Y.; Zhu, J. Analysis and comparison on Heating Characteristics and Adaptability for Typical Kangs. Archit. Sci. 2012, 12, 14–20. [Google Scholar]
- Xu, C. Experiment Research on Thermal Properties and the Establishment on Heat Transfer Model of Hot-Wall Kang; Dalian University of Technology: Dalian, China, 2015. [Google Scholar]
- Shao, T.; Jing, T.; Zhao, L. The Existing Situation and Improving Strategies for Rural Housing in The Northeast Severe Cold Regions. Chin. Sci. Technol. Pap. 2016, 11, 12–16. [Google Scholar]
- Zhang, X.Y.; Jin, H. Strategies of function improvement on existing rural housing in severe cold and cold regions. J. Harbin Inst. Technol. 2011, 18, 117–121. [Google Scholar]
- Jing, H.; Lin, W. Low energy consumption, Low Technology and Low Cost: Research on the Design of Energy-Saving Housing in Cold Villages and Towns. J. Archit. 2010, 8, 14–16. [Google Scholar]
- Shao, T. The Energy-Saving Optimization for Rural House in Northeast Severe Cold Regions; Harbin Institute of Technology: Harbin, China, 2018. [Google Scholar]
- Building Energy Conservation Research Center of Tsinghua University. 2021 Annual Report on China Building Energy Efficiency; Building Energy Conservation Research Center of Tsinghua University: Beijing, China, 2021; ISBN 9787112265213. [Google Scholar]
- Yang, X.; Jiang, Y.; Yang, M.; Shan, M. Energy and environment in Chinese rural housing: Current status and future perspective. Front. Energy Power Eng. China 2009, 4, 35–46. [Google Scholar] [CrossRef]
- Shan, M.; Wang, P.; Li, J.; Yue, G.; Yang, X. Energy and environment in Chinese rural buildings: Situations, challenges, and intervention strategies. Build. Environ. 2015, 91, 271–282. [Google Scholar] [CrossRef]
- Zhou, X.; Xiao, B.; Ochieng, R.M.; Yang, J. Utilization of carbon-negative biofuels from low-input high-diversity grassland biomass for energy in China. Renew. Sustain. Energy Rev. 2009, 13, 479–485. [Google Scholar] [CrossRef]




| Building Sites | Wall Type | Wall Structure |
|---|---|---|
| The Round House in Yanjiagang —Old Stone Age [16] | Tent curtain wall | Temporary curtain structure made of branches and leaves. |
| Yinggeling Upper Remains F1—Neolithic age [17] | Stone masonry wall | Masonry stone walls filled with mud, 0.25 m thickness. |
| Fenglin Ancient City Remains F23—Early Iron Age [18] | Wood-mixed-grass mud wall | The wall thickness is 0.35–0.65 m, and the diameter of the wooden bone column is 0.15–0.4 m. |
| Balhae kingdom Palace No.4 Remains—Mature Iron Age [19] | Timber plate-building wall | Black soil, 0.3–0.4 m thickness, with wooden pillars diameter 0.15 m. |
| Jin Dynasty Dehui Ruins F6—Developed Iron Age [20] | Pillar-clad brick walls | The wall is about 0.6 m thick, single-built gray bricks, filled with soil. |
| Western Building Site of Jinshangjing City—Developed Iron Age [21] | Blue brick masonry walls | Blue brick masonry wall, 0.9 m thickness, with sand and mud plastering on the outside. |
| Ruins of Changbaishan Temple—Jin Dynasty- Developed Iron Age [22] | Brick masonry walls | The wall thickness is about 1.3 m, the blue brick masonry methods are various. |
| Period | Typical Remain Examples | |||
|---|---|---|---|---|
| Wall materials remains in Hanwei period (the Early Iron Age of ARB) | ![]() | ![]() | ||
| F10 and F34 of Fenglin City Site [18] | ||||
| Wall materials remains of Bohea kingdom (698–926) | ![]() | ![]() | ![]() | |
| The Palace 2 of Longquan City Site [19] | ||||
| Wall materials remains in Liaojin Dynasties (907–1234) | ![]() | ![]() ![]() | ||
| F6 of Lantou Site [20] | F3 and F4 of Changbai Temple Site [22] | |||
| Material | Thermal Conductivity | Thermal Effusivity |
|---|---|---|
| Hay | 0.05 (W/m·K) | 0.83 (W/(m2·k)) |
| leather | 0.18 (W/m·K) | 14.74 (W/(m2·k)) |
| Rammed soil | 0.76 (W/m·K) | 9.37 (W/(m2·k)) |
| Wood (horizontal) | 0.17 (W/m·K) | 4.9 (W/(m2·k)) |
| Wood (vertical) | 0.38 (W/m·K) | 6.93 (W/(m2·k)) |
| Sand lime brick masonry | 1.10 (W/m·K) | 12.72 (W/(m2·k)) |
| Wall Structure | R (K/W) | Ro (K/W) | K (W/m2·K) |
|---|---|---|---|
| tent canvas | 0.25 (K/W) | 0.4 (K/W) | 2.5 (W/m2·K) |
| Stone masonry (d = 0.25 m) | 0.61 (K/W) | 0.7 (K/W) | 1.32 (W/m2·K) |
| Stone masonry (d = 0.8 m) | 1.05 (K/W) | 1.2 (K/W) | 0.8 (W/m2·K) |
| wooden rammed earth | 0.71 (K/W) | 0.8 (K/W) | 1.169 (W/m2·K) |
| blue brick masonry (d = 0.25 m) | 0.59 (K/W) | 0.7 (K/W) | 1.359 (W/m2·K) |
| blue brick masonry (d = 1.3 m) | 1.26 (K/W) | 1.4 (K/W) | 0.71 (W/m2·K) |
| Flues and Plane Form | Single Flue | Double Flue | Three and Multiple Flues |
|---|---|---|---|
| curved-foot type; | ![]() | ![]() | ![]() |
![]() | ![]() | ![]() | |
| rectangular type | ![]() | ![]() | ![]() |
![]() | ![]() | ![]() | |
| “п” type | ![]() | ![]() | ![]() |
| whole surface type | - | ![]() | ![]() |
| Type | Remain Examples | ||
|---|---|---|---|
| Single flue heated Kang of Hanwei period | ![]() | ![]() | ![]() |
| Dongning Xiaodiying Site F1 [28] | F10, Fenglin City Site [18], | F9 of Dongning Tuanjie Site [29] | |
| Double and multiple flue heated Kang of Bohea kingdom | ![]() | ![]() | ![]() |
| Hailin Xingnong City Site F3 [30] | Suibin Tongren Site F1 [31] | Longquan Mansion Palace [19] | |
| Multiple flue heated Kang of Bohea kingdom | ![]() | ![]() | ![]() |
| Yongping Liaojin Site F4 [32] | Yongping Liaojin Site F1 [32] | Lishu Bakeshu Site F1 [33] | |
Publisher’s Note: MDPI stays neutral with regard to jurisdictional claims in published maps and institutional affiliations. |
© 2022 by the author. Licensee MDPI, Basel, Switzerland. This article is an open access article distributed under the terms and conditions of the Creative Commons Attribution (CC BY) license (https://creativecommons.org/licenses/by/4.0/).
Share and Cite
Liu, W. The Evolution of Cold Adaptation Technology within Ancient Buildings in Amur River Basin Viewed from Archaeology. Int. J. Environ. Res. Public Health 2022, 19, 14470. https://doi.org/10.3390/ijerph192114470
Liu W. The Evolution of Cold Adaptation Technology within Ancient Buildings in Amur River Basin Viewed from Archaeology. International Journal of Environmental Research and Public Health. 2022; 19(21):14470. https://doi.org/10.3390/ijerph192114470
Chicago/Turabian StyleLiu, Wenqing. 2022. "The Evolution of Cold Adaptation Technology within Ancient Buildings in Amur River Basin Viewed from Archaeology" International Journal of Environmental Research and Public Health 19, no. 21: 14470. https://doi.org/10.3390/ijerph192114470
APA StyleLiu, W. (2022). The Evolution of Cold Adaptation Technology within Ancient Buildings in Amur River Basin Viewed from Archaeology. International Journal of Environmental Research and Public Health, 19(21), 14470. https://doi.org/10.3390/ijerph192114470









































