Next Article in Journal
Factors Predicting Training Delays and Attrition of Recruits during Basic Military Training
Next Article in Special Issue
Emerging Trends of Ergonomic Risk Assessment in Construction Safety Management: A Scientometric Visualization Analysis
Previous Article in Journal
Older Female Farmers and Modeling of Occupational Hazards, Wellbeing, and Sleep-Related Problems on Musculoskeletal Pains
Previous Article in Special Issue
Voice Navigation Created by VIP Improves Spatial Performance in People with Impaired Vision
 
 
Font Type:
Arial Georgia Verdana
Font Size:
Aa Aa Aa
Line Spacing:
Column Width:
Background:
Article

Ergonomic Rationalization Sequence of Digital Lighting Design in the Working Environment

Faculty of Manufacturing Technologies with a Seat in Presov, Technical University of Kosice, Bayerova 1, 080 01 Presov, Slovakia
*
Author to whom correspondence should be addressed.
Int. J. Environ. Res. Public Health 2022, 19(12), 7275; https://doi.org/10.3390/ijerph19127275
Submission received: 12 April 2022 / Revised: 26 May 2022 / Accepted: 13 June 2022 / Published: 14 June 2022
(This article belongs to the Special Issue Human-Computer Interaction, Ergonomics and Health)

Abstract

This paper describes the creation of a rationalization sequence for working with simulation models, and its subsequent verification in the redesigning of lighting in cooperation with digital enterprise tools. The rationalization sequence consists of 11 sequences, whose accuracy is subsequently verified on a practical example of the redesign of an assembly room of a production hall in the simulation tool Dialux Evo. In conjunction with the proposed procedure, a redesign of the assembly workplace located in the production hall for daylighting, artificial, and mixed lighting was created. The conclusion of the paper provides an overview of the benefits gained from the application of the work environment rationalization procedure.

1. Introduction

Nowadays, simulation tools form an integral part of all manufacturing, controlling, and auxiliary processes in industry. Recently, there has been a growth of simulation tools in the field of ergonomics. Simulation tools are used in the field of ergonomics to simulate, evaluate, or rationalize physical loads, physical factors of the working environment, or risks at the workplace.
In the field of the application of ergonomic simulation tools for the comprehensive assessment of the physical load of workers, there is an important article by Zhang et al. [1], who deals with the ergonomic rationalization of welders’ standing postures. The authors created six digital welders using Jack human software, on which they implemented basic ergonomic methods for physical load assessment and determined the most suitable posture–operating distance, operating height, and rotation angle of the welder’s neck, in order to improve welders’ operational posture and prevent fatigue and injury to the welder. The above-mentioned software solution was also used in the determination of prediction algorithms for the identification of work positions in the implementation of four manual tasks with a focus on joint angles, low back forces, and strength capabilities, by digitizing real participants [2]. In addition to the Jack simulation tool, the issue of assessing the physical load of workers has also been explored using other simulation tools, such as the DHM tool IPS IMMA software, through which it is possible to assess workplaces, specifically the time and ergonomic parameters [3]. This software can also be implemented in proactive ergonomics, in the design of test procedures for the interior of the vehicle design process [4]. The software can also be applied as a standard for the assessment of the well-being of workers via the RULA score, as described in [5]. The implementation of software solutions for ergonomic load assessment of workers was also discussed by a pair of authors, Grobelny and Michalski [6], who digitized the workplace and workers using Anthropos ErgoMAX software, to devise a workplace design methodology that prevents work-related musculoskeletal disorders (WMSDs). The use of simulation tools is appearing more and more often in the assessment of physical factors, in conjunction with the assessment of emerging risks in the workplace. Predicting and evaluating noise, as one of the major environmental factors, through the use of software support is a highly topical issue, which can be confirmed by the contributions in [7,8,9,10], which deal primarily with mapping, simulation, and assessment of the impact of noise on workers. In addition to assessing noise as a physical factor in the work environment, simulation tools are used to assess thermal well-being at workplaces, as reported in [11,12,13,14]. The use of the most modern available tools of the digital age has created space for the gradual implementation of virtual reality in the conditions of ergonomic rationalization and assessment, of both the physical load of workers and the working environment as a whole. Regarding this issue, it is necessary to highlight, for example, the implementation of virtual reality as a supporting ergonomic tool for posture assessment in digital human modelling [15,16,17,18], or also as an ergonomic support tool in workplace design [19], or ergonomic risk assessment [20,21].
Currently, simulation tools are often used for modelling and evaluating the physical factors of the working environment, specifically for lighting modelling. Various companies are developing and improving simulation tools that provide information about the current state of lighting, but also about its rationalized or optimized state [22,23,24,25,26].
Despite the increasing use of simulation tools for the modelling and evaluation of lighting, there are not many publications on the subject at present. In 2015, Acosta et al. analyzed the precision of several lighting simulation programs regularly used in daylighting studies for architecture, following the methodology established in the CIE (The International Commission on Illumination) test cases document [27]. Simulation tools to assess daylighting have been widespread in the construction sector since the 1970s. In the last decade, several authors have dealt with the lighting simulation tools issue [28,29,30,31], but the methodology of working with these tools was not addressed. In 2016, author Pawlak determined the performance accuracy of the simulation of escape route lighting installations, using the most popular programs supporting lighting design: DIALUX and RELUX, as well as possible errors associated with illuminance measurement of emergency escape lighting [32]. Numerous evaluations of the simulation models available have been published. These can be divided into two groups: comparisons based on replicating a built reality (scale models or reality), and comparisons in controlled laboratory settings [33,34,35]. Commercial lighting simulation software can also be used for the analysis and calculation of various variables. The authors Son et al. used the Relux 2013 (Relux Informatik AG, Münchenstein, Switzerland), AGi32 v2.04 (Lighting Analysts, Littleton, CO, USA), and Dialux 4.11 software (DIAL GmbH, Lüdenscheid, Germany) for the calculation of the UGR (unified glare rating) parameter [36]. The simulation software can be used for a quantitative analysis of annual energy-saving potential from daylighting in a building or study and the simulation of indirect lighting system installations. [37,38]. Several scientific studies [39,40] have shown that the design of lighting systems often involves competing criteria, in addition to occupant comfort; a decision support system integrating daylight and/or other techniques can help the designer in the definition of the optimal design strategies. This system is a very important part of the modern design realization stage, but it is necessary to involve the human factor in the process. Despite individual research regularly being carried out in practice, there is currently little emphasis on the development of a general procedure or guidance on the use of digital tools in the field. For this reason, a general rationalization algorithm for working with simulation models was constructed.
Within the concept of the presented article, it is also necessary to define ergonomic rationalization in relation to the issue of lighting the working environment. In the general context, ergonomic rationalization can be defined as an activity that is implemented in the existing system; its structure and behavior are known, while the parameters are sought in which the behavior of the system with set criteria is considered the most advantageous. The generally interpreted determination of ergonomic rationalization can be defined within the issue of digital lighting design, as the implementation of all ergonomic tasks in the existing workspace (work environment), with the basic specification defining its characteristics (general purpose of the workspace/environment, layout specification, lighting system) by projecting this workspace/environment into digital form, where the most suitable parameters are sought and the phases ensuring the creation of a functional and reliable lighting system according to predetermined criteria are described.
The simulation tool Dialux Evo, which is described in the first part of the paper, was chosen for the realization of the constructed algorithm. The simulation tool was selected by comparing the three available software programs. Individual software was compared in terms of several criteria—availability, price, compliance with the standard, complexity of the working environment, interpretation, export of achieved results, etc. An overall comparison is also given in a previous article [41]. The objective of this article is the presentation and description of an ergonomic rationalization sequence that uses the principles of digital lighting design, with verification of its functionality on a practical model example.
After a brief introduction to the issue and an overview of similar research, the second part of the article focuses on the presentation of mathematical expressions needed for the subsequent calculation of lighting. The body of the article is divided into two sections: “Rationalization sequence of work with simulation models”, which is focused on the description of the created rationalization sequence; and “Application of comprehensive ergonomic sequence in practice”, which provides a verification of the created model directly, in practice, in an assembly hall of the production company. The conclusion of the article contains a discussion of the achieved results and their comparison, with a subsequent description of the benefits of the solution for science and practice in the Section 6.

2. Materials and Methods

The value of the actual daylight factor changes during the use of an interior and can be deemed an operational value. When making a decision with respect to a lighting opening at the design stage, a value that accounts for all the effects identified before the construction is required. These requirements translate into the resulting daylight factor D, expressed in %. It is a value determined by calculation under certain simplified assumptions. It is determined as the sum of the following components [42]:
D = D S + D E + D i = 100 · E i s E e H + E i e E e H + E i r E e H
Ds—the sky component of the factor expressing the ratio of the part of the interior lighting Eis, caused by the sky brightness, and the actual horizontal lighting of an unshaded outer horizontal plane.
The sky component expresses the ratio by which a point on the plane under consideration in the interior is illuminated from the surface source element induced by the sky brightness, with respect to the current exterior horizontal lighting from an evenly clouded sky. The sky component may be obtained from the following relation [42]:
D S = L d S cos ϑ cos ψ l 2 d S E e H · 100
  • ψ—angle of incidence of light rays on the lighting opening.
  • ϑ—angle of incidence of light rays on the point under consideration perpendicular to the plane of incidence,
  • LdS—luminance of the sky element with elevation angle ε = 90° − ϑ, calculated as follows [42]:
L d S = L Z 1 + 2 cos ϑ 3 τ 0 0 , 5 cos ψ 3 c o s 2 ψ
since the horizontal exterior lighting is a function of the zenith brightness Lz, it can be defined by the following relation [42]:
E e H = 7 9 π L Z
and thus, the general mathematical model for the sky component has the final form of [42]:
D S = τ 0 100 π A 1 A 2 B + cos ϑ C c o s 2 ψ cos ϑ c o s 2 ψ l 2 d S
A1, A2, B, C—coefficients depending on the gradation of the sky brightness and the type of glazing.
De—reflected external component of the factor expressing the ratio between the illuminated part Eie (light reflected from the reflective external surfaces, obstacles located in front of the building opening (windows) and the actual horizontal lighting. The mathematical formula is as follows [42]:
D e = D S F 10 k ε
Di—reflected internal component of the factor expressing the ratio between the interior component of the light in the interior caused by the multiple reflection of daylight from the surfaces located in the interior of Eir and the actual horizontal lighting. The mathematical formula is as follows [42]:
D i = χ τ 0 S 0 S 1 ρ D ρ d + H ρ h
  • χ—correction factor,
  • τ0—light loss factor,
  • S0—convergence area of the lighting opening,
  • S—total area of internal surfaces,
  • ρ—average reflection factor of all internal surfaces,
  • D, H—constants,
  • ρh(ρd)—average reflection factor of the upper (lower) part of the room above the horizontal plane level.
The ergonomic rationalization sequence of the digital lighting design was conceived in accordance with lighting simulation tools that use the mathematical expressions described in above part of this article. All these mathematical expressions served as a supporting verification tool for the simulation data obtained.

3. Rationalization Sequence of Work with Simulation Models

During the creation of simulation models in lighting instruments, it is necessary to ensure the sequence of basic steps (A–J), which are shown and described in the following part of the work. This rationalization algorithm (Figure 1) forms a part of the main rationalization algorithm, which is presented and described in the first part of this paper: Ergonomic rationalization of lighting in the working environment, Part I [41].
The proposed sequence of the procedure is the following:
A. In the beginning, it is necessary to choose a suitable lighting simulation tool. The choice of simulation tool depends on various variables, such as its availability, price, and specification for a particular type of lighting.
B. In the second step, it is necessary to compose the current layout: the layout of the assessed object. There are two ways to build the layout: compiling in the CAD program, or in the light-technical program; with the possibility to export to a CAD program with extension dwg/dxf or import from CAD program with extension dwg/dxf.
C. The third step consists in setting the limit values for the assessment of the lighting by defining the type of the assessed object. This step is important in the final assessment of the suitability of the illumination, as the simulation tool, after defining these limit values that comply with EN 12 464-1 standard, can determine whether or not the achieved results meet or exceed the limit values.
D. After creating the layout and setting the limit values, it is possible to create a complex 3D model of the assessed space in the fourth step. To complete the model, it is necessary to define the height of the room and insert the required 3D objects, in accordance with the 2D layout.
E. The fifth step defines the basic building openings: windows, skylights, etc. This step is important during the identification of daylighting and mixed light.
F. Calculating the artificial or mixed lighting is an important step. The sixth step defines the lighting system, by selecting artificial lighting from the manufacturer’s catalogues or importing from compatible files. This part completes the first phase: the construction phase of the assessed object.
G. and H. The second phase: the phase of defining the calculation parameters consists of two parts. In the first part, in the seventh methodological step, the computational surfaces (working plane) are created. Subsequently, in step number eight, the calculation parameters are set on these calculation surfaces as required. These parameters are set individually, to evaluate each type of lighting.
I. and J. In the last two steps, the third phase is applied: the simulation and evaluation phase. In this phase, the actual simulation of a specific type of lighting is realized and after its completion the achieved lighting–technical calculations are interpreted. Interpretation of results can be graphical or numerical, depending on the simulation tool used.

4. Application of a Comprehensive Ergonomic Sequence in Practice

As mentioned in the “Introduction” part of this article, verification of the rationalization procedure of working with simulation models is realized through the simulation tool Dialux Evo. A model of the daily, artificial, and associated lighting of an assembly room of 5875 × 6208 × 3000 mm was constructed for verification. The original layout of the room was proposed in 2015. In this proposal, it was planned to use this room as a production room, in which one lathe and one worktable were to be situated. Due to the fact that the company expanded during its existence, there has been a change that had to be addressed, to rationalize the original focus of the room. Before the rationalization, the room was a space without windows, with artificial lighting and individual devices. Considering the above, the general lighting was redesigned by means of simulation software, using a rationalization procedure, so that the room could be used for assembly purposes.

4.1. Daylighting Design

The design of daylighting of the working environment of the assembly room consists in defining new building openings. In accordance with the sequence of the proposed procedure, the limit values for daylighting are set and controlled in accordance with STN 73 0580-1 [43]. The created space model is shown in Figure 2.
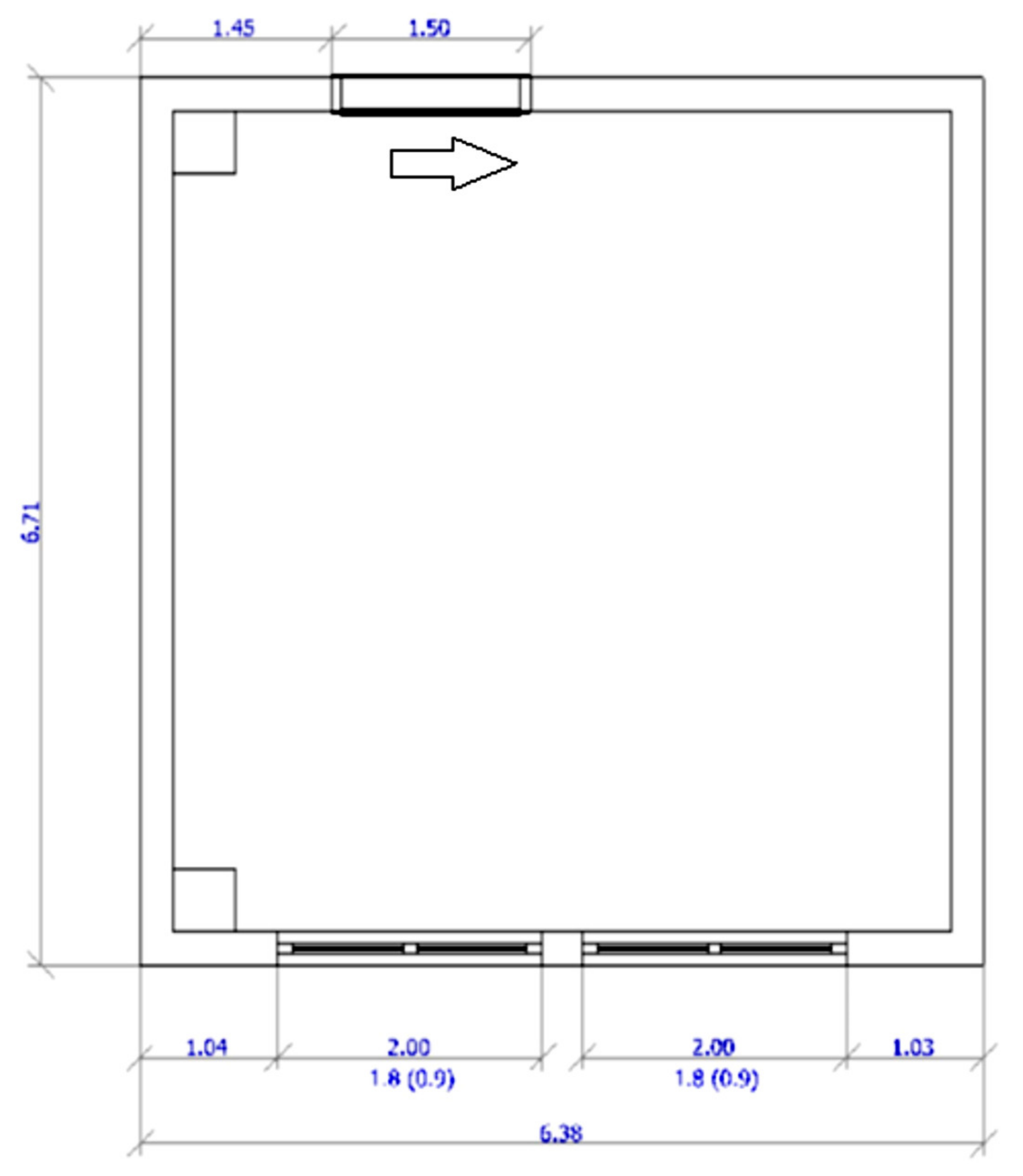
The design of the building openings indicated the installation of two windows (Table 1) of 2000 × 1800 mm, with a sill height of 900 mm from the floor plane. In the following figures, the position (in meters) of the individual building openings is precisely defined: windows and sliding doors whose direction of opening is indicated by an arrow (Figure 3). A schematic representation is complemented by a presentation of the compiled 3D model (Figure 4).
Given that the assembly room is situated in an industrial hall, so that it is connected to the outside environment by only one wall, it was necessary to choose larger and wider windows, to ensure at least a minimum required value of daylight factor D = 1.5%. The insulating triple glazing (4-mm clear glass, 18-mm gaps filled with argon) was due to its affordability and application, which is in a non-residential and warehouse space, and to meet the thermal requirements specified in the STN 73 0540-2: 2012 [44] standard. Since this is an assessment of daylighting, by defining the building openings, the design phase of redesigning the daylighting of the working environment of the assembly room was completed.
Since it is a design of daylighting for a room that does not contain any objects, it is sufficient to create one calculation area that is 1 m from the room edge, according to STN 73 0580-1 [43]. The settings of the individual calculation parameters for the evaluation of the daylight of the assembly room are shown in Figure 5.
For the final evaluation of the new assembly room design, it was also necessary to define the sky model; the sky model was defined according to the standard, cloudy sky. By setting the calculation areas and limit values, the phase of defining the calculation parameters was completed and the simulation itself was carried out.
After the simulation of the daylighting of the assembly room, the overall suitability of the proposed model was assessed from the following aspects: the assessment of the daylight factor, the uniformity of illumination, and the distribution of luminous flux. The achieved numerical results are interpreted in Table 2.
Based on the standard and general requirements for the design of daylighting, the assembly room under consideration can be assigned to the IV class of moderate visual activity. For this class, a minimum daylight factor of 1.5 for side lighting is determined. As shown in the table, the average daylight factor for the new design of the assembly room is 1.586%, which is in accordance with the normative requirements. The uniformity of illumination was calculated from the average and minimum value of the illumination intensity achieved on the computational surface. From the results obtained, it can be stated that the proposed solution achieves a uniformity of illumination of 0.30, and thus fulfils the minimum requirement of uniformity of daylight of 0.2. The graphical interpretation of the uniformity of the illumination of the assembly room by means of the isophote display is shown in Figure 6.
Based on the results of the simulation according to the above figure, it can be stated that the luminous flux of daylighting is not evenly distributed; the space is located near the proposed building openings and the space on the other side of the room near the door is the least illuminated. Therefore, when using daylighting in each design, it is recommended that the assembly workplaces be located close to the openings, in order to ensure sufficient daylighting.

4.2. Artificial Lighting Design

The design of artificial lighting was based on the constructed model of daylighting. According to the rationalization procedure of work with simulation models, the limit values in accordance with EN 12 464-1 were defined in the next step of the construction phase. Since it is a redesign of artificial lighting after the rationalization procedure, the definition of building openings was omitted, and the lighting system was defined and created. The lighting system consists of two luminaires, the basic specifications of which are given in Table 3.
The luminaire was chosen for the assembly room to ensure the required illumination intensity and the required chromaticity temperature, which should be approximately 6500 K (daylight level, circadian effect index approaching 100%). It is also necessary to consider the requirement for the color rendering index for a given room type to be higher than 80, when redesigning the lighting as cool day white. Since no type of artificial lighting has been placed so far in the assembly room, it is possible to create a new luminaire arrangement. The arrangement of the lighting system with the indication of the exact positions of the individual luminaires and the 3D visualization is shown in Figure 7.
For the evaluation of the proposed artificial lighting, computational area was used: the plane used in daylighting design. For the overall assessment of the suitability of the proposed model, the calculation parameters illumination intensity and illumination factor UGR are defined for the determined calculation area (Figure 8).
By defining the calculation parameters, the second phase of the redesign was completed: the phase of defining the calculation parameters. After the simulation was carried out, as in the design of daylight, the overall suitability of the proposed model was assessed from the following points of view: illumination intensity, illumination uniformity, and UGR illumination factor. Table 4 provides a numerical overview of the achieved values of the monitored parameters.
Since the object under consideration will be used as a room for the execution of assembly work, it is necessary to ensure an average intensity of artificial lighting in the room of a minimum required value of 300 lx. As shown in the summary table of the artificial lighting results of the new design for the assembly room, the average value of the lighting intensity is 423 lx; thus, meeting the minimum requirement for the artificial lighting intensity. The isoforms on the computational plane are shown in Figure 9.
In the immediately surrounding area, which according to EN 12 464-1 means a 0.5 m wide belt surrounding the workstation, the uniformity of illumination should be 0.5 or more. Given the fact that no precise workplaces are currently defined in the assembly room, the proposed model assessed the uniformity of illumination on the computational surface; a plane that is 0.45 (Figure 10).
According to the artificial lighting standard, the brightness is determined by the reflection factors and the surface illumination. The graphical interpretation of the brightness distribution for the evaluated plane is shown in Figure 11.

4.3. Mixed Lighting Design

The design of the mixed lighting of the assembly room (Figure 12) working environment is a combination (control) of the design of the daylighting and the artificial lighting of the assembly room mentioned in the previous parts of this article. There is no separate standard for the assessment of mixed lighting, so the assessment is based on the assessment of daylighting and artificial lighting, with a view to controlling the possible occurrence of light overexposure.
When assessing the design of the mixed lighting, it is necessary to respect the condition of a minimum value of 300 lx and a daylight factor of at least 1.5% for side lighting. Figure 13 shows a graphical interpretation of the achieved illumination intensity values.
Parameters obtained by simulation confirm the correctness of the assembled models of daylighting and artificial lighting. The average intensity of the mixed lighting is twice as high as the minimum required value, and the UGR value remains unchanged compared to the artificial lighting design. The results of the simulation are shown in Table 5.
The simulation results in the table above show that all monitored parameters are in compliance with the requirements, and it can be stated that the overall design of daylighting, artificial, and mixed lighting for the assembly room conforms to the proposed rationalization procedure work with simulation models, and in terms of legislation and requirements of standards, it is satisfactory and applicable in practice.

5. Results and Discussion

In all the proposed solutions, values higher than the values required or in the assessment of the glare of the space were achieved, and values were lower than the maximum allowed. When assessing the uniformity of artificial and mixed lighting, the calculated value appears to be insufficient, but in this case, it is the required value for a particular place for performing a visual task, or a visual task in the immediate proximity. However, the layout of individual workplaces has not yet been determined in the empty room model, and therefore it is necessary to verify this value again in cooperation with the rationalization procedure of the work with simulation models. In view of the results achieved, it is best to locate workplaces from the side around the windows; thus, ensuring the required direction of illumination of the workplace, from the left and from the top. The overall technical evaluation of the lighting of the proposed assembly room model is given in Table 6 and Figure 14, Figure 15 and Figure 16. In the last column of Table 6 are presented the absolute values, as some of the monitored parameters need to be achieved with a higher degree of difference (illumination, daylight factor) and some are better with lower values (uniformity, UGR) as required values.
Based on the specific values found in the previous table and figures, it can be stated that the overall design of the daylighting, artificial, and mixed lighting of the assembly room is satisfactory and can be applied directly in practice, after determining the specific workplaces and a subsequent inspection.

6. Conclusions

Nowadays, industries are increasingly marked by digital technologies. The manufacturing industry is no exception to this. It is the manufacturing industry that is the industry that has seen an increase in the use of digital technology in recent years, with the primary goal of achieving a dynamic manufacturing environment, with the ability to develop continuous innovations in processes or products. This paper presents a procedure on how to work with the available digital tools. The main aspect of this work lies in a strict sequence of steps for the redesigning of lighting intended for production and industrial halls. General design solutions for lighting are based on documents for lighting projects in houses, apartments, or offices. This sequence addresses the issue directly, with a focus on production halls and industrial plants. The other application is to verify the new practical research in the residential lighting (for example). It describes the proposed general rationalization procedure of work with simulation models in the area of evaluation of the physical factors of the working environment; lighting. The proposed procedure was verified on a practical solution to the redesign of a assembly room, in which daytime, artificial, and mixed lighting was designed. Based on the research and subsequent creation of a proposal for a rationalization procedure for work with simulation models, the following benefits for the scientific field and practice were determined:
  • Proposal of a methodology for working with lighting technical simulation tools.
  • Utilization of the proposed procedure for the realization of the redesign of working environment lighting.
  • Enhancing the knowledge of computer support in ergonomics.
  • The practical and realistic design of the redesign of assembly room lighting.
With the help of a rationalization procedure of work with simulation tools, modification of the assembly room was designed, which meets all the necessary legislative requirements and requirements set by standards. The present article provides the sequence of work, with a simulation model in ergonomics, and the possibility to use the tools of a digital enterprise not only in areas such as production or planning, but also in the areas of assessment of the working environment namely in the assessment of daylighting, artificial lighting, and mixed lighting. The evaluation of the physical factors of the working environment is a very important issue in the assessment process of public health quality in the workplace. In any case, if the analyzed work environment and its factors are incorrectly assessed, whether due to an incorrectly designed model, non-compliance with sequences of work with the model, or bad interpretation of results, such a misjudgment can have a very negative impact on occupational safety and health of workers. This article provides new approaches and a methodology for this form of ergonomic rationalization, bringing it up to date. By applying this sequence, it is possible to ensure a correct design procedure, which also ensures quality management and eliminates the subsequent technical shortcomings that are closely linked to the economy of the company. The presented proposal can be extended in the future by research focused on the assessment of economic impacts and management processes, with consequent results in the assessment of possible emerging risks associated with the issue.

Author Contributions

Conceptualization, D.D.; methodology, D.D. and J.D.; software, D.D.; validation, J.D. and R.K.; formal analysis, R.K.; investigation, D.D.; writing—original draft preparation, D.D. and R.K.; visualization, J.D. All authors have read and agreed to the published version of the manuscript.

Funding

This article was supported by research grants VEGA 1/0431/21 Research of light-technical parameters in production hall using digital ergonomics tools and KEGA 028TUKE-4/2021 Transfer of new knowledge from the field of production technologies into teaching of technology-oriented subjects for the current needs of Slovak industry.

Institutional Review Board Statement

Not applicable.

Informed Consent Statement

Not applicable.

Data Availability Statement

Not applicable.

Conflicts of Interest

The authors declare no conflict of interest.

References

  1. Zhang, Y.; Wu, X.; Gao, J.; Chen, J.; Xv, X. Simulation and ergonomic evaluation of welders’ standing posture using Jack software. Int. J. Environ. Res. Public Health 2019, 16, 4354. [Google Scholar] [CrossRef] [PubMed]
  2. Cort, J.A.; Devries, D. Accuracy of Postures Predicted Using a Digital Human Model during Four Manual Exertion Tasks, and Implications for Ergonomic Assessments. IISE Trans. Occup. Ergon. Hum. Factors 2019, 7, 43–58. [Google Scholar] [CrossRef]
  3. Hanson, L. Integration of Simulation and Manufacturing Engineering Software-Allowing Work Place Optimization Based on Time and Ergonomic Parameters. In Proceedings of the 6th International Digital Human Modeling Symposium DHM2020, Skovde, Sweden, 31 August–2 September 2020; Volume 11, pp. 342–347. [Google Scholar]
  4. Högberg, D.; Castro, P.R.; Mårdberg, P.; Delfs, N.; Nurbo, P.; Fragoso, P.; Andersson, L.; Brolin, E.; Hanson, L. DHM based test procedure concept for proactive ergonomics assessments in the vehicle interior design process. Congr. Int. Ergon. Assoc. 2018, 822, 314–323. [Google Scholar]
  5. Pascual, A.I.; Högberg, D.; Lämkull, D.; Luque, E.P.; Syberfeldt, A.; Hanson, L. Optimization of productivity and worker well-being by using a multi-objective optimization framework. IISE Trans. Occup. Ergon. Hum. Factors 2021, 9, 143–153. [Google Scholar] [CrossRef]
  6. Grobelny, J.; Michalski, R. Preventing work-related musculoskeletal disorders in manufacturing by digital human modeling. Int. J. Environ. Res. Public Health 2020, 17, 8676. [Google Scholar] [CrossRef]
  7. Woźniak, K. Perception of traffic noise and protection measures by people living along the road. In Proceedings of the 5th International Conference on Road and Rail Infrastructure, Zadar, Croatia, 17–19 May 2018; pp. 1187–1193. [Google Scholar]
  8. Han, L.M.; Haron, Z.; Yahya, K.; Bakar, S.A.; Dimon, M.N. A stochastic simulation framework for the prediction of strategic noise mapping and occupational noise exposure using the random walk approach. PLoS ONE 2015, 10, e0120667. [Google Scholar] [CrossRef][Green Version]
  9. Čekan, P.; Rusko, M.; Il’ko, J.; Pietrucha, D. Elimination of Excessive Noise at the Open Office Workplace. Res. Pap. Fac. Mater. Sci. Technol. Trnava 2019, 27, 175–185. [Google Scholar] [CrossRef]
  10. Lim, M.H.; Lee, Y.L.; Lee, F.W.; Heng, G.C. Strategic noise mapping prediction for a rubber manufacturing factory in Malaysia. E3S Web Conf. 2018, 65, 05019. [Google Scholar] [CrossRef]
  11. Rabeharivelo, R.; Kavraz, M.; Aygün, C. Thermal comfort in classrooms considering a traditional wind tower in Trabzon through simulation. Build. Simul. 2022, 15, 401–418. [Google Scholar] [CrossRef]
  12. Elhadary, M.I.; Alzahrani, A.M.Y.; Aly, R.M.; Elboshy, B. A comparative study for forced ventilation systems in industrial buildings to improve the workers’ thermal comfort. Sustainability 2021, 13, 10267. [Google Scholar] [CrossRef]
  13. Park, H.-S.; Kim, S.-H.; Choi, C.-H.; Park, B.-S.; Yoon, J.-S. Simulation of an Operator’s External Dose Using Computer Graphics. In Proceedings of the 2008 International Conference on Smart Manufacturing Application, Goyang, Korea, 9–11 April 2008; pp. 481–485. [Google Scholar]
  14. Putra, J.C.P. A study of thermal comfort and occupant satisfaction in office room. Procedia Eng. 2017, 170, 240–247. [Google Scholar] [CrossRef]
  15. Rizzuto, M.A.; Sonne, M.W.; Vignais, N.; Keir, P.J. Evaluation of a virtual reality head mounted display as a tool for posture assessment in digital human modelling software. Appl. Ergon. 2019, 79, 1–8. [Google Scholar] [CrossRef]
  16. Grandi, F.; Peruzzini, M.; Zanni, L.; Pellicciari, M. An Automatic Procedure Based on Virtual Ergonomic Analysis to Promote Human-Centric Manufacturing. Procedia Manuf. 2019, 38, 488–496. [Google Scholar]
  17. Geiger, A.; Brandenburg, E.; Stark, R. Natural Virtual Reality User Interface to Define Assembly Sequences for Digital Human Models. Appl. Syst. Innov. 2020, 3, 15. [Google Scholar] [CrossRef]
  18. Ahmed, S.; Irshad, L.; Demirel, H.O.; Tumer, I.Y. A Comparison between Virtual Reality and Digital Human Modeling for Proactive Ergonomic Design. In Lecture Notes in Computer Science (Including Subseries Lecture Notes in Artificial Intelligence and Lecture Notes in Bioinformatics); LNCS; Springer: Berlin/Heidelberg, Germany, 2019; Volume 11581, pp. 3–21. [Google Scholar]
  19. Caputo, F.; Greco, A.; D’Amato, E.; Notaro, I.; Spada, S. On the Use of Virtual Reality for a Human-Centered Workplace Design. Procedia Struct. Integr. 2018, 8, 297–308. [Google Scholar] [CrossRef]
  20. Barkokebas, R.D.; Ritter, C.; Li, X.; Al-Hussein, M. Application of Virtual Reality to Perform Ergonomic Risk Assessment in Industrialized Construction: Experiment Design. In Construction Research Congress 2020: Safety, Workforce, and Education; American Society of Civil Engineers: Reston, VA, USA, 2020. [Google Scholar]
  21. Tlach, V.; Kuric, I.; Ságová, Z.; Zajačko, I. Collaborative assembly task realization using selected type of a human-robot interaction. Transp. Res. Proc. 2019, 40, 541–547. [Google Scholar] [CrossRef]
  22. Kocisko, M.; Teliskova, M.; Baron, P.; Zajac, J. An integrated working environment using advanced augmented reality techniques. In Proceedings of the 4th International Conference on Industrial Engineering and Applications (ICIEA), Nagoya, Japan, 21–23 April 2017; pp. 279–283. [Google Scholar]
  23. Trebuna, P.; Petriková, A.; Pekarcikova, M. Influence of physical factors of working environment on worker’s performance from ergonomic point of view. Acta Simulatio 2017, 3, 1–9. [Google Scholar]
  24. Panda, A.; Dyadyura, K. Materials and methods of research. Monit. Anal. Manuf. Process. Automot. Prod. 2019, 3, 19–31. [Google Scholar]
  25. Baloch, A.A.; Shaikh, P.H.; Shaikh, F.; Leghari, Z.H.; Mirjat, N.H.; Uqaili, M.A. Simulation tools application for artificial lighting in buildings. Renew. Sust. Energ. Rev. 2018, 82, 3007–3026. [Google Scholar] [CrossRef]
  26. Saito, K.; Ishigami, Y.; Goto, E. Evaluation of the Light Environment of a Plant Factory with Artificial Light by Using an Optical Simulation. Agronomy 2020, 10, 1663. [Google Scholar] [CrossRef]
  27. Acosta, I.; Muñoz, C.; Esquivias, P.; Moreno, D.; Navarro, J. Analysis of the accuracy of the sky component calculation in daylighting simulation programs. Sol. Energy 2015, 119, 54–67. [Google Scholar] [CrossRef]
  28. Ochoa, C.E.; Aries, M.B.C.; Hensen, J.L.M. State of the art in lighting simulation for building science: A literature review. J. Build. Perform. Simul. 2012, 5, 209–233. [Google Scholar] [CrossRef]
  29. Zauner, J.; Plischke, H. Designing Light for Night Shift Workers: Application of Nonvisual Lighting Design Principles in an Industrial Production Line. Appl. Sci. 2021, 11, 10896. [Google Scholar] [CrossRef]
  30. Davoodi, A.; Johansson, P.; Aries, M. The Implementation of Visual Comfort Evaluation in the Evidence-Based Design Process Using Lighting Simulation. Appl. Sci. 2021, 11, 4982. [Google Scholar] [CrossRef]
  31. Pracki, P. The impact of room and luminaire characteristics on general lighting in interiors. Bull. Pol. Acad. Sci. Tech. Sci. 2020, 68, 447–457. [Google Scholar] [CrossRef]
  32. Pawlak, A. Comparison of results of computer simulations for the escape route lighting installation. Light Eng. 2016, 24, 91–98. [Google Scholar]
  33. Estes, J.M.; Schreppler, S.; Newsom, T. Daylighting prediction software: Comparative analysis and application. In Proceedings of the 14th Symposium on Improving Building Systems in Hot and Humid Climates, Tyler, TX, USA, 17–20 May 2004; pp. 259–267. [Google Scholar]
  34. Merghani, A.H.; Bahloul, S.A. Comparison between radiance daylight simulation software results and Measured on-site data. J. Build. Road Res. 2017, 20, 1–22. [Google Scholar]
  35. Ahmad, A.; Kumar, A.; Prakash, O.; Aman, A. Daylight availability assessment and the application of energy simulation software—A literature review. Mater. Sci. Energy Technol. 2020, 3, 679–689. [Google Scholar] [CrossRef]
  36. Son, A.-R.; Kim, I.-T.; Choi, A.-S.; Sung, M.-K. Analysis of UGR Values and Results of UGR Calculations in Commercial Lighting Simulation Software. LEUKOS 2015, 11, 141–154. [Google Scholar] [CrossRef]
  37. Yu, X.; Su, Y.; Chen, X. Application of RELUX simulation to investigate energy saving potential from daylighting in a new educational building in UK. Energy Build. 2014, 74, 191–202. [Google Scholar] [CrossRef]
  38. Pawlak, A.; Zaremba, K. Tolerances in computer simulations of indirect lighting systems. In Proceedings of the Conference of the International-Commission-on-Illumination on Lighting Quality and Energy Efficiency, Hangzhou, China, 19–21 September 2012; pp. 608–613. [Google Scholar]
  39. Carli, R.; Dotoli, M. A dynamic programming approach for the decentralized control of energy retrofit in large-scale street lighting systems. IEEE Trans. Autom. Sci. Eng. 2020, 17, 1140–1157. [Google Scholar] [CrossRef]
  40. Beccali, M.; Bonomolo, M.; Brano, V.L.; Ciulla, G.; Di Dio, V.; Massaro, F.; Favuzza, S. Energy saving and user satisfaction for a new advanced public lighting system. Energy Convers. Manag. 2019, 195, 943–957. [Google Scholar] [CrossRef]
  41. Dupláková, D.; Flimel, M.; Duplák, J.; Hatala, M.; Radchenko, S.; Botko, F. Ergonomic rationalization of lighting in the working environment. Part I.: Proposal of rationalization algorithm for lighting redesign. Int. J. Ind. Ergon. 2019, 71, 92–102. [Google Scholar] [CrossRef]
  42. Dolnikova, E.; Katunsky, D. Hodnotenie Svetelnej Pohody pri Kombinovanom Osvetl’ovacom Systéme v Priemyselných Halách. (Visual Comfort Assessment with a Mixed Lighting System in Industrial Halls); Technical University of Kosice: Kosice, Slovakia, 2017; p. 144. (In Slovak) [Google Scholar]
  43. STN 73 0580-1; Daylighting in Buildings. Slovak Office of Standards, Metrology and Testing: Bratislava, Slovakia, 1987.
  44. STN 73 0540-2; Thermal Performance of Buildings and Components. Thermal Protection of Buildings. Part 2: Functional Requirements. Slovak Office of Standards, Metrology and Testing: Bratislava, Slovakia, 2012.
Figure 1. The procedure of work with simulation models.
Figure 1. The procedure of work with simulation models.
Ijerph 19 07275 g001
Figure 2. 3D model of an empty room.
Figure 2. 3D model of an empty room.
Ijerph 19 07275 g002
Figure 3. Schematic presentation of new building openings position.
Figure 3. Schematic presentation of new building openings position.
Ijerph 19 07275 g003
Figure 4. 3D model of new building openings position.
Figure 4. 3D model of new building openings position.
Ijerph 19 07275 g004
Figure 5. Calculation area settings for daylighting.
Figure 5. Calculation area settings for daylighting.
Ijerph 19 07275 g005
Figure 6. Isophote of daylighting in the assembly room.
Figure 6. Isophote of daylighting in the assembly room.
Ijerph 19 07275 g006
Figure 7. Schematic representation of the location of the artificial lighting system (a), and the 3D model of the location of the artificial lighting system (b).
Figure 7. Schematic representation of the location of the artificial lighting system (a), and the 3D model of the location of the artificial lighting system (b).
Ijerph 19 07275 g007
Figure 8. Calculation area settings for artificial lighting.
Figure 8. Calculation area settings for artificial lighting.
Ijerph 19 07275 g008
Figure 9. Isophote of artificial lighting in calculating the area.
Figure 9. Isophote of artificial lighting in calculating the area.
Ijerph 19 07275 g009
Figure 10. Isophote of artificial lighting in the assembly room.
Figure 10. Isophote of artificial lighting in the assembly room.
Ijerph 19 07275 g010
Figure 11. Brightness distribution of artificial lighting in the assembly room.
Figure 11. Brightness distribution of artificial lighting in the assembly room.
Ijerph 19 07275 g011
Figure 12. 3D model of mixed lighting in the assembly room.
Figure 12. 3D model of mixed lighting in the assembly room.
Ijerph 19 07275 g012
Figure 13. Isophote of mixed lighting.
Figure 13. Isophote of mixed lighting.
Ijerph 19 07275 g013
Figure 14. Graphical evaluation of daylighting parameters.
Figure 14. Graphical evaluation of daylighting parameters.
Ijerph 19 07275 g014
Figure 15. Graphical evaluation of artificial parameters.
Figure 15. Graphical evaluation of artificial parameters.
Ijerph 19 07275 g015
Figure 16. Graphical evaluation of mixed parameters.
Figure 16. Graphical evaluation of mixed parameters.
Ijerph 19 07275 g016
Table 1. Technical specification of proposed building openings.
Table 1. Technical specification of proposed building openings.
Number of Chambers5
Construction depth (mm)70
Window fittingsSigenia-Aubi Titan AF with an anticorrosive coat
Type of glazingtriple pane insulated glass 4/18/4/18/4 (Ag)
Thermal transmittance of glass Ug (W/m2 K)0.7
Thermal transmittance of frame Uf (W/m2 K)1.2
Thermal transmittance of indeed the whole window Uw (W/m2 K)0.95
Material and colour of framedouble-sided white plastic
Windows reflection (%)14.8
Refractive index1.5
Table 2. The new design of the assembly room: results of daylighting simulation.
Table 2. The new design of the assembly room: results of daylighting simulation.
Monitored ParametersAchieved Values of Monitored Parameters
Daylight factor (%)1.586
Uniformity of illumination (–)0.30
Table 3. Technical specification of the proposed artificial lighting.
Table 3. Technical specification of the proposed artificial lighting.
Efficiency (%)86.88
Light flux of light (lm)6646
Power (W)118
Colour rendering index (Ra)85
The chromaticity of light (K)6500
Table 4. The new design of the assembly room, results of the artificial lighting simulation.
Table 4. The new design of the assembly room, results of the artificial lighting simulation.
Monitored ParametersAchieved Values of Monitored Parameters
Average illumination intensity (lx)423
Minimum illumination intensity (lx)189
Maximum illumination intensity (lx)729
Uniformity of illumination (–)0.45
UGR (–)24.4
Table 5. The new design of the assembly room, results of the artificial lighting simulation.
Table 5. The new design of the assembly room, results of the artificial lighting simulation.
Monitored ParameterAchieved Values of Monitored Parameters
Average illumination intensity (lx)619
Minimum illumination intensity (lx)253
Maximum illumination intensity (lx)1217
Uniformity of illumination (–)0.41
UGR (–)24.4
Daylight factor (%)1.569
Table 6. Technical evaluation of lighting design.
Table 6. Technical evaluation of lighting design.
Illumination TypeMonitored ParametersAchieved Values of Monitored ParametersRequired Values of Monitored ParametersDifference between Achieved and Required Values
(Absolute Value)
daylightDaylight factor (%)1.5861.50.086
Uniformity of illumination (–)0.300.20.1
artificialAverage illumination intensity (lx)423300123
Uniformity of illumination (–)0.450.50.05
UGR (–)24.4250.6
mixedAverage illumination intensity (lx)619300319
Uniformity of lighting (–)0.410.50.09
UGR (–)24.4250.6
Daylight factor (%)1.5691.50.069
Publisher’s Note: MDPI stays neutral with regard to jurisdictional claims in published maps and institutional affiliations.

Share and Cite

MDPI and ACS Style

Duplakova, D.; Duplak, J.; Kascak, R. Ergonomic Rationalization Sequence of Digital Lighting Design in the Working Environment. Int. J. Environ. Res. Public Health 2022, 19, 7275. https://doi.org/10.3390/ijerph19127275

AMA Style

Duplakova D, Duplak J, Kascak R. Ergonomic Rationalization Sequence of Digital Lighting Design in the Working Environment. International Journal of Environmental Research and Public Health. 2022; 19(12):7275. https://doi.org/10.3390/ijerph19127275

Chicago/Turabian Style

Duplakova, Darina, Jan Duplak, and Rastislav Kascak. 2022. "Ergonomic Rationalization Sequence of Digital Lighting Design in the Working Environment" International Journal of Environmental Research and Public Health 19, no. 12: 7275. https://doi.org/10.3390/ijerph19127275

APA Style

Duplakova, D., Duplak, J., & Kascak, R. (2022). Ergonomic Rationalization Sequence of Digital Lighting Design in the Working Environment. International Journal of Environmental Research and Public Health, 19(12), 7275. https://doi.org/10.3390/ijerph19127275

Note that from the first issue of 2016, this journal uses article numbers instead of page numbers. See further details here.

Article Metrics

Back to TopTop