Comparison of Brazilian Social Interest Housing Projects Considering Sustainability
Abstract
:1. Introduction
2. Methodology
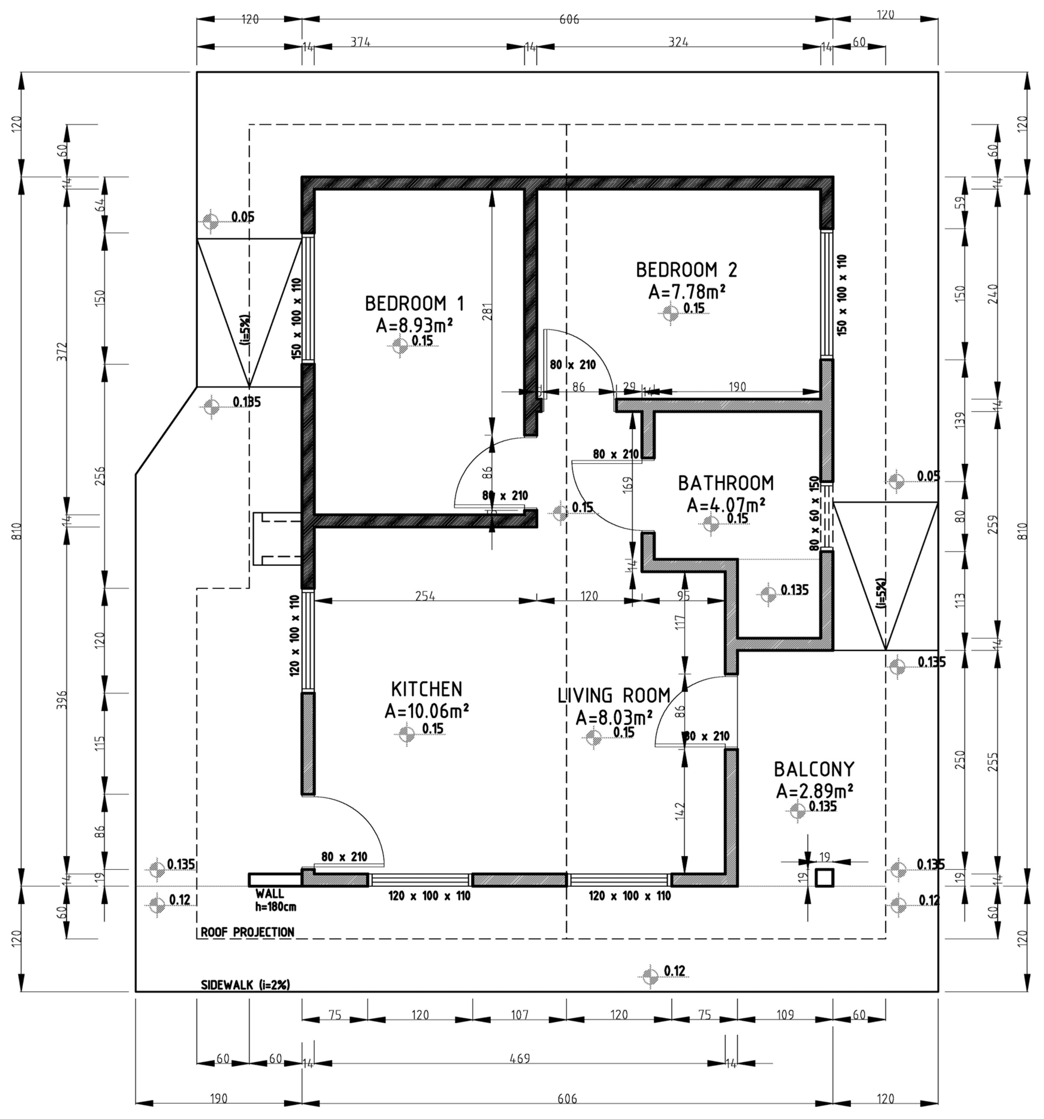
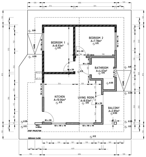
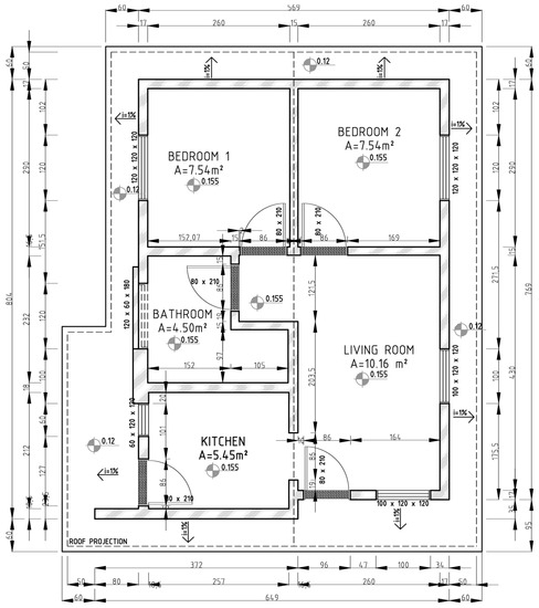
2.1. Selection of Projects
2.2. Sustainability Assessment
2.2.1. Conducting the Life Cycle Assessment
- (a)
- Definition of the objective and scope
- (b)
- Life Cycle Inventory Analysis
- (c)
- Life Cycle Impact Assessment
- (d)
- Interpretation
2.2.2. Conducting the Social Life Cycle Assessment
- (a)
- Objective and scope
- (b)
- Social Inventory of the Life Cycle
- (c)
- Fair wage potential
- : Fair wage potential (expressed in for process in the life cycle of a product in a defined location/sector;
- : Real wages (R$ per month) paid to workers employed in process over a year;
- : Real working time (hours per week) of workers employed in process (including vacation and unpaid overtime);
- : Fair wage related characterization factor (month per R$) for process at the defined location/sector.
- : Minimum living wage (R$ per month) that must be paid to allow an appropriate standard of living for an individual or family in the respective place/sector;
- : Contracted working time (hours per week) to perform the process ; and
- : Factor of inequality (in percentage) at the place/sector that performed the process .
- (d)
- Weighted fair wage potential
- : Sector;
- : Number of sectors;
- : WFWP of process of a product in a location/sector;
- : FWP of process of a product in a location/sector; and
- : Sector equivalent mass of material for process of a product in a location/sector.
2.2.3. Conducting the Life Cycle Cost
2.2.4. Application of AHP
3. Results and Discussion
3.1. Life Cycle Assessment
3.1.1. Life Cycle Inventory
3.1.2. Life Cycle Impact Assessment and Interpretation
3.2. Social Life Cycle Assessment
3.2.1. Fair Wage Potential
3.2.2. Weighted Fair Wage Potential
3.2.3. Life Cycle Cost
3.3. Sustainability Assessment
4. Conclusions
- -
- In the environmental dimension: the results obtained through the ReCiPe 2016 method showed that the concrete masonry project generates less impact and minor environmental damage when compared to the ceramic masonry project.
- -
- In the social dimension: the potential fair wage showed differences between the wages in the construction sectors. The weighted fair wage potential showed that the concrete masonry project had better social characteristics than the ceramic masonry project during the analysed period.
- -
- In the economic dimension: the results pointed out that from the point of view of the total cost per square meter, concrete masonry is, economically, more attractive. The ceramic masonry project is economically more advantageous in the infrastructure and wall phases during the construction phase. The concrete masonry project is more economically advantageous in the superstructure, roofing, and finishes phases.
- -
- Relating the results of the environmental, social, and economic dimensions through the combination of LCT and AHP: it was found that the concrete masonry project presents a combination of more sustainable characteristics than the ceramic masonry project in the majority of the results.
Author Contributions
Funding
Conflicts of Interest
References
- de Lassio, J.; França, J.; Espirito Santo, K.; Haddad, A. Case Study: LCA Methodology Applied to Materials Management in a Brazilian Residential Construction Site. J. Eng. 2016, 8513293. [Google Scholar] [CrossRef] [Green Version]
- Gonçalves de Lassio, J.G.; Naked Haddad, A. Life cycle assessment of building construction materials: Case study for a housing complex. Rev. Construcción 2016, 15, 69–77. [Google Scholar] [CrossRef]
- Bilec, M.M.; Ries, R.J.; Matthews, H.S. Life-Cycle Assessment Modeling of Construction Processes for Buildings. J. Infrastruct. Syst. 2010, 16, 199–205. [Google Scholar] [CrossRef]
- Allouhi, A.; El Fouih, Y.; Kousksou, T.; Jamil, A.; Zeraouli, Y.; Mourad, Y. Energy consumption and efficiency in buildings: Current status and future trends. J. Clean. Prod. 2015, 109, 118–130. [Google Scholar] [CrossRef]
- IPCC. Climate Change 2014: Mitigation of Climate Change. Contribution of Working Group III to the Fifth Assessment Report of the Intergovernmental Panel on Climate Change; Edenhofer, O., Pichs-Madruga, R., Sokona, Y., Farahani, E., Kadner, S., Seyboth, K., Adler, A., Baum, I., Brunner, S., Eickemeier, P., et al., Eds.; Cambridge University Press: Cambridge, UK; New York, NY, USA, 2014. [Google Scholar]
- IPCC. Climate Change 2014: Synthesis Report. Contribution of Working Groups I, II and III to the Fifth Assessment Report of the Intergovernmental Panel on Climate Change; Core Writing Team, Pachauri, R.K., Meyer, L., Eds.; IPCC: Geneva, Switzerland, 2015; ISBN 9789291691432. [Google Scholar]
- GEA. Global Energy Assessment (GEA)—Toward a Sustainable Future; Johansson, T.B., Nakicenovic, N., Patwardhan, A., Gomez-Echeverri, L., Eds.; Cambridge University Press & International Institute for Applied Systems Analysis: Cambridge, UK; New York, NY, USA; Laxenburg, Austria, 2012; ISBN 9780511793677. [Google Scholar]
- Asif, M.; Muneer, T.; Kelley, R. Life cycle assessment: A case study of a dwelling home in Scotland. Build. Environ. 2007, 42, 1391–1394. [Google Scholar] [CrossRef]
- Cabeza, L.F.; Rincón, L.; Vilariño, V.; Pérez, G.; Castell, A. Life cycle assessment (LCA) and life cycle energy analysis (LCEA) of buildings and the building sector: A review. Renew. Sustain. Energy Rev. 2014, 29, 394–416. [Google Scholar] [CrossRef]
- Abd Rashid, A.; Idris, J.; Yusoff, S. Environmental Impact Analysis on Residential Building in Malaysia Using Life Cycle Assessment. Sustainability 2017, 9, 329. [Google Scholar] [CrossRef] [Green Version]
- Peuportier, B. Life Cycle Assessment applications in the building sector. Int. J. Environ. Technol. Manag. 2008, 9, 334. [Google Scholar] [CrossRef]
- Gervasio, H.; Dimova, S.; Pinto, A. Benchmarking the Life-Cycle Environmental Performance of Buildings. Sustainability 2018, 10, 1454. [Google Scholar] [CrossRef] [Green Version]
- Cuéllar-Franca, R.M.; Azapagic, A. Environmental impacts of the UK residential sector: Life cycle assessment of houses. Build. Environ. 2012, 54, 86–99. [Google Scholar] [CrossRef]
- Vieira Neto, J.; Farias Filho, J.R. De Sustainability in the civil construction industry: An exploratory study of life cycle analysis methods. Int. J. Environ. Technol. Manag. 2013, 16, 420. [Google Scholar] [CrossRef]
- Gong, Y.; Tae, S.; Suk, S.; Chae, C.; Ford, G.; Smith, M.E.; Steffen, R. Life Cycle Assessment Applied to Green Building Certification in South Korea. Procedia Eng. 2015, 118, 1309–1313. [Google Scholar] [CrossRef] [Green Version]
- Islam, R.; Nazifa, T.H.; Yuniarto, A.; Shanawaz Uddin, A.S.M.; Salmiati, S.; Shahid, S. An empirical study of construction and demolition waste generation and implication of recycling. Waste Manag. 2019, 95, 10–21. [Google Scholar] [CrossRef] [PubMed]
- Xiahou, X.; Tang, Y.; Yuan, J.; Chang, T.; Liu, P.; Li, Q. Evaluating Social Performance of Construction Projects: An Empirical Study. Sustainability 2018, 10, 2329. [Google Scholar] [CrossRef] [Green Version]
- Sierra, L.A.; Pellicer, E.; Yepes, V. Method for estimating the social sustainability of infrastructure projects. Environ. Impact Assess. Rev. 2017, 65, 41–53. [Google Scholar] [CrossRef] [Green Version]
- Danso, H. Dimensions and Indicators for Sustainable Construction Materials: A Review. Res. Dev. Mater. Sci. 2018, 3, 1–9. [Google Scholar] [CrossRef]
- Sala, S. Triple bottom line, sustainability and sustainability assessment, an overview. In Biofuels for a More Sustainable Future; Elsevier: Ispra, Italy, 2020; pp. 47–72. [Google Scholar]
- Plessis, C. Agenda 21 for Sustainable Construction in Developing Countries: A Discussion Document; CIB & UNEP-IETC, CSIR Building and Construction Technology: Pretoria, South Africa, 2002; ISBN 0798855401. [Google Scholar]
- Kofoworola, O.F.; Gheewala, S.H. Environmental life cycle assessment of a commercial office building in Thailand. Int. J. Life Cycle Assess. 2008, 13, 498–511. [Google Scholar] [CrossRef]
- Glass, J.; Dyer, T.; Georgopoulos, C.; Goodier, C.; Paine, K.; Parry, T.; Baumann, H.; Gluch, P. Future use of life-cycle assessment in civil engineering. Proc. Inst. Civ. Eng. Constr. Mater. 2013, 166, 204–212. [Google Scholar] [CrossRef] [Green Version]
- Zhao, X.; Zuo, J.; Wu, G.; Huang, C. A bibliometric review of green building research 2000–2016. Archit. Sci. Rev. 2019, 62, 74–88. [Google Scholar] [CrossRef]
- IBGE. Annual Report on Construction Industry. Available online: https://biblioteca.ibge.gov.br/visualizacao/periodicos/54/paic_2019_v29_informativo.pdf (accessed on 24 September 2021).
- DIEESE. Civil Construction and Workers: An Overview of Recent Years. Available online: https://www.dieese.org.br/estudosepesquisas/2020/estPesq95trabconstrucaocivil/index.html?page=1 (accessed on 24 September 2021).
- IBGE. Family Budget Survey: 2017–2018: Expenditure Profile in Brazil: Selected indicators/IBGE, Coordination of Work and Income; IBGE, Ed.; IBGE: Rio de Janeiro, Brazil, 2020; ISBN 9786587201276. [Google Scholar]
- Fundação João Pinheiro. Housing Deficit in Brazil 2016–2019. Available online: http://fjp.mg.gov.br/wp-content/uploads/2021/04/21.05_Relatorio-Deficit-Habitacional-no-Brasil-2016-2019-v2.0.pdf (accessed on 24 September 2021).
- Fundação João Pinheiro. Inadequacy of Homes in Brazil. Available online: http://fjp.mg.gov.br/wp-content/uploads/2021/03/14.05_Relatorio-Inadequacao-de-Domicilios-no-Brasil-2016-2019-versao-2.0_compressed.pdf (accessed on 24 September 2021).
- Giannetti, B.F.; Demétrio, J.C.C.; Agostinho, F.; Almeida, C.M.V.B.; Liu, G. Towards more sustainable social housing projects: Recognizing the importance of using local resources. Build. Environ. 2018, 127, 187–203. [Google Scholar] [CrossRef]
- de Barba Junior, D.J.; de Oliveira Gomes, J.; de Lacerda, J.F.S.B. Sustainability assessment in conventional and industrialized systems built in Brazil. Procedia CIRP 2015, 29, 144–149. [Google Scholar] [CrossRef]
- Al-Ghamdi, S.G.; Bilec, M.M. Green Building Rating Systems and Whole-Building Life Cycle Assessment: Comparative Study of the Existing Assessment Tools. J. Archit. Eng. 2017, 23, 04016015. [Google Scholar] [CrossRef]
- Figueiredo, K.; Pierott, R.; Hammad, A.W.A.; Haddad, A. Sustainable material choice for construction projects: A Life Cycle Sustainability Assessment framework based on BIM and Fuzzy-AHP. Build. Environ. 2021, 196, 107805. [Google Scholar] [CrossRef]
- Luo, L.; Chen, Y. Carbon emission energy management analysis of LCA-Based fabricated building construction. Sustain. Comput. Inform. Syst. 2020, 27, 100405. [Google Scholar] [CrossRef]
- Uceda-Rodríguez, M.; Moreno-Maroto, J.M.; Cobo-Ceacero, C.J.; López-García, A.B.; Cotes-Palomino, T.; Martínez-García, C. Comparative Life Cycle Assessment of Lightweight Aggregates Made from Waste—Applying the Circular Economy. Appl. Sci. 2022, 12, 1917. [Google Scholar] [CrossRef]
- Goh, C.S.; Chong, H.-Y.; Jack, L.; Mohd Faris, A.F. Revisiting triple bottom line within the context of sustainable construction: A systematic review. J. Clean. Prod. 2020, 252, 119884. [Google Scholar] [CrossRef]
- Raslanas, S.; Stasiukynas, A.; Jurgelaitytė, E. Sustainability Assessment Studies of Recreational Buildings. Procedia Eng. 2013, 57, 929–937. [Google Scholar] [CrossRef] [Green Version]
- OECD. OECD Better Life Index. Available online: https://www.oecdbetterlifeindex.org/pt/quesitos/housing-pt/ (accessed on 24 September 2021).
- Ghadimi, P.; Yusof, N.; Saman, M.; Asadi, M. Methodologies for Measuring Sustainability of Product/Process. Pertanika J. Sci. Technol. 2013, 21, 303–325. [Google Scholar]
- Buytaert, V.; Muys, B.; Devriendt, N.; Pelkmans, L.; Kretzschmar, J.G.; Samson, R. Towards integrated sustainability assessment for energetic use of biomass: A state of the art evaluation of assessment tools. Renew. Sustain. Energy Rev. 2011, 15, 3918–3933. [Google Scholar] [CrossRef]
- Remmen, A.; Jensen, A.A.; Frydendal, J. Life Cycle Management—A Business Guide to Sustainability; UNEP DTIE: Paris, France, 2007; ISBN 9789280727722. [Google Scholar]
- Caretta, A.; Bua, L.; Gambaro, C. An application of the Life Cycle Thinking: Green refinery enhancements. Fuel 2021, 305, 121559. [Google Scholar] [CrossRef]
- Andrews, E.S.; Barthel, L.-P.; Tabea, B.; Benoît, C.; Ciroth, A.; Cucuzzella, C.; Gensch, C.-O.; Hébert, J.; Lesage, P.; Manhart, A.; et al. Guidelines for Social Life Cycle Assessment of Products; Benoît, C., Mazijn, B., Eds.; UNEP/SETAC Life Cycle Initiative: Paris, France, 2009; ISBN 9789280730210. [Google Scholar]
- Hossain, M.U.; Poon, C.S.; Dong, Y.H.; Lo, I.M.C.; Cheng, J.C.P. Development of social sustainability assessment method and a comparative case study on assessing recycled construction materials. Int. J. Life Cycle Assess. 2018, 23, 1654–1674. [Google Scholar] [CrossRef]
- Allacker, K.; de Souza, D.M.; Sala, S. Land use impact assessment in the construction sector: An analysis of LCIA models and case study application. Int. J. Life Cycle Assess. 2014, 19, 1799–1809. [Google Scholar] [CrossRef] [Green Version]
- Asdrubali, F.; Baldassarri, C.; Fthenakis, V. Life cycle analysis in the construction sector: Guiding the optimization of conventional Italian buildings. Energy Build. 2013, 64, 73–89. [Google Scholar] [CrossRef]
- Dossche, C.; Boel, V.; De Corte, W. Use of Life Cycle Assessments in the Construction Sector: Critical Review. Procedia Eng. 2017, 171, 302–311. [Google Scholar] [CrossRef]
- Asif, M.; Dehwah, A.; Ashraf, F.; Khan, H.; Shaukat, M.; Hassan, M. Life Cycle Assessment of a Three-Bedroom House in Saudi Arabia. Environments 2017, 4, 52. [Google Scholar] [CrossRef] [Green Version]
- ISO 14040; Environmental Management—Life Cycle Assessment—Principles and Framework. ISO: Geneva, Switzerland, 2006; p. 20.
- ISO 14044; Environmental Management—Life Cycle Assessment—Requirements and Guidelines. ISO: Geneva, Switzerland, 2006; p. 46.
- Bork, C.A.S.; Junior, D.J.D.B.; Oliveira Gomes, J. Social Life Cycle Assessment of three Companies of the Furniture Sector. Procedia CIRP 2015, 29, 150–155. [Google Scholar] [CrossRef]
- Clift, M. Life-cycle costing in the construction sector. Ind. Environ. 2003, 26, 37–41. [Google Scholar]
- Invidiata, A.; Lavagna, M.; Ghisi, E. Selecting design strategies using multi-criteria decision making to improve the sustainability of buildings. Build. Environ. 2018, 139, 58–68. [Google Scholar] [CrossRef]
- García-Segura, T.; Penadés-Plà, V.; Yepes, V. Sustainable bridge design by metamodel-assisted multi-objective optimization and decision-making under uncertainty. J. Clean. Prod. 2018, 202, 904–915. [Google Scholar] [CrossRef]
- Torres-Machí, C.; Chamorro, A.; Pellicer, E.; Yepes, V.; Videla, C. Sustainable pavement management: Integrating economic, technical, and environmental aspects in decision making. Transp. Res. Rec. 2015, 2523, 56–63. [Google Scholar] [CrossRef]
- Bianchi, P.F.; Yepes, V.; Vitorio, P.C., Jr.; Kripka, M. Study of Alternatives for the Design of Sustainable Low-Income Housing in Brazil. Sustainability 2021, 13, 4757. [Google Scholar] [CrossRef]
- Waris, M.; Panigrahi, S.; Mengal, A.; Soomro, M.I.; Mirjat, N.H.; Ullah, M.; Azlan, Z.S.; Khan, A. An Application of Analytic Hierarchy Process (AHP) for Sustainable Procurement of Construction Equipment: Multicriteria-Based Decision Framework for Malaysia. Math. Probl. Eng. 2019, 2019, 1–20. [Google Scholar] [CrossRef]
- Inti, S.; Tandon, V. Application of Fuzzy Preference–Analytic Hierarchy Process Logic in Evaluating Sustainability of Transportation Infrastructure Requiring Multicriteria Decision Making. J. Infrastruct. Syst. 2017, 23, 04017014. [Google Scholar] [CrossRef]
- Neugebauer, S.; Emara, Y.; Hellerström, C.; Finkbeiner, M. Calculation of Fair wage potentials along products’ life cycle—Introduction of a new midpoint impact category for social life cycle assessment. J. Clean. Prod. 2017, 143, 1221–1232. [Google Scholar] [CrossRef]
- Vitorio Junior, P.C.; Kripka, M. Fair wage potential as a tool for social assessment in building projects. Eng. Constr. Archit. Manag. 2020; ahead-of-print. [Google Scholar] [CrossRef]
- Canchumani, G.A.L. Óleos lubrificantes Usados: Um Estudo de Caso da Avaliação de Ciclo de Vida do Sistema de Rerrefino no Brasil. 2013. 157 f. Tese (Doutorado em Planejamento Energético); Universidade Federal do Rio de Janeiro, Pós-Graduação em Planejamento Energético: Rio de Janeiro, Brazil, 2013. [Google Scholar]
- Mirabella, N.; Röck, M.; Ruschi Mendes Saade, M.; Spirinckx, C.; Bosmans, M.; Allacker, K.; Passer, A. Strategies to Improve the Energy Performance of Buildings: A Review of Their Life Cycle Impact. Buildings 2018, 8, 105. [Google Scholar] [CrossRef] [Green Version]
- Homod, R.Z.; Almusaed, A.; Almssad, A.; Jaafar, M.K.; Goodarzi, M.; Sahari, K.S.M. Effect of different building envelope materials on thermal comfort and air-conditioning energy savings: A case study in Basra city, Iraq. J. Energy Storage 2021, 34, 101975. [Google Scholar] [CrossRef]
- Almusaed, A.; Almssad, A.; Homod, R.Z.; Yitmen, I. Environmental Profile on Building Material Passports for Hot Climates. Sustainability 2020, 12, 3720. [Google Scholar] [CrossRef]
- Martínez-Muñoz, D.; Martí, J.V.; Yepes, V. Social Impact Assessment Comparison of Composite and Concrete Bridge Alternatives. Sustainability 2022, 14, 5186. [Google Scholar] [CrossRef]






| Ceramic Masonry Project | Concrete Masonry Project | |
|---|---|---|
| Foundation | Concrete drill piles; beams in ceramic masonry | Ceramic masonry |
| Structure | Ceramic masonry roof beams; ceramic masonry pillars and precast slabs | Precast ceramic masonry slabs; concrete blocks masonry (14 cm × 19 cm × 39 cm); cavities grout-filled; aluminium and wood frames |
| Walls | Clay blocks (9 cm × 14 cm × 19 cm) laid with lime mortar; aluminium and wood frame | |
| Roof structure | Wood | Steel |
| Finishes | Internal: cement and lime mortar; PVA mass; latex paint; ceramic skirting boards External: cement and lime mortar; PVC lining; acrylic paint | Internal: cement mortar and lime mortar; plaster cast; ceramic coating; latex paint, ceramic baseboards External: cement mortar and lime mortar; ceramic tile and acrylic paint |
| Materials | SimaPro Process |
|---|---|
| Steel (kg/m2) | Reinforcing steel {GLO}|market for|Cut-off, U |
| Concrete (m3/m2) | Concrete, 20 MPa {GLO}|market for|Cut-off, U |
| Wood (m3/m2) | Sawn wood, Parana pine from sustainable forest management, kiln dried {GLO}|market for|Cut-off, U |
| Clay brick–massive (kg/m2) | Clay brick {GLO}|market for|Cut-off, U |
| Lime mortar (kg/m2) | Lime mortar {GLO}|market for|Cut-off, U |
| Cement mortar (kg/m2) | Cement mortar {RoW}|market for cement mortar|Cut-off, U |
| Clay brick–hollow (kg/m2) | Clay brick {GLO}|market for|Cut-off, U |
| Glass (kg/m2) | Flat glass, uncoated {GLO}|market for|Cut-off, U |
| Paint (kg/m2) | Alkyd paint, white, without solvent, in 60% solution state {GLO}|market for|Cut-off, U |
| Roof tile (kg/m2) | Roof tile {GLO}|market for|Cut-off, U |
| Ceramic tile (kg/m2) | Ceramic tile {GLO}|market for|Cut-off, U |
| Light mortar (kg/m2) | Light mortar {GLO}|market for|Cut-off, U |
| Concrete block (kg/m2) | Concrete block {GLO}|market for|Cut-off, U |
| Cover plaster (kg/m2) | Cover plaster, mineral {GLO}|market for|Cut-off, U |
| Adhesive mortar (kg/m2) | Adhesive mortar {GLO}|market for|Cut-off, U |
| Natural Stone (kg/m2) | Natural stone plate, polished {GLO}|market for|Cut-off, U |
| Gravel–crushed (kg/m2) | Gravel, crushed {RoW}|market for gravel, crushed|Cut-off, U |
| PVC (kg/m2) | Polyvinylidenchloride, granulate {GLO}|market for|Cut-off, U |
| Bitumen adhesive (kg/m2) | Bitumen adhesive compound, hot {GLO}|market for|Cut-off, U |
| Aluminium window frame (m2/m2) | Window frame, aluminium, U = 1.6 W/m2K {GLO}|market for|Cut-off, U |
| Aluminium door frame (m2/m2) | Door, outer, wood-aluminium {GLO}|market for|Cut-off, U |
| Wood door frame (m2/m2) | Door, inner, wood {GLO}|market for|Cut-off, U |
| Acrylic filler (kg/m2) | Acrylic filler {GLO}|market for|Cut-off, U |
| Materials (kg/m2) | Sector |
|---|---|
| Wood | Timber industry |
| Wood door | |
| Steel | Steel industry |
| Aluminium window | |
| Aluminium door | |
| Concrete | Chemical and non-metallic inputs |
| Clay brick | |
| Flat glass | |
| Paint | |
| Tile | |
| Mortars | |
| Concrete block | |
| Cover plaster | |
| Natural stone plate | |
| Gravel |
| Year | Minimum Wage (Brazil, USD) | Gini Index |
|---|---|---|
| 2002 | 40.00 | 0.589 |
| 2003 | 48.00 | 0.583 |
| 2004 | 52.00 | 0.572 |
| 2005 | 60.00 | 0.570 |
| 2006 | 72.00 | 0.563 |
| 2007 | 76.00 | 0.556 |
| 2008 | 83.00 | 0.546 |
| 2009 | 93.00 | 0.543 |
| 2011 | 109.00 | 0.531 |
| 2012 | 124.40 | 0.530 |
| 2013 | 135.60 | 0.527 |
| 2014 | 144.80 | 0.518 |
| 2015 | 157.60 | 0.491 |
| Timber Industry | Steel Industry | Chemical and Non-Metallic Inputs | |
|---|---|---|---|
| Ceramic masonry project | 1.878% | 0.812% | 97.311% |
| Concrete masonry project | 0.283% | 1.250% | 98.466% |
| Materials | Ceramic Masonry Project | Concrete Masonry Project |
|---|---|---|
| Steel (kg/m2) | 6.37 | 17.16 |
| Concrete (m3/m2) | 0.28 | 0.25 |
| Wood (m3/m2) | 0.16 | 0.01 |
| Clay brick–massive (kg/m2) | 36.92 | 13.03 |
| Lime mortar (kg/m2) | 474.07 | 281.79 |
| Cement mortar (kg/m2) | 102.68 | 83.21 |
| Clay brick–hollow (kg/m2) | 115.34 | 0.00 |
| Glass (kg/m2) | 0.10 | 0.00 |
| Paint (kg/m2) | 2.08 | 2.45 |
| Roof tile (kg/m2) | 61.92 | 97.93 |
| Ceramic tile (kg/m2) | 25.38 | 21.89 |
| Light mortar (kg/m2) | 0.00 | 75.30 |
| Concrete block (kg/m2) | 0.00 | 447.03 |
| Cover plaster (kg/m2) | 0.00 | 52.23 |
| Adhesive mortar (kg/m2) | 7.76 | 6.76 |
| Natural Stone (kg/m2) | 2.13 | 0.48 |
| Gravel–crushed (kg/m2) | 95.42 | 143.58 |
| PVC (kg/m2) | 6.05 | 0.20 |
| Bitumen adhesive (kg/m2) | 0.23 | 0.00 |
| Aluminium window frame (m2/m2) | 0.04 | 0.10 |
| Aluminium door frame (m2/m2) | 0.02 | 0.08 |
| Wood door frame (m2/m2) | 0.21 | 0.11 |
| Acrylic filler (kg/m2) | 1.85 | 0.00 |
| Damage Category | Unit | Ceramic Masonry | Concrete Masonry |
|---|---|---|---|
| Damages to human health | HH (DALY) | 0.0022 | 0.0014 |
| Damage to ecosystems | ED (species.yr) | 8.09 × 10−6 | 3.11 × 10−6 |
| Damage to resources | RA (USD2013) | 48.48 | 32.63 |
| Cultural Perspective | Environmental Dimension | Social Dimension | Economic Dimension |
|---|---|---|---|
| Hierarchical | 40% | 40% | 20% |
| Egalitarian | 50% | 30% | 20% |
| Individualistic | 25% | 55% | 20% |
| Equal weights | 33.33% | 33.33% | 33.33% |
| Damages to Human Health (Daly) | Damages to Ecosystems (Species.yr) | Damages to Resources (USD 2013) | Weighted Fair Wage Potential | Total Cost (USD/m2) | |
|---|---|---|---|---|---|
| Ceramic masonry project | 0.0022 | 8.09 × 10−6 | 48.49 | 2.608 | 230.52 |
| Concrete masonry project | 0.0015 | 3.11 × 10−6 | 32.63 | 2.621 | 221.53 |
| Damages to Human Health (Daly) | Damages to Ecosystems (Species.yr) | Damages to Resources (USD 2013) | Weighted Fair Wage Potential | Total Cost (USD/m2) | Decision Vector | |
|---|---|---|---|---|---|---|
| Criteria vector | 16.00% | 16.00% | 8.00% | 40.00% | 20.00% | |
| Ceramic masonry project | 40.01% | 27.73% | 40.23% | 49.87% | 49.01% | 43.81% |
| Concrete masonry project | 59.99% | 72.27% | 59.77% | 50.13% | 50.99% | 56.19% |
| Damages to Human Health (Daly) | Damages to Ecosystems (Species.yr) | Damages to Resources (USD 2013) | Weighted Fair Wage Potential | Total Cost (USD/m2) | |
|---|---|---|---|---|---|
| Ceramic masonry project | 0.036 | 3.54166 × 10−5 | 49.27 | 2.608 | 230.52 |
| Concrete masonry project | 0.038 | 2.79975 × 10−5 | 33.31 | 2.621 | 221.53 |
| Damages to Human Health (Daly) | Damages to Ecosystems (Species.yr) | Damages to Resources (USD 2013) | Weighted Fair Wage Potential | Total Cost (USD/m2) | Decision Vector | |
|---|---|---|---|---|---|---|
| Criteria vector | 15.00% | 25.00% | 10.00% | 30.00% | 20.00% | |
| Ceramic masonry project | 50.76% | 44.15% | 40.34% | 49.87% | 49.01% | 47.45% |
| Concrete masonry project | 49.24% | 55.85% | 59.66% | 50.13% | 50.99% | 52.55% |
| Damages to Human Health (Daly) | Damages to Ecosystems (Species.yr) | Damages to Resources (USD 2013) | Weighted Fair Wage Potential | Total Cost (USD/m2) | |
|---|---|---|---|---|---|
| Ceramic masonry project | 0.0010 | 6.21693 × 10−6 | 47.58 | 2.608 | 230.52 |
| Concrete masonry project | 0.0004 | 1.59988 × 10−6 | 31.72 | 2.621 | 221.53 |
| Damages to Human Health (Daly) | Damages to Ecosystems (Species.yr) | Damages to Resources (USD 2013) | Weighted Fair Wage Potential | Total Cost (USD/m2) | Decision Vector | |
|---|---|---|---|---|---|---|
| Criteria vector | 13.75% | 6.25% | 5.00% | 55.00% | 20.00% | |
| Ceramic masonry project | 29.54% | 20.47% | 40.00% | 49.87% | 49.01% | 44.57% |
| Concrete masonry project | 70.46% | 79.53% | 60.00% | 50.13% | 50.99% | 55.43% |
| Damages to Human Health (Daly) | Damages to Ecosystems (Species.yr) | Damages to Resources (USD 2013) | Weighted Fair Wage Potential | Total Cost (USD/m2) | |
|---|---|---|---|---|---|
| Ceramic masonry project | 0.0022 | 8.09 × 10−6 | 48.49 | 2.608 | 230.52 |
| Concrete masonry project | 0.0015 | 3.11 × 10−6 | 32.63 | 2.621 | 221.53 |
| Damages to Human Health (Daly) | Damages to Ecosystems (Species.yr) | Damages to Resources (USD 2013) | Weighted Fair Wage Potential | Total Cost (USD/m2) | Decision Vector | |
|---|---|---|---|---|---|---|
| Criteria vector | 11.11% | 11.11% | 11.11% | 33.33% | 33.33% | |
| Ceramic masonry project | 40.01% | 27.73% | 40.23% | 49.87% | 49.01% | 44.96% |
| Concrete masonry project | 59.99% | 72.27% | 59.77% | 50.13% | 50.99% | 55.04% |
| Perspective | Ceramic Masonry Project | Concrete Masonry Project | More Sustainable Project |
|---|---|---|---|
| Hierarchical | 43.81% | 56.19% | Concrete masonry project |
| Egalitarian | 47.45% | 52.55% | Concrete masonry project |
| Individualist | 44.57% | 55.43% | Concrete masonry project |
| Equal weights | 44.96% | 55.04% | Concrete masonry project |
Publisher’s Note: MDPI stays neutral with regard to jurisdictional claims in published maps and institutional affiliations. |
© 2022 by the authors. Licensee MDPI, Basel, Switzerland. This article is an open access article distributed under the terms and conditions of the Creative Commons Attribution (CC BY) license (https://creativecommons.org/licenses/by/4.0/).
Share and Cite
Vitorio Junior, P.C.; Yepes, V.; Kripka, M. Comparison of Brazilian Social Interest Housing Projects Considering Sustainability. Int. J. Environ. Res. Public Health 2022, 19, 6213. https://doi.org/10.3390/ijerph19106213
Vitorio Junior PC, Yepes V, Kripka M. Comparison of Brazilian Social Interest Housing Projects Considering Sustainability. International Journal of Environmental Research and Public Health. 2022; 19(10):6213. https://doi.org/10.3390/ijerph19106213
Chicago/Turabian StyleVitorio Junior, Paulo Cezar, Víctor Yepes, and Moacir Kripka. 2022. "Comparison of Brazilian Social Interest Housing Projects Considering Sustainability" International Journal of Environmental Research and Public Health 19, no. 10: 6213. https://doi.org/10.3390/ijerph19106213
APA StyleVitorio Junior, P. C., Yepes, V., & Kripka, M. (2022). Comparison of Brazilian Social Interest Housing Projects Considering Sustainability. International Journal of Environmental Research and Public Health, 19(10), 6213. https://doi.org/10.3390/ijerph19106213

