Communication System Design for an Advanced Metering Infrastructure
Abstract
1. Introduction
2. Materials and Methods
2.1. Communication Network Design Process
- Smart Grid Application Requirements: The first step is to determine what applications and functionalities are required. Each application has different needs in terms of reliability, security, and performance that collectively comprise the quality of service requirements (QoS). In addition, the communication engineer should also consider physical constraints related to the terrain and device locations as well as the available budget.
- Network Traffic Estimation: The next step is to identify all sources of data traffic. Each source of data may have different sizes of packets, so it is necessary to list all possible data packet sizes and how frequent they are generated. The size of the data traffic depends on the information model of each application. Table 1 summarizes some of the main communication protocols for different smart grid applications. Once all the traffic data types, sizes, and sources are known then the total network traffic estimation is computed to determine the data rate and latency allowed.
- Physical and Logical Network Design: The third step is to determine the physical location of each ICT device. The maximum distance between the ICT devices and what type of physical barriers may exist between them influences the decision for the best communication technologies. The communication technology (or combination of technologies) is determined including the best location forming the topology of the communication network. References [12,13] provide a good summary of the main trade-offs between the commonly used communication technologies for smart grids.
- Network Design Validation: There are two approaches to validate a communication network. (i) First, by running actual experiments with real hardware in the physical location or in a location with similar features as the target location; or (ii) second, by running computer simulations and using communication models that give an approximation of real-world performances. Actual experiments are more accurate, but they are expensive and time-consuming so, usually, validation is done through computer simulations. Some of the communication network simulators mostly used for smart grid applications include the Network Simulator 3 (NS-3), OMNet++, and OPNET [14]. Each simulator has its advantages and disadvantages, but that discussion is beyond the scope of this paper. A thorough discussion on both the communication and power simulators commonly used for smart grid studies has been presented in Reference [1].
- Verification: The final step is to ensure that the network design meets the minimum application requirements (or specification) in terms of QoS. If the design does not meet the needs, then a redesign is done in order to meet the minimum application requirements.
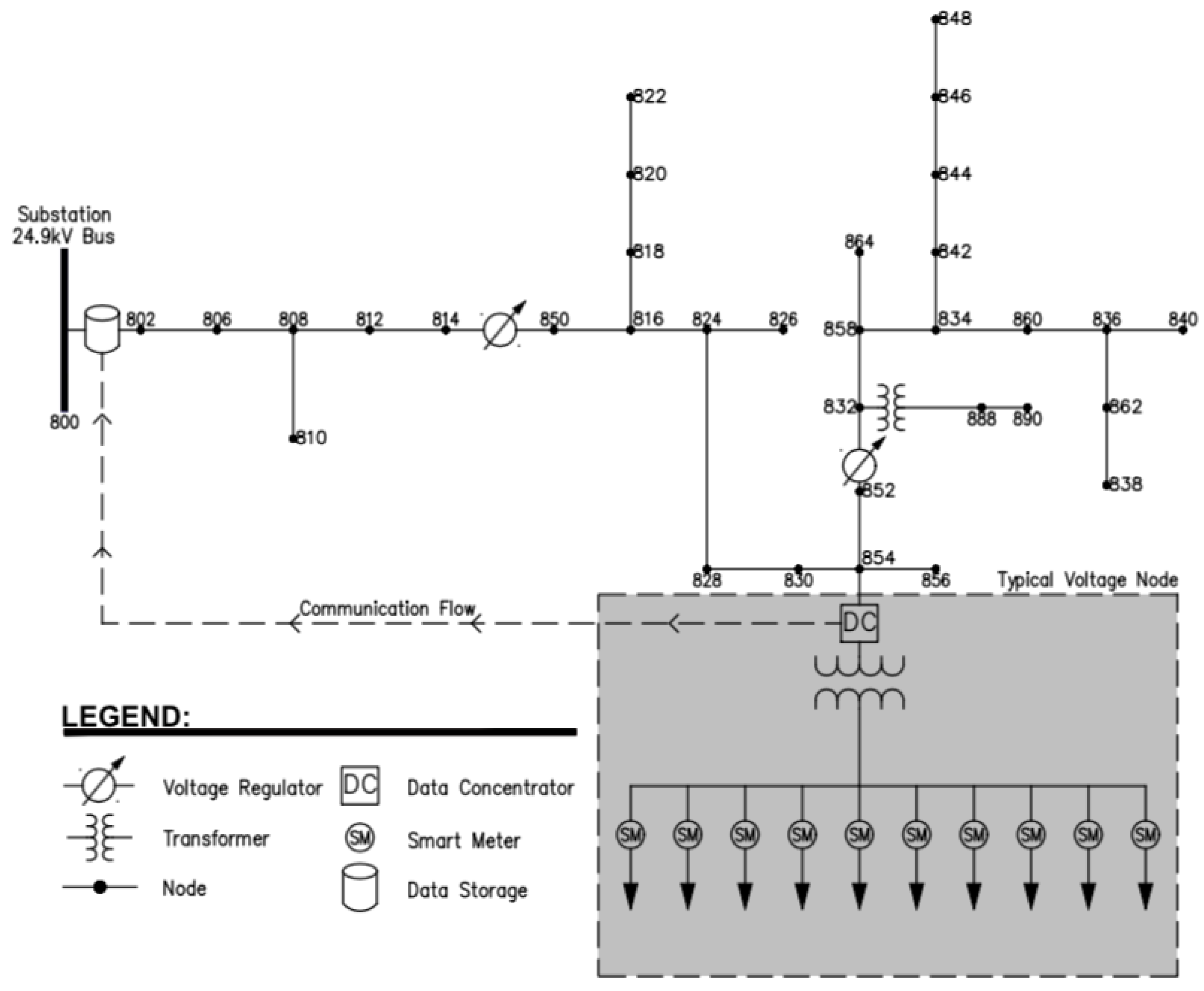
2.2. Case Study Details
2.2.1. AMI Application Requirements
2.2.2. AMI Network Traffic Estimation
2.2.3. AMI Communication Network Design—Choosing the ICT Technology
2.2.4. AMI Cyber Security
2.2.5. PLC Network System Modeling
3. Results
3.1. NS-3 Simulation Results
3.2. Numerical Analysis and Model Validation
4. Discussion and Conclusions
- Among all communication technologies applicable to modern power systems there is no one “best” technology. Each technology has its pros and cons and the communication engineer should look for the options that meet all the project requirements and the design criteria at minimum cost. Additionally, the ICT design could be a combination of two or more ICT technologies. This is usually the case for smart grids with large geographical areas and/or multiple applications.
- PLC communication has proven to be a cost-effective solution for this AMI application with scope for further scalability without changing the ICT network. The network design steps proposed here are generic and relevant regardless of the different project requirements that may be used for other smart grid applications.
- When there are multiple applications for a smart grid, it is necessary to assign different priorities to different applications. For instance, if an ICT network is being used for both AMI and tele-protection applications then the ICT network should prioritize all messages from tele-protection because it is a more critical application.
- The network traffic of a single smart meter in this study is 0.86 bits per second. When compared to other smart grid applications this traffic is considered very low. For instance, IEEE Std. C37.118.2 for synchrophasor data points that a phasor measurement unit (PMU) with 60 Hz sampling generates 23,040 bits per second which is much higher than a smart meter data rate. Based on those numbers more than 26,000 smart meters would be necessary to generate the same amount of data of a single PMU. Because of this reason, the authors believe that smart metering is not among the applications driving big data in power systems.
Author Contributions
Funding
Acknowledgments
Conflicts of Interest
References
- Mets, K.; Ojea, J.A.; Develder, C. Combining Power and Communication Network Simulation for Cost-Effective Smart Grid Analysis. IEEE Commun. Surv. Tutor. 2014, 16, 1771–1796. [Google Scholar] [CrossRef]
- Maxwell, J.C. A Treatise on Electricity and Magnetism, 3rd ed.; Oxford University Press: Clarendon, UK, 1892; pp. 68–73. [Google Scholar]
- Gungor, V.C.; Sahin, D.; Kocak, T.; Ergut, S.; Buccella, C.; Cecati, C.; Hancke, G.P. A Survey on Smart Grid Potential Applications and Communication Requirements. IEEE Trans. Ind. Informat. 2013, 9, 28–42. [Google Scholar] [CrossRef]
- Budka, K.C.; Deshpande, J.G.; Thottan, M. Communication Networks for Smart Grids, 1st ed.; Springer: London, UK, 2014. [Google Scholar]
- Yan, Y.; Qian, Y.; Sharif, H.; Tipper, D. A Survey on Smart Grid Communication Infrastructures: Motivations, Requirements and Challenges. IEEE Commun. Surv. Tutor. 2013, 15, 5–20. [Google Scholar] [CrossRef]
- Fang, X.; Misra, S.; Xue, D.; Yang, D. Smart Grid—The New and Improved Power Grid: A Survey. IEEE Commun. Surveys Tutor. 2012, 14, 944–980. [Google Scholar] [CrossRef]
- De-Carvalho, R.S.; Mohagheghi, S. Analyzing Impact of Communication Network Topologies on Reconfiguration of Networked Microgrids, Impact of Communication System on Smart Grid Reliability, Security and Operation. In Proceedings of the 2016 North American Power Symposium (NAPS), Denver, CO, USA, 18–20 September 2016; IEEE: Denver, CO, USA, 2016. [Google Scholar]
- Huh, J.; Otgonchimeg, S.; Seo, K. Advanced metering infrastructure design and test bed experiment using intelligent agents: Focusing on the PLC network base technology for Smart Grid system. J. Supercomput. 2016, 72, 1862–1877. [Google Scholar] [CrossRef]
- NS-3. Available online: https://www.nsnam.org/ (accessed on 9 March 2015).
- IEEE 34 Bus Test Feeder. Available online: http://ewh.ieee.org/soc/pes/dsacom/testfeeders/ (accessed on 23 January 2017).
- Aalamifar, F.; Schlogl, A.; Harris, D.; Lampe, L. Modelling Power Line Communication Using Network Simulator-3. In Proceedings of the 2013 IEEE Global Communications Conference (GLOBECOM), Atlanta, GA, USA, 9–13 December 2013; IEEE: Atlanta, GA, USA, 2013. [Google Scholar]
- Asbery, C.W.; Jiao, X.; Liao, Y. Implementation Guidance of Smart Grid Communication. In Proceedings of the 2016 North American Power Symposium (NAPS), Denver, CO, USA, 18–20 September 2016; IEEE: Denver, CO, USA, 2016. [Google Scholar]
- Kabalci, Y. A survey on smart metering and smart grid communication. Renew. Sustain. Energy Rev. 2016, 57, 302–318. [Google Scholar] [CrossRef]
- Vélez-Rivera, C.; Andrade, F.; Vélez-Rivera, C.; Andrade, F.; Arzuaga-Cruz, E.; Irizarry-Rivera, A. Gorilla: An Open Interface for Smart Agents and Real-Time Power Microgrid System Simulations. Inventions 2018, 3, 58. [Google Scholar] [CrossRef]
- Arifuzzaman, K.Y.M.; Wen, Z.; Zhang, D.; Sato, T. A Key Management Scheme for Secure Communications of Information Centric Advanced Metering Infrastructure in Smart Grid. IEEE Trans. Instrum. Meas. 2015, 64, 2072–2085. [Google Scholar] [CrossRef]
- Open Energy Information. Available online: https://openei.org/datasets/files/961/pub/EPLUS_TMY2_RESIDENTIAL_BASE/ (accessed on 17 July 2017).
- Cano, C.; Pittolo, A.; Malone, D.; Lampe, L.; Tonello, A.M.; Dabak, A.G. State of the Art in Power Line Communications: From the Applications to the Medium. IEEE J. Sel. Areas Commun. 2016, 34, 1935–1952. [Google Scholar] [CrossRef]
- McLaughlin, S.; Podkuiko, D.; Delozier, A.; Miadzvezhanka, S.; McDaniel, P. Multi-vendor Penetration Testing in the Advanced Metering Infrastructure. In Proceedings of the 26th Annual Computer Security Applications Conference (ACSAC 2010), Austin, TX, USA, 6–10 December 2010. [Google Scholar]
- Lee, S.; Huh, J. An Effective Security Measures for Nuclear Power Plant Using Big Data Analysis Approach. J. Supercomput. 2018, 1–28. [Google Scholar] [CrossRef]
- Mohassel, R.R.; Fung, A.; Mohammadi, F.; Raahemifar, K. A survey on Advanced Metering Infrastructure. Int. J. Electr. Power Energy Syst. 2014, 63, 473–484. [Google Scholar] [CrossRef]
- Kurose, J.F.; Ross, K.W. Computer Networking a Top-Down Approach, 6th ed.; Pearson: Boston, MA, USA, 2013. [Google Scholar]






| Application | Communication Protocols |
|---|---|
| Tele-Protection Relays | IEC 60834 or IEEE C37.236 |
| Substation Automation | IEC 61850 |
| Transmission Automation | IEC 60870-5 or DNP3 |
| Synchrophasors | IEEE C37.118.1 |
| AMI | IEC 61968 |
| Demand Response (DR) | IEC 61968 |
| DER Control | IEC 61850 |
| AMI Network Traffic Estimation | |
|---|---|
| Payload Size (PS) | 381 Bytes |
| PLC Overhead Size (OS) | 8 Bytes |
| Total Measurement Size | 389 Bytes |
| Number of Smart Meters (NDS) | 330 Units |
| Network Traffic Estimation | 128,370 Bytes per hour |
| Protocol Layer | Parameter | Value |
|---|---|---|
| Application | Packet Size | 381 Bytes |
| Overhead Size (PLC) | 8 Bytes | |
| Presentation | Encoding | UTF-8 (1 Byte/Char.) |
| Session | Not Using | - |
| Transport | Not Using | - |
| Network | Not Using | - |
| Data Link and MAC | Medium Access Control | CSMA/CA |
| Physical | Modulation Technique | BPSK |
| Chanel Bit Rate | 130 kbps | |
| Transmitted Power | 1 Watt | |
| Receiver Sensitivity | 100 mW | |
| Average Signal to Noise Ratio (SNR) | 5 dB |
| Result | Measured | Std. Requirement |
|---|---|---|
| Min. Delay | 0.02393 s | 2 s (max.) |
| Max. Delay | 0.9991 s | 2 s (max.) |
| Average Delay | 0.5 s | 2 s (max.) |
| Data Rate | 130 kbps | 56 kbps |
| Availability | 100% | 99.99% |
© 2018 by the authors. Licensee MDPI, Basel, Switzerland. This article is an open access article distributed under the terms and conditions of the Creative Commons Attribution (CC BY) license (http://creativecommons.org/licenses/by/4.0/).
Share and Cite
Siqueira de Carvalho, R.; Kumar Sen, P.; Nag Velaga, Y.; Feksa Ramos, L.; Neves Canha, L. Communication System Design for an Advanced Metering Infrastructure. Sensors 2018, 18, 3734. https://doi.org/10.3390/s18113734
Siqueira de Carvalho R, Kumar Sen P, Nag Velaga Y, Feksa Ramos L, Neves Canha L. Communication System Design for an Advanced Metering Infrastructure. Sensors. 2018; 18(11):3734. https://doi.org/10.3390/s18113734
Chicago/Turabian StyleSiqueira de Carvalho, Ricardo, Pankaj Kumar Sen, Yaswanth Nag Velaga, Lucas Feksa Ramos, and Luciane Neves Canha. 2018. "Communication System Design for an Advanced Metering Infrastructure" Sensors 18, no. 11: 3734. https://doi.org/10.3390/s18113734
APA StyleSiqueira de Carvalho, R., Kumar Sen, P., Nag Velaga, Y., Feksa Ramos, L., & Neves Canha, L. (2018). Communication System Design for an Advanced Metering Infrastructure. Sensors, 18(11), 3734. https://doi.org/10.3390/s18113734

