Abstract
Ted Cullinan’s (1931–2019) work for Olivetti is complex and fascinating: his mixed-function buildings in Belfast, Dundee, Carlisle and Derby are unique and astonishing artefacts, also if almost unknown to the broader architecture audience. The purpose of this article is to reassemble the phases of this brief but extremely incisive collaboration between Cullinan, James Stirling and the Italian company. From his first Olivetti project, shared with “Big Jim” Stirling in Haslemere—a refurbishment of an Edwardian pre-existence converted into a residence for students and technicians—to the design for Dundee, Carlisle, Belfast and Derby, the impact of Cullinan’s pre-sustainable ideas is palpable. We find these ideas in the elegance of the relationship between building and landscape, in the social agenda, but also in the representativeness of the iconic roofs and in the materials. His work exhibits an architectural versatility that has allowed the buildings to keep intact their essential characteristics, despite their subsequent destinies. Re-reading Cullinan in relation to Olivetti’s buildings, therefore, is two-fold: on the one hand, to reconsider the English architect among the ‘creators’ of the Olivetti image, and on the other to underline how Cullinan was a fundamental interpreter of the ideas of unity, between architecture and industrial design, in a unique phase of the British technological history of the 1970s.
1. Introduction
In his long and distinguished career as an architect, Edward “Ted” Cullinan, author, among others of the Fountains Abbey Visitor Centre (1992), the celebrated Weald and Downland Gridshell (2002), and the Maggie’s Centre in Newcastle (2013), has been able to foresee many of the aesthetic, organizational and social changes that have characterized the architectural debate in the late 1990s and early 2000s [1].
His pre-sustainable approach, far from the schematizations of sustainability certifications, was above all the plastic representation of an ethical dimension of architecture, a search for aesthetic values that was not separated from both the dimension of work within the practice and the search for an affordable architecture, aware of the scarcity of materials.
In this article, we will portray the evolution of the projects, with a double purpose, on the one hand to give Cullinan his place among the great architects who worked for Olivetti between the 1940s and 1970s; on the other hand, to clarify how the project for offices and laboratories is the result of a long phase of experimentation, criticism and re-elaboration that started with Branksome Hilders, or the Haslemere’s project, which was shared with James Stirling, until the Olivetti branches in UK (Figure 1).
Figure 1.
Cullinan Studio, Olivetti Branch, Workplace Interior, Original Photo. Courtesy and credits of ©Cullinan Studio.
We can divide the recent history of Olivetti’s architecture (between 1934 and 1978) into three main phases, the first, “pioneering”, completely “Italian” with the offices and factories built between Ivrea and Pozzuoli by Figini and Pollini, Luigi Cosenza, Eduardo Vittoria, BBPR, a second phase of expansion, almost worldwide, and the third with the return to the origins, in a moment of crisis, with the buildings by Cappai/Mainardis and Gino Valle, back in Ivrea [2].
The other main buildings of the second phase were built by Louis Kahn in the United States, Kenzo Tange in Japan and Egon Eiermann in West Germany. Kahn and Tange were giants in the use of reinforced concrete. Eiermann, the functionalist, was author of the Kaiser–Wilhelm–Gedächtniskirche or “the hollow tooth,” as the Berliners call it.
Following the death of the great owner Adriano Olivetti in a sleeping car between Arona and Switzerland in 1960, the Olivetti company’s vision had been halfway between innovation, a risky strategy at the time, and referencing the socio-political lesson of the late manager. We know that that phase ultimately culminated in a failure in the 80s, but in the 1970s, Olivetti’s vision was still the main pillar and the strength of the company.
Jim Stirling and Edward “Ted” Cullinan are the last architects of the international phase, although they are not the most well-known in the Italian panorama. Ted Cullinan is perhaps the most “Olivetti-an” of the foreign architects chosen for the non-Italian offices of the Ivrea company. But let us take a step back.
2. Olivetti ‘70
In the 1970s, Olivetti was about to face its “identity crisis”. The electronics business was the future, but Italy, advanced from a mechanical point of view, was behind in IT and electronics. Olivetti, therefore, decided to exploit its prestige to open several foreign offices in more technologically advanced countries, and from this moment on, we can observe the first difference between the pre and post Adriano Olivetti: the Ivrea manager treated his architects as if they were a family asset, capricious and competing children or brothers [2] (p. 170), after his death, this familiar scheme will not be maintained, opting for a more-typical client-architect scheme.
The 1959 acquisition of Underwood, one of the largest US manufacturers of typewriting machines, marks a different approach to the company’s industrial policy. While maintaining the community and social philosophies semi-unaltered, the financial aspect nevertheless acquired more importance. After 1960, Renzo Zorzi’s role, at this juncture, was, therefore, to lead the company from a glorious past to an uncertain future, without losing the strong and by now acquired identity of the Ivrea-based company. The situation in England was slightly different. Olivetti already had a reference market, mainly linked to typewriters and their maintenance, so the new buildings were more a confirmation of a presence (Figure 2).
Figure 2.
Vintage Ad: Olivetti Source: the Sunday Times Magazine, 8 December 1968. From Flickr, user: https://www.flickr.com/photos/jbcurio/ (accessed on 20 March 2022).
It is therefore necessary to talk about the different phases of Olivetti’s architecture but also to distinguish Olivetti (the firm) from Adriano Olivetti.
The latter still has a great charm, linked both to its political views, with the criticism of fascism and the socio-economical entrepreneurial model, but also to its role as an urban planner, with the creation of the INU (National Institute of Urban Planning, Rome, Italy) and with the push for the realization of the Ivrea complex: this charm is what Carlo Olmo [3] calls the “rhetoric of falling in love” and which permeates many of the semi-hagiographic texts on Adriano Olivetti.
The critical acknowledgement of this “falling in love” must not, however, prevent us from recognizing the fundamentally positive role of Olivetti in the Italian industrial culture of the 1940s and 1950s, and indeed allows us to grasp the different nuances between industrialists who made apparently similar choices; the comparison is with Vitra and what happened after the 1981 fire. The culture, and of course the time, is clearly different, but where Olivetti tried to export a model, or a working method, through spectacular and pedigreed architectures, Rolf Fehlbaum tried to create an architectural Wunderkammer, with an aristocratic intellectualistic approach.
After Adriano’s death, the managers, led by Renzo Zorzi, looked abroad with a more timid and safe mentality using established and well-known practices.
For the magnificent Japanese technical centre and warehouses in Yokohama in 1970, Kenzo Tange chose a purely brutalist style, with some high-tech details such as the aeronautical design of the warehouse vents. Kahn, in the Olivetti–Underwood of Harrisburg PA, used a rigorous, iterative, and modular language with 72 elements in prefabricated concrete—a massive and monumental factory, characterized by impressive natural lighting, designed by a young Renzo Piano. The creation of this building became the plastic representation of this Olivetti duality, on the one hand positively projected to create a model of a conscious community based on human dignity, and on the other the need to expand the market in an aggressive way—for example, by opening factories in highly industrial but also poorly unionized areas [4] (p. 114).
We must therefore observe an opposition between the political Olivetti (and above all the Italian Olivetti) and the foreign experiences, in which the more distinctly industrial aspect was winning above competitors [5].
Eiermann’s towers in Frankfurt in 1972 (Figure 3) are large rigorous tulips of white concrete and grey metal, connected by a low adjoining building; the two towers are used as offices, canteen, training centre and houses for guests and staff [6]. Additionally, in this case, the very high quality of Eiermann’s work explicitly declares a substantial difference compared to the Italian cases of Ivrea and Pozzuoli. The building becomes a symbol, a metaphorical expression of a technical and productive capacity, but it almost completely loses its community dimension, reduced to a few planimetric solutions in the common areas.
Figure 3.
Egon Eiermann, Olivetti Buildings in Frankfurt, (1968–1972). Wikimedia Commons Source: Excerpt from de:Bild:Buerostadt Frankfurt Niederrad April2006.jpg Original Upoader: (Alle Versionen dieser Datei löschen) (Aktuell) 21:37, 5 November 2006. Dietmar Gilj (accessed on 20 March 2022).
Despite the functional differences, these three buildings tell the same architectural story. In Germany a large services centre, in Japan a warehouse and in America a factory: they are all concrete, massive, complex structures, and are rigid alternatives to the landscape linked to the modernist lesson of the building-world.
Among them was an outsider, or rather two: “Big Jim” Stirling, and of course Edward “Ted” Cullinan.
In this paper, we will analyze the five buildings, dividing them into two main parts: the Haslemere project, done by Cullinan and Stirling, and the Office Projects around the UK, done by Cullinan (together with Michael Chassay, Julian Bicknell, Julyan Wickham and Giles Oliver). This will allow us first to analyze Cullinan’s aesthetic approach to a restoration and extension project of an Edwardian building, on which Stirling intervenes with a flamboyant controversial addition, and then to analyze how Haslemere’s experience is reflected in the autonomous projects, in which the search for an expressive figurativeness loses the character of colorful plastic playfulness and focuses on a more efficient approach to the interior space, without renouncing to ironic details and pleasant variations.
Our analysis will include a review of the technical and critical literature produced in the 1970s on the subject and a contemporary review of the buildings, to observe how they have been modified and the critical acclaim they have received over time.
3. The Haslemere Dissonances
After the experience in Yokohama in 1970, Kenzo Tange recommended James Stirling to Olivetti management for the English training centre in Haslemere [7] (p. 777) [8]. The Scottish architect was a rising star: he was internationally recognized and appreciated and had just finished the History Faculty Library of Cambridge (1968). However, unlike the others, he was not yet considered a “master”; certainly, he was an influential architect, but not (yet) at the same level of Tange, Kahn or Eiermann. The project, unlike the other experiences described, is an unusual intervention for Olivetti—and Stirling, too: Branksome Hilders was an Edwardian building to be rearranged for offices, education purposes and residences. Stirling was interested in the project but decided to entrust part of the work (the renovation of the existing part) to the young Ted Cullinan (Figure 4), keeping the construction of a new wing for himself [9]. The addition of Stirling is certainly a novel piece, with materials being innovative for the time (fiberglass and plastics) and with sinuous shapes almost certainly derived [8] from the Olivetti design aesthetic developed by people such as Mario Bellini and Ettore Sottsass.
Figure 4.
Cullinan Studio, Main Entrance to the extension of Olivetti Training School Haslemere, England, UK. Courtesy and credits of ©Cullinan Studio.
Cullinan, on the other hand, worked on the existing part, making the transition be-tween Edward John May’s building and the addition of Stirling in an extremely delicate and intelligent way. The work is neither very “visible” nor easy. Stirling’s and May’s languages and materials are in open contradiction. Stirling’s plastic denies May’s brick; between the two was Cullinan’s job.
Reyner Banham is perhaps the most famous of the critics to analyse the two interventions [10]: where Stirling’s is jovial but cumbersome (Banham dismissed it as “gimmicky” [9] and would strongly criticize Olivetti for being interested—in his opinion—more in a logic of self-representation rather than in the inner quality of architecture), that by Cullinan is sober and linear, devoid of the volcanic enthusiasm of the master, deadpan in the search for functional solutions [10].
In Haslemere, Stirling’s volumes are generous, opulent, almost hypertrophic, and Cullinan is called to mediate working on an envelope that remains Edwardian, but finally transforming the shapes of the ramps, railings and doors. These are tapered and lavish, while the colour remains neutral, white or natural wood. The passage to the Stirling area takes place through a choreographic ramp, a Borrominian device that creates two false perspectives in two different directions and towards the two languages, which are not in contrast with each other, but in “similarity of mood [which] pervades the architecture of all the public spaces in the centre” [10] (p. 200).
The entire system, the external and internal ramps, the multispace room (with the “Toy” of the rotating wall: this cross-shaped wall closes off the hall from circulation and rises up into the cruciform room enclosure, which was originally glazed, in order to see this “baroque device” go up and down. The multispace room is defined as a “Toy” by Robin Nicholson, in an interview for a documentary called “Prospective Olivetti” by Daniele Maffei and Serena Mignani [11]), right up to the classrooms, is conceived as a chaotic event, a refined dissonance, an “order in detail” and “turmoil as a whole,” as Abbot Laugier wished for the Enlightenment-era city. Much has been said on the use of GRP (glass reinforced polyester), on the joints, and on the colours (in the original project, Lime Green and “Hope” Violet) [12], but the work on the details of the ramp remains extraordinary as underlined by Jencks (cited in [9], p. 78): not only the Spada Gallery of Borromini, but also the scissor ramps of Le Corbusier’s architectural promenade and the Paxton glazing system. Banham writes: “It is difficult to find the exact word… but l remember Rudolf Wittkower using the word “festive” to describe the swags of carved greenery between the capitals of Inigo Jones’s Banqueting House in Whitehall “as if hung there for a festival”. Something of that quality comes from the clear bright colors of Haslemere” [10] (p. 200).
The entire building is exactly this: a dissonant, cheerful and erudite symphony, full of glimpses, points of view, innovations. This dissonance has been pointed to by Charles Jencks in different terms: “Also it is inevitable that mixed metaphors will generate major and minor interpretations lo be held in the mind at the same time. Most architects (M.S.) (Modern Subcodes—note of author) first saw the wing as a train/bus and liked it, but they acknowledged unpleasant overtones; many laymen (T.S.) (Traditional Subcodes—note of author) might invert this relationship. In any case, semantic subcodes in architecture are subject to quicker shifts than, say, phonetic or kinship codes” [13] (p. 934).
4. Four Prototypes for an Ethical Dimension of Work
The Haslemere project is the first of a series of projects for England which would be the last architectural interventions abroad by Olivetti that, after the last English experiences, will focus exclusively on the new buildings in Ivrea.
In 1971, Carlo Alhadeff, with the consent of James Stirling (focused with Michael Wilford on the design of the well-known but never-built Olivetti Headquarters in Milton Keynes), entrusted Cullinan with the construction of four separate offices for sale and repair of typewriters (Cullinan in [11]). The offices, still existent, although some of them show alterations, are in Belfast, Dundee, Carlisle and Derby, where Olivetti offices and laboratories were already present, but in the city centres. In these operations, Cullinan’s skillful ability in creating recognizable structures without the heavy burden of monumentality emerges.
Haslemere’s deadpan pragmatism suddenly gives way to an elegant and anti-formal idealism. In Cullinan’s words, the roof is yellow not only for the Olivetti corporate branding, but to establish an optimistic and warm relationship with the territory (except in Belfast, where yellow, tending towards orange, was replaced by a more politically acceptable grey). Cullinan’s idealism in the four branches is the same as the considerations of the architects of the first generation of the “Olivetti Architects”. The large, naturally lit areas on the ground floor of the branches, used as workshops for the repair of typewriters, follow the same language as Ivrea or Pozzuoli. The choice to move the offices outside the cities into productive areas, through “the architecture of architects”, tells of the same story, but on a different scale: no more of Kahn’s great American factory, or the huge swirling concrete-and-steel goblets of Frankfurt, with the details of the architecture of the yachts on the façade: the four interventions are elements of urban industrial design on a human scale, elements for an ethical dimension of work, developed after a rigorous analysis of the needs of the company and local specificities [14], as for instance the position, the view and the cheapness of sites.
In [15], the brief is explained as follows: “Olivetti’s existing branches in Belfast, Carlisle Derby and Dundee were all in small parts of inflexible buildings in the city centres. In each of these cities sites were available for new buildings either on the edge of the old city or on new industrial estates and Olivetti bought them.
So the first need was established: for a building method that could flex to use, to best advantage, sites of varying shapes and sizes.
An Olivetti branch contains· a store, a workshop, a group of technicians who work outside the building, three groups of salesmen, a technical manager, a branch manager and administration. We found these various groups flailing around in arbitrarily allocated spaces without the possibility of either adapting within the branch or expanding beyond it. So the second need was established: for a building that could flex within itself and grow simply” [15] (p. 217).
The four projects all follow the same typology: the low-rise courtyard building; they are indeed interrupted, the lot is somehow unfinished, built for the needs of the moment but designed to be completed as needs change.
The planimetric result is an open, spacious courtyard, with a geometric extrusion within this suspended space, awaiting a spatial conclusion. Cullinan’s sketches show a severe planimetric approach, in which the most critical points, the corners in the attic, are used as small storage spaces, while the main structure appears spacious but domestic (Figure 5a).

Figure 5.
(a) Cullinan Studio, Olivetti Branches, Study for the upper floor, section and plan, and (b) Ted Cullinan, Sequence of Construction. Courtesy and credits of ©Cullinan Studio.
Inside the courtyard, the geometric extrusion creates corners to contain the stairs, services and storage areas.
The planimetric system of the first floor, with the distinctions due to the size of the different lots, is always roughly similar: an external band of 4 m wide (In Figure 5a: “A”) for the workbenches, an intermediate band of 2 m for the small storage areas (In Figure 5a: “B”) that do not they need direct light and an internal band of 2 m wide for walking and observing the courtyard (In Figure 5a: “C”).
In section, all the serving areas, from car parks to mechanical systems, from warehouses to toilets, are located on the ground floor, keeping the upper floor free for an uninterrupted and continuous workspace. The particular section, which recalls a rotated simplified bay window, allows direct light from above, but also the observation of life at ground level, thus avoiding the alienation effect due to the light from above. The movable partitions and the wooden interiors generate a naval interior, a space for single but not solitary work, communitarian but not noisy (Figure 5b).
The roof also acts as a screen towards street noise, and protects from disturbance, while towards the inside of the courtyard the roof is flat, and opens onto the green: “It is glossy and soft on inner courtyard face, hard and private on outer” [16].
The base is a large concrete table covering the ground floor, with a steel grid and ply trusses. The large, prefabricated plywood panels, in glued Finnish birch, allow for excellent mechanical resistance, limited weight and good resistance to fire, due to the carbonization phenomenon of only the external surfaces of the panel [17].
The details of quantities, measures and costs are reported in [16] (p. 1568) and in Table 1.
Table 1.
Comparative Summary. Reprinted with permission from ref. [16]. Copyright 1973 Architects’ Journal.
The buildings were all sold during the crisis of the late 1970s and the company restructuring of the 1980s. Today, the four buildings have maintained, albeit with some differences, the same visual impact of the 1970s.
The Belfast building (Figure 6), the only one of the four built in a quiet residential suburb, has remained largely similar to the original building, although a new building has been added to the original lot. The roof, originally the only one of the four that was non-yellow, remained gray with tiles and the wooden partitions were painted red. Many of the typical details of Cullinan, such as the chain drip, have been replaced by plastic pipes, and the greenery has practically disappeared from the project, but from the street it is still possible to observe the clerestory of the inner courtyard.
Figure 6.
Olivetti Branch—Belfast, Plan of the ground and first floor. Reprinted with permission from ref. [16]. Copyright 1973 Architects’ Journal.
In Carlisle (Figure 7), the changes were more profound: the roof was repainted and carved to realize two flat windows; for a certain period it was a night club, and subsequently a Chinese restaurant. Furthermore, a large volume, an industrial warehouse, was added in place of the courtyard, thus preventing the view from the railway side of the architectural plant and the clerestory. The works have brought the commercial area from the original 638 m2 to over 1600 m2, effectively eliminating Cullinan’s original idea of completing the lots while maintaining the central courtyard. Again, the details have been lost. From the documents for the planning applications (15/0552) it emerges that the entire internal distribution system has been distorted, the distinction in corridors and work areas is no longer visible and the whole system has been unified in a large open space.
Figure 7.
Olivetti Branch—Carlisle, Plan of the ground and first floor. Reprinted with permission from ref. [16]. Copyright 1973 Architects’ Journal.
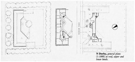
The current building in Derby (Figure 8 and Figure 9) still looks similar to the original. Part of the courtyard has been converted into a parking lot, but it retains a green area as in the 1970s project. Of all the projects, it is probably the one that reflects Cullinan’s original project even better, to the point of hosting the same architect for a conference in July 2015. The details have been retained and the interior space, now an incubator for SMEs, has maintained a visual unity, having been modified without disrupting the original project.
Figure 8.
Olivetti Branch—Derby, Plan of the roof, upper and ground floor. Reprinted with permission from ref. [16]. Copyright 1973 Architects’ Journal.
Figure 9.
Cullinan Studio, Olivetti Branch—Derby. Reprinted with permission from ref. [18]. Copyright 2015 Hugh Pearman-RIBA Journal.
Finally, the project for Dundee (Figure 10) is perhaps the most spectacular of the four (Figure 11), because it is located on the top of a small hill, which in the 1970s still featured agricultural activities, which have unfortunately disappeared today. The building has been modified over time, and an addition on the ground floor has significantly reduced the courtyard area. Furthermore, a planning permission (15/00625) for the construction of a warehouse on the north side was granted in 2016.
Figure 10.
Olivetti Branch—Dundee, Plan of the roof, upper and ground floor and Section. Reprinted with permission from ref. [16]. Copyright 1973 Architects’ Journal.
Figure 11.
Cullinan Studio, Olivetti Branch—Dundee. Courtesy and credits of ©Cullinan Studio.
The plan has been partially modified but has always maintained a rigorous geometric structure.
Unfortunately, the view at the top of the hill has been partly lost due to the presence of trees which partly block the view as well as the disappearance of the spectacular orchard, omnipresent in the photos of the 1970s.
The photos presented for the planning application show how the upper floor has maintained, although in modified form, its original layout, with the movable partitions and offices on the outside.
Figure 12a,b shows a comparison between the original plans and current situation.
Figure 12.
(a) Cullinan Studio, Olivetti Branches—general scheme. Courtesy and credits of ©Cullinan Studio. (b) Current development: top left—Belfast, top right—Carlisle, bottom left—Derby, bottom right—Dundee, from Google Earth.
5. Discussion: Design for Caring Workplaces
Hugh Pearman, in his report for the RIBA Website of the Derby office, observes how the buildings are “… more like a university college building than an industrial one” [18], and this is evident in the photographs of the time. The sections of the buildings tell of a close relationship between colours, materials, details and landscape. Cullinan, with a cunning move from both a climatic and technological point of view, raised the inner courtyard with an artificial hill to allow the construction of parking on the street side and natural lighting of the laboratories. The upper floors, with the large partitions of structural plywood, can be modified according to the needs of the workers, and the windows allow the user to not only look at the landscape, but also downwards, as if to guarantee passive control of the immediate vicinity of the headquarters.
What is impressive about these locations is certainly the “care” that Cullinan dedicated to the project and the commitment to a meticulous search for the correct space to work. Attention to detail in these projects is not just architectural praxis, or a response to a mandatory requirement, as in Haslemere. In these cases, it is the ideological and idealistic loyalty to the idea of a community space.
These are human architectures in the most complex sense. An article of the time describes the pillars of the Carlisle headquarters as: “The court side of the Carlisle branch seen from the London/Glasgow railway line, The two temporary ends from which the building will expand are stained russet brown, the colour of dry blood, as if a limb were cut off” [15] (p. 222). In [14] Ted Cullinan adds, regarding this limb: “They were painted the colour of dried blood like a dismembered limb, as if to remind Olivetti to allow the building future growth”.
Of course, not everything is perfect in these projects: the technical block (Figure 13) under the external walls, including telephone and heating systems, had been criticized since 1973 for its lack of flexibility and has been eliminated everywhere. Even the plastic rainwater chains (Figure 9), although they gave a delicate and elegant touch to the corners, were not very successful: “Rainwater is carried to the ground by plastic chains dangling into embryo rockeries; this touch of Frank Lloyd Wright or old Japan has a somewhat affected air in the context and has not been a success; the chains are ineffective in a wind, local children break them by swinging on them and throw the smaller stones through the coffee area windows (a hazard solved by cementing them down at Belfast and removing them altogether at Dundee)” [16] (p. 1566). Even the yellow of the roof barely resisted the natural action of atmospheric agents, and none of the current roofs is original.
Figure 13.
Cullinan Studio, Detail of the Technical Block. Reprinted with permission from ref. [16]. Copyright 1973 Architects’ Journal.
However, alongside these reflections, we must also observe the success that these buildings have achieved: the very fact of having been built in highly complex parts of the United Kingdom, in industrial, artisanal or, in general, areas of negligible architectural value. This contrast between a suspended landscape and pedigreed architecture has allowed the four buildings to achieve their own formal independence, a plastic dignity with respect to the context.
The Chinese restaurant, the logistics company, the carpet shop—all are proof that the working philosophy behind the project responded excellently to the brief: none of the buildings were demolished to create a bad warehouse or a residential building, but all have kept the promise of a safe and welcoming space to work.
6. Conclusions: Olivetti’s Presence
In a recent interview, Deyan Sudjic underlines a fundamental question of the relationship between company and community. Speaking of the work idea of the “Four Horsemen of the Apocalypse” (Google, Facebook, Apple and Amazon) and Olivetti, the Director Emeritus of the London Design Museum points out how, currently, employees are infantilized, reduced to “master degree students” who work day and night, in a temporary idea of the world, transitory and rootless (Sudjic in [11]), while in the past, especially at Olivetti, the worker was instead a part of a broader narrative about progress, maturity, and community. The community, a core part of the discourse, is such that it can prosper and work in the territory, creating opportunities and education. Lodovico Barbiano di Belgiojoso, one of the members of BBPR and architect of Adriano Olivetti, argues that “… ours (of the BBPRs) is not a style but a method”, and it is interesting to observe how many of the methods used by the architects of the first phase of the Olivetti (those most in close contact with Adriano), were culturally inherited by the next generation.
It is not possible, indeed, to define an “Olivetti style”. The contradiction between some of them is evident, sometimes jarring. Just a few years after Haslemere, Tafuri and Dal Co, in [19] (p. 378), wrote: “Their efforts (those of Kahn and Stirling) have run on their own tracks, parallel to those we have been examining. The work of Louis Kahn and the British architect James Stirling represent two opposite attempts to breathe life into a seemingly moribund art”. The rationalism of the 1950s is clearly in contrast with Stirling’s irreverent approach, just as the sober elegance of Federico Correa’s Spanish showrooms are completely different from the monumentalism of Kahn and Tange or the complete chromatic freedom of Gae Aulenti in New York, but we can probably find an “Olivetti method” in all these architectures.
This “Olivetti Method” derives directly from the culture that Olivetti himself had created within his Ivrea Management and is masterfully expressed in his biography/manifesto ‘City of Man’, a title that refers to the phrase by the Catholic thinker Charles Péguy, ‘Happy are those who build the city of man’. This idea of a religious but not clerical city will perhaps be the hallmark of the buildings created during Olivetti’s lifetime and, after his death, in Ivrea. It is necessary to clarify this aspect: Olivetti in Ivrea is a unitary reality, conceived and realised with a precise political agenda aimed at creating an ideal city following Olivetti’s secular “Gospel”, which led Renzo Zorzi to define Via Jarvis, the street overlooked by the most important Olivetti buildings, as “as beautiful as a Renaissance street”. The buildings of the 1970s in Spain, Florence, Venice and the Olivetti Factory in Pozzuoli follow this philosophy, and indeed refer to Ivrea as the ideal “city/type”. The buildings of the 1970s in the USA, Germany and Japan, on the other hand, are true corporate buildings, in which the Olivettian approach is limited to a few construction details or specific functions; while the former are public manifestoes, the latter are interpretations of the model in a rigid capitalist environment.
Cullinan’s buildings, on the other hand, despite belonging to the generation least interested in the urban dimension, seem to retrace the steps described by Olivetti in “City of Man” [20] and in “The Political Order of Communities” [21]: first of all, in the recognition of the “community” as a moderating element of civilisation, capable of contrasting both the anonymity of the city and the servitude of the countryside, and then the role of the building as a mediator of the landscape.
More importantly, if we observe Cullinan’s work under Olivetti’s approach, we can see in a new light the importance of the idea of a broad community shaped by the architectural efforts. In fact, we can see how Branksome Hilders hosted different types of communities (the most recent is a Muslim school), and the building in Derby is a SME headquarter. However, perhaps the most important legacy has been the creation of a different idea of architectural practice, in which the process of work is linked to different instances, in particular the creation of a responsible community linked to work. The creation of a “democracy” in the practice, as described in [1] and an optimistic and sunny approach, should not be interpreted as naivety, but as trust in a social element superior to the individual and by its nature positive: the Olivettian community into the “City of Man”.
Cullinan works on a dimension that takes into account time, imagines the building expanding into space, and creates an elegant and recognizable architecture in which work is a part of community life, but it is not the purpose, nor a way of exploitation. In Cullinan’s projects, we can clearly see the affinity between his and Olivetti’s design vision: a vision that is based on an idealistic conception of industry as the art of craft, or an “artefact of knowing” [22].
Finally, in terms of sustainability, Cullinan’s fundamental contribution to the whole system of British architecture in the 1970s, in contrast to his contemporaries in Japan, Germany and the United States, is precisely that of incorporating a clear and complex sustainability agenda into the project, not a point of view on sustainability or an easy choice of materials, but a clear vision—though not yet fully developed in its effects—of the best possible use of resources and the role of architecture in the lives of workers. Cullinan himself explains this agenda in [23]: “I began by talking about sustainability in the sense of making territory, building construction, solar gain and sheltering from the rain, which I think are all things we definitely have to find an aesthetic to do elegantly. I also suggested that some of the early traditions of the modern movement might inspire us when responding to these new demands”.
In this sense, the new demands of society critical of waste are not only related to performance and cost, but to the ethical dimension of pre-certification sustainability, where the architect is responsible for creating a fairer and more respectful system regardless of market considerations.
The “territory” of which Cullinan speaks is therefore the sum of the building’s life in relation to the built environment and above all to the humans who live in it, exactly the condition described by Olivetti in “The City of Man”. In Cullinan’s idealist and “Well-Tempered” architecture, the community vision of Adriano Olivetti seems to echo: “Our community will be neither too small, nor too large. It will have a human measure […] So what is our Community? It is the meeting place of your fellow man” [24].
Funding
This research received no external funding.
Institutional Review Board Statement
Not applicable.
Informed Consent Statement
Not applicable.
Data Availability Statement
Not applicable.
Acknowledgments
The author would like to express the most sincere gratitude to Robin Nicholson, Partner at Cullinan Studio, for his support, encouragement, and his willingness to share his experience. The author owes a debt of gratitude to Hugh Pearman, and the Architects’ Journal for their helpfulness and courtesy: to them the most heartfelt thanks.
Conflicts of Interest
The author declares no conflict of interest.
References
- Bartholomew, D. Building on Knowledge; Blackwell: Oxford, UK, 2007; pp. 231–243. [Google Scholar]
- Astarita, R. Gli Architetti di Olivetti; Angeli: Milano, Italy, 2000. [Google Scholar]
- Olmo, C. Urbanistica e Società Civile; Bollati Boringhieri: Torino, Italy, 1992; p. 5. [Google Scholar]
- Zorzi, R.; Kahn, L.I. Ricordi di un committente. La costruzione della fabbrica dell’Olivetti, Harrisburg 1967–70. Casabella 1997, 651–652, 114–125. [Google Scholar]
- Barbiellini Amidei, F.; Goldstein, A.; Spadoni, M. European Acquisitions in the United States: Re-Examining Olivetti-Underwood Fifty Years Later; Bank of Italy Economic History Working Paper; Bank of Italy: Rome, Italy, 2010. [Google Scholar] [CrossRef]
- Zorzi, R. Olivetti aujourd’hui. L’Architecture D’aujourd’hui 1976, 188, 77–79. [Google Scholar]
- Emanuel, M. Contemporary Architects; Palgrave Macmillan Limited: London, UK, 2016; p. 777. [Google Scholar]
- Bosschaert, T. James Stirling. Client Relationships. Available online: http://www.except.nl/overig/yale/sem3/Stirling_paper.pdf (accessed on 22 January 2022).
- Gannon, T. Reyner Banham and the Paradoxes of High Tech; Getty Publications: Los Angeles, CA, USA, 2017. [Google Scholar]
- Banham, R. Two for Olivetti. Archit. Rev. 1974, 155, 190–216. [Google Scholar]
- Maffei, D. Prospettiva Olivetti; Airpixel and Imago Orbis: Bologna, Italy, 2020. [Google Scholar]
- Spens, M. Stirling’s finale: The two roads to Melsungen. Archit. Res. Q. 2001, 5, 333–353. [Google Scholar] [CrossRef]
- Jencks, C. A Semantic Analysis of Stirling’s Olivetti Centre Wing. In Approaches to Semiotics A Semiotic Landscape, Proceedings of the First Congress of the International Association for Semiotic Studies, Milan, Italy, 2–6 June 1974; Chatman, S., Eco, U., Klinkenberg, J.M., Eds.; De Gruyter: Berlin, Germany, 2019; pp. 930–935. [Google Scholar]
- Powell, K.; Cullinan, E. Edward Cullinan Architects; Academy Editions: London, UK, 1995; p. 72. [Google Scholar]
- Olivetti’s New Branches in Britain. Archit. Des. 1973, 914, 216–223.
- Girouard, M. Four Olivetti Branches Building Study. Archit. J. 1973, 157, 1551–1569. [Google Scholar]
- CIBA. Glued Timber Structures by Kingston Craftsmen; CIBA-Technical Notes; CIBA (ARL) Ltd.: Cambridge, UK, 1973; Volume 8, pp. 2–3. [Google Scholar]
- Pearman, H. Fresh Start for a Modern Classic. Available online: https://www.ribaj.com/buildings/new-life-for-cullinan-classic-olivetti-building-derby-revived (accessed on 22 January 2022).
- Tafuri, M.; Dal Co, F. Modern Architecture/2; Electa/Rizzoli: Milan, Italy, 1976; p. 378. [Google Scholar]
- Olivetti, A. L’Ordine Politico Delle Comunità; Edizioni di Comunità: Roma/Ivrea, Italy, 2014. [Google Scholar]
- Olivetti, A.; Saibene, A. Città Dell’Uomo; Edizioni di Comunità: Roma/Ivrea, Italy, 1960. [Google Scholar]
- Ewenstein, B.; Whyte, J. Visual representations as ‘artefacts of knowing’. Build. Res. Inf. 2007, 35, 81–89. [Google Scholar] [CrossRef]
- Cullinan, E. A personal vision of sustainable housing. In Sustainable Housing: Principles & Practice; Edwards, B., Turrent, D., Eds.; Taylor & Francis: Abingdon, UK, 2000; pp. 125–133. [Google Scholar]
- Olivetti, A. Democrazia Senza Partiti; Edizioni di Comunità: Roma/Ivrea, Italy, 2013. [Google Scholar]
Publisher’s Note: MDPI stays neutral with regard to jurisdictional claims in published maps and institutional affiliations. |
© 2022 by the author. Licensee MDPI, Basel, Switzerland. This article is an open access article distributed under the terms and conditions of the Creative Commons Attribution (CC BY) license (https://creativecommons.org/licenses/by/4.0/).