Research on the Artificial Acceleration Test System of Combined Environment and Loading Effect for the Bridge Structure †
Abstract
:1. Introduction
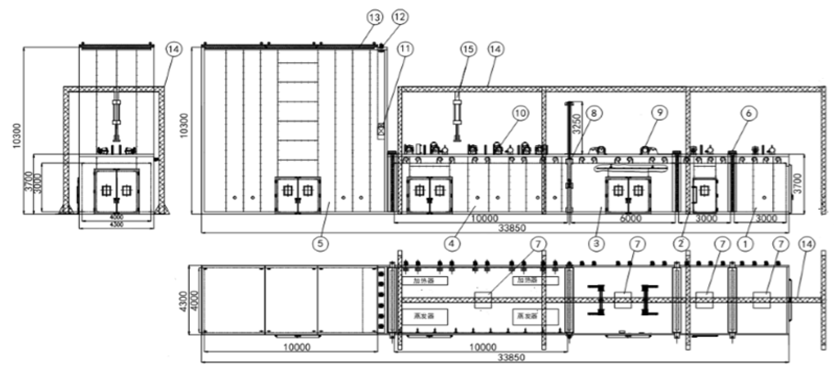
2. Design Scheme of Test System with Combined Environment and Loading
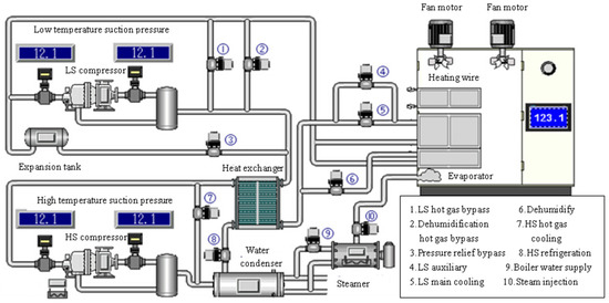
2.1. The Environment System
2.2. The Loading System
2.3. The Monitoring System
3. Artificial Acceleration Test Method
4. Conclusions
Acknowledgments
References
- Zhou, H. Research on Durability Experimental Method of RC Members Reinforced with FRP under Hot and Humid Environment. Doctor’s Thesis, South China University of Technology, Guangzhou, China, 2012. [Google Scholar]
- Qin, G.; Huang, P.; Zhou, H.; Guo, X.; Zheng, X. Fatigue and durability behavior of RC beams strengthened with CFRP under hot-wet environment. Constr. Build. Mater. 2016, 111, 735–742. [Google Scholar] [CrossRef]
- Liu, H.; Yang, X.; Li, J. Experimental study on erosion damage of chloride ion in concrete under the coastal beach environment. J. Yancheng Inst. Technol. 2017, 30, 14–17. [Google Scholar]
- Song, W.; Li, X.; Ma, K. The effect of freeze-thaw cycles on mechanical properties of concrete. Adv. Mater. Res. 2011, 163–167, 3429–3432. [Google Scholar] [CrossRef]
- Li, W. Accelerated Test Method and Equipment System for Bridge Structure under Coupling Environment and Load. Master’s Thesis, Chongqing Jiaotong University, Chongqing, China, 2015. [Google Scholar]
- Yan, W.; Wan, H.; Ren, W. Analytical local and global sensitivity of power spectrum density functions for structures subject to stochastic excitation. Comput. Struct. 2017, 182, 325–336. [Google Scholar] [CrossRef]
- Atalay, K.D.; Tanyer, S.G. Randomness tests for the method of uniform sampling quasi-random number generator (MUS-QRNG). In Proceedings of the Signal Processing and Communications Applications Conference, Trabzon, Turkey, 23–25 April 2014; pp. 522–525. [Google Scholar]
- Zheng, S.; Ju, F.; Feng, J. A new fatigue life prediction model by random load spectrum. J. Mech. Strength 2014, 36, 261–266. [Google Scholar]
- Kondo, K.; Uchida, O.; Oda, K. Development of non-contact bridge beam deflection measurement technique with digital camera image sequence. J. Jpn. Soc. Photogramm. Remote Sens. 2016, 55, 90–94. [Google Scholar]









Publisher’s Note: MDPI stays neutral with regard to jurisdictional claims in published maps and institutional affiliations. |
© 2018 by the authors. Licensee MDPI, Basel, Switzerland. This article is an open access article distributed under the terms and conditions of the Creative Commons Attribution (CC BY) license (https://creativecommons.org/licenses/by/4.0/).
Share and Cite
Yao, G.; Tan, X.; Li, S.; Huang, P.; Yu, J. Research on the Artificial Acceleration Test System of Combined Environment and Loading Effect for the Bridge Structure. Proceedings 2018, 2, 404. https://doi.org/10.3390/ICEM18-05282
Yao G, Tan X, Li S, Huang P, Yu J. Research on the Artificial Acceleration Test System of Combined Environment and Loading Effect for the Bridge Structure. Proceedings. 2018; 2(8):404. https://doi.org/10.3390/ICEM18-05282
Chicago/Turabian StyleYao, Guowen, Xicheng Tan, Shiya Li, Peiyan Huang, and Jiayu Yu. 2018. "Research on the Artificial Acceleration Test System of Combined Environment and Loading Effect for the Bridge Structure" Proceedings 2, no. 8: 404. https://doi.org/10.3390/ICEM18-05282
APA StyleYao, G., Tan, X., Li, S., Huang, P., & Yu, J. (2018). Research on the Artificial Acceleration Test System of Combined Environment and Loading Effect for the Bridge Structure. Proceedings, 2(8), 404. https://doi.org/10.3390/ICEM18-05282

