The Hybrid Learning Atelier: Designing a Hybrid Learning Space
Abstract
1. Introduction
2. Method
3. The Hybrid Learning Atelier (HLA): Conceptual Foundations and Design Principles
3.1. Background and Objective
3.2. Foundations of Space Design
- Spatial Practice should enable flexible usage scenarios.
 - Representations of Space should convey openness and adaptability.
 - Representational Spaces should support experiences of presence in both physical and digital form.
 
3.3. Design Principles and Their Implementation
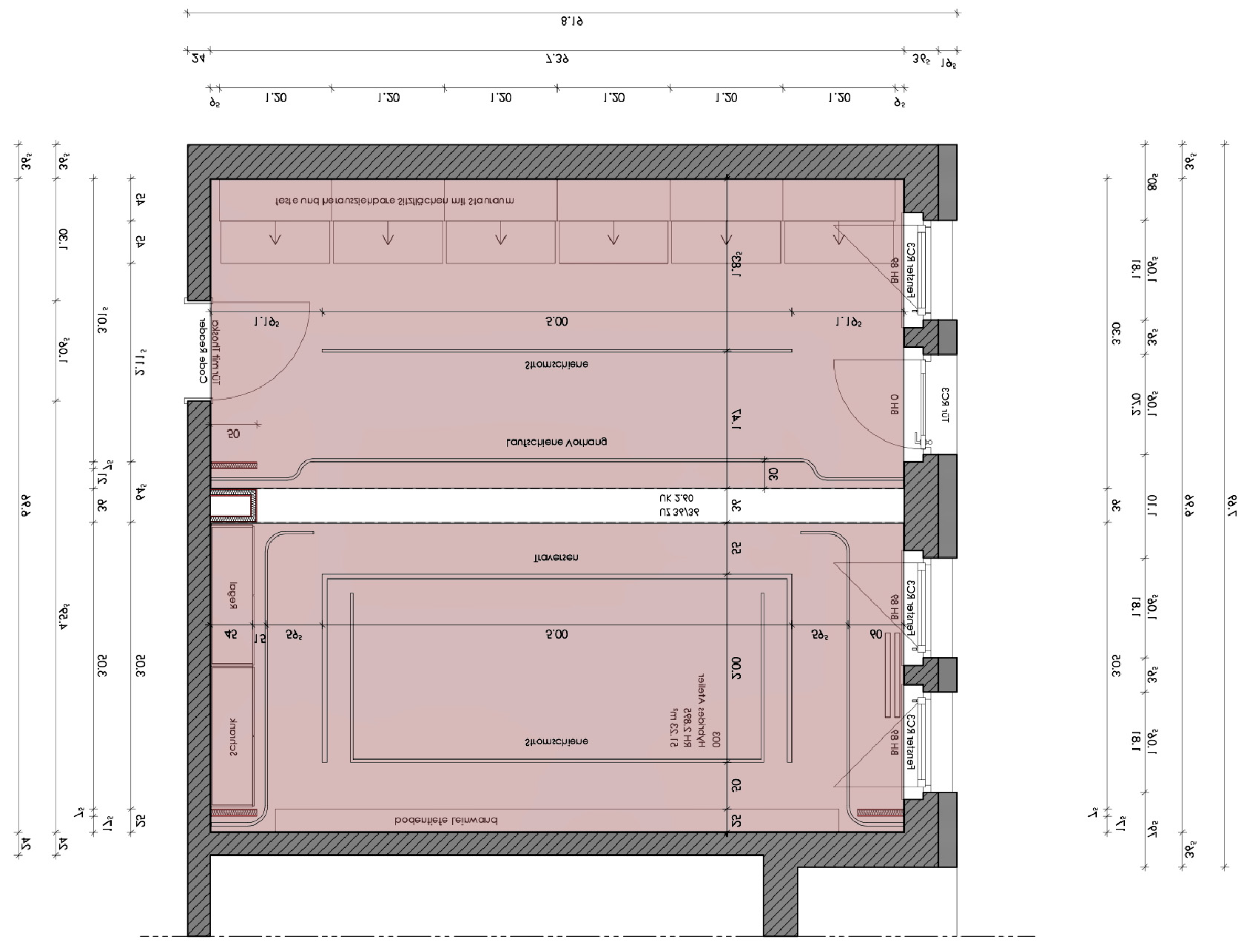
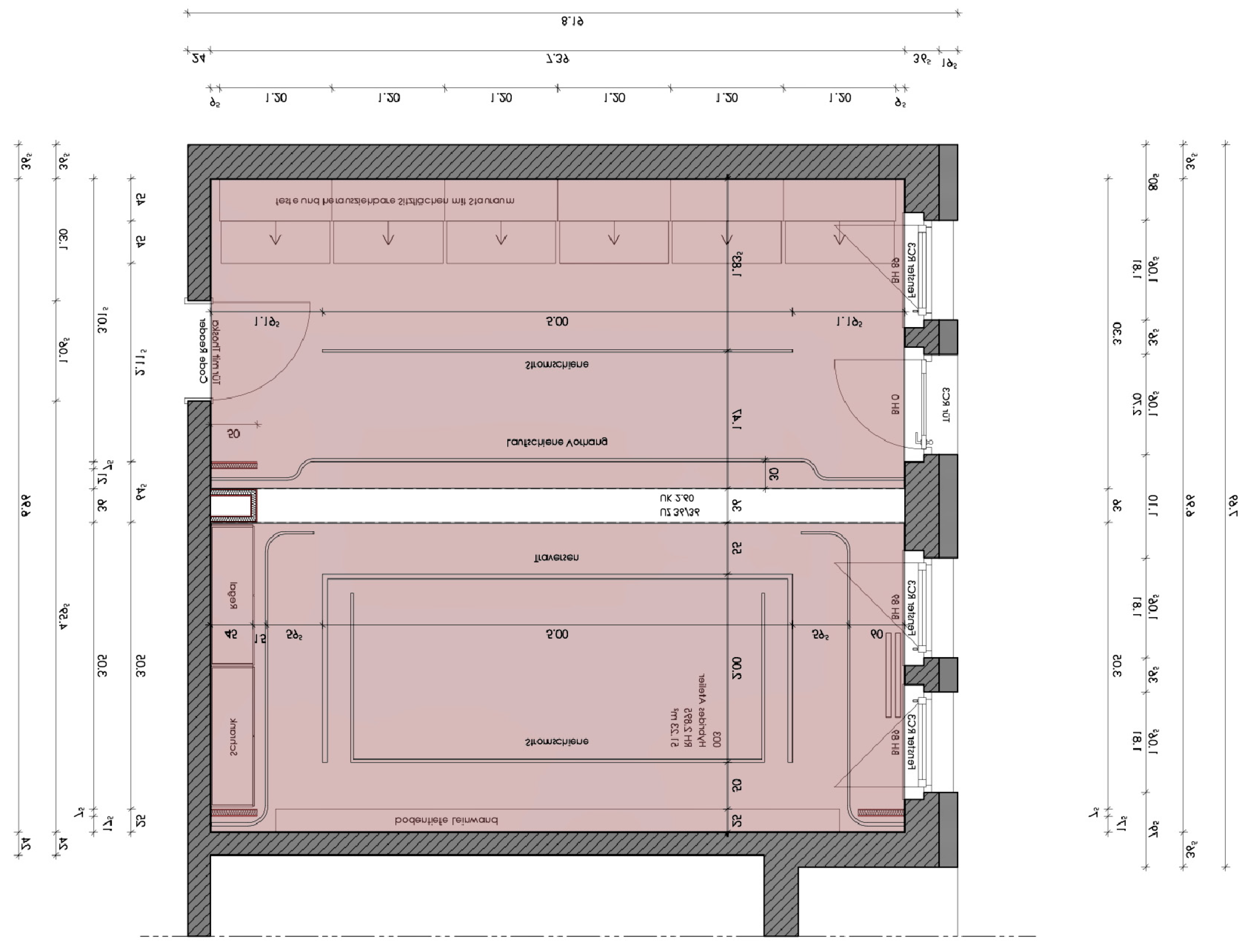
- Flexibility Through Modularity. The furniture consists of rectangular seating elements that can be used as individual seats, arranged in rows, or combined to form group tables. This flexibility should allow for fast adaptation to different teaching scenarios, from frontal presentations to small group work to informal discussion rounds [42].
 - Technology as an Invisible Enabler. The passive technical infrastructure has been deliberately integrated into wall cabinets and ceiling installations so as not to dominate the character of the room. Cables are routed through floor boxes and wall ducts.
 - Atmospheric Quality. The interior design strives to strike a balance between the perception of a creative studio and a technologically advanced learning space. Visible Oriented Strand Board (OSB) surfaces and a coarse coloured carpet reference the Bauhaus tradition of using materials in their pure form, while indirect LED lighting and acoustically effective textiles offer contemporary comfort (Figure 2).
 
3.4. Technical Implementation
3.5. Usage Scenarios
- 5.
 - Virtual Field Trips (VFTs): The combination of wall-to-wall projection and spatial audio creates immersive experiences that go far beyond traditional screen presentations.
 - 6.
 - Experimental Teaching Formats: The flexible infrastructure invites experimentation with new concepts—from interactive installations to networked courses across spatial boundaries.
 - 7.
 - Collaborative Creative Processes: Multiple inputs and freely scalable displays allow different work results to be presented and discussed simultaneously.
 
3.6. Design Summarization
4. Evaluation Study
4.1. Motivation
4.2. Emotion
4.3. Cognitive Load
4.4. Presence and Immersion
5. Discussion
5.1. Hybrid Learning Atelier (HLA)
5.2. Evaluation Study
5.2.1. Survey
5.2.2. Implications of the Survey
- i.
 - ii.
 - The similarity of VFT and FT is reflected in their frequently comparable characterization across different constructs, such as motivation, emotion, and CL. The improved values regarding presence and social presence in the FT seem plausible.
 - iii.
 - The FT appears to be slightly more conducive to learning than the HLA-powered VFT. This finding aligns with the literature but does not diminish the validity of VFTs and especially the HLA. VFTs have various advantages, such as the ability to be used independently of time and location and significantly lower effort for implementation. Additionally, the VFT in this study was used as preparation and thus as a complement to the FT.
 - iv.
 - A further study result is the generation of exemplary values for the respective measures regarding an HLA-based learning activity.
 - v.
 - The effects of preparing for the FT with the VFT should also be examined in detail. It is to be assumed that learning already occurred during the VFT. If the germane CL for the FT reached the same value, this suggests that additional details about the learning content were learned during the FT, which aligns with the slightly higher intrinsic CL value for the FT.
 
5.2.3. Limitations
6. Conclusions
Author Contributions
Funding
Institutional Review Board Statement
Informed Consent Statement
Data Availability Statement
Acknowledgments
Conflicts of Interest
References
- Raes, A.; Detienne, L.; Windey, I.; Depaepe, F. A Systematic Literature Review on Synchronous Hybrid Learning: Gaps Identified. Learn. Environ. Res. 2020, 23, 269–290. [Google Scholar] [CrossRef]
 - Bennett, D.; Knight, E.; Rowley, J. The Role of Hybrid Learning Spaces in Enhancing Higher Education Students’ Employability. Br. J. Educ. Technol. 2020, 51, 1188–1202. [Google Scholar] [CrossRef]
 - Kohls, C.; Dubbert, D.; Kehrer, M. The Dynamic Campus—Flexible Learning Spaces for Hybrid Education. In Proceedings of the 28th European Conference on Pattern Languages of Programs, Irsee, Germany, 5 July 2023; ACM: Irsee, Germany, 2023; pp. 1–11. [Google Scholar]
 - Brooks, D.C. Space Matters: The Impact of Formal Learning Environments on Student Learning. Br. J. Educ. Technol. 2011, 42, 719–726. [Google Scholar] [CrossRef]
 - Eyal, L.; Gil, E. Hybrid Learning Spaces—A Three-Fold Evolving Perspective. In Hybrid Learning Spaces; Springer: New York, NY, USA, 2022; pp. 11–23. [Google Scholar]
 - Baepler, P.; Walker, J.D.; Driessen, M. It’s Not about Seat Time: Blending, Flipping, and Efficiency in Active Learning Classrooms. Comput. Educ. 2014, 78, 227–236. [Google Scholar] [CrossRef]
 - Bülow, M.W. Designing Synchronous Hybrid Learning Spaces: Challenges and Opportunities. In Hybrid Learning Spaces; Gil, E., Mor, Y., Dimitriadis, Y., Köppe, C., Eds.; Understanding Teaching-Learning Practice; Springer International Publishing: Cham, Switzerland, 2022; pp. 135–163. ISBN 978-3-030-88519-9. [Google Scholar]
 - Goodyear, P. Design and Co-configuration for Hybrid Learning: Theorising the Practices of Learning Space Design. Br. J. Educ. Technol. 2020, 51, 1045–1060. [Google Scholar]
 - Xiao, J.; Sun-Lin, H.; Lin, T.; Li, M.; Pan, Z.; Cheng, H. What Makes Learners a Good Fit for Hybrid Learning? Learning Competences as Predictors of Experience and Satisfaction in Hybrid Learning Space. Br. J. Educ. Technol. 2020, 51, 1203–1219. [Google Scholar] [CrossRef]
 - Ellis, R.A.; Goodyear, P. Models of Learning Space: Integrating Research on Space, Place and Learning in Higher Education. Rev. Educ. 2016, 4, 149–191. [Google Scholar] [CrossRef]
 - Leijon, M.; Nordmo, I.; Tieva, Å.; Troelsen, R. Formal Learning Spaces in Higher Education—A Systematic Review. Teach. High. Educ. 2024, 29, 1460–1481. [Google Scholar] [CrossRef]
 - Reinking, D.; Alvermann, D.E. What Are Evaluation Studies, and Should They Be Published in "RRQ"? Read. Res. Q. 2005, 40, 142–146. [Google Scholar] [CrossRef]
 - Jurgensmeier, N.H.G.; Schmidt, R.; Stumpe, B. Creating Virtual Field Trips for Education: A Comparison of Software and Tools for Creating Virtual Field Trips with 360° Images. Int. J. Technol. Educ. 2023, 6, 385–417. [Google Scholar] [CrossRef]
 - Pham, H.C.; Dao, N.; Pedro, A.; Le, Q.T.; Hussain, R.; Cho, S.; Park, C. Virtual Field Trip for Mobile Construction Safety Education Using 360-Degree Panoramic Virtual Reality. Int. J. Eng. Educ. 2018, 34, 1174–1191. [Google Scholar]
 - Shinde, Y.; Lee, K.; Kiper, B.; Simpson, M.; Hasanzadeh, S. A Systematic Literature Review on 360° Panoramic Applications in Architecture, Engineering, and Construction (AEC) Industry. J. Inf. Technol. Constr. 2023, 28, 405–437. [Google Scholar] [CrossRef]
 - Fink, M.C.; Sosa, D.; Eisenlauer, V.; Ertl, B. Authenticity and Interest in Virtual Reality: Findings from an Experiment Including Educational Virtual Environments Created with 3D Modeling and Photogrammetry. Front. Media SA 2023, 8, 969966. [Google Scholar] [CrossRef]
 - Mulders, M. Learning About Anne Frank in Virtual Reality: Investigating the Role of Cognitive Load; Association for the Advancement of Computing in Education (AACE): Chesapeake, VA, USA, 2023; pp. 1034–1040. [Google Scholar]
 - Shadiev, R.; Yang, L.; Huang, Y.M. A Review of Research on 360-Degree Video and Its Applications to Education. J. Res. Technol. Educ. 2022, 54, 784–799. [Google Scholar] [CrossRef]
 - Violante, M.G.; Vezzetti, E.; Piazzolla, P. Interactive Virtual Technologies in Engineering Education: Why Not 360° Videos? Int. J. Interact. Des. Manuf. IJIDeM 2019, 13, 729–742. [Google Scholar] [CrossRef]
 - Wolf, M.; Wehking, F.; Montag, M.; Söbke, H. 360°-Based Virtual Field Trips to Waterworks in Higher Education. Computers 2021, 10, 118. [Google Scholar] [CrossRef]
 - Wolf, M.; Wehking, F.; Söbke, H.; Montag, M.; Zander, S.; Springer, C. Virtualised Virtual Field Trips in Environmental Engineering Higher Education. Eur. J. Eng. Educ. 2023, 48, 1312–1334. [Google Scholar] [CrossRef]
 - Moreno-Reyes, J.M.; Alejos, D.J.; Siefker, D.; Martínez-Meza, R. 360 Virtual Tour and Escape Room Design as a Video Games-Based Learning Process for Diagnosis and Strengthening of the English Language. J. Comput. Technol. 2022, 6, 1–14. [Google Scholar] [CrossRef]
 - Wolf, M.; Montag, M.; Söbke, H.; Wehking, F.; Springer, C. Low-Threshold Digital Educational Escape Rooms Based on 360VR and Web-Based Forms. Electron. J. E-Learn. 2024, 22, 1–18. [Google Scholar] [CrossRef]
 - Eiris, R.; Wen, J.; Gheisari, M. iVisit-Collaborate: Collaborative Problem-Solving in Multiuser 360-Degree Panoramic Site Visits. Comput. Educ. 2022, 177, 104365. [Google Scholar] [CrossRef]
 - Teo, T.; Norman, M.; Lee, G.A.; Billinghurst, M.; Adcock, M. Exploring Interaction Techniques for 360 Panoramas inside a 3D Reconstructed Scene for Mixed Reality Remote Collaboration. J. Multimodal User Interfaces 2020, 14, 373–385. [Google Scholar] [CrossRef]
 - Wolf, M.; Hartwig, S.; Steinhöfel, G.; Söbke, H.; Kraft, E. PanoramaViewer–A Framework for Educational Collaborative Virtual Field Trips. In Proceedings of the 2024 International Symposium on Multimedia (ISM), Tokyo, Japan, 11–13 December 2024; IEEE: New York, NY, USA, 2024; pp. 269–274. [Google Scholar]
 - Stadtwirtschaft Weimar; Bauhaus-Universität Weimar. Florian Wehking Kompostierungsanlage Umpferstedt: 360°-Tour. Available online: https://www.360-degree.education/Umpferstedt/ (accessed on 25 July 2025).
 - Hintzer, J.; Rudder, S.; Mai, A.; Sieber, J.M.; Mai, A.; Wolter, A.; Bast, C. Lernraum Bauhaus: Hybrides Lernatelier. Available online: https://www.uni-weimar.de/de/universitaet/struktur/zentrale-einrichtungen/zue/lernraum-bauhaus/hybrides-lernatelier/ (accessed on 15 July 2025).
 - Rheinberg, F.; Vollmeyer, R.; Burns, B.D. FAM: Ein Fragebogen Zur Erfassung Aktueller Motivation in Lern-Und Leistungssituationen (Langversion, 2001). Diagnostica 2001, 2, 57–66. [Google Scholar] [CrossRef]
 - Pekrun, R.; Goetz, T.; Frenzel, A.C.; Barchfeld, P.; Perry, R.P. Measuring Emotions in Students’ Learning and Performance: The Achievement Emotions Questionnaire (AEQ). Contemp. Educ. Psychol. 2011, 36, 36–48. [Google Scholar] [CrossRef]
 - Lin, G.-Y. Social Presence Questionnaire of Online Collaborative Learning: Development and Validity; Association for Educational Communications and Technology: Bloomington, IN, USA, 2004. [Google Scholar]
 - Klepsch, M.; Schmitz, F.; Seufert, T. Development and Validation of Two Instruments Measuring Intrinsic, Extraneous, and Germane Cognitive Load. Front. Psychol. 2017, 8, 294028. [Google Scholar] [CrossRef]
 - Schubert, T.; Friedmann, F.; Regenbrecht, H. The Experience of Presence: Factor Analytic Insights. Presence Teleoperators Virtual Environ. 2001, 10, 266–281. [Google Scholar] [CrossRef]
 - Jennett, C.; Cox, A.L.; Cairns, P.; Dhoparee, S.; Epps, A.; Tijs, T.; Walton, A. Measuring and Defining the Experience of Immersion in Games. Int. J. Hum.-Comput. Stud. 2008, 66, 641–661. [Google Scholar] [CrossRef]
 - Hodges, C.; Moore, S.; Lockee, B.; Trust, T.; Bond, A. The Difference between Emergency Remote Teaching and Online Learning. Educ. Rev. 2020, 27, 1–9. [Google Scholar]
 - Reinman, G. Hybride Lehre—Ein Begriff Und Seine Zukunft Für Forschung Und Praxis. Impact Free 2021, 35, 1–10. [Google Scholar]
 - Lefebvre, H. The Production of Space, 1st ed.; Wiley-Blackwell: Oxford, UK, 1991; ISBN 9780631181774. [Google Scholar]
 - Barrett, P.; Davies, F.; Zhang, Y.; Barrett, L. The Impact of Classroom Design on Pupils’ Learning: Final Results of a Holistic, Multi-Level Analysis. Build. Environ. 2015, 89, 118–133. [Google Scholar] [CrossRef]
 - Cox, T.; D’Antonio, P. Acoustic Absorbers and Diffusers: Theory, Design and Application; CRC Press: Boca Raton, FL, USA, 2016; ISBN 1-315-36921-4. [Google Scholar]
 - Pallasmaa, J. The Eyes of the Skin: Architecture and the Senses, 3rd ed.; John Wiley & Sons Inc.: New York, NY, USA, 2012; ISBN 978-1-119-94128-6. [Google Scholar]
 - Chandler, P.; Sweller, J. Cognitive Load Theory and the Format of Instruction. Cogn. Instr. 1991, 8, 293–332. [Google Scholar] [CrossRef]
 - Ninnemann, K. Innovationsprozesse und Potentiale der Lernraumgestaltung an Hochschulen: Die Bedeutung des Dritten Pädagogen Bei der Umsetzung des “Shift from Teaching to Learning”; Waxmann: Münster, Germany, 2018; ISBN 3-8309-8698-X. [Google Scholar]
 - Söbke, H.; Kraft, E. Eine 360°-Basierte Virtuelle Exkursion in Einem Hybriden Lernraum; Gesellschaft für Informatik eV: Bonn, Germany, 2024; pp. 10–18420. [Google Scholar]
 - Kreijns, K.; Xu, K.; Weidlich, J. Social Presence: Conceptualization and Measurement. Educ. Psychol. Rev. 2022, 34, 139–170. [Google Scholar] [CrossRef]
 - Pintrich, P.R. A Motivational Science Perspective on the Role of Student Motivation in Learning and Teaching Contexts. J. Educ. Psychol. 2003, 95, 667. [Google Scholar] [CrossRef]
 - Tyng, C.M.; Amin, H.U.; Saad, M.N.M.; Malik, A.S. The Influences of Emotion on Learning and Memory. Front. Psychol. 2017, 8, 235933. [Google Scholar] [CrossRef]
 - Nilsson, N.C.; Nordahl, R.; Serafin, S. Immersion Revisited: A Review of Existing Definitions of Immersion and Their Relation to Different Theories of Presence. Hum. Technol. 2016, 12, 108–134. [Google Scholar] [CrossRef]
 - Radianti, J.; Majchrzak, T.A.; Fromm, J.; Wohlgenannt, I. A Systematic Review of Immersive Virtual Reality Applications for Higher Education: Design Elements, Lessons Learned, and Research Agenda. Comput. Educ. 2020, 147, 103778. [Google Scholar] [CrossRef]
 - Witmer, B.G.; Singer, M.J. Measuring Presence in Virtual Environments: A Presence Questionnaire. Presence 1998, 7, 225–240. [Google Scholar] [CrossRef]
 - Agrawal, S.; Simon, A.; Bech, S.; Bærentsen, K.; Forchhammer, S. Defining Immersion: Literature Review and Implications for Research on Audiovisual Experiences. J. Audio Eng. Soc. 2020, 68, 404–417. [Google Scholar] [CrossRef]
 - Dengel, A.; Mägdefrau, J. Immersive Learning Predicted: Presence, Prior Knowledge, and School Performance Influence Learning Outcomes in Immersive Educational Virtual Environments; IEEE: New York, NY, USA, 2020; pp. 163–170. [Google Scholar]
 - Huang, C.L.; Luo, Y.F.; Yang, S.C.; Lu, C.M.; Chen, A.-S. Influence of Students’ Learning Style, Sense of Presence, and Cognitive Load on Learning Outcomes in an Immersive Virtual Reality Learning Environment. J. Educ. Comput. Res. 2020, 58, 596–615. [Google Scholar] [CrossRef]
 - Petersen, G.B.; Petkakis, G.; Makransky, G. A Study of How Immersion and Interactivity Drive VR Learning. Comput. Educ. 2022, 179, 104429. [Google Scholar] [CrossRef]
 - Kim, G.; Biocca, F. Immersion in Virtual Reality Can Increase Exercise Motivation and Physical Performance; Springer: New York, NY, USA, 2018; pp. 94–102. [Google Scholar]
 - Spangenberger, P.; Freytag, S.-C.; Geiger, S.M. Embodying Nature in Immersive Virtual Reality: Are Multisensory Stimuli Vital to Affect Nature Connectedness and pro-Environmental Behaviour? Comput. Educ. 2024, 212, 104964. [Google Scholar] [CrossRef]
 - Asad, M.M.; Naz, A.; Churi, P.; Tahanzadeh, M.M. Virtual Reality as Pedagogical Tool to Enhance Experiential Learning: A Systematic Literature Review. Educ. Res. Int. 2021, 2021, 7061623. [Google Scholar] [CrossRef]
 - Hu-Au, E.; Lee, J.J. Virtual Reality in Education: A Tool for Learning in the Experience Age. Int. J. Innov. Educ. 2017, 4, 215–226. [Google Scholar] [CrossRef]
 - Skarbez, R.; Brooks, F.P., Jr.; Whitton, M.C. A Survey of Presence and Related Concepts. ACM Comput. Surv. 2018, 50, 1–39. [Google Scholar] [CrossRef]
 - Slater, M.; Wilbur, S. A Framework for Immersive Virtual Environments (FIVE): Speculations on the Role of Presence in Virtual Environments. Presence Teleoperators Virtual Environ. 1997, 6, 603–616. [Google Scholar] [CrossRef]
 - Lombard, M.; Ditton, T. At the Heart of It All: The Concept of Presence. J. Comput.-Mediat. Commun. 1997, 3, JCMC321. [Google Scholar] [CrossRef]
 - Weber, S.; Weibel, D.; Mast, F.W. How to Get There When You Are There Already? Defining Presence in Virtual Reality and the Importance of Perceived Realism. Front. Psychol. 2021, 12, 628298. [Google Scholar] [CrossRef]
 - Bulu, S.T. Place Presence, Social Presence, Co-Presence, and Satisfaction in Virtual Worlds. Comput. Educ. 2012, 58, 154–161. [Google Scholar] [CrossRef]
 - Koçoğlu, A.; Haidari, S.M. A Three-Level Meta-Analytic Review of Research on Virtual Field Trips and Their Contribution to Students’ Academic Achievement. Educ. Inf. Technol. 2025, 30, 12735–12763. [Google Scholar] [CrossRef]
 - Klippel, A.; Zhao, J.; Oprean, D.; Wallgrün, J.O.; Stubbs, C.; La Femina, P.; Jackson, K.L. The Value of Being There: Toward a Science of Immersive Virtual Field Trips. Virtual Real. 2020, 24, 753–770. [Google Scholar] [CrossRef]
 - Söbke, H.; Arnold, U.; Montag, M. Intrinsic Motivation in Serious Gaming A Case Study: Games and Learning Alliance. In International Conference on Games and Learning Alliance; Marfisi-Schottman, I., Bellotti, F., Hamon, L., Klemke, R., Eds.; Springer International Publishing: Cham, Switzerland, 2020; pp. 362–371. [Google Scholar]
 







| Scale | VFT  x¯ (σ)  | FT  x¯ (σ)  | 
|---|---|---|
| Intrinsic | 2.6 (1.57) | 3.0 (1.27) | 
| Germane | 5.7 (1.05) | 5.7 (0.95) | 
| Extraneous | 2.2 (1.20) | 1.7 (0.65) | 
| Subscale | VFT  x¯ (σ)  | FT  x¯ (σ)  | 
|---|---|---|
| Spatial Presence (SP) | 2.7 (1.42) | 4.5 (1.49) | 
| Involvement (INV) | 2.2 (1.34) | 2.7 (1.53) | 
| Experienced Realism (EXP) | 2.7 (1.26) | 4.7 (1.68) | 
| General Presence (G) | 3.3 (1.21) | 6.0 (0.00) | 
| Subscale | VFT  x¯ (σ)  | FT  x¯ (σ)  | 
|---|---|---|
| Learning-Supportive Group Activities | 4.5 (1.31) | 5.4 (1.44) | 
| Social Well-Being | 3.4 (1.58) | 5.0 (1.66) | 
| Social Orientation | 2.7 (1.59) | 3.6 (1.59) | 
| Scale | VFT  x¯ (σ)  | FT  x¯ (σ)  | 
|---|---|---|
| 16 Positive Items (0 to 4) | 31.8 (7.83) | 32.1 (6.17) | 
| General Item (1 to 10) | 7.0 (1.76) | 8.4 (1.32) | 
Disclaimer/Publisher’s Note: The statements, opinions and data contained in all publications are solely those of the individual author(s) and contributor(s) and not of MDPI and/or the editor(s). MDPI and/or the editor(s) disclaim responsibility for any injury to people or property resulting from any ideas, methods, instructions or products referred to in the content.  | 
© 2025 by the authors. Licensee MDPI, Basel, Switzerland. This article is an open access article distributed under the terms and conditions of the Creative Commons Attribution (CC BY) license (https://creativecommons.org/licenses/by/4.0/).
Share and Cite
Sieber, J.M.; Brannys, A.; Söbke, H.; Sabik, M.I.; Kraft, E. The Hybrid Learning Atelier: Designing a Hybrid Learning Space. Multimodal Technol. Interact. 2025, 9, 107. https://doi.org/10.3390/mti9100107
Sieber JM, Brannys A, Söbke H, Sabik MI, Kraft E. The Hybrid Learning Atelier: Designing a Hybrid Learning Space. Multimodal Technologies and Interaction. 2025; 9(10):107. https://doi.org/10.3390/mti9100107
Chicago/Turabian StyleSieber, Jan Michael, Anne Brannys, Heinrich Söbke, Mubtasim Islam Sabik, and Eckhard Kraft. 2025. "The Hybrid Learning Atelier: Designing a Hybrid Learning Space" Multimodal Technologies and Interaction 9, no. 10: 107. https://doi.org/10.3390/mti9100107
APA StyleSieber, J. M., Brannys, A., Söbke, H., Sabik, M. I., & Kraft, E. (2025). The Hybrid Learning Atelier: Designing a Hybrid Learning Space. Multimodal Technologies and Interaction, 9(10), 107. https://doi.org/10.3390/mti9100107
        
                                                
