Construction Site Layout Planning Using a Simulation-Based Decision Support Tool
Abstract
:1. Introduction
2. Literature Review
3. Methodology
3.1. Layout Visualization Components
3.1.1. Site Element
- Size of the plane area, which is specified by the width (i.e., the length in the x direction) and the height (i.e., the length in the y direction);
- The boundary of the site, which is specified by the coordinates of the site boundary vertices.
3.1.2. Facility Element
- Name, which is a unique identification assigned to the facility for recognition in the simulation model;
- Size, which is determined by the width (i.e., the length in the x direction) denoted by W and the height (i.e., the length in the y direction) denoted by H, once the facility edges are parallel to the x and y axes;
- Location, which is determined by the x and y coordinates of the center of the facility;
- Orientation, which is determined by the angle that the facility is rotated about the x axis;
- Facility type, which can be either material-dependent or material-independent. This property identifies whether any material is to be placed in the facility. If so, it is material-dependent. Otherwise, it is material-independent. For the material-dependent facility, the following properties are considered:
- ○
- Capacity, which is identified as the maximum unit of materials that can be placed in the facility. For material-dependent facilities, capacity is an important parameter that can affect the productivity and project cost. For instance, materials cannot be unloaded in a facility in excess of its capacity, which entails waiting time for unloading tasks and resultant workflow interruption;
- ○
- Material type, which identifies the type of material that can be placed in the facility;
- ○
- Available material, which is used to account for the amount of each material type existing in the facility at any time as the simulation model is run. The initial amount of material (i.e., the amount available in the facility at the beginning of the simulation run) can also be defined as an input.
3.1.3. Material Element
3.1.4. Constraint Element
- Being inside the site boundaries, which entails that all facilities must be positioned inside the site boundary;
- Non-overlapping between facilities, which entails that no facility can overlap with another one.
3.2. Simulation Components
- By the location of the facilities, which affects the transportation distance/time between facilities;
- By the capacity of the material-dependent facilities, which can affect the workflow when materials are to be unloaded in the facility and sufficient space is not available in the facility.
3.2.1. Transportation Task Element
- Velocity (V), which determines the velocity of the means of transportation;
- Source facility, which determines the facility from which the transportation starts;
- Destination facility, which determines the facility at which the transportation ends;
- Resource, which determines the resource(s) or means of transportation deployed for executing the task if the user intends to model them;
- Method of distance measurement, which determines the method used for measuring the distance between the specified facilities. The user can select between two equations, perpendicular and Euclidean distance functions, which are calculated as Equations (1) and (2), respectively:
3.2.2. Loading/Unloading Task Element
- Type of task, i.e., either loading or unloading;
- Duration, which determines the duration of the task;
- Facility name, which determines the facility in which loading and unloading happen;
- Material type, which determines which types of material are loaded from or unloaded in the facility;
- Material quantity, which determines the quantity of materials loaded from or unloaded to the specified facility;
- Resource, which determines the resource, such as equipment, deployed for executing the task if the user intends to model it.
3.2.3. Programming Codes
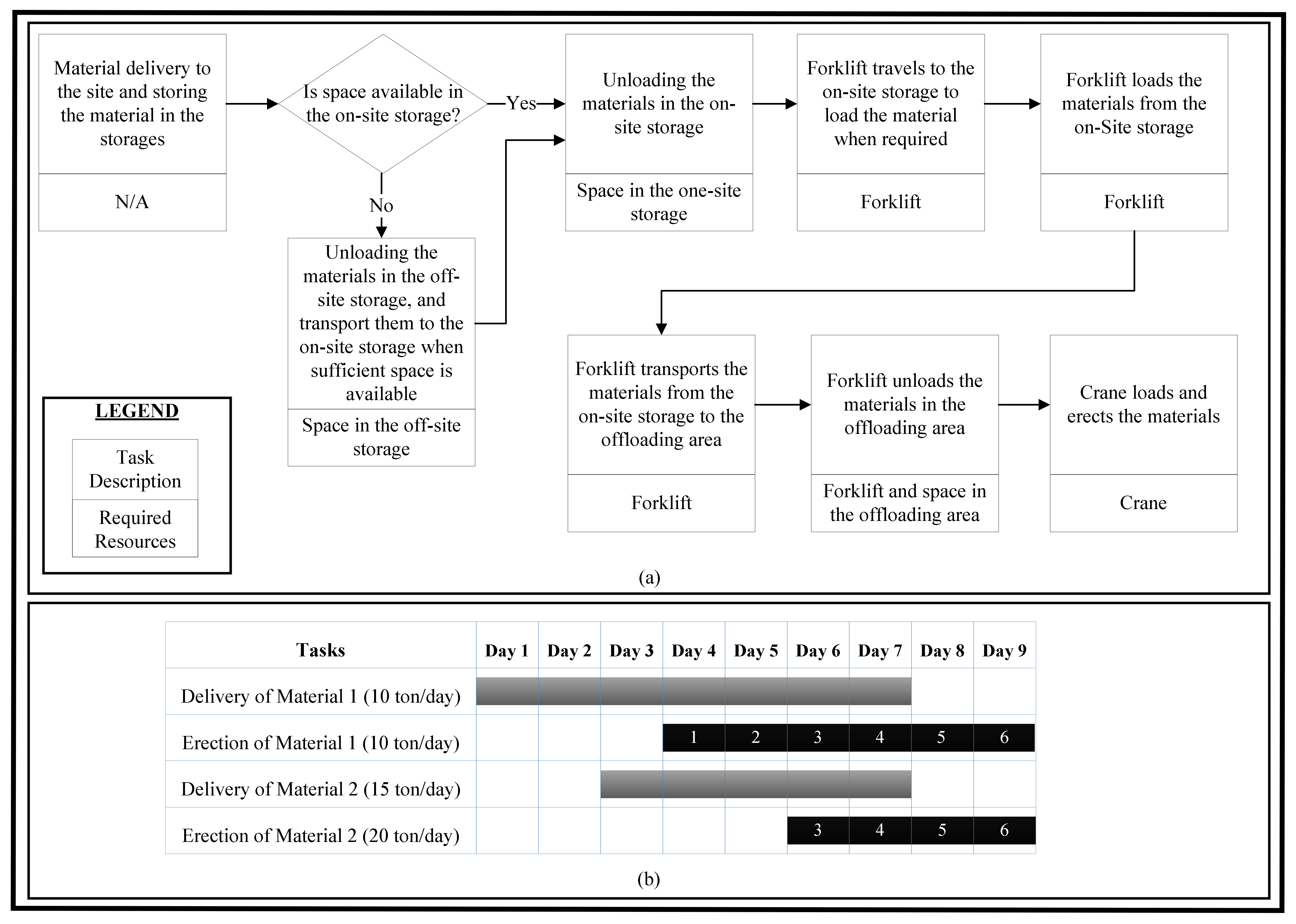
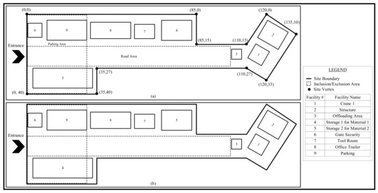
4. Case Study
5. Results and Discussion
6. Verification and Validation
7. Conclusions
- Identifying the most efficient plan, including site layout, material delivery plans, and site logistics;
- Eliminating or minimizing wastes such as on-site transportation and movement, material storage, and waiting time for the material arrival;
- Reducing the project costs by reducing on-site logistics costs, material storage costs, and some potential delays.
Author Contributions
Funding
Institutional Review Board Statement
Informed Consent Statement
Data Availability Statement
Acknowledgments
Conflicts of Interest
Appendix A
Appendix A.1. Facility Element
Appendix A.2. Constraint Element
- To be considered inside the boundary, a given facility must satisfy each of the following conditions:
- ○
- No edge of the facility intersects with any edges of the boundaries;
- ○
- At least one point of the facility (e.g., its center or reference point) is inside the boundary.
- For facilities to be considered non-overlapping, each of the following conditions must be satisfied:
- ○
- No edge of the facility intersects with any edges of other facilities;
- ○
- At least one point of the facility (e.g., its center point) is not inside another facility.
- For inclusion/exclusion of a facility in/from Area A, each of the following conditions must be satisfied:
- ○
- No edge of the facility intersects with the edges of the area;
- ○
- At least one point of the facility (e.g., its center) is inside/outside the area.
- For inclusion/exclusion of a facility in/from Area A, each of the following conditions must be satisfied:
- ○
- No edge of the facility intersects with any edges of the area;
- ○
- At least one point of the facility (e.g., its center point) is inside/outside the area.
- Minimum or maximum distance (Dmin/max) between two points of Facility #j and #k using the Euclidean method:
- Minimum or maximum distance from the edges of Facility #j to Facilit #k:
- ○
- For the minimum distance, an imaginary area, the center and orientation of which are the same as those of Facility #j and the dimensions of which are Wj + 2 × Dmin and Hj + 2 × Dmin, is assumed, and Facility #k should be excluded from this area, where Wj and Hj are the width and height of Facility #j;
- ○
- For the maximum distance, an imaginary area, the center and orientation of which are the same as those of Facility #j and the dimensions of which are Wj + 2 × Dmax and Hj + 2 × Dmax, is assumed, and Facility #k should be included in this area.
Appendix A.3. Programming Codes
| Property Name | Definition of the Property |
|---|---|
| Angle | Rotation angle of the facility |
| CenterLocation.X | X coordinate of the center of the facility |
| CenterLocation.Y | Y coordinate of the center of the facility |
| ElementSize.Width | The length of the facility along the x axis when the rotation is 0° |
| ElementSize.Height | The length of the facility along the y axis when the rotation is 0° |
| Visual Basic: Materials (0).AvailableMaterial C#: Materials (0).AvailableMaterial | The available material units for a specific material listed as the first material in the facility at the current time. For the second and third and so on, 0 is replaced by 1, 2, and so on, respectively |
| Visual Basic: Materials (0).InitialMaterial C#: Materials (0).InitialMaterial | The initial available material units for a specific material listed as the first material in the facility at beginning of the model. For the second and third and so on, 0 is replaced by 1, 2, and so on, respectively |
| Visual Basic: Materials (0).MaterialCapacity C#: Materials (0).MaterialCapacity | The capacity of the facility for a specific material listed as the first material in the facility. For the second and third and so on, 0 is replaced by 1, 2, and so on, respectively. |
References
- Wegelius-Lehtonen, T. Performance measurement in construction logistics. Int. J. Prod. Econ. 2001, 69, 107–116. [Google Scholar] [CrossRef]
- Ying, F.; Tookey, J.; Roberti, J. Addressing effective construction logistics through the lens of vehicle movements. Eng. Constr. Arch. Manag. 2014, 21, 261–275. [Google Scholar] [CrossRef] [Green Version]
- Gambatese, J.; Hinze, J. Addressing construction worker safety in the design phase: Designing for construction worker safety. Autom. Constr. 1999, 8, 643–649. [Google Scholar] [CrossRef]
- Anumba, C.; Bishop, G. Importance of safety considerations in site layout and organization. Can. J. Civ. Eng. 1997, 24, 229–236. [Google Scholar] [CrossRef]
- Skjelbred, S.; Fossheim, M.E.; Drevland, F. Comparing site organization and logistics in the construction industry and the oil industry: A case study. In Proceedings of the 23rd Annual Conference of the International Group for Lean Construction, Perth, Australia, 29–31 July 2015; pp. 13–22. [Google Scholar]
- Dubois, A.; Hulthén, K.; Sundquist, V. Organising logistics and transport activities in construction. Int. J. Logist. Manag. 2019, 30, 620–640. [Google Scholar] [CrossRef]
- Rosenblatt, M.J. The Dynamics of Plant Layout. Manag. Sci. 1986, 32, 76–86. [Google Scholar] [CrossRef] [Green Version]
- Elbeltagi, E.; Hegazy, T.; Eldosouky, A. Dynamic Layout of Construction Temporary Facilities Considering Safety. J. Constr. Eng. Manag. 2004, 130, 534–541. [Google Scholar] [CrossRef]
- Cheng, M.Y.; O’Connor, J.T. ArcSite: Enhanced GIS for Construction Site Layout. J. Constr. Eng. Manag. 1996, 122, 329–336. [Google Scholar] [CrossRef]
- El-Rayes, K.; Khalafallah, A. Trade-off between Safety and Cost in Planning Construction Site Layouts. J. Constr. Eng. Manag. 2005, 131, 1186–1195. [Google Scholar] [CrossRef] [Green Version]
- McKendall, A.R., Jr.; Hakobyan, A. Heuristics for the dynamic facility layout problem with unequal-area departments. Eur. J. Oper. Res. 2010, 201, 171–182. [Google Scholar] [CrossRef]
- Zhang, H.; Wang, J.Y. Particle Swarm Optimization for Construction Site Unequal-Area Layout. J. Constr. Eng. Manag. 2008, 134, 739–748. [Google Scholar] [CrossRef]
- Ning, X.; Lam, K.-C.; Lam, M.C.-K. Dynamic construction site layout planning using max-min ant system. Autom. Constr. 2010, 19, 55–65. [Google Scholar] [CrossRef]
- Ning, X.; Qi, J.; Wu, C. A quantitative safety risk assessment model for construction site layout planning. Saf. Sci. 2018, 104, 246–259. [Google Scholar] [CrossRef]
- Sanad, H.M.; Ammar, M.A.; Ibrahim, M.E. Optimal Construction Site Layout Considering Safety and Environmental Aspects. J. Constr. Eng. Manag. 2008, 134, 536–544. [Google Scholar] [CrossRef]
- El-Rayes, K.; Said, H. Dynamic Site Layout Planning Using Approximate Dynamic Programming. J. Comput. Civ. Eng. 2009, 23, 119–127. [Google Scholar] [CrossRef]
- Schwabe, K.; Teizer, J.; König, M. Applying rule-based model-checking to construction site layout planning tasks. Autom. Constr. 2019, 97, 205–219. [Google Scholar] [CrossRef]
- Jiang, W.; Zhou, Y.; Ding, L.; Zhou, C.; Ning, X. UAV-based 3D reconstruction for hoist site mapping and layout planning in petrochemical construction. Autom. Constr. 2020, 113, 103137. [Google Scholar] [CrossRef]
- Vrijhoef, R.; Dijkstra, J.T.; Koutamanis, A. Modelling and Simulating Time Use of Site Workers With 4d BIM. In Proceedings of the 26th Annual Conference of the International Group for Lean Construction, Chennai, India, 16–22 July 2018; pp. 155–165. [Google Scholar]
- Construction Site Logistics Management Software (Bluebeam). Available online: https://www.bluebeam.com/uk/solutions/site-logistics (accessed on 6 July 2021).
- Thunberg, M.; Rudberg, M.; Gustavsson, T.K. Categorising on-site problems. Constr. Innov. 2017, 17, 90–111. [Google Scholar] [CrossRef]
- Zouein, P.; Tommelein, I. Improvement Algorithm for Limited Space Scheduling. J. Constr. Eng. Manag. 2001, 127, 116–124. [Google Scholar] [CrossRef] [Green Version]
- Said, H.; El-Rayes, K. Optimizing Material Procurement and Storage on Construction Sites. J. Constr. Eng. Manag. 2011, 137, 421–431. [Google Scholar] [CrossRef]
- Ohno, T. Toyota Production System: Beyond Large-Scale Production, 3rd ed.; Productivity Press: New York, NY, USA, 1988. [Google Scholar]
- Murata, K.; Tezel, A.; Koskela, L.; Tzortzopoulos, P. Sources of Waste on Construction Site: A Comparison to the Manufacturing Industry. In Proceedings of the 26th Annual Conference of the International Group for Lean Construction, Chennai, India, 16–22 July 2018; pp. 973–981. [Google Scholar]
- Josephson, P.-E.; Saukkoriipi, L. Waste in Construction Projects: Call for a New Approach; The Centre for Management of the Built Environment, Chalmers University of Technology: Gothenburg, Sweden, 2007. [Google Scholar]
- Liu, J. The Significance of Logistics Performance to Industrial Modular Construction Project under the “Big Site” Scenario. Master’s Thesis, University of Alberta, Edmonton, AB, Canada, 2016. [Google Scholar] [CrossRef]
- Sezer, A.A.; Fredriksson, A. Environmental impact of construction transport and the effects of building certification schemes. Resour. Conserv. Recycl. 2021, 172, 105688. [Google Scholar] [CrossRef]
- Dakhli, Z.; Lafhaj, Z. Considering Materials Management in Construction: An Exploratory Study. Logistics 2018, 2, 7. [Google Scholar] [CrossRef] [Green Version]
- Vrijhoef, R. Improving efficiency and environmental impact applying JIT logistics and transport consolidation in urban construction project. In Proceedings of the Creative Construction Conference, Ljubljana, Slovenia, 30 June–3 July 2018; pp. 552–559. [Google Scholar]
- Lange, S.; Schilling, D. Reasons for an optimized construction logistics. In Proceedings of the 23rd Annual Conference of the International Group for Lean Construction, Perth, Australia, 29–31 July 2015; pp. 733–742. [Google Scholar]
- Tommelein, I.D. Travel-time simulation to locate and staff temporary facilities under changing construction demand. In Proceedings of the 31st Conference on Winter Simulation—A Bridge to the Future—WSC ’99, Phoenix, AR, USA, 5–8 December 1999; pp. 978–984. [Google Scholar]
- Ying, F.J.; O’Sullivan, M.; Adan, I. Simulation of vehicle movements for planning construction logistics centres. Constr. Innov. 2021. [Google Scholar] [CrossRef]
- Marasini, R.; Dawood, N.N.; Hobbs, B. Stockyard layout planning in precast concrete products industry: A case study and proposed framework. Constr. Manag. Econ. 2001, 19, 365–377. [Google Scholar] [CrossRef]
- Alanjari, P.; Razavialavi, S.; AbouRizk, S. A simulation-based approach for material yard laydown planning. Autom. Constr. 2014, 40, 1–8. [Google Scholar] [CrossRef]
- RazaviAlavi, S.; Abourizk, S. Genetic Algorithm–Simulation Framework for Decision Making in Construction Site Layout Planning. J. Constr. Eng. Manag. 2017, 143, 04016084. [Google Scholar] [CrossRef]
- Zhou, F.; Abourizk, S.; Al-Battaineh, H. Optimisation of construction site layout using a hybrid simulation-based system. Simul. Model. Pr. Theory 2009, 17, 348–363. [Google Scholar] [CrossRef]
- RazaviAlavi, S.; Abourizk, S. A hybrid simulation approach for quantitatively analyzing the impact of facility size on construction projects. Autom. Constr. 2015, 60, 39–48. [Google Scholar] [CrossRef]
- Sundquist, V.; Gadde, L.-E.; Hulthén, K. Reorganizing construction logistics for improved performance. Constr. Manag. Econ. 2018, 36, 49–65. [Google Scholar] [CrossRef]
- RazaviAlavi, S.; Abourizk, S. Site Layout and Construction Plan Optimization Using an Integrated Genetic Algorithm Simulation Framework. J. Comput. Civ. Eng. 2017, 31, 04017011. [Google Scholar] [CrossRef]
- Siemens Digital Industries Software. Available online: https://www.plm.automation.siemens.com/global/en/products/manufacturing-planning/plant-simulation-throughput-optimization.html (accessed on 6 July 2021).
- Hajjar, D.; Abourizk, S.M. Building a special purposes simulation tool for earth moving operations. In Proceedings of the 28th Conference on Winter Simulation—WSC ’96, Coronado, CA, USA, 8–11 December 1996; pp. 1313–1320. [Google Scholar]
- Martínez, J.C.; Ioannou, P.G. General purpose simulation with Stroboscope. In Proceedings of the Winter Simulation Conference, San Diego, CA, USA, 11–14 December 1994; pp. 1159–1166. [Google Scholar]
- Sterman, J. Business Dynamics: Systems Thinking and Modeling for a Complex World; McGraw-Hill: New York, NY, USA, 2000. [Google Scholar]
- Sargent, R.G. Verification and Validation of Simulation Models. In Proceedings of the Proceedings of the 2010 Winter Simulation Conference, Baltimore, MD, USA, 5–8 December 2010; pp. 166–183. [Google Scholar]















| Input | Value |
|---|---|
| Forklift velocity | Triangular a (3000, 3500, 4000) (m/h) |
| Loading 1 ton of material from storage using forklift | Uniform b (0.08, 0.12) h |
| Unloading 1 ton of material in the offloading area by forklift | Uniform (0.05, 0.1) h |
| Loading 1 ton of material from the offloading area using crane | Uniform (0.08, 0.15) h |
| Erection of 1 ton of Material 1 using crane | Triangular (0.3, 0.4, 0.45) h |
| Erection of 1 ton of Material 2 using crane | Triangular (0.15, 0.2, 0.25) h |
| Worker travel velocity | Uniform (2000, 2500) (m/h) |
| Construction operation costs | $1930/h |
| Mobilization, maintenance, and demobilization of the storage with size of 30 m × 10 m | $8000 |
| Mobilization, maintenance, and demobilization of storage facility with dimensions of 15 m × 10 m | $4000 |
| Transportation cost of materials to off-site storage | $500 per material delivery |
| Rent cost of off-site storage | $30 per ton of material per day |
| Working hours excluding the lunch break | 8 h per day |
| Facility | Facility Type | Facility Size (Capacity) a | |
|---|---|---|---|
| Layout #1 | Layout #2 | ||
| Structure | N/A | 10 m × 12 m | 10 m × 12 m |
| Crane | N/A | 8 m × 8 m | 8 m × 8 m |
| Offloading Area | Material-dependent | 5 m × 10 m (1 ton) | 5 m × 10 m (1 ton) |
| Office | N/A | 20 m × 8 m | 20 m × 8 m |
| Tool Room | N/A | 10 m × 7 m | 10 m × 7 m |
| Parking | N/A | 20 m × 10 m | 20 m ×10 m |
| Storage of Material 1 | Material-dependent | 15 m × 10 m (20 tons) | 30 m × 10 m (40 tons) |
| Storage of Material 2 | Material-dependent | 30 m × 10 m (40 tons) | 15 m × 10 m (20 tons) |
| Constraint Description | Defined Constraints |
|---|---|
| Parking must be close to the site entrance | Including parking in the parking area |
| Parking must be close to the security gate | Maximum distance between centers of parking and security gate less than 20 m |
| No facilities must block the road | Excluding all facilities from the road area |
| Office must be close to parking | Maximum distance between centers of office and parking less than 30 m |
| Cranes must have access to the offloading area | Maximum distance between center of crane and farthest point of the offloading area must be less than 20 m |
| Crane 1 must have access to the structure | Maximum distance between centers of crane and farthest point of the structure must be less than 20 m |
| All facilities except for the offloading area and structure must be out of the cranes’ zone | Minimum distance between the center of the cranes and the closest point of all facilities except for the offloading area and structure must be greater than 20 m |
| Layout | Layout Costs ($) | Operation Cost ($) | Off-Site Storage Cost for Material 1 ($) | Off-Site Storage Cost for Material 2 ($) | Total Costs ($) |
|---|---|---|---|---|---|
| Layout (a) | 12,000 | 101,924 | 3789 | 3495 | 121,208 |
| Layout (b) | 12,000 | 99,753 | 0 | 7126 | 118,879 |
| Scenario | Layout Costs ($) | Operation Cost ($) | Off-Site Storage Cost for Material 1 ($) | Off-Site Storage Cost for Material 2 ($) | Total Costs ($) |
|---|---|---|---|---|---|
| Base scenario | 12,000 | 99,753 | 0 | 7126 | 118,879 |
| Modified scenario (postponing Material 2 delivery for one day) | 12,000 | 100,851 | 0 | 3386 | 116,237 |
| Test Description | Purpose | Summary of the Test Process |
|---|---|---|
| Dynamic testing, in which the computer program is executed under different conditions and the obtained values are used to determine if the computer program and its implementations are correct | Validation of the constraint element | Using the visualization feature of the tool, satisfaction of the hard constraints in the site layout component was tested for different conditions, and the results were verified as expected. |
| Comparison to other models, in which the results of the model being validated are compared to the results of other models | Validation of the simulation component | The developed simulation model was tested by comparing its results to the results of the model created using GPT. The results obtained from two models were found to be identical. |
| Traces, in which the behaviour of different types of specific entities in the model are traced through the model to determine if the model’s logic is correct | The test is performed using a trace window of the simulation tool, which can print different information such as the time and duration of the loading/unloading and transportation tasks. This information was analyzed and compared to the results from hand calculation of the model to verify if the logic of the model is correct. | |
| Extreme condition tests, in which the model structure and output are tested to be plausible for any extreme and unlikely combination of levels of factors in the system | The model is tested for extreme conditions such as having zero capacity for storage, or having no material delivery in the simulation model. The simulation outputs were found to be plausible for these values of inputs, as they result in zero progress. | |
| Parameter variability—sensitivity analysis, in which changing the values of the input of a model should have the same effect in the model as in the real system | This test was performed by changing different variables such as material delivery and probability of material delivery delay in the simulation model, as presented in the case study. These impacts on project cost, and the trend of changes in the model, were found to be as expected in the real system. | |
| Operational graphics, in which values of various performance measures are shown graphically as the model runs through time | This test was undertaken using graphs produced in the simulation model for the available material in the storages. The combination of this test with the test comparing the results with those of GPT was used to verify the outputs of the model. |
Publisher’s Note: MDPI stays neutral with regard to jurisdictional claims in published maps and institutional affiliations. |
© 2021 by the authors. Licensee MDPI, Basel, Switzerland. This article is an open access article distributed under the terms and conditions of the Creative Commons Attribution (CC BY) license (https://creativecommons.org/licenses/by/4.0/).
Share and Cite
RazaviAlavi, S.; AbouRizk, S. Construction Site Layout Planning Using a Simulation-Based Decision Support Tool. Logistics 2021, 5, 65. https://doi.org/10.3390/logistics5040065
RazaviAlavi S, AbouRizk S. Construction Site Layout Planning Using a Simulation-Based Decision Support Tool. Logistics. 2021; 5(4):65. https://doi.org/10.3390/logistics5040065
Chicago/Turabian StyleRazaviAlavi, SeyedReza, and Simaan AbouRizk. 2021. "Construction Site Layout Planning Using a Simulation-Based Decision Support Tool" Logistics 5, no. 4: 65. https://doi.org/10.3390/logistics5040065
APA StyleRazaviAlavi, S., & AbouRizk, S. (2021). Construction Site Layout Planning Using a Simulation-Based Decision Support Tool. Logistics, 5(4), 65. https://doi.org/10.3390/logistics5040065

