Next Article in Journal
Giving Thanks for the Gift of Life: Karl Barth on Gratitude to God for One’s Own Life
Next Article in Special Issue
Ecclesiastical Museums and the Pontifical Letter on Its Pastoral Functions
Previous Article in Journal
Indigenous Peoples through the Lens of UNESCO
Previous Article in Special Issue
Two Pre-Islamic Places of Worship in the Tourism Landscape of the UAE
 
 
Font Type:
Arial Georgia Verdana
Font Size:
Aa Aa Aa
Line Spacing:
Column Width:
Background:
Article

Trade and the Mosque: An Investigation of Commercial Activities and Mosques in Antalya with Spatial, Legal and Functional Recommendations

by
Büşra Selin Kepenek
1,
Engin Kepenek
2,* and
İbrahim Bakır
1
1
Department of Architecture, Architecture Faculty, Akdeniz University, Antalya 07070, Turkey
2
Department of City and Regional Planning, Architecture Faculty, Akdeniz University, Antalya 07070, Turkey
*
Author to whom correspondence should be addressed.
Religions 2022, 13(10), 958; https://doi.org/10.3390/rel13100958
Submission received: 3 August 2022 / Revised: 6 October 2022 / Accepted: 8 October 2022 / Published: 12 October 2022
(This article belongs to the Special Issue Material Culture and Religion: Perspectives over Time)

Abstract

:
Expenditures, such as repair, heating and lighting costs, and payment of mosque staff’s salaries, are the main cost items that need to be satisfied for mosques to continue their services. Throughout history, these expenses have been met sometimes with the state budget, sometimes through waqfs and associations, and sometimes with the cash aid provided by the people directly in Turkey. Adding a commercial function to the mosque, which was built for the sake of continuous income, has been seen in the history of Turkey since the Ottoman period. However, the commercial units dedicated to the mosque during this period were not always close to the mosque; sometimes they could also be located in very remote location. Today, a type of structure is built which can be called a trade and religious building in the lower floor of the mosque, or as a part of the same floor due to space shortage, cost reduction etc. This type of building, which was interpreted with different perspectives, caused problems in terms of perceptibility, ratio and proportion, visuality, accessibility, noise pollution, and the moral values of the mosque, and even became the subject of lawsuits for the closure of commercial functions. In this context, the commercial functions that the mosques added to the structure in order to find financial resources were examined throughout the city center of Antalya. Accordingly, the architectural projects and zoning status of the 15 identified mosques were examined, and a spatial and configuration analysis was made. The functionality of the mosques was discussed with the mosque community, its officials, and the people in the area close to the mosque via focus group discussions, and examples of the issue brought to the judiciary were examined.

1. Introduction

In the early times of Islam, mosques were at the center of the city, along with cultural, social, political, and economic activities. They were the focal point of public settlements and also the center of all social life. Masjid an-Nabawi, also known as the Prophet’s Mosque, sets an example for the construction of many mosques, and it is not only a place of worship, but also a management and education center where legal, commercial, and social issues are discussed, diplomatic receptions and meetings are held, the state treasury is protected, and religion is taught. The marketplace, which is thought to be an effective tool for inviting masses to Islam, is located close to the mosque at an appropriate distance (Koçyiğit 2013). When we look at the Seljuk period in Anatolian history, we see that the mosques fulfill more than one function, as in the Masjid an-Nabawi. Until assemblies and divans (high government ministries) were established, mosques served many functions, such as providing a place for discussing administrative matters, holding courts, preserving the state treasury, providing education, as well as functioning as gathering places, quarantine areas in cases of epidemic and immigration, and defense areas in case of war (Akın 2016). Similarly, it is known that the marketplace was located near the masjids in the Seljuks, and those who came for the Friday prayer did their grocery shopping there (Hasan 1985). Likewise, Ottoman cities consisted of neighborhoods that developed around mosques and bazaars (Faroqhi 2000). The mosque, which is the focal point of this city system, is the main spatial element, and it undertakes functions beyond its religious purpose and the services gathered around it (Cerasi 1999). This system reached its peak with the kulliyes.
“Kulliye”, meaning a group of buildings consisting two or more units with different functions, is derived from the Arabic word “Kulli”, which began to be seen during the Seljuk period in Anatolia; it became widespread in the period of Beyliks and was one of the main institutions of the Ottoman culture (Haştemoğlu and Kepenek 2018) The kulliye, the focal point of which are mosques and madrasas, include units, such as infants’ schools, public baths, public fountains, caravanserai, and bazaars. Income generating shops, land, and residences are included in the kulliye. The trade function that the mosque offers near or within itself is not only due to its spatial setup, but also it is function as a revenue source designed to satisfy the service, maintenance, and repair expenses of the mosques and social services (Cezar 1985) There are examples of mosques located in kulliye and adjacent to or near commercial buildings, such as bazaars, marketplaces, and covered bazaars built for this purpose (Figure 1, Figure 2 and Figure 3).
In the period between 1923 and 1950, which came after the establishment of the Republic, a new state was built, and all institutions were restructured. The new state that was established needed new buildings but, due to economic problems and the scarcity of building materials, they could not be built, and the existing buildings were used for functions that were deemed necessary (Obuz 2017). In the following years, with the industrialization movements of Turkey, a rapid migration from the village to the city started. Intense population growth caused unzoned urbanization and irregular construction and, therefore, the number of mosques, which were compressed in the dense urban fabric, increased rapidly. Mosques tended to integrate with their sub-units rather than the surrounding units. For the visibility of the mosque, functions, such as a bazaar and a car park, were added to the lower floor by raising the mass (Duysak 2000). Mosques, which started to undertake different additional functions in line with both financial and environmental needs and trends, have been interpreted with different perspectives within the society, administration, and laws, and have become a subject of discussion. Discussions were not limited to the spirituality of mosques, but developed in many ways, such as urban rent, deterioration of functionality, and proportional imbalances between the building and its surroundings. This situation is seen not only in mosques built by the public, but also in mosques built by the state. The Kocatepe Mosque program, which stands out as the largest mosque project to be built in the Republican era, includes a place of worship, a courtyard, offices of the Ministry of Religious Affairs, a library, a conference hall, commercial offices, administrative units, and parking lot (Türkiye Diyanet Foundation 2016). The fact that there is a supermarket under the mosque paved the way for the trade and religious buildings including the small place of worship (Figure 4).
In Turkey, the Directorate of Religious Affairs does not have a legal function or responsibility regarding the construction of mosques; it only appoints and supervises personnel if it is deemed appropriate for existing mosques. Meeting the need for mosques was left to the public through waqfs and associations, so it led to the emergence of structures that were not original, could not meet the public’s needs, and which were forced to evolve differently at later periods. Projects presented as solutions to solve these problems have led to different architectural debates on several topics, such as identity and style. The number of financial discussions about mosques is rather limited. Among them, Onay’s 2009 study entitled “Financing Mosques from the Ottoman Empire to the Republic” investigated the roles of the Directorate of Religious Affairs, waqfs, associations, municipalities, and the public on mosques, and researched which individuals or institutions covered the mosque’s expenses. Dağcı (2010) conducted a survey with religious officials, revealing that 37.7% said that the mosque renovations could not be carried out due to financial difficulties, and that 23.5% stated that they had problems, saying “it is not easy to raise money”. Kaçar (2020) offered an alternative solution with the work of the Directorate of Religious Affairs Mosque Construction and Maintenance Fund Budget and Accounting System, as it was determined that the construction of mosques and the meeting of their expenses on a voluntary basis, where and how the donor wanted, caused some aesthetic and security issues, along with inability to meet the mosque’s needs. This solution is about creating a fund and giving all responsibility to the Directorate of Religious Affairs. Today, a combination of mosques and commercial units is regarded as a solution to the financial problems of mosques. In this study, we explored the results of this preferred solution, attempting to reveal the current relationship between commercial units and mosques and seeking out solutions for the issues complicating the matter.

2. Evaluation of Mosque Fund Management

Expenditures, such as construction, repair, heating and lighting costs, and payment of mosque staff’s salaries are the main cost items that need to be satisfied for mosques to continue their service. Throughout history, these expenses have been sometimes met with the state budget, sometimes with the rent or crop income of real estate, such as fields and shops, by giving income to the mosque, and sometimes with cash aid provided directly by the public (Yediyıldız 1982). Today, associations continue their activities in line with this purpose
Onay (2009) listed the expenses in three different groups in his study on the financing of mosques, as follows:
  • Construction and repair costs of mosques;
  • Salary expenses of mosque staff;
  • Other expenses, such as heating, lighting, water, cleaning, and fixture maintenance.
Covering the expenses of mosques differs according to the construction of mosques both in the Ottoman period and in the Republican period. During the Ottoman period, the expenses of the mosques, such as heating and lighting, were covered by the income generating sections in fused and annexed waqfs, while the expenses of the mosques that had no such income were generally covered by the general public. However, in case of financial difficulties, mosque expenses were paid with financial aid received from the treasury.
Waqfs are institutions of philanthropy and a type of spirituality pious icon in İslamic cities. Many services required in the city, such as religious and cultural services, education services, health services, infrastructure and public works, social security and support services, and philanthropy services, have been provided through funds established as waqfs (Çöteli 2016). The commercial sources (revenue sources), which were built in detail with the waqf system in the Ottoman period, sometimes located on different floors of the mosque structure and sometimes as independent structures from the mosque, started to be built on the lower floor for reasons, such as space shortages, in order to generate income for the mosque and its association (Figure 5, Figure 6, Figure 7 and Figure 8).
The mosque management resorts to various methods, such as collecting donations from the congregation to meet their expenses, generating rental income by building commercial units, such as shops under the mosque, and charging fees for toilet use. According to the regulation on mosques, masjids, and Quran school outbuildings, published by the Directorate of Religious Affairs dated 2014 and numbered 28,893, 10% of the gross revenue of the mosques generated in such ways must be paid as the Directorate’s share. It was decided that two-thirds of the remaining amount should be allocated to mosque expenses, and the remainder should be left to the relevant associations or waqfs, provided that they are used for the purposes specified in their statutes or endowment or waqf deed. According to the same regulation, the tasks of a five-person commission, chaired by the mufti in each province and district and consisting of a preacher, auditor, imam, and the head of the association or a waqf representative, include detection of mosques, masjids, or Quran schools built through their own resources or donations collected, identification of commercial or religious uses of supplementary parts of these structures, and allocation of revenues from these buildings, after the president’s share is deducted, to the association or waqf for mosque expenses (Presidency of Religious Affairs 2014) However, not every mosque has an income source from its commercial units. Currently, the repair, maintenance, cleaning, environmental arrangement, lighting, water needs, and security expenses of mosques and masjids are covered by the Directorate of Religious Affairs. Electricity expenses for the lighting of such places are covered by the appropriation allocated from the budget of the Directorate of Religious Affairs, while heating and cooling expenses belong to the mosque administration and mosque associations. However, mosques often experience problems in meeting such expenses. The news stories about power cuts in mosques, such as Said Nursi Mosque in Gaziantep (Koçyiğit 2013), Yeşil Kubbe Mosque in Diyarbakir (İlkha 2022), and Solakzade Mosque in Erzurum (Zirve 2022), which also offers Quran learning courses, have been in the headlines of various newspapers. Likewise, the news that the electricity meters of the historical Yavuz Sultan Selim Mosque in Istanbul were also removed due to unpaid electricity debt and its subscription was canceled (NTV 2022) confirms that the remaining expenses could not be met.

3. Material and Method

Antalya, the fifth most populous city in Turkey, is also among the top 10 cities with the highest number of mosques in Turkey (Presidency of Religious Affairs 2021). There are contradictions in the conformity of mosques to the zoning plans, their configuration, and their functioning, as is the case throughout Turkey. All mosques in Antalya where the mosque and trade function coexist have been selected as the examination universe.
In the spatial analysis, we examined the distribution of the mosques hosting the trade function in the city center of Antalya, the common and differentiating points in the site selections, and how the surrounding land-use decisions were defined in the 1/1000 and 1/5000 scaled zoning plans and plan notes, the defined functions in other social and technical infrastructure areas, and the relationship with residential areas.
In the analyses conducted in terms of formation, the architectural projects obtained from the relevant municipality and the current use cases were compared, and the changes in the spatial organization were determined by adding a different function.
In the study, the “focus group interview” (FGI), one of the qualitative research methods, was preferred in order to determine the opinions of the mosque staff, the mosque congregation, and the people of the region living close to the mosque. The purpose of the FGI is to create a positive platform that creates a wealth of content from various perspectives, ideas, and assessments (Baş and Akturan 2008). According to Krueger (1994), the purpose of focus group interviews is not to make sense, but to understand; not to generalize, but to describe diversity; not to explain about the participants, but to reveal how the participants perceive the situation. In addition, since there are willing participants in these interviews, involuntary participation in research is also prevented. The reason why this method is chosen for the study is to observe the user experience of the community that uses redundant or required functions that are added to mosques.
According to the data of 2021, 1,462,129 people live in Antalya City Center. There are 518 mosques serving this population. Among the 518 mosques, 15 mosques with a commercial function in the same structure were examined. All mosques in Antalya where the mosque and trade function coexist have been selected as the examination universe. In each mosque, semi-structured questions were applied to groups of 4–10 people; usability, satisfaction, and function evaluations were made. Since the aim was not to generalize, the answers given were not presented in percentages. The keywords were determined by considering the “word and sentence frequencies” in each theme and were analyzed by taking the “descriptive summary” data evaluation of (Krueger 1994) as a guide. Since the study was conducted during the pandemic period, it was important to conduct as many group interviews as possible, rather than a specific sample rate. While this rate is approximately 50% in mosques with a small congregation, it has decreased to approximately 10% in mosques with a large congregation. The prepared forms were applied to 448 people, 20% of the average total congregation.
The ethics approval permission required for the focus group interviews was obtained from the Science and Engineering Sciences Scientific Research and Publication Ethics Committee of Akdeniz University.
Finally, by examining the cases brought to the judiciary authorities and the processes of the lawsuits filed against the administration in the province of Antalya, we discuss how the local administrative judiciary and the Council of State view the issue, which will set a precedent in the future.

3.1. Spatial Analysis of Mosques

Fifteen examples of mosques with trade functions in Antalya were identified with the help of municipalities and mufti offices. Ten of these mosques are located in Kepez District, four in Muratpaşa District, and one in Aksu District. When the general distribution of mosques was examined, it was seen that they were concentrated in the west of Antalya. There is no concrete reason why the choice of location is concentrated in the west of Antalya; however, the mosques with commercial units are located in areas with a common socio-economic structure (Figure 9).
When the general land use of the immediate surroundings of the mosques within the scope of the study is examined, the three mosques differ from the others. These are Akdeniz Sanayi Mosque, Hal Mosque, and Yurtpınar Mosque. Akdeniz Sanayi Mosque is located within the industrial area, close to regions focused on trade and socio-cultural practices, as well as park areas. Hal Mosque, on the other hand, is located in the Antalya Wholesale Market, in the area where the reinforcement areas serving the market tradesmen and commercial activities are located. Both mosques serve the surrounding working areas, rather than the residential areas. Among the mosques examined within the scope of the study, the other mosque that differs in environmental construction and land-use is the Yurtpınar mosque. The Yurtpınar mosque is located in residential areas with low-density rural settlements with greenhouses and cultivated agricultural lands. The common feature of the mosques with a commercial function other than these three mosques is that they are situated in the region where there are dense residential areas. In addition to being located in residential areas, most of the mosques are located in trade-intensive areas and on axes.
Evaluation of the mosques in our sample according to the zoning plan conditions showed that only 2 of the 15 mosques had a commercial function. Only one of the mosques was suitable for zoning plans due to reasons, such as function, drawing distance, additional structure, and high precedents. The common features of the examined mosques in their zoning plans were as follows:
  • They were located in the dense housing texture, in the range of 0.60–1.50;
  • All but one were located on axes defined as trade or optional trade;
  • All but one were located on local distributor or district distributor axes with a width of over 15 m.
In the Spatial Plans Construction Regulation (2014), mosques were grouped into three different classes in terms of their scale. These are the small place of worship, the medium (district) place of worship, and the large place of worship and its complex. Among the mosques with trade function in the same building, only Hüdaverdi Mosque falls into the small mosque class. All of the remaining mosques with trade functions were at the scale of district mosques.

3.2. Analysis of Mosques in Terms of Configuration

The construction permit information could only be accessed for 3 of the 15 mosques with commercial functions due to reasons, such as the lack of projects in the relevant municipalities and mufti offices, or because they date from before official record-keeping began. These are the Güzeloba, Akdeniz Sanayi, and Imam Azam mosques.

3.2.1. Analysis of Güzeloba Mosque in Terms of Configuration

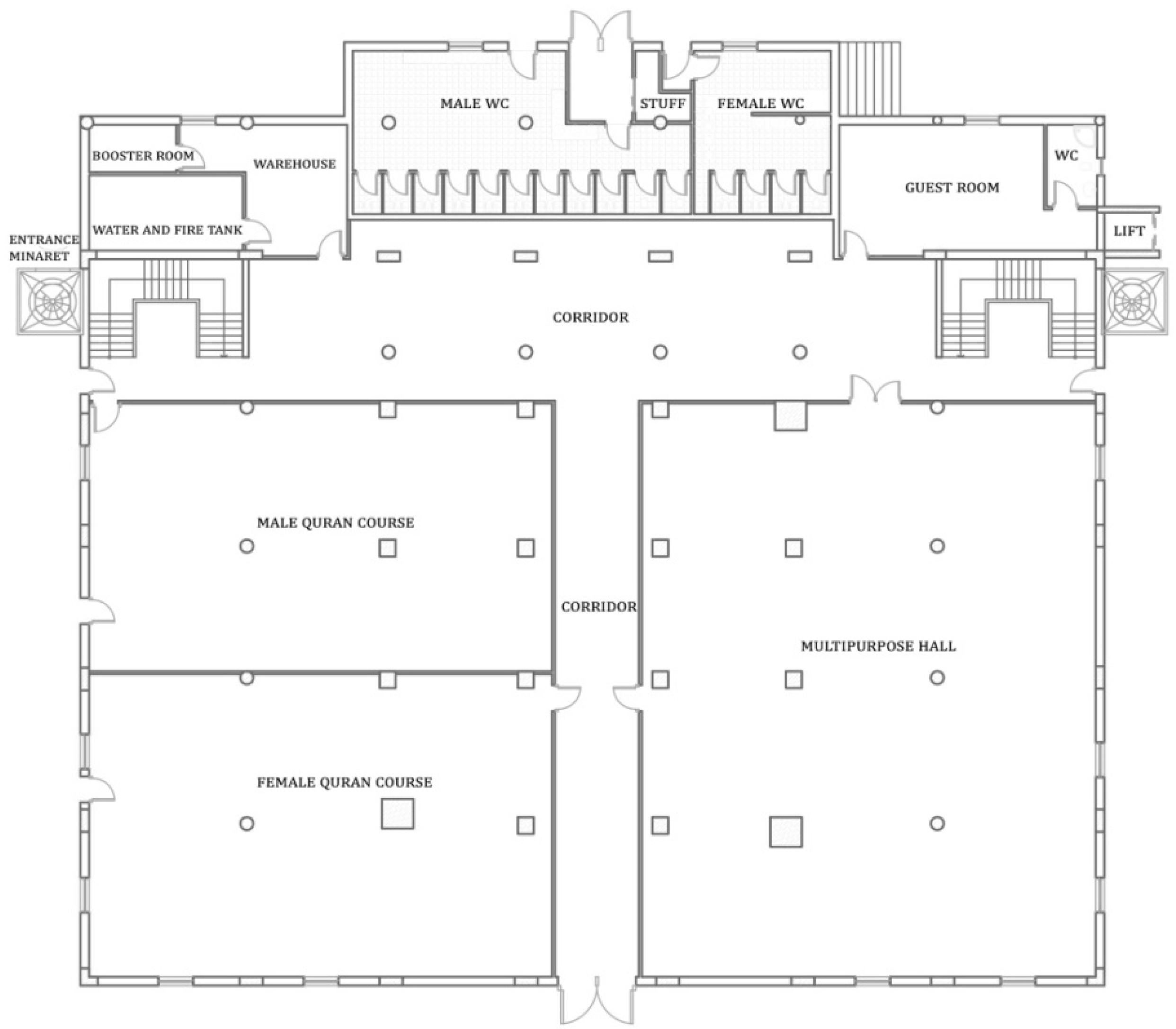
As retrieved from the archives of Muratpaşa Municipality, the Güzeloba Mosque’s layout plan includes only the mosque itself (Figure 10). The toilets and living quarters accommodating the mosque personnel, which is under construction in the north of the mosque, are not included in the layout plan, and the parking areas in the south and south-west of the mosque are not available.
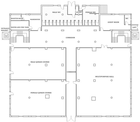
When the floor plans were examined, we detected that the shops on the south side of the mosque were not included in the licensed architectural projects (Figure 11).
Figure 12 shows the south façade in the construction permit of the mosque and the current use. In the floor plans and sections of the construction permit, where the shops are located, there was Quran school for women, a condolence house, and a multi-purpose hall. Quran learning activities were taking place in a different part of the mosque.
During the architectural project in the Güzeloba mosque, it was observed that the market and glassware units had problems, such as loading goods, since no solution was offered for the service needs of the businesses. In addition, the expansion of the trade units towards the mosque garden could not be prevented, and the marketplace image was formed by the exhibition of the products sold up to the garden wall, causing a negative appearance in terms of urban aesthetics (Figure 13).

3.2.2. Analysis of the Imam Azam Mosque in Terms of Configuration

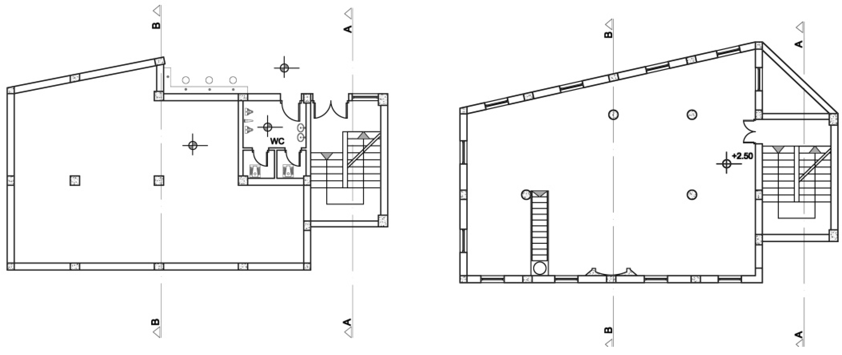
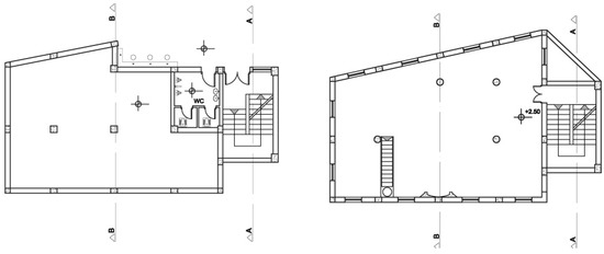
Imam Azam Mosque was built in 1994. The first change took place in 1998 with the addition of a minaret to the structure. Later, living quarters for mosque staff and a Quran school building were added. According to the site plan included in the construction permit received from the relevant municipality, all additions were made by ignoring the building approach distances (Figure 14).
In the plans included in the construction permit, the fountain was built adjacent to the north wall, but a separate mass was added in the construction permit where the fountain was located. With the minaret added to the mosque, a separate section was created by closing the northeast side (Figure 15).
The commercial unit of Imam Azam Mosque is located on the ground floor of the building, which was built adjacent to the mosque structure. Although it is thought that it will not have a negative effect on the mosque because it is in a different structure, the structure in which the commercial unit is located affects the perception of the mosque in terms of its dimensions and has negative effects as a result (Figure 16). Furthermore, additional structures appear to cause aesthetic defects through their added functions without a plan and project.

3.2.3. Analysis of Akdeniz Sanayi Mosque in Terms of Configuration

According to the layout plan in the construction permit (Figure 17), there was no difference in the placement of the mosque or the outbuildings in Akdeniz Sanayi Mosque. The fountain and toilet units were shown in the layout plan and were built in the place indicated therein. However, it was determined that an extra floor was added to the building mass determined as public toilet and this additional floor was used as living quarters by the mosque staff.
The plans and sections of the construction permit of the Akdeniz Sanayi Mosque show that there are kitchen and shop units on the ground floor, and there is an imam room next to the muezzin platform (mahfil), as well as pulpit and altar sections on the first floor (Figure 17 and Figure 18). It was the only mosque where the commercial function was included in the architectural projects among the mosques whose construction permits we were able to find.

3.3. Analysis of Mosques in Terms of Functionality

Ideally, within the scope of the determined time, each group interview was kept between 1–2 h and each participant was given 10–15 min. Groups consisted of 4–9 people, and interviews were carried out in the presence of a moderator who is an expert in the field. The analysis of the data recorded with the voice recorder focused on the differences in individual thoughts rather than numerical data, without quantifying the results. In the focus group interviews with the appropriate number of participants varying from 4 to 10 in each mosque, the discourses of the participants were conveyed in their own words. As the first theme, inquiries were made about the attitudes of people towards other functions beings added to mosques, obtaining information about whether they use the added functions and whether there is any unit they would like to have. In the second theme, it the participants were informed about the income and expenses of the mosque, and they were expected to make up their minds about the solution to the expense problems. In the third theme, questions based on obtaining information about the usability and functionality of the trade function added to the mosque were asked. Each theme was analyzed by taking into account the “word and sentence frequencies”.
The problems and expectations identified with keywords related to adding a function to the mosque, which were addressed as the first theme, are as follows:
  • The added function is not sufficient for attracting more people to the mosque;
  • Creating accessibility problems to the place of prayer;
  • The necessity of units that will ensure the continuous use of mosques;
  • The added function creates the need for additional mosque staff.
The problems and expectations regarding the mosque expenses, which are covered as the second theme, are given as follows:
  • Mosque staff constantly asking for monetary donations after Friday and Eid prayers;
  • Insecurity about where the donations for mosques are spent;
  • Mosques not having enough income to manage themselves;
  • If mosques have enough income to manage themselves, it is thought that this income is more than it should be.
The usability of the trade function, which was treated as the third theme, was examined. The problems thought to be caused by this function are listed as follows:
  • Commercial units considered unsuitable are brought under the roof of the mosque;
  • Perceptibility of the mosque;
  • ismatch between ratio and proportion;
  • Visual deterioration caused by building features, such as signage and banners;
  • Building features, such as the entrance to the warehouse being in the same place as the entrance to the mosque;
  • Accessibility problems caused by arranging the commercial function on the lower floor and taking the mosque to the upper floor;
  • The concern that trade function corrupts the spiritual nature of the mosque;
  • The concern that sound and noise disturb the peace and quiet atmosphere.

3.4. Analysis of Mosques in Terms of Legal Grounds

Regarding the Meltem Mosque, one of the mosques examined within the scope of the study, a lawsuit has been filed against the decision of the council of the Antalya Metropolitan Municipality to add a planning note that “Commercial uses may take place under the mosque building within the planning area. The first Administrative Court decided unanimously to reject the lawsuit filed by Muratpaşa Municipality, deciding that the commercial function was architecturally compatible with the mosque, environmental factors were not adversely affected in its current situation, and that it was in accordance with the principles of urban planning, planning principles, and public interest.
After an appeal, the case was heard at the Konya Regional Administrative Court. The court of appeal approved the prior decision of the local court by a unanimous vote, stating that the decision of the local court and the reasoning on which it was based were in accordance with the law and procedure, and that there was no reason for the annulment of the decision. The judge of the Konya Regional Administrative Court, who voted against the decision, stated that the current regulation describes which buildings and outbuildings can be built within the scope of the place of worship, that trade was not a worship to be performed within the scope of a religious facility, that trade was not a religious service that will benefit people, and that the transaction that includes a business within the scope of a religious facility was contrary to the provisions of the current regulation. Due to the application to the highest administrative court in Turkey (the Council of State) following that decision by the court of appeal, the judicial process regarding the matter is still ongoing.
Akınlar Mosque, which is located within the boundaries of the Kultur Mahallesi of the Kepez district, is another mosque examined within the scope of the study. In the Antalya 4th Administrative Court, a firm has filed a lawsuit against the Kepez and Antalya Metropolitan Municipality, which has taken a decision to reject the 1/1000 scaled implementation development plan change proposal in order to bring a decision on “optional trade” and to add planning notes to the mosque area. In its defense, the Kepez Municipality stated that “the plaintiff’s request was rejected as there was no benefit in its implementation since the current regional needs, planning principles and public interest were taken into account, and it was not in accordance with the demands of the people in the surrounding area”. The experts whom the Antalya 4th Administrative Court consulted in the resolution of the dispute differed in opinion and prepared reports in different directions. The Antalya 4th Administrative Court accepted it as worthy of decision, although there was an annotation in the expert’s report, and decided that there was no harm in having a commercial unit under the mosque. While the Antalya Metropolitan Municipality decided to have a commercial function under the Meltem Mosque, Akınlar Mosque became the defendant in a similar situation and took a stance to make a contrary decision.
In the lawsuits filed for the settlement of the dispute between the parties regarding the use of a mosque and a commercial unit together, the local courts were often observed to decide in favor of commercial units of mosques. However, when the process was examined in detail, we saw that the local courts, the courts of appeal, and the 6th Chamber of the Supreme Court, the Council of State, gave different decisions on the same issue, and even the judges who gave the verdict in the court decisions could not make their decisions unanimously. It is clearly understood that the uncertainty experienced in the judicial process is not only between the parties, but also between the experts in the subject matter and the judges giving the verdict. This further emphasizes the importance of our study, and that the issue in question concerns the whole society and, thus, needs to be clarified and solved.

4. Findings and Discussion

Mosques are the spatial equivalent of Muslims’ culture, belief, and worship. As a structure, they have undergone a considerable change throughout history in terms of material, space organization, plan elements, and understanding. As Oral (1993) points out, the mosque, which has existed as a “multifunctional building” for a long time in history, has emerged as an “independent element” with the Republican period. The commercial function added to this independent element is controversial in terms of planning, architecture, and legal and social aspects. The literature review we carried out within the scope of the study revealed that the use of mosques with different functions has existed since the first mosques, and that it is also in close relationship with commercial activities; however, this relationship began to be seen within the mosque during the Ottoman period.
Among the mosques with a commercial function in our sample, 10 are located in Kepez District, 4 in Muratpaşa District, and 1 in Aksu District. Considering the general distribution of mosques, we observe that they are concentrated in the west of Antalya. Although there is no concrete reason for the concentration of site selection in this region, it could have occurred as a response to the demands made to the administration due to the socio-economic structure of the Kepez district.
A thorough analysis could not be performed on the configuration of mosques due to several reasons, such as there being no available architectural projects in the archives of the relevant municipality. The mosques whose projects we managed to find from the Muratpaşa, Kepez and Aksu municipalities and mufti offices were the Akdeniz Sanayi, Güzeloba, and Imam Azam mosques. The existing drawings indicated that the commercial function of the Akdeniz Sanayi Mosque was included in the project and solutions suitable for trade were devised. However, non-functional changes were made in this mosque as a result of the mosque staff’s desire to be close to the mosque, by adding a residence later. Some problems were encountered when the mosque plans, which were made without considering all the services to be provided, came to the practice stage, and then attempts were made to solve these problems. The current uses, which were not in the project, were mostly living quarters where the imam resides, the Quran school buildings, and the conversion of a part of the mosque into a commercial unit in order to derive income from rents. Since the commercial section was located on the ground floor and the entrance–exit arrangements were not fully resolved, it caused accessibility problems. Subsequent changes or additions to the structure caused inconsistency in terms of functionality, configuration, and aesthetics.
In the functionality analysis conducted to define diversity in the focus group interviews, it was determined that the problems caused by the functions added to the mosque depended on different variables (Figure 19). The trading function created a problem primarily because users thought that the spirituality dimension was negatively affected. The presence of such a unit in a holy place where people come to worship affects some of the congregation and causes them to even change the mosque they regularly attend. The mass that continues to come to the mosque is affected by the type of trade function, its size, location, and the income it earns.
Related to the type of trade function, the users of the mosque wanted units, such as tea houses, to serve the congregation, but they were uncomfortable with the conversion of units that work independently of the mosque and which are rented out only for the purpose of generating income. Some of the users stated that there should be shops where materials, such as religious books and pilgrimage materials should be sold, but they did not find it appropriate to include businesses incompatible with religious content. There are those who think that small-scale businesses, such as grocery stores, greengrocers, and pharmacies may exist, but it would be wrong to turn them into branded supermarkets.
It was determined that the function of the commercial unit, which is integrated into the mosques, created problems for the users in terms of compatibility with the religious structure, perceptibility, ratio and proportion, and visuality. Besides those who think that it is morally unacceptable for the size of the trade function to override the perception of the mosque, there are some who think that if the mosque did not have a minaret and a dome, it would be completely detached from the definition of a mosque. Users generally argue that if a trade function is to be added, it should be constructed in a proportional size that does not exceed the mosque, and that it should not be forgotten that the main building is a mosque. In addition, it is a common problem expressed by both the mosque users and the people of the region that the signs, posters, and banners of businesses, as well as door and window joinery that are not suitable for the structure, create an aesthetically defective image in the mosque.
The functionality of the building is affected due to the fact that the commercial units are at different elevations and facades than the congregation entrances. First of all, taking the mosque to the upper floor and placing the commercial units on the lower floor creates accessibility problems for elderly and disabled people to go upstairs. If this problem was not considered during the project phase, other solutions were sought by mosque associations, municipal aid, the mufti office, or the community as much as possible (Figure 20). It was observed that the commercial functions are on the same front with the entrance of the congregation, and that the service units used by the commercial units disturb the mosque community. These problems are generally experienced with trucks approaching warehouse entrances, stacked parcels blocking the way, and this creates problems for the mosque community, because there are places where those who do not use the mosque have a common entrance and exit door.
In summary, in terms of functionality, the commercial units deemed necessary by the mosque management for its self-management were received negatively by the community depending on the variables involved; these variables affect the reaction of the public in line with the type, size, location, and earnings of the commercial unit. Social functions other than the commercial function added to the structure are generally found to be positive; the negative aspects of the functions vary with the duration of use, user base, and type of use.

5. Conclusions and Recommendations

Different functions brought to the mosques cause other problems in essence, and each problem can be prevented by specific arrangements. Separate evaluations were made for each title of the multi-faceted examination conducted within the scope of the study.

5.1. Spatial Recommendations

It was determined that the mosques had a trade function to provide commercial income by taking advantage of their location rather than by providing services within their sphere of influence. We observed that these mosques, which were positively differentiated from other mosques on the basis of providing commercial benefits, chose a location on the axes where local and district distributors had commercial functions, as a common site selection decision. The recommendations are listed as follows:
  • The principle of equality of planning must be applied in this regard. Along with the necessary architectural solutiions, mosques with similar spatial characteristics should benefit from this positive separation. This can only be achieved wih plan notes in a way that will affect entire plan;
  • According to the equality principle of planning, defining an additional commercial function to each mosque with certain spatial characteristics will lead to religious facility areas that are far from public and have no identity. For this reason, if the commercial function is to be defined for the mosque areas, this decision should be made by making the necessary architectural solutions at the project stage and making the necessary inferences for public spaces on the zoning plans, rather than later;
  • It should not be forgotten that mosques are social reinforcement areas for the general public, even if they provide architectural solutions as well as road width, surrounding density, trade presence along the road, and environmental land-use decisions;
  • In mosque areas, which are part of public areas, such as parks and public service areas, the proposal of a trade function that will disrupt the blue–green historical continuity should be avoided, despite the higher possibility of generating income.

5.2. Configuration Recommendations

The majority of the mosques we examined were built without considering all the functions to be provided, and the mosque sections were changed later as a solution. In this context, the following must be considered:
  • Before starting the construction of the mosque, all functions that it will provide should be decided in a way that does not conflict with the worship function;
  • Participation of competent people, especially architects and engineers, in the planning and construction process should be mandatory;
  • Other functions provided by the mosque should not be in front of the mosque, and certain standards should be maintained in terms of size and proportion;
  • The inputs and outputs of different functions should be designed in such a way that users do not disturb each other. If possible, this should be provided from different elevations and facades or, if not, with alternative “architectural solutions”.

5.3. Functionality Recommendations

As in every architectural structure, user experiences have been used as a criterion, since the comments of the users of the mosque structure are important in determining the deficiencies of the structures, improving them, and developing the architectural typology. In the interviews, it was determined that the expectations of the mosque officials and the community were different, especially in terms of the commercial function. The suggestions made at this stage, where accessibility, aesthetic, and spirituality problems are seen, are as follows:
  • The functions to be provided should be compatible with the changing social structure, opportunities, and needs;
  • The locations of different users of other functions should be arranged so that they do not disturb each other;
  • In cases where the mosque is placed at an elevation, solutions, such as escalators and elevators for the elderly and disabled, should be included in the project;
  • A service entry must be created for commercial functions. A service entrance is an important unit that provides service without occupying the main entrance, provides business functions, such as inputs and outputs of necessary materials and workforce, the removal of wastes, and goods loading. It also needs to be connected to the road;
  • Elements of commercial functions, such as signs and posters, should not be allowed on the mosque structure. Trademarks should be placed in standards and sizes determined by the state, ensuring perceptibility and without disturbing the aesthetics of the mosque.

5.4. Legal Recommendations

  • In the Planned Areas Zoning Regulation and Spatial Plans Construction Regulation, the qualities and nature of the buildings and outbuildings that can be built in the religious facility area are clearly stated. There is no use describing the commercial function between these structures and outbuildings. For this reason, necessary corrections should be made in the regulations in order to make the judicial decisions healthier;
  • When the judicial decisions are examined in detail, it is seen that different courts can give different decisions and that the judges in the same court cannot reach a consensus. For this reason, the subject should not only be addressed in the planned areas zoning regulation and spatial plans building regulation, but an implementation regulation for religious facility areas should be created in more detail;
  • Since the decisions taken in the lawsuits filed on the subject are site-specific, an approach in the form of a precedent decision should not be taken, and the judiciary authorities should always impose an examination with an expert panel consisting of experts in planning and architecture.

Author Contributions

Conceptualization, B.S.K., E.K. and İ.B.; formal analysis, B.S.K., E.K.; investigation, E.K.; methodology, B.S.K. and E.K.; resources, B.S.K. and İ.B.; supervision, B.S.K.; and Writing—original draft, B.S.K. and E.K. All authors have read and agreed to the published version of the manuscript.

Funding

This research received no external funding.

Institutional Review Board Statement

Research Ethics Approval no. 01.09.2022/442040 as issued by the Science and Engineering Sciences Scientific Research and Publication Ethics Committee of Akdeniz University.

Informed Consent Statement

Informed consent was obtained from all subjects involved in the study.

Data Availability Statement

The data that support the findings of this study are available from the corresponding author, Kepenek E., upon reasonable request.

Conflicts of Interest

The authors declare no conflict of interest.

References

  1. Akın, Ahmet. 2016. Tarihi Süreç Içinde Cami Ve Fonksiyonları Üzerine Bir Deneme. Hitit Üniversitesi İlahiyat Fakültesi Dergisi 15: 177–209. [Google Scholar]
  2. Baş, Türker, and Ulun Akturan. 2008. Nitel Araştırma Yöntemleri. Ankara: Seçkin Yayıncılık. [Google Scholar]
  3. Cerasi, Maurice. M. 1999. Osmanlı Kenti. İstanbul: Yapı Kredi Yayınları, p. 375. [Google Scholar]
  4. Cezar, Mustafa. 1985. Tipik Yapılarıyla Osmanlı Şehirciliğinde Çarşı ve Klasik Dönem İmar Sistemi. İstanbul: Mimar Sinan Üniversitesi Yayınları, p. 422. [Google Scholar]
  5. Çöteli, Methiye Gül. 2016. İslam Kentinde Vakıfların Ticaret Bölgesinin Oluşumu Üzerine Etkisi: Hayrat-Akar Ilişkisinin Döngüsel doğası. Vakıflar Dergisi 45: 1–20. [Google Scholar]
  6. Dağcı, Tahir. 2010. Kırsal kesimde görev yapan din görevlilerinin sorunları—Akşehir, Ilgın ve Doğanhisar örneği. Master’s thesis, Selçuk University, Konya, Turkey; p. 143. [Google Scholar]
  7. Duysak, Nazan. 2000. 20. Yüzyıl Türkiye’sinde Cami Tasarımı ve Geleneksel Cami. Master’s thesis, İstanbul Technical University, İstanbul, Turkey; p. 106. [Google Scholar]
  8. Faroqhi, Suraiva. 2000. Osmanlı’da Kent ve Kentliler. İstanbul: Tarih Vakfı Yurt Yayınları, p. 457. [Google Scholar]
  9. Hasan, İbrahim Hasan. 1985. İslam Tarihi. İstanbul: Fatih Yayınevi, p. 7000. [Google Scholar]
  10. Haştemoğlu, Hasan, and Engin Kepenek. 2018. The Architecture of Mevlevi Buildings, One of the Dervish Houses in the Ottoman Geography. The Academic Research Community Publication 2: 278–89. [Google Scholar] [CrossRef]
  11. İlkha. 2022. İlkha News Home Page. Available online: https://ilkha.com/guncel/dicle-edas-diyarbakir-da-caminin-elektrigini-kesti- (accessed on 9 October 2022).
  12. Kaçar, Yusuf. 2020. Diyanet İşleri Başkanlığı Cami Yapımı ve Bakımı Fonu Bütçe ve Muhasebe Düzeni. The Journal of Social Science 4: 705–19. [Google Scholar]
  13. Koçyiğit, Tahsin. 2013. Medine’deki uygulamalarından hareketle—Hz. Peygamber’in şehir tasavvuru hakkında bazı değerlendirmeler. Süleyman Demirel Üniversitesi İlahiyat Fakültesi Dergisi 31: 73–88. [Google Scholar]
  14. Krueger, Richard. A. 1994. Focus Groups: A Practical Guide for Applied Research. London: SAGE, p. 148. [Google Scholar]
  15. Necipoğlu, Gülru. 2005. The Age of Sinan: Architectural Culture in the Ottoman Empire. London: Reaktion Books. [Google Scholar]
  16. NTV. 2022. NTV News Home Page. Available online: https://www.ntv.com.tr/turkiye/ (accessed on 9 October 2022).
  17. Obuz, Ömer. 2017. Yakın Geçmişte Camilerin Farklı Kurumlara Tahsisi ve Askeri Amaçla Kullanımı Üzerine Bir İnceleme. İnsan ve Toplum Bilimleri Araştırma Dergisi 6: 1444–60. [Google Scholar]
  18. Onay, Ahmet. 2009. Osmanlı’dan Cumhuriyet’e Camilerin Finansmanı. Değerler Eğitimi Dergisi 7: 43–80. [Google Scholar]
  19. Oral, Murat. 1993. Gelişim Süreci Içinde Cumhuriyet Dönemi Cami Mimarisinin Irdelenmesi-Konya Örneği. Master’s thesis, Selçuk University, Konya, Turkey; p. 207. [Google Scholar]
  20. Presidency of Religious Affairs. 2014. Law No. 633 on the Establishment and Duties of the Presidency of Religious Affairs. T.C Official Newspaper, January 25. [Google Scholar]
  21. Presidency of Religious Affairs. 2021. The Number of Mosques according to the Classification of Statistical Regional Units. Available online: https://www.diyanet.gov.tr (accessed on 31 December 2021).
  22. Spatial Plans Construction Regulation. 2014, T.C Official Newspaper, June 14.
  23. Türkiye Diyanet Foundation. 2016. Ankara Kocatepe Cami (1967–1987). Ankara: Türkiye Diyanet Foundation. [Google Scholar]
  24. Yediyıldız, B. 1982. Vakıf Müessesinin XVIII. Asır Türk Toplumundaki Rolü. Vakıflar Dergisi 14: 1–27. [Google Scholar]
  25. Zirve. 2022. Erzurum Zirve 2000 News Home Page. Available online: http://www.zirve2000.com/cami-elektriksiz-kaldi/ (accessed on 9 October 2022).
Figure 1. (a) Isparta Firdevs Bey Mosque and its covered bazaar (bedesten); the mosque and commercial unit are located close to each other (b) Tokat Takyeciler Mosque and its covered bazaar; the mosque and commercial unit are located adjacent to each other.
Figure 1. (a) Isparta Firdevs Bey Mosque and its covered bazaar (bedesten); the mosque and commercial unit are located close to each other (b) Tokat Takyeciler Mosque and its covered bazaar; the mosque and commercial unit are located adjacent to each other.
Religions 13 00958 g001
Figure 2. (a) İzmir Başdurak Mosque is located at the lower level of the large-scale commercial unit (b) Afyon Yoncaaltı Mosque, where small-scale commercial units are located at the lower level.
Figure 2. (a) İzmir Başdurak Mosque is located at the lower level of the large-scale commercial unit (b) Afyon Yoncaaltı Mosque, where small-scale commercial units are located at the lower level.
Religions 13 00958 g002
Figure 3. Sokullu Mehmet Paşa Külliyesi, with the colored areas indicating the mosque and commercial buildings (adapted with permission from Necipoğlu 2005).
Figure 3. Sokullu Mehmet Paşa Külliyesi, with the colored areas indicating the mosque and commercial buildings (adapted with permission from Necipoğlu 2005).
Religions 13 00958 g003
Figure 4. Ankara Kocatape Mosque.
Figure 4. Ankara Kocatape Mosque.
Religions 13 00958 g004
Figure 5. (a) Altıntaş Mosque, Balıkesir; (b) Piri Türkistan Mosque, Ankara.
Figure 5. (a) Altıntaş Mosque, Balıkesir; (b) Piri Türkistan Mosque, Ankara.
Religions 13 00958 g005
Figure 6. (a) Tezkireci Osman Efendi Mosque, İstanbul; (b) Şerefiye Mosque, Sakarya.
Figure 6. (a) Tezkireci Osman Efendi Mosque, İstanbul; (b) Şerefiye Mosque, Sakarya.
Religions 13 00958 g006
Figure 7. (a) Sokullu Mehmet Paşa Mosque, İstanbul; (b) Söğütlü Mosque, Malatya.
Figure 7. (a) Sokullu Mehmet Paşa Mosque, İstanbul; (b) Söğütlü Mosque, Malatya.
Religions 13 00958 g007
Figure 8. (a) Eminettin Mosque, Rize; (b) Tepecik Aksa Mosque, İstanbul; (c) Derince Yeni Merkez Mosque, Kocaeli.
Figure 8. (a) Eminettin Mosque, Rize; (b) Tepecik Aksa Mosque, İstanbul; (c) Derince Yeni Merkez Mosque, Kocaeli.
Religions 13 00958 g008
Figure 9. Distribution of mosques with trade functions in Antalya city center.
Figure 9. Distribution of mosques with trade functions in Antalya city center.
Religions 13 00958 g009
Figure 10. Layout plan of Güzeloba Mosque.
Figure 10. Layout plan of Güzeloba Mosque.
Religions 13 00958 g010
Figure 11. Basement floor plan of Guzeloba Mosque.
Figure 11. Basement floor plan of Guzeloba Mosque.
Religions 13 00958 g011
Figure 12. The Guzeloba Mosque’s south façade, drawn in the construction permit/south façade in the current use.
Figure 12. The Guzeloba Mosque’s south façade, drawn in the construction permit/south façade in the current use.
Religions 13 00958 g012
Figure 13. The Guzeloba Mosque’s south façade drawn in the construction permit/south façade in the current use.
Figure 13. The Guzeloba Mosque’s south façade drawn in the construction permit/south façade in the current use.
Religions 13 00958 g013
Figure 14. Layout plan for the construction permit of Imam Azam Mosque and its current status.
Figure 14. Layout plan for the construction permit of Imam Azam Mosque and its current status.
Religions 13 00958 g014
Figure 15. The Imam Azam Mosque’s ground floor plan in the permit and ground floor plan in practice.
Figure 15. The Imam Azam Mosque’s ground floor plan in the permit and ground floor plan in practice.
Religions 13 00958 g015
Figure 16. The Imam Azam Mosque and additional buildings.
Figure 16. The Imam Azam Mosque and additional buildings.
Religions 13 00958 g016
Figure 17. The Akdeniz Sanayi Mosque’s layout and ground floor plan.
Figure 17. The Akdeniz Sanayi Mosque’s layout and ground floor plan.
Religions 13 00958 g017
Figure 18. The Akdeniz Sanayi Mosque A-A and B-B sections.
Figure 18. The Akdeniz Sanayi Mosque A-A and B-B sections.
Religions 13 00958 g018
Figure 19. Variables for functions added to the mosques.
Figure 19. Variables for functions added to the mosques.
Religions 13 00958 g019
Figure 20. (a) Meltem Mosque, escalator solution; (b) Green Mosque, elevator solution; (c) Melikgazi Mosque, ramp solution.
Figure 20. (a) Meltem Mosque, escalator solution; (b) Green Mosque, elevator solution; (c) Melikgazi Mosque, ramp solution.
Religions 13 00958 g020
Publisher’s Note: MDPI stays neutral with regard to jurisdictional claims in published maps and institutional affiliations.

Share and Cite

MDPI and ACS Style

Kepenek, B.S.; Kepenek, E.; Bakır, İ. Trade and the Mosque: An Investigation of Commercial Activities and Mosques in Antalya with Spatial, Legal and Functional Recommendations. Religions 2022, 13, 958. https://doi.org/10.3390/rel13100958

AMA Style

Kepenek BS, Kepenek E, Bakır İ. Trade and the Mosque: An Investigation of Commercial Activities and Mosques in Antalya with Spatial, Legal and Functional Recommendations. Religions. 2022; 13(10):958. https://doi.org/10.3390/rel13100958

Chicago/Turabian Style

Kepenek, Büşra Selin, Engin Kepenek, and İbrahim Bakır. 2022. "Trade and the Mosque: An Investigation of Commercial Activities and Mosques in Antalya with Spatial, Legal and Functional Recommendations" Religions 13, no. 10: 958. https://doi.org/10.3390/rel13100958

APA Style

Kepenek, B. S., Kepenek, E., & Bakır, İ. (2022). Trade and the Mosque: An Investigation of Commercial Activities and Mosques in Antalya with Spatial, Legal and Functional Recommendations. Religions, 13(10), 958. https://doi.org/10.3390/rel13100958

Note that from the first issue of 2016, this journal uses article numbers instead of page numbers. See further details here.

Article Metrics

Back to TopTop