Next Article in Journal
Assessing the Effects of Ocean Warming and Acidification on the Seagrass Thalassia hemprichii
Previous Article in Journal
Coordinated Formation Control of Discrete-Time Autonomous Underwater Vehicles under Alterable Communication Topology with Time-Varying Delay
 
 
Font Type:
Arial Georgia Verdana
Font Size:
Aa Aa Aa
Line Spacing:
Column Width:
Background:
Article

Economic Viability Analysis for an OTEC Power Plant at San Andrés Island

by
Jorge Herrera
1,*,
Santiago Sierra
2,
Hernando Hernández-Hamón
3,
Néstor Ardila
4,5,
Andrés Franco-Herrera
1 and
Asier Ibeas
6
1
Faculty of Natural Sciences and Engineering, Universidad Jorge Tadeo Lozano, Bogotá 110311, Colombia
2
Department of Mechatronics Engineering, Universidad ECCI, Bogotá 111311, Colombia
3
Ecomapp Geospatial Solutions, Bogotá 110231, Colombia
4
División de Biología Marina, ECOMAR Consultoría Ambiental, Bogotá 110311, Colombia
5
Programa de Biología Aplicada, Facultad de Ciencias Básicas y Aplicadas, Campus Nueva Granada, Universidad Militar Nueva Granada, Cajicá 250247, Colombia
6
Department of Telecommunications and Systems Engineering, Universidad Autónoma de Barcelona, 08193 Barcelona, Spain
*
Author to whom correspondence should be addressed.
J. Mar. Sci. Eng. 2022, 10(6), 713; https://doi.org/10.3390/jmse10060713
Submission received: 30 April 2022 / Revised: 17 May 2022 / Accepted: 18 May 2022 / Published: 24 May 2022
(This article belongs to the Topic Marine Renewable Energy)

Abstract

:
This paper presents the economic feasibility analysis of a 2 MW Ocean Thermal Energy Conversion (OTEC) power plant in the open cycle. The plant can supply 6.35% of the average annual consumption of the electricity demand located at San Andrés Island (Colombia). On the one hand, the work presents the selection of the place to locate an offshore facility considering the technical viability while, on the other hand, the economic viability analysis is performed. The latter considers two scenarios: one without desalinated water production and another one with desalinated water. In this way, it is intended to first determine its construction’s technical requirements to analyse its economic performance. This approach allows us to have a general idea of the implementation costs and the benefits obtained with this type of plant, for the particular case of San Andrés, an island in the Colombian Caribbean with sustained stress on electricity production and freshwater generation. The results obtained show that the technology is viable and that the investment can be recovered in an adequate time horizon.

1. Introduction

Islands emit fewer greenhouse gases (GHG) globally than the emissions generated on the continents; however, they have high per capita emissions. For example, the Caribbean Islands generated 0.4% of the world’s total GHG emissions in 2011, but per capita emissions exceeded 120 tons while the world average was 5 tons per person [1]. These emissions are derived mainly from the generation of energy through fossil fuels.
Due to its location far from the rest of the country, the San Andrés Island is part of the non-interconnected areas of Colombia. Currently, electricity at San Andrés Island is generated by diesel power plants, with an approximate cost of USD 0.3 per kWh, which is relatively high compared to an interconnected city whose electricity price fluctuates around USD 0.08 per kWh. This difference is due to the costs of the thermoelectric operation plant and because diesel fuel must be brought by boat from Cartagena. It should also be noted that thermoelectric plants produce greenhouse gases that reach the atmosphere and contribute to global warming. Furthermore, most developing countries have insufficient financial and legislative resources to meet the challenges of climate change [2]. In addition, sustainable energy supplies are needed to reduce greenhouse gas emissions, thus mitigating the devastating effects of climate change [2]. Furthermore, the seventh Sustainable Development Goals of the United Nations Organization emphasise energy affordability and clean energy use. In this way, Colombia and, in particular, the Colombian Caribbean is consequently in need of reliant sources of energy capable of guaranteeing a continuous supply of energy sustainably.
Furthermore, the well-being of communities can be improved by increasing the supply of electricity. However, there are historical reasons why this has not happened in some regions of the Colombian Caribbean. The lack of enough energy is added to other problems concerned with access to potable water, adequate housing, quality food, and high infant mortality rate, among others [3,4]. The reports [5,6] reveal that it will be necessary to increase political commitment and investment in energy at San Andrés Island, or else energy poverty will increase.
If a small part of the energy stored in the oceans could be recovered, the world’s energy demand could be satisfied. However, the technology to recover energy from the oceans is at a very incipient level of development, with the production of marine power being only residual compared to other sources of renewable energy [7,8]. Among the different technologies to harvest energy from the sea, OTEC is one of the most incipient and promising ones. According to [9], the installed capacity of ocean energy in 2050 could reach 337 GW [7]. Along the same lines, a recent analysis by [10] estimates that the industrial-scale potential of an OTEC system is around 13 terawatts worldwide [7]. Moreover, the development of OTEC technologies is an opportunity to generate an industry around this type of energy generation, generating new jobs, both for the construction and maintenance of OTEC plants.
Countries located in tropical areas have the ideal conditions to develop OTEC technology; due to their proximity to the equator, the necessary temperature gradients are generated for the OTEC system operation [11,12]. Additionally, OTEC systems can be built to generate power on a small scale [13]. On the other hand, OTEC systems have greater economic viability in tropical islands not connected to the mainland electricity grid, with potable water deficiencies and air conditioning needs, since these needs could be mitigated simultaneously by an OTEC system [7]. Some developing countries that are investigating the feasibility of OTEC technology are Colombia [14], Indonesia [15,16,17], Panama [18] and Pakistan [7], among others.
OTEC systems use only the temperature gradient ( Δ T ) generated between the sea surface and deep water as an energy source, converting it into renewable energy. The Δ T is directly related to the performance of the OTEC power cycles; Δ T 20 °C is generally needed for an OTEC system to be viable [8]. Therefore, OTEC systems have a low thermal efficiency compared to other renewable energy sources. For example, an OTEC system based on the Rankine cycle generally has an efficiency of no more than 5% [19,20]. However, an OTEC system has the following two advantages. First of all, the power generation system can constantly work 24 h a day, something that is not possible with photovoltaic or wind systems; the temperature of the sea in tropical areas does not change considerably throughout the year, presenting small variations in the order of degrees due to the seasons and climate changes. Additionally, the variation of Δ T between day and night is around 1 °C [15,21]. Second, the OTEC system can generate freshwater as an indirect product [22,23,24,25].
Research on the OTEC system has focused on evaporators, turbines, generators, condensers, pumps, pipes to transport water, and moorings. For example, some investigations focus on the design of turbines to obtain the highest efficiency and net power [15]. Other investigations work on cycles; the most used are the Rankine, and double-stage Rankine [26] cycles; OTEC systems have also been implemented using various cycles such as Kalina [27], Uehara [28], which is an improvement of the Kalina cycle [19,20,27]. At the pipeline level, research is being carried out on the material and coating of the pipeline and the control that can be implemented to keep it stable. The pipe that transports deep seawater is a fundamental component of the OTEC system; this pipe, generally greater than 1000 m, must be designed to withstand the vibrations generated by deep water. Research on flexible structures can be found in [25]. Finally, studies on the economic viability of OTEC systems can be found in [15]. Various studies [16,29] have shown that the economic viability of an OTEC system requires plants with a maximum power of 100 MW, since the cost and complexity increase considerably from systems with the higher power.
Although the technical aspects are essential for developing this technology, it is also true that it is necessary to know the economic viability due to its low efficiency and high implementation costs. In this line, different works with multiple approaches have been developed. For example, in [30], a thermo-economic analysis of a 20 kW OTEC system is conducted by calculating the unit cost of electricity generated. They concluded that OTEC systems are economically viable in regions where the surface seawater temperature is greater than 25 °C. On the other hand, Ref. [31] presents the design of an OTEC Ecopark consisting of a 60 MW OTEC system coupled to a marine aquaculture farm located near the Island of Cozumel. The proposed system meets part of the needs of coastal communities for energy production, desalinated water and food production. The work was based on the technical-economic evaluation of the OTEC Ecopark, and the financial evaluation showed that the OTEC Ecopark is economically viable, having a CAPEX of USD 655.38 M, an OPEX of USD 69.66 M and an annual income of USD 348 M. Studies that carry out economic viabilities can be found in [32,33,34], and an interesting review on economic feasibility studies is presented in [35].
This paper conducts an economic feasibility study of installing an OTEC plant at San Andrés Island. In this sense, it is assumed that the economic viability is closely related to the installation location and the plant’s technical design. The economic viability is based on two analyses, (i) a cash flow analysis of the project, and (ii) a levelized cost of energy (LCOE) are carried out [36]. The latter way of measuring is usually used to assess the cost of employing different methods for generating renewable energy [35]. It should be noted that the LCOE in this work is calculated individually for the proposed OTEC system. Ideally, if it wants to have a total generation from renewable energy, the LCOE should be calculated for the entire system [37].
This study is a starting point to develop this technology on the Island, developing an OTEC system that improves electricity and potable water supply needs. Furthermore, the environmental conditions at San Andrés Island sea (optimal surface temperature, Δ T around 20 °C all year, low frequency of hurricanes, ideal depth at a short distance from the coast) favour the implementation of an OTEC plant, which could generate electricity for several homes on the island without producing polluting waste and operating costs lower than those of the diesel plants.
The paper is organised as follows. Section 2 explains the current energy and water situation at San Andrés Island and briefly describes an OTEC system. Section 3 summarises the methodology for performing the economic analysis. Section 4 exposes an OTEC system location, the technical conditions of the OTEC system, and the economic viability of two possible scenarios presented, without potable water and with potable water. Finally, Section 5 summarises the main conclusions.

2. Problem Formulation

Next, the energy and water needs of San Andrés Island are presented to complete the description of the OTEC system.

2.1. Energy and Water Needs of San Andrés Island

San Andrés Island is located to the west of the Caribbean Sea in the Atlantic Ocean. The island has a warm climate, between 26 °C and 29 °C all year round. Throughout the year, there are two seasons (i) the dry season, usually between January and April, but it can last a maximum of five months, (ii) the other months are part of the rainy season with strong winds, usually between May and December [38].
The economy of the department is based mainly on tourism and commerce. Its main export product is coconut, but it also produces avocado, sugar cane, mango, orange and yucca [39].
It is the least extensive department in the country and has the highest population density, which places the islands in a delicate resource management situation. It is estimated that around 75,000 people live on San Andrés Island, and every year, one million tourists arrive [40]. A considerable figure for a territory of 26 square kilometres with no rivers.
The particular geography of the San Andrés Island, its condition of insularity, having only two aquifers, the amount of population that inhabits the islands, as well as the floating population that arrives throughout the year and depends on imported food are just some of the characteristics that make this territory highly vulnerable to climate change and shortage of potable water.
Currently, the San Andrés Island electricity demand is approximately 160–187 GWh/year [41], which is supplied by diesel-powered thermoelectric plants, consuming around 40 million L of diesel each year, which are brought by boat from Cartagena. In addition, there is also a thermoelectric power plant that works with the burning of garbage, which has an installed capacity of 1.6 MW and a helpful power of 1 MW [42]. This situation, combined with the variable costs of fuel and the transport high prices, serves as an incentive for companies and communities to seek new energy alternatives.
On 17 July 2018, the Colombian government delivered the new desalination system and treated water line for the neighbourhoods of La Loma, El Cove and San Luis, at San Andrés Island, which facilitates the supply of treated water in the communities of this sector and avoids that emergencies occur due to the shortage of water in times of drought. The work had a total initial investment of 4.2 million dollars, and the plant can treat 25 L of water per second, enough to benefit more than 23,000 inhabitants [43].
It is convenient to study more thoroughly the possibilities offered by an OTEC plant for the San Andrés Island since not only can the natural resources available be used to generate electricity, but in addition, OTEC plants can convert seawater into potable water at a cost similar to that of a conventional desalination plant [44]. This last one would be quite beneficial for the island population because it would help to supply this indispensable resource.

2.2. Ocean Thermal Energy

OTEC is a type of renewable energy that uses the Δ T between the surface and deep layers of the sea to move a thermal machine and produce valuable work, usually in the form of electricity [12]. On the other hand, the oceans cover more than 70% of the earth’s surface, and by absorbing heat, it can store a large part of the energy emitted by the sun. In this sense, using a small portion of this stored energy could meet the energy needs of a country [45]. The water column temperature in the Colombian Caribbean depends on the origin of the water masses from different latitudes, such as the North or Central Atlantic, and the contribution of the great rivers of the southern Orinoco and Amazon. Each mass of water has a characteristic temperature, salinity, and density [46]. In the Colombian Caribbean, three thermal layers can be differentiated in the water:
1.
The surface is between 0 and 100 m deep and has a temperature between 25 °C and 30 °C all year round.
2.
The intermediate one is between 100 and 1000 m deep and is a thermal barrier between the upper and lower.
3.
The depth is more than 1000 m deep, where the temperature gradually drops to 4 °C.
In an OTEC system, the cycle efficiency is directly related by the Δ T [47]. The larger the Δ T is, the higher efficiency obtained. OTEC systems should be located close to shore to reduce the transmission costs of the electricity generated [14].

2.2.1. OTEC Cycles

Surface water heats a liquid using a heat exchanger, transforming it into steam, which drives a turbine that generates electricity. The cycle cools the steam with another heat exchanger in deep water, restarting the generation cycle. Currently, the primary cycles are open, closed or hybrid. In an open cycle OTEC system, the hot water found on the surface is taken to a vacuum chamber using a vacuum pump, which operates at a maximum of 3% of atmospheric pressure [48]. The water evaporates rapidly through this pressure drop, and the expanding steam drives a low-pressure turbine connected to an electric turbine. An advantage of this cycle is that the steam leaves the minerals in the vacuum chamber, producing desalinated water, which can be used depending on its physical-chemical characteristics for water for human consumption or irrigation [49]. Closed cycle OTEC systems, on the other hand, use refrigerant, which is heated directly by heat from surface water; the evaporated refrigerant drives an electric turbine and is cooled in deep water. The main advantage of this cycle is lower construction and operation costs; however, it requires more outstanding care in the handling of the refrigerant; it should be noted that the closed cycle does not produce desalinated water [50]. The hybrid cycle contains characteristics of both the open-loop and the closed-loop. In this case, the water is taken through a pump to a vacuum chamber to be evaporated. The water vapour heats a refrigerant that activates an electric turbine; the water vapour is condensed in a heat exchanger located in deep water. The hybrid cycle has desalinated water as an indirect product [51].

2.2.2. Desalinated Water as a Derived Product

An advantage of OTEC systems is the possibility of generating desalinated water. For example, a 1 MW hybrid OTEC system can produce around 4500 m 3 /day of desalinated water [52]. However, it should be noted that the cost of producing desalinated water by this method is comparable to standard desalination plants [48].
OTEC systems can be a solution to both the water and energy needs of San Andrés Island. However, the implementation costs are high. Considering that the Island has limited financial resources, it is necessary to carry out a financial assessment that serves as a starting point when implementing a size project to ensure its long-term viability and profitability. This work is aimed at contributing to this point.

3. Methodology to Perform the Economic Analysis

The proposed methodology is divided into three parts: first, selecting a location for the system; second, a power plant’s technological description and third, an economic analysis, which are described below.

3.1. Methodology Used in the System Location

The OTEC system’s location selection aims to determine the place to settle the plant and select if an onshore or offshore installation is carried out. Bathymetry and temperature differences at San Andrés Island, along with the best location selection are presented. To this end, environmentally data collected from NASA are used. Then, the differential temperature between the sea surface and the 1000 m depth around San Andrés Island is obtained. Next, bathymetry is performed at 7 points on the island, and the point with the most appropriate profile is selected according to [14].

3.2. Power Plant’s Technological Description

The power plant’s technological description is introduced to perform its economic analysis. To this end, various software will be used to simulate the operation of an OTEC power plant at San Andrés Island, understand its benefits and obtain its technical characteristics. Google Earth for the positioning of the plant, Autodesk Inventor for the 3D sketch and Cadesimu for the electrical circuit.
The technical conditions of the OTEC system are defined, and it should be clarified that simplifications are made to obtain an overview of the implementation. The energy model, the sketch of the power plant, the electrical transfer scheme, and the emissions analysis are provided in this step.

3.3. Economic Analysis

Finally, the economic analysis is carried out for two scenarios, namely, without and with potable water production, based on the particular characteristics designed in the previous items. The economic viability is based on two analyses.

3.3.1. Cash Flow Analysis of the Project

The project’s cash flow analysis is made with RETScreen, which calculates and analyses variables associated with the project, being these either technological, economic or environmental. The information that must be supplied to the software is as follows:
  • It is taken from its database based on location, parameters such as temperature, relative humidity, precipitation, atmospheric pressure, wind speed, and daily solar radiation.
  • Type of installation (type of generation)
  • Turbine Specifications: steam flow, operating pressure, temperature, efficiency, generation capacity.
  • Initial and annual costs
  • Transmission and distribution losses
  • Financial parameters: 3% of the inflation rate, project lifetime of 30 years, a debt ratio of 50%, debt interest rate of 3%, debt duration of 15 years.
  • Meteorological parameters correspond to the particular location, such as temperature, relative humidity, precipitation, atmospheric pressure, wind speed, and daily solar radiation. These parameters are taken from the RETScreen database.
The parameters specifying the above characteristic are provided in the technical description of the system in Section 4.2.

3.3.2. Levelized Cost of Energy (LCOE)

The LCOE can be used to assess the economic viability of energy projects. The LCOE can be interpreted as the minimum average price at which the generated electricity should be sold (throughout its useful life) to reach a similar cost to other energy projects. All expenses associated with the project must be considered [35,53]. It can be calculated using Equations (1) and (2).
L C O E = C R F · C A P E X + O P E X E t
with
C R F = i · ( 1 + i ) N ( 1 + i ) N 1
and:
C A P E X : capital expenses.
O P E X : operational expenses.
E t : produced electricity in year t.
C R F : capital recovery factor.
N: project lifetime
i: interest rate.

4. Results

4.1. OTEC System Location

Initially, selecting an appropriate place to locate the OTEC facility is discussed. According to NASA data presented in Table 1, San Andrés Island has the appropriate sea and weather conditions to host an OTEC facility. Table 1 presents the air temperature (AT), relative humidity (RH), daily solar radiation (DSR), wind speed (WS) and earth temperature (ET).
The main requirement to meet is the condition Δ T 20 °C between the surface and deep layers of the ocean. Conveniently, the Δ T is achieved as superficially as possible to minimise the water pumping cost.
It can be seen in Figure 1 that the Δ T at San Andrés Island is greater than 20 °C throughout the year, between the surface and 1000 m depth. In the period of highest temperature, which occurs in September, it is observed that the Δ T is around 22.5 °C. In the season of lowest temperature, which occurs in March, the Δ T is around 20 °C. It should be noted that the blank spaces in Figure 1 mean that the depth is less than 1000 m in those places. Consequently, it is convenient to select locations for the OTEC facility where the access to 1000 m depth is easy. To this end, the bathymetry of the San Andrés Island is presented in [14].
Figure 2 shows the bathymetric profile for seven points at San Andrés Island. The seven points selected are Airport, Barrio Obrero, Hans Dive Shop, La Loma, Playa Rocky Cay, San José, and Tana. The specific location of these points can be found in [14]. The bathymetric and temperature conditions of the seven points are presented in Table 2. Where s i z e m p is the distance from the coast to where the platform break is generated, d e p t h p b is the depth where the platform break starts, d i s t a n c e f c is the distance from the coast to reach 1000 m depth, Δ T m i n is the minimum temperature differential and Δ T m a x is the maximum temperature differential. It can be seen that the maximum width is around 4 km.
Based on the climatological data, the San Andrés Island has an ideal temperature to implement an OTEC plant, in addition to the other necessary characteristics, such as a short distance between 1000 m deep and the coast, with a steep slope and a seabed without many reliefs, the location must have low waves (height less than 3.7 m), and ocean surface currents less than 1.5 m/s, and a low incidence of natural phenomena such as storms, earthquakes, hurricanes, among others [54].
It is concluded that the best location for the OTEC facility is at Tana Point, at coordinates 81°44 W and 12°29 N. Tana presents the 1000 m depth at 2.49 km; another advantage is that the slope decreases rapidly from the break in the platform at 0.35 km until the first kilometre. After that, it descends gently, being an advantage when establishing the mooring system. On the other hand, the Δ T m i n is 19.91 °C, and the Δ T m a x is 22.24 °C, being an ideal temperature for the optimal efficiency of an OTEC system. Therefore, this will be the location chosen to analyse the economic feasibility of the OTEC plant.

4.2. Technical Conditions of the OTEC System

The technical conditions of the proposed system are described below.

4.2.1. Development of the Energy Model

According to the calculations made in [55], they determined that about 4 m 3 /s of surface water and 2 m 3 /s of deep water are required with Δ T 20 °C for each MW of net electricity generated. An average speed of around 2 m/s is required for the seawater to circulate through the pipes from deep water to the surface; in this way, pumping losses more significant than 30% of the gross power are avoided [56]. Taking as a reference [57], which states that 10% of the steam that enters the turbine can be converted into desalinated water, this value is taken as a reference point in the calculations presented here.
An open-cycle OTEC of 2MW is chosen for the design, representing approximately 9.4% of the yearly electricity demand at San Andrés Island (160–187 GWh/year). Table 3 shows the variables used in the energy model.
Equations (3)–(10) present the calculations for the energy model; it should be noted that these calculations are based on recommendations made by [55]. The values were adjusted to meet the 2 MW objective of the proposed plant.
H W F = 4 m 3 / s · 2 = 8 m 3 / s
C W F = 2 m 3 / s · 2 = 4 m 3 / s
W S = 2 m / s
I D H W P = 4 · 8 m 3 / s 2 m / s · ß = 2.25 m
I D C W P = 4 · 4 m 3 / s 2 m / s · ß = 1.59 m
S F T = 8 m 3 / s · 1000 kg / m 3 · 1.17 % = 93.75 kg / s
M F D W = 93.75 kg / s · 10 % = 9.375 kg / s
D W F = 9.37 L / s
In Figure 3, it can be seen the system sketch, along with the amounts of water in both liquid and gaseous states, which are calculated for each processing part. Table 4 presents the values calculated in the RetScreen software, taking into account the thermodynamics of a steam turbine [58]. A 2 MW plant can produce up to 15.8 GWh/year.

4.2.2. Sketch of the Power Plant

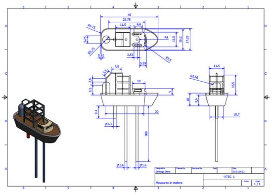
Due to the island’s conditions, an offshore floating OTEC is chosen. An offshore installation is selected instead of an onshore one since San Andrés Island has a high density and limited onshore space. On the other hand, the 1000 m depth is obtained near the coast, reducing transmission costs to the coast of both the electrical energy and the water produced. By the calculations shown above, the pipes’ sizes and the plant itself are dimensioned. A preliminary design is created and shown in Figure 4.

4.2.3. Electrical Transfer Scheme

Since many companies and businesses have diesel plants, these could continue to be used if the OTEC plant needs to stop for maintenance or it cannot provide the required energy. For these cases, the electrical design is presented in Figure 5.
This transfer circuit would allow switching between the OTEC and the Diesel generation to the grid. The change occurs automatically when the power of the OTEC network is not available, in which case it will take eight seconds, and the backup system will be activated. When the OTEC power returns, the backup system will be automatically deactivated, eight seconds will pass, and the central system will re-enter.

4.2.4. Analysis of Emissions

The emissions analysis gives a favourable result for the OTEC plant since, if it compares the same generation of energy made with the existing diesel plants, an annual reduction of 2404 tons of CO 2 can be obtained, equivalent to 1,032,932 L of gasoline not consumed.
In Table 5, it can be seen the broken down of this data, all of them calculated using the RetScreen software by using statistical data on the production of greenhouse gases in power generation plants.

4.3. Result of Economic Analysis

Apart from generating electricity, the OTEC power plant offers another essential advantage: potable water production. In this paper, two possible scenarios for the OTEC plant at San Andrés Island are examined, the first is without potable water production, and the second is if potable water is produced and sold as a public service.
In both cases, an initial investment of 50% of the total project value is assumed by the company that builds the OTEC system, while the other 50% is requested from external financing with a 15-year loan. According to the current OTEC plants, it is estimated that the cost of construction of one of these plants is, on average, USD 15,000 per kW, without counting the transmission lines or the adjustments that must be made to the terrain. It should be noted that the economic data for the construction of the plant and the energy production itself were taken based on the OTEC built by the Natural Energy Laboratory of Hawaii Authority (NELHA) [59], also taking into account importation costs and Colombian labour.

4.3.1. Scenario 1: Without Production of Potable Water

Table 6 presents the information from the financial analysis. In this case, the total initial cost is USD 39,245,257 and has an annual cost of USD 1,528,675 for salaries, maintenance and payments for the external financing. The only income is the sale of electric energy, approximately 15,945 MWh per year, which generates an average annual income of USD 2,657,472. Figure 6 shows the behaviour of the cash flow of scenario 1. The project starts to be profitable after year 13; then, the profit exceeds the annual costs.
Using Equations (1) and (2) a LCOE of 0.22 USD/kWh is obtained for scenario 1. Despite this value may be slightly high compared to [35], whose LCOE is around 0.2 USD/kWh, it is observed that the proposed system has a cost of 36% lower than diesel production, which at this time is around 0.3 USD/kWh. Consequently, installing an OTEC facility without desalination is economically viable on San Andrés Island.

4.3.2. Scenario 2: Potable Water as Public Service

In this case, the total initial cost is USD 42,395,257, as can be seen in Table 7. It is more expensive than the first scenario because equipment must be purchased, and rooms must be conditioned to convert the desalinated water into potable water (it is necessary to adjust the pH to 7.7 and eliminate all types of pathogenic organisms by chlorination, perchlorination or ozonation).
The annual cost is about USD 1,930,641 for salaries, maintenance, payments to the bank, and potable water production. It has two incomes:
The sale of electric energy, approximately 15,945 MWh per year, which generates an average annual income of USD 2,657,472.
The sale of potable water as public service, approximately 295,492 m 3 per year, with a standard price of 1 USD / m 3 . It represents an additional annual income of USD 295,492.
The two incomes add up to an annual total of USD 2,952,964. The project starts to be profitable after year 15. After that, some profits greatly exceed the annual costs, as shown in Figure 7.
For scenario 2, the LCOE obtained is 0.26 USD/kWh, which remains competitive concerning diesel production and makes installing an OTEC facility with desalination economically viable at San Andrés Island.

5. Conclusions

San Andrés Island has the ideal condition for the location of an OTEC power plant since it meets all the technical and environmental conditions required, and a power plant of this type would bring significant benefits to the island, such as an electrical system more ecological, economic and stable, together with a more continuous potable water service.
The results show that the operation of an OTEC plant at San Andrés can be viable. Of course, it requires a high initial investment, but given that it is a clean technology that does not consume fuels and that can cogenerate associated products, in the long term, the investment can be recovered and eventually give benefits.
However, it must be taken into account that the values obtained in this paper are based on a theoretical analysis; these values would change when implementation is carried out since it is possible that environmental factors and the type of soil, among others, impact the costs of the plant. In this sense, it is recommended to carry out more detailed studies regarding the installation and moorings costs in different parts of the island, which may be lines of future research. However, the analysis performed in this work provides the positive overall conclusion that it is worthy to seriously explore the installation of such a facility in San Andrés since the system is economically feasible.

Author Contributions

Conceptualization, J.H., S.S. and A.F.-H.; investigation, S.S. and J.H.; writing—original draft preparation, J.H., H.H.-H., S.S., N.A., A.F.-H. and A.I.; writing—review and editing, J.H., H.H.-H., S.S., N.A., A.F.-H. and A.I.; funding acquisition, J.H., A.F.-H. and A.I. All authors have read and agreed to the published version of the manuscript.

Funding

This work was partially supported by the ERANET-LAC project, which has received funding from the European Union Seventh Framework Programme, and has been funded by the Ministry of Science, Innovation, Universities through the Spanish Research Agency (PCI2019-103376, ERANet17/ERY 0168) and by the Faculty of Natural Sciences and Engineering of the Universidad Jorge Tadeo Lozano.

Institutional Review Board Statement

Not applicable.

Informed Consent Statement

Not applicable.

Data Availability Statement

Not applicable.

Conflicts of Interest

The authors declare no conflict of interest.

Abbreviations

The following abbreviations are used in this manuscript:
ATAir temperature
CWFCold water flow
Δ T Temperature Gradient
DSRDaily solar radiation
DWFDesalinated water flow
ETEarth temperature
GHGGreenhouse Gases
HWFHot water flow
IDCWPInternal diameter of cold water pipe
IDHWPInternal diameter of hot water pipe
LCOElevelized cost of energy
MFDWMass flow of desalinated water
OTECOcean Thermal Energy Conversion
RHRelative humidity
SFTSteam flow in the turbine
T&DTransmission and distribution
WSWind speed

References

  1. Group, W.B. World Development Indicators 2014; World Bank Publications: Washington, DC, USA, 2014. [Google Scholar]
  2. Menyah, K.; Wolde-Rufael, Y. Energy consumption, pollutant emissions and economic growth in South Africa. Energy Econ. 2010, 32, 1374–1382. [Google Scholar]
  3. Mazur, A. Does increasing energy or electricity consumption improve quality of life in industrial nations? Energy Policy 2011, 39, 2568–2572. [Google Scholar]
  4. Aristizábal, A.J.; Herrera, J.; Casta neda, M.; Zapata, S.; Ospina, D.; Banguero, E. A new methodology to model and simulate microgrids operating in low latitude countries. Energy Procedia 2019, 157, 825–836. [Google Scholar]
  5. Opoku, E.E.O.; Kufuor, N.K.; Manu, S.A. Gender, electricity access, renewable energy consumption and energy efficiency. Technol. Forecast. Soc. Chang. 2021, 173, 121121. [Google Scholar]
  6. Danielsen, K. Gender Equality, Women’s Rights and Access to Energy Services; Ministry of Foreign Affairs of Denmark: Copenhagen, Denmark, 2012. [Google Scholar]
  7. Farhan, M.; Qureshi, S.R.; Tayyab, S.M.; Shahid, M. Ocean Thermal Energy Conversion(OTEC)—A Techno-economic Analysis for Coastal Area of Pakistan. In Proceedings of the 2018 International Conference on Power Generation Systems and Renewable Energy Technologies (PGSRET), Islamabad, Pakistan, 10–12 September 2018; pp. 1–8. [Google Scholar] [CrossRef]
  8. Mansour, M.Z.; Shehata, A.S.; Shehata, A.I.; ElSafty, A.F. Techno Selection Approach of Working Fluid for Enhancing the OTEC System Performance. In Proceedings of the 2020 3rd International Conference on Power and Energy Applications (ICPEA), Busan, Korea, 9–11 October 2020; pp. 154–158. [Google Scholar] [CrossRef]
  9. Ocean Energy Europe. Ocean Energy Project Spotlight-Investing in Tidal and Wave Energy; Technical Report; Ocean Energy Europe: Brussels, Belgium, 2017. [Google Scholar]
  10. Rajagopalan, K.; Nihous, G.C. An assessment of global Ocean Thermal Energy Conversion resources under broad geographical constraints. J. Renew. Sustain. Energy 2013, 5, 063124. [Google Scholar]
  11. Semmari, H.; Stitou, D.; Mauran, S. A novel Carnot-based cycle for ocean thermal energy conversion. Energy 2012, 43, 361–375. [Google Scholar]
  12. Herrera, J.; Sierra, S.; Ibeas, A. Ocean Thermal Energy Conversion and Other Uses of Deep Sea Water: A Review. J. Mar. Sci. Eng. 2021, 9, 356. [Google Scholar]
  13. Moriarty, P.; Honnery, D. What is the global potential for renewable energy? Renew. Sustain. Energy Rev. 2012, 16, 244–252. [Google Scholar]
  14. Herrera, J.; Hernández-Hamón, H.; Fajardo, L.; Ardila, N.; Franco, A.; Ibeas, A. Colombian Caribbean Bathymetry for an OTEC System Location. J. Mar. Sci. Eng. 2022, 10, 519. [Google Scholar]
  15. Arief, I.S.; Aldara, D.R. Preliminary Design of Ocean Thermal Energy Conversion (OTEC) Axial Turbine for Laboratory Scale. In Proceedings of the 2018 Asian Conference on Energy, Power and Transportation Electrification (ACEPT), Singapore, 30 October–2 November 2018; pp. 1–8. [Google Scholar] [CrossRef]
  16. Bachtiar, I.K.; Putra, R.D. OTEC Potential Studies For Energy Sustainability In Riau Islands. In Proceedings of the 2019 6th International Conference on Electrical Engineering, Computer Science and Informatics (EECSI), Bandung, Indonesia, 18–20 September 2019; pp. 385–391. [Google Scholar] [CrossRef]
  17. Prakasa, L.O.R.N.; Sholichah, H.; Wikaningrum, T. WOTEC Technology as the Potential Renewable Energy: Literature Study in East Nusa Tenggara. In Proceedings of the 2019 International Conference on Sustainable Engineering and Creative Computing (ICSECC), Bandung, Indonesia, 20–22 August 2019; pp. 83–88. [Google Scholar] [CrossRef]
  18. Tenorio, G.L.; James, A.; Ortega, M.D.L.A.; Jurado, F. OTEC Alternative for the Electric Power Generation in Panama. In Proceedings of the 2019 7th International Engineering, Sciences and Technology Conference (IESTEC), Panama City, Panama, 9–11 October 2019; pp. 197–202. [Google Scholar] [CrossRef]
  19. Matsuda, Y.; Oouchida, R.; Sugi, T.; Goto, S.; Morisaki, T.; Yasunaga, T.; Ikegami, Y. Simultaneous Regulation of Multiple Flow Rates for Power Generation Control of OTEC Plant Using Double-Stage Rankine Cycle. In Proceedings of the 2018 57th Annual Conference of the Society of Instrument and Control Engineers of Japan (SICE), Nara, Japan, 11–14 September 2018; pp. 983–988. [Google Scholar] [CrossRef]
  20. Aosaki, Y.; Matsuda, Y.; Sugi, T.; Goto, S.; Yasunaga, T.; Ikegami, Y. Model Construction of OTEC Plant Using Double-stage Rankine Cycle with Time Delay by Considering Separator and Working Fluid Tank. In Proceedings of the 2019 12th Asian Control Conference (ASCC), Kitakyushu, Japan, 9–12 June 2019; pp. 358–363. [Google Scholar]
  21. Soesilo, K.K. Simulasi Sistem Pembangkit OTEC Siklus Tertutup Dengan Variasi Fluida Kerja Ammonia (NH3) dan Refrigerant (R-12, R-22, R-23, R-32, R134a) Menggunakan Cycle Tempo. Ph.D. Thesis, Institut Teknologi Sepuluh Nopember, Surabaya, Indonesia, 2017. [Google Scholar]
  22. Buitrago, J.; Rada, M.; Hernández, H.; Buitrago, E. A single-use site selection technique, using GIS, for aquaculture planning: Choosing locations for mangrove oyster raft culture in Margarita Island, Venezuela. Environ. Manag. 2005, 35, 544–556. [Google Scholar]
  23. Rajagopalan, K.; Nihous, G.C. Estimates of global Ocean Thermal Energy Conversion (OTEC) resources using an ocean general circulation model. Renew. Energy 2013, 50, 532–540. [Google Scholar]
  24. Nihous, G.C. An estimate of Atlantic Ocean thermal energy conversion (OTEC) resources. Ocean. Eng. 2007, 34, 2210–2221. [Google Scholar]
  25. He, X.; He, W.; Liu, Y.; Wang, Y.; Li, G.; Wang, Y. Robust Adaptive Control of an Offshore Ocean Thermal Energy Conversion System. IEEE Trans. Syst. Man Cybern. Syst. 2020, 50, 5285–5295. [Google Scholar] [CrossRef]
  26. Ikegami, Y.; Yasunaga, T.; Morisaki, T. Ocean thermal energy conversion using double-stage Rankine cycle. J. Mar. Sci. Eng. 2018, 6, 21. [Google Scholar]
  27. Antonelli, M.; Baccioli, A.; Francesconi, M.; Desideri, U.; Martorano, L. Operating maps of a rotary engine used as an expander for micro-generation with various working fluids. Appl. Energy 2014, 113, 742–750. [Google Scholar]
  28. Ikegami, Y. Performance experiments on ocean thermal energy conversion system using the Uehara cycle. Bull. Soc. Sea Water Sci. Jpn. 2006, 60, 32–38. [Google Scholar]
  29. Malik, A. Assessment of the potential of renewables for Brunei Darussalam. Renew. Sustain. Energy Rev. 2011, 15, 427–437. [Google Scholar]
  30. Jung, J.Y.; Lee, H.S.; Kim, H.J.; Yoo, Y.; Choi, W.Y.; Kwak, H.Y. Thermoeconomic analysis of an ocean thermal energy conversion plant. Renew. Energy 2016, 86, 1086–1094. [Google Scholar] [CrossRef]
  31. Tobal-Cupul, J.G.; Gardu no-Ruiz, E.P.; Gorr-Pozzi, E.; Olmedo-González, J.; Martínez, E.D.; Rosales, A.; Navarro-Moreno, D.D.; Benítez-Gallardo, J.E.; García-Vega, F.; Wang, M.; et al. An Assessment of the Financial Feasibility of an OTEC Ecopark: A Case Study at Cozumel Island. Sustainability 2022, 14, 4654. [Google Scholar]
  32. Martel, L.; Smith, P.; Rizea, S.; Van Ryzin, J.; Morgan, C.; Noland, G.; Pavlosky, R.; Thomas, M.; Halkyard, J. Ocean Thermal Energy Conversion Life Cycle Cost Assessment, Final Technical Report, 30 May 2012; Technical Report; Lockheed Martin: Manassas, VA, USA, 2012. [Google Scholar]
  33. Langer, J.; Cahyaningwidi, A.A.; Chalkiadakis, C.; Quist, J.; Hoes, O.; Blok, K. Plant siting and economic potential of ocean thermal energy conversion in Indonesia a novel GIS-based methodology. Energy 2021, 224, 120121. [Google Scholar]
  34. Langer, J.; Ferreira, C.I.; Quist, J. Is bigger always better? Designing economically feasible ocean thermal energy conversion systems using spatiotemporal resource data. Appl. Energy 2022, 309, 118414. [Google Scholar]
  35. Langer, J.; Quist, J.; Blok, K. Recent progress in the economics of ocean thermal energy conversion: Critical review and research agenda. Renew. Sustain. Energy Rev. 2020, 130, 109960. [Google Scholar]
  36. Gardu no-Ruiz, E.P.; Silva, R.; Rodríguez-Cueto, Y.; García-Huante, A.; Olmedo-González, J.; Martínez, M.L.; Wojtarowski, A.; Martell-Dubois, R.; Cerdeira-Estrada, S. Criteria for optimal site selection for ocean thermal energy conversion (OTEC) plants in Mexico. Energies 2021, 14, 2121. [Google Scholar]
  37. Brecha, R.J.; Schoenenberger, K.; Ashtine, M.; Koon Koon, R. Ocean Thermal Energy Conversion—Flexible Enabling Technology for Variable Renewable Energy Integration in the Caribbean. Energies 2021, 14, 2192. [Google Scholar]
  38. Zea, S.; Geister, J.; Garzón-Ferreira, J.; Díaz, J. Biotic changes in the reef complex of San Andres Island (Southeastern Caribbean Sea, Columbia) occuring over three decades. Atoll Res. Bull. 1998, 456, 1–30. [Google Scholar]
  39. Baine, M.; Howard, M.; Kerr, S.; Edgar, G.; Toral, V. Coastal and marine resource management in the Galapagos Islands and the Archipelago of San Andres: Issues, problems and opportunities. Ocean. Coast. Manag. 2007, 50, 148–173. [Google Scholar]
  40. Fabian, C.L.; Iba nez, J.W.; Prieto, F.S.; Camargo, C.C. Groundwater Sustainability Assessment in Small 2 Islands: The Case Study of San Andres in the 3 Caribbean Sea 4. Environ. Sci. 2018. [Google Scholar] [CrossRef]
  41. Osorio, A.F.; Arias-Gaviria, J.; Devis-Morales, A.; Acevedo, D.; Velasquez, H.I.; Arango-Aramburo, S. Beyond electricity: The potential of ocean thermal energy and ocean technology ecoparks in small tropical islands. Energy Policy 2016, 98, 713–724. [Google Scholar]
  42. Payan, L.F.B.; Lopez, D.C. Small-scale steam turbine and electric generation from municipal solid waste. Int. J. Environ. Waste Manag. 2018, 22, 74–86. [Google Scholar]
  43. Grueso López, N. Gestión Predial y Geo-Especialización de Soluciones Hídricas Independientes para el Plan Director del Recurso Hídrico de San Andrés Isla; Repositorio Institucional Universidad Distrital (RIUD): Bogotá, Colombia, 2018. [Google Scholar]
  44. Devis-Morales, A.; Montoya-Sánchez, R.A.; Osorio, A.F.; Otero-Díaz, L.J. Ocean thermal energy resources in Colombia. Renew. Energy 2014, 66, 759–769. [Google Scholar]
  45. Bruch, V.L. An Assessment of Research and Development Leadership in Ocean Energy Technologies; Technical Report; Sandia National Labs.: Livermore, CA, USA, 1994. [Google Scholar]
  46. Correa-Ramirez, M.; Rodriguez-Santana, Á; Ricaurte-Villota, C.; Paramo, J. The Southern Caribbean upwelling system off Colombia: Water masses and mixing processes. Deep. Sea Res. Part I Oceanogr. Res. Pap. 2020, 155, 103145. [Google Scholar] [CrossRef]
  47. Vega, L.A. Ocean thermal energy conversion primer. Mar. Technol. Soc. J. 2002, 36, 25–35. [Google Scholar]
  48. Kim, A.S.; Kim, H.J.; Lee, H.S.; Cha, S. Dual-use open cycle ocean thermal energy conversion (OC-OTEC) using multiple condensers for adjustable power generation and seawater desalination. Renew. Energy 2016, 85, 344–358. [Google Scholar]
  49. Habib, W.B.; Hassam, M.; Rupan, T.H. Study On Electrification of Remote and Isolated Tropical Islands Using OTEC. In Proceedings of the International Exchange and Innovation Conference on Engineering & Sciences, Fukuoka, Japan, 14–15 October 2016; Volume 2, p. 1. [Google Scholar]
  50. Bernardoni, C.; Binotti, M.; Giostri, A. Techno-economic analysis of closed OTEC cycles for power generation. Renew. Energy 2019, 132, 1018–1033. [Google Scholar]
  51. Bechtel, M.; Netz, E. OTEC-Ocean Thermal Energy Conversion. Comp. Anal. Power Gener. Ocean. 2016, 1, 14–18. [Google Scholar]
  52. Edwards, D. OTEC Cold Water Retrieval and Desalination Systems. U.S. Patent 9,181,932, 10 November 2015. [Google Scholar]
  53. Visser, E.D.; Held, A.; Jager, D.D. Methodologies for Estimating Levelised Cost of Electricity (LCOE); European Commission: Brussels, Belgium, 2014. [Google Scholar]
  54. Avery, W.H.; Wu, C. Renewable Energy from the Ocean: A Guide to OTEC; Oxford University Press: Oxford, UK, 1994. [Google Scholar]
  55. Nihous, G.; Vega, L. A review of some semi-empirical OTEC effluent discharge models. In Proceedings of the Ocean Technologies and Opportunities in the Pacific for the 90’s Proceedings (OCEANS’91), Honolulu, HI, USA, 1–3 October 1991; Volume 1, pp. 25–29. [Google Scholar]
  56. Vega, L.A. Ocean thermal energy conversion. In Renewable Energy Systems; Springer: Berlin/Heidelberg, Germany, 2013; pp. 1273–1305. [Google Scholar]
  57. Bose, B.K. Power Electronics in Renewable Energy Systems and Smart Grid: Technology and Applications; Wiley: New York, NY, USA, 2019. [Google Scholar]
  58. Starzmann, J.R.; Schatz, M.; Casey, M.; Mayer, J.; Sieverding, F. Modelling and validation of wet steam flow in a low pressure steam turbine. In Proceedings of the Turbo Expo: Power for Land, Sea, and Air, Vancouver, BC, Canada, 6–10 June 2011; Volume 54679, pp. 2335–2346. [Google Scholar]
  59. Vega, L.A. Economics of ocean thermal energy conversion (OTEC): An update. In Proceedings of the Offshore Technology Conference, Houston, TX, USA, 3–6 May 2010. [Google Scholar]
Figure 1. Differential on water temperature between surface and 1000 m depth around San Andrés Island on March (left) and September (right).
Figure 1. Differential on water temperature between surface and 1000 m depth around San Andrés Island on March (left) and September (right).
Jmse 10 00713 g001
Figure 2. Bathymetric profiles around San Andrés Island, showing how high depths are reached near the coast.
Figure 2. Bathymetric profiles around San Andrés Island, showing how high depths are reached near the coast.
Jmse 10 00713 g002
Figure 3. A schematic diagram showing values for an open-cycle OTEC system of 2 MW.
Figure 3. A schematic diagram showing values for an open-cycle OTEC system of 2 MW.
Jmse 10 00713 g003
Figure 4. A layout for 2 MW OTEC floating device.
Figure 4. A layout for 2 MW OTEC floating device.
Jmse 10 00713 g004
Figure 5. Electrical transfer circuit. In case of a failure, the electric transfer circuit is in charge of switching between energy coming from the OTEC to a backup diesel plant.
Figure 5. Electrical transfer circuit. In case of a failure, the electric transfer circuit is in charge of switching between energy coming from the OTEC to a backup diesel plant.
Jmse 10 00713 g005
Figure 6. Return on investment, and long-term cash-flow, for Scenario 1.
Figure 6. Return on investment, and long-term cash-flow, for Scenario 1.
Jmse 10 00713 g006
Figure 7. Return on investment, and long-term cash-flow, for Scenario 2.
Figure 7. Return on investment, and long-term cash-flow, for Scenario 2.
Jmse 10 00713 g007
Table 1. Climatological data of San Andrés Island, average of the last ten years. Source NASA.
Table 1. Climatological data of San Andrés Island, average of the last ten years. Source NASA.
MonthATRHDSRWSET
(°C)(%)(kWh/m 2 /d)(m/s)(°C)
January26.675.05.47.627.3
February26.375.06.17.227.0
March26.175.86.96.727.1
April26.478.07.06.027.6
May26.782.86.14.928.1
June27.083.95.45.128.3
July2.082.55.55.928.0
August26.983.55.65.128.4
September26.884.55.44.128.8
October27.082.74.94.328.9
November27.279.04.65.628.5
December27.176.04.77.427.8
Anual26.879.95.65.828.0
Table 2. Continental platform break in 7 points of San Andrés Island.
Table 2. Continental platform break in 7 points of San Andrés Island.
Cities size mp depth pb distance fc Slope Δ T min Δ T max
(km)(m)(km)(°C)(°C)
Aeropuerto3.27−39.527.85165.4619.8822.38
Barrio Obrero3.94−58.748.00191.2119.9722.49
Playa Rocky Cay3.29−36.398.75160.3419.9422.40
San José1.01−41.3710.3259.4820.0322.40
Hans Dive Shop0.42−38.642.68403.5319.9122.25
La Loma0.75−113.163.18298.7319.9122.26
Tana0.35−43.862.49324.7719.9122.24
Table 3. Summary of the variables with their respective values calculated for a 2 MW OTEC.
Table 3. Summary of the variables with their respective values calculated for a 2 MW OTEC.
SymbolQuantityValuesUnits
H W F Hot water flow8 m 3 / s
C W F Cold water flow4 m 3 / s
W S Water speed m / s
I D H W P Internal diameter of hot water pipe2.25 m
I D C W P Internal diameter of cold water pipe1.59 m
S F T Steam flow in the turbine kg / s
M F D W Mass flow of desalinated water9.37 kg / s
D W F Desalinated water flow L / s
Table 4. Operating Specifications for Steam Turbine.
Table 4. Operating Specifications for Steam Turbine.
ItemUnityValue
Avaliability90.0%7884 h
Steam flowkg/h337.50
Operating pressure kPa 3.00
Saturation temperature°C23.00
Steam temperature°C28.00
Back pressure kPa 1.00
Steam turbine efficiency%22.00
Actual steam rate kg / kWh 166.88
Power capacity kW 2.02
Electricity exported to grid MWh 15.95
Electricity exported rate MWh 166.67
Table 5. Emissions analysis. Net annual GHG emission reduction 2404 tCO 2 is equivalent to 1,032,932 L of gasoline not consumed.
Table 5. Emissions analysis. Net annual GHG emission reduction 2404 tCO 2 is equivalent to 1,032,932 L of gasoline not consumed.
Base Case Electricity System (Baseline)
GHG emission GHG
factorT&Demission
(excl. T&D)lossesfactor
Country-regionFuell typetCO 2 /MWh%tCO 2 /MWh
ColombiaAll types0.15 L12.30.17
GHG emision reduction summary
Gross annualNet annual
Base caseProposed caseGHGGHG
GHGGHGemissionemission
emissionemissionreductionreduction
tCO 2 tCO 2 tCO 2 tCO 2
Power project2741.7337.22404.52404.50
Table 6. Initial and annual costs, and annual income, for Scenario 1.
Table 6. Initial and annual costs, and annual income, for Scenario 1.
Project Costs and Saving/Income Summary
Initial costs
Feasibility study2.5%$1,000,000
Engineering12.7%$5,000,000
Power system79.9%$31,376,435
Balance of system & misc.4.8%$1,868,822
Total initial costs100%$39,245,257
Annual costs and debt payments
O&M $220,500
Fuel cost-proposed case 0
Debt payments-15 years $1,308,175
Total annual costs$1,528,675
Annual saving and income
Electricity export income$2,657,472
Total annual saving and income$2,657,472
Table 7. Initial and annual costs, and annual income, for Scenario 2.
Table 7. Initial and annual costs, and annual income, for Scenario 2.
Project Costs and Saving/Income Summary
Initial costs
Feasibility study2.4%$1,000,000
Engineering18.9%$8,000,000
Power system74.0%$31,376,435
Balance of system & misc.4.8%$2,018,822
Total initial costs100%$42,395,257
Annual costs and debt payments
O&M $517.465
Fuel cost-proposed case 0
Debt payments-15 years $1,413,175
Total annual costs$1,930,641
Annual saving and income
Electricity export income$2,657,472
Other income (cost) - 30 year$295,492
Total annual saving and income$2,952,964
Publisher’s Note: MDPI stays neutral with regard to jurisdictional claims in published maps and institutional affiliations.

Share and Cite

MDPI and ACS Style

Herrera, J.; Sierra, S.; Hernández-Hamón, H.; Ardila, N.; Franco-Herrera, A.; Ibeas, A. Economic Viability Analysis for an OTEC Power Plant at San Andrés Island. J. Mar. Sci. Eng. 2022, 10, 713. https://doi.org/10.3390/jmse10060713

AMA Style

Herrera J, Sierra S, Hernández-Hamón H, Ardila N, Franco-Herrera A, Ibeas A. Economic Viability Analysis for an OTEC Power Plant at San Andrés Island. Journal of Marine Science and Engineering. 2022; 10(6):713. https://doi.org/10.3390/jmse10060713

Chicago/Turabian Style

Herrera, Jorge, Santiago Sierra, Hernando Hernández-Hamón, Néstor Ardila, Andrés Franco-Herrera, and Asier Ibeas. 2022. "Economic Viability Analysis for an OTEC Power Plant at San Andrés Island" Journal of Marine Science and Engineering 10, no. 6: 713. https://doi.org/10.3390/jmse10060713

APA Style

Herrera, J., Sierra, S., Hernández-Hamón, H., Ardila, N., Franco-Herrera, A., & Ibeas, A. (2022). Economic Viability Analysis for an OTEC Power Plant at San Andrés Island. Journal of Marine Science and Engineering, 10(6), 713. https://doi.org/10.3390/jmse10060713

Note that from the first issue of 2016, this journal uses article numbers instead of page numbers. See further details here.

Article Metrics

Back to TopTop