A Case Study on the Application of the Steel Tube Slab Structure in Construction of a Subway Station
Abstract
:1. Introduction
2. Support Structures in Underground Excavations
2.1. Pile, Beam and Arch (PBA) Method
2.2. The Traditional Pipe Roofing Structure
2.3. The Proposed Supporting Structure
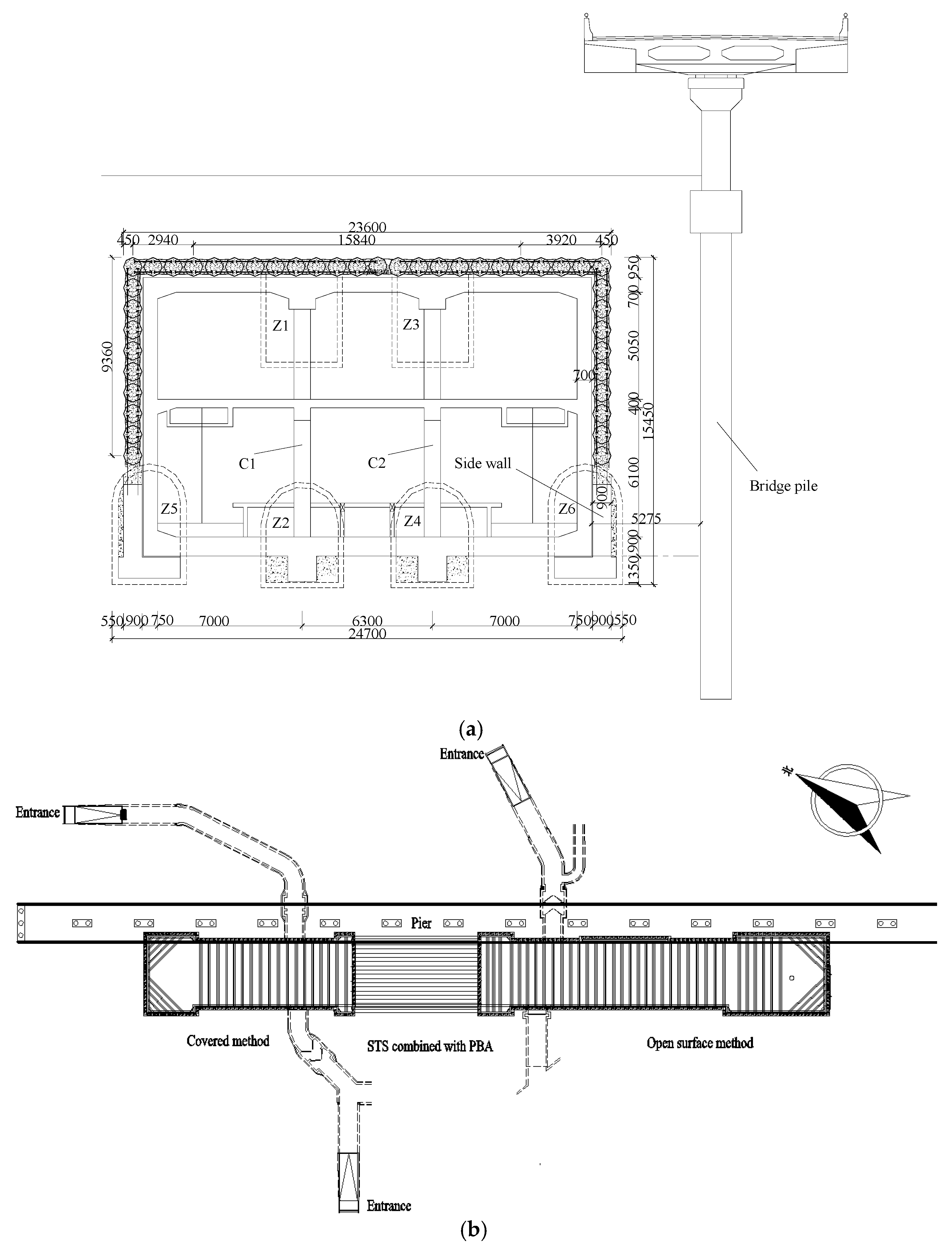
3. A Case Study of the Application of Proposed Support System
3.1. Engineering Overview
3.2. Structural Elements
3.2.1. Construction Process of the Support Structure
3.2.2. Connection of Adjacent Steel Tube
3.2.3. Connection between Cylindrical Steel Columns and Longitudinal Beams
4. In-Situ Monitoring
4.1. Strain of Steel Tube
4.1.1. Monitoring Scheme
4.1.2. Relationship between Stress and Jacking Distance
Longitudinal Stress of Steel Tube at Section A
Circumferential Stress of Steel Tube at Section A
4.2. Stress of Bolt
4.2.1. Monitoring Scheme
4.2.2. Analysis of Monitoring Results
5. Numerical Modeling
5.1. Simplification of STS Structure
5.2. Model and Material Properties
5.3. Results of the Numerical Study and Discussion
5.3.1. Surface Settlement
- (1)
- Stage 1: Construction of the side pilot tunnels Z5 and Z6;
- (2)
- Stage 2: Construction of the pilot tunnels Z1 and Z2 and cylindrical steel column C1;
- (3)
- Stage 3: Construction of the pilot tunnels Z3 and Z4 and cylindrical steel column C2;
- (4)
- Stage 4: Construction of the top plate at mid-span;
- (5)
- Stage 5: Construction of the station hall;
- (6)
- Stage 6: Construction of the platform layer.
5.3.2. Deformation of the STS Structure
Vertical Deformation of the Horizontal Section of the STS Structure
Horizontal Deformation of the Vertical Section of the STS Structure and the Side Walls
5.3.3. Horizontal Deformation of Bridge Piles
5.3.4. Effect of Welding of the Flange Plates in the STS Structure on Ground Settlement.
5.3.5. Impact of the Step Length in the Construction of the Pilot Tunnels
5.3.6. Longitudinal Displacement Profile of the Pilot Tunnel
6. Conclusion
Author Contributions
Acknowledgments
Conflicts of Interest
References
- Sadaghiani, M.H.; Dadizadeh, S. Study on the effect of a new construction method for a large span metro underground station in Tabriz-Iran. Tunn. Undergr. Space Technol. 2010, 25, 63–69. [Google Scholar] [CrossRef]
- Anastasopoulos, I. Building damage during nearby construction: Forensic analysis. Eng. Fail. Anal. 2013, 34, 252–267. [Google Scholar] [CrossRef]
- Peck, R.B. Deep Excavation and Tunneling in Soft Ground. In Proceedings of the 7th International Conference on Soil Mechanics and Foundation Engineering, Balkema, Mexico, July 1969. [Google Scholar]
- O’reilly, M.P.; New, B.M. Settlement above tunnels in the United Kingdom—Their magnitude and prediction. Tunnelling 1982, 82, 173–181. [Google Scholar] [CrossRef]
- Novozhenina, S.U.; Vystrchila, M.G. New method of surface settlement prediction for saint-petersburg metro escalator tunnels excavated by EPB TBM. Procedia Eng. 2016, 150, 2266–2271. [Google Scholar] [CrossRef]
- Kivi, A.V.; Sadaghiani, M.H.; Ahmadi, M.M. Numerical modeling of ground settlement control of large span underground metro station in Tehran Metro using Central Beam Column (CBC) structure. Tunn. Undergr. Space Technol. 2012, 28, 1–9. [Google Scholar] [CrossRef]
- Coller, P.J.; Abbott, D.G. Microtunneling Techniques to Form an Insitu Barrier around Existing Structures. In High Level Radioactive Waste Management, Proceedings of the Fifth Annual International Conference, Las Vegas, NV, USA, 22–26 May 1994; American Society of Civil Engineers: Reston, VA, USA, 1994. [Google Scholar]
- Musso, G. Jacked pipe provides roof for underground construction in busy urban area. Civ. Eng. 1979, 49, 79–82. [Google Scholar]
- Ire, H. Tubular trust jacking for underground roof construction on the Antwerp Metro. Tunnelling 1985, 5, 13–15. [Google Scholar]
- Wang, H. Optimization of pipe roof reinforcement applied in tunnel construction under complex conditions. Electron. J. Geotech. Eng. 2012, 17, 301–310. [Google Scholar]
- Yamazoyi, T.; Yomura, J.; Takahara, Y.; Ikeda, T.; Fujita, Y. Construction work in Hio section of Kainan route of Kinki Expressway: Large diameter box culvert jacking work by ESA method. Civ. Constr. 1991, 32, 17–28. [Google Scholar]
- Kaneke, M.; Sibata, Y.; Katou, K. The construction of large section tunnel under highway using FJ method in Oosawa Narita Line. Civ. Constr. 2003, 41, 2–9. [Google Scholar]
- Yasuhisa, B. Construction methods of the structures passing through under railway lines. Jpn. Railw. Eng. 1987, 4, 6–9. [Google Scholar]
- Jeon, H.T.; Kim, Y.H.; Kim, S.K. The construction of Lot 923 subway station using the trenchless TRCM (Tubular Roof Construction Method). Harmony Nat. Civiliz. 2007, 55, 39–47. [Google Scholar]
- Lee, W.G.; Lee, S.B.; Lee, R.C. A study on the damage reinforcement of gallery pipes under the ground subjected to various railway loads. J. Korean Soc. Railw. 2004, 9, 277–282. [Google Scholar]
- Yao, D.J.; Wu, Z.H.; Zhang, Y.H. Design and analysis of pipe roofing method in soft clay. Chin. J. Rock Mech. Eng. 2004, 23, 4999–5005. [Google Scholar]
- Zhu, H.H.; Yan, Z.G.; Li, X.Y.; Liu, X.Z.; Shen, G.P. Analysis of construction risks for pipe-roofing tunnel in saturated soft soil. Chin. J. Rock Mech. Eng. 2005, 24, 5549–5554. [Google Scholar]
- Li, Y.S.; Zhang, K.N.; Huang, C.B. Analysis of surface subsidence of tunnel built by pipe-roof pre-construction method. Rock Soil Mech. 2011, 32, 3701–3706. [Google Scholar]
- Zhang, P.; Ma, B.S.; Zeng, C.; Xie, H.M.; Li, X.; Wang, D.W. Key techniques for the largest curved pipe jacking roof to date: A case study of Gongbei tunnel. Tunn. Undergr. Space Technol. 2016, 59, 134–145. [Google Scholar] [CrossRef]
- Kang, Y.S.; Liu, Q.S.; Cheng, Y.; Liu, X.Y. Combined freeze-sealing and New Tubular Roof construction methods for seaside urban tunnel in soft ground. Tunn. Undergr. Space Technol. 2016, 58, 1–10. [Google Scholar] [CrossRef]
- Gou, D.M.; Yang, J.S.; Zhang, G. Deformation monitoring and mechanical behaviors of pipe-roof in shallow tunnels. Chin. J. Rock Mech. Eng. 2007, 26, 1258–1264. [Google Scholar]
- Zhao, W.; Jia, P.J.; Wang, L.G.; Guan, Y.P.; Li, S.G.; Zhao, Z. Experimental study on the flexural capacity of steel tube slab members of subway station. Eng. Mech. 2016, 33, 167–176. [Google Scholar]
- Guan, Y.P.; Zhao, W.; Li, S.G.; Zhang, G.B. Key techniques and risk management for the application of the Pile-Beam-Arch (PBA) excavation method: A case study of the Zhongjie subway station. Sci. World J. 2014, 7, 1–16. [Google Scholar] [CrossRef]
- Liu, X.R.; Liu, Y.Q.; Qu, W.B.; Tu, Y.L. Internal force calculation and supporting parameters sensitivity analysis of side piles in the subway station excavated by Pile-Beam-Arch method. Tunn. Undergr. Space Technol. 2016, 56, 186–201. [Google Scholar] [CrossRef]
- Hemerijckx, E. Tubular thrust jacking for underground roof construction on the Antwerp Metro Part 2. Tunn. Tunn. Int. 1983, 15, 27–30. [Google Scholar]
- Hisatake, M.; Ohno, S. Effects of pipe roof supports and the excavation method on the displacements above a tunnel face. Tunn. Undergr. Space Technol. 2008, 23, 120–127. [Google Scholar] [CrossRef]
- Xin, X.; Zhao, W.; Guan, Y.P. Numerical Simulation Research on Transverse Anti—bending Characteristics of Concrete Filled Steel Tubes in STS Method for Subway Stations. J. Water Resour. Arch. Eng. 2014, 12, 74–77. [Google Scholar]
- Jia, P.J.; Zhao, W.; Hao, Y.C.; Han, J.Y. Numerical analysis of the mechanical properties of steel tube slab component under different structural parameters. J. Northeast. Univ. 2016, 37, 1177–1181. [Google Scholar]
- Guan, Y.P.; Zhao, W.; Wang, L.G.; Jia, P.J.; Zhao, Z.; Hao, Y.C. Study on parameters optimization and the flexural behavior of steel tube slab structures. Eng. Mech. 2017, 34, 83–91. [Google Scholar]
- Zhang, P.; Wang, X.Y.; Zeng, P.; Ma, B.S. Situ monitoring of mechanical characteristics of pipes during steel curved pipe jacking under large buried depth. Chin. J. Geotech. Eng. 2016, 38, 1842–1848. [Google Scholar]
- Love, A.E.H. A Treatise on the Mathematical Theory of Elasticity; Cambridge University Press: Cambridge, UK, 1927. [Google Scholar]
- Xiao, J.H. Study on Flexural Behavior of STS Structure with Steel Pipe Diameter and Concrete Filling Rate. Master’s Thesis, Northeastern University, Liaoning, China, 2017. [Google Scholar]
- Jia, P.J.; Zhao, W.; Guan, Y.P.; Li, S.G.; Han, J.Y.; Hou, W.Y.; Wang, C.; Liu, Y.A. Numerical simulation and experimental study on flexural behavior of steel tube slab members. J. Cent. South Univ. 2016, 47, 2738–2746. [Google Scholar]
- Liu, H.W. Material Mechanics; Higher Education Press: Beijing, China, 2005. [Google Scholar]
- Liu, J.; Fang, Q.; He, S.; Wang, E.; Zhou, H. Enlarging a large-diameter shield tunnel using the Pile-Beam-Arch method to create a metro station. Tunn. Undergr. Space Technol. 2015, 49, 130–143. [Google Scholar] [CrossRef]
- GB50157, Code Design of Design; Architecture & Building Press: Beijing, China, 2013.
- Zhao, W.; Han, J.Y.; Chen, Y.; Jia, P.J.; Li, S.G.; Li, Y.; Zhao, Z. A numerical study on the influence of anchorage failure for a deep excavation retained by anchored pile walls. Adv. Mech. Eng. 2018, 10. [Google Scholar] [CrossRef]
- Khoiri, M.; Ou, C.Y. Evaluation of deformation parameter for deep excavation in sand through case histories. Comput. Geotech. 2013, 47, 57–67. [Google Scholar] [CrossRef]
- Li, B.; Ji, F.Y. Influence of shield tunneling on adjacent deep foundation pit. J. Shenyang Jianzhu Univ. 2018, 34, 639–644. [Google Scholar]
- Itasca Consulting Group. Fast Lagrangian Analysis of Continua in 3 dimensions, interfaces. In User Manual of FLAC3D 5.0; Itasca Consulting Group: Minneapolis, MN, USA, 2012. [Google Scholar]





































| Soil | Medium Coarse Sand | Gravel Sand | Round Gravel | Boulder Clay | |
|---|---|---|---|---|---|
| Index | |||||
| Count | 6 | 49 | 125 | 97 | |
| maximum value | 14.1 | 19 | 17.4 | 17 | |
| minimum value | 10.6 | 7.3 | 7.0 | 7.2 | |
| average value | 12.9 | 12.3 | 10.5 | 10.4 | |
| standard deviation | 1.265 | 3.293 | 2.267 | 3.324 | |
| variation coefficient | 0.098 | 0.268 | 0.216 | 0.262 | |
| correction factors | 0.919 | 0.934 | 0.967 | 0.955 | |
| standard value | 11.9 | 11.5 | 10.2 | 12.1 | |
| Soil | Thickness (m) | Internal Friction Angle (0) | Cohesion c (kPa) | Poisson Ratio | Deformation Modulus (MPa) | Density (kg·m−3) | 
|---|---|---|---|---|---|---|
| backfill soil | 3.4 | 10 | 1 | 0.28 | 16 | 1800 | 
| gravel sand | 6.0 | 37.0 | 1 | 0.26 | 33.0 | 2000 | 
| round gravel | 11.0 | 36.7 | 1 | 0.25 | 30.9 | 2050 | 
| medium coarse sand | 10.0 | 34.0 | 1 | 0.29 | 19.0 | 1980 | 
| boulder clay | non-penetrating layer | 29.3 | 1 | 0.30 | 23.0 | 2000 | 
| Material | ν | E (GPa) | γ (kN·m-3) | 
|---|---|---|---|
| primary lining | 0.2 | 20 | 24 | 
| foot-lock bolt | 0.25 | 72 | 25 | 
| top longitudinal beam | 0.2 | 32.5 | 24 | 
| bottom longitudinal beam | 0.2 | 32.5 | 24 | 
| cylindrical steel column | 0.25 | 69 | 38 | 
© 2018 by the authors. Licensee MDPI, Basel, Switzerland. This article is an open access article distributed under the terms and conditions of the Creative Commons Attribution (CC BY) license (http://creativecommons.org/licenses/by/4.0/).
Share and Cite
Jia, P.-j.; Zhao, W.; Chen, Y.; Li, S.-g.; Han, J.-y.; Dong, J.-c. A Case Study on the Application of the Steel Tube Slab Structure in Construction of a Subway Station. Appl. Sci. 2018, 8, 1437. https://doi.org/10.3390/app8091437
Jia P-j, Zhao W, Chen Y, Li S-g, Han J-y, Dong J-c. A Case Study on the Application of the Steel Tube Slab Structure in Construction of a Subway Station. Applied Sciences. 2018; 8(9):1437. https://doi.org/10.3390/app8091437
Chicago/Turabian StyleJia, Peng-jiao, Wen Zhao, Yang Chen, Shen-gang Li, Jian-yong Han, and Jia-chao Dong. 2018. "A Case Study on the Application of the Steel Tube Slab Structure in Construction of a Subway Station" Applied Sciences 8, no. 9: 1437. https://doi.org/10.3390/app8091437
APA StyleJia, P.-j., Zhao, W., Chen, Y., Li, S.-g., Han, J.-y., & Dong, J.-c. (2018). A Case Study on the Application of the Steel Tube Slab Structure in Construction of a Subway Station. Applied Sciences, 8(9), 1437. https://doi.org/10.3390/app8091437
 
        



 
       