Research on the Seismic Performance of Precast RCS Composite Joints Considering the Floor Slab Effect
Abstract
1. Introduction
2. Finite Element Model of Prefabricated Modular RCS Composite Node
2.1. Overview of Node Design
2.1.1. Mechanical Properties of Materials
2.1.2. The Constitutive Relationship of Steel, Bolt Material and Concrete
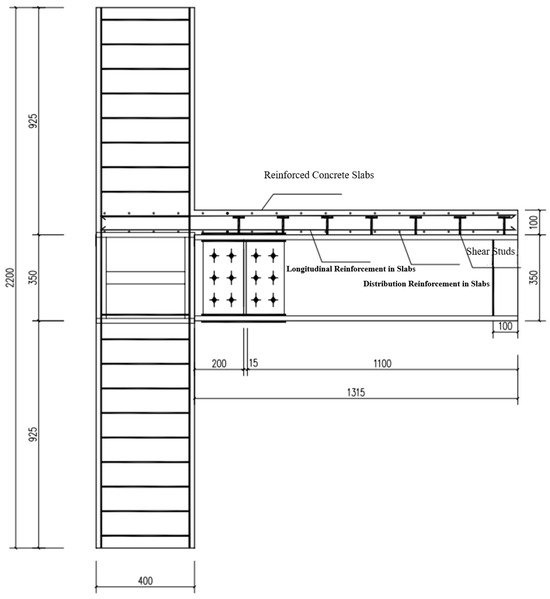
2.1.3. Node Design
2.2. Finite Element Analysis and Verification of Prefabricated RCS Composite Joints
3. Seismic Performance of RCS Composite Joints Under Floor Effect
- The concrete floor is bound to the column Tie;
 - The reinforcing bars in the floor slab are combined into a reinforcing bar layer and embedded in the concrete area;
 - The rivet contacts the tie binding the bottom of the floor slab with the upper flange of the steel beam. The finite element model of node FJD-0 is shown in Figure 11.
 
- The floor effect changes the node damage form and enhances the connection strength, with the maximum stress concentrated in the connecting bolt and the plastic hinge occurring at the end of the beam, which conforms to the design code of “strong column weak beam”. The strength of the connecting bolt should be strengthened.
 - Compared with RCSJ3, FJD-0 significantly improves the bearing capacity and stiffness, and improves the seismic performance.
 - The positive and negative direction yield loads of node FJD-0 increased by 78.9% and 70.0%, respectively, while the ultimate bearing capacity improved by 13.2% and 9.98%. The energy dissipation capability increased by 23%, and the stiffness of all loading loops was enhanced, leading to a significant improvement in overall stiffness and a slower rate of strength degradation, as well as enhanced strength retention. The participation of the floor slab slightly reduced ductility, but to a minor extent, still meeting seismic design requirements. In seismic design, attention should be paid to the interaction effects of the floor slab to optimize the node structure and enhance the overall seismic performance [31].
 
4. The Seismic Performance Parameters of RCS Composite Joints Under Floor Effect Are Studied
4.1. The Influence of Axial Compression Ratio on Seismic Performance of Nodes
4.1.1. Axial Compression Ratio Failure Pattern
4.1.2. Curve Characteristics and Ductility
4.1.3. Energy Consumption Capacity and Stiffness Degradation
4.2. The Influence of Floor Thickness on Seismic Performance of Nodes
4.2.1. Destructive Morphology
4.2.2. Curve Characteristics and Ductility
4.2.3. Energy Consumption and Stiffness Degradation
4.3. The Influence of Bolt Preload on Seismic Performance of Nodes
4.3.1. Destructive Form
4.3.2. Curve Characteristics and Ductility
4.3.3. Energy Consumption and Stiffness Degradation
4.4. The Influence of Slab Reinforcement Rate on Seismic Performance of Nodes
4.4.1. Destructive Form
4.4.2. Energy Consumption and Stiffness Degradation
4.4.3. Energy Consumption and Stiffness Degradation
4.5. The Influence of Floor Concrete Strength on Seismic Performance of Nodes
4.5.1. Destructive Form
4.5.2. Curve Characteristics and Ductility
4.5.3. Energy Consumption and Stiffness Degradation
5. Conclusions and Prospect
Author Contributions
Funding
Institutional Review Board Statement
Informed Consent Statement
Data Availability Statement
Conflicts of Interest
References
- Jayawardana, J.; Sandanayake, M.; Jayasinghe, J.; Kulatunga, A.K.; Zhang, G. Sustainability Drivers and Sustainable Development Goals-Based Indicator System for Prefabricated Construction Adoption—A Case of Developing Economies. Buildings 2025, 15, 1037. [Google Scholar] [CrossRef]
 - Yang, Z.; Hu, S.; Xu, T.; Yan, D.; Jiang, Y. Method and application of global building operation energy use and carbon emissions comparison in the context of carbon neutrality. Adv. Clim. Change Res. 2023, 19, 749–760. [Google Scholar]
 - Mostafaei, H.; Ashoori Barmchi, M.; Bahmani, H. Seismic Resilience and Sustainability: A Comparative Analysis of Steel and Reinforced Structures. Buildings 2025, 15, 1613. [Google Scholar] [CrossRef]
 - Cando-Jácome, M.; Martínez-Graña, A. Differential Interferometry, Structural Lineaments and Terrain Deformation Analysis Applied in Zero Zone 2016 Earthquake (Manta, Ecuador). Environ. Earth Sci. 2019, 78, 499. [Google Scholar] [CrossRef]
 - Ibrahim, A.R.; Makhloof, D.A.; Ren, X. Seismic Performance and Collapse Analysis of RC Framed-Wall Structure Excited with Turkey/Syria Destructive Earthquake. Structures 2024, 59, 105774. [Google Scholar] [CrossRef]
 - Labibzadeh, M.; Zakeri, M.; Shoaib, A.A. A New Method for CDP Input Parameter Identification of the ABAQUS Software Guaranteeing Uniqueness and Precision. Int. J. Struct. Integr. 2017, 8, 264–284. [Google Scholar] [CrossRef]
 - Parra-Montesinos, G.; Wight, J.K. Seismic Response of Exterior RC Column-to-Steel Beam Connections. J. Struct. Eng. 2000, 126, 1113–1121. [Google Scholar] [CrossRef]
 - Parra-Montesinos, G.; Wight, J.K. Modeling Shear Behavior of Hybrid RCS Beam-Column Connections. J. Struct. Eng. 2001, 127, 3–11. [Google Scholar] [CrossRef]
 - Xu, J.D.; Ping, T.J.; Liao, H.; Dong, F.F.; Li, K.; Du, G.F. Seismic Behavior of Concrete Filled Steel Tubular Columns with Consideration of Floor Combination. Sci. Technol. Eng. 2020, 20, 10864–10870. [Google Scholar]
 - Wang, J.F.; Jiang, S.; Guo, L.; Zhang, M. Experimental study on seismic performance of concrete-filled double steel tubular column composite connections with high strength blind bolts. J. Build. Struct. 2021, 42, 93–102. [Google Scholar]
 - Zhong, W.H.; Tan, Z.; Song, X.Y.; Meng, B.; Zhang, Y.H. Anti-collapse performance of beam-column substructures based on the composite effect of floor slabs. J. Vib. Shock 2021, 40, 261–270. [Google Scholar]
 - Azar, B.F.; Ghaffarzadeh, H.; Talebian, N. Seismic Performance of Composite RCS Special Moment Frames. KSCE J. Civ. Eng. 2013, 17, 450–457. [Google Scholar] [CrossRef]
 - Du, K.P.; Wang, T.L.; Shi, J.M.; Qiu, J.P.; Qi, Z.C. Effects of Bolt Preload on Plate Fretting Behavior of 2024 Aluminum Alloy Laminates Based on Numerical Model. Mach. Build. Autom. 2024, 53, 164–167+184. [Google Scholar]
 - Ruggieri, S.; Porco, F.; Uva, G. A practical approach for estimating the floor deformability in existing RC buildings: Evaluation of the effects in the structural response and seismic fragility. Bull. Earthq. Eng. 2020, 18, 2083–2113. [Google Scholar] [CrossRef]
 - Ruggieri, S.; Vukobratović, V. Acceleration demands in single-storey RC buildings with flexible diaphragms. Eng. Struct. 2023, 275, 115276. [Google Scholar] [CrossRef]
 - Pan, Z.H.; Li, A.Q. Performance-based seismic design method for buildings:Discussion on application of “general rule for performance based seismic design of buildings” To design of buildings. Ind. Constr. 2008, 38, 103–106. [Google Scholar]
 - GB/T 50081—2002; Standard for Mechanical Properties Test of Ordinary Concrete. Ministry of Housing and Urban-Rural Development, PRC China Architecture & Building Press: Beijing, China, 2003.
 - GB/T 228—2002; Method for Tensile Test of Metal Materials at Room Temperature. Ministry of Housing and Urban-Rural Development of the Peoples Republic of China China Architecture & Building Press: Beijing, China, 2002.
 - Pashazad, H.; Kharazi, M. A Peridynamic Plastic Model Based on von Mises Criteria with Isotropic, Kinematic and Mixed Hardenings under Cyclic Loading. Int. J. Mech. Sci. 2019, 156, 182–204. [Google Scholar] [CrossRef]
 - Liu, C.; Nie, X.; Wang, J.; Fan, J.; Tao, M. State-of-the-Art of Macroscopic Constitutive Models of Concrete. Jianzhu Jiegou Xuebao/J. Build. Struct. 2022, 43, 29–41. [Google Scholar] [CrossRef]
 - GB 50010—2010; Code for Design of Concrete Structures. Ministry of Housing and Urban-Rural Development, PRC China Architecture & Building Press: Beijing, China, 2010.
 - Supartono, F.; Sidoroff, F. Anisotropic Damage Modelling for Brittle Elastic Materials. Arch. Mech. 1985, 37, 521–534. [Google Scholar]
 - Abramowicz, M.; Pełka-Sawenko, A. Comparison of the Finite Element Method and Rigid Finite Element Method During Dynamic Calculations of Steel–Concrete Composite Beams Based on Experimental Results. Materials 2024, 17, 6081. [Google Scholar] [CrossRef]
 - GB50011-2010; Seismic Design Code for Buildings. Ministry of Housing and Urban-Rural Development, PRC China Architecture & Building Press: Beijing, China, 2010.
 - JGJ 138—2016; Code for Design of Composite Structures. Ministry of Housing and Urban-Rural Development, PRC China Architecture & Building Press: Beijing, China, 2016.
 - Zhou, K.P.; Yi, W.J.; Yi, F.; Sun, J.M.; Huang, Y.; Zhang, W.X. Experimental Study on Anchorage Performance and Mechanism of Hooked Bars with a Pre-Yield Anchorage Failure. Structures 2023, 57, 105067. [Google Scholar] [CrossRef]
 - Furukawa, S.; Iwami, R.; Kimura, Y. Development of an Environmentally Friendly Steel Structural Framework: Evaluation of Bending Stiffness and Yield Bending Moment of Cross-Laminated Timber Slab–H-Shaped Steel Composite Beams for Component Reuse. Sustainability 2025, 17, 2073. [Google Scholar] [CrossRef]
 - JGJ 82—2011; Technical Specification for High Strength Bolted Connections in Steel Structures. Ministry of Housing and Urban-Rural Development, PRC China Architecture & Building Press: Beijing, China, 2011.
 - Wang, B.; Gao, X.; Chen, A.; Yuan, L.; Wan, H.; Wang, Z. Optimization Study of Strengthened T-Shaped Concrete-Filled Steel Tubular (CFST) Column-Steel Beam Joint. J. Constr. Steel Res. 2024, 223, 109020. [Google Scholar] [CrossRef]
 - Ling, Y.; Zheng, W.; Li, Y.; Zhou, L.; Zhou, J. Study on Seismic Behavior of Reinforced Concrete Column-Steel Beam Side Joints. J. Asian Archit. Build. Eng. 2020, 19, 187–202. [Google Scholar] [CrossRef]
 - Chepurnenko, A.; Turina, V.; Akopyan, V. Optimizing the Location of Supports under a Monolithic Floor Slab. CivilEng 2024, 5, 502–520. [Google Scholar] [CrossRef]
 - Yu, S.J.; Chen, S.S.; Zhou, F.; Liu, J.M.; Wu, C.L.; Wang, P.F. Analysis of the influence of axial compression ratio on the seismic performance of assembled SRC column to composite beam joints. Concrete 2021, 116–122. [Google Scholar]
 

































| Type of Steel | |||
|---|---|---|---|
| Steel beam | 305.8 | 431.3 | 2.1 × 105 | 
| Load-bearing steel plate | 271.8 | 428.0 | 2.0 × 105 | 
| HPB235 | 289.5 | 445.6 | 2.0 × 105 | 
| HRB335 | 383.1 | 558.2 | 2.0 × 105 | 
| Model Parameter | Value | 
|---|---|
| expansion angle | 30° | 
| deviation value | 0.1 | 
| 1.16 | |
| 2/3 | |
| coefficient of viscosity | 0.005 | 
| Component Name | Component Materials and Properties | 
|---|---|
| steel products | Q235B | 
| steel section | NH350 × 175 × 7 × 11 mm | 
| short beams are embedded in the column | 590 mm | 
| extruded steel beam | 1100 mm | 
| steel stiffening rib | 332 × 84 × 10 mm | 
| steel plate A | 345 × 175 × 8 mm | 
| steel plate B | 345 × 80 × 8 mm | 
| steel plate C | 330 × 300 × 6 mm | 
| concrete strength | C30 | 
| concrete column | 2200 × 400 × 400 mm | 
| reinforcing bars in columns | HRB335 | 
| column hoop reinforcement | HPB235 | 
| High-strength friction grip bolt | Grade 10.9 M20 | 
| Node  Number  | Column Axial  Pressure (kn)  | Column Shaft  Compression Ratio  | Floor  Thickness (mm)  | Reinforcement Diameter  of Floor (mm)  | Bolt  Preload (kn)  | Reinforcement Ratio of Floor (%)  | Floor  Concrete Strength Grade  | 
|---|---|---|---|---|---|---|---|
| FJD-0 | 500 | 0.22 | 100 | 10 | 155 | 1.12 | C25 | 
| FJD-1 | 800 | 0.35 | 100 | 10 | 155 | 1.12 | C25 | 
| FJD-2 | 1440 | 0.6 | 100 | 10 | 155 | 1.12 | C25 | 
| FJD-3 | 450 | 0.2 | 100 | 10 | 155 | 1.12 | C30 | 
| FJD-4 | 450 | 0.2 | 100 | 10 | 155 | 1.12 | C50 | 
| FJD-5 | 450 | 0.2 | 110 | 10 | 155 | 1.12 | C25 | 
| FJD-6 | 450 | 0.2 | 120 | 10 | 155 | 1.12 | C25 | 
| FJD-7 | 450 | 0.2 | 100 | 8 | 155 | 0.72 | C25 | 
| FJD-8 | 450 | 0.2 | 100 | 12 | 155 | 1.62 | C25 | 
| FJD-9 | 450 | 0.2 | 100 | 10 | 55 | 1.12 | C25 | 
| FJD-10 | 450 | 0.2 | 100 | 10 | 225 | 1.12 | C25 | 
| Node Number | Direction of Load | /kn | /mm | /kn | /mm | Ductility Factor | Average  Ductility Coefficient  | 
|---|---|---|---|---|---|---|---|
| FJD-0 | forward direction  | 254.8 | 8.98 | 245.8 | 90.19 | 10.04 | 8.11 | 
| negative direction  | 212.9 | 12.92 | 208.6 | 79.87 | 6.18 | ||
| FJD-5 | forward direction  | 267.1 | 8.92 | 257.6 | 87.37 | 9.79 | 7.97 | 
| negative direction  | 219.2 | 12.83 | 212.3 | 78.79 | 6.14 | ||
| FJD-6 | forward direction  | 279.3 | 8.84 | 269.5 | 83.61 | 9.46 | 7.81 | 
| negative direction  | 225.6 | 12.71 | 216.1 | 78.14 | 6.15 | 
| Node Number | Direction of Load | /kn | /mm | /kn | /mm | Ductility Factor | Average  Ductility Coefficient  | 
|---|---|---|---|---|---|---|---|
| FJD-0 | forward  direction  | 254.8 | 8.98 | 245.8 | 90.19 | 10.04 | 8.11 | 
| negative  direction  | 212.9 | 12.92 | 208.6 | 79.87 | 6.18 | ||
| FJD-9 | forward  direction  | 144.1 | 12.87 | 149.6 | 117.51 | 9.13 | 8.39 | 
| Negative direction  | 119.5 | 11.45 | 124.6 | 79.95 | 7.65 | ||
| FJD-10 | forward  direction  | 314.9 | 9.90 | 290.8 | 68.54 | 6.92 | 6.42 | 
| negative  direction  | 251.5 | 9.93 | 237.6 | 79.98 | 5.91 | 
| Node Number | Capacity Dissipation Coefficient | Equivalent Viscosity Coefficient  | 
|---|---|---|
| FJD-0 | 3.05 | 0.485 | 
| FJD-9 | 3.15 | 0.501 | 
| FJD-10 | 2.99 | 0.475 | 
| Node Number | Capacity Dissipation Coefficient | Equivalent Viscosity Coefficient | 
|---|---|---|
| FJD-0 | 3.05 | 0.485 | 
| FJD-7 | 2.96 | 0.470 | 
| FJD-8 | 3.15 | 0.502 | 
| Node Number | Capacity Dissipation Coefficient  | Equivalent Viscosity Coefficient  | 
|---|---|---|
| FJD-0 | 3.05 | 0.485 | 
| FJD-3 | 3.14 | 0.499 | 
| FJD-4 | 3.04 | 0.483 | 
Disclaimer/Publisher’s Note: The statements, opinions and data contained in all publications are solely those of the individual author(s) and contributor(s) and not of MDPI and/or the editor(s). MDPI and/or the editor(s) disclaim responsibility for any injury to people or property resulting from any ideas, methods, instructions or products referred to in the content.  | 
© 2025 by the authors. Licensee MDPI, Basel, Switzerland. This article is an open access article distributed under the terms and conditions of the Creative Commons Attribution (CC BY) license (https://creativecommons.org/licenses/by/4.0/).
Share and Cite
Zhao, Y.; Jia, J.; Li, Z. Research on the Seismic Performance of Precast RCS Composite Joints Considering the Floor Slab Effect. Appl. Sci. 2025, 15, 6669. https://doi.org/10.3390/app15126669
Zhao Y, Jia J, Li Z. Research on the Seismic Performance of Precast RCS Composite Joints Considering the Floor Slab Effect. Applied Sciences. 2025; 15(12):6669. https://doi.org/10.3390/app15126669
Chicago/Turabian StyleZhao, Yingchu, Jie Jia, and Ziteng Li. 2025. "Research on the Seismic Performance of Precast RCS Composite Joints Considering the Floor Slab Effect" Applied Sciences 15, no. 12: 6669. https://doi.org/10.3390/app15126669
APA StyleZhao, Y., Jia, J., & Li, Z. (2025). Research on the Seismic Performance of Precast RCS Composite Joints Considering the Floor Slab Effect. Applied Sciences, 15(12), 6669. https://doi.org/10.3390/app15126669
        