Structure Design and Optimization Algorithm of a Lightweight Drive Rod for Precision Die-Cutting Machine
Abstract
1. Introduction
1.1. Application Field and Development Trend of Die-Cutting Machine
1.2. Research Direction and Achievements of Die-Cutting Machine
1.3. Research Objectives and Contents
2. The Principle and Kinematics Analysis of the Drive Mechanism of Die-Cutting Device
2.1. The Composition and Principle of Die-Cutting Device Drive Mechanism
2.2. Kinematics Analysis of Drive Mechanism of Die-Cutting Device
3. Design of a Lightweight Drive Rod Based on Fully Symmetrical Structure
3.1. Structural Characteristics and Shortcomings of Traditional Double-Elbow Bar Mechanism
3.2. Performance Requirements of Drive Rod for High Precision Die-Cutting Device
3.3. Scheme Design of Lightweight Drive Mechanism Based on Fully Symmetrical Structure
3.4. Parameters Determination of Lightweight Drive Rod Based on Fully Symmetry Structure
4. Parameter Optimization of the Lightweight Drive Rod Based on Fully Symmetrical Structure
4.1. Sensitivity Analysis of Optimization Parameters
4.2. Determining the Target Function
4.3. Determine the Constraints
4.4. Genetic Algorithm Optimization of Non-Dominated Sorting (NSGA-II)
4.4.1. Design of Fast Non-Dominant Sorting Operator
4.4.2. Design of Individual Crowded Distance Operator
- The initialization distance of individuals in the same layer is represented by , let ;
- The individuals in the same layer are sorted in ascending order according to the value of the m objective function;
- To make the individuals on the sorting edge have a selection advantage, given a large number “M”, let ;
- For the individuals in the middle of the ranking, calculate the crowding degree distance:
- For different objective functions, steps 2~4 are repeated to obtain the crowding distance “” of individual “”. By preferentially selecting individuals with larger crowding distances, the calculated results can be evenly distributed in the target space to maintain the diversity of the population.
4.4.3. Elite Strategy Selection Operator Design
4.4.4. Optimization Calculation and Results of Non-Dominated Sorting Genetic Algorithm II
5. Dynamic Simulation of the Lightweight Drive Rod Based on Fully Symmetrical Structure in Die-Cutting Device Model
6. Conclusions
- (1)
- According to the force distribution of drive rod and the principle of structural mechanics, a lightweight drive rod based on fully symmetrical structure is proposed. From the comparison of the mechanical properties of the designed drive rod, compared with the traditional double-elbow bar, the maximum elastic deformation of the drive rod under the working conditions is reduced from 0.303 mm to 0.096 mm, and the overall weight of the drive rod is reduced from 21.93 kg to 15.86 kg. It can be concluded that the strength of the drive rod has been significantly improved, and a lightweight design has been achieved, which is conducive to improving die cutting accuracy.
- (2)
- The structural parameters of the drive rod are further optimized using the Non-dominated Sorting Genetic Algorithm-II (NSGA-II), and the optimized deformation and weight of the drive rod are obtained through finite element analysis. The validation results are consistent with the optimization results. After parameter optimization, the maximum deformation of the drive rod under working condition is reduced from 0.096 mm to 0.0098 mm, and the total weight is reduced from 15.86 kg to 13.96 kg. The results show that the mechanical and kinematic performance of the optimized lightweight drive rod has been further improved.
- (3)
- Finally, a lightweight driving rod is applied to the model of a die cutting device, and the elastic deformation of the driving rod is verified through dynamic simulation. The maximum deformation of the drive rod in the die-cutting device is kept between 0.007~0.01 mm, which is consistent with the previous optimization results. Through the verification and comparison of the above results, the performance of the lightweight drive rod has reached the expected research goal. Therefore, this study provides practical guidance for lightweight drive rods. If subsequent conditions permit, the team will continue to test the die cutting accuracy and stability of the physical prototype.
Author Contributions
Funding
Institutional Review Board Statement
Informed Consent Statement
Data Availability Statement
Conflicts of Interest
Nomenclature
| , | |
| , | |
| , | |
| , | |
| , | |
| , | |
| Strength value of inertia force of drive rod | |
| The value of the angular acceleration of the drive rod | |
| The weight of the drive rod | |
| Moment of inertia of drive rod | |
| Rotation radius of drive rod | |
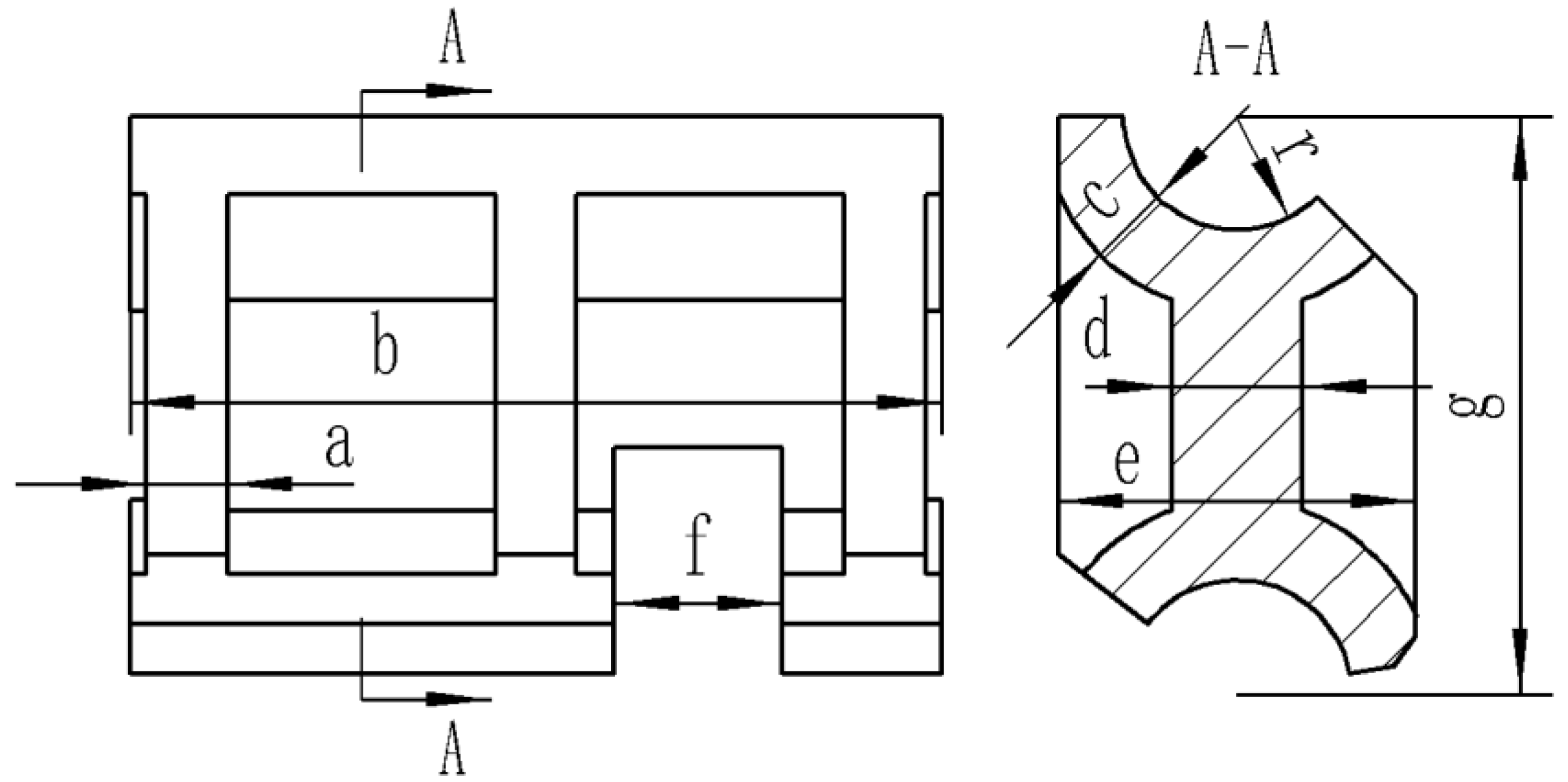
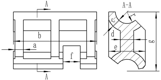
| , | These are the size parameters 1, 2, 3, 4, 5, 6, 7 and 8 of the drive rod, as shown in Figure 13 |
| These are the size parameters 9, 10 and 11 of the drive rod, as shown in Figure 17 | |
| The maximum die-cutting force component on one of the drive rods | |
| The length of the lightweight drive rod, namely the value of “b” | |
| Elastic modulus of drive rod | |
| Cross-sectional area of drive rod in axial direction | |
| Density of drive rod | |
| The sum of the axial components of the maximum die-cutting force and the maximum inertia force on the drive rod | |
| Axial component of the maximum inertia force on the drive rod |
References
- Ternytskyi, S.; Rehei, I.; Kandiak, N.; Radikhovskyi, I.; Mlynko, O. Experimental Research of Paperboard Cutting in Die Cutting Press with the Screw–Nut Transmission of Drive Mechanism of a Movable Pressure Plate. Acta Mech. Autom. 2021, 15, 122–131. [Google Scholar] [CrossRef]
- Lian, G.; Yao, M.; Zhang, Y.; Huang, X. Analysis and Respond Surface Methodology Modeling on Property and Performance of Two-Dimensional Gradient Material Laser Cladding on Die-cutting Tool. Materials 2018, 11, 2052. [Google Scholar] [CrossRef] [PubMed]
- Ye, S.; Qu, F.K. A Simple Automatic Die-cutting Machine Design. Mod. Manuf. Technol. Equip. 2021, 57, 118–119. [Google Scholar] [CrossRef]
- Xu, H.W.; Huang, J.C.; Chen, L.L.; Dong, J.Z. Research on Registration Algorithm of Plane Digital Die-cutting Based on Visual Image. In Proceedings of the 2022 IEEE 5th International Conference on Information Systems and Computer Aided Education (ICISCAE), Dalian, China, 23–25 September 2022; IEEE: Dalian, China, 2022; pp. 84–87. [Google Scholar]
- Wang, K.J.; Lee, Y.H.; Angelica, S. Digital Twin Design for Real-time Monitoring—A Case Study of Die-cutting Machine. Int. J. Prod. Res. 2021, 59, 6471–6485. [Google Scholar] [CrossRef]
- Huang, C.T.; Lin, H.H.; Su, C.H. Polygonal Object Dilation and Packing in Vector Space for Die-cutting Machine Tools. In Proceedings of the 2017 International Conference on Applied System Innovation (ICASI), Sapporo, Japan, 13–17 May 2017; IEEE: Sapporo, Japan, 2017; pp. 1793–1796. [Google Scholar]
- Wu, T. Application and Development of New Technology of Automatic Die-cutting Machine. New Type Ind. 2022, 12, 268–271. [Google Scholar] [CrossRef]
- Knysh, O.; Rehei, I.; Kandiak, N.; Ternytskyi, S.; Ivaskiv, B. Experimental Evaluation of Eccentric Mechanism Power Loading of Movable Pressure Plate in Die-Cutting Press. Acta Mech. Autom. 2022, 16, 266–273. [Google Scholar] [CrossRef]
- Lin, W.G.; Zhou, C.; Huang, W.J. Optimum Design for Mechanical Structures and Material Properties of the Dual-Elbow-Bar Mechanism. Adv. Mater. Sci. Eng. 2015, 2015, 724171. [Google Scholar] [CrossRef]
- Luo, Y.; Cheng, G.H. Elastic Statics Analysis of the Linkage Mechanism in Die-cutting Machine. Light Ind. Mach. 2008, 26, 29–31. [Google Scholar]
- Yu, Q.; Weng, Z.M. Computer Emulating of the Dual-elbow-bar Mechanism of the Die-cutting Machine. Packag. Eng. 2006, 27, 191–193. [Google Scholar]
- Zhang, X.S.; Chai, S.Z.; Cheng, G.H.; Li, J.Y. Motion Analysis and Optimum Design of the Dual-elbow-bar Mechanism of the Die-cutting Machine. Beijing Inst. Graph. Commun. 2006, 2, 32–34. [Google Scholar] [CrossRef]
- Lv, F.M. Design and Kinematics of a New Intermittent Mechanism of Die-cutting Machine. Packag. Eng. 2020, 41, 204–209. [Google Scholar] [CrossRef]
- Xie, J.G.; Zou, H.J. Dynamic Analysis of the Double-elbow-bar Mechanism of Automatic Vertical Platen Die-cutter. Mechane Des. Res. 2005, 21, 75–78. [Google Scholar]
- Wei, Y.B.; Zhao, Q.H.; Zhang, H.Y. Characteristic Research of Elbow-bar Framework of Blocking Die-cutter. Mach. Des. Res. 2005, 21, 76–78. [Google Scholar] [CrossRef]
- Nu, N.; Cai, J.F.; Zhang, Y. Analysis and Research on Driving Mechanism of Die-cutting Mobile Platform. Beijing Print. Inst. 2018, 26, 6–9. [Google Scholar] [CrossRef]
- Nu, N.; Han, X.; Wang, Q.F.; Cai, J.F.; Zhang, Y. Analysis and Research on the Cam of the Transmission System of Die cutting Machine. Green Package 2018, 6, 49–52. [Google Scholar] [CrossRef]
- Xiao, J. Analysis and Influence Study on Geometric Error of Main Cutting Mechanism of Flat Die Cutter. Ph.D. Thesis, Xi’an University of Technology, Xi’an, China, 2016. [Google Scholar]
- Huang, W.T.; Wu, J.M.; Liu, L.J. Analysis of Factors Affecting the Accuracy of Die-cutting Machine. Print. Mag. 2009, 11, 57–60. [Google Scholar]
- Song, S.N. Discussion on the Factors Affecting the Accuracy of Die-cutting Machine. Innov. Appl. Sci. Technol. 2016, 20, 100. [Google Scholar]
- Shen, S.H.; Shi, X.D.; Yuan, Y.C. Optimal Design of Conjugate Cam-linkage Combined Mechanism for Pressure Device in Die-cutting. In Applied Mechanics and Materials; Trans Tech Publications Ltd.: Beijing, China, 2012; Volume 120, pp. 178–181. [Google Scholar] [CrossRef]
- Zhang, Y.; Make, X.; Qi, Y.; Cheng, Q. Die-Cutting Pressure Detection Analysis Based on TRIZ Theory and Simulation. In Proceedings of the 2021 3rd International Conference on Artificial Intelligence and Advanced Manufacture, Manchester, UK, 23–25 October 2021; pp. 720–723. [Google Scholar] [CrossRef]
- Jiao, L.Q.; Wang, Y.M.; Wu, S.Q.; Li, L.H. Study on Pressure Testing Method of Die-Cutting Machine Based on Micro-capsule and Image Sensor. In Proceedings of the ICMEIT 2018, Shanghai, China, 15–16 April 2018; pp. 32–38. [Google Scholar]
- Shi, X.D.; Li, Y.; Li, H.D. Analysis of Platen Die-Cutting Mechanism Based on the Axiomatic Design Theory. In Applied Mechanics and Materials; Trans Tech Publications Ltd.: Beijing, China, 2013; Volume 312, pp. 796–799. [Google Scholar]
- Shen, Y.S. Mechanical Principles Tutorial; Tsinghua University Press: Beijing, China, 2015; Volume 33–66, pp. 296–320. [Google Scholar]
- Liu, H.W. Mechanics of Materials I; Higher Education Press: Beijing, China, 2017; pp. 13–51. [Google Scholar]
- Jiang, W.; Xie, W.; Sun, S. Parametric Optimisation Analysis of Micro/Nano-Satellite Flywheels Based on the NSGA-Ⅱ Optimisation Algorithm. Aerospace 2022, 9, 386. [Google Scholar] [CrossRef]
- Liu, Y.; Yan, C.; Ni, H.; Mou, Y. Multi-objective Optimization Decision of High-speed Dry Hobbing Process Parameters Based on GABP and Improved NSGA-II br. China Mech. Eng. 2021, 32, 1043. [Google Scholar] [CrossRef]
- Zhao, W.G.; Xia, T.; Sheng, Y.Z.; Li, S.S. Multi-objective Parameters Optimization of Low Specific Speed Centrifugal Pump Based on NSGA-II Genetic Algorithm. J. Lanzhou Univ. Technol. 2020, 46, 55. [Google Scholar]


































| Parameter Name | a (mm) | b (mm) | c (mm) | d (mm) | e (mm) | f (mm) | g (mm) | r (mm) |
|---|---|---|---|---|---|---|---|---|
| Parameter range | 178 | 35 |
| Parameter Name | a (mm) | b (mm) | c (mm) | d (mm) | e (mm) | f (mm) | g (mm) | r (mm) |
|---|---|---|---|---|---|---|---|---|
| Parameter value | 25 | 250 | 25 | 40 | 110 | 51 | 178 | 35 |
| Name | Weight (kg) | Maximum Deformation (mm) | |
|---|---|---|---|
| Parameters | |||
| Solid drive rod | 21.934 | 0.099 | |
| Hollow drive rod | 13.152 | 0.303 | |
| Lightweight drive rod | 15.861 | 0.096 | |
| a (mm) | b (mm) | c (mm) | d (mm) | e (mm) | Weight (kg) | Maximum Deformation (mm) | |
|---|---|---|---|---|---|---|---|
| Before optimization | 25 | 250 | 25 | 40 | 110 | 15.861 | 0.096997 |
| After optimization | 22.722 | 230.01 | 24.159 | 40.756 | 105.11 | 13.96 | 0.009882 |
| Parameter Name | Weight (kg) | Maximum Deformation (mm) |
|---|---|---|
| Optimization results | 13.96 | 0.009882 |
| Results of statics analysis | 13.97 | 0.009768 |
Disclaimer/Publisher’s Note: The statements, opinions and data contained in all publications are solely those of the individual author(s) and contributor(s) and not of MDPI and/or the editor(s). MDPI and/or the editor(s) disclaim responsibility for any injury to people or property resulting from any ideas, methods, instructions or products referred to in the content. |
© 2023 by the authors. Licensee MDPI, Basel, Switzerland. This article is an open access article distributed under the terms and conditions of the Creative Commons Attribution (CC BY) license (https://creativecommons.org/licenses/by/4.0/).
Share and Cite
Wang, J.; Chen, X.; Li, Y. Structure Design and Optimization Algorithm of a Lightweight Drive Rod for Precision Die-Cutting Machine. Appl. Sci. 2023, 13, 4211. https://doi.org/10.3390/app13074211
Wang J, Chen X, Li Y. Structure Design and Optimization Algorithm of a Lightweight Drive Rod for Precision Die-Cutting Machine. Applied Sciences. 2023; 13(7):4211. https://doi.org/10.3390/app13074211
Chicago/Turabian StyleWang, Jing, Xian Chen, and Yong Li. 2023. "Structure Design and Optimization Algorithm of a Lightweight Drive Rod for Precision Die-Cutting Machine" Applied Sciences 13, no. 7: 4211. https://doi.org/10.3390/app13074211
APA StyleWang, J., Chen, X., & Li, Y. (2023). Structure Design and Optimization Algorithm of a Lightweight Drive Rod for Precision Die-Cutting Machine. Applied Sciences, 13(7), 4211. https://doi.org/10.3390/app13074211

