The Only Architectural Testimony of an 18th Century Italian Gordonia-Style Miniature Theatre: An Acoustic Survey of the Monte Castello di Vibio Theatre
Abstract
1. Introduction
2. Historical Background
2.1. History of the Monte Castello di Vibio Theatre (“Teatro della Concordia”)
2.2. History of the 1763 Theatre in Bologna
3. Architectural Characteristics
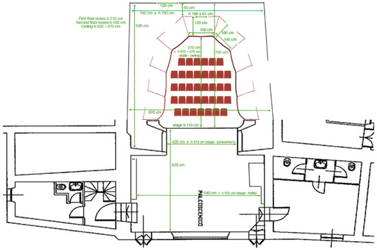
3.1. Architectural Characteristics of the Monte Castello di Vibio Theatre
3.2. Architectural Characteristics of the 1763 Theatre
4. Acoustic Measurements
4.1. Acoustic Measurements of the Monte Castello di Vibio Theatre
- Equalized omnidirectional loudspeaker: a light yet powerful sound source for measurement applications in the room and building acoustics. It is built from twelve specially developed dynamic drivers that ensure a uniform emission of the acoustic test signal. This speaker was used to reproduce the ESS signal in the theatre;
- Binaural dummy head: a professional dummy head made by Neumann. It is a binaural stereo microphone, and two omnidirectional condenser capsules are built into artificial ears mounted on an enclosure resembling a human head. The Neumann dummy head has very low self-noise and can handle high sound pressure levels of up to 135 dB without audible distortion. This head was used to record binaural stereo files, which were used to calculate interaural cross-correlation (IACC early);
- B-Format microphone: it is a Sennheiser Ambeo microphone to record 360° spatial audio. The Ambeo is an Ambisonics microphone fitted with four matched KE 14 capsules in a tetrahedral arrangement. This unique design lets users capture the surrounding sound from one single point. The capsules of the Sennheiser Ambeo deliver A-format, a raw four-channel output that has to be converted into a new set of four channels, the Ambisonics B-format. B-format is a W, X, Y, and Z representation of the sound field around the microphone. W is the sum of all four capsules, whereas X, Y, and Z are three virtual bi-directional microphone patterns representing front/back, left/right, and up/down. In this study, only the W and Y signals were used to compute Lateral Fraction (LF) and Lateral Efficiency (LE);
- Omnidirectional microphone: a Bruel & Kjaer ½ inch prepolarised free-field microphone. It is an ultra-linear condenser microphone for measurement and recording applications, ideally suited for room equalisation, high-resolution studio recording, and live applications. It has a flat frequency response from 15 Hz to 20 kHz and an actual omnidirectional pattern. The omnidirectional microphone was used to record mono signals, which were used to calculate other main acoustic parameters (in this survey, the Reverberation Time (T20), Early Decay Time (EDT), Clarity indexes (C80 and C50), and Definition (D50) were included);
- Audio interface: a Zoom F8 audio interface was used to record the signals coming from microphones, with 8-input/10-track recording, super low-noise preamps, and support for 24-bit/192 kHz audio. Through it, seven channels of audio files were recorded, with tracks from one to four for the Ambeo microphones, 5–6 for the binaural recordings of the dummy head, and the last channel for the mono recording from the omnidirectional microphone.
4.2. Acoustic Measurements of the 1763 Theatre
5. Acoustic Measurement Results of Monte Castello Theatre
- Reverberation Time (T20): it is one of the most essential parameters to express the acoustic characteristics of a space;
- Early Decay Time (EDT): it combines with the reverberation time to reflect the overall acoustic condition of a room;
- Clarity indexes (C80 and C50): C80 refers to the measurement of a hall for musical performance; the clarity evaluated for speech performances is C50. They are the main parameters for assessing the acoustic quality of theatre spaces;
- Definition (D50): it is used to evaluate the quality of speech perception in rooms. Unlike concert halls, a large number of opera performances are staged throughout the year in theatres, so the speech intelligibility conveyed to the audience is also an important factor in expressing its acoustic characteristics;
- Lateral Fraction (LF): it represents the ratio of the laterally reflected sound energy in a room over the sound energy arriving from all directions, including the direct sound energy coming from the source. These reflections are responsible for the extensive perception of the sound source. The lateral fraction is a measurement of the spaciousness of a room. Lateral sound energy and sound energy that arrive to the listener from all directions should be considered separately, which is why omnidirectional microphones must be used in investigations;
- Interaural Cross-Correlation (IACC): it is called the Interaural Cross-Correlation Coefficient for music and speech. In particular, the IACC represents a value that measures the maximum similarity between waves arriving at the two ears.
6. Acoustic Comparison
7. Conclusions and Future Recommendations
Author Contributions
Funding
Institutional Review Board Statement
Informed Consent Statement
Data Availability Statement
Acknowledgments
Conflicts of Interest
References
- Official Website of the Theatre. Available online: https://www.teatropiccolo.it (accessed on 31 August 2022).
- Guitarist Johanna Beisteiner’s Personal Homepage. Available online: https://www.beisteiner.com (accessed on 27 August 2022).
- ISO 3382-1; Acoustics—Measurement of Room Acoustic Parameters; Part 1: Performance Spaces. ISO: Geneva, Switzerland, 2009.
- Iannace, G.; Ianniello, E. Sound-focusing effects in the plan of horse-shoe shaped opera theatres. Acoust. Soc. Am. 2008, 123, 3191. [Google Scholar] [CrossRef]
- The View of the Theatre and Villa Aldrovandi Taken from the Bing Website. Available online: https://www.bing.com/images/search (accessed on 31 August 2022).
- Tronchin, L.; Merli, F.; Manfren, M. On the acoustics of the Teatro 1763 in Bologna. Appl. Acoust. 2021, 172, 107598. [Google Scholar] [CrossRef]
- Tronchin, L. Variability of room acoustic parameters with thermo-hygrometric conditions. Appl. Acoust. 2021, 177, 107933. [Google Scholar]
- Farina, A. Advancements in impulse response measurements by sine sweeps. In Audio Engineering Society Convention 122; Audio Engineering Society: New York, NY, USA, 2007. [Google Scholar]
- Farina, A. Simultaneous measurement of impulse response and distortion with a swept-sine technique. J. Audio Eng. Soc. 2000, 48, 18–22. [Google Scholar]
- Gordon, C.G. Generic criteria for vibration-sensitive equipment. In Vibration Control in Microelectronics, Optics, and Metrology; SPIE: San Jose, CA, USA, 1991; pp. 71–85. [Google Scholar]
- Farina, A.; Tronchin, L. 3D sound characterisation in theatres employing microphone arrays. Acta Acust. United Acust. 2013, 99, 118–125. [Google Scholar] [CrossRef]
- Hidaka, T.; Beranek, L.L. Objective and subjective evaluations of twenty-three opera houses in Europe, Japan, and the Americas. Acoust. Soc. Am. 2000, 107, 368–383. [Google Scholar]
- Bradley, J.S.; Soulodre, G.A. Objective measures of listener envelopment. Acoust. Soc. Am. 1995, 98, 2590–2597. [Google Scholar] [CrossRef]
- Bradley, J.S.; Reich, R.D.; Norcross, S.G. On the combined effects of signal-to-noise ratio and room acoustics on speech intelligibility. Acoust. Soc. Am. 1999, 106, 1820–1828. [Google Scholar]
- Hak, C.C.J.M.; Wenmaekers, R.H.C.; Van Luxemburg, L.C.J. Measuring room impulse responses: Impact of the decay range on derived room acoustic parameters. Acta Acust. United Acust. 2012, 98, 907–915. [Google Scholar] [CrossRef]
- Hidaka, T.; Beranek, L.L.; Okano, T. Interaural cross-correlation, lateral fraction, and low-and high-frequency sound levels as measures of acoustical quality in concert halls. Acoust. Soc. Am. 1995, 98, 988–1007. [Google Scholar]
- Beranek, L.L. Concert Halls and Opera Houses: Music, Acoustics, and Architecture; Springer: New York, NY, USA, 2004. [Google Scholar]














Disclaimer/Publisher’s Note: The statements, opinions and data contained in all publications are solely those of the individual author(s) and contributor(s) and not of MDPI and/or the editor(s). MDPI and/or the editor(s) disclaim responsibility for any injury to people or property resulting from any ideas, methods, instructions or products referred to in the content. |
© 2023 by the authors. Licensee MDPI, Basel, Switzerland. This article is an open access article distributed under the terms and conditions of the Creative Commons Attribution (CC BY) license (https://creativecommons.org/licenses/by/4.0/).
Share and Cite
Tronchin, L.; Yan, R.; Bevilacqua, A. The Only Architectural Testimony of an 18th Century Italian Gordonia-Style Miniature Theatre: An Acoustic Survey of the Monte Castello di Vibio Theatre. Appl. Sci. 2023, 13, 2210. https://doi.org/10.3390/app13042210
Tronchin L, Yan R, Bevilacqua A. The Only Architectural Testimony of an 18th Century Italian Gordonia-Style Miniature Theatre: An Acoustic Survey of the Monte Castello di Vibio Theatre. Applied Sciences. 2023; 13(4):2210. https://doi.org/10.3390/app13042210
Chicago/Turabian StyleTronchin, Lamberto, Ruoran Yan, and Antonella Bevilacqua. 2023. "The Only Architectural Testimony of an 18th Century Italian Gordonia-Style Miniature Theatre: An Acoustic Survey of the Monte Castello di Vibio Theatre" Applied Sciences 13, no. 4: 2210. https://doi.org/10.3390/app13042210
APA StyleTronchin, L., Yan, R., & Bevilacqua, A. (2023). The Only Architectural Testimony of an 18th Century Italian Gordonia-Style Miniature Theatre: An Acoustic Survey of the Monte Castello di Vibio Theatre. Applied Sciences, 13(4), 2210. https://doi.org/10.3390/app13042210

