Next Article in Journal
Design of a Miniaturized Electron Cyclotron Resonance Ion Source for High-Voltage Proton Accelerator
Previous Article in Journal
Nonlinear Optical Microscopy of Interface Layers of Epitaxial Garnet Films
 
 
Font Type:
Arial Georgia Verdana
Font Size:
Aa Aa Aa
Line Spacing:
Column Width:
Background:
Article

The Construction Methods and Control Mechanisms for Subway Station Undercrossing an Existing Tunnel at Zero Distance

1
School of Civil Engineering, Chongqing University, Chongqing 400045, China
2
National Joint Engineering Research Center of Geohazards Prevention in the Reservoir Areas, Chongqing University, Chongqing 400045, China
3
Key Laboratory of New Technology for Construction of Cities in Mountain Area of the Ministry of Education, Chongqing University, Chongqing 400045, China
4
China Railway Major Bridge Reconnaissance & Design Institute Co., Ltd., Wuhan 430056, China
*
Authors to whom correspondence should be addressed.
Appl. Sci. 2023, 13(15), 8826; https://doi.org/10.3390/app13158826
Submission received: 12 June 2023 / Revised: 17 July 2023 / Accepted: 26 July 2023 / Published: 31 July 2023

Abstract

The existing tunnel will inevitably be disturbed when the new subway station is constructed cross under it at zero distance. Three innovative construction schemes were proposed, their effects on deformation control were compared by numerical simulations, and the mechanism of the influence of different tunnel support and excavation methods on the deformation control in them was further explored in order to seek a better scheme in this paper. The results show that the settlement of the existing tunnel in Scheme I (L-type beam + full-face excavation) is the greatest, and that the one in Scheme III (temporary steel column + double-pilot tunnel) is the smallest, but the settlement during excavation changes significantly, along with the large deformation on the side walls of the undercrossing area. Scheme III is not recommended because it is difficult to control and the construction effect is mediocre. Due to the existence of a large free face, the settlement of both sides of the existing tunnel is larger when the L-type beam supports the tunnel, and the bottom of the middle wall bears large compressive stress. The settlement of the existing tunnel excavated by the double-pilot tunneling method is less than that of the full-face tunneling method under the same tunneling support method, and the increase in settlement during the tunneling with the L-type beams is greater than that with the pier columns. In comprehensive consideration, Scheme II (pier column + double-pilot tunnel method) or combined pier column + double-pilot tunnel can control the deformation better.

1. Introduction

With the rapid growth of the city, land resources on the ground are becoming increasingly scarce, and at the same time, the demand for urban transportation is becoming greater. The rational use of underground space and the construction of subway lines became the top priority to alleviate traffic problems [1,2]. Due to the rapid expansion of the urban rail transit network in recent years, more and more new projects have to interact with existing subway tunnels, which greatly increases the construction difficulty of the project [3,4,5,6,7].
It is common for new subway tunnels to cross under existing subway tunnels in urban construction [8,9,10,11,12]. The newly-built tunnel located beneath the existing tunnel will change the balanced stress field, cause the settlement of the strata, and change the internal force of the existing tunnel structure, which will interfere with normal operation (Chen et al. [13]). In this regard, a number of scholars carried out studies. Some scholars studied the mechanical behavior of existing tunnel and ground deformation response through model tests and monitoring data (Byun et al., Jin et al. [14,15]). More documents discuss the impact of underground excavations on existing tunnels and protective measures. Yin et al. [16], Lai et al. [17], and Ou et al. [18] found that the existing tunnel is dominated by vertical deformation with insignificant horizontal deformation by means of the monitoring data and numerical simulation. There are other scholars who use theoretical analysis methods for their research. Zhang and Huang [19] and Liu et al. [20] proposed their own calculation models to calculate the deformation of existing tunnels caused by underpass tunnels by different methods and principles. The impact on existing tunnels is particularly significant when a new tunnel is underpassed for a short distance. It is challenging to ensure the serviceability of the existing tunnel and the safety of construction in the undercrossing area [21]. Zhang et al. [22], Qian et al. [23], and Jin et al. [24] mentioned the problem of new tunnels with a distance of only 2~3 m crossing under the existing tunnels, whose construction requirements are stricter.
When a new tunnel crosses under an existing subway tunnel, there is often a need to leave a certain distance, which is helpful for safety after strengthening the strata between the tunnels (Zhang et al. [22]). However, there are situations where new construction projects, such as subway stations, cross under an existing tunnel at zero distance due to site restrictions or traffic demand. Close penetration faces more serious safety issues and is often closely related to the rock environment within the site [25], which poses a greater challenge to the safety of close penetration. At present, related studies are still relatively scarce. In the existing documents, Li et al. [26] introduced a protection method of using a jack to lift the existing tunnel above when closely crossing, and Park et al. [27] proposed a modified underpinning method, which is used as large-area support at the bottom to control the settlement of the existing tunnel in a subway station project in Seoul. In terms of theoretical research, Liu et al. [28] proposed a superposition method based on the Winkler model to simulate the mechanical response of the new undercrossing tunnel and the existing tunnel when they are in close contact. However, this theoretical approach, which is only concerned with the initial and final engineering state of the excavation, neglects the effects of the excavation process and still has significant limitations.
With the rapid development of computer technology, the numerical simulation method is becoming an important research method according to Wang et al. [29]. Numerical simulations have the advantages of directness, efficiency, and low cost compared to theoretical studies and model tests. In particular, the refined three-dimensional numerical simulation, which can accurately and truly reproduce the construction process of complex engineering problems, achieved good results in the study of three-dimensional effects, spatial location relations, etc. (Do et al. [30]; Mohammad et al. [31]; and Yang et al. [32]). In addition, numerical simulations can also predict the construction effects of a given project or reproduce some engineering schemes that were not yet implemented for comparison and improvement of construction methods. Such problems are often difficult to solve by conventional methods (Shi et al. [33]; Liu et al. [34]). At present, a large number of scholars studied complex problems by means of numerical simulation (Michael et al. [35]; Hu et al. [36]; Pirastehfar et al. [37]; and Liu et al. [38]).
Due to space constraints, the newly built Chigang Station of Guangzhou Metro Line 12 needs to tunnel under the existing section of Metro Line 8 at a distance of zero. The deformation control requirements are stringent, but there are not enough relevant studies to properly cite. Relying on this project, three innovative construction schemes were proposed, including the L-type beam and pier column, which are tunnel support structures that utilize the main structure of the station, and then the whole process of support and excavation was reproduced by numerical simulations to study the mechanical response of the existing tunnel and the stability of the underground excavation area under the proposed schemes. Based on the proposed schemes, we further discuss the deformation control mechanism of the existing tunnel by supporting and excavating methods to find better construction schemes.

2. Project Overview

2.1. Background

The Chigang Station of Guangzhou Metro Line 12 is located in the core area of Haizhu District. The western side of the station is Liede Bridge, the eastern side is Xingang Middle Road, the northern side is Huangpu Chung, and the southern side is the existing Chigang Station of Line 8. The total length of the station is 169.50 m, the width of the standard section is 23.70 m, and the main structure has four floors (partial five floors). Due to space constraints, the station’s local hall floor and platform floor cross over and under the tunnel between the existing Line 8 stations at Modiesha and Chigang, respectively. As a result, the existing tunnels would intersect obliquely and run through the new station, forming the open excavated foundation pits on both sides as well as the upper part of the existing tunnel and underground excavation area. The main structure of the station shall be constructed after the excavation of the open excavation foundation pit on both sides of the existing tunnel and the overcrossing pit is completed, and the construction of the underground excavation of the existing tunnel in the undercrossing area shall be started after the completion of the main structure. The section of the section tunnel of the existing Metro Line 8 is rectangular, with a cross-section size of 18.45 m × 7.19 m, the buried depth of the tunnel structure roof is 7.93 m, and the strength grade of the concrete is C30. The top of the underground excavation construction area is in close contact with the existing tunnel floor at a distance of zero, and the depth of the floor is the same as the depth of the foundation pits on either side. The height of the undercrossing excavation area is 11.98 m, and the plane size is 27.35 m × 28.59 m. The width of the underground area is about 23.70 m, depending on the vertical distance between the walls on each side of the building itself.
The plan of the Chigang Station and its surroundings is shown in Figure 1. The station is divided into three areas for construction (as shown in area A, area B, and area C in Figure 1), and the underground area is located in area A, the construction of which starts after the completion of its main structure. The Section 1-1 of the station is shown in Figure 2, and the column section size in the figure is 1300 mm × 800 mm, and the concrete strength grade is C50. The bottom plate of the main structure and the structural roof of the underground area supporting the existing tunnel is 1300 mm thick, the top plate of the main structure is 800 mm thick, and the other plates are 500 mm thick. The concrete strength rating is C35. The main structure of the underground excavation area has two floors, with the bottom floor being the platform floor, and a mezzanine of smaller height between the platform floor and the bottom floor of the existing tunnel. There are three columns supporting the existing tunnel in the underground area, which are supported on the side walls and the middle wall of the existing tunnel, respectively.

2.2. Engineering Geology and Hydrogeology

According to exploration data from the site, the project area belongs to the sea–land interaction alluvial plain landform, which is a plain area with a network of crisscrossing rivers. The topography is flat and open, the river network is dense, the surface layers are distributed with a softer soil, and groundwater is abundant. The site mainly exposes the Cenozoic Quaternary artificial fill layer (Q4ml), sea–land interactive facies layer (Q4mc), alluvial–proluvial facies sedimentary layer (Q3+4al+pl) and residual soil layer (Qel), and the bedrock is Cretaceous sedimentary clastic rock (K). The groundwater in the site is divided into Quaternary loose layer pore water and massive bedrock fissure water according to the occurrence mode.
The strata of the new Chigang Station consist chiefly of: miscellaneous fill, mucky soil, silty clay, completely weathered sandstone, strongly weathered sandstone, moderately weathered sandstone, and slightly weathered sandstone, etc. The existing tunnel is located near clay and completely weathered sandstone layers. The rock strata excavated in the subsurface area are predominantly strongly weathered and moderately weathered sandstone. The base of the underground area and the main structure of the station are located in slightly weathered rock formations.

3. The Proposed Zero-Distance Construction Methods in the Undercrossing Area

An underground excavation construction method was used for the area beneath the existing tunnel. How to reduce the disturbance to the existing tunnel during construction became key to the design of the scheme. The following three construction schemes are proposed in this paper. Prior to the construction of the underground area, the soil mass, except for the underpass section in area A, shall be excavated layer by layer to the base level, and then the main structure and the upper span of the existing tunnel on each side shall be constructed. It is important to note that the stiffness and size of the support structures are consistent for each scheme, allowing for a more intuitive comparison between different schemes.

3.1. L-Type Beam + Full-Face Excavation Method

Scheme I creatively proposes the “L-type” beam support structure and its construction system according to the actual situation of the project and the characteristics of the main structure of the station crossing over and beneath the existing tunnel. L-type beams can provide strong line support throughout the entire length of the tunnel side wall of the underground excavation area. Therefore, the soil mass of the subsurface area was excavated in steps using a full-face excavation method. The specific construction steps are given in Table 1. The L-type beam acts near the bottom of the wall on both sides of the existing tunnel and forms a cantilever structure resembling the letter “L” with the wall of the main structure next to the side wall of the existing tunnel (as shown in Table 1, Step 3). During the excavation of soil in the undercrossing area, the face is parallel to the longitudinal direction of the existing tunnel, and the excavation distance of each step is about 5.0 m.

3.2. Pier Column + Double-Pilot Tunneling Method

Scheme II supported the existing tunnel with pier columns. The underground area was excavated by first digging pilot tunnels on either side and then excavating the intervening soil mass. The specific construction steps are listed in Table 2. There are three pier columns on each side, distributed at the base of the wall on either side of the existing tunnel. The pier column consists of the column itself, the bottom plate supporting the column, and the top plate supporting the existing tunnel. The top and bottom plates are connected to the main structure of the station. In order to further improve the deformation control effect, the six pier columns are constructed in two stages (as shown in Table 2, Steps 2–3). During the excavation of the underground area, the pilot tunnel, which has a width of about 6.0 m on each side, shall be excavated synchronously in a three-bench method, and then the intermediate soil mass shall be excavated in the same way.

3.3. Temporary Steel Column + Double-Pilot Tunneling Method

Scheme III used temporary steel columns and portal structures to support the side walls of the existing tunnel, and then used a double-pilot tunneling method to excavate the underground soil. In this scheme, temporary steel columns were used to support the bottom plate near the side wall of the existing tunnel, with a jack set on top. Due to the advantages of fast construction and no maintenance, the steel pillars were able to avoid, as much as possible, the effects of soil excavation on the tunnel. Subsequently, a small section of earth is excavated with the full-face excavation method, and part of the main structure (portal) is poured next, and the vertical steel support is provided between the portal and the tunnel, and the jacks are set at the top of the support. Different from Scheme I and Scheme II, the excavation of the pilot tunnels and the middle soil mass in the undercrossing area are divided into only two steps, and the vertical steel support and jacks shall be applied under the side walls on both sides and middle wall in time to compensate for the settlement of the existing tunnel floor. The specific construction scheme is shown in Table 3.

4. Numerical Realization of Zero-Distance Construction Process

4.1. Numerical Model and Calculation Parameters

In order to explore the mechanical response law and stability control effect of the new station and the existing tunnel under the three underground excavation schemes and then compare and select the better scheme, the three-dimensional refined numerical calculation models of the station foundation pit and the existing tunnel are established, which have the ability to truly reflect the implementation steps and detailed structure of each scheme. Figure 3 shows the numerical model for Scheme I. The overall models for the other two schemes are similar. The details are described in Section 4.2. In order to eliminate the influence of the boundary effect, the distance between the boundary of the model and the edge of the station shall be controlled to be more than three times the depth of the station. After comprehensive consideration, the model size shall be taken as long × wide × height = 258.0 m × 201.0 m × 80.0 m. The model consists of 124,834 nodes and 252,349 zones, with the hexahedron as the primary element. Numerical simulations were performed using Flac3D. The top surface of the model is the free boundary and the rest of the model is fixed with a normal displacement.
The main structure of the station needs to be modeled separately (as shown in Figure 3). It is introduced into the model after the excavation of the soil mass at the station location in the field model is completed, and the wall and bottom plate of the station structure are coupled with the field model, and then calculated to balance. The main structure of the station consists of 308,682 nodes and 357,635 zones. The relative position of the main structure of the station and the existing tunnel after the import is shown in the upper right panel of Figure 3.
The formation in the model is established by referring to the geological section of the field in the geological survey report. The site has typical soft soil formations such as mucky soil and clay. In order to better simulate its mechanical properties, the modified Cam-Clay elastic–plastic model is selected for simulation in the model (Huang et al. [39]; Liu et al. [40]; Yang et al. [41]; Liu et al. [42]), and the Mohr–Coulomb elastic–plastic model is used for other rock and soil masses. The constitutive model for the tunnel structure, the foundation pit retention structure, and the main structure of the station is the linear elastic model.
The main computational parameters of the strata and structures in the numerical calculations were determined from the site geological survey data and design documents, as shown in Table 4 and Table 5.

4.2. Numerical Simulation Process

In order to restore the stress state of the existing tunnel, the main structure of the station and surrounding rock and soil after being disturbed by the excavation before the construction of the undercrossing area in the project, the field model first completes the calculation of the initial ground stress equilibrium and the layered excavation of the foundation pit at the station location and then removes the support system in the foundation pit and imports the main structure model of the station, coupling it with the field model, to simulate a series of processes of the early station construction. At this time, because the soil mass of the undercrossing area was not excavated, the “null model” in FLAC is used to make the main structure of the undercrossing area invalid, and the linear elastic model is reset when the structure is constructed. In the previous simulations, all deformations and internal force indices of the foundation pit and the existing tunnel were within safe limits. The construction simulation of underground excavations in underground areas shall be carried out according to the following steps:
(1) Reset the displacement of the model.
(2) The soil mass to be excavated in the undercrossing area shall be reinforced by full-section grouting. The grouting range shall extend to 2 m outside the walls on both sides and 1 m downward at the bottom. This paper adopts the method of increasing the parameters of corresponding rock and soil mass by 30% to simulate (Shen and He [43]).
(3) Break part of the retaining structure to construct the support of the existing tunnel. Due to the longer curing time of concrete compared to steel structures, a calculation process is necessary between soil mass excavation and concrete structure construction. In contrast, steel support structures can be immediately constructed after excavation. Since there are jacks on the top of the steel column, this paper uses the method of additional surface load to simulate the steel column, and the load size is determined according to the deformation of the existing tunnel (Du et al. [44]).
(4) The rock and soil mass of the undercrossing area shall be excavated according to the method required by each scheme, and the main structure of the undercrossing area shall be constructed when the working face meets the construction conditions; during excavation, reinforcement measures for side wall anchors shall be taken in time according to the construction plan, and the anchor bolts shall be simulated by using the “cable” of FLAC.
Figure 4 shows a detailed modeling of the main structure of the existing tunnel and the new station and the construction simulation process. Figure 4i shows the situation after the completion of the tunnel support structure, and Figure 4iii shows the situation after the completion of the excavation and the main structure. Figure 4ii shows the excavation process of the undercrossing rock and soil mass, with the same colored rock and soil representing the same excavation steps. Unlike the other two schemes, Scheme III does not use roof and side walls to support the tunnel between the main structure and the tunnel, but instead uses steel columns, which are simulated by applying a surface load.

5. Deformation and Stress Patterns of Existing Tunnel and Newly Built Undercrossing Tunnel under Three Construction Methods

5.1. Analysis of the Deformation Control Effect and the Mechanical Response of the Existing Tunnel

When the construction is completed, the vertical deformation curves of the existing tunnel structure floor are shown in Figure 5 and Figure 6. The data points in the figure are distributed along the longitudinal and transverse directions of the existing tunnel and pass through the center point, which is the projection point of the planar geometric center of the underground area on the floor of the tunnel structure.
It can be seen from Figure 5 that the excavation of the undercrossing area makes the tunnel lose the support of the lower soil mass, the tunnel produces certain overall vertical deformation, and the settlement curve is in a “U” shape. At the end of excavation, the vertical displacement of the existing tunnel in Scheme I is the largest, reaching about 3.5 mm, and the settlement of Scheme II and Scheme III is relatively small, about 2.5 mm and 1.9 mm, respectively, indicating that Scheme II and Scheme III have good effects on the vertical deformation control of the existing tunnel. The vertical displacement of the existing tunnel is largest near the central point and remains high throughout the underground excavation area. The vertical deformation value of the tunnel at the edge of the undercrossing area in Scheme I is about 54~70% of the central point, and that in Scheme II and Scheme III is about 40~52% and 39~60%, respectively. It is worth noting that the presence of non-smooth points in the settlement curve at the center point of the tunnel and at the edge of the subsurface region in Scheme III is due to the presence of vertical jacks at these locations, which play a supporting role for nearby structures.
It can be seen from Figure 6 that the vertical deformation curve of the tunnel also presents a large “U” shape deformation in the middle and small at both ends in the horizontal direction, which indicates that the existing tunnel support scheme applied by the three schemes before excavation played a good role. The five points in the figure are located near the side walls, the middle wall, and the train tracks of the existing tunnel, respectively. It can be seen that the maximum vertical displacement of the tunnel in Scheme I appears near the train track on the right side of the center point, and that the overall tunnel structure has a tendency to tilt slightly to the right. In Scheme II, the deformations of the three points in the middle of the existing tunnel are almost equal, and the existing tunnel as a whole remains horizontal. In Scheme III, due to the existence of jacks near the middle wall, the middle settlement is small, and the overall settlement is also the smallest, and the settlement curve is in a “W” shape.
Figure 7 shows the development of the vertical displacement of the center point of the existing tunnel during the excavation of the underground area. The whole construction process can be roughly divided into two stages: the existing tunnel support (S1) and the undercrossing soil excavation (S2). The number of steps at the end of the construction is different in the three schemes due to the large difference in the method of excavation construction. It can be seen that the settlement process of Scheme II was the most gentle throughout the excavation, with the tunnel settling slowly with the excavation and the final settlement being small. In Scheme I, the settlement of the existing tunnel was relatively severe, with each excavation causing a large deformation within a few steps, and the final settlement being the largest. In Scheme III, the deformation curve fluctuates greatly, and the tunnel deforms violently during the excavation process, with the maximum settlement of about 3.0 mm (about 1.9 mm at last). The arrow in the figure shows the moment when the jacks are applied in Scheme III, which is the steel support and column at the entrance portal, the column near the middle wall of the tunnel, and the steel support and column at the exit portal from left to right, respectively. After the jacks are applied, the existing tunnel is jacked up under the action of the jacks, and its settlement value decreases.
Figure 8 shows the minimum principal stress cloud map of the existing tunnel floor near the underground area at the end of the excavation, which reflects the pressure stress distribution of the tunnel floor under the three schemes. In the figure, the dotted line is the undercrossing area, and the dash dot line is the diagonal line of the undercrossing area. As can be seen, the stress state of the existing tunnel floor is similar under the three schemes, with a smaller minimum principal stress on the longer diagonal and a larger principal stress on the shorter diagonal, indicating that the area near the shorter diagonal bears a larger compressive stress. It is worth noting that in Scheme III there is a clear concentration of stress in the range of motion of the jack near the side walls and the middle wall, especially at the bottom of the middle wall of the tunnel. Excessive local compressive stress can easily cause nearby concrete to exceed its ultimate bearing capacity, causing local damage to the tunnel.

5.2. Deformation and Stability Analysis of the Surrounding Rock on Either Side of the Underground Area

The lateral deformation curves of the rock and soil masses on either side of the subsurface region are shown in Figure 9. With the unloading caused by the excavation of the soil mass in the undercrossing area, and the additional stress exerted on the rock and soil mass on both sides by the part of the upper existing tunnel extending into the soil mass, the side walls of both sides move to the middle. It can be seen that the lateral displacements of the walls on both sides of Scheme III are the largest, about 4.0 mm and 4.3 mm, respectively; Scheme I takes the second place, about 3.4 mm and 3.5 mm, respectively; and Scheme II is the smallest, at about 2.9 mm and 3.2 mm. The lateral displacement of the strongly weathered sandstone layer in the upper part of the undercrossing area is relatively large, and that of the moderately weathered sandstone layer in the lower part is relatively small. The overall lateral displacement curve is in a “spoon” shape, and the inflection point is located at the junction of the moderately weathered and strongly weathered rock layers. Compared with the other two schemes, there is a “sharp point” in the lateral displacement curve of Scheme III near −3 m. This is because Scheme III uses steel support and jacks to support the existing tunnel floor within the range of 0~−3.2 m, and no side wall is constructed (as shown in the figure of Step 6 in Table 3). In this range, only the role of soil grouting reinforcement and bolt support is considered.
Figure 10 shows the profile cloud map of the vertical displacement of the undercrossing area and surrounding rock and soil along the longitudinal direction of the existing tunnel. For the sake of comparison, the cloud graph gradients for each scheme are set to be consistent. It can be seen that after the excavation of the rock and soil mass in the undercrossing area, the rock and soil mass at the bottom have a tendency to heave due to unloading, and the amount and influence range of the heave at the bottom of Scheme I are relatively large. In addition, the surrounding rocks on both sides of the undercrossing area and the soil above the existing tunnel show different degrees of settlement, and the settlement range is a “bowl” type. We can see that the settlement of the existing tunnel in Scheme I caused a certain disturbance to the rock and soil on both sides, resulting in large settlement of the rock and soil on both sides, while the rock and soil on both sides of Scheme II and Scheme III were affected in a small range. In addition, it can be seen that the floor slab of the main structure of the undercrossing area in Scheme III also has a large vertical displacement, which is because the bottom of the jack supporting the existing tunnel is supported on the lower main structure, and the main structure bears the load generated by the settlement of existing tunnels and has a collaborative deformation with the existing tunnel.
As can be seen from the above, the three schemes use almost completely different tunnel support methods and underground excavation methods, resulting in significant differences in the construction effects of each scheme. It is difficult to draw conclusions about the key elements of tunneling settlement control by simple induction. Therefore, it is necessary to further investigate the selection and optimization of support and excavation methods for existing tunnels that require zero-distance undercrossing.

6. Comparison and Optimization of Support and Excavation Methods for Undercrossing the Existing Tunnels at Zero Distance

6.1. Analysis of the Principles That Cannot Be Adopted for Scheme III

From Section 5, we can see that during the excavation of Scheme III, the tunneling settling is highly fluctuating, and there is a large concentration of stress at the bottom of the middle side wall. The deformation of the walls on either side of the underground channel is the largest and the deformation curve is not smooth. Its deformation and stress are in a disadvantaged state. Based on engineering experience, the possible problems still remaining in its construction are summarized as follows:
(1) The use of jacks as a means of dynamic control of the tunnel settlement puts forward higher requirements for the monitoring of existing tunnel deformation and the management of on-site personnel during the construction process. Slight negligence or delay in treatment can lead to tunnel vertical deformation and severe safety accidents.
(2) Scheme III adopts the scheme that the main structure of the undercrossing area supports the steel columns to support the existing tunnel. Although the steel column falls on the side walls and the middle column of the underground main structure, it will inevitably affect the deformation and stability of the underground main. The columns replace the side walls below the mezzanine in other schemes, and they reduce the stability of the soil on both sides of the mezzanine and are prone to safety accidents.
(3) Due to the existence of steel columns, the construction working face is affected during the construction of the portal, resulting in construction inconvenience. In addition, there is an intersection between the steel columns and the portal in space, which is difficult to handle in the actual construction. It is difficult to determine the load borne by the steel column as the calculation of the strength check is complicated and there are large uncertainties.
(4) The steel columns and jacks are temporary supporting structures, which need to be reconstructed for permanent use in the later stage, which increases costs and risks.
(5) Because the existing tunnel is directly supported by the jacks in this scheme, it is easy to produce local concentrated stress in the tunnel structure during jacking. There is a large compressive stress in the jack action area, especially at the bottom of the middle wall of the tunnel, which can easily cause the stress to exceed the ultimate bearing capacity of nearby concrete and cause localized damage.
In summary, although Scheme III can achieve a good effect on the final settlement control of the existing tunnel and has a small influence range of excavation on the surrounding rock and soil mass, there are unavoidable problems, such as high construction requirements for the control of tunnel heave and settlement during the excavation process, and the jacks are can easily cause local damage to the existing tunnel floor. The construction effects in real engineering may be far inferior to the simulation results. Therefore, this scheme is not recommended in practical projects.

6.2. Comparison between Scheme I and Scheme II

The strengths and weaknesses of Schemes I and II are summarized in Table 6.
From Table 6, it can be seen that the deformation control effect of Scheme II outperforms that of Scheme I in most aspects. However, the two schemes use completely different methods of tunnel support and excavation. Based on the above analysis, it is difficult to identify the key factors that control tunneling settling. The tunnel support method for the L-type beam, the pier column, and the excavation method for the full-face double-pilot proposed in Schemes I and II have the possibility to be combined and optimized, which can further leverage the advantages of the proposed support and excavation methods to obtain the optimal method.

6.3. Optimization of Support and Excavation Plans

From the above results, we can see that the settling curves of the existing tunnel in Scheme I and Scheme II are stable. Scheme II outperforms Scheme I in terms of settlement control of the existing tunnel and deformation control of the side walls, but the construction of the double-pilot tunnel method requires more time. Moreover, it is not yet clear how the four tunnel support and soil mass excavation methods control tunnel deformation, making it difficult to determine the key factors that contribute to the better deformation control effect of Scheme II.
Therefore, it is necessary to further study whether the proposed Scheme I and II can be optimized through combination and seek solutions with stronger engineering applicability. Based on the aforementioned numerical computational model, the numerical simulation conditions are designed as shown in Figure 11. For the sake of analysis, the simplified expressions for the tunneling support and excavation methods in the following are shown in Table 7.

6.4. Mechanism of Influence of Tunnel Support Structure

Figure 12 shows the vertical deformation curve of the bottom plate in the transverse direction of the existing tunnel for four conditions after the construction of the tunnel support structure is completed, with negative values indicating downward deformation. It is obvious that the existing tunnel floor in Condition 1 and Condition 2 is an inverted “U”-shaped deformation, with large vertical displacement near the walls on both sides and small vertical displacement in the middle. The reason for this can be attributed to the fact that the L-type beam scheme required excavating the earth at the base of the two side walls of the existing tunnel, making that suspension, and then constructing the concrete beam. During this process, large vertical displacements occur on both sides of the existing tunnel, while the displacement in the middle is small due to the earth-jacking. The deformation of the existing tunnel floor in Condition 3 and Condition 4 is relatively gentle and the overall settlement is small. Although the pier column scheme also required earthwork excavation, only the soil of the six-column area is excavated, and the horizontal area is small. Therefore, the disturbance of the jacking effect of the underlying soil on the existing tunnel is not obvious.
Figure 13 shows a plot of the minimum principal stress cloud in the transverse direction near the center point of the existing tunnel at the end of the tunnel support phase. We can see that there is a clear compression near the bottom of the middle wall for the four working conditions; this is because after the excavation of the soil on both sides, the middle soil acts as a jack on the existing tunnel, preventing the overall settlement of the existing tunnel. In the presence of gravity, the middle wall is subjected to greater pressure. In Condition 1 and Condition 2 of the L-type beam, due to the large free area of the tunnel floor after the excavation of soil on both sides, the middle part bears a large tunnel structural load, and the bottom of the middle wall is subject to a large pressure of about 1.85 MPa, while Condition 3 and Condition 4 are relatively small, at about 1.6 MPa.
The deformation mechanism of the existing tunnel in the tunnel support process is shown in Figure 14. The main structure of the station is concealed in the figure for the convenience of observation, and only the existing tunnel, the rock and earth mass of the underground area, and one side of the boundary of the foundation pit are drawn. At the tunnel support stage, the L-type beam scheme needs to excavate a certain area of soil on both sides of the existing tunnel, resulting in a large area of free face under the bottom plate of the walls on both sides of the tunnel, as shown in the axonometric drawing on the left side of Figure 14a. There is no soil support under the free face, but only the unexcavated soil plays a supporting role in the middle of the tunnel structure. The deformation of the tunnel is shown in the diagram on the right. The gravity of the tunneling structure is transmitted through the mid-wall to the lower soil, resulting in a large local pressure at the lower part of the mid-wall. However, the free face caused by the pier column scheme is small, and there is still soil mass at the bottom of the walls on both sides of the existing tunnel, as shown in Figure 14b. Therefore, the tunnel is mainly subject to overall settlement and deformation, and the stress on the tunnel structure is uniform. In addition, the earthwork of the pier column is excavated in two stages, and the earthwork of the middle columns position is excavated after the corner columns construction was completed, which further reduced the overall settlement deformation of the tunnel.

6.5. The Mechanism of Influence of the Excavation Method

Figure 15 shows the vertical deformation curves of the existing tunnel floor at each stage of the excavation under the four working conditions. For the convenience of the analysis, for conditions 1 and 4, since the full-face two-bench method is used for excavation, it is considered Step 1 when the soil is excavated through the middle wall of the existing tunnel, and Step 2 for the end of the excavation. In Condition 2 and Condition 3, which chose the double-pilot tunnel method of excavating the two pilot tunnels first and the middle soil later, the excavation of two pilot tunnels passing through the middle wall and the end of excavation are Step 1 and Step 2, respectively, and the excavation of the middle soil mass passing through the middle wall and the end of excavation are Step 3 and Step 4, respectively.
It can be seen that at the end of the tunnel support stage, the settlement of the tunnel in Condition 1 and Condition 2 with the L-type beam is about 0.45 mm, and that in Condition 3 and Condition 4 with the pier column is about 0.25 mm, which has a better settlement control effect. For the full-face excavation method (Condition 1 and 4), the final settlement is relatively larger (both about 0.3 mm larger) than the conditions of different excavation methods of the same tunnel support method, and the final settlement is about 3.50 mm and 2.75 mm, respectively. When the excavation exceeded the middle wall of the existing tunnel (Step 1), the settlement of the existing tunnel exceeded half of the total settlement. It can be seen that the settlement of the existing tunnel developed rapidly during the initial stage of excavation. In Conditions 2 and 3, the double pilot tunneling method was used for excavation, and the final settling was about 3.1 mm and 2.5 mm, respectively. When the pilot tunnels are excavated (Step 1 and Step 2), the middle soil mass is not excavated, and the structure near the center of the existing tunnel is still supported by the lower soil mass with small settlement. By comparing the difference between the settlement values at the end of tunnel support and the end of excavation, it is apparent that when the L-type beam is used, the settlement of the existing tunnel during the excavation of the undercrossing area is greater than that of the existing tunnel when the pier column is used. It is also known that when the earth is excavated, the pier columns also have a good effect on the settling control of the existing tunnels.
The above analysis can indicate that the L-type beam has a relatively weak ability to resist deformation, and its deformation control effect on the existing tunnel during the tunnel support stage and underpass excavation stage is worse than that of the pier column. The pier columns, however, exhibit a much stronger stiffness, and can effectively support the existing tunnel and prevent further deformation during the excavation of the earth for the underpass.
Figure 16 shows the deformation curve of the lateral wall of the underground area during excavation. Since the lateral displacements on the south and north sides are almost symmetric, only one side displacement is shown in the figure. The meaning of Step 1 to 4 in the figure is the same as Figure 15. We can see that the maximum lateral displacement of the side wall under the four working conditions in the figure is almost the same, which is about 3.5 mm. Figure 16a,d shows the conditions of full-face excavation. When the soil is excavated to the middle wall of the existing tunnel, the deformation of the side wall reaches about 2.5 mm, which exceeded half of the total deformation. Figure 16b,c shows the excavation conditions of the double-pilot tunnel method. By the time the excavation reaches Step 2, two pilot tunnels are excavated. In the subsequent excavation of the central part of the soil, the deformation of the lateral wall is stable and the growth of the deformation is small. It can also be seen from the figure that the deformation curve of the side wall is relatively flat and the deformation amount is small compared with that of the full-section excavation at the same time when the two-pilot tunnel method is excavated to exceed the middle wall of the tunnel (Step 1).

6.6. Scheme Optimization

From the above analysis, it can be seen that the tunnel support method with the pier columns is superior to the existing tunnel in terms of settlement, deformation, and stress, and can reduce the settlement development of the existing tunnel more effectively during the excavation phase of the underground area. When the same existing tunnel support method is used, there is a slight increase in the final settlement of the existing tunnel when the full-face excavation method is used compared to the double-pilot tunnel method, while the construction period is significantly shortened and the construction difficulty is reduced. In summary, the pier column + full-face excavation method is preferred in the actual project. If the effect of the construction period is not taken into account, the excavation of the pier column + double-pilot tunnel has the best effect on the control of the deformation of the existing tunnel and the sides of the wall.

7. Conclusions

Based on the characteristics of the actual project and the requirements of deformation control, three underground excavation construction schemes that closely cross beneath the existing tunnel were proposed in this paper, and the implementation process and detailed structure of the three underground excavation schemes were reflected through the establishment of a three-dimensional refined numerical calculation model, the feasibility and control effect of the three schemes were discussed, and the deformation control mechanism of the existing tunnel structure and the undercrossing area under different support methods and underground excavation methods was further studied. The conclusions of this study can be summarized as follows:
(1) In terms of deformation control of existing tunnels, the L-type beam + full-face excavation method in Scheme I is the largest, the pier column + double-pilot tunnel method in Scheme II is relatively small, and the final settlement in Scheme III, the temporary steel column + double-pilot tunnel method, is the smallest, but the tunnel deformation changes violently during the excavation process, and the maximum settlement exceeds that in Scheme II; in terms of soil deformation control on both sides of the undercrossing area, there is little difference between Scheme I and Scheme II, both of which are smaller than Scheme III in lateral displacement, and there is a “sharp point” in the soil deformation curve of the side wall of Scheme III.
(2) At the end of the tunnel support stage, due to the large free face generated by the excavation of the soil on both sides of the L-type beam structure during the construction process, the settlement near the walls on both sides of the existing tunnel is large, and only the soil in the middle of the undercrossing area plays a jacking role on the tunnel, the bottom of the middle wall bears a large compressive stress, and the bottom plate in the transverse direction is an inverted “U”-shaped deformation. The pier column structure has a good effect on the settlement control of the existing tunnel. The deformation of the bottom plate in the transverse direction is uniform, and the overall settlement of the tunnel is small.
(3) In the process of rock and soil excavation in the undercrossing area, the settlement of the existing tunnel under the condition of double-pilot tunnel excavation is less than that under the condition of full-face excavation under the same tunnel support mode; when the L-type beam structure is used to support the tunnel, the increase in the vertical displacement of the existing tunnel during the excavation of the subsurface soil is greater than in the case where the pier column support is used. When the double-pilot tunnel method is adopted for excavation, the deformation of the side walls of the undercrossing area tends to be almost stable after the excavation of the two pilot tunnels is completed, and the lateral displacement of the two side walls changes slightly during the excavation of the middle soil mass.
(4) Through comprehensive analysis and consideration, the deformation control effect of Scheme III (temporary steel column + double-pilot tunnel excavation) is mediocre, and there are problems such as uneven stress on the tunnel structure, dramatically changing tunnel deformation, high construction requirements, and large construction difficulty, so the applicability is not strong in the actual project. Regardless of the construction period, the pier column + double-pilot tunnel method is the best way to control the deformation. Alternatively, the combination construction scheme of pier column + full-face excavation can be chosen as a secondary option.

Author Contributions

Conceptualization, X.Z.; Methodology, Z.Z.; Software, Z.Z.; Validation, X.L.; Investigation, Z.W.; Resources, L.L.; Writing—original draft, Z.Z.; Writing—review & editing, X.Z. and L.W.; Funding acquisition, X.Z. and X.L. All authors have read and agreed to the published version of the manuscript.

Funding

This work was supported by the National Natural Science Foundation for Young Scientists of China (Grant No. 52104076) and National Natural Science Foundation of China (Grant No. 41772319).

Data Availability Statement

Not applicable.

Conflicts of Interest

The authors declare no conflict of interest.

References

  1. Broere, W. Urban underground space: Solving the problems of today’s cities. Tunn. Undergr. Space Technol. 2016, 55, 245–248. [Google Scholar] [CrossRef]
  2. Valdenebro, J.V.; Faustino, N.; Gimena, J.; Javier, L. Construction process for the implementation of urban utility tunnels in historic centres. Tunn. Undergr. Space Technol. 2019, 89, 38–49. [Google Scholar] [CrossRef]
  3. Zhang, J.F.; Chen, J.J.; Wang, J.H.; Zhu, Y.F. Prediction of tunnel displacement induced by adjacent excavation in soft soil. Tunn. Undergr. Space Technol. 2013, 36, 24–33. [Google Scholar] [CrossRef]
  4. Huang, M.L.; Shen, Q.F.; Zhang, C.Y.; Meng, Z.H. Study on the Influence of Construction Undercrossing Existing Station at Zero Distance in Confined Water. Appl. Sci. 2022, 12, 5887. [Google Scholar] [CrossRef]
  5. Liang, R.Z.; Xia, T.D.; Hong, Y.; Yu, F. Effects of above-crossing tunnelling on the existing shield tunnels. Tunn. Undergr. Space Technol. 2016, 58, 159–176. [Google Scholar] [CrossRef]
  6. Chen, J.J.; Zhu, Y.F.; Li, M.G.; Wen, S.L. Novel Excavation and Construction Method of an Underground Highway Tunnel above Operating Metro Tunnels. J. Aerosp. Eng. 2015, 28. [Google Scholar] [CrossRef]
  7. Gao, G.Y.; Zhuang, Y.; Wang, K.Y.; Chen, Y. Influence of Benoto bored pile construction on nearby existing tunnel: A case study. Soils Found. 2019, 59, 544–555. [Google Scholar] [CrossRef]
  8. Liu, C.; Peng, L.M.; Lei, M.F.; Li, Y.F. Research on Crossing Tunnels’ Seismic Response Characteristics. KSCE J. Civ. Eng. 2019, 23, 4910–4920. [Google Scholar] [CrossRef]
  9. Meng, F.Y.; Chen, R.P.; Xu, Y.; Wu, K.; Wu, H.N.; Liu, Y. Contributions to responses of existing tunnel subjected to nearby excavation: A review. Tunn. Tunn. Undergr. Space Technol. 2022, 119, 104195. [Google Scholar] [CrossRef]
  10. Liu, X.R.; Xiong, F.; Zhou, X.H.; Liu, D.S.; Chen, Q.; Zhang, J.L.; Han, Y.; Xu, B.; Deng, Z.; He, C. Physical model test on the influence of the cutter head opening ratio on slurry shield tunnelling in a cobble layer. Tunn. Undergr. Space Technol. 2022, 120, 104264. [Google Scholar] [CrossRef]
  11. Wang, A.; Shi, C.H.; Zhao, C.Y.; Deng, E.; Yang, W.C.; He, H. Response Characteristics of Cross Tunnel Lining under Dynamic Train Load. Appl. Sci. 2020, 10, 4406. [Google Scholar] [CrossRef]
  12. Zhao, C.Y.; Yue, R.H.; Lin, Y.L.; Huang, C.J.; Jiang, X. Investigation on Deformation Behavior of the Crossing Section of Two Municipal Road Tunnels during Construction. Appl. Sci. 2023, 12, 12274. [Google Scholar] [CrossRef]
  13. Chen, R.P.; Meng, F.Y.; Li, Z.C.; Ye, Y.H.; Ye, J.N. Investigation of response of metro tunnels due to adjacent large excavation and protective measures in soft soils. Tunn. Undergr. Space Technol. 2016, 58, 224–235. [Google Scholar] [CrossRef]
  14. Byun, G.W.; Kim, D.G.; Lee, S.D. Behavior of the ground in rectangularly crossed area due to tunnel excavation under the existing tunnel. Tunn. Undergr. Space Technol. 2006, 21, 361. [Google Scholar] [CrossRef]
  15. Jin, D.L.; Yuan, D.J.; Li, X.G.; Zheng, H.T. Analysis of the settlement of an existing tunnel induced by shield tunneling underneath. Tunn. Undergr. Space Technol. 2018, 81, 209–220. [Google Scholar] [CrossRef]
  16. Yin, M.L.; Jiang, H.; Jiang, Y.S.; Sun, Z.Y.; Wu, Q.L. Effect of the excavation clearance of an under-crossing shield tunnel on existing shield tunnels. Tunn. Undergr. Space Technol. 2018, 78, 245–258. [Google Scholar] [CrossRef]
  17. Lai, H.P.; Zheng, H.W.; Chen, R.; Kang, Z.; Liu, Y. Settlement behaviors of existing tunnel caused by obliquely under-crossing shield tunneling in close proximity with small intersection angle. Tunn. Undergr. Space Technol. 2020, 97, 103258. [Google Scholar] [CrossRef]
  18. Ou, X.; Liu, Y.M.; Li, C.; Zhou, X.H.; Chen, Q.Z.; Zhou, Y.H.; Zhang, Q. Analysis of the Interaction Effects of Shield Structure Oblique Passing under an Existing Tunnel. Appl. Sci. 2022, 12, 5569. [Google Scholar] [CrossRef]
  19. Zhang, Z.G.; Huang, M.S. Geotechnical influence on existing subway tunnels induced by multiline tunneling in Shanghai soft soil. Comput. Geotech. 2014, 56, 121–132. [Google Scholar] [CrossRef]
  20. Liu, X.R.; Wang, L.F.; Zhou, X.H.; Wang, J.M.; Zhong, Z.L.; Liu, P.; Xiong, F.; He, C. E-M calculation model and its application of calculating deformation in a new tunnel orthogonally undercrossing an existing tunnel. Tunn. Undergr. Space Technol. 2022, 123, 104418. [Google Scholar] [CrossRef]
  21. Chen, R.P.; Lin, X.T.; Kang, X.; Zhong, Z.Q.; Liu, Y.; Zhang, P.; Wu, H.-N. Deformation and stress characteristics of existing twin tunnels induced by close-distance EPBS under-crossing. Tunn. Undergr. Space Technol. 2018, 82, 468–481. [Google Scholar] [CrossRef]
  22. Zhang, C.P.; Zhang, X.; Fang, Q. Behaviors of existing twin subway tunnels due to new subway station excavation below in close vicinity. Tunn. Undergr. Space Technol. 2018, 81, 121–128. [Google Scholar] [CrossRef]
  23. Qian, F.; Zhang, D.L.; Li, Q.Q.; Louis, N.Y.W. Effects of twin tunnels construction beneath existing shield-driven twin tunnels. Tunn. Undergr. Space Technol. 2015, 45, 128–137. [Google Scholar] [CrossRef]
  24. Jin, D.L.; Yuan, D.J.; Liu, S.Y.; Li, X.G.; Luo, W.P. Performance of Existing Subway Tunnels Undercrossed by Four Closely Spaced Shield Tunnels. J. Perform. Constr. Facil. 2019, 33. [Google Scholar] [CrossRef]
  25. Chen, J.Y.; Huang, H.W.; Cohn, A.G.; Zhang, D.M.; Zhou, M.L. Machine learning-based classification of rock discontinuity trace: SMOTE oversampling integrated with GBT ensemble learning. Int. J. Min. Sci. Technol. 2022, 32, 309–322. [Google Scholar] [CrossRef]
  26. Li, X.G.; Zhang, C.P.; Yuan, D.J. An in-tunnel jacking above tunnel protection methodology for excavating a tunnel under a tunnel in service. Tunn. Undergr. Space Technol. 2013, 34, 22–37. [Google Scholar] [CrossRef]
  27. Park, Y.-H.; Kim, J.-P.; Cho, K.-H. Stability analysis of subway box structure supported by modified underpinning method. Tunn. Undergr. Space Technol. 2015, 50, 199–208. [Google Scholar] [CrossRef]
  28. Liu, X.; Fang, Q.; Zhang, D.L. Mechanical responses of existing tunnel due to new tunnelling below without clearance. Tunn. Undergr. Space Technol. 2018, 80, 44–52. [Google Scholar] [CrossRef]
  29. Wang, J.X.; Cao, A.S.; Wu, Z.; Sun, Z.P.; Lin, X.; Sun, L.; Liu, X.; Li, H.; Sun, Y. Numerical Simulation on the Response of Adjacent Underground Pipelines to Super Shallow Buried Large Span Double-Arch Tunnel Excavation. Appl. Sci. 2022, 12, 621. [Google Scholar] [CrossRef]
  30. Do, N.A.; Dias, D.; Oreste, P.; Irini, D.M. Three-dimensional numerical simulation of a mechanized twin tunnels in soft ground. Tunn. Undergr. Space Technol. 2014, 42, 40–51. [Google Scholar] [CrossRef]
  31. Mohammad, S.A.; Mehdi, N.; Alireza, Y.B.; Mohammad, F. A 3D numerical model to determine suitable reinforcement strategies for passing TBM through a fault zone, a case study: Safaroud water transmission tunnel, Iran. Tunn. Undergr. Space Technol. 2019, 88, 186–199. [Google Scholar] [CrossRef]
  32. Yang, F.; Liu, G.; Wang, Y.Q.; Yu, S.K. Numerical Investigation of the Segmental Lining Performance for a Shield Tunnel. KSCE J. Civ. Eng. 2022, prepublish. [Google Scholar] [CrossRef]
  33. Shi, J.W.; Fu, Z.Z.; Guo, W.L. Investigation of geometric effects on three-dimensional tunnel deformation mechanisms due to basement excavation. Comput. Geotech. 2019, 106, 108–116. [Google Scholar] [CrossRef]
  34. Liu, X.R.; Suliman, L.; Zhou, X.H.; Wang, J.W.; Wang, L.F.; Elmageed, A.A. Settlement Characteristic Due to Excavate Parallel Tunnels in a Fill-rock Slope: Model Test and Numerical Analysis. Rock Mech. Rock Eng. 2022, 55, 7125–7143. [Google Scholar] [CrossRef]
  35. Michael, K.; Dimitris, L.; Ioannis, V.; Petros, F. Development of a 3D finite element model for shield EPB tunnelling. Tunn. Undergr. Space Technol. 2017, 65, 22–34. [Google Scholar] [CrossRef]
  36. Hu, Z.Q.; Ma, B.; Chen, X.Z.; Chen, L.L. Study on Sensitivity Parameters Analysis of Grouting Reinforcement Underpassing Existing Subway Tunnel by Numerical Modeling. Adv. Civ. Eng. 2021, 2021, 8868216. [Google Scholar] [CrossRef]
  37. Pirastehfar, K.; Shivaei, S.; Sadaghiani, M.H.; Nikooee, E. 3D numerical investigation of the effects of driving of the new mechanized tunnel on existing segmental linings and ground surface settlements—A case study: Shiraz metro line 2. Int. J. Geotech. Eng. 2022, 16, 878–889. [Google Scholar] [CrossRef]
  38. Liu, X.R.; Zhuang, Y.; Zhou, X.H.; Li, C.; Lin, B.B.; Liang, N.H.; Zhong, Z.; Deng, Z. Numerical study of the mechanical process of long-distance replacement of the definitive lining in severely damaged highway tunnels. Undergr. Space 2023, 9, 200–217. [Google Scholar] [CrossRef]
  39. Huang, M.S.; Liu, Y.H.; Sheng, D.C. Simulation of yielding and stress-stain behavior of shanghai soft clay. Comput. Geotech. 2011, 38, 341–353. [Google Scholar] [CrossRef]
  40. Liu, S.H.; Yang, J.S.; Fu, J.Y.; Zheng, X.C. Performance of a Deep Excavation Irregular Supporting Structure Subjected to Asymmetric Loading. Int. J. Geomech. 2019, 19. [Google Scholar] [CrossRef]
  41. Yang, X.H.; Jia, M.C.; Ye, J.Z. Method for estimating wall deflection of narrow excavations in clay. Comput. Geotech. 2020, 117, 103224. [Google Scholar] [CrossRef]
  42. Liu, X.R.; Liu, P.; Zhou, X.H.; Wang, L.F.; Zhong, Z.L.; Lou, X.H.; Chen, T.; Zhang, J. Influence characteristics of isolation piles on deformation of existing shallow foundation buildings under deep excavation. Geomech. Eng. 2022, 31, 1–14. [Google Scholar] [CrossRef]
  43. Shen, L.S.; He, S.H. Subsidence controlling and construction scheme optimization of cutting across and underpassing an existing metro tunnel under complex environmental conditions. Chin. J. Rock Mech. Eng. 2008, 27, 2893–2900. (In Chinese) [Google Scholar]
  44. Du, W.; Wang, Y.H.; Li, L.; Zhu, L.C.; Zhu, H.T.; Wang, Y.Q. Case study on double-deck subway station undercrossing and analysis of filed monitoring about this case. Rock Soil Mech. 2019, 40, 2765–3773. (In Chinese) [Google Scholar] [CrossRef]
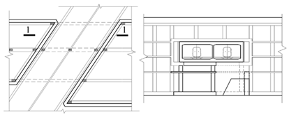
Figure 1. Plane location and surrounding environment of the new station.
Figure 1. Plane location and surrounding environment of the new station.
Applsci 13 08826 g001
Figure 2. 1-1 Section of area A of the new station.
Figure 2. 1-1 Section of area A of the new station.
Applsci 13 08826 g002
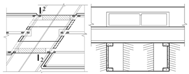
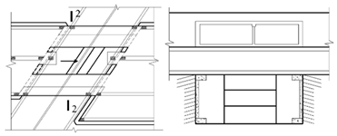
Figure 3. Three-dimensional numerical model (taking Scheme I as an example).
Figure 3. Three-dimensional numerical model (taking Scheme I as an example).
Applsci 13 08826 g003
Figure 4. Model of existing tunnel and newly built station.
Figure 4. Model of existing tunnel and newly built station.
Applsci 13 08826 g004
Figure 5. Vertical deformation curve of the existing tunnel (longitudinal).
Figure 5. Vertical deformation curve of the existing tunnel (longitudinal).
Applsci 13 08826 g005
Figure 6. Vertical deformation curve of the existing tunnel (transverse).
Figure 6. Vertical deformation curve of the existing tunnel (transverse).
Applsci 13 08826 g006
Figure 7. Vertical deformation of center point of existing tunnel.
Figure 7. Vertical deformation of center point of existing tunnel.
Applsci 13 08826 g007
Figure 8. Cloud chart of minimum principal stress of existing tunnel floor (unit: Pa).
Figure 8. Cloud chart of minimum principal stress of existing tunnel floor (unit: Pa).
Applsci 13 08826 g008
Figure 9. Lateral deformation of rock and soil mass on both sides of undercrossing area.
Figure 9. Lateral deformation of rock and soil mass on both sides of undercrossing area.
Applsci 13 08826 g009
Figure 10. Vertical displacement cloud chart of undercrossing area (unit: m).
Figure 10. Vertical displacement cloud chart of undercrossing area (unit: m).
Applsci 13 08826 g010
Figure 11. Numerical simulation condition design diagram.
Figure 11. Numerical simulation condition design diagram.
Applsci 13 08826 g011
Figure 12. Vertical deformation curve of existing tunnel floor at the end of tunnel support stage (transverse).
Figure 12. Vertical deformation curve of existing tunnel floor at the end of tunnel support stage (transverse).
Applsci 13 08826 g012
Figure 13. Cloud chart of minimum principal stress at the end of tunnel support stage.
Figure 13. Cloud chart of minimum principal stress at the end of tunnel support stage.
Applsci 13 08826 g013
Figure 14. Deformation mechanism of existing tunnel during tunnel support.
Figure 14. Deformation mechanism of existing tunnel during tunnel support.
Applsci 13 08826 g014
Figure 15. Deformation curve of existing tunnel during excavation (longitudinal).
Figure 15. Deformation curve of existing tunnel during excavation (longitudinal).
Applsci 13 08826 g015
Figure 16. Deformation curve of the side wall of the undercrossing area during excavation.
Figure 16. Deformation curve of the side wall of the undercrossing area during excavation.
Applsci 13 08826 g016
Table 1. Construction steps of Scheme I.
Table 1. Construction steps of Scheme I.
StepsSketch MapExplain
1Applsci 13 08826 i001Full-section WSS grouting reinforcement for underground excavation area.
2Applsci 13 08826 i002Part of the retaining structure was broken off on either side of the existing tunnel and a portion of the soil mass was excavated to create a working surface for the construction of the L-type beam.
3Applsci 13 08826 i003Construct L-shaped cantilevers to support existing tunnel.
4Applsci 13 08826 i004The excavations were carried out using a full-face two-bench method with a bench length of 5 m. The face shall be sloped at a slope rate of 0.5, and the walls on both sides shall be supported by anchor bolts + grids, with the anchor bolt spacing of 0.8 m × 0.75 m.
5Applsci 13 08826 i005The main structure shall be constructed as soon as excavated to support the existing tunnel above.
Table 2. Construction steps of Scheme II.
Table 2. Construction steps of Scheme II.
StepsSketch MapExplain
1Applsci 13 08826 i006Full-section WSS grouting reinforcement for underground excavation area.
2Applsci 13 08826 i007Part of the retaining structure was broken off on either side of the existing tunnel and a portion of the soil mass was excavated, after which four piers were to be constructed.
3Applsci 13 08826 i008Break the middle part of the retaining structure and excavate a portion of the soil mass, and then construct the remaining two pier columns.
4Applsci 13 08826 i009Two pilot tunnels were excavated at the side walls using a three-bench method with a bench length of 5 m. The face shall be sloped at a slope rate of 0.5, and the walls of the pilots on either side shall be supported by anchor bolts and grids.
5Applsci 13 08826 i010The side walls on either side, as well as parts of the top and bottom plates, shall be constructed as soon as excavated.
6Applsci 13 08826 i011Excavate part of the soil mass in the middle.
7Applsci 13 08826 i012Construct the remaining part of the top plates, bottom plates, and columns as soon as it is excavated.
Table 3. Construction steps of Scheme III.
Table 3. Construction steps of Scheme III.
StepsSketch MapExplain
1Applsci 13 08826 i013Full-section WSS grouting reinforcement for underground excavation area.
2Applsci 13 08826 i014Part of the retaining structure near the bottom plate was broken off on one side, and a portion of the soil mass was excavated to construct part of the bottom plate. The bottom plate shall exceed the side wall of the existing tunnel.
3Applsci 13 08826 i015Break the retaining structure at this location and excavate the soil mass, and then immediately construct temporary steel columns. The top jacks compensated for the loss of stress, and the columns support the side wall of the existing tunnel.
4Applsci 13 08826 i016Excavate the soil mass in the full section and construct the portal. The excavation depth of the tunnel portal is the same as that of the bottom plate.
5Applsci 13 08826 i017Two pilot tunnels were excavated using the two-bench method. Excavation shall be carried out in two stages: The first is to pass through the middle wall of the existing tunnel and ensure that the remaining soil can self-stabilize. The second excavation shall be carried out to the exit section. The side wall supports for the pilot tunnel and the face slope are the same as in the other schemes.
6Applsci 13 08826 i018The side walls and parts of the top and bottom plates shall be constructed at the same time as the excavation, and between the top plate and the wall of the existing tunnel, columns and jacks shall be constructed.
7Applsci 13 08826 i019Excavate part of the soil mass in the middle and construct the remaining part of the top plate, bottom plate, and columns as soon as it is excavated.
8Applsci 13 08826 i020The construction process and sequence of earthwork excavation, steel column support, and portals for the remaining exit section was the same as for the entrance section. The position of the jack arrangement after construction is shown in the right figure.
Table 4. Physical and mechanical parameters of strata.
Table 4. Physical and mechanical parameters of strata.
No.NameDensity ρ (kg/m3) Cohesion c (kPa) Slope of Normal Consolidation Curve λ Slope of Rebound Curve κ Friction Constant M Friction Angle φ (°) Elastic Modulus E (MPa) Poisson’s Ratio λ
1Miscellaneous fill194015.1---4.518.750.37
2Mucky soil161010.20.1280.0240.9813.512.150.41
3Silty clay204027.00.0880.0171.1317.028.250.33
4Completely weathered sandstone197030.2---22.423.70.28
5Strongly weathered sandstone203036.0---32.327.90.28
6Moderately weathered sandstone2440120.0---35.521500.23
7Slightly weathered sandstone2520300.0---42.562500.20
Table 5. Calculation parameters of concrete structure.
Table 5. Calculation parameters of concrete structure.
NameDensity ρ
(kg/m3)
Elastic Modulus E
(GPa)
Poisson’s Ratio λ
-
Foundation pit retaining structure250030.00.2
Existing tunnel structure (C30)250030.00.2
Plate and wall of the station main structure (C35)250031.50.2
Column of the station main structure (C50)250034.50.2
Table 6. Comparison of control effects of three schemes.
Table 6. Comparison of control effects of three schemes.
ItemsScheme IScheme IISketch Map
Settlement of existing tunnelAbout 3.5 mm, which is larger.About 2.5 mm, which is 28% less than that of Scheme I.Applsci 13 08826 i021
Deformation of tunnel at the end of excavation (transverse)“U” shape with small settlement near the walls on both sides and large settlement in the middle; slightly inclined.Similar to Scheme I, but not tilted.Applsci 13 08826 i022
Minimum principal stress of existing tunnel floorThe minimum principal stress on the short diagonal is large and bears large compressive stress.Similar to Scheme I, but with a larger high stress areas.Applsci 13 08826 i023
Deformation of side wallsThe deformation curves on both sides are “spoon” shaped, with the maximum values of 3.4 mm and 3.5 mm, respectively.Similar to Scheme I, and the maximum values are 2.9 mm and 3.2 mm, respectively, which is smaller.Applsci 13 08826 i024
Construction periodThe full-face excavation method has less steps and short construction time.The procedures of the double-pilot tunnel method are relatively more, which leads to a long construction time.-
Table 7. Numerical simulation conditions and its simplified expression.
Table 7. Numerical simulation conditions and its simplified expression.
ConditionSupporting MethodsExcavation MethodsSimplified ExpressionRemark
1#L-type beamFull-face excavation methodL-beam + F-faceScheme I
2#L-type beamDouble-pilot tunnel methodL-beam + D-pilotCompare group
3#Pier columnDouble-pilot tunnel methodP-column + D-pilotScheme II
4#Pier columnFull-face excavation methodP-column + F-faceCompare group
Disclaimer/Publisher’s Note: The statements, opinions and data contained in all publications are solely those of the individual author(s) and contributor(s) and not of MDPI and/or the editor(s). MDPI and/or the editor(s) disclaim responsibility for any injury to people or property resulting from any ideas, methods, instructions or products referred to in the content.

Share and Cite

MDPI and ACS Style

Zhou, Z.; Zhou, X.; Li, L.; Liu, X.; Wang, L.; Wang, Z. The Construction Methods and Control Mechanisms for Subway Station Undercrossing an Existing Tunnel at Zero Distance. Appl. Sci. 2023, 13, 8826. https://doi.org/10.3390/app13158826

AMA Style

Zhou Z, Zhou X, Li L, Liu X, Wang L, Wang Z. The Construction Methods and Control Mechanisms for Subway Station Undercrossing an Existing Tunnel at Zero Distance. Applied Sciences. 2023; 13(15):8826. https://doi.org/10.3390/app13158826

Chicago/Turabian Style

Zhou, Zihan, Xiaohan Zhou, Longping Li, Xinrong Liu, Linfeng Wang, and Ziqiang Wang. 2023. "The Construction Methods and Control Mechanisms for Subway Station Undercrossing an Existing Tunnel at Zero Distance" Applied Sciences 13, no. 15: 8826. https://doi.org/10.3390/app13158826

APA Style

Zhou, Z., Zhou, X., Li, L., Liu, X., Wang, L., & Wang, Z. (2023). The Construction Methods and Control Mechanisms for Subway Station Undercrossing an Existing Tunnel at Zero Distance. Applied Sciences, 13(15), 8826. https://doi.org/10.3390/app13158826

Note that from the first issue of 2016, this journal uses article numbers instead of page numbers. See further details here.

Article Metrics

Back to TopTop