Caliphs, Elites, and Servants in the Qaṣr of Madīnat Al-Zahrā’ in the Light of Its Residential Architecture
Abstract
:1. Introduction
2. The Caliphal Residences
2.1. The Residence of cAbd al-Raḥmān III: Dār al-Mulk
2.2. The Heir: The House of the Pool
3. High-Ranking State Functionaries: The House of Jacfar ibn cAbd Al-Raḥmān Al-Ṣiqlābī
4. The Overseers of the Palace and the Servants
5. Conclusions
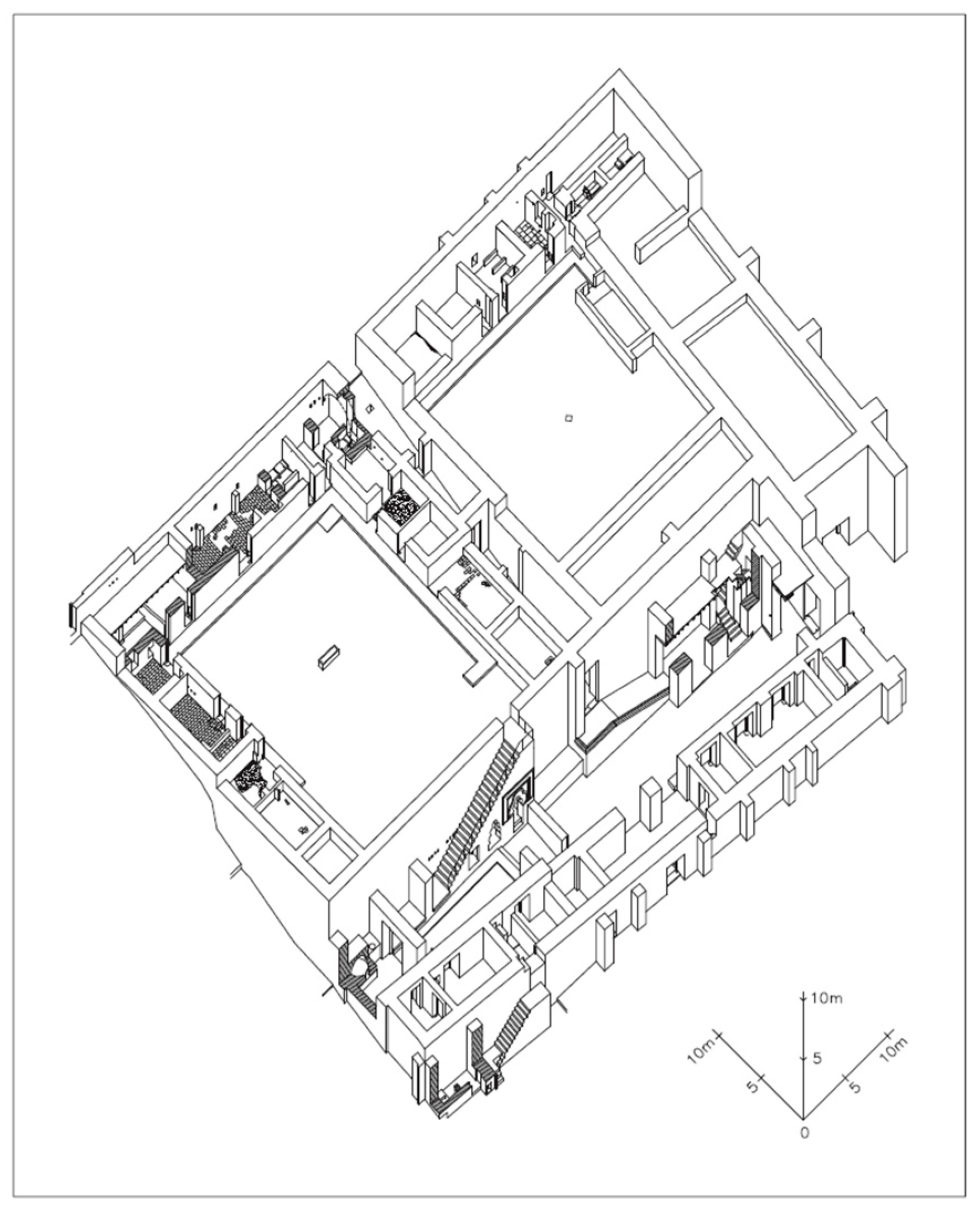
Author Contributions
Funding
Conflicts of Interest
References
- Acién Almansa, Manuel. 1987. Madīnat al-Zahrā’ en el urbanismo musulmán. Cuadernos de Madīnat al-Zahrā’ 1: 11–26. [Google Scholar]
- Acién Almansa, Manuel. 1998. Sobre el papel de la ideología en la caracterización de las formaciones sociales. La formación social islámica. Hispania 58: 915–68. [Google Scholar] [CrossRef]
- Acién Almansa, Manuel. 2001. La formación del tejido urbano en al-Andalus. In La Ciudad Medieval: De la Casa al Tejido Urbano. Edited by Jean Passini. Cuenca: University of Castilla-La Mancha, pp. 11–32. [Google Scholar]
- Acién Almansa, Manuel, and Antonio Vallejo Triano. 1998. Urbanismo y Estado islámico: de Corduba a Qurṭuba-Madīnat al-Zahrā’. In Genèse de la ville islamique en al-Andalus et au Maghreb occidental. Edited by Patrice Cressier and Mercedes García-Arenal. Madrid: Casa de Velázquez, Consejo Superior de Investigaciones Científicas. pp. 107–36. [Google Scholar]
- Acién Almansa, Manuel, and Eduardo Manzano Moreno. 2009. Organización social y administración política en al-Andalus bajo el emirato. Territorio, sociedad y poder Anejo nº 2: 331–348. [Google Scholar]
- Almagro, Antonio. 2001. La arquitectura en al-Andalus en torno al año 1000: Medina Azahara. In La península ibérica en torno al año 1000. VII Congreso de Estudios Medievales (León, 1999). León: Fundación Sánchez Albornoz, pp. 166–91. [Google Scholar]
- Almagro, Antonio. 2007. The Dwellings of Madīnat al-Zahrā’: A Methodological Approach. In Revisiting al-Andalus. Perspectives on the Material Culture of Islamic Iberia and Beyond. Edited by Glaire D. Anderson and Mariam Rosser-Owen. Leiden and Boston: Brill, pp. 27–52. [Google Scholar]
- Arnold, Felix. 2017. Islamic Palace Architecture in the Western Mediterranean. A History. New York: Oxford University Press. [Google Scholar]
- Barceló, Carmen. 2013. Lisboa y Almanzor (374 H./985 d. C.). Conimbriga 52: 165–194. [Google Scholar] [CrossRef]
- Castejón y Martínez de Arizala, R. 1945. Excavaciones del Plan Nacional en Medina Azahara (Córdoba). Campaña de 1943. Madrid: Ministerio de Educación Nacional, Comisaría general de excavaciones arqueológicas. [Google Scholar]
- Creswell, K. A. C. 1989. A Short Account of Early Muslim Architecture. Revised and supplemented by James W. Allan. Aldershot: Scholar Press. [Google Scholar]
- El-Cheikh, Nadia M. 2005. Revisiting the Abbadid Harems. Journal of Middle East Women’s Studies 1: 1–19. [Google Scholar] [CrossRef]
- El Cheikh, Nadia M. 2010. The "Court" of al-Muqtadir: Its space and its occupants. In Abbasid Studies II: Occasional Paper of the School of Abbasid Studies, Leuven 28 June–1 July 2004. (Orientalia Lovaniensia Analecta, 177). Edited by John Nawas. Leuven: Peeters, pp. 319–36. [Google Scholar]
- El-Cheikh, Nadia M. 2011. Court and courtiers. A preliminary investigation of Abbasid terminology. In Court Cultures in the Muslim World: Seventh to Nineteenth Centuries. Edited by Albrecht Fuess and Jan-Peter Hartung. Doha: Routedge, pp. 80–90. [Google Scholar]
- Ewert, Christian. 1978. Spanish-islamische Systeme sich kreuzender Bögen III: Die Aljaferia in Zaragoza. Madrider Forschungen 12. Berlín: de Gruyter. [Google Scholar]
- Fentress, Elizabeth. 2013. Reconsidering Islamic Houses in the Magreb. In De la Estructura Doméstica al Espacio Social. Lecturas Arqueológicas del uso Social del Espacio. Edited by Sonia Gutierrez and Ignasi Grau. Alicante: University of Alicante, pp. 237–44. [Google Scholar]
- Fierro, Maribel. 2011. Abderramán III y el califato Omeya de Córdoba. San Sebastián: Nerea. [Google Scholar]
- García Sanjuán, Alejandro. 2008. Legalidad islámica y legitimidad política en el Califato de Córdoba: La proclamación de Hišām II. Al-Qanṭara 29: 45–77. [Google Scholar] [CrossRef]
- Gutiérrez Lloret, S. 2015. Casa y casas: Reflexiones arqueológicas sobre la lectura social del espacio doméstico medieval. In La Casa Medieval en la Península Ibérica. Edited by Mª Elena Díez Jorge and J. Navarro Palazón. Madrid: Sílex ediciones, pp. 17–48. [Google Scholar]
- Ḥayyān, Ibn. 1967. Anales Palatinos del califa de Córdoba al-Ḥakam II, por cĪsā ibn Ahmad al-Rāzī (360–364 H. = 971–975 J. C.). Traduced by Emilio García Gómez. Madrid: Sociedad de Estudios y Publicaciones. [Google Scholar]
- Ḥayyān, Ibn. 1981. Crónica del califa cAbdarraḥmān III an-Nāṣir entre los años 912 y 942 (al-Muqtabis V). Traduced by por Mª Jesús Viguera and Federico Corriente. Zaragoza: Anubar Ediciones, Instituto Hispano-Árabe de Cultura. [Google Scholar]
- Heinrichs, W.P. 1995. Ṣāḥib”, The Encyclopaedia of Islam: New Edition. Leiden: Brill, vol. VIII, pp. 830–31. [Google Scholar]
- Hernández Giménez, Félix. 1975. El alminar de ‘Abd al-Raḥmān III en la mezquita mayor de Córdoba. Génesis y repercusiones. Granada: Patronato de la Alhambra y Generalife. [Google Scholar]
- Hernández Giménez, Félix. 1985. Madīnat al-Zahrā’. Arquitectura y decoración. Granada: Patronato de la Alhambra y Generalife. [Google Scholar]
- Jiménez Martín, Alfonso. 1987. Los jardines de Madīnat al-Zahrā’. Cuadernos de Madīnat al-Zahrā’ 1: 81–92. [Google Scholar]
- Labarta, Ana, and Carmen Barceló. 1987. Las fuentes árabes sobre al-Zahrā’: Estado de la cuestión. Cuadernos de Madīnat al-Zahrā’ 1: 93–106. [Google Scholar]
- Lévi-Provençal, Évariste. 1976. España Musulmana hasta la caída del califato de Córdoba (711-1031 de J.C.). In Historia de España, 4th ed. Directed by Ramón Menéndez Pidal. Madrid: Espasa-Calpe, vol. IV. [Google Scholar]
- Lévi-Provençal, Évariste. 1982. Instituciones y vida social e intelectual. In España musulmana hasta la caída del califato de Córdoba (711-1031 de J. C.). Historia de España, 4th ed. Directed by Ramón Menéndez Pidal. Madrid: Espasa-Calpe, vol. V, pp. 1–330. [Google Scholar]
- López-Cuervo, Serafín. 1983. Medina-Az-Zahra. Ingeniería y formas. Madrid: Ministerio de Obras Públicas y Urbanismo. [Google Scholar]
- Manzano Martos, Rafael. 1995. Casas y palacios en la Sevilla almohade. Sus antecedentes hispánicos. In Casas y palacios de al-Andalus. Edited by Julio Navarro Palazón. Barcelona-Granada: Fundación El Legado Andalusí-Lunwerg Editores, pp. 315–52. [Google Scholar]
- Manzano Moreno, Eduardo. 2004. El círculo de poder de los califas omeyas de Córdoba. Cuadernos de Madīnat al-Zahrā’ 5: 9–29. [Google Scholar]
- Manzano Moreno, Eduardo. 2006. Conquistadores, emires y califas. Los omeyas y la formación de al-Andalus. Barcelona: Crítica. [Google Scholar]
- Marín, Manuela. 2000. Mujeres en al-Andalus. Madrid: Consejo Superior de Investigaciones Científicas. [Google Scholar]
- Marín, Manuela. 2004. Altos funcionarios para el califa: jueces y otros cargos de la Administración de ‘Abd al-Raḥmān III. Cuadernos de Madīnat al-Zahrā’ 5: 91–106. [Google Scholar]
- Martínez Núñez, Mª Antonia. 1995. La epigrafía del Salón de ‘Abd al-Raḥmān III. In Madīnat al-Zahrā’. El Salón de ‘Abd al-Raḥmān III. Edited by Antonio Vallejo Triano. Córdoba: Junta de Andalucía, Consejería de Cultura, pp. 109–152. [Google Scholar]
- Martínez Núñez, Mª Antonia. 1999. Epígrafes a nombre de al-Ḥakam en Madīnat al-Zahrā’. Cuadernos de Madīnat al-Zahrā’ 4: 83–103. [Google Scholar]
- Martínez Núñez, Mª Antonia. 2015. Recientes hallazgos epigráficos en Madīnat al-Zahrā’ y nueva onomástica relacionada con la dār al-ṣinaʽa califal. Arqueología y Territorio Medieval 1: 1–76. [Google Scholar]
- Martínez Núñez, Mª Antonia, and Manuel Acién Almansa. 2004. La epigrafía de Madinat al-Zahra. Cuadernos de Madīnat al-Zahrā’ 5: 107–58. [Google Scholar]
- Mazzoli-Guintard, Christine. 1997. Remarques sur le fonctionnement d´une capitale à double polarité: Madīnat al-Zahrā’-Cordoue. Al-Qanṭara XVIII 1: 43–64. [Google Scholar]
- Meouak, Moham. 1999. Pouvoir Souverain, Administration Centrale et Élites Politiques dans l´Espagne Umayyade (II-IV / VIII-X Siècles). Helsinki: Academia Scientiarium Fennica. [Google Scholar]
- Meouak, Moham. 2004. Ṣaqâliba, Eunuques et Esclaves à la Conquête du Pouvoir. Géographie et Histoire des Élites Politiques «Marginales» dans l´Espagne Umayyade. Helsinki: Academia Scientiarium Fennica. [Google Scholar]
- Milwright, Marcus. 2001. Fixtures and Fittings. The Role of Decoration in Abbasid Palace Design. In A Medieval Islamic City Reconsidered. An Interdisciplinary Approach to Samarra. Edited by Chase F. Robinson. Oxford: Oxford University Press, pp. 79–109. [Google Scholar]
- Northedge, Alastair. 2005. The Historical Topography of Samarra. Samarra Studies I. London: The British School of Archaeology in Irak, Fondation Max van Berchem. [Google Scholar]
- Ocaña Jiménez, Manuel. 1990. Inscripciones árabes fundacionales de la Mezquita-Catedral de Córdoba. Cuadernos de Madīnat al-Zahrā’ 2: 9–28. First published 1988. [Google Scholar]
- Ocaña Jiménez, Manuel. 1976. Ŷaʿfar el eslavo. Cuadernos de la Alhambra 12: 217–23. [Google Scholar]
- Orihuela Uzal, Antonio. 1996. Casas y palacios nazaríes. Siglos XIII-XV. Barcelona-Madrid: El Legado Andalusí-Lunwerg Editores. [Google Scholar]
- Pavón Maldonado, Basilio. 1966. Memoria de la excavación de la mezquita de Medinat al-Zahra. Madrid: Ministerio de Educación Nacional. [Google Scholar]
- Puerta Vílchez, José Miguel. 2004. Ensoñación y construcción del lugar en Madīnat al-Zahrā’. In Paisaje y naturaleza en al-Andalus. Edited by Fátima Roldán Castro. Granada: Junta de Andalucía, El Legado Andalusí, pp. 313–338. [Google Scholar]
- Ruggles, D. Fairchild. 2000. Gardens, Landscape, and Vision in the Palaces of Islamic Spain. Pennsylvania: The Pennsylvania State University Press. [Google Scholar]
- Vallvé Bermejo, Joaquín. 1986. La descripción de Córdoba de Ibn Galib. In Homenaje a Pedro Sanz Rodríguez. Madrid: Fundación Universitaria Española, vol. 3, pp. 669–79. [Google Scholar]
- Velázquez Bosco, Ricardo. 1912. Medina Azzahra y Alamiriya. Madrid: Junta para ampliación de estudios e investigaciones científicas. [Google Scholar]
- Velázquez Bosco, Ricardo. 1923. Excavaciones en Medina Azahara. Memoria sobre lo descubierto en dichas excavaciones. Madrid: Junta Superior de Excavaciones y Antigüedades. [Google Scholar]
- Vallejo Triano, Antonio. 1987. El baño anejo al Salón de ‘Abd al-Raḥmān III. Cuadernos de Madīnat al-Zahrā’ 1: 141–65. [Google Scholar]
- Vallejo Triano, Antonio. 1990. La vivienda de servicios y la llamada Casa de Ŷaʿfar. In La casa hispanomusulmana. Aportaciones de la arqueología. Edited by Jesús Bermúdez Lópe and André Bazzana. Granada: Patronato de la Alhambra y Generalife, Casa de Velázquez, Museo de Mallorca, pp. 129–45. [Google Scholar]
- Vallejo Triano, Antonio. 1992. Madīnat al-Zahrā’: The Triumph of the Islamic State. In Al-Andalus: The Art of Islamic Spain. Edited by J. D. Dodds. New York: The Metropolitan Museum of Art, pp. 27–39. [Google Scholar]
- Vallejo Triano, Antonio. 1995. El proyecto urbanístico del Estado califal: Madīnat al-Zahrā’. In La arquitectura del Islam Occidental. Edited by Rafael López Guzmán. Barcelona: Sierra Nevada 95-Fundación El Legado Andalusí-Lunwerg Editores, pp. 69–81. [Google Scholar]
- Vallejo Triano, Antonio. 2004. Un elemento de la decoración vegetal de Madīnat al-Zahrā’: la palmeta. In Al-Andalus und Europa.Zwischen Orient und Okzident. Edited by M. Müller-Wiener, C. Kothe, K.-H. Golzio y and J. Gierlichs. Petersberg: Imhof, pp. 208–24. [Google Scholar]
- Vallejo Triano, Antonio. 2010. La ciudad califal de Madīnat al-Zahrā’. Arqueología de su excavación. Córdoba: Almuzara. [Google Scholar]
- Vallejo Triano, Antonio. 2016a. El heredero designado y el califa. El Occidente y el Oriente en Madīnat al-Zahrā’. Mainake XXXVI: 433–64. [Google Scholar]
- Vallejo Triano, Antonio. 2016b. Aménagements hydrauliques et ornementation architecturale des latrines de Madīnat al-Zahrā’: un indicateur de hiérarchie sociale en contexte palatial. In Médiévales, 70. Lieux d‘hygiène et lieux d‘aisance en terre d‘Islam. Paris: Presses Universitaries de Vincennes, pp. 77–94. [Google Scholar]
- Vallejo, Antonio, Alberto Montejo, and Andrés García. 2004. Resultados preliminares de la intervención arqueológica en la “Casa de Ya’far” y en el edificio de “Patio de los Pilares de Madinat al-Zahra. Cuadernos de Madīnat al-Zahrā’ 5: 199–239. [Google Scholar]
- Vallejo, Antonio, and Irene Montilla. 2006. Unpublished. Memoria de la Intervención Arqueológica Puntual en el Baño de la llamada “Casa de la Alberca” de Madīnat al-Zahrā’. Córdoba: Archivo del Conjunto Arqueológico Madīnat al-Zahrā’. [Google Scholar]
| 1 | Among the copious amount of published literature on Madīnat al-Zahrā’, we can highlight (Velázquez Bosco 1912, 1923; Castejón y Martínez de Arizala 1945; Ocaña Jiménez 1976; López-Cuervo 1983; Hernández Giménez 1985; Acién Almansa 1987; Ruggles 2000; Martínez Núñez 1995; Martínez Núñez and Acién Almansa 2004; Almagro 2007; Vallejo Triano 1990, 1995, 2007, 2010, 2016a). The edifices excavated outside the Alcazar are the congregational mosque (Pavón Maldonado 1966) and a small neighbourhood mosque near a stretch of the southern wall. |
| 2 | The term used to express the palace complex in the Abbasid period in both physical and symbolic terms, at least during the 9th and 10th centuries, was dār. Dār al-khilāfa in particular was “used not only to denote the buildings but also the establishment surrounding the emperor or court” (El-Cheikh 2011, p. 82). |
| 3 | It is known that the heir was the only one the caliph’s numerous children who was allowed to reside in the Qaṣr Ibn (Ḥayyān 1981, pp. 20–22). |
| 4 | |
| 5 | We use the term “private” to differentiate this sector, situated to the west of the stables, from that occupied mainly by the administrative and political representation buildings, which are concentrated to the east and can be considered as “official” or “public” (Vallejo Triano 1992, pp. 28, 30; Vallejo Triano 2010, pp. 132, 153–54; Almagro 2001, pp. 171–72). Although a division of this type can be corroborated in Samarra (Northedge 2005, p. 144), the difficulty of defining a line between these two functions—private and public—can be clearly seen in this study. |
| 6 | Hernández Giménez (1985, p. 75) attributed a bureaucratic function to it, while A. Vallejo has theorised that it was used for meetings linked to the so-called Hall of the Double Columns (2010, pp. 395, 488). |
| 7 | |
| 8 | One approach to the multiplicity of trades existing in the Alcazar—some of them undertaken by just one person—can only be glimpsed from the information provided by the written sources for the Abbasid caliphate. See (El-Cheikh 2010, pp. 331–32). |
| 9 | To designate each of the architectural complexes we are going to analyse, in this paper we will use the numbering that is repeatedly used in the publications of Vallejo (especially 2010) and also corresponds to that used in the Madinat al-Zahra Archaeological Complex itself. |
| 10 | The identification of the harem from an archaeological point of view is highly complex, although, from Ibn Ḥayyān’s account (Ḥayyān 1981, pp. 15–18), we can deduce that it was a clearly defined complex near the caliphal residence and with a complex spatial division and bedrooms at least for the main wives. M. Marín (2000, pp. 283–87) has specified the large number of women who lived in the Alcazar—more than 6000—and some of the specialised functions they carried out, both in the more official area, e.g., as calligraphers, and in the domestic sphere close to the caliph, among which we can infer control of the caliphal wardrobe. She also refers to its complex internal hierarchy, among which, of particular note, in addition to the eunuchs, were the palace intendants (qahramānāt). A similar situation is indicated by El-Cheikh (El-Cheikh 2005, pp. 6–12; El-Cheikh 2010, pp. 319–25) for the harem in the palace of the Abbasid caliph al-Muqtadir. |
| 11 | The precise arguments supporting this identification can be found in A. Vallejo Triano (2016a, pp. 440–50). |
| 12 | From the time of the emirate, Dār al-Mulk was the name used to refer to the emir’s residence, as documented by Ibn Ḥayyān (1981, p. 22). |
| 13 | Ibn Ḥayyān (1981, p. 359) mentions the building of a palace at al-Zahra in 329 H/940–941 that we have to interpret as the construction of his own personal residence. |
| 14 | This organisation of long parallel halls with bedrooms at the end and communicated by tripartite openings was the model for other palace-residences belonging to the Umayyad elite, such as the munya al-Rummaniyya. This relationship was pointed out by Ch. Ewert (1978, pp. 25, 30, Figure 17) and followed by other authors. |
| 15 | Regarding the characteristics of this staircase, its vaults and its decoration, see (Vallejo Triano 2010, pp. 286–87, ills. 234–35; pp. 413–14, ill. 350). |
| 16 | The singularity of this type of flooring was pointed out by (Velázquez Bosco 1912, pp. 66–67, Ills. XVI, XXXVII-XXXVIII; Hernández Giménez 1985, pp. 44–45, 82, 94; López-Cuervo 1983, pp. 50–51). |
| 17 | This flooring is, therefore, a reinterpretation of a type that already existed in the mosque of Córdoba at least from the late-9th century, although in that building it was applied to the wall decoration (Vallejo Triano 2010, pp. 350–51). |
| 18 | As examples we can cite the city of Vascos and the fortresses of Gormaz and Tarifa. |
| 19 | Regarding the importance of the palmette in the decoration of Madīnat al-Zahrā’ and its symbolism, see (Hernández Giménez 1985, pp. 134–36 and especially Vallejo Triano 2004). |
| 20 | |
| 21 | This room, called al-majlis al-gharbī (Western Hall) in the sources, has recently been identified as the so-called “Central Pavilion” situated opposite the Hall of cAbd al-Raḥmān III or the al-majlis al-sharqī (Eastern Hall) (Vallejo Triano 2016a, pp. 450–54). |
| 22 | López-Cuervo (1983, p. 77) was the first to identify this residence as the “House of the Prince”, although without explaining the arguments that led him to that conclusion. |
| 23 | The explicit relationship of the proximity between the two residences in Ibn Ḥayyān’s text can be found in the Arabic edition and not in the Spanish translation, see (Vallejo Triano 2016a, p. 437, note 39). |
| 24 | Although the stratigraphic reading of this wall allows us to identify various rebuilding processes, its analysis and interpretation require an archaeological excavation. |
| 25 | This was the explanation given by Herzfeld for the double opposing structures of some of the houses in Samarra (Creswell 1989, p. 373). |
| 26 | Regarding this minaret, built in 952, and the structure of its different windows, see (Hernández Giménez 1975, pp. 61–81). |
| 27 | Regarding these two baths in Madīnat al-Zahrā’ and their ornamental programme, see (Vallejo Triano 1987). |
| 28 | The location, function and characteristics of the pieces that make up this ornamental programme, as well as that of the bath adjoining the Hall of cAbd al-Raḥmān III, have been analysed by A. Vallejo Triano (2010, pp. 244, 249, 428–29, 443, 456–57). |
| 29 | The identification of these families—“somewhat more than a dozen”—and the relations between them to maintain their areas of influence have been studied by Manzano Moreno (2004, pp. 20–25). |
| 30 | The other two decorated zones were the entrance to the central nave of this hall, whose decoration has been restored, and the entrance door to this person’s bedroom. |
| 31 | This argumentation was developed in another study (Vallejo Triano 2004, pp. 214–16, 220–21) in which the palmette was evaluated as an iconographic element of great significance to the Umayyads and the jambs as a particularly symbolic location in the caliphal decorative programmes, as they expressed a testimony of tradition and dynastic continuity. We can also see this in al-Ḥakam II’s enlargement of the mosque of Córdoba, where the jambs of the miḥrāb were one of the places destined to express that relationship with his family lineage by situating in this space the pairs of columns transferred from the “old” miḥrāb of cAbd al-Raḥmān II (Ocaña Jiménez [1988] 1990, pp. 14, 24). |
| 32 | There is some argument over whether two capitals bearing epigraphs in the name of al-Ḥakam, supposedly found in the Dār al-Mulk, may have come from this façade. They were dated by M. Ocaña to 364/974–975, although Mª Antonia Martínez Núñez (1999, pp. 88–89) brings their dating forward to 362/972–973. The discussion of the origin and chronology of these pieces can be found in Vallejo Triano (2010, pp. 370–372, 426). |
| 33 | The inclusion of this area as part of the residence of Ŷaʿfar has been disputed by A. Almagro (2007, p. 44) who, although he also identifies it as a service area, does not believe that communication to be likely. On the other hand, recently F. Arnold (2017, pp. 98–100) has limited this residence to just the hall of the three naves (that we interpret as a work and representation area), although without introducing any argument in this respect. |
| 34 | This polysemic word is used to designate the titleholder or person responsible for a magistrature or an administrative or palace post. Regarding the meaning and definition of these aṣhāb as “possessor, owner, lord, chief”, see (Heinrichs 1995, pp. 830–31). |
| 35 | This situation contrasts with that of the administrative area, where these “offices” or “magistratures”, from the highest to the lowest, are relatively well-known. |
| 36 | The precise data can be found in (Meouak 2004, pp. 135–37; Lévi-Provençal 1976, pp. 330–31). |
| 37 | These channels form part of the drainage network that ran below the buildings of the Alcazar. They were used to remove the waste generated in the inhabited spaces. |
| 38 | An initial approach to this dwelling can be found in (Vallejo Triano 1990, pp. 129–31); for an analysis of its building phases see, by the same author (Vallejo Triano 2010, pp. 144–45). |
| 39 | In around 941–942, this palace post was vaunted by Ṭarafa ibn cAbd al-Raḥmān (Ibn (Ḥayyān 1981, p. 367)), who occupied other administrative posts at other times. Regarding this personage, Martínez Núñez and Acién Almansa (2004, pp. 120–21) have suggested the possibility that he was the same fatà and mawlà of the caliph al-Nāṣir whose name appears in an epigraph in the Dār al-Mulk and on a brick in that same residence. |
| 40 | As one of us has analysed elsewhere (Vallejo Triano 2016b, pp. 92–93), the latrines are a basic element of the Qaṣr’s hygiene system and a clear indicator of social hierarchisation, as they denote the category and the social status of the resident. In this case, that hierarchy is evidenced by its direct connection to the bedroom, its functioning with running water and its marble flooring. |
| 41 | Subsequently, probably during the caliphate of Hishām II, an upper floor was built to the north of this courtyard; it was supported by columns and wooden beams and was accessed by a staircase, part of which has been preserved (Hernández Giménez 1985, p. 66). |
| 42 | Regarding the description, decorative features and axonometry of this staircase, see A. Vallejo Triano (2010, pp. 279, 281, 293, Ills. 226–227). |
| 43 | This latrine was the result of an alteration made in the area at the bottom of a staircase that connected it with the Western Service House. |
| 44 | This was the last access point on horseback in this sector of the Alcazar (Vallejo Triano 2010, p. 267). |
| 45 | Regarding these Upper Buildings, see (Vallejo Triano 2010, pp. 132, 142–43, 266, 474-475, 477). |
| 46 | This latrine also had a marble floor, although it is not clear whether it had running water. |
| 47 | This dwelling also appears to have had a connection from the lower terrace of the Qaṣr via a raised walkway above the corridor we know as the “alley of the water” (No. 19). The entrance would have been through the eastern corridor, where part of a door sealed up on its outer wall has been preserved (Vallejo Triano 2010, p. 266). |
| 48 | |
| 49 | It is also the only one of those we have found reflected in the court chronicles to date. See Note 39. |
| 50 | The analysis of that western part of the Alcazar and the medina can be found in (Vallejo Triano 2010, pp. 184–85, 227–28). For the mid-10th century, the sources raise the number of the stipendiary troops at the service of the caliph to some 5000 soldiers (Acién Almansa and Manzano Moreno 2009, p. 335), a part of which would have been quartered in Madīnat al-Zahrā’ and would have carried out the duties of a palatine guard. |



















© 2019 by the authors. Licensee MDPI, Basel, Switzerland. This article is an open access article distributed under the terms and conditions of the Creative Commons Attribution (CC BY) license (http://creativecommons.org/licenses/by/4.0/).
Share and Cite
Vallejo Triano, A.; Montilla-Torres, I. Caliphs, Elites, and Servants in the Qaṣr of Madīnat Al-Zahrā’ in the Light of Its Residential Architecture. Arts 2019, 8, 65. https://doi.org/10.3390/arts8020065
Vallejo Triano A, Montilla-Torres I. Caliphs, Elites, and Servants in the Qaṣr of Madīnat Al-Zahrā’ in the Light of Its Residential Architecture. Arts. 2019; 8(2):65. https://doi.org/10.3390/arts8020065
Chicago/Turabian StyleVallejo Triano, Antonio, and Irene Montilla-Torres. 2019. "Caliphs, Elites, and Servants in the Qaṣr of Madīnat Al-Zahrā’ in the Light of Its Residential Architecture" Arts 8, no. 2: 65. https://doi.org/10.3390/arts8020065
APA StyleVallejo Triano, A., & Montilla-Torres, I. (2019). Caliphs, Elites, and Servants in the Qaṣr of Madīnat Al-Zahrā’ in the Light of Its Residential Architecture. Arts, 8(2), 65. https://doi.org/10.3390/arts8020065

