Abstract
In the context of a reductive generalisation, it can be affirmed that the supporting structure had a different role in most buildings in the two halves of the previous century. This statement has as reference the examples of the International Style in the first half of the twentieth century and early Postmodernism in the second half. Reinforcing this division, the structure was assigned a representative role in the first part that faded in the second. Based on the abovementioned statement, this work seeks to question the relationship between the design of architecture and structure: How did architectural trends change the drawing of structure in the past? The study is developed through a comparison of two buildings representing opposite positions concerning the structure’s role. The buildings are located in the transition of the two halves of the 20th century, and clearly demonstrate the initial statements. The difference in the position of the structural design in these two projects is revealed in the drawings of slabs, beams and pillars, showing the trends in each.
1. Introduction
1.1. Context
The two decades following World War II defined two opposing trends in the organisation of space within European and American multi-family housing. The first derives from planning with a well-defined order and the second reacts against that order.
The order was a set of regulatory principles that began in the relationship between walls, floors, and the structure that supports them, and culminated in controlling all design details.
In Portugal, the order reached its greatest expression in housing blocks on pilotis1 in the 1950s and 1960s. These models were influenced by Le Corbusier manifestos2 (Corbusier 1983), the delimitation of the surface demonstrated by Sigfried Giedion (Giedion 2004, p. 21)3 and by the principles described in the book International Style by Henry Hitchcock and Philip Johnson (Hitchcock and Johnson 1984, p. 32)4, which Rowe (1999) stated as defining the modern architecture of the 1920s and 1930s (Rowe 1999, p. 121)5.
In this country, the opposition to this clearly defined organisation declared itself as a revision of modern architecture, intending to go beyond the predefined language of blocks on pilotis. As well as in the rest of Europe (Banham 1961; Portoghesi 1982) and in the United States (Ferreira 1967; Venturi 2002), the buildings began to reveal characteristics contrary to the principles of the International Style and in its defence of lightness and asymmetrical balance.
This reaction was developed in the Portuguese capital from the 1960s to the end of the 1980s. It was initially established by the revisionist critics of modern architecture and ended with the Postmodernism of the 1980s (Tainha 1984). The initial review in the 1960s was influenced by Italian “Neorealism”6 (Portas 1963, pp. 7–10), by a social context (Tainha 1956) and by a search for spatial expressiveness7, considered to be more human and more natural. By mastering the little architectural information that existed in Lisbon, the revisionist critics had a strong impact on construction.
Focusing on some architectural characteristics, a generalisation can be made related to that which was enunciated in the abstract: there were two distinguishable trends. And, in an even more reductive way, a trend for “regularity” can be established, based on orthogonal angles, and another for “irregularity”, with the introduction of obliquities.
Consequently, the clear and simple order that existed between walls, pillars and beams8 was countered by a variety of forms in which the support structure sought to adapt. The structural design had acquired different irregular configurations, interlinking a series of obliquities, in the connection between the elements as well as in the design of details.
1.2. Objectives
The separation evidenced in the 20th century (Montaner 1993) was an example of the study of structural engineering. Being invisible in architectural publications, this paper intends to highlight structure, demonstrating the essentiality of its participation. As a result, the main themes of this study are expressed through a consideration of the structure’s relevance at the beginning of the project and its role in the organisation of space.
The division emerged in parallel in Lisbon, nearly at the same time. It was reflected in the work of architects Artur Pires Martins9 and Cândido Palma de Melo10 (see their brief biographies in the footnotes), of which we present two almost contemporary examples. The first (four buildings), started in 1959, showed the order described above, and the second, which was completed in 1961 (the set) and 1965 (the project of two buildings), was contrary to that order.
The presentation of the examples attempts to identify and demonstrate that the relationship between the surface and the supporting structure shows the trend of the project and that the organisation of the structural elements represents one of the most essential features in this observation.
These buildings are emblematic of the expected reflection: in addition to covering an overview of the change that had happened with most architects in the Western world of the 20th century, they constitute a reference for inquiring about the complexity and the role of spatial structure.
1.3. Paper Organisation
The two sets of constructions are located in the urban plan Bairro dos Olivais, one in the North11 and the other in the South12. Both are multi-family council housing and were commissioned by the Municipality of Lisbon13.
The study began with a presentation of those involved in construction and a description of the interior—functional organisation and structure—and exterior design. At this point, an investigation was carried out in the Lisbon City Council archives to clarify all phases of the projects and consult all the architectural publications made at that time in Portugal, or more precisely, in Lisbon.
Secondly, an analysis of outward form was made, connecting it with the two trends referred to in the abstract and in the introduction—the order defined in the International Style and the opposing reaction established due to the revision of modern architecture. The two trends seen in Lisbon have some similarities with the divisions of Colin Rowe (1999) between modern architecture and mannerism, or modern architecture and neoclassicism, whose comments were relevant to the work.
Finally, in the most crucial phase of the process, an interpretation was made of the interior spatial configuration, focusing on the relationship between structure, space and surfaces. During this analysis, connections were established with the readings of the exterior carried out in the previous step. The data obtained in this stage were formed by an interpretation of the relationship between all aspects and the reinforced concrete framework.
In the conclusion, the findings cross-referred the studies of the two examples, the considerations about the role of their structure and the implications for advancement of research.
The analyses and interpretations were based on the investigation of Colin Rowe (1999) about supporting structure in the 1920s and 1930s: the relationship between space and structure was studied, influenced by the deductive logic of Rowe, confronting the geometry of plans, sections, and elevations. Considering that the concrete structure had a leading role in the first half of the 20th century, its relationship with the space constituted an important reference for the critical method of observation as well as exemplifying and responding to the initial questions.
During the three investigative stages of the two examples, all readings were divided and classified in order to allow subsequent analysis and extracting of objective data. This process enabled the clarification of the conclusion.
2. Four Buildings in Olivais Norte
2.1. Description14
Project: 1959/60.
Location: Olivais Norte, R. Capitão T. Oliveira e Carmo/R. General Silva Freire.
Architects: Artur Pires Martins and Cândido Palma T. de Melo.
Engineers: Jaime Pereira Gomes and Antonio Areosa Feio.
Client: City council of Lisbon, promoter of the project. Cofre de Previdência of Ministry of Finances, promoter of the construction.
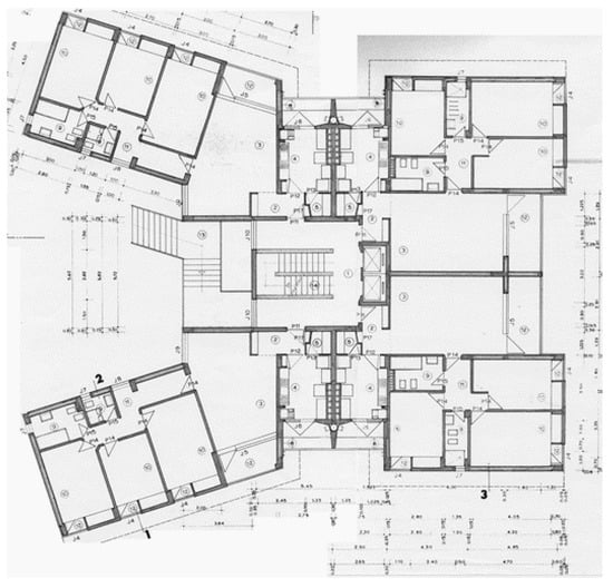
Type of occupation: Social housing of high category within the urban plan of Olivais Norte. Each block contains two dwellings cores, contiguous and autonomous, connected by an outdoor Gallery. Each block constitutes:
- -
- Two independent portals linked to the outside intermediate floor (Figure 1). Each entrance corresponds to a core of vertical distribution, stairs and an elevator that serves two houses with one height by plan. The two cores are linked from the first floor of the housing by an outdoor gallery and by an autonomous unit of exterior stairs, which includes the service elevator.
Figure 1. Plan of the entrances: intermediate floor over the basement. - -
- 11 floor plans. Ground floor: garages, storage rooms, entrance to the service stairs; Middle floor: dwellings’ principal entrances/eight houses; each core is formed of 16 houses; Top floor: doorman’s house, terrace and area to dry clothes. Total: 32 apartments (Figure 2 and Figure 3).
Figure 2. Plan of the apartments.
Figure 3. Detail of the apartments and the outer stairs.
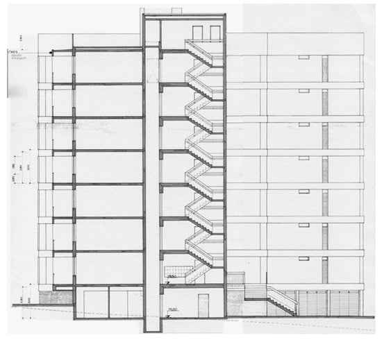
Structure: Reinforced concrete, which presents two different pillar compositions: (1) at the base, the first two plans (Figure 4), and (2) in the remaining plans. From the base, the number of support points is higher (Figure 5). The intermediate floor contains three longitudinal beams that are the mainstay of all the over mesh top, the transverse structure porches.
Figure 4.
Structure plan of the intermediate floor and basement.
Figure 5.
Structure plan of the apartments.
- -
- Cover: terrace comprising two slabs; the inferior slab is solid and the upper is formed of precast elements. The house of the doorman contains flat roof.
- -
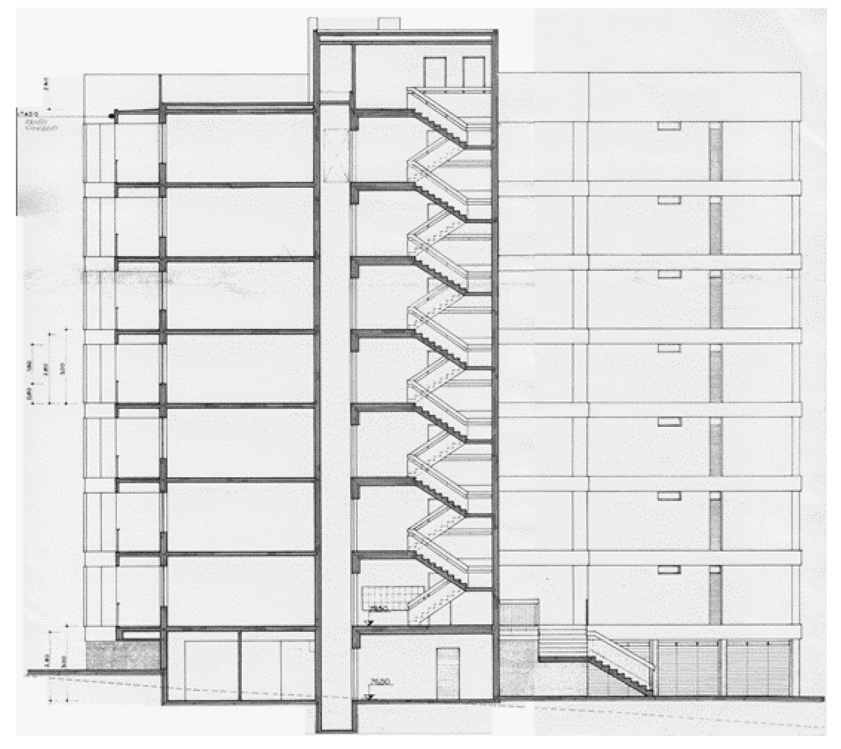
- The structure includes a regular sort of equal spaces, symmetric longitudinally and transversally. Uniformity is counteracted by the difference between the longitudinal direction of the base and the transverse direction of the remaining plans. In the section of Figure 6, the difference is perceived by the rigidity of the pillars and beams, creating the large longitudinal frames of the first structural floor.
Figure 6. Section. - -
- On the whole, the façades do not contain the main structure.
Exterior description: One basement formed by thick structural elements that encompasses the two first floors. The pillars are unbound in the intermediate floor over the half-buried block of the ground. The base contains two spiral stairs between the ground floor and the intermediate floor.
- -
- Main East façade: modulation of cantilevered balconies. It contains a horizontal void in the intermediate floor, over the base, and a vertical void in each circulation core. The balconies and the vertical void are unified by a horizontal element—a longitudinal beam that ties the suspended cross-beams under the balconies.The top ends in a clear edge. The visible structure on the outside is of concrete.
- -
- Rear West façade: it is defined by the vertical block of outside stairs and the horizontal galleries connecting the two cores; the galleries are on cantilever beams separated from the exterior wall (Figure 7); the wall contains the structure and presents joint surfaces and openings with wooden blinds.
Figure 7. Section of the last floor. - -
- Side walls; walls marked by horizontal lines that indicate the division between floors. The ends of the block contain a cantilever volume of 3.5 m.
2.2. Outside Representation
Figure 8.
Main façade.
Figure 9.
Detail of the principal façade.
The configuration and external claddings mark volumes, surfaces and lines, clearly delimited, with a relationship of interdependence. In this articulation of all parts, the definition of the surface has a key role15; clear and perceptible levels, which are connected through lines of transition, are used: details and cladding materials emphasise the definition of the plane; shades of wood, handrails, the composition of the windows, etc.
Like almost all of the buildings over pilotis, this example shows a predilection for the reinforced concrete framework: the structure configuration coordinates with all the surfaces. The exterior emphasises horizontal and vertical lines that unify several elements, for example: slabs of the galleries of the rear façade and the thin longitudinal beam tying cross-beams from the balconies of the main façade. The modules of the vertical circulations tear the building on this façade, but the vertical separation made by this void is unified to the set by the continuity of the cantilever beams.
The increase of beams section next to the pillars of the base creates an obliquity on these horizontal structural elements of great expressiveness (Figure 10). Their design stands out from most orthogonal external relations. In addition to the obliquity of the three longitudinal beams of the base, the building contains more oblique and curved elements that also stand out from the orthogonality of the planes and upper lines: the trapezoidal section of cross-beams of the ceiling of the ground floor, the intermediate floor pavement (Figure 11); the torsion of the outer walls of the vertical body of the outside staircase; the obliquity of the visible surfaces of the principal entrances in the intermediate floor and the spiral stairs (Figure 12) in the rear elevation (see ‘description’).
Figure 10.
Detail of the principal façade.
Figure 11.
Entrances.
Figure 12.
Entrance. The relation with the spiral stairs.
This expressiveness is also achieved by: the game of cross-beams of the main façade balconies and the galleries of the rear façade (Figure 13 and Figure 14); the highlight of the surfaces that divide the balconies jutting out from the edge of the main façade; the differentiation between structural elements and surfaces through the colour or the texture (Figure 15) of the material, etc. (see ‘description’).
Figure 13.
Rear façade. The stairs of the building and the galleries.
Figure 14.
Rear façade: the exterior galleries.
Figure 15.
Rear façade. Detail of the windows.
The use of oblique and curved forms introduces a variation to the uniformity created by orthogonal and regular rhythm of surfaces, opaque or transparent, highlighting the base and circulations, producing a relationship between diversity and uniformity. All of this defines a connection defended by the International Style: although they exposed as fundamental the principle of regularity, they also mention that the inclusion of non-rectangular shapes introduces an “aesthetic of highest interest” emphasis (Hitchcock and Johnson 1984, p. 82).
Despite the diversity, the different elements are connected, forming a clear unit: materials, claddings, colours, details, surfaces and reticulated structure, pillars, beams and reinforced concrete surfaces.
2.3. Configuration of Structure and Space, and Its Connection with the Outside
The structure also orders the configuration of the interior space, but, equally, the project shows a spatial preference in the organisation of entrances and public areas: the application of inflections, angularities and curvilinear forms also creates spatial focuses inside and outside.
This project develops an internal flexibility with removable walls and cabinets that divide rooms from the corridor: “There was a concern to get malleability in the organization of space [...] it allowed the adaptation by the occupants, avoiding a rigid division and the establishment of unique service circuits. [...] large door sliding between two rooms [...] cabinets divide space breaking the sense of enclosure of the traditional corridor” (Pires Martins and Palma de Melo 1966, pp. 9–15).
The clear plan is also emphasised in the interior (Giedion 2004). The delineation of the surfaces is related to the height of beams: in the living rooms, the height of the exterior walls corresponds to the inferior part of cross-beams (the apartments do not have apparent longitudinal beams); these walls meet the ceiling through a glass surface; windows of all rooms are under a plane on which is placed a glass or a blind that goes up to the ceiling; sliding planes between the rooms also have this relationship with the height of the beams and with the plane above the windows, defining surfaces between the cross-beams and pillars: “Windows of all rooms are constituted by two sliding elements in which the glazed part and the other one is a light protection formed by tilt adjustable small board and with control” (Pires Martins and Palma de Melo 1966).
All of these properties are exposed in the outlining of the structure. The link between pillars and partitions is not independent; the regularity of the structure governs the connection between surfaces. The beams and pillars are essentially a support of relations in a general organisation. But the intersection of details, surfaces and voids, and its relationship with the structure, is expressive, since it also demonstrates the quality of several of its elements.
3. Two Buildings in Olivais Sul
3.1. Description
Project: 1963/65.
Location: Olivais Sul, Rua Dom Aleixo Corte Real 394 and 395.
Architects: Artur Pires Martins; Cândido Palma T. de Melo; Fernando Ferreira Torres and António Manuel Matos Gomes.
Engineers: (structure of the 394) Jaime Pereira Gomes and António Gonçalves.
Client: City council of Lisbon, Gabinete Técnico de Habitação (GTH), promoter of the project. No. 394 was sold to Francisco Nunes Ribeiro, João Rodrigues de Sousa and Manuel Nunes Ribeiro, promoters of the construction.
Type of occupation: social housing of high category within the urban plan of Olivais Sul. Each block constitutes:
- -
- Semi-outdoor stairways and two elevators surrounded by four apartments per plant (Figure 16).
Figure 16. Plan of the apartments and the main entrance. - -
- Nine floor plans. Basement: service entrance, individual storage, space for household waste, garages/ground floor: main entrance, four houses/floors 1–6: four apartments per floor/top floor: house of the doorman and terrace. Total: 28 houses.
Structure: Reticulated structure with reinforced concrete pillars and beams (Figure 17).
Figure 17.
Plan of the structure.
- -
- Pavements: slabs in reinforced concrete.
- -
- Walls between apartments and around the stairs in reinforced concrete and brick in the remaining walls.
- -
- Cover: terrace comprising two slabs; lightened slab on solid slab of reinforced concrete.
- -
- The façades contain the main structure.
- -
- The pillars and the space between them are of different sizes.
Exterior description: junction of four volumes that contain the set of rooms of each home: kitchens, halls and stairs make the transition between them. Or, it can be described as a joint of two equal and symmetrical volumes; each one includes two apartments on each floor.
- -
- Base formed by the basement with cladding brick. The base enables the adaptation to the slope of the land.
- -
- The entrance area is oriented north/northeast. It has outside access stairs to the main entrance, located on the ground floor (Figure 18). Service entrance is situated below these stairs, in the basement level.
Figure 18. Section. - -
- The façades of the volumes in the area of entrance are obliquely connected with the central part of the core of vertical circulation.
- -
- Contains a simple configuration of openings in various surfaces generated by the joint of the volumes: they are unified by lines that mark the position of the slabs and by the ochre colour of the walls.
- -
- The top wall of the terrace stands on the outside. It is salient on the west and east façades.
- -
- Cover: light concrete slab covered by brick.
3.2. Outside Representation
This example develops a set of volumes with various facets whose surfaces delineation has a simplicity that contrasts with the volumetric diversity (Figure 19). The diversity of the whole is generated by the union of the inflections between the two volumes in the main area and in the setback, eastern and western façade, and in the western south façade.
Figure 19.
Exterior image.
The outside staircases are symmetrical.
The “V” opening created by the connection of these volumes, and the union generated by the ochre colour of the façades, highlights the two buildings in the area.
The management of volumes, surfaces and openings is controlled by horizontal joints: the markings of the slabs and the lower and upper closures (see description): the top forms a cornice by the enclosure of the terrace, which is projected outwards.
Most of the relationships between planes and lines are orthogonal, which emphasises the obliquity of the two volumes near the entrance, inside and outside (Figure 20).
Figure 20.
Stairs of the principal entrance.
There is not a geometric design that joins all parts. The exterior manifests an open system that allows the existence of separate elements and unexpected parts (Figure 21 and Figure 22).
Figure 21.
Detail of the window and basement.
Figure 22.
Detail of the windows and basement.
The horizontality of the slabs and beams is reflected on the outside (Figure 23), but the structure and the clear plane are not primordial elements in the composition of the façades.
Figure 23.
Detail of the windows.
The outer wall expresses the heavy built mass like the traditional masonry: the relationship between surfaces and openings develops variations that counteract the clarification of the plane and the lightness of the volume, through inflections, reliefs and hollows formed by the windows. It does not contain clear and interrelated light screens, reaffirming the values of joints and the high and low reliefs and expressing the effect of the monolithic volume. All this is accentuated by the prominence cornice, which appears as the most expressive element against the pure volume of the modern representation (Figure 24 and Figure 25).
Figure 24.
Detail of the cornice.
Figure 25.
Detail of the cornice.
As demonstrated, this example denies the principles of volume, regularity and applied decoration, of the International Style (Hitchcock and Johnson 1984, p. 32).
Although the outer surface cladding generates a global and unitary view, and openings are slightly interrelated by the markings of the slabs, these buildings represent the reaction against the pre-established order, indicated in the introduction. They show some characteristics of “Lisbon revisionism”: emphasised base and cornice that display prominently the gravity of the mass; volumetric diversity and distance of the lightness and clarity of the models featured by the International Style.
3.3. Configuration of Structure and Space, and Its Connection with the Outside
In the interior, there is also verified a spatial organisation with similar attributes.
The setback of all kitchens in the eastern and western façade, and the rooms in the façade south and southwest, orders internal and external configuration.
The spatial diversity, caused by volumetric variations between bedrooms and living rooms, rules the project: all parties are submitted to these variations avoiding the flexibility of the previous example.
The combination of four houses around a central core, highlighting the stairs, presents a spatial hierarchy in which there is no regularity or uniformity of the elements.
In Olivais Sul, the inflection forms generate an unconventional relation between entrances, living rooms and bedrooms. In both examples (Norte and Sul) the entrance connects with the bedrooms through the living room: in the second one, that union, in two apartments, hinders the organisation between the dining area and the living area.
The blocks of Aleixo street underline a variation of forms, but this movement does not happen in the internal organisation: the volumetric inflections causes a spatial diversity internally and externally, but it prevails orthogonal and clearly delimited spaces, excepting the areas between the inflections of the volumes.
All these properties are perceptible in the design of the concrete structure. Considering that the structural delineation is submitted to the relationship between walls and areas, the structure is not an essential element in the planning of this project. From the previous regular example, it passes to a number of variations of beams and pillars. The pillars have different sizes and some obliquities, and several beams also feature different sizes. If it did not have the general axial symmetry, with the stairs in the centre, it would reveal fewer similar structural spaces.
4. Conclusions
4.1. Exterior and Interior Representation of a Tendency
4.1.1. Identical Functional Program
There is a short distance in time between the two projects of the same architects, but they have a significant difference in the configuration between surfaces and concrete structures.
The two examples had a similar program in the beginning, both having the same promoter and identical types of affordable social housing in the Olivais urban plan, with both sites having the same characteristics. As a consequence, the divergence between these cases was not due to programmatic constraints but rather the intrinsic issues of the architects related to trends in architecture.
4.1.2. The Representation of the First Example
In Olivais Norte, cladding and colour that emphasise the planes are essential parts for the appreciation of the façades. With great vivacity, these blocks combine planes and structural lines that reflect the principle of “structural truth”: the idea of a direct correspondence between structure and architectural form, which is associated to “Rationalism”16. Equally, the expression of the structure, inner space and façade, also manifest the principle of regularity described in the International Style (Hitchcock and Johnson 1984).
Accordingly, the first conjunct reflects the concept of Gottfried Semper’s representation (Semper 2011), in which coverage materials have an essential role in demonstrating the approach to the project. The blocks connect. The theory of clothing of Semper (Fannelli and Gargiani 1999) with the image of modern architecture—based on the observations of Sigfried Giedion (2004)—related to avant-garde painting in the first decades of the 20th century.
4.1.3. The Representation of the Second Example
Despite the fact that revisionist critics in Lisbon thought they had not defined a formal language (Portas 1979, pp. 56–67), there are several attributes opposite to the International Style. These features are revealed in Olivais Sul:
- -
- The return to the window as an independent point; the abandonment of the clear plane; the reappearance of the axial symmetry;
- -
- The rehabilitation of “tradition” in drawing composition; the recovery of the traditional masonry construction, in which the walls were themselves the supporting structure, as well as overhanging tops and bases rather than simple edges;
- -
- The intensification of obliquities and the opposition to “regularity”;
- -
- The relationship between the form of space and its function, creating areas with different shapes and therefore different external representations.
4.1.4. Exterior and Interior Representation and the Role of Structure in Both Examples
The two groups of buildings are representative of divergent trends. They demonstrate the initial argument: how architectural trends can change the drawing of structure.
The integration of the external revisionist features in Olivais Sul is totally opposite, in its relation with the structure, to Olivais Norte. As shown in the examples, the interdependent relationship of all elements in Olivais Norte17 had been transformed into an open system in which the elements were independent and connected by invisible links18 in the buildings of Olivais Sul. In this case, the structure has been relegated, losing its leading role in the spatial organisation and external representation of the Olivais Norte buildings.
4.2. Structural Design and the Two Trends in Architecture
4.2.1. The Revealing of Structural Design
Although the organisation of the exterior and the interior depict the strategies mentioned in the text, the hidden structure, only visible in the drawings, shows clearly the divergence between the two. For that reason, observations of the engineer’s plans also contribute to support this paper’s considerations.
4.2.2. Structural Design and the First Example Tendency
The regular structural design in Olivais Norte was intentional and directly connected with the vanguard movements from the first half of the twentieth century. In Lisbon, the defence for regulation and standardisation of all elements in housing construction was emphasised in the First Congress of Portuguese Architects in 1948 (Cunha 1948, pp. 9–15; Segurado 1948, pp. 229–35; Martins 1948, pp. 156–73; Jacobety 1948, pp. 223–28; Simões et al. 1948, pp. 236–41).
Even though the modular structure planned for the apartments is different from the basement, there is a balance between structure and space in Olivais Norte. This difference was defended in the descriptive memorandum written by the engineers: “The competence of the architect authors is due to the possibility of a simple, accurate and relatively inexpensive structural solution, as befitted a block of this nature” (Gomes and Feio 1960, pp. 150–52).
4.2.3. Structural Design and the Second Example Tendency
However, the alteration of the structure in Olivais Sul does not seem to be deliberate; nothing indicates that it was intended to have an “irregular” construction plan. The drawing of the pillars and beams was a result of the revisionist concerns in the second half of the twentieth century, which extended the initial guidelines (Vicente 1980, pp. 36–44), resulting in buildings with a combination of different and autonomous elements, as a reaction against the control of “rationalism” and against its “abstraction”.
The revisionists19 planned to carry out work with a strong social dimension in which the interior areas had an essential role. In residential building, the living divisions had become the symbol of social space reflected in public areas. The general circulation had different forms to facilitate the interaction between people. So, the intermediate spaces, which linked the interior to the exterior and different interior areas, had a special significance for revisionists (Vieira de Almeida 1963, pp. 3–13). All these concerns generated various social and philosophical studies about the meaning of space and led to the preponderance of its design.
4.2.4. Space and Structure in the Two Examples
The structural design of the first example came from equality between space and structure; they were both participants from the beginning to the end of the project, from the general organisation to the drawing of details. In Olivais Norte, whereas space and structure have an equivalent role, the way they connected the uniform structure led to its prevalence over space. As it was written before, this structural design represents one of the principles of International Style that rules the spatial composition.
On the other hand, the second structure derived from a preference for spatial definition, which created a hierarchy of different indoor and outdoor spatial forms. Hence, in the second example, the interlinking of slabs, beams and pillars were probably not present in the initial planning of the project. Through the data presented here, it is seen that in Olivais Sul space prevails over structure, a consequence of the early Postmodern tendency.
4.3. Implications for Advancement of Research
4.3.1. Further Investigations
The interpretation in this work was mainly supported by the comparisons used by Colin Rowe (1999), described in the introduction. It has been assumed that it is a clear way to study architecture, specifically the relation between space and structure.
The paper presented an analysis of two simple types of structural organisations that could be used to study similar investigations: it would be an orientation for more inquiries concerning the architectural design and the role of spatial structure.
According to the method and methodology, the results and discussion attempted to dissect the attributes of both examples in order to obtain objective data about relative evaluations. The observations showed aspects of these projects that enabled further research on architectural “complexity”.
4.3.2. The Cultural Environment of Architecture between the 1950s and 1980s
As a result, this paper will be one reference for studying the influence of cultural environment of the architecture in space and structural design after the Second World War: it provides information to continue on analysing the trends of architecture in the second part of the twentieth century.
Finally, it is intended to carry on the investigation of the construction influenced by the reaction against the “rationalism” and International Style, the Revisionism of modern architecture—considered initial Postmodernism—and also its effects on teaching architecture.
Conflicts of Interest
The author declares no conflict of interest.
References
- Arup, Ove. 1966a. Ove Arup Fala de Arquitectos e Engenheiros. Revista Arquitectura 94. Lisbon: AAP, p. 153. [Google Scholar]
- Arup, Ove. 1966b. Arte e Arquitectura—A Relação Arquitecto-Engenheiro. Revista Binário 99. Lisbon: Sociedade Industrial de Tipografia, pp. 290–93. [Google Scholar]
- Banham, Reyner. 1961. Balance 1960. Revista Arquitectura 26. Madrid: COAM, pp. 2–17. [Google Scholar]
- Candela, Felix. 1967. Estruturalismo e Arquitectura. Revista Binário 11. Lisbon: AAP, pp. 229–33. [Google Scholar]
- Corbusier, Le. 1983. El Espíritu Nuevo en Arquitectura [1925]. Madrid: Colección de Arquitectura, vol. 7, 68p. [Google Scholar]
- Cunha, Paulo de Carvalho. 1948. Aspectos que Urge Considerar na Evolução da Arquitectura Nacional. Paper presented at the 1º Congresso Nacional de Arquitectos, Relatório da Comissão Executiva, Teses, Conclusões e Votos, Lisbon, Portugal, May 28–June 4; pp. 9–15. [Google Scholar]
- Duarte, Carlos. 1957. Três Obras de Mário Ridolfi. Revista Arquitectura 57, 58. Lisbon: AAP, pp. 22–25. [Google Scholar]
- Duarte, Carlos. 1986. Tendências da Arquitectura Portuguesa. Lisbon: Catálogo da Exposição, 71p. [Google Scholar]
- Emmerich, David George. 1971. As Estruturas. Revista Arquitectura 120. Lisbon: AAP, pp. 65–71. [Google Scholar]
- Fannelli, Giovanni, and Roberto Gargiani. 1999. El Principio del Revestimiento. Prolegómenos a una Historia de la Arquitectura Contemporánea. Madrid: Ed. Akal, 286p. [Google Scholar]
- Ferreira, Raúl Hestnes. 1967. Aspectos e Correntes Actuais da Arquitectura Americana. Arquitectura 98. Lisboa: AAP, pp. 148–55. [Google Scholar]
- Giedion, Sigfried. 2004. Espaço, Tempo e Arquitectura: O Desenvolvimento de uma nova Tradição [1941]. São Paulo: Martins Fontes, 949p. [Google Scholar]
- Gomes, Jaime Pereira, and António Areosa Feio. 1960. Estudo de Estabilidade. Memória Descritiva e Justificativa. C.M.L Process of Construction work 43270/960. Lisbon: C.M.L Process, pp. 150–52. [Google Scholar]
- Hitchcock, Henry-Russell, and Philip Johnson. 1984. El Estilo Internacional [1932]. Madrid: Colección de Arquitectura, vol. 11, 57p. [Google Scholar]
- Jacobety, Miguel. 1948. A Racionalização na Habitação e na Urbanização. Paper presented at the 1º Congresso Nacional de Arquitectos, Relatório da Comissão Executiva, Teses, Conclusões e Votos, Lisbon, Portugal, May 28–June 4; pp. 223–28. [Google Scholar]
- Kahn, Louis. 1962. Estrutura e Forma. Revista Arquitectura 74. Lisbon: AAP, pp. 23–29. [Google Scholar]
- Martins, Luís José Oliveira. 1948. A Arquitectura de hoje e as suas Relações com o Urbanismo. Paper presented at the 1º Congresso Nacional de Arquitectos, Relatório da Comissão Executiva, Teses, Conclusões e Votos, Lisbon, Portugal, May 28–June 4; pp. 156–73. [Google Scholar]
- Montaner, Josep Maria. 1993. A Busca de Novas Formas Expressivas, in Depois do Movimento Moderno. Arquitectura da Segunda Metade do Século XX. Barcelona: Ed. Gustavo Gili, 271p. [Google Scholar]
- Monteiro, Pardal. 1950. Arquitectos e Engenheiros Perante os Problemas da Arquitectura. Revista Arquitectura 33–34. Lisbon: AAP, pp. 2–33. [Google Scholar]
- Pedreirinho, José Manuel. 1994. Dicionário dos Arquitectos. Lisbon: Edições Afrontamento, 293p. [Google Scholar]
- Pires Martins, Artur. 1967. Entrevista Concedida a Maria Antónia Palla. Revista Arquitectura 100. Lisbon: AAP, pp. 268–69. [Google Scholar]
- Pires Martins, Artur, and Cândido Palma de Melo. 1966. Quatro Blocos Habitacionais em Olivais-Norte. Revista Arquitectura nº 91. Lisbon: AAP, pp. 9–15. [Google Scholar]
- Portas, Nuno. 1963. Progressos Recentes. Jornal de Letras e Artes January 30. , 7–10. [Google Scholar]
- Portas, Nuno. 1979. Entrevista Conduzida por José Manuel Fernandes e José Lamas. Revista Arquitectura 135. Lisbon: AAP, pp. 56–67. [Google Scholar]
- Portoghesi, Paolo. 1982. Os Primórdios de uma Nova Sensibilidade, in Depois da Arquitectura Moderna. Lisbon: Edições 70, 258p. [Google Scholar]
- Rowe, Colin. 1999. Manierismo y Arquitectura Moderna y otros Ensayos [1950]. Barcelona: Col. Gustavo Gili reprints, 218p. [Google Scholar]
- Segurado, Jorge. 1948. A Solução Vertical na Habitação Colectiva e os Aposentamentos. Paper presented at the 1º Congresso Nacional de Arquitectos, Relatório da Comissão Executiva, Teses, Conclusões e Votos, Lisbon, Portugal, May 28–June 4; pp. 229–35. [Google Scholar]
- Semper, Gottfried. 2011. The Four Elements of Architecture and Other Writings [1851]. Cambridge: Cambridge University Press, 338p. [Google Scholar]
- Simões, João, Huertas Lobo, and Castro Rodrigues. 1948. O Alojamento Colectivo. Paper presented at the 1º Congresso Nacional de Arquitectos, Relatório da Comissão Executiva, Teses, Conclusões e Votos, Lisbon, Portugal, May 28–June 4; pp. 236–41. [Google Scholar]
- Tainha, Manuel. 1956. Estilo e Espaço, Arquitectura. Revista Arquitectura 46. Lisbon: AAP, pp. 9–10, 22. [Google Scholar]
- Tainha, Manuel. 1984. Depoimento (arq. Moderna Versus arq. pós Moderna). Revista Arquitectura 153. Lisbon: AAP, p. 24. [Google Scholar]
- Torroja Miret, Eduardo. 2010. Razón y ser de los Principios Estructurales [1960]. Madrid: CSIC, 320p. [Google Scholar]
- Tostões, Ana. 1997. Os Verdes Anos na Arquitectura Portuguesa dos anos 50. Porto: Edições F.A.U.P., 349p. [Google Scholar]
- Toussaint, Michel. 1994. Afirmação e Crise da Cidade Moderna. In Guia de Arquitectura. Lisboa 94. Lisbon: AAP and FAUTL, 395p. [Google Scholar]
- Venturi, Robert. Complexity and Conradiction in Architecture [1966]. New York: Museum of Modern Art, 144p.
- Vicente, Manuel. 1980. Entrevista Conduzida por Carlos Duarte e José Manuel Fernandes. Revista Arquitectura 136. Lisbon: AAP, pp. 36–44. [Google Scholar]
- Vieira de Almeida, Pedro. 1963. Ensaio Sobre o Espaço da Arquitectura 2. Revista Arquitectura 80. Lisbon: AAP, pp. 3–13. [Google Scholar]
| 1 | Widely defended in the first Congress of Portuguese Architects, which was held in Lisbon in 1948. |
| 2 | “The first thing a man makes is to establish the orthogonal in front of him, arrange, put in order and see clearly before him.” (Corbusier 1983, p. 19). |
| 3 | “This rediscovery of the planar surface was essential [...] incorporating the plan as an intrinsic element.” (Giedion 2004, p. 21). |
| 4 | “The principles are few and broad. [...] There is, first, a new concept of the architecture as volume rather than as a mass. Secondly, regularity rather than axial symmetry serves as the chief means of ordering design. These two principles, with a third proscribing arbitrary applied decoration, mark the production of the International style.” (Hitchcock and Johnson 1984, p. 32). |
| 5 | “There were some consensus and common compositional methods which differentiated verbal formulations and plastic solutions in the 20s, and, therefore, it is not entirely misleading to speak of an International Style.” (Rowe 1999, p. 121). |
| 6 | “Neorealism” used traditional cheap materials with rugged and robust elements; the virtuosity of craftsmanship as a significant expression was rehabilitated. These characteristics can be seen in the buildings of Mario Ridolfi (Duarte 1957, pp. 22–25). |
| 7 | “Each space must be defined by its structure and by the nature of its natural light” (Kahn 1962, pp. 23–29). |
| 8 | “A system of proportions exists in a thoroughly designed modern building: that integrates and shapes, in an analogous way, the invisible structural skeleton, although separated from it. A geometric network of imaginary lines includes various elements, both in plan and elevation, while the harmony is created by the common whole.” (Hitchcock and Johnson 1984, p. 79). |
| 9 | Artur Pires Martins (1914–2000) (Pires Martins 1967) graduated from the Architecture School of Porto EBAP. He designed a residential building in Avenida Elias Garcia, Lisbon. In Lisbon he created several works with Palma de Melo, such as three sets of social housing buildings in Olivais; a set of residential buildings in Costa da Caparica; a housing building in Penha de França; an office building in the street Sociedade Farmacêutica; etc. |
| 10 | Cândido Palma de Melo (1922–2002) graduated from the School of Architecture of Lisbon EBAL. In addition to individual projects conducted with Pires Martins, he was the “Author of projects for the Rehabilitation Centers and Cerebral Palsy of Lisbon and Porto (1980–1988). [...] Cultural and Recreative centre in Setúbal and an office building in Street Alexandre Herculano.” (Pedreirinho 1994, p. 93). |
| 11 | The Olivais Norte, of lower occupancy—scheduled for 8500 inhabitants—was developed in 1955. Olivais Sul was designed in 1960 for 34,000 inhabitants (Toussaint 1994, p. 312). |
| 12 | Examples: (a) “stands out as the most important works of this period of rationalist influence, largely conveyed by the Brazilian architecture of the time, [...] housing blocks created by Palma de Melo and Pires Martins.” (Duarte 1986, p. 16); (b) “the bands with mixed organization, left and right apartments and gallery, reaffirm rationalist concepts, as in all the four blocks of eight floors of Pires Martins and Palma de Melo” (Tostões 1997, p. 76); (c) “corbusian buildings of Pires Martins and Palma de Melo” (Toussaint 1994, p. 311). |
| 13 | Research conducted for the doctoral thesis of the author. The book of the Spanish engineer Eduardo Torroja (Torroja Miret 2010) was an impeller of this study; and articles of Arup (1966a, p. 153; 1966b, pp. 290–93); Candela (1967, pp. 229–33); Emmerich (1971, pp. 65–71); Monteiro (1950, pp. 2–33). |
| 14 | Text based on the doctoral thesis of the author, 2007. |
| 15 | One of the characteristics of modern architecture (Giedion 2004). |
| 16 | In architecture, rationalism corresponds to of the principle ruling all parts of the project design, which is reflected in a precise geometric relationship. |
| 17 | Although these buildings have in some parts the attributes of free plant, in which the design of the space is independent of the structural regularity, the relationship of interdependence is still present. |
| 18 | Exception: the relief on the façades, which links some windows and marks the position of the slabs—see description in Section 3.1. |
| 19 | In Lisbon: Manuel Tainha, Raul Hestnes Ferreira, Carlos Duarte, Teotónio Pereira, Pedro Vieira de Almeida, Nuno Portas, etc. |
© 2018 by the author. Licensee MDPI, Basel, Switzerland. This article is an open access article distributed under the terms and conditions of the Creative Commons Attribution (CC BY) license (http://creativecommons.org/licenses/by/4.0/).
























