Energy Saving and Carbon Reduction in the Operation Stage of Cross Laminated Timber Residential Buildings in China
Abstract
:1. Introduction
1.1. Energy Consumption and Carbon Emissions in the Building Sector
1.2. CLT as a Sustainable Building Material
2. Study Scope and Description of Studied Cities
2.1. Study Scope
2.2. Thirty-One Key Cities in China
2.3. Climate Zones
3. Methodologies
3.1. The Framework
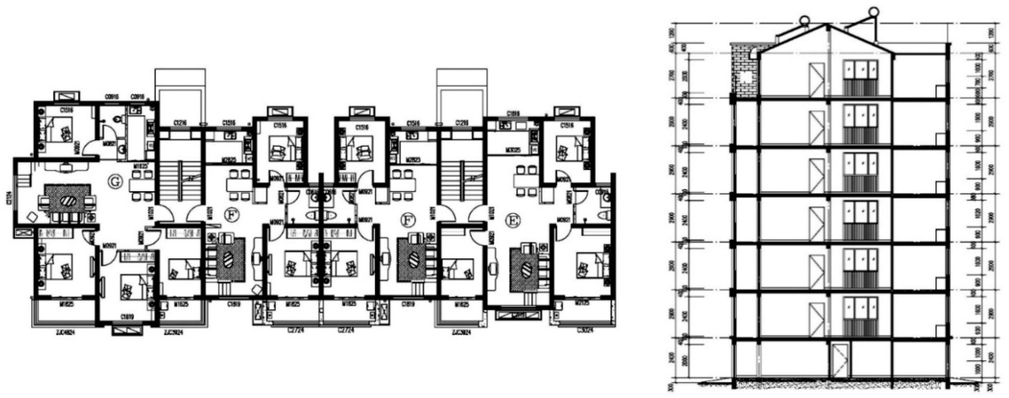
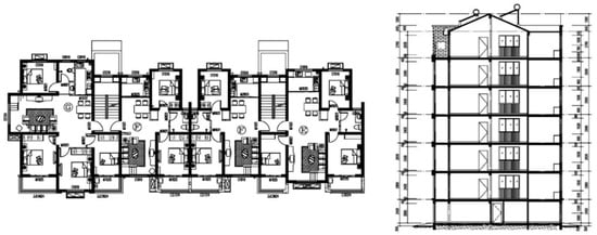
3.2. Designs of Concrete Buildings and CLT Buildings
3.2.1. Concrete Buildings
3.2.2. CLT Buildings
3.3. Energy Consumption during the Operation Stage
- (1)
- According to the building grade classification in China, in this paper, the life spans of the residential buildings are assumed to be 50 years.
- (2)
- Only energy used for heating, cooling and cooling appliances are simulated.
- (3)
- The indoor temperature is assumed to be controlled between 18 °C and 26 °C. According to the Chinese Residential Design Specification, the minimum temperature in the bedroom, toilet and living room is set to be 18 °C and the comfortable temperature is suggested to be no more than 26 °C. Cooling and heating systems will be operated automatically when the temperature is not in this range.
- (4)
- Electricity is used for cooling and raw coal is used for heating. This is the current practice in China and will be described in detail later.
3.4. Carbon Emissions during the Operation Stage
3.5. Data Source
4. Results and Analysis
5. Discussions
6. Conclusions
- (1)
- The estimated energy consumption and carbon emission in CLT buildings are much lower than those of RC buildings in all studied cities, which indicate that CLT systems have good potentials in reducing carbon emission and saving energy consumption compared to RC. The energy consumption and carbon emissions in both concrete and CLT buildings are closely related to the climate zones. Buildings in Severe Cold and Cold Region, where heating contributes to the main portion of energy consumption, consumed the most energy and released more carbon, followed by the Hot-Summer Cool-Winter Region, Hot-Summer Warm-Winter Region, and Temperate Region. At the national level, the energy consumption at the operation stage in the seven-story building with RC frames and CLT system were approximately 465.1 MJ/m2 and 332.6 MJ/m2 per annum, respectively, while the CO2 emissions were 55.4 KG/m2 and 42.3 KG/m2 per annum, respectively.
- (2)
- The effects of energy saving and carbon reduction of CLT buildings have little relationship with the climate zone. Despite the vast differences in China’s climate zones, the energy saving and carbon reduction effects of CLT are significant in all studied cities. On the national level, CLT buildings may result in a weighted 29.4% energy saving, which equals 24.6% of carbon reductions, compared with the concrete building in the operation stage.
- (3)
- Although CLT as a sustainable material can be developed nationwide in China, it is better to develop it in Severe Cold and Cold regions first due to the condition of limited timber production.
Acknowledgments
Author Contributions
Conflicts of Interest
References
- Intergovernmental Panel on Climate Change (IPCC). Contribution of Working Group III to the Fourth Assessment Report of the Intergovernmental Panel on Climate Change; IPCC: Geneva, Switzerland, 2007. [Google Scholar]
- Intergovernmental Panel on Climate Change (IPCC). Chapter 9: Buildings. In Intergovernmental Panel on Climate Change. Climate Change 2014: Mitigation of Climate Change; IPCC: Geneva, Switzerland, 2014. [Google Scholar]
- Berardi, U. A cross-country comparison of the building energy consumptions and their trends. Resour. Conserv. Recycl. 2016. [Google Scholar] [CrossRef]
- Energy Information Administration (EIA). Annuel Energy Outlook 2016 with Projections to 2040; EIA: Washington, DC, USA, 2016. [Google Scholar]
- Wang, L.; Toppinen, A.; Juslin, H. Use of wood in green building: A study of expert perspectives from the UK. J. Clean. Prod. 2014, 65, 350–361. [Google Scholar] [CrossRef]
- Energy Information Administration (EIA). Transition to Sustainable Buildings: Strategies and Opportunities to 2050; EIA: Washington, DC, USA, 2013. [Google Scholar]
- Energy Information Administration (EIA). Modernising Building Energy Codes; EIA: Washington, DC, USA, 2013. [Google Scholar]
- Ürge-Vorsatz, D.; Cabeza, L.F.; Serrano, S.; Barreneche, C.; Petrichenko, K. Heating and cooling energy trends and drivers in buildings. Renew. Sustain. Energy Rev. 2015, 41, 85–98. [Google Scholar] [CrossRef]
- King, D.; Browne, J.; Layard, R.; O’Donnell, G.; Rees, M.; Stern, N.; Turner, A. A Global Apollo Programme to Combat Climate Change; European Marine Energy Centre: London, UK, 2015. [Google Scholar]
- Chang, K.; Chang, H. Cutting CO2 intensity targets of interprovincial emissions trading in China. Appl. Energy 2016, 163, 211–221. [Google Scholar] [CrossRef]
- International Energy Agency (IEA). Energy Balances of OECD/Non-OECD Countries; IEA: Paris, France, 2007. [Google Scholar]
- Hong, T. A close look at the China design standard for energy efficiency of public buildings. Energy Build. 2009, 41, 426–435. [Google Scholar] [CrossRef]
- Chen, S.; Li, N.; Guan, J.; Xie, Y.; Sun, F.; Ni, J. A statistical method to investigate national energy consumption in the residential building sector of China. Energy Build. 2009, 40, 654–665. [Google Scholar] [CrossRef]
- Fridley, D.G.; Aden, N.T.; Zhou, N. China’s Building Energy Use; Berkeley National Laboratory: Berkeley, CA, USA, 2007. [Google Scholar]
- Wang, T.; Tian, X.; Hashimotoc, S.; Tanikawab, H. Concrete transformation of buildings in China and implicationsfor the steel cycle. Resour. Conserv. Recycl. 2015, 103, 205–215. [Google Scholar] [CrossRef]
- Dhakal, S. Urban energy use and carbon emissions from cities in China and policy implications. Energy Policy 2009, 37, 4208–4219. [Google Scholar] [CrossRef]
- Huanga, T.; Shib, F.; Tanikawab, H.; Feib, J.; Hanb, J. Materials demand and environmental impact of buildings construction and demolition in China based on dynamic material flow analysis. Resour. Conserv. Recycl. 2013, 72, 91–101. [Google Scholar] [CrossRef]
- Cost-Effective Energy Efficient Building Retrofitting: Materials, Technologies, Optimization and Case Studies; Woodhead Publishing Ltd., Elsevier Science and Technology, Abington Hall: Cambridge, MA, USA, 2017.
- Foraboschi, P.; Mercanzin, M.; Trabucco, D. Sustainable structural design of tall buildings based on embodied energy. Energy Build. 2014, 68, 254–269. [Google Scholar] [CrossRef]
- Treloar, G.J.; Fay, R.; Ilozor, B.; Love, P.E.D. An analysis of the embodied energy of office buildings by height. Facilities 2001, 19, 204–214. [Google Scholar] [CrossRef]
- Trabucco, D. An analysis of the relationship between service cores and theembodied/running energy of tall buildings. Struct. Des. Tall Spec. Buil. 2008, 17, 941–952. [Google Scholar] [CrossRef]
- Liu, Y.; Guo, H.; Sun, C.; Chang, W.-S. Assessing Cross Laminated Timber (CLT) as an alternative material for mid-rise residential buildings in cold regions in China—A life-cycle assessment approach. Sustainability 2016, 8, 1047. [Google Scholar] [CrossRef]
- Gustavsson, L.; Joelsson, A.; Sathre, R. Life cycle primary energy use and carbon emission of an eight-storey wood-framed apartment building. Energy Build. 2010, 42, 230–242. [Google Scholar] [CrossRef]
- Ministry of Housing and Urban-Rural Development (MOHURD). Action Plan to Promote Green Building Materials Production and Building Applications; Ministry of Housing: Beijing, China, 2015.
- Mallo, M.F.L.; Espinoza, O.A. Outlook for cross-laminated timber in the United States. BioResources 2014, 9, 7427–7443. [Google Scholar]
- Asia, F. Understanding Cross-Laminated Timber. Available online: http://www.Fdmasia.Com/index.Php/technology/item/345-understanding-cross-laminated-timber (accessed on 26 November 2015).
- Darby, H.J.; Elmualim, A.A.; Kelly, F. A case study to investigate the life cycle carbon emissions and carbon storage capacity of a Cross Laminated Timber, multi-storey residential building. In Proceedings of the Sustainable Building Conference, Munich, Germany, 10–12 September 2013; Volume 13, pp. 23–25.
- Liao, Y.; Tu, D.; Zhou, J.; Zhou, H.; Yun, H.; Gu, J.; Hu, C. Feasibility of manufacturing cross-laminated timber using fast-grown small diameter eucalyptus lumbers. Constr. Build. Mater. 2017, 132, 508–515. [Google Scholar] [CrossRef]
- Brandner, R.; Flatscher, G.; Ringhofer, A.; Schickhofer, G.; Thiel, A. Cross Laminated Timber (CLT): Overview and development. Eur. J. Wood Prod. 2016, 74, 331–351. [Google Scholar] [CrossRef]
- Bergman, R.; Bowe, S. Environmental impact of manufacturing softwood lumber in northeastern and north central United States. Wood Fiber Sci. 2010, 42, 67–78. [Google Scholar]
- Puettmann, M.; Bergman, R.; Hubbard, S.; Johnson, L.; Lippke, B.; Oneil, E. Cradle-to-gate life-cycle inventory of US wood products production: Corrim phase i and phase ii products. Wood Fiber Sci. 2010, 42, 15–28. [Google Scholar]
- Malmsheimer, R.; Heffernan, P.; Brink, S.; Crandall, D.; Deneke, F.; Galik, C.; Gee, E. Forest management solutions for mitigating climate change in the United States. J. For. 2008, 106, 115–171. [Google Scholar]
- Hammond, G.; Jones, C. Embodied Carbon. The Inventory of Carbon and Energy (ICE); University of Bath: Bath, UK, 2011. [Google Scholar]
- Borjesson, P.; Gustavsson, L. Greenhouse gas balances in building construction: Wood versus concrete from life-cycle and forest land-use perspectives. Energy Policy 2000, 28, 575–588. [Google Scholar] [CrossRef]
- Gong, X.; Nie, Z.; Wang, Z.; Cui, S.; Gao, F.; Zuo, T. Life cycle energy consumption and carbon dioxide emission of residential building designs in Beijing a comparative study. J. Ind. Ecol. 2012, 16, 576–587. [Google Scholar] [CrossRef]
- Cabeza, L.F.; Rincón, L.; Vilariño, V.; Pérez, G.; Castell, A. Life Cycle Assessment (LCA) and Life Cycle Energy Analysis (LCEA) of buildings and the building sector: A review. Renew. Sustain. Energy Rev. 2014, 29, 394–416. [Google Scholar] [CrossRef]
- Ramesha, T.; Prakasha, R.; Shuklab, K.K. Life cycle energy analysis of buildings: An overview. Energy Build. 2010, 42, 1592–1600. [Google Scholar] [CrossRef]
- Wood, E. Strategies for Sustainable Construction: Building with Wood in China. 2010. Available online: http://www.europeanwood.org/fileadmin/ewi/medium/build-with-wood-cn.pdf (accessed on 23 Aprial 2010).
- International Energy Agency (IEA). Energy Climateand Change, World Energy Outlook Special Report; IEA: Paris, France, 2015. [Google Scholar]
- European Committee for Standardization (CEN). Eurocode 5 Design of Timber Structures–Part 1-1: General Rules and Rules for Buildings; prEN 1995-1-1; CEN: Bruxelles, Belgium, 2003. [Google Scholar]
- TRADA. Gd10 Cross-Laminated Timber (Eurocode 5) Design Guide For Project Feasibility; TRADA Technology Ltd.: London, UK, 2009. [Google Scholar]
- Statistical Office of the People’s Republic of China. China Energy Statistical Yearbook 2014; China Statistics Press: Beijing, China, 2014. (In Chinese)
- Song, R.; Zhu, J.; Hou, P.; Wang, H. Getting Every Ton of Emissions Right: An Analysis of Emission Factors for Purchased Electricity in China; World Resources Institute: Washington, DC, USA, 2013. [Google Scholar]
- Board, E. China Electric Power Yearbook 2015; China Electric Power Press: Beijing, China, 2015. (In Chinese) [Google Scholar]
- Zhang, X. Carbon Emissions Measurement Methods and Comparative Studies on Green Building Structural System; Harbin Institute of Technology: Harbin, China, 2014. [Google Scholar]
- Bradford, J.B.; Birdsey, R.A.; Joyce, L.A.; Ryan, M.G. Tree age, disturbance history, and carbon stocks and fluxes in subalpine rocky mountain forests. Glob. Chang. Biol. 2008, 14, 2882–2897. [Google Scholar] [CrossRef]












| China | 31 Studied Cities | Ratio | |
|---|---|---|---|
| Population (Million) | 1360.72 | 256.76 | 18.87% |
| GDP (Billion Chinese Yuan) | 63,646.3 | 22,318.3 | 35.07% |
| Energy consumption (Billion Tonne Standard Coal) | 4.26 | 1.61 | 37.79% |
| Per capita energy consumption | 3.13 | 6.26 | 200.00% |
| CO2 emissions (Gt) | 9.2 | 1.99 | 21.63% |
| Per capita CO2 emissions (Tonne) | 6.76 | 7.76 | 114.79% |
| Climate Zones | Temperature | Cities | ||
|---|---|---|---|---|
| Coldest | Hottest | |||
| Severe Cold | ≤−10 °C | ≤25 °C | I B | Harbin |
| I C | Changchun, Hohhot, Shenyang, Xining, Urumqi | |||
| Cold | −10−0°C | 18–28 °C | II (A) | Dalian, Yinchuan, Taiyuan, Lanzhou |
| II (B) | Beijing, Tianjin, Xi’an, Shijiazhuang, Jinan, Zhengzhou | |||
| Hot Summer Cool Winter | 0–10 °C | 25–30 °C | III | Nanjing, Hefei, Wuhan, Shanghai, Changsha, Hangzhou, Chengdu, Chongqing, Nanchang |
| Hot Summer Warm Winter | >10 °C | 25–29 °C | IV (A) | Fuzhou |
| IV (B) | Nanning, Haikou, Guangzhou | |||
| Temperate | 0–13 °C | 18–25 °C | V | Guiyang, Kunming |
| City | Climate Region | U-Value (Regulation) | U-Value (Simulation) |
|---|---|---|---|
| Harbin | I (B) | Roof:0.28 Wall:0.38 | Roof:0.25 Wall:0.33 |
| Hohhot | I (C) | Roof:0.35 Wall:0.43 | Roof:0.25 Wall:0.40 |
| Changchun | I (C) | Roof:0.35 Wall:0.43 | Roof:0.30 Wall:0.44 |
| Shenyang | I (C) | Roof:0.35 Wall:0.43 | Roof:0.32 Wall:0.44 |
| Xining | I (C) | Roof:0.35 Wall:0.43 | Roof:0.38 Wall:0.44 |
| Yinchuan | I (C) | Roof:0.35 Wall:0.43 | Roof:0.47 Wall:0.50 |
| Urumqi | I (C) | Roof:0.35 Wall:0.43 | Roof:0.38 Wall:0.47 |
| Dalian | II (A) | Roof:0.45 Wall:0.50 | Roof:0.44 Wall:0.46 |
| Taiyuan | II (A) | Roof:0.45 Wall:0.50 | Roof:0.44 Wall:0.58 |
| Lanzhou | II (A) | Roof:0.45 Wall:0.50 | Roof:0.41 Wall:0.51 |
| Xi’an | II (B) | Roof:0.45 Wall:0.50 | Roof:0.47 Wall:0.51 |
| Zhengzhou | II (B) | Roof:0.45 Wall:0.50 | Roof:0.44 Wall:0.51 |
| Shijiazhuang | II (B) | Roof:0.45 Wall:0.50 | Roof:0.47 Wall:0.50 |
| Jinan | II (B) | Roof:0.45 Wall:0.50 | Roof:0.44 Wall:0.51 |
| Beijing | II (B) | Roof:0.45 Wall:0.50 | Roof:0.44 Wall:0.55 |
| Tianjin | II (B) | Roof:0.45 Wall:0.50 | Roof:0.45 Wall:0.60 |
| Chengdu | III | Roof:0.50 Wall:0.80 | Roof:0.47 Wall:0.90 |
| Hefei | III | Roof:0.50 Wall:0.80 | Roof:0.47 Wall:0.74 |
| Hangzhou | III | Roof:0.50 Wall:0.80 | Roof:0.65 Wall:0.67 |
| Nanchang | III | Roof:0.50 Wall:0.80 | Roof:0.59 Wall:0.72 |
| Changsha | III | Roof:0.50 Wall:0.80 | Roof:0.47 Wall:0.51 |
| Wuhan | III | Roof:0.50 Wall:0.80 | Roof:0.79 Wall:1.03 |
| Shanghai | III | Roof:0.50 Wall:0.80 | Roof:0.42 Wall:0.80 |
| Chongqing | III | Roof:0.50 Wall:0.80 | Roof:0.68 Wall:0.78 |
| Nanjing | III | Roof:0.50 Wall:0.80 | Roof:0.47 Wall:0.66 |
| Fuzhou | IV (A) | Roof:0.80 Wall:1.50 | Roof:0.79 Wall:0.85 |
| Nanning | IV (B) | Roof:0.80 Wall:1.50 | Roof:0.47 Wall:0.51 |
| Haikou | IV (B) | Roof:0.80 Wall:1.50 | Roof:0.71 Wall:2.20 |
| Guangzhou | IV (B) | Roof:0.80 Wall:1.50 | Roof:0.71 Wall:1.35 |
| Kunming | V (A) | Roof:0.80 Wall:1.50 | Roof:0.59 Wall:2.08 |
| Guiyang | V (A) | Roof:0.80 Wall:1.50 | Roof:0.75 Wall:2.10 |
| Fossil Energy Items | Cj | ηj |
|---|---|---|
| Raw Coal | 20,934 KJ/KG | 26.80 (T-C/TJ) |
| Electricity | 3600 KJ/KWH | 1.14 (TCO2/MWh, Northeast China) |
| 1.13 (T-CO2/MWh, North China) | ||
| 0.78 (T-CO2/MWh, East China) | ||
| 0.81 (T-CO2/MWh, Northwest China) | ||
| 0.70 (T-CO2/MWh, Central China) | ||
| 0.67 (T-CO2/MWh, Southern China) |
| National Grids | Cities |
|---|---|
| Northeast China | Dalian, Shenyang, Changchun, Harbin |
| North China | Jinan, Taiyuan, Hohhot, Beijing, Tianjin, Shijiazhuang |
| East China | Hefei, Fuzhou, Shanghai, Nanjing, Hangzhou |
| Northwest China | Xi’an, Lanzhou, Xining, Yinchuan, Urumqi |
| Central China | Zhengzhou, Wuhan, Changsha, Nanchang, Chengdu, Chongqing |
| Southern China | Guangzhou, Nanning, Kunming, Guiyang, Haikou |
© 2017 by the authors. Licensee MDPI, Basel, Switzerland. This article is an open access article distributed under the terms and conditions of the Creative Commons Attribution (CC BY) license ( http://creativecommons.org/licenses/by/4.0/).
Share and Cite
Guo, H.; Liu, Y.; Chang, W.-S.; Shao, Y.; Sun, C. Energy Saving and Carbon Reduction in the Operation Stage of Cross Laminated Timber Residential Buildings in China. Sustainability 2017, 9, 292. https://doi.org/10.3390/su9020292
Guo H, Liu Y, Chang W-S, Shao Y, Sun C. Energy Saving and Carbon Reduction in the Operation Stage of Cross Laminated Timber Residential Buildings in China. Sustainability. 2017; 9(2):292. https://doi.org/10.3390/su9020292
Chicago/Turabian StyleGuo, Haibo, Ying Liu, Wen-Shao Chang, Yu Shao, and Cheng Sun. 2017. "Energy Saving and Carbon Reduction in the Operation Stage of Cross Laminated Timber Residential Buildings in China" Sustainability 9, no. 2: 292. https://doi.org/10.3390/su9020292
APA StyleGuo, H., Liu, Y., Chang, W.-S., Shao, Y., & Sun, C. (2017). Energy Saving and Carbon Reduction in the Operation Stage of Cross Laminated Timber Residential Buildings in China. Sustainability, 9(2), 292. https://doi.org/10.3390/su9020292

