Daylighting Design in Classroom Based on Yearly-Graphic Analysis
Abstract
:1. Introduction
2. City selection
3. Method
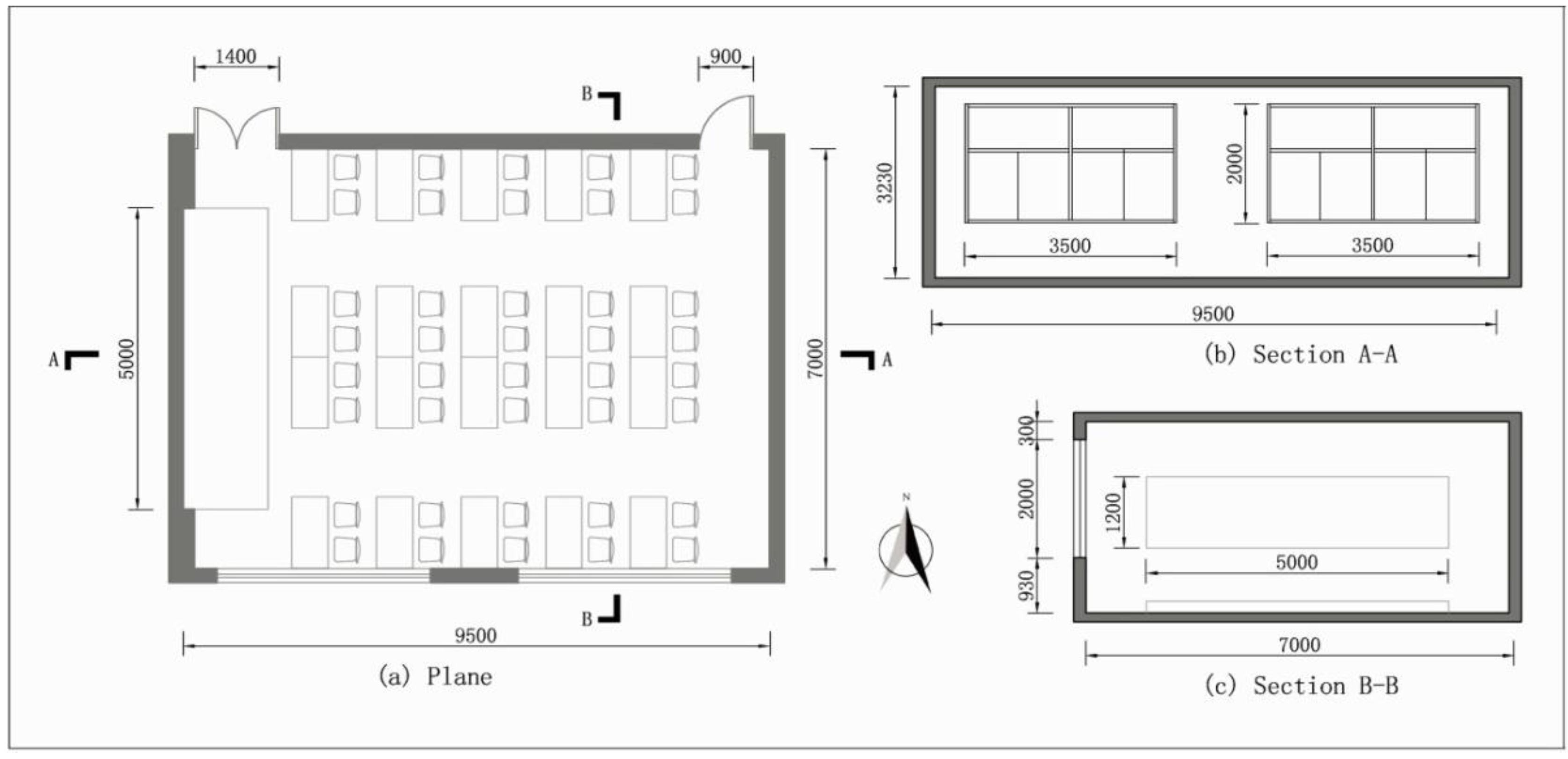
3.1. Typical Classroom
3.2. Goal Oriented Metrics
3.3. Temporal Map Within the Occupancy Time
4. Results
4.1. Analysis on Interior Daylighting
4.2. Daylighting Design for Regions I–II
4.3. Daylighting Design for Regions III–V
5. Discussion
6. Conclusions
Acknowledgments
Author Contributions
Conflicts of Interest
References
- Petroleum, B. British Petroleum Statistical Review of World Energy; British Petroleum: London, UK, 2010. [Google Scholar]
- International Energy Agency. CO2 emissions from fuel combustion; International Energy Agency: Paris, France, 2014. [Google Scholar]
- International Energy Agency. Modernising Building Energy Codes; International Energy Agency: Paris, France, 2013. [Google Scholar]
- International Energy Agency. Transition to Sustainable Buildings: Strategies and Opportunities to 2050; International Energy Agency: Paris, France, 2013. [Google Scholar]
- Chen, X.; Yang, H.X. Combined thermal and daylight analysis of a typical public rental housing development to fulfil green building guidance in hong kong. Energy Build. 2015, 108, 420–432. [Google Scholar] [CrossRef]
- Eliyahu, N.E. A comprehensive approach to the integration of daylight and electric light in buildings. Energy Build. 1984, 6, 78–108. [Google Scholar]
- Dijk, D.J.; Lockley, S.W. Functional genomics of sleep and circadian rhythm—Invited review: Integration of human sleep-wake regulation and circadian rhythmicity. J. Appl. Physiol. 2002, 92, 852–862. [Google Scholar] [CrossRef] [PubMed]
- Stevens, R.G.; Blask, D.E.; Brainard, G.C.; Hansen, J.; Lockley, S.W.; Provencio, I.; Rea, M.S.; Reinlib, L. Meeting report: The role of environmental lighting and circadian disruption in cancer and other diseases. Environ. Health Perspect. 2007, 115, 1357–1362. [Google Scholar] [CrossRef] [PubMed]
- Mills, P.R.; Tomkins, S.C.; Schlangen, L.J.M. The effect of high correlated colour temperature office lighting on employee wellbeing and work performance. J. Circadian Rhythms 2007, 5, 2. [Google Scholar] [CrossRef] [PubMed]
- Juslen, H.; Wouters, M.; Tenner, A. The influence of controllable task-lighting on productivity: A field study in a factory. Appl. Ergon. 2007, 38, 39–44. [Google Scholar] [CrossRef] [PubMed]
- Berardi, U. A cross-country comparison of the building energy consumptions and their trends. Resour. Conserv. Recycl. 2016, in press. [Google Scholar] [CrossRef]
- National Bureau of Statistics of the People’s Republic of China. China Statistical Yearbook, 2014; China Statistics Press: Beijing, China, 2015. (In Chinese) [Google Scholar]
- Building Energy Research Center in Tsinghua Univiersity. 2015 Annual Report on China Building Energy Efficiency; China Achitecture & Building Press: Beijing, China, 2015. [Google Scholar]
- Ministry of Education of the People’s Republic of China. Reports on National Students’ Constitution and Health of People’s Republic of China in 2010; Ministry of Education of the People’s Republic of China: Beijing, China, 2011.
- Ministry of Education of the People’s Republic of China. Reports on National Students’ Constitution and Health of People’s Republic of China in 2005; Ministry of Education of the People’s Republic of China: Beijing, China, 2006.
- Ministry of Education of the People’s Republic of China. Reports on National Students’ Constitution and Health of People’s Republic of China in 2000; Ministry of Education of the People’s Republic of China: Beijing, China, 2001.
- Wang, Y.; Ding, H.; Stell, W.K.; Liu, L.P.; Li, S.Q.; Liu, H.S.; Zhong, X.W. Exposure to sunlight reduces the risk of myopia in rhesus monkeys. PLoS ONE 2015, 10, 16. [Google Scholar] [CrossRef] [PubMed]
- Hua, W.-J.; Jin, J.-X.; Wu, X.-Y.; Yang, J.-W.; Jiang, X.; Gao, G.-P.; Tao, F.-B. Elevated light levels in schools have a protective effect on myopia. Ophthalmic Physiol. Opt. 2015, 35, 252–262. [Google Scholar] [CrossRef] [PubMed]
- Ministry of Housing and Urban-Rural Development of the People Republic of China. Gb5033-2013. Standard for Daylighting Design of Buildings; Ministry of Housing and Urban-Rural Development of the People Republic of China: Beijing, China, 2012. (In Chinese)
- Huang, X.; Li, J.; Zhang, X.; Qian, X.; Wang, X.; Li, L.; Zhao, J.; Xu, D.; Liu, B.; Li, Q.; et al. Current situation of classroom lighting of primary and secondary schools in urban area of jilin province. Chin. J. School Health 2014, 35, 628–630. (In Chinese) [Google Scholar]
- Ruilan, Z.; Yutang, L. Investigation of public hygiene of primary and secondary schools in shunyi district, beijing city from 2008 to 2009. Chin. J. Health Insp. 2010, 17, 352–354. [Google Scholar]
- Xiaoqin, C.; Jiafei, Y. Investigation and analysis of the luminous environment of some middle and primary school classrooms in chongqing. China Illum. Eng. J. 2011, 22, 25–30. [Google Scholar]
- Reinhart, C.F.; Herkel, S. The simulation of annual daylight illuminance distributions—A state-of-the-art comparison of six radiance-based methods. Energy Build. 2000, 32, 167–187. [Google Scholar] [CrossRef]
- Reinhart, C.F.; Walkenhorst, O. Validation of dynamic radiance-based daylight simulations for a test office with external blinds. Energy Build. 2001, 33, 683–697. [Google Scholar] [CrossRef]
- Nabil, A.; Mardaljevic, J. Useful daylight illuminances: A replacement for daylight factors. Energy Build. 2006, 38, 905–913. [Google Scholar] [CrossRef]
- Reinhart, C.F.; Jakubiec, J.A.; Ibarra, D. Definition of a Reference Office for Standardized Evaluations of Dynamic Facade and Lighting Technologies. In Proceedings of the BS 2013: 13th Conference of the International Building Performance Simulation Association, Chambery, France, 26–28 August 2013; pp. 3645–3652.
- Glassman, E.J.; Reinhart, C. Facade Optimization Using Parametric Design and Future Climate Scenarios. In Proceedings of the BS 2013: 13th Conference of the International Building Performance Simulation Association, Chambery, France, 26–28 August 2013; pp. 1585–1592.
- Berardi, U.; Wang, T. Daylighting in an atrium-type high performance house. Build. Environ. 2014, 76, 92–104. [Google Scholar] [CrossRef]
- Shanyu, G.Z.L. Assessment of the anidolic lighting technology for inhabitant in high-rise and high-density surroundings. Archit. J. 2010, 3, 24–26. [Google Scholar]
- Sun, C.; Lian, Z. Study on evaluatin method for illumination environment and energy consumption in office building. Archit. J. 2013, 2, 86–89. [Google Scholar]
- Reinhart, C.F.; Wienold, J. The daylighting dashboard—A simulation-based design analysis for daylit spaces. Build. Environ. 2011, 46, 386–396. [Google Scholar] [CrossRef]
- Andersen, M.; Gagne, J.M.L.; Kleindienst, S. Interactive expert support for early stage full-year daylighting design: A user’s perspective on lightsolve. Autom. Constr. 2013, 35, 338–352. [Google Scholar] [CrossRef]
- Kleindienst, S.; Bodart, M.; Anderson, M. Graphical representation of climate-based daylight performance to support architectural design. Leukos 2008, 5, 39–61. [Google Scholar] [CrossRef]
- Andersen, M.; Kleindienst, S.; Yi, L.; Lee, J.; Bodart, M.; Cutler, B. An intuitive daylighting performance analysis and optimization approach. Build. Res. Inf. 2008, 36, 593–607. [Google Scholar] [CrossRef]
- Perez, R.; Ineichen, P.; Seals, R.; Michalsky, J.; Stewart, R. Modeling daylight availability and irradiance components from direct and global irradiance. Sol. Energy 1990, 44, 271–289. [Google Scholar] [CrossRef]
- Zhang, Q.; Yang, H. Typical Meteorological Database Handbook for Buildings; China Achitecture & Building Press: Beijing, China, 2012. [Google Scholar]
- Kleindienst, S.; Andersen, M. Comprehensive annual daylight design through a goal-based approach. Build. Res. Inf. 2012, 40, 154–173. [Google Scholar] [CrossRef]
- Nabil, A.; Mardaljevic, J. Useful daylight illuminance: A new paradigm for assessing daylight in buildings. Light. Res. Technol. 2005, 37, 41–59. [Google Scholar] [CrossRef]
- Mardaljevic, J. Examples of climate-based daylight modelling. In Proceedings of the CIBSE National Conference 2006: Engineering the Future, London, UK, 21–22 March 2006.
- Reinhart, C.F.; Mardaljevic, J.; Rogers, Z. Dynamic daylight performance metrics for sustainable building design. Leukos J. Illum. Eng. Soc. 2006, 3, 7–31. [Google Scholar]
- Mardaljevic, J.; Andersen, M.; Roy, J.; Christoffersen, J. Daylighting metrics for residential buildings. In Presented at the 27th Session of CIE, Sun City, South Africa, 11–15 July 2011.
- Mardaljevic, J.; Andersen, M.; Roy, N. Daylighting metrics: Is there a relation between useful daylight illuminance and daylight glare probability? In Proceedings of the Building Simulation and Optimization Conference, Loughborough, UK, 10–12 September 2012; pp. 189–196.
- Berardi, U. The development of a monolithic aerogel glazed window for an energy retrofitting project. Appl. Energy 2015, 154, 603–615. [Google Scholar] [CrossRef]
- Cammarano, S.; Pellegrino, A.; Lo Verso, V.R.M.; Aghemo, C. Assessment of daylight in rooms with different architectural features. Build. Res. Inf. 2015, 43, 222–237. [Google Scholar] [CrossRef]
- Berardi, U.; Anaraki, H.K. Analysis of the impacts of light shelves on the useful daylight illuminance in office buildings in toronto. Energy Procedia 2015, 78, 1793–1798. [Google Scholar] [CrossRef]
- Presciutti, A.; Asdrubali, F. Sun simulators: Development of an innovative low cost film filter. Sustainability 2014, 6, 6830–6846. [Google Scholar] [CrossRef]
- Alibaba, H. Determination of optimum window to external wall ratio for offices in a hot and humid climate. 2016, 8, 187. [Google Scholar] [CrossRef]









| Longitude | Latitude | |
|---|---|---|
| Lhasa | 91.13°E | 29.67°N |
| Yinchuan | 106.2°E | 38.47°N |
| Beijing | 116.28°E | 39.93°N |
| Shanghai | 121.47°E | 31.40°N |
| Chongqing | 106.47°E | 29.58°N |
| Clear | Clear Turbid | Intermediate | Overcast | |
|---|---|---|---|---|
| Lhasa | 19.39% | 42.94% | 30.46% | 7.21% |
| Yinchuan | 12.27% | 37.29% | 34.87% | 15.58% |
| Beijing | 7.07% | 29.38% | 33.98% | 29.56% |
| Shanghai | 2.91% | 17.76% | 35.72% | 43.61% |
| Chongqing | 0.28% | 4.38% | 21.80% | 73.55% |
| Surface | Reflectance (%) |
|---|---|
| Wall | 78.3 |
| Ceiling | 59.5 |
| Floor | 36.7 |
| Wood door | 28.5 |
| Blackboard | 12.76 |
| Desktop | 13.8 |
© 2016 by the authors; licensee MDPI, Basel, Switzerland. This article is an open access article distributed under the terms and conditions of the Creative Commons Attribution (CC-BY) license (http://creativecommons.org/licenses/by/4.0/).
Share and Cite
Guan, Y.; Yan, Y. Daylighting Design in Classroom Based on Yearly-Graphic Analysis. Sustainability 2016, 8, 604. https://doi.org/10.3390/su8070604
Guan Y, Yan Y. Daylighting Design in Classroom Based on Yearly-Graphic Analysis. Sustainability. 2016; 8(7):604. https://doi.org/10.3390/su8070604
Chicago/Turabian StyleGuan, Yang, and Yonghong Yan. 2016. "Daylighting Design in Classroom Based on Yearly-Graphic Analysis" Sustainability 8, no. 7: 604. https://doi.org/10.3390/su8070604
APA StyleGuan, Y., & Yan, Y. (2016). Daylighting Design in Classroom Based on Yearly-Graphic Analysis. Sustainability, 8(7), 604. https://doi.org/10.3390/su8070604
