From Marble Waste to Eco-Friendly Filament for 3D Printing to Help Renaturalization of Quarries
Abstract
1. Introduction
2. Materials and Methods
2.1. Materials
2.2. Production of Innovative Sustainable Filaments for FFF
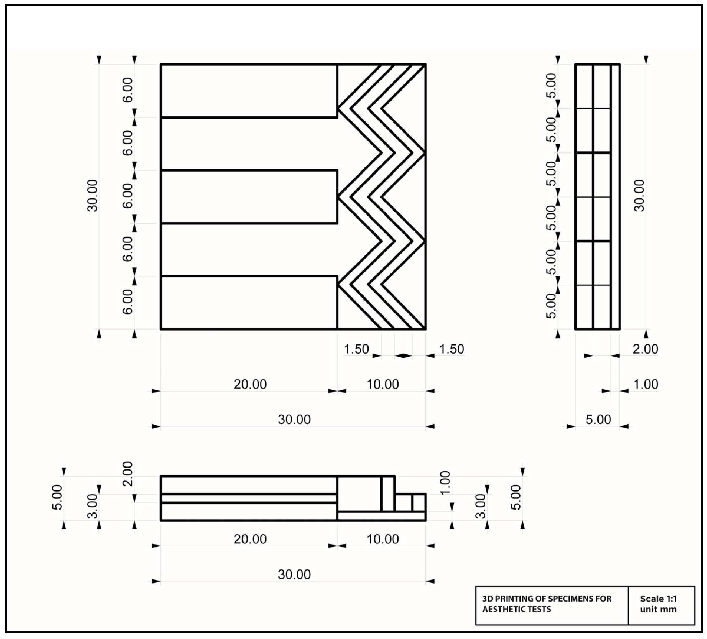
2.3. Three-Dimensional Printing of Specimens for Bending Tests and Aesthetic Tests
2.4. Study of the Properties of the Raw Materials and the Developed Biocomposite
2.5. Proof of Concept
3. Results and Discussion
3.1. Characterization of Raw Materials, New Composite, and Prototypes
3.2. Proof of Concept: The Reuse of Marble By-Products for the Renaturalization of a Quarry in Trani (Apulia, Italy)
- 1.
- Plant species capable of adapting to the specific microclimate of the quarry were selected, considering soil composition and light availability. The goal is to prioritize native or adaptable species to ensure low-maintenance and optimal ecological integration.
- 2.
- Great attention was given to the visual harmony between the natural environment and the artificial element. The object was designed to enhance the site’s appearance without altering its historical and environmental character, drawing on organic shapes already present in the location.
- 3.
- The installation process was designed to minimize the impact on the local ecosystem, using sustainable and non-polluting materials.
4. Conclusions
Author Contributions
Funding
Institutional Review Board Statement
Informed Consent Statement
Data Availability Statement
Acknowledgments
Conflicts of Interest
References
- Coratza, P.; Vandelli, V.; Soldati, M. Environmental Rehabilitation Linking Natural and Industrial Heritage: A Master Plan for Dismissed Quarry Areas in the Emilia Apennines (Italy). Environ. Earth Sci. 2018, 77, 455. [Google Scholar] [CrossRef]
- Fawad, M.; Ullah, F.; Shah, W.; Jawad, M.; Khan, K.; Rashid, W. An Integrated Approach towards Marble Waste Management: GIS, SFA, and Recycling Options. Environ. Sci. Pollut. Res. 2022, 29, 84460–84470. [Google Scholar] [CrossRef] [PubMed]
- Legambiente Rapporto Cave. La Transizione Dell’economia Circolare Nel Settore Delle Costruzioni 2021. Available online: https://www.legambiente.it/rapporti-e-osservatori/rapporto-cave-2021/ (accessed on 18 January 2025).
- Fico, D.; Rizzo, D.; De Carolis, V.; Esposito Corcione, C. Bio-Composite Filaments Based on Poly(Lactic Acid) and Cocoa Bean Shell Waste for Fused Filament Fabrication (FFF): Production, Characterization and 3D Printing. Materials 2024, 17, 1260. [Google Scholar] [CrossRef]
- Fico, D.; Rizzo, D.; De Carolis, V.; Montagna, F.; Esposito Corcione, C. Sustainable Polymer Composites Manufacturing through 3D Printing Technologies by Using Recycled Polymer and Filler. Polymers 2022, 14, 3756. [Google Scholar] [CrossRef] [PubMed]
- Cardona-Vivas, N.; Correa, M.A.; Colorado, H.A. Multifunctional Composites Obtained from the Combination of a Conductive Polymer with Different Contents of Primary Battery Waste Powders. Sustain. Mater. Technol. 2021, 28, e00281. [Google Scholar] [CrossRef]
- Mikula, K.; Skrzypczak, D.; Izydorczyk, G.; Warchoł, J.; Moustakas, K.; Chojnacka, K.; Witek-Krowiak, A. 3D Printing Filament as a Second Life of Waste Plastics—A Review. Environ. Sci. Pollut. Res. 2021, 28, 12321–12333. [Google Scholar] [CrossRef]
- Badalucco, L.; Casarotto, L. Dallo Scarto Al Valore. MD J. 2018, 6, 130–141. [Google Scholar]
- Jing, T.; Li, J.; He, Y.; Shankar, A.; Saxena, A.; Tiwari, A.; Maturi, K.C.; Solanki, M.K.; Singh, V.; Eissa, M.A.; et al. Role of Calcium Nutrition in Plant Physiology: Advances in Research and Insights into Acidic Soil Conditions—A Comprehensive Review. Plant Physiol. Biochem. 2024, 210, 108602. [Google Scholar] [CrossRef]
- Ohkita, T.; Lee, S.H. Thermal Degradation and Biodegradability of Poly (Lactic Acid)/Corn Starch Biocomposites. J. Appl. Polym. Sci. 2006, 100, 3009–3017. [Google Scholar] [CrossRef]
- Urayama, H.; Kanamori, T.; Kimura, Y. Properties and Biodegradability of Polymer Blends of Poly(L-Lactide)s with Different Optical Purity of the Lactate Units. Macromol. Mater. Eng. 2002, 287, 116–121. [Google Scholar] [CrossRef]
- Luo, Y.; Lin, Z.; Guo, G. Biodegradation Assessment of Poly (Lactic Acid) Filled with Functionalized Titania Nanoparticles (PLA/TiO2) under Compost Conditions. Nanoscale Res. Lett. 2019, 14, 56. [Google Scholar] [CrossRef] [PubMed]
- Almansoori, K.; Pervaiz, S. Effect of Layer Height, Print Speed and Cell Geometry on Mechanical Properties of Marble PLA Based 3D Printed Parts. Smart Mater. Manuf. 2023, 1, 100023. [Google Scholar] [CrossRef]
- Liu, B.; Zhang, F.; Sun, X.; Rushworth, A. Additive Manufacturing in Cultural Heritage Preservation and Product Design. In Springer Handbook of Additive Manufacturing; Springer Handbooks; Springer: Cham, Switzerland, 2023; Part F1592; pp. 923–940. [Google Scholar] [CrossRef]
- Rotondi, C.; Gironi, C.; Ciufo, D.; Diana, M.; Lucibello, S. Bioreceptive Ceramic Surfaces: Material Experimentations for Responsible Research and Design Innovation in Circular Economy Transition and “Ecological Augmentation”. Sustainability 2024, 16, 3208. [Google Scholar] [CrossRef]
- Gasparini, K. Lithic Design and Additive Manufacturing. A Feasible Partnership for the Circular Economy. Agathon 2023, 14, 316–325. [Google Scholar] [CrossRef]
- Taranto, M.; Pollini, B.; Rognoli, V. diid, Digital Special Issue N.1. 2024, pp. 658–667. Available online: https://www.diid.it/diid/index.php/diid/article/view/t4-taranto-pollini-rognoli (accessed on 18 January 2025).
- ISO 178:2019; Plastics—Determination of Flexural Properties. International Organization for Standardization: Geneva, Switzerland, 2019. Available online: https://www.iso.org/standard/70513.html (accessed on 18 January 2025).
- Galván-Ruiz, M.; Hernández, J.; Baños, L.; Noriega-Montes, J.; Rodríguez-García, M.E. Characterization of Calcium Carbonate, Calcium Oxide, and Calcium Hydroxide as Starting Point to the Improvement of Lime for Their Use in Construction. J. Mater. Civ. Eng. 2009, 21, 694–698. [Google Scholar] [CrossRef]
- Lendvai, L.; Singh, T.; Fekete, G.; Patnaik, A.; Dogossy, G. Utilization of Waste Marble Dust in Poly(Lactic Acid)-Based Biocomposites: Mechanical, Thermal and Wear Properties. J. Polym. Environ. 2021, 29, 2952–2963. [Google Scholar] [CrossRef]
- Bilgin, N.; Yeprem, H.A.; Arslan, S.; Bilgin, A.; Günay, E.; Maroglu, M. Use of Waste Marble Powder in Brick Industry. Constr. Build. Mater. 2012, 29, 449–457. [Google Scholar] [CrossRef]
- Chieng, B.W.; Ibrahim, N.A.; Yunus, W.M.Z.W.; Hussein, M.Z. Poly(Lactic Acid)/Poly(Ethylene Glycol) Polymer Nanocomposites: Effects of Graphene Nanoplatelets. Polymers 2014, 6, 93–104. [Google Scholar] [CrossRef]
- Wang, X.; Xu, X.; Ye, Y.; Wang, C.; Liu, D.; Shi, X.; Wang, S.; Zhu, X. In-Situ High-Temperature XRD and FTIR for Calcite, Dolomite and Magnesite: Anharmonic Contribution to the Thermodynamic Properties. J. Earth Sci. 2019, 30, 964–976. [Google Scholar] [CrossRef]
- Fico, D.; Rizzo, D.; Casciaro, R.; Esposito Corcione, C. A Review of Polymer-Based Materials for Fused Filament Fabrication (FFF): Focus on Sustainability and Recycled Materials. Polymers 2022, 14, 465. [Google Scholar] [CrossRef]
- Anderson, I. Mechanical Properties of Specimens 3D Printed with Virgin and Recycled Polylactic Acid. 3D Print. Addit. Manuf. 2017, 4, 110–115. [Google Scholar] [CrossRef]
- Rothon, R.N. Particulate-Filled Polymer Composites, 2nd ed.; iSmithers Rapra Publishing: Shropshire, UK, 2003; ISBN 1859573827. [Google Scholar]
- Zhu, Y.; Wang, Z.; Chen, Z.; Lin, C.; Li, P.; Huang, Z.; Cai, P.; Wu, C.; Zeng, Q. High Value-Added Utilization of Artificial Marble Wastes and Potential Applications in Biodegradable Sustainable Packaging. Compos. Sci. Technol. 2022, 229, 109682. [Google Scholar] [CrossRef]
- Nayak, S.K.; Satapathy, A. Development and Characterization of Polymer-Based Composites Filled with Micro-Sized Waste Marble Dust. Polym. Polym. Compos. 2021, 29, 497–508. [Google Scholar] [CrossRef]
- Jena, H.; Satapathy, A.K. Fabrication, Mechanical Characterization and Wear Response of Hybrid Composites Filled with Red Mud: An Alumina Plant Waste. AMAE Int. J. Manuf. Mater. Sci. 2011, 2, 27. [Google Scholar]
- Beigbeder, J.; Soccalingame, L.; Perrin, D.; Bénézet, J.C.; Bergeret, A. How to Manage Biocomposites Wastes End of Life? A Life Cycle Assessment Approach (LCA) Focused on Polypropylene (PP)/Wood Flour and Polylactic Acid (PLA)/Flax Fibres Biocomposites. Waste Manag. 2019, 83, 184–193. [Google Scholar] [CrossRef]
- Tao, Y.; Liu, M.; Han, W.; Li, P. Waste Office Paper Filled Polylactic Acid Composite Filaments for 3D Printing. Compos. Part B Eng. 2021, 221, 108998. [Google Scholar] [CrossRef]
- Rahim, T.N.A.T.; Abdullah, A.M.; Md Akil, H. Recent Developments in Fused Deposition Modeling-Based 3D Printing of Polymers and Their Composites. Polym. Rev. 2019, 59, 589–624. [Google Scholar] [CrossRef]
- Fico, D.; Rizzo, D.; De Carolis, V.; Montagna, F.; Palumbo, E.; Corcione, C.E. Development and Characterization of Sustainable PLA/Olive Wood Waste Composites for Rehabilitation Applications Using Fused Filament Fabrication (FFF). J. Build. Eng. 2022, 56, 104673. [Google Scholar] [CrossRef]
- Esposito Corcione, C.; Palumbo, E.; Masciullo, A.; Montagna, F.; Torricelli, M.C. Fused Deposition Modeling (FDM): An Innovative Technique Aimed at Reusing Lecce Stone Waste for Industrial Design and Building Applications. Constr. Build. Mater. 2018, 158, 276–284. [Google Scholar] [CrossRef]
- Yaguchi, Y.; Takeuchi, K.; Waragai, T.; Tateno, T. Durability Evaluation of an Additive Manufactured Biodegradable Composite with Continuous Natural Fiber in Various Conditions Reproducing Usage Environment. Int. J. Autom. Technol. 2020, 14, 959–965. [Google Scholar] [CrossRef]
- Elsawy, M.A.; Kim, K.H.; Park, J.W.; Deep, A. Hydrolytic Degradation of Polylactic Acid (PLA) and Its Composites. Renew. Sustain. Energy Rev. 2017, 79, 1346–1352. [Google Scholar] [CrossRef]
- Tozsin, G.; Oztas, T.; Arol, A.I.; Kalkan, E.; Duyar, O. The Effects of Marble Wastes on Soil Properties and Hazelnut Yield. J. Clean. Prod. 2014, 81, 146–149. [Google Scholar] [CrossRef]
- Hua, K.H.; Wang, H.C.; Chung, R.S.; Hsu, J.C. Calcium Carbonate Nanoparticles Can Enhance Plant Nutrition and Insect Pest Tolerance. J. Pestic. Sci. 2015, 40, 208–213. [Google Scholar] [CrossRef]






| Label | Weight Composition (wt.%) | Tg (°C) | Tc (°C) | ∆Hc (J g−1) | Tm (°C) | Tm1 (°C) | ∆Hm (J g−1) |
|---|---|---|---|---|---|---|---|
| PLA_pellet | 100 PLA Ingeo 4043D pellet | 61.7 | / | / | 154.6 | / | 19.9 |
| 100PLA_f | 100 PLA Ingeo 4043D | 59.2 | 124.4 | 11.2 | 155.2 | / | 22.1 |
| 90PLA/10MW_f | 90 PLA Ingeo 4043D and 10 marble powder waste | 60.0 | 117.2 | 44.1 | 151.7 | 156.4 | 37.1 |
| 80PLA/20MW_f | 80 PLA Ingeo 4043D and 20 marble powder waste | 61.3 | 115.9 | 29.4 | 152.8 | 157.4 | 24.0 |
| 70PLA/30MW_f | 70 PLA Ingeo 4043D and 30 marble powder waste | 59.7 | 113.7 | 40.4 | 149.3 | 155.1 | 30.6 |
| Label | E (GPa) | σR (MPa) | εR (%) |
|---|---|---|---|
| 100PLA_3D | 3.74 ± 0.15 | 102.50 ± 14.26 | 4.16 ± 0.13 |
| 90PLA/10MW_3D | 3.15 ± 0.35 | 71.92 ± 12.19 | 3.19 ± 0.14 |
| 80PLA/20MW_3D | 4.06 ± 0.22 | 67.66 ± 10.79 | 2.49 ± 0.12 |
| 70PLA/30MW_3D | 3.64 ± 0.12 | 48.28 ± 13.89 | 1.65 ± 0.11 |
Disclaimer/Publisher’s Note: The statements, opinions and data contained in all publications are solely those of the individual author(s) and contributor(s) and not of MDPI and/or the editor(s). MDPI and/or the editor(s) disclaim responsibility for any injury to people or property resulting from any ideas, methods, instructions or products referred to in the content. |
© 2025 by the authors. Licensee MDPI, Basel, Switzerland. This article is an open access article distributed under the terms and conditions of the Creative Commons Attribution (CC BY) license (https://creativecommons.org/licenses/by/4.0/).
Share and Cite
Fico, D.; Rizzo, D.; De Carolis, V.; Lerario, F.; Di Roma, A.; Esposito Corcione, C. From Marble Waste to Eco-Friendly Filament for 3D Printing to Help Renaturalization of Quarries. Sustainability 2025, 17, 1977. https://doi.org/10.3390/su17051977
Fico D, Rizzo D, De Carolis V, Lerario F, Di Roma A, Esposito Corcione C. From Marble Waste to Eco-Friendly Filament for 3D Printing to Help Renaturalization of Quarries. Sustainability. 2025; 17(5):1977. https://doi.org/10.3390/su17051977
Chicago/Turabian StyleFico, Daniela, Daniela Rizzo, Valentina De Carolis, Francesca Lerario, Annalisa Di Roma, and Carola Esposito Corcione. 2025. "From Marble Waste to Eco-Friendly Filament for 3D Printing to Help Renaturalization of Quarries" Sustainability 17, no. 5: 1977. https://doi.org/10.3390/su17051977
APA StyleFico, D., Rizzo, D., De Carolis, V., Lerario, F., Di Roma, A., & Esposito Corcione, C. (2025). From Marble Waste to Eco-Friendly Filament for 3D Printing to Help Renaturalization of Quarries. Sustainability, 17(5), 1977. https://doi.org/10.3390/su17051977

