Next Article in Journal
Short-Term Load Forecasting for Regional Smart Energy Systems Based on Two-Stage Feature Extraction and Hybrid Inverted Transformer
Previous Article in Journal
Understanding Food Insecurity and Participation in Food Assistance Programs among Hispanic/Latino Residents of Hialeah, Florida, before and during the COVID-19 Pandemic
 
 
Font Type:
Arial Georgia Verdana
Font Size:
Aa Aa Aa
Line Spacing:
Column Width:
Background:
Article

A Comparative Life Cycle Assessment (LCA) of a Composite Bamboo Shear Wall System Developed for El Salvador

by
Louisa Young
1,*,
Sebastian Kaminski
1,*,
Mike Kovacs
1 and
Edwin Zea Escamilla
2
1
Arup, 8 Fitzroy Street, London W1T 4BJ, UK
2
HIL F 28.2, Institut für Bau- und Infrastrukturmanagement, Stefano-Franscini-Platz 5, ETH Zürich, 8093 Zürich, Switzerland
*
Authors to whom correspondence should be addressed.
Sustainability 2024, 16(17), 7602; https://doi.org/10.3390/su16177602
Submission received: 27 June 2024 / Revised: 31 July 2024 / Accepted: 28 August 2024 / Published: 2 September 2024
(This article belongs to the Section Green Building)

Abstract

To meet the UN sustainable development goal targets by 2030, it is necessary to provide adequate, resilient, and affordable housing solutions which are also low-carbon. In the context of affordable housing in El Salvador, an improved vernacular construction system, following the composite bamboo shear wall (CBSW) technology, has been developed as a feasible option to fill the current housing deficit. A life cycle assessment (LCA) has been conducted comparing a house built using the CBSW system with a reinforced concrete hollow block masonry system, considering the A1 to A5 (raw material production and manufacture) and B4 (replacement) life cycle modules. The LCA scope was limited to modules where there was sufficient confidence in the inputs. End-of-life modules were excluded as there is a large degree of uncertainty in the end-of-life scenarios for these materials in the regional context. The LCA results show that the CBSW system has approximately 64% of the global warming potential (GWP) of the reinforced masonry house, and when considering biogenic carbon, this reduces to 53%. There is additional potential to minimise impacts and maximise end-of-life opportunities (e.g., re-use, biofuel, etc.) for the biomaterials within the CBSW system, if considering modules beyond the scope of this paper, and this needs further study. Nevertheless, the results from this LCA—of limited A1 to A5 and B4 scope—show that the CBSW system has significant sustainability advantages over conventional construction systems and is considered a promising solution to alleviate the housing deficit in El Salvador.

1. Introduction

1.1. Background

Globally, around 1.6 billion people live in inadequate housing [1]. If the UN SDG targets are to be met, it is essential to “ensure access for all to adequate, safe and affordable housing” by 2030 [2]. At the same time, cement, which is one of the most common construction materials, contributes towards 8% of global CO2 emissions. There is therefore an urgent need for affordable, disaster-resilient, and low-carbon housing in lower- and middle-income countries.
The current numbers for housing deficit—defined as the number of new houses required to accommodate those living in substandard, precariously located, or overcrowded housing—in El Salvador have not been published in recent years; however, assessments published in 2014 determined the number to be 1.4 million homes [3,4]. Furthermore, El Salvador experiences frequent natural hazards, including earthquakes, volcanic activity, hurricanes, and floods, some of which may increase in severity and frequency with climate change. Recurrent and adverse weather conditions limit the efforts to reduce poverty [5] and add to the number of houses that need building or re-building each year to accommodate for those destroyed or damaged in natural disasters.
The UN SDGs also outline the need to support developing countries in “building sustainable and resilient buildings utilising local materials” [2]. One opportunity for providing sustainable housing is to switch from traditional, carbon-intensive construction materials, like concrete and steel, to alternative bio-based materials. If used in a long-term setting, this strategy can delay the emission of CO2 embodied in the material, as long as the buildings remain in use [6,7].
In terms of resilience, due to the high levels of rainfall and humidity in El Salvador, and a prevalence of termites and borer beetles, houses built with timber and bamboo, without proper protection from humidity and rain are susceptible to decay [8]. New housing must therefore be appropriately designed for this climate, as well as hurricane and earthquake loads, to be both sufficiently resilient and durable.
A design was developed by Arup for El Salvador which improves upon one of the vernacular construction systems known as bahareque. Traditional bahareque typically consists of a timber and/or bamboo frame clad in a matrix of split or opened bamboo, cane, twigs, or timber strips; and finally plastered in manure or soil, sometimes with straw added for strength [9,10]. Lime may be used for the final plastered finish. The oldest houses tend to have the space in between the matrices infilled with mud. The width of the walls can vary from 100 mm up to 300 mm. The walls are normally elevated on top of a stone or brick upstand to reduce the risk of dampness, have a good roof overhang, and use naturally durable timber or traditionally treated timber and bamboo. Figure 1a illustrates some of the main structural features of traditional bahareque. Although the system is surprisingly seismically resilient [11], it is particularly vulnerable to insect attack and rot and displays a pronounced reduction in seismic performance with age due to this damage [12].
The improved bahareque system for El Salvador “engineers” the traditional by treating the timber frame and bamboo/cane wall matrix against insect attack; replacing the mud plaster with a more durable and stronger cement mortar; and engineering the connection details, making a more durable and stronger form of housing [11]. The system is also known as “improved bahareque”, “engineered bahareque”, “bahareque mejorada”, “bahareque encementado”, and “light cement bamboo frames”; the umbrella name for the technology that encompasses all of these individual systems is “composite bamboo shear walls” (CBSWs) [11]. Systems falling under the same family, albeit with some differences, have successfully been built in Colombia, Ecuador, Nepal, Mexico, Peru, and the Philippines [11]. The system has now also been incorporated into the Colombian and Ecuadorian national building codes and the latest revision of the international bamboo structural design code ISO 22156 [13]. Figure 1b illustrates some of the main structural features of the CBSW system developed for El Salvador. Three prototype houses have successfully been constructed to date. Figure 2 shows one of these houses. Figure 2a is a photograph during construction, prior to plastering with render, and Figure 2b shows the completed house.
The aim of this study is to assess the environmental performance of the CBSW system developed for the El Salvadoran context. The benchmark for comparison is the most commonly constructed, code-compliant, and appropriate system in this context—reinforced concrete hollow block masonry (henceforth referred to as “reinforced masonry”).
The most established method for quantifying and comparing the environmental impacts of products is the life cycle assessment (LCA). In this study, this approach has been used to quantify the global warming potential (GWP) of each housing option in terms of the equivalent kg of CO2 emitted over a 50-year lifespan of the house. To compare like for like, a single-storey house with a 39 m2 internal floor area was chosen as the functional unit. As part of the LCA method, the CO2 emitted during each stage of construction and life of the house was considered. The house with the lower value of total CO2 emissions was then concluded as the better performing option. There are additional environmental performance factors which can be looked at; however, as this study is seeking to respond to the challenge of providing low-carbon housing, the scope was limited to just GWP.

1.2. Life Cycle Assessment (LCA)

LCA is an internationally accepted tool to evaluate the environmental performance of different processes and services [15,16,17]. The application of LCA within the built environment has gained significant traction over the past 20 years following the publication of ISO 14040 [18] and EN 15978 [19,20,21]. Due to its widespread acceptance and use, LCA was therefore the chosen method for this study.
It must be noted that there are some inherent challenges with LCAs, one of them being that there are no universal benchmarking frameworks which exist for comparing results [22]. Comparison between the findings of different LCA studies is made difficult due to the differences in scope and methodology, data uncertainties, and variation in climatic zones [23]. This study compares the GWP of two similar housing typologies in the same climatic zone, and efforts were made to minimise uncertainties so that the comparison of the LCA results can provide a meaningful conclusion. The relative performance of the two systems in this study should therefore give a reliable result, while the absolute performance of either system should be treated with some caution, as they may not be directly comparable to other systems in different contexts conducted with varying methodologies and assumptions.
The LCA in this study is carried out in accordance with the ISO standard 14040 [18], BS EN 15804 [24], and BS EN 15978 [19]. The life cycle of a building is divided up into four different modules, A, B, C, and D, as shown in Figure 3. The modules, as outlined in BS EN 15804 [24], consist of the following:
  • A1 to A5—upfront carbon modules, which include the following:
    a.
    A1 to A3—product modules (raw material supply, transport, and manufacturing).
    b.
    A4 and A5—construction of the building (transport of materials to site and construction/installation process).
  • B1 to B7—in-use modules, which include the following:
    a.
    B1 to B5, use, maintenance, repair, replacement, and refurbishment.
    b.
    B6 and B7, operational modules (energy and water use).
  • C—end-of-life modules.
  • D—beyond-life benefits and loads beyond the system boundaries.
Only certain modules shall be considered in this LCA to reduce uncertainty and provide as accurate a comparison as possible. More detail on reasons for excluding certain modules is discussed in Section 2.2.
ISO 14044 sets out the principles and framework for an LCA [18], which was used as guidance for this study. The framework used consists of four steps, presented in this paper in the following order:
  • Section 2—Materials and Methods—includes step (i) definition of goal and scope, step (ii) material inventory analysis, and step (iii) impact assessment methodology and assumptions.
  • Section 3—Results—includes the outputs of the impact assessment and sensitivity analyses.
  • Section 4—Discussion—includes step (iv): interpretation of results.

1.3. Literature Review

This section outlines some of the relevant literature under the theme of LCAs of affordable housing in the tropics. Most existing research into sustainable alternative construction materials is still focused on commercial or higher-end residential environments and developed countries. A review of LCAs and the environmental impact of buildings conducted in 2009 [25] identified that there were few published papers analysing the environmental impact of buildings in developing countries and that this needed to be addressed as a matter of urgency. Since 2009, there still appears to be a lack of research into alternative bio-based options for affordable and sustainable housing in developing countries.
There have been two studies published which are particularly relevant which assess the sustainability of CBSW systems compared to other alternatives. One study by Murphy et al. [26] was conducted for housing built in Colombia in the 2000s. Section 1.3.1 outlines the relevant conclusions from this. The other study by Salzer et al. [27] assessed housing options in the Philippines and is discussed in Section 1.3.2.

1.3.1. Bamboo Shear Wall Technology in Colombia

The study by Murphy et al. [26] investigated the sustainability of a two-storey code-compliant CBSW system built in the community “Bambusa” in Colombia after the 1999 coffee-growing region earthquake [26]. This system used guadua bamboo for the structural frame and roof, guadua esterilla for the matrix, and timber for the first floor. The internal floor area is 35 m2, and the environment of Colombia is broadly similar to that of El Salvador so is somewhat comparable to the design studied in this paper. Murphy et al. compared the house to a similar hypothetical two-storey code-compliant confined masonry house common in the region, with a concrete first-floor slab and a light timber-framed roof. The LCA method was used, with environmental impact considered using nine eco-indicators (the EI99 methodology) [28]. The LCA was a cradle-to-grave assessment, i.e., it included all life cycle stages, for a 60-year service life.
It was found that the CBSW house performed better, with around half the global warming potential (GWP) of the confined masonry house. It also highlighted that the sand/cement render of the CBSWs accounts for approximately 85% of the wall mass so is a prime area for improving environmental performance.
This study also performed a sensitivity analysis on the different end-of-life scenarios for the bamboo. If the guadua remained in the structure for 100 years and there was no release of the sequestered carbon back into the atmosphere, then the guadua would contribute towards a negative climate change impact, reducing the overall environmental impact of the house.

1.3.2. Bamboo Shear Wall Technology in the Philippines

An LCA comparison of conventional versus alternative bio-based single-storey low-cost housing was conducted for housing in the Philippines [27]. Three bio-based alternatives were compared to a code-compliant reference house. One of the houses was a CBSW system, similar to the one studied in this research but with a bamboo frame and an expanded metal mesh matrix—in the paper, this system was called “cement bamboo-frame”; however, it falls underneath the umbrella technology name “CBSW”. The reference house had a light bamboo roof, but the walls were a reinforced concrete frame with reinforced concrete hollow block infill, with all cells infilled with concrete. This is a typical house built in the region; however, it is noted that it appears to be significantly overdesigned—normally, an RC frame with unreinforced concrete hollow block masonry infill or a system comprising reinforced concrete hollow blocks with, at most, every other cell infilled with reinforcement and concrete (i.e., one cell left hollow in between infilled cells) being sufficient for a one-storey home in even the most highly seismic or typhoon-exposed regions.
The LCA considered life cycle phases A-B-C and D. It excluded phase B1 (use) as this phase has been rarely documented in well-studied exemplary projects or for social housing [27]. Phases B6 (operational energy use) and B7 (operational water use) were also excluded, as air conditioning is mostly unaffordable for the target low-income settlements, and the effect of increased indoor comfort in phases B6 and B7 has yet to be quantified and understood in detail.
It was found that the CBSW system had 74% less GWP compared to the concrete frame with masonry infill reference house, for a service life of 25 years—this was an equivalent of 9.3 t CO2e (tonnes of CO2 equivalent emissions) less. The alternative bio-based building methods scored better in 16/17 impact categories; it was only the land occupation category which performed worse.
Two alternative scenarios were investigated to account for sensitivities in the service life of the houses. To allow for the fact that bio-based materials may not always be constructed to the highest quality, and as such may not last as long, a 10-year service life for the CBSW housing was chosen. This was compared with a longer lifespan of the concrete frame with masonry infill reference house of 25 and 40 years. In scenario 1 (CBSW house—10 years; concrete frame with masonry infill house—25 years), the CBSW house had 50% of the environmental impact in terms of GWP. In scenario 2 (CBSW house—10 years; concrete frame with masonry infill house—40 years), there were only marginal gains of 16.2% of using the CBSW house as an alternative. This highlights the importance of durability in bio-based housing in providing the maximum possible gains in environmental performance.

1.3.3. Bio-Based Materials in LCAs

A critical review of LCA methods of applying biogenic carbon in buildings was conducted by Hoxha et al. [29], which concluded that there is a lack of consensus and guidance for conducting LCAs using bio-based materials. Given that there is not one accepted method for applying biogenic carbon, it has been decided to not include it in the scope of the LCA for this study. However, the review also noted that just considering production (A1 to A5) modules for bio-based materials can lead to significant differences from a full LCA [30,31] and that both extraction during biomass growth and end-of-life are critical aspects to be considered [30,32]. Therefore, although there is not a consensus on how to approach bio-based materials in LCAs, it is still critical to consider the end-of-life scenarios and benefits associated with carbon sequestered during the growth of biomaterials, as these modules contribute significantly to the environmental impact. This assessment presents sequestered carbon emissions separately from the results of the LCA such that the two can be easily distinguished.

2. Materials and Methods

This section describes the inputs and assumptions for the LCA and the impact category used for assessing the environmental impact of each housing option.

2.1. Setting Out the Goal and Scope

2.1.1. Goal and Scope

The goal and scope are outlined in Table 1, along with other key parameters for the LCA and a list of sensitivity studies carried out.

2.1.2. Functional Unit Requirements

To remain aligned with the UN SDGs of attaining appropriate and sustainable housing for all, this study will look at two housing construction options, both of which meet a minimum standard in the following criteria:
  • Adequacy: must provide all that is necessary for a decent quality of life; the house must be well designed to house residents comfortably.
  • Structural safety: must meet national building codes for wind and earthquakes; does not put residents at risk to health issues caused by the building materials/design.
  • Affordability: must be affordable for people living in rural communities in El Salvador.
  • Durability: must have a minimum 50-year design life, during which the building is expected to perform its intended purposes and be serviceable with minimum maintenance and repair.
  • Sustainability: must have a minimal environmental impact over the building’s lifespan, without compromising any of the other four criteria.
The two housing options which meet the functional requirements above and have been selected for this study are:
  • A CBSW design developed for the El Salvadoran context;
  • A reinforced masonry house.
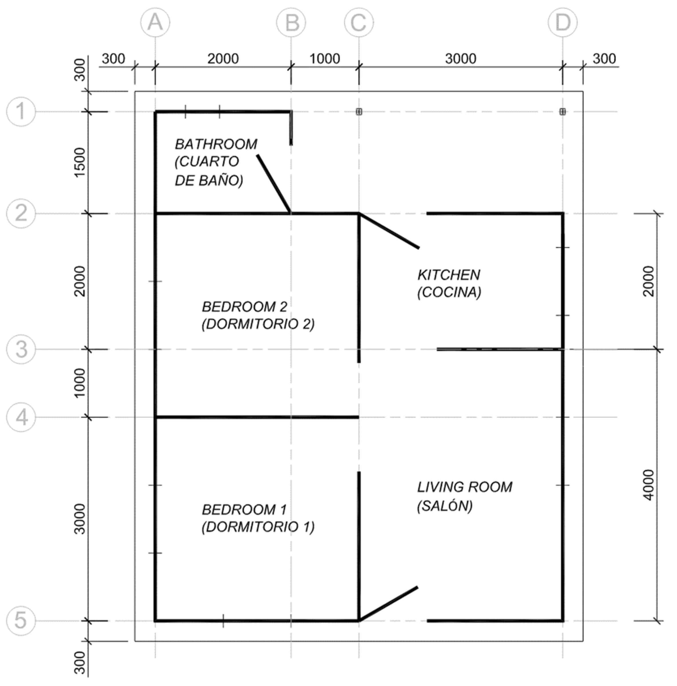
The floor plan for one functional unit is shown in Figure 4. The house is single-storey with an internal area based on the wall centreline of 39 m2. The same plan is assumed for both the CBSW and the reinforced masonry house. The room height to eaves is 2.4 m for both houses.

2.1.3. CBSW Functional Unit

The CBSW functional unit assumed for this assessment is a single-storey five-roomed building, approximately 6 m × 7.5 m; with two bedrooms, one living room, one kitchen, and one bathroom. The foundations of the house are reinforced concrete ground beams under the walls. Three courses of reinforced concrete hollow blocks form the lower part of the walls; and the frame consists of a simple 50 mm × 100 mm graded and treated pine frame, joined with steel nails and straps. Softwood timber is used for the frame because large-diameter bamboo is not widely available in El Salvador. A local type of wild giant cane (Gynerium Sagittatum—known locally as vara de castilla or caña brava) approximately 25 mm in diameter and up to 6 m long is nailed to the frame. [Note that although this material is technically a cane from the Panicoideae family, its properties and looks are very similar to bamboo (from the Bambusoideae sub-family). For this design, small-diameter bamboo culms can be used relatively interchangeably with this cane. For these reasons, the technology interchangeably refers to both bamboo and cane for the wall matrix.] The cane is sourced from local farmers and is treated on site against insects with boron. The cane walls are wrapped in a thin galvanised chicken mesh on both sides. A simple sand and cement mortar is then plastered on both sides of the walls to form the 60 mm thick composite shear walls. The lower halves of the walls are painted with masonry paint to protect against driving rain. The roof consists of lightweight cement fibreboard sheeting screwed down onto the timber purlins and rafters.

2.1.4. Reinforced Masonry Functional Unit

The reinforced masonry functional unit assumed for this assessment has an identical plan layout and building height compared to the CBSW unit. The foundations of the house are reinforced concrete ground beams under the walls, slightly deeper and larger than the CBSWs because of the greater dead and seismic loads (the reinforced masonry wall system has a heavier weight in comparison). The walls consist of concrete hollow blocks, with every 3rd vertical cell infilled with reinforcement and concrete (i.e., two cells left hollow in between); and every other horizontal course infilled with reinforcement and concrete. A light reinforced concrete ring beam forms the roof diaphragm. The roof consists of lightweight cement fibreboard sheeting screwed down onto thin steel gauge Z-purlins. This system is widely used throughout El Salvador; however, the design assumed for this assessment contains more infilled cells and more reinforcement compared to what is commonly constructed, based on Arup’s structural and seismic assessment following international best practice for reinforced hollow block masonry design [33,34].

2.1.5. Design/Service Life

Houses made with biomaterials such as timber and bamboo are significantly more vulnerable to deterioration compared with concrete and reinforced masonry if the design or construction is sub-standard or if there is water ingress. For this reason, many modern “permanent” bamboo buildings unfortunately have short lifespans, sometimes just 10–20 years [35,36]. This not only leaves the homeowners in more vulnerable housing but also reduces the sustainability credentials of the housing. This is one real significant advantage of concrete and masonry; sub-standard design, construction, or maintenance does not tend to have the same magnitude of impact on durability.
For this study, a minimum design (also known as service) life of 50 years has been chosen. Both the CBSW and the reinforced masonry housing options assessed for this study have been carefully designed to achieve this, following international best practice structural design standards and guidelines [13,36,37].
The only building components that are not expected to last 50 years are the cement fibreboard roof sheets. From the designer’s experience, these tend to only last 30–40 years on average due to their exposure to sun and rain. This study has conservatively assumed the roof sheets will need replacing every 30 years.

2.2. Reasoning for Scope Limitations

To make an effective comparison of the GWP of the two housing options, the scope was limited to just the upfront carbon (A1 to A5) and replacement (B4) modules in the LCA. All remaining other modules were excluded due to lack of certainty, availability of information, and relevance towards the overall goal of this study. More detail on the reasons for the inclusion/exclusion of modules are included in the following sub-sections.

2.2.1. Including Upfront Carbon (A1 to A5)

Values for carbon relating to modules A1 to A5 are more well-established compared with later life cycle modules. These modules have therefore been included as inputs. It is normal that some parameters will always remain unknown until the resources for a project are procured, such as the exact source of materials. The variability in unknown parameters in modules A1 to A5 did not have a great influence on the overall end results, so making approximations for these values was deemed acceptable. Furthermore, the designer has the most impact on the upfront carbon of a building (A1 to A5), so it is most relevant to keep the focus of this study around these modules.
The material quantities input to determine A1 to A3 impact are gross quantities, including some wastage. This effectively means that part of the A5 (construction + installation process) emissions, which usually account for wastage during construction, are reflected in LCA modules A1 to A3. Some material specific assumptions have been made:
  • Connection elements have been rounded up to the nearest kg of material.
  • Cane quantities have been increased by 20% to account for damaged cane in the delivery.
  • Boron quantities have been increased by 50% boron to account for liquid lost during the treatment method.
  • Chicken mesh quantities have been increased by 15% to account for offcuts.
  • Offcuts of reinforcement have not been included as wastage, as it is assumed that they can be used for small elements such as shear links of beams.
  • Offcuts of timber have not been included as wastage, as it is assumed that they can be used for infill pieces, stubs, and noggins in the design.
  • Raw materials for the mixes of concrete (cement, sand, and aggregate) have been included in exact amounts, as informed by procurement information from previous project experience. It is likely leftover material from bags of product can be used on other projects, so it is realistic to compare the embodied carbon of the exact amounts used in each building assuming minimal wastage.

2.2.2. Including the Replacement (B4) Module

The replacement module (B4) has been included because there are assumed to be components which will need replacement during the 50-year design life.

2.2.3. Exclusion of Remaining Use Modules (B1 to B3 and B5)

Use (B1): It is not anticipated that the designs of these houses would imply any differences in B1 emissions, which are typically associated with fugitive emissions (e.g., from leakage of refrigerants) and emissions from some products during the in-use stage of the asset (e.g., paints and blown insulation). Therefore, this module has not been included.
Maintenance (B2): Emissions relating to the B2 module would mainly comprise the maintenance of non-structural aspects of the houses. A key aspect of the design for both houses is that they are minimal maintenance because of their low-income context where users may not have access to finances and resources to maintain their homes. Similar to module B1, it was not anticipated that the housing designs would require any significant differences in B2 maintenance emissions, so it was not relevant to include this module in this study. Material emissions associated with additional re-painting of the CBSW house are accounted for in the replacement (B4) module.
Repair (B3): The two designs compared in this study are durable and robust so are not expected to experience damage and hence require repair under normal use.
Regarding repairs after a natural disaster, it is difficult to predict the magnitude and occurrence of these events over the buildings’ 50-year lifespan. Therefore, the level of damage and requirements for repair are not possible to reliably estimate and hence have been excluded. Considering the implications for the comparison in this study, it is likely that after a large earthquake both houses would need re-building.
If repairs were to be considered in some form, it is more likely that the design with the lower GWP would have a better overall environmental performance. The exclusion of the repair (B3) module is therefore assumed to be conservative given that the total GWP associated with completely re-building the CBSW house is likely to be lower.
Refurbishment (B5): Any refurbishment is likely to be similar with both designs, meaning that there would be minimal differences in the associated GWP. Therefore, this module has been excluded.

2.2.4. Exclusion of Operational Carbon (B6 and B7)

The tropical climate in El Salvador where these homes are constructed is typically comparatively hot, and therefore, central heating is unnecessary year-round and has been excluded. Despite this heat, the current designs for both homes provide comfortable, if not slightly warm, internal conditions. Combined with the fact that the targeted communities for these designs typically cannot currently afford air conditioning, it is unlikely that air conditioning would be used. For these reasons, operational energy (B6) has been excluded for both designs. Water consumption (B7) will be identical regardless of the designs, and is not the focus of this study, so this has also been excluded.

2.2.5. Exclusion of End-of-Life Modules (C)

Exactly what the homeowners or the El Salvadoran government decide to do with the houses in 50 years’ time is unknown. There are many hypothetical scenarios which could be investigated, for example, scenario 1: house remains in use vs. scenario 2: house is demolished. Within scenario 2, if the house is demolished, there are further permutations including different ways to demolish, dispose of, or re-use the materials.
Furthermore, there is uncertainty in exactly what the waste processes and disposal methods will be at the end of life of the buildings in 50 years’ time. LCA studies also generally show that the majority of the embodied carbon of structures is associated with modules A1 to A5 [38], and it is reasonable to assume that these designs would demonstrate the same pattern. For all of these reasons, it was considered most appropriate to exclude module C in this analysis.

2.2.6. Exclusion of Beyond-Life Modules (D)

Module D is essentially (in combination with module C3) the “circular economy” module. It provides a carbon emissions quantification of the potential circular benefits of a scheme [39]. Although circular economy principles are considered vital to minimising carbon emissions, there is no anticipated substantial difference between the options being studied, and any absolute assessment in the El Salvadoran context is complicated by a lack of supporting data to estimate the emissions in this stage. Therefore, module D has been excluded.
Biogenic Carbon: UK Industry guidance [40] on reporting biogenic carbon requires the following:
(a)
Report biogenic carbon separately, if only considering modules A1 to A5;
(b)
If considering modules A to C, biogenic carbon should be included within the total value reported.
Module C is being omitted in this study, so option (a) has been followed. Biogenic carbon is calculated and presented separately in Section 3.1.
In line with IStructE guidance [38], the uptake of biogenic carbon should only be reported if the timber originates from a sustainably managed forest with FSC or PEFC (or equivalent) certification to ensure the replanting of felled trees and a long-term climatic benefit. The timber chosen for the CBSW design is sourced from the US and is FSC- or PEFC-certified, and so its biogenic carbon can be considered. The cane sourced locally is not certified—little cane and bamboo is certified internationally, as this is a new field. However, this particular cane species (gynerium saggitatum) grows to maturity in 9 months, and since it is a grass, harvesting a single culm does not kill the plant. In addition, harvesting has generally been observed to be well managed. For these reasons, the cane has been assumed to satisfy the same requirements that a managed timber forest needs to achieve FSC status, and therefore, its biogenic carbon has also been considered in this study. More research is required on cane and bamboo in order to better quantify its sustainability credentials and minimum standards of forest management.

2.3. Life Cycle Inventory

2.3.1. Process and Material Quantities

The primary structural materials required to construct both houses are presented in Table 2 and Table 3, which include the relevant quantities, specifications, and transport assumptions. The data provided for the CBSW design come from Arup designs, matching those already built in El Salvador referenced in previous work [8,14,35]; with some refinement to the quantities of materials in the foundations which were previously of a higher specification than necessary. The data provided for the reinforced masonry house have been calculated as part of this work for a hypothetical house constructed with the same internal floor area and height; the same structural, seismic, and geotechnical performance (designed efficiently to the same structural design standards); and the same design life of 50 years. Non-structural materials and finishes: specifically doors, windows, gutters, electrical wiring; and the non-structural floor slab (totalling 1.6 m3 of concrete); are not anticipated to differ between designs so have been excluded from this assessment. The components in the LCA have been divided into the following categories: foundation; walls; and roof; which will help compare between designs.
Material quantities were entered into One Click LCA (version 0.30.2, database version 7.6) [41], an automated life cycle assessment tool, using the software’s Global Carbon Tool [42]. One Click LCA integrates data from many global EPD (Environmental Product Declaration) platforms. EPDs in the One Click LCA database comply with EN15804 and/or ISO 14025 standards [43]. Assumptions made for each of the modules included in the LCA are outlined in Section 2.3.2, Section 2.3.3, Section 2.3.4 and Section 2.3.5.

2.3.2. (A1 and A3) Raw Material Extraction and Component Manufacturing Assumptions

The values from the Ecoinvent v3.8 database, obtained from European and world data, have been used for these modules, which may not be representative of real processes seen in El Salvador, as they are a global average. The most carbon-intensive processes are common to both buildings (e.g., cement manufacture and steel making), and the assumptions for these remain consistent across both buildings, which means that the GWP of each building can still be compared; however, the absolute value may not be entirely correct because it was not possible to obtain data specific to El Salvador.

2.3.3. (A2 and A4) Transport Assumptions

The transport assumptions for construction materials sourced from within El Salvador have been listed as “national” in Table 2 and Table 3. The average distance from source to site is calculated using the following formula based on the country’s area, which was taken from a previous study from 2015 [44]:
T r a n s p o r t   d i s t a n c e = 76.275 × L n c o u n t r y   a r e a s q . k m 621.59   *
* Note: this trend applies to countries with areas greater than 8870 km2.
This formula provided a value of 138 km for an estimate of the average distance travelled by road from source to site, using an area of 21,041 km2 for El Salvador [45].
All timber components in the CBSW design are made from Southern Yellow Pine imported from the US. Ideally, timber sourced from Central America would be used to minimise carbon emissions related to transport; however, at the time of developing the design, timber sourced from Central America was still not considered sufficiently well-graded to be used as a reliable source, and there were health concerns about the dated chromated copper arsenate (CCA) that was used for treating the timber [8].
Southern Yellow Pine is grown across the US from Texas to New York State and supplied to El Salvador by two different routes: (i) from the Port of Savannah, Georgia, direct to the Port of Acajutla in El Salvador and (ii) from the port of Miami, Florida, to Puerto Barrios, Guatemala, and then by road to El Salvador. A sensitivity study was conducted on different transport routes, and the most carbon-intensive assumption has been included to be more conservative in the environmental assessment of the CBSW design. This was route (ii) shipping to Guatemala, with an estimated total distance by land of 2700 km and distance by sea of 1800 km. The sensitivity study results are shown in Section 3.2. The results of the average of the two scenarios have been used for this LCA.
The transport assumption for cane is listed as “national local”. The cane specified for the design is widely available across the country; therefore, is considerably closer than the national value of 138 km; however, it still requires some transport from the source. A transport distance of 50% of the national distance (i.e., 69 km) has been used, as this was considered reasonable.
Other materials that cannot be sourced from within El Salvador are imported. The exact source of these materials may only be identified at the time of build. These elements have their transport assumption listed in Table 2 and Table 3 as “imported (global)”. The transport distance by sea is normalised using a global average shipping distance from Eastern Asia to El Salvador, as per guidance in RICS [40]. For this study, the port of Guangzhou was chosen as the origin location in Eastern Asia to ship from, and the arrival port was chosen to be the port of Acajutla, El Salvador. This gives a 30,000 km (rounded up from 29,717 km) shipping distance [46]. A distance by road of 138 km [as calculated above using Equation (1)] is used for all “imported (global average)” scenarios.

2.3.4. (A5) Construction Assumptions

Both buildings are designed to be built by hand, requiring no heavy machinery. The energy consumption in the construction (A5) module for both houses is therefore assumed to be zero.

2.3.5. (B4) Replacement Assumptions

The cement fibreboard roof sheets tend to only last 30 to 40 years on average due to their exposure to sun and rain. This study therefore assumes that all the roof sheets will need replacing every 30 years for both designs. In addition, the CBSW homes need re-painting every 5 years to provide adequate protection against rain. Both of these have been included in the replacement (B4) module of the LCA.

2.4. Life Cycle Impact Assessment

The GWP in kg of carbon dioxide equivalent (kg CO2e) of the inventory data was assessed. The results are directly comparable since the functional units for both houses are simply the emissions per building unit. Refer to Section 2.1.2 for more information regarding the functional unit.
The One Click LCA database (as described in Section 2.3) contained GWP factors for all the components and raw materials, except for the cane, which were calculated and manually input.
The A1 to A3 GWP value of the cane was calculated by Edwin Zea Escamilla using the CML2016 [47] and TRACI [48] methods, and both found this to be approximately 0.17 kg CO2e per kg of cane. A4 transport was assumed to be 0.01 kg CO2e per kg of cane. The upstream database for the constituent elements was the Ecoinvent v3.8 database. The GWP of the cane was calculated based on the following assumptions:
  • It grows in the wild, not from managed plantations. No fertiliser, irrigation, or management of plantations is conducted.
  • Harvesting is conducted manually via machete.
  • The rotation period (time to maturity) is 9 months.
  • Wastage is around 20% (including rotten culms and offcuts).
  • Drying is completely natural, to around 14–16% moisture content.
  • It is treated with disodium octoborate tetrahydrate to achieve a boric acid equivalent retention of 4 kg/m3.
  • Treatment and processing are conducted on site where the houses are built.
The CO2 stored by the timber and cane (biogenic carbon) is not included in the scope of the LCA. It is unknown what will happen to the buildings at the end of their lives, and the overall benefits/loads of bio-based materials vary greatly depending on the scenario chosen, as shown in previous investigations [26], so biogenic carbon has been calculated and reported separately from the main LCA carbon emission modules (A1 to A5 and B4). Dependent on the scenarios chosen, biogenic carbon has the potential to provide additional evidence to support the CBSW house as a low-carbon solution, so different inputs have been investigated as a sensitivity with the results shared in Section 3.1.

2.5. Biogenic Carbon Calculation

Biogenic carbon values were calculated using the WWF Biogenic Carbon Footprint Calculator (2020) [49]. The following assumptions were made:
  • The carbon content of the timber and cane was assumed to be 0.5 kg carbon per kg dry mass.
  • The biogenic carbon is assumed to be stored for 50 years, the buildings’ service life.
  • The “Cool Temperate/Pine all (Pinus)” option was selected for the timber.
  • The “Tropical moist/wet/Bamboo (Phyllostachy pubescens)” option was chosen for the cane, since this was considered the best option to represent the cane. Cane and bamboo do not have root decay once the biomass is chopped down for use, compared to trees, so it is more appropriate to use a biogenic carbon value for a bamboo. The rotation cycle of this species of cane is only 1 year compared to bamboo which has a rotation cycle of 5 years (as defined in the WWF Tool Database [49]), so using a value for bamboo with a longer rotation cycle is likely to give a conservative estimate for the cane.
The biogenic carbon storage values are shown in Table 4, along with the total mass of biomaterials in the CBSW house. The density of the cane is taken as 818 kg/m3 [50] (this is the material density, as opposed to the volumetric density which would include the hollows of the cane in the overall volume). The density of the timber is taken as the value for Southern Yellow Pine, 510 kg/m3 [51]. Biogenic carbon is thus calculated by multiplying the mass of timber or cane by its biogenic carbon storage value.
A sensitivity study was conducted where different end-of-life scenarios were considered. Scenario 1, the best case, is where the house remains in place after the 50-year service life, and thus, there is Long-Term Fixation (LTF) of the carbon sequestered in the building. Scenario 2 is where the house reaches its 50-year service life but is then demolished. A similar assumption on what happens to the biomaterials at their end of life is applied as in the study by Murphy et al. (2004) [26]. The end-of-life assumption is that 50% of the timber and cane elements are recovered on demolition of the house and are re-used locally or are sent to landfill, and 10% of their carbon is released as CO2 and 1% as CH4. The other 50% are assumed to be burnt locally releasing all carbon back into the atmosphere as CO2. The results of this sensitivity study are presented in Section 3.1.
This study does not use dynamic LCA methods that quantify the reduction in global warming impacts of long-term biogenic carbon storage and the associated delayed re-release of greenhouse gases (CO2 or CH4) into the atmosphere.

3. Results

The total GWP of all modules included in this LCA (A1 to A5 and B4) is 7.33 t CO2e for the CBSW house and 11.49 t CO2e for the reinforced masonry house, a difference of 4.17 t CO2e, equivalent to a 36% reduction in the GWP.
Figure 5 shows how the carbon emissions are distributed across the categories (foundations, walls, and roof). The majority of GWP can be attributed to the walls for both houses. The walls account for 52% of the total GWP of the reinforced masonry house and 48% of the total GWP of the CBSW house. The extra embodied carbon in the reinforced masonry house walls accounts for the majority (59%) of the difference between the two houses—2.47 of the 4.17 t CO2e difference. The difference between the two GWPs of the roofs is 0.64 t CO2e (accounting for 15% of the total difference), and in the foundations the difference is 1.05 t CO2e (25% of the total difference).
Figure 6 shows a breakdown of the GWP for the materials used in each house. The largest contributor for both houses is concrete, making up 2.30 t CO2e for the CBSW house and 7.87 t CO2e for the reinforced masonry house. Concrete is used for the foundations of both houses: blinding concrete, structural concrete ground beams, and concrete hollow blocks. Significant quantities of additional concrete are required for the reinforced masonry house because the walls include both the concrete hollow blocks themselves and the structural concrete used to infill the steel-reinforced cells of the wall. The additional concrete in the reinforced masonry house accounts for an additional 5.57 t CO2e of GWP.
The next greatest contributor in the CBSW house is the cement mortar/render, which accounts for 2.05 t CO2e (28% of total GWP of the CBSW). This is approximately six times higher than the GWP of the mortar/render in the reinforced masonry house (0.34 t CO2e) because of the comparatively large amount of cement render used to plaster the walls. The cement render accounts for 5.07 m3 of the total 5.25 m3 total mortar/render required in the CBSW house, compared to only 0.88 m3 of pointing mortar required in the reinforced masonry house.
For both houses, the cement fibreboard roof sheeting also has a significant impact, a GWP of 1.69 t CO2e for both (23% contribution for the CBSW house and 15% for the reinforced masonry house). The roof sheeting has been assumed to need replacing every 30 years, so its embodied carbon over the 50-year period of the LCA is doubled.
Steel in the reinforced masonry house has a GWP of 1.59 t CO2e, approximately 3.5 times more than that of the steel used in the CBSW house (amounting to 0.45 t CO2e)—the reinforced masonry house requires approximately 860 kg more steel. Most of the difference is seen in the amounts of reinforcement required for each house: 927 kg versus 259 kg, which is mostly concentrated in the walls. Approximately 13 times more (510 kg vs. 40 kg) reinforcement is required in the typical build-up for the reinforced masonry house walls. The remainder of the difference is seen in the amount of reinforcement in the foundations. Approximately two times (200 kg) more reinforcement is required in the foundations of the reinforced masonry house due to deeper and larger foundations compared with the CBSW construction. This is because the reinforced masonry house is heavier overall due to the reinforcement and concrete in the walls weighing more than the lighter timber frame and plastered cane matrix of the CBSW house.
The timber and cane account for 0.69 t CO2e in the CBSW house excluding any biogenic carbon. The remaining “other” material in the CBSW house includes the damp-proof membrane and the paint, which have the smallest GWP impact of 0.15 t CO2e over the lifespan of the house, which also accounts for re-painting every 5 years.
Cement is the component which contributes most towards the embodied carbon in both houses. It is used as a raw material to produce the concrete hollow blocks, mortar, concrete infill, and the concrete foundations; and for the CBSW house, also for the cement render. In total, the CBSW house contains 48% less cement: 3.63 tonnes vs. 6.95 tonnes. The corresponding GWP values are 3.38 vs. 6.48 t CO2e, a difference of 3.10 t CO2e.

3.1. Biogenic Carbon

The amount of CO2 sequestered by regrowth cane and timber to replace that which was harvested is 1.1 t CO2e over the 50-year lifespan of the building. If considering the benefits of this in the LCA, then the total GWP of the CBSW house reduces from 7.4 t CO2e to 6.3 t CO2e. The total GWP of the CBSW house then changes from 36% to 46% less than that of the reinforced masonry house.
A sensitivity study was conducted to investigate the effect of the chosen service life and end-of-life scenario of the building on the resulting biogenic carbon for the CBSW house. The results of this sensitivity study are included in Table 5. Scenario 1 is what was used to form the best-case scenario conclusion—this is where the house remains in place after 50 years, and there is Long-Term Fixation (LTF) of the biogenic carbon in the structure. In scenarios 2 to 6, the house gets demolished after its service life, and 50% of the timber and cane material is recovered and sent to local reuse centres or landfill (where 1% is released as CO2, and 1% is released as CH4); the remaining 50% is burned, and this carbon is released as CO2. Scenarios 2, 3, 4, 5, and 6 differ in the overall service life: 50, 45, 25, 10, and 1 year, respectively.
The results show that for less than a 45-year service life, the net biogenic carbon ends up being a positive value, and thus, there is no net positive impact of using biomaterials in the construction. This is due to the relatively large impact of the carbon released into the atmosphere due to the chosen end-of-life scenario: 0.39 t CO2e released in landfill/re-use and 0.56 t CO2e due to the burning of 50% of the building’s timber and cane. However, even considering this, and looking at the worst-case scenario where the building is only in place for one year before being demolished, the CBSW house still has a 23% lower GWP impact when compared to the reinforced masonry house.

3.2. Sensitivity on Transport Distances

As Southern Yellow Pine grows in many states across the US, depending on where the Southern Yellow Pine is sourced, the road distance from source to port in the US will vary. The effect of this has been investigated in this sensitivity study, with the results shown in Table 6 below.
For route (i)—where the timber is shipped from the Port of Savannah, Georgia, directly to El Salvador, Port of Acajutla—the shortest distance would be from within the state of Georgia itself, and the maximum distance would be from Texas. For route (ii)—from the Port of Miami, Florida, shipping to Puerto Barrios, Guatemala, then travelling by land to El Salvador—the shortest route would be from within the state of Florida, and the longest route would be from New York state. These are shown in Table 6 as the distances by land from plantation to port 1, US. The total distance by land is then the combination of the distance travelled across the US; the distance from the second port to the vendor in El Salvador; and the average distance from the vendor to the community.
The resulting total GWP of the CBSW house is shown in Table 6. The results show that the maximum difference occurs between route (ii) max. land route, 7.65 t CO2e, and route (i) min. land route, 7.18 t CO2e. This gives a total variability of 0.47 t CO2e or 6% when compared to the total GWP of the CBSW house. The GWP impact of land travel is 22 times higher than sea travel, which explains why the scenario with the longest distance travelled by road governs the worst case.
Although the 6% range of results was significant, it was not enough to influence the overall conclusion.

4. Discussion

4.1. Limiting Scope of LCA

If considering the environmental impacts of the end-of-life (C) modules, those of the reinforced masonry house are likely to be greater mainly due to the large amounts of concrete going to landfill. The CBSW house still has a considerable amount of concrete in the foundations, and cement render and mortar in the walls, but overall, there are less of these raw materials (cement, sand, and aggregate) in this build option. In addition, due to the way the panels are constructed, is it possible to re-use or burn the timber and cane in the CBSW house for energy, further reducing the amount of construction waste that goes to landfill.
It is recommended that further research be conducted into the additional benefits in life cycle modules (C) and (D) of the CBSW house compared with other feasible housing solutions. This could add further evidence to the discussion of using alternative bio-based designs such as this in the affordable housing sector.
The decision to exclude the (B) in-use modules in the current context of affordable housing in El Salvador is justified, as explained in Section 2.2.3 and Section 2.2.4. However, the future is uncertain, and it could be that the economic situation of users improves dramatically, and user activities could have a higher carbon footprint. For example, users may want to install cooling systems, in which case the relative thermal efficiency of the buildings and operational carbon might play a more significant part in the overall LCA results. This was not considered in this study; however, it could be investigated as a sensitivity in future work.

4.2. Biogenic Carbon

4.2.1. End-of-Life Considerations and Delayed Re-Emission of CO2

Section 3.1 outlines the sensitivity study conducted on biogenic carbon, which took a similar approach to the study referenced in Section 1.3.1 by Murphy et al. [26], which considered two end-of-life scenarios:
  • Long-Term Fixation (LTF).
  • In total, 50% of the material being burnt as biofuel, and the remaining being reused or sent to landfill, of which 10% is released as CO2 and 1% is released as CH4.
It is realistic to consider scenario 1, where the carbon sequestered by the timber and cane remains fixated in the long term for as long as the house remains in place. There is proof of traditional bahareque housing lasting for over 100 years, so there is potential for the modern and more durable CBSW house design to last a similar if not longer amount of time with its improved technology.
The second scenario resulted in 0.87 t CO2e, 82% of the 1.06 tonnes of atmospheric CO2 that was sequestered during the 50-year service life, being released back into the atmosphere. This gives a net benefit of only −0.19 t CO2e over a 50-year service life, which is not significant; however, it could be argued that this is still an added benefit due to the delayed re-emission of CO2 back into the atmosphere over this 50-year storage period, which is not quantified in this study.

4.2.2. Forest Type

Another input to the WWF Biogenic Carbon Footprint Calculator [49] is the species and the forest type. The sequestration rate of CO2 and the decomposition of residue leftover from harvesting vary depending on the species and the type of forest chosen. If the timber was instead Western spruce-pine sourced from a boreal forest in Canada, the biogenic carbon storage would be +0.54 kg CO2e/kg timber instead of the −0.46 kg CO2e/kg timber assumed for the Southern Yellow Pine in this study (which was based on values for a Pine Forest in a cool temperate environment). This is due to the rotation period of the trees in a boreal forest being 100 years (compared to 39 years for the pine in a cool temperate environment). The slower growth rate in this colder climate would mean a slower sequestration rate of CO2. So, it is important to consider what the source of the biomaterials is in future LCAs when comparing similar bio-based alternatives to different forms of construction.

4.3. Environmental Impact Factors

This study only looked at the GWP associated with each house and did not consider any other environmental impact factors. Future LCA studies should consider other environmental impact factors and costs in combination with the GWP to obtain a more holistic picture of the overall environmental, social, and economic impact of each housing option.
The two other studies referenced in Section 1.3—those investigating the environmental performance of the CBSW housing in Colombia and the Philippines (Murphy et al. [26] and Salzer et al. [27])—did however consider other environmental impact factors.
Murphy et al. [26] used the Eco-indicators 1999 (EI99) and assessed nine impact categories, including carcinogens, respiratory organics, respiratory inorganics, ozone layer depletion, acidification/eutrophication, ecotoxicity, minerals (depletion), fossil fuel consumption, and global warming potential. In all nine impact categories, the CBSW house performed better, an average of 60% of the environmental impact of the confined masonry house across all categories.
Salzer et al. [27] used the global warming potential (GWP) along with cumulative energy demand (CED) and the multi-impact indicator Impact2002+. When looking just at the CBSW housing compared with the conventional concrete frame with reinforced masonry infill house, they saw a 67% reduction in impact when considering the CED, and the Impact2002+ results showed reductions of 80% for human health, 54% for ecosystem quality, 75% for climate change, and 75% for resources. Sixteen of the seventeen mid-point categories of Impact2002+ confirmed an overall reduction potential of the CBSW housing, with the only exception being the land use category where it performed worse than the conventional concrete frame with masonry infill house.
As both studies compared a CBSW house to a conventional code-compliant masonry-type house, in a similar low-cost environment, it is appropriate to use these as a guiding reference. Although these studies were performed at different times and in different countries, it is likely that the same typology of CBSW house in El Salvador would follow a similar overall pattern. It can therefore be argued that the CBSW house investigated in this study would also perform better in terms of all other environmental impact categories when compared to the reinforced masonry reference house. When considering the land use impact category, if the timber is sourced from an FSC-approved source in the US and the cane is grown wild in the local area, it is possible that the materials used for the CBSW housing built in El Salvador would also perform better in this category, unlike the CBSW housing in the Philippines [27], which performed marginally worse.

4.4. Data Inputs

A large amount of the data inputs to the life cycle inventory (LCI) are based on using datasets available through One Click LCA [41]. Unfortunately, there are gaps in the data, as such datasets are not universally complete for all materials in buildings. This is particularly significant for developing countries [23], where the manufacturing processes and fuel sources may all vary [52]. This study is therefore limited by not having the most representative country-specific data for construction materials supplied locally in El Salvador.
Furthermore, an assumption has been made on the globally imported materials, as covered in Section 2.3.2. It is not easy to obtain more accurate results for LCA inputs at such an early stage before the decision has been made to start procuring materials, so there will always be some uncertainty relating to the associated emissions of imported materials.

4.5. An Efficient Reference House Design

This study was considered a conservative model, using a hypothetical reinforced masonry house design which is very structurally efficient. This approach was chosen to make it directly comparable to the CBSW house in terms of structural performance in an earthquake, reducing the number of variables and giving a fairer overall comparison of performance of the two typologies.

4.6. Comparison with Other Assessments of CBSW Systems

When comparing to the two studies showing the CBSW houses built in Colombia [26] and the Philippines [27], the overall conclusions were the same—an improved environmental performance when compared to a conventional code-compliant masonry-type reference house. Although it is not possible to directly compare absolute GWP values between different studies, as there are a lot of variables and unknowns across the LCA studies, it is still useful to use these as a benchmark and to compare the relative improvement across the studies.

4.6.1. Colombian CBSW House

When it comes to the housing built in Colombia [26], the structural elements of the guadua house (also a similar CBSW typology with bamboo as the frame) had around half the environmental impact of the confined masonry house. In the climate change impact category, the CBSW house had a reduction of 40% when compared to the confined masonry house, for a service life of 60 years. This included all stages of the life cycle. This study concludes that the CBSW house has 36% lower GWP compared to the confined masonry house. A further reduction of 38% GWP is seen when biogenic carbon is included for a service life of 50 years and a similar end-of-life scenario is considered (burning of 50% of the timber and cane and local reuse/landfilling of the other 50%). The service life of 50 years in this study is comparable to the 60-year life of the Colombian house [26], and the relative difference between the CBSW house and the confined masonry house in both of these papers is similar when all stages are considered: 40% reduction (for the Colombian house) and 38% reduction.

4.6.2. Filipino CBSW House

For the similar housing built in the Philippines [27], the cement–bamboo frame technology (also a similar CBSW typology, with bamboo as the frame) had a reduction in the GWP of 74.4% (9.3 tonnes of CO2e), and this 74.4% difference was seen in the case where both the CBSW and the concrete frame and masonry infill house were in place for 25 years. This included all stages of the life cycle apart from B1, B6, and B7. When comparing this study to the Philippines study [27], we can consider scenario 4 of the biogenic carbon sensitivity, where the service life of the CBSW house is 25 years. The reduction in the GWP is only 31% in this study, which is much less than the 74.4% in the study based in the Philippines.
When looking at the absolute values for GWP, the CBSW house has a GWP of about 3 t CO2e for a 25-year service life and 7 t CO2e for a 10-year service life, when including all stages apart from B1, B6, and B7. This is a difference of about ~4 t CO2e due to a 15-year reduction in service life. This study also considered service lives of 25 and 10 years (scenarios 4 and 5) in the sensitivity on biogenic carbon, but the change in the absolute GWP went from 7.94 t CO2e to 8.39 t CO2e, a difference of ~0.45 t CO2e. The greater variation in the GWP with service life in the Philippines study suggests that a different methodology may have been used for biogenic carbon counting, as the main cause for a difference in the GWP over time is due to biogenic carbon sequestration.
Additionally, the less pronounced difference between the two houses in this study may be due to the use of a very efficient reinforced masonry house design used in this study for comparison.

5. Conclusions

When looking at affordable, safe, and adequate housing options for the rural context of El Salvador, the CBSW house has been demonstrated to be the option with the lowest GWP when compared to a traditionally constructed reinforced masonry house. The equivalent GWP reduction in the CBSW house was 36% compared to the reinforced masonry house. When considering biogenic carbon, the CBSW house has the potential to have 45% less GWP than the reinforced masonry house. Furthermore, a potential public policy aiming to support the future development of affordable housing programs should have this kind of low-carbon housing solution as a cornerstone, thus promoting the provision of a safe, reliable solution without compromising the achievement of the net-zero built environment goals. The LCA also does not include any added potential benefits seen in the end-of-life and beyond-life modules, which, if considered, would further strengthen the basis for the CBSW house being the most sustainable option.

Author Contributions

Advice on methodologies and calculations relating to the GWP of the cane were provided by E.Z.E.; data curation, E.Z.E.; formal analysis, L.Y.; funding acquisition, S.K.; methodology, E.Z.E.; project administration, S.K.; resources, S.K. and E.Z.E.; supervision, S.K.; validation, M.K.; writing—original draft, L.Y.; writing—review and editing, S.K., M.K. and E.Z.E. All authors will be informed about each step of manuscript processing including submission, revision, revision reminder, etc., via emails from our system or assigned Assistant Editor. All authors have read and agreed to the published version of the manuscript.

Funding

The authors received funding support from Arup’s internal Global Challenge programme. The fund targets projects that aim to design, develop, and implement solutions to the most fundamental needs of society: energy; food security; water; sanitation; and, in this case, shelter. The ideas supported by Global Challenge from concept design to implementation are technically robust, sustainable, and affordable, with the potential to scale.

Data Availability Statement

The raw data supporting the conclusions of this article can be made available by the authors on request.

Acknowledgments

The authors would like to thank Luis Felipe Lopez and David Trujillo for providing information about the same typology of CBSW houses they have been involved with designing and building in the Philippines and Colombia. This has allowed for a more meaningful comparison of the same typology in different contexts.

Conflicts of Interest

The authors declare no conflicts of interest.

References

  1. UN-Habitat. Priorities 2022–2023: Adequate Housing, Cities and Climate Change and Localising the Sustainable Development Goals; UN-Habitat: Nairobi, Kenya, 2022. [Google Scholar]
  2. United Nations SDG 11. Available online: https://sdgs.un.org/goals/goal11 (accessed on 1 June 2024).
  3. Arce, R.; Guevara, P. Estado de la Vivienda en Centroamérica; Habitat for Humanity: San José, Costa Rica, 2016. [Google Scholar]
  4. Solera, E. Characterization of the Dry Corridor in Central America’s Northern Triangle—Executive Summary; Habitat for Humanity: San José, Costa Rica, 2021. [Google Scholar]
  5. WFP El Salvador Country Brief April 2022—Situation Report. Available online: https://reliefweb.int/report/el-salvador/wfp-el-salvador-country-brief-april-2022 (accessed on 1 June 2024).
  6. Asif, M. 2—Sustainability of timber, wood and bamboo in construction. In Sustainability of Construction Materials a Volume in Woodhead Publishing Series in Civil and Structural Engineering; Khatib, J.M., Ed.; Woodhead Publishing: Cambridge, UK, 2009; pp. 31–54. [Google Scholar]
  7. Escamilla, E.Z.; Habert, G.; Daza, J.F.C.; Archilla, H.F.; Fernández, J.S.E.; Trujillo, D. Industrial or Traditional Bamboo Construction? Comparative Life Cycle Assessment (LCA) of Bamboo-Based Buildings. Sustainability 2018, 10, 3096. [Google Scholar] [CrossRef]
  8. Kaminski, S.; Lawrence, A.; Coates, K.; Foulkes, L. A low-cost vernacular improved housing design. Special Issue on Humanitarian Engineering. In Proceedings of the Institution of Civil Engineers; Thomas Telford Ltd.: London, UK, 2016; Volume 169, pp. 25–31. [Google Scholar]
  9. Kaminski, S.; Lawrence, A.; Trujillo, D. Design Guide for Engineered Bahareque Housing; International Network for Bamboo and Rattan (INBAR): Beijing, China, 2016. [Google Scholar]
  10. López, M.; Bommer, J.; Méndez, P. The Seismic Performance of Bahareque Dwellings in El Salvador. In Proceedings of the 13th World Conference on Earthquake Engineering, Vancouver, BC, Canada, 1–6 August 2004. [Google Scholar]
  11. Kaminski, S.; Grant, D.; Harries, K.; Trujillo, D.; Lopez, L. Seismic performance of whole culm bamboo structures and recommendations for design using ISO 22156. In Proceedings of the 18th World Conference on Earthquake Engineering 2024 (18WCEE 2024), Milan, Italy, 30 June–5 July 2024. [Google Scholar]
  12. Kaminski, S.; Lopez, L.; Trujillo, D.; Escamilla, E. Composite bamboo shear walls—A shear wall system for affordable and sustainable housing in tropical developing countries. In Proceedings of the Society for Earthquake and Civil Engineering Dynamics (SECED 2023) Conference, Cambridge, UK, 14–15 September 2023. [Google Scholar]
  13. International Organization for Standardization (ISO). ISO 22156:2021 (en)—Bamboo Structures—Bamboo Culms—Structural Design, 2nd ed.; ISO: Geneva, Switzerland, 2021. [Google Scholar]
  14. El Salvador Project. Low-Cost Earthquake-Resistant Housing Project Report; Imperial College London: London, UK, 2012. [Google Scholar]
  15. Rashid, A.F.A.; Yusoff, S. A review of life cycle assessment method for building industry. Renew. Sustain. Energy Rev. 2015, 45, 244–248. [Google Scholar] [CrossRef]
  16. Fava, J.; Baer, S.; Cooper, J. Increasing Demands for Life Cycle Assessments in North America. J. Ind. Ecol. 2009, 13, 491–494. [Google Scholar] [CrossRef]
  17. Ortiz, O.; Castells, F.; Sonnemann, G. Sustainability in the construction industry: A review of recent developments based on LCA. Constr. Build. Mater. 2009, 23, 28–39. [Google Scholar] [CrossRef]
  18. International Organization for Standardization (ISO). ISO14040:2006 Environmental Management—Life Cycle Assessment—Principles and Framework, 2nd ed.; ISO: Geneva, Switzerland, 2006. [Google Scholar]
  19. BS EN 15978:2011; Sustainability of Construction Works—Assessment of Environmental Performance of Buildings—Calculation Method. BSI: London, UK, 2011.
  20. Anand, C.K.; Amor, B. Recent developments, future challenges and new research directions in LCA of buildings: A critical review. Renew. Sustain. Energy Rev. 2017, 67, 408–416. [Google Scholar] [CrossRef]
  21. Roberts, M.; Allen, S.; Coley, D. Life cycle assessment in the building design process—A systematic literature review. Build. Environ. 2020, 185, 107274. [Google Scholar] [CrossRef]
  22. Mattinzioli, T.; Lo Presti, D.; Jiménez del Barco Carrión, A. A critical review of life cycle assessment benchmarking methodologies for construction materials. Sustain. Mater. Technol. 2022, 33, e00496. [Google Scholar] [CrossRef]
  23. Bahramian, M.; Yetilmezsoy, K. Life cycle assessment of the building industry: An overview of two decades of research (1995–2018). Energy Build. 2020, 219, 109917. [Google Scholar] [CrossRef]
  24. BS EN 15804:2012+A2:2019; Sustainability of Construction Works—Environmental Product Declarations Product Category of Construction Products. BSI: London, UK, 2012.
  25. Khasreen, M.M.; Banfill, P.F.G.; Menzies, G.F. Life-Cycle Assessment and the Environmental Impact of Buildings: A Review. Sustainability 2009, 1, 674–701. [Google Scholar] [CrossRef]
  26. Murphy, R.J.; Trujillo, D.; Londono, X. Life Cycle Assessment (LCA) of a Guadua House. In Proceedings of the Simposio Internacional Guadua 2004, Pereira, Colombia, 27 September–2 October 2004. [Google Scholar]
  27. Salzer, C.; Wallbaum, H.; Ostermeyer, Y.; Kono, J. Environmental performance of social housing in emerging economies: Life cycle assessment of conventional and alternative construction methods in the Philippines. Int. J. Life Cycle Assess. 2017, 22, 1785–1801. [Google Scholar] [CrossRef]
  28. Ministry of Housing, Spatial Planning and the Environment. Eco-Indicator 99 Manual for Designers|A Damage Oriented Method for Life Cycle Impact Assessment; PRé Sustainability (Ministry of Housing, Spatial Planning and the Environment Communications Directorate): The Hague, The Netherlands, 2000. [Google Scholar]
  29. Hoxha, E.; Passer, A.; Saade, M.R.M.; Trigaux, D.; Shuttleworth, A.; Pittau, F.; Allacker, K.; Habert, G. Biogenic carbon in buildings: A critical overview of LCA methods. Build. Cities 2020, 1, 504–524. [Google Scholar] [CrossRef]
  30. Fouquet, M.; Levasseur, A.; Margni, M.; Lebert, A.; Lasvaux, S.; Souyri, B.; Buhé, C.; Woloszyn, M. Methodological challenges and developments in LCA of low energy buildings: Application to biogenic carbon and global warming assessment. Build. Environ. 2015, 90, 51–59. [Google Scholar] [CrossRef]
  31. Sandin, G.; Peters, G.M.; Svanström, M. Life cycle assessment of construction materials: The influence of assumptions in end-of-life modelling. Int. J. Life Cycle Assess. 2014, 19, 723–731. [Google Scholar] [CrossRef]
  32. Levasseur, A.; Lesage, P.; Margni, M.; Samson, R. Biogenic Carbon and Temporary Storage Addressed with Dynamic Life Cycle Assessment. J. Ind. Ecol. 2013, 17, 117–128. [Google Scholar] [CrossRef]
  33. The Masonry Society. TMS 402/602-22: Building Code Requirements and Specification for Masonry Structures; The Masonry Society: Longmont, CO, USA, 2022. [Google Scholar]
  34. American Society of Civil Engineers (ASCE). Seismic Evaluation and Retrofit of Existing Buildings, ASCE41-22; ASCE: Reston, VA, USA, 2022. [Google Scholar]
  35. Kaminski, S. Engineered Bamboo houses for low-income communities in Latin America. Struct. Eng. 2013, 91, 14–23. [Google Scholar]
  36. Kaminski, S.; Harries, K.; Lopez, L.; Trujillo, D. Durability of Whole Culm Bamboo: Facts, misconceptions and the new ISO 22156 Framework. In Proceedings of the International conference on non-conventional materials and technologies (NOCMAT) 2022, Virtual, 7–23 June 2022. [Google Scholar]
  37. BS 8500-1: 2015+A2:2019; Concrete—Complementary British Standard to BS EN 206: Part 1: Method of Specifying and Guidance for the Specifier. BSI: London, UK, 2020.
  38. Gibbons, O.P.; Orr, J.J.; Archer-Jones, C.; Arnold, W.; Green, D. How to Calculate Embodied Carbon, 2nd ed.; IStructE Ltd.: London, UK, 2022. [Google Scholar]
  39. Greater London Authority. London Plan Guidance—Whole Life-Cycle Carbon Assessments; Greater London Authority: London, UK, 2022. [Google Scholar]
  40. RICS. Whole Life Carbon Assessment for the Built Environment, 2nd ed.; The Royal Institution of Chartered Surveyors (RICS): London, UK, 2017. [Google Scholar]
  41. One Click LCA. Available online: https://www.oneclicklca.com (accessed on 1 June 2024).
  42. Life Cycle Carbon—Global. Available online: https://oneclicklca.zendesk.com/hc/en-us/articles/360016978800-Life-Cycle-Carbon-Global (accessed on 1 June 2024).
  43. Databases Available in One Click LCA. Available online: https://oneclicklca.zendesk.com/hc/en-us/articles/360015064399-Databases-available-in-One-Click-LCA (accessed on 1 June 2024).
  44. Escamilla, E.Z.; Habert, G. Global or local construction materials for post-disaster reconstruction? Sustainability assessment of twenty post-disaster shelter designs. Build. Environ. 2015, 92, 692–702. [Google Scholar] [CrossRef]
  45. El Salvador Summary. Available online: https://www.britannica.com/summary/El-Salvador (accessed on 1 June 2024).
  46. Sea Route & Distance. Available online: http://ports.com/sea-route/port-of-guangzhou-canton,china/port-of-acajutla,el-salvador (accessed on 1 June 2024).
  47. CML-IA Characterisation Factors. Available online: https://www.universiteitleiden.nl/en/research/research-output/science/cml-ia-characterisation-factors (accessed on 1 June 2024).
  48. Tool for Reduction and Assessment of Chemicals and Other Environmental Impacts (TRACI). Available online: https://www.epa.gov/chemical-research/tool-reduction-and-assessment-chemicals-and-other-environmental-impacts-traci (accessed on 1 June 2024).
  49. Biogenic Carbon Footprint Calculator for Harvested Wood Products. Available online: https://www.worldwildlife.org/projects/biogenic-carbon-footprint-calculator-for-harvested-wood-products (accessed on 1 June 2024).
  50. Chan, C. The Mechanical Properties of the Local Cane In El Salvador and Its Utilisation in Wall Matrix Structure of Bespoke Housing. Master’s Thesis, Coventry University, Coventry, UK, 2014. [Google Scholar]
  51. Forest Products Laboratory. Wood Handbook: Wood as an Engineering Material, General Technical Report FPL-GTR-190, Centennial Edition; United States Department of Agriculture (USDA): Madison, WI, USA, 2010; Chapter 16; p. 5.
  52. Ding, G.K. Life Cycle Assessment in Buildings: An Overview of Methodological Approach. Encycl. Renew. Sustain. Mater. 2020, 4, 462–475. [Google Scholar]
Figure 1. (a) Traditional Latin American bahareque; (b) modern CBSW system developed for El Salvador [9].
Figure 1. (a) Traditional Latin American bahareque; (b) modern CBSW system developed for El Salvador [9].
Sustainability 16 07602 g001
Figure 2. Photographs showing prototypes built in 2012 of the CBSW system developed for El Salvador [9,14]: (a) prior to plastering with render; (b) completed house.
Figure 2. Photographs showing prototypes built in 2012 of the CBSW system developed for El Salvador [9,14]: (a) prior to plastering with render; (b) completed house.
Sustainability 16 07602 g002
Figure 3. Life cycle modules, adapted from Figure 6 in EN 15978 [19].
Figure 3. Life cycle modules, adapted from Figure 6 in EN 15978 [19].
Sustainability 16 07602 g003
Figure 4. Floor plan of the CBSW house. An identical floor plan is assumed for the reinforced masonry house.
Figure 4. Floor plan of the CBSW house. An identical floor plan is assumed for the reinforced masonry house.
Sustainability 16 07602 g004
Figure 5. LCA results for each house showing the different impacts of each part of the house (foundation, walls, and roof). (a) GWP in kg CO2e for both houses. (b) Contribution analysis: percentage contribution of each part of the house—foundations, walls, and roof—as a proportion of the overall GWP of each house.
Figure 5. LCA results for each house showing the different impacts of each part of the house (foundation, walls, and roof). (a) GWP in kg CO2e for both houses. (b) Contribution analysis: percentage contribution of each part of the house—foundations, walls, and roof—as a proportion of the overall GWP of each house.
Sustainability 16 07602 g005
Figure 6. LCA results (A1 to A5 and B4) for each house showing a breakdown of different components of the house.
Figure 6. LCA results (A1 to A5 and B4) for each house showing a breakdown of different components of the house.
Sustainability 16 07602 g006
Table 1. Goal, scope and key parameters for this LCA; and sensitivity studies carried out separately.
Table 1. Goal, scope and key parameters for this LCA; and sensitivity studies carried out separately.
GoalTo evaluate and compare the environmental performance—solely in terms of global warming potential (GWP)—of adequate, safe, and affordable single-storey houses in El Salvador
Service life50 years
Functional unitSingle-storey house with 39 m2 internal floor area, which meets functional unit requirements outlined in Section 2.1.2
Phases of LCA included in scopeUpfront carbon (A1 to A5)
Replacement (B4)
Phases of LCA excluded from scope 1Use (B1), maintenance (B2), repair (B3), and refurbishment (B5)
Operational carbon (B6 and B7)
End-of-life carbon (C)
Beyond-life carbon (D)
Impact categoriesGlobal warming potential (kg CO2e)
SensitivitiesTransport assumptions
End-of-life scenarios
Biogenic carbon
1 Justifications for excluding these phases in the scope of the LCA are included in Section 2.2.
Table 2. Components and quantities for the CBSW design.
Table 2. Components and quantities for the CBSW design.
Building
Element
ComponentQuantityUnitsSpecificationSource
FoundationsBlinding concrete0.25m31:3:9 mix *National
Structural concrete3.68m31:2:4 mix *National
Reinforcement0.028m3Deformed Grade 70National
Blockwork0.57m31:3:5 mix *National
Pointing mortar0.048m31:4 mix *National
WallsBlockwork0.98m31:3:5 mix *National
Structural concrete (infill)1.04m31:2:4 mix *National
Reinforcement0.005m3Deformed Grade 70National
Pointing mortar0.082m31:4 mix *National
Timber1.84m3Grade 2 Southern Yellow Pine, 0.05 CA-C-treatedImported (US)
Cane0.66m3Gynerium SaggitatumNational local
Boron3.95kgDisodium octaborate tetrahydrateNational
Chicken mesh122m213 × 13 × 0.7 galvanised steelNational
Cement render5.07m31:5 mix *National
Steel plates0.0012m3Grade A36Imported (global)
Nails3021No.2.7 × 50 mm **Imported (global)
Nails2037No.3.75 × 75 mm **Imported (global)
Nails180No.3.75 × 37.5 mm **Imported (global)
Paint27m2White masonry paintImported (global)
Damp-proof membrane8.75m2Heavy-duty plasticImported (global)
RoofTimber1.46m3Grade 2 Southern Yellow Pine, 0.05 CA-C-treatedImported (US)
Steel plates0.0014m3Grade A36Imported (global)
Nails860No.3.75 × 75 mm **Imported (global)
Purlin screws220No.6 × 60 mm **Imported (global)
Roof screws383No.6 × 150 mm **Imported (global)
Cement fibreboard roof sheeting0.77m36 mmNational
* Mix ratios presented for concrete are cement–sand–aggregate. For a 1:3:9 mix, this represents 1 part cement, 3 parts sand, and 9 parts aggregate, by dry bulk volume. For pointing mortar and cement render, the mix ratios presented are cement–sand. Cement spec is Ordinary Portland Cement 42.5, sand is sharp, and aggregate is 20 mm stone. ** Nails are hot-dip-galvanised; screws are stainless steel.
Table 3. Components and quantities for the reinforced masonry house.
Table 3. Components and quantities for the reinforced masonry house.
Building ElementComponentQuantityUnitsSpecificationSource
FoundationsBlinding concrete0.29m31:3:9 mix *National
Structural concrete5.28m31:2:4 mix *National
Reinforcement0.053m3Deformed Grade 70National
Blockwork1.50m31:3:5 mix *National
Pointing mortar0.13m31:4 mix *National
WallsBlockwork7.52m31:3:5 mix *National
Structural concrete (infill)8.17m31:2:4 mix *National
Reinforcement0.065m3Deformed Grade 70National
Pointing mortar0.63m31:4 mix *National
RoofSteel0.041m3275 N/mm2Imported (global)
Roof screws383No.6 × 150 mm **Imported (global)
Cement fibreboard roof sheeting0.77m36 mmNational
* Mix ratios presented for concrete are cement–sand–aggregate. For a 1:3:9 mix, this represents 1 part cement, 3 parts sand, and 9 parts aggregate, by dry bulk volume. For pointing mortar and cement render, the mix ratios presented are cement–sand. Cement spec is Ordinary Portland Cement 42.5, sand is sharp, and aggregate is 20 mm stone. ** Nails are hot-dip-galvanised; screws are stainless steel.
Table 4. Biogenic carbon storage and quantities for the CBSW house, for a 50-year service life. Biogenic carbon storage values calculated using the WWF Carbon Footprint Calculator [49].
Table 4. Biogenic carbon storage and quantities for the CBSW house, for a 50-year service life. Biogenic carbon storage values calculated using the WWF Carbon Footprint Calculator [49].
ComponentTotal Mass in Building (kg)Biogenic Carbon Storage (kg CO2e/kg)Carbon Sequestered (kg CO2e)
Cane540−0.68−367
Timber1683−0.46−772
Table 5. Results from sensitivity study on different end-of-life scenarios for the CBSW house.
Table 5. Results from sensitivity study on different end-of-life scenarios for the CBSW house.
Scenario123456
Service life (years)50504525101
Carbon sequestered (t CO2e)−1.14−1.14−0.96−0.27+0.22+0.50
Carbon released into atmosphere (t CO2e)0.00+0.94+0.94+0.94+0.94+0.94
Net biogenic carbon (t CO2e)−1.14−0.19−0.01+0.68+1.16+1.44
Total GWP of CBSW house (t CO2e)6.267.207.398.078.568.84
% reduction in GWP of reinforced masonry house compared to CBSW house46%37%36%30%26%23%
Table 6. Sensitivity study on transport distances for Southern Yellow Pine shipped from the US. Two route options were studied: route (i)—where the timber is shipped from the Port of Savannah, Georgia, directly to El Salvador, Port of Acajutla; route (ii)—from the Port of Miami, Florida, shipping to Puerto Barrios, Guatemala, then travelling by land to El Salvador. For each route, (i) and (ii), a maximum and minimum distance by land from plantation to port 1, in the US, are also included in the sensitivity scenarios, along with an average across all distances.
Table 6. Sensitivity study on transport distances for Southern Yellow Pine shipped from the US. Two route options were studied: route (i)—where the timber is shipped from the Port of Savannah, Georgia, directly to El Salvador, Port of Acajutla; route (ii)—from the Port of Miami, Florida, shipping to Puerto Barrios, Guatemala, then travelling by land to El Salvador. For each route, (i) and (ii), a maximum and minimum distance by land from plantation to port 1, in the US, are also included in the sensitivity scenarios, along with an average across all distances.
Route (i)Route (ii)Average
MaxMinMaxMin
Distance by land (km)Plantation to port 1, US161048023008701315
Port 2 to vendor8080380380230
Vendor to community6060606060
Total1750620274013101605
Distance by sea (km)54305430180018003615
Total GWP of CBSW house (t CO2e)7.457.187.657.317.40
% difference+1%−3%+3%−1%-
Disclaimer/Publisher’s Note: The statements, opinions and data contained in all publications are solely those of the individual author(s) and contributor(s) and not of MDPI and/or the editor(s). MDPI and/or the editor(s) disclaim responsibility for any injury to people or property resulting from any ideas, methods, instructions or products referred to in the content.

Share and Cite

MDPI and ACS Style

Young, L.; Kaminski, S.; Kovacs, M.; Zea Escamilla, E. A Comparative Life Cycle Assessment (LCA) of a Composite Bamboo Shear Wall System Developed for El Salvador. Sustainability 2024, 16, 7602. https://doi.org/10.3390/su16177602

AMA Style

Young L, Kaminski S, Kovacs M, Zea Escamilla E. A Comparative Life Cycle Assessment (LCA) of a Composite Bamboo Shear Wall System Developed for El Salvador. Sustainability. 2024; 16(17):7602. https://doi.org/10.3390/su16177602

Chicago/Turabian Style

Young, Louisa, Sebastian Kaminski, Mike Kovacs, and Edwin Zea Escamilla. 2024. "A Comparative Life Cycle Assessment (LCA) of a Composite Bamboo Shear Wall System Developed for El Salvador" Sustainability 16, no. 17: 7602. https://doi.org/10.3390/su16177602

APA Style

Young, L., Kaminski, S., Kovacs, M., & Zea Escamilla, E. (2024). A Comparative Life Cycle Assessment (LCA) of a Composite Bamboo Shear Wall System Developed for El Salvador. Sustainability, 16(17), 7602. https://doi.org/10.3390/su16177602

Note that from the first issue of 2016, this journal uses article numbers instead of page numbers. See further details here.

Article Metrics

Back to TopTop