Next Article in Journal
Waterlogged Area Identification Models Based on Object-Oriented Image Analysis and Deep Learning Methods in Sloping Croplands of Northeast China
Previous Article in Journal
Introducing a Novel Concept for an Integrated Demolition Waste Recycling Center and the Establishment of a Stakeholder Network: A Case Study from Germany
Previous Article in Special Issue
Assessing Language Vitality and Sustainability of Minor Chinese Dialects: A Case Study of Dapeng, a Hakka–Cantonese Mixed Dialect
 
 
Font Type:
Arial Georgia Verdana
Font Size:
Aa Aa Aa
Line Spacing:
Column Width:
Background:
Article

The Collapse of the Vaults of the Ambato Matriz Church in the 1949 Earthquake: A Response with a Technical Approach

by
Fabián S. López-Ulloa
1,*,
Esther Redondo Martínez
2,
Ignacio Javier Gil Crespo
3,
Andrea Goyes-Balladares
1 and
Luis Enrique Chávez-Rubio
1
1
Facultad de Diseño y Arquitectura, Universidad Técnica de Ambato, Ambato 180102, Ecuador
2
Escuela de Arquitectura, Ingeniería y Diseño, Universidad Europea de Madrid, 28670 Villaviciosa de Odón, Spain
3
Centro de Estudios José Joaquín de Mora, Fundación Cárdenas, 28039 Madrid, Spain
*
Author to whom correspondence should be addressed.
Sustainability 2024, 16(10), 3918; https://doi.org/10.3390/su16103918
Submission received: 26 February 2024 / Revised: 19 April 2024 / Accepted: 26 April 2024 / Published: 8 May 2024

Abstract

This research examines the structural behavior of the central vault of the Matriz church that collapsed during the 1949 earthquake in Ambato, Ecuador. Following the disaster, the church and Episcopal Palace were demolished. The central vault lacked buttresses and had large cracks two years before the collapse. A study was conducted using graphic restitution and the theory of limit analysis of structures to analyze the mechanical behavior of the central vault. The aim was to provide a technical explanation for the cause of the collapse beyond the impact of the earthquake. The limit analysis of structures is a tool that determines the technical stability conditions of a masonry structure using graphic statics. In this case, the respective checks of the structural behavior could be made, concluding that the structural ensemble of the central vault was unstable and could have collapsed at any moment, not necessarily due to an earthquake. The article is based on the research project “Architectural analysis of the central nucleus of Ambato between 1895 and 1949: styles, types, techniques, losses, and continuities”, which was conducted at the Universidad Técnica de Ambato, Ecuador, from 2021 to 2023.

1. Introduction

At 2:08 p.m. on Friday, 5 August 1949, a 6.8 magnitude earthquake occurred in the center of the Ecuadorian mountain range. The earthquake was reported as maximum intensity X [1]. Six minutes later, it was repeated with an intensity of 7.2 degrees [2]. This event is historically known as the Ambato earthquake. This earthquake had its epicenter in the town of Chacauco, near the city of Pelileo, which was completely devastated, even with changes in the ground levels [3]. After the destruction of Pelileo, the survivors decided to establish a new city nearby. As for Ambato, it suffered minor damage, and some buildings partially collapsed, including the Matriz church, which was constructed between 1904 and 1933 (Figure 1 and Figure 2). Technical records indicated that approximately 19,200 km2 were affected, causing 6000 deaths, 1000 injuries, 225,000 displaced persons, and 100,000 homeless [4].
The Matriz church was the most iconic building in Ambato until the earthquake of 1949. It was designed and supervised by the German architect Pedro Brüning, who was both an Oblate and Lazarist priest. This grand building was constructed using stone and was commissioned by the Catholic Church and the bishopric of Ambato. The church’s design is a blend of Romanesque and Renaissance styles, resulting in an eclectic style.
The Matriz Church was built on the same site where the previous colonial church was located, on the north front of Montalvo Park, after it was overthrown. The name “Matriz” was related to its ecclesiastical category. The new Matriz church was designed to be a cathedral, as the inhabitants of Ambato in 1900 believed that the Province of Tungurahua would become a diocese in the future.
In 1947, the Diocese of Ambato was established, and the Matriz church was finally elevated to the rank of cathedral. However, the people of Ambato continued to refer to it as Matriz church, and that is how it is still remembered.
The structure in question is of monumental character and was built with quarry stone walls featuring five aisles, carved cornices, capitals, columns, and other details, all made with the local stone known as Pishilata [7]. The vaults, on the other hand, were constructed with pumice stone. During an earthquake, the central vault and a portion of the domes of the side aisles collapsed, but the walls and tower remained standing.
Cevallos suggests, “Possibly the problem with the building might have originated from the original foundations before Brüning and also from the problems that occurred during the construction of the central vault, where arbitrarily, the buttresses were not built. This last aspect bothered Brüning so much that he almost abandoned the project… time proved him right” [8].
The literature about the incorrect construction of the Matriz church has led to speculation about the possible causes that contributed to the collapse of its vaults, in addition to the impact of the earthquake. Therefore, a study was conducted to address the question of whether the lack of buttresses was the cause of the instability of the central vault. It also considered the fact that other churches in the same city and province, which had buttresses, were able to withstand the 1949 earthquake.
The technical tools utilized were grounded on the graphic restoration of the church and the principle of limit analysis of structures. This approach enabled the identification of technical stability conditions of the structure based on its geometric condition using a static graph. These specialized tools facilitated a detailed analysis, which provided a technical explanation for the poor execution of the work.

2. Materials and Methods

2.1. Historical Data

As part of the research project, a geometric survey of a building was conducted to enable the limit analysis of structures. The survey involved obtaining a complete graphic representation of the building. The project focused on a church and involved researching its construction history, including its background, predecessors, authors, designers, techniques, materials, and all the human and mechanical aspects involved in its execution. The resulting product was a complete representation of the church.
The information was gathered from various sources such as archives, bibliography, cartography, plans, documents, historical photographs, and other related sources. To obtain an accurate reference of the location, several measurements were taken on the site using a total station to determine the precise reference points on the block.
The research team found valuable information from various sources such as the Diocesan Curia of Ambato, the National Zonal Historical Archive of Tungurahua, academic repositories with undergraduate and graduate works, as well as old photographs from public and private sources [9,10,11]. These digital resources provided a considerable number of previously unpublished photographs that enriched this part of the general research. This information was processed into a descriptive matrix of elements and spaces to interpret the building and form its constructive hypothesis.

2.2. Constructive Hypothesis

To determine the constructive characteristics, organization of spaces, construction techniques, materials, and style, the graphic resources were interpreted for the constructive hypothesis.
The existing evidence, verified through historical images, showed a spatial rhythm that allowed the structuring of the central aisle. However, since complete information about the structure was not available, the reconstruction was limited to the extent that the hypothesis allowed.
Upon comparing the facade plan of the church with one of the clearest pictures taken during its demolition, it was observed that certain additions were made. A mezzanine was added to the lower floor segment, and the upper segment was expanded.
In the lower floor segment, compared to the original floor plan, the height of the main entrance was doubled while retaining the alignment of the windows with the top of the entrance.
As a result, two doors were added on each side of the main entrance at the added height. In the upper segment, a space was added above the five projected and constructed windows that housed the Lamb of God symbol, and the coats of arms of the Cardinal and the Province of Tungurahua (Figure 3).
Despite the difference between what was drawn and what was built, the graphical scale of Brüning’s facade allowed for the provision of images and the implementation of photogrammetric processing to transfer measurements to the interpretive drawings (Figure 4). The original drawing shows overlapping axes that were used to extract the dimensions of the aisle. The structural configuration of the plan emerges from the axes of this facade, and photographs of the interior before and after the earthquake are also considered.

2.3. Graphic Restitution

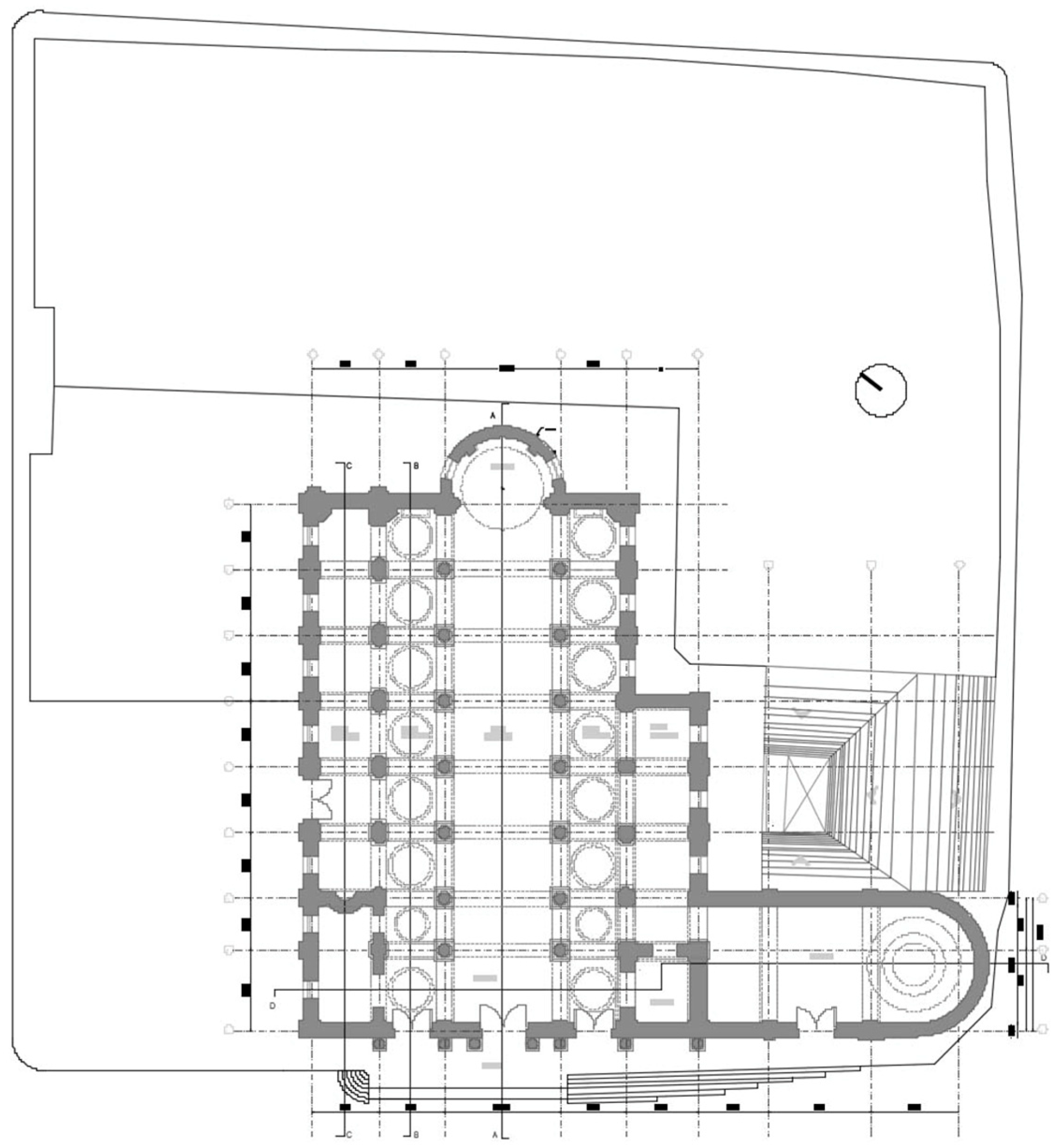
The graphic restitution product was created using photogrammetry. It involved a geometric survey of the church’s general plan (Figure 5), roof plan, and the elevations of all exterior façades of the church, including all its architectural components, such as the aisles, tower, and the transversal side chapel (Figure 6).
In addition, complete transversal sections of the church were made: one in the narthex, high choir, and transverse chapel complex (Figure 7), one in the center of the church, and one in the presbytery. All plans were properly dimensioned and included a location plan relative to the block and the plan of the city’s central core. All included the respective graphic scale references, north direction, and other relevant markings for its correct reading.

2.4. Structural Analysis

2.4.1. The State of the Construction of the Matriz Church

The documented testimonies refer to the central aisle of the church being built without buttresses, and therefore, they discuss the idea of poor workmanship. This theory was graphically confirmed with the historical photographs, which could put the structure at high risk of collapse. Furthermore, the cracking of the structure was noticed two years prior to its collapse.
In 1947, during an inspection of the exterior part of the vault, some ecclesiastical authorities noticed the presence of deep cracks. Monsignor Salvador Siino, the auditor of the nunciature, instinctively exclaimed, “God willing, Ambato does not have a strong earthquake because this construction will not withstand a strong seismic movement” [12].
In a building of these characteristics, buttresses are of fundamental importance to resist the thrusts of the vaults. For example, in the same Matriz, the slender wall of the façade in the segment corresponding to the vaults did not collapse, probably due to its configuration with lateral triangular segments, which, beyond architecturally composing the façade, could also act as buttresses. Thus, the slender composition of the central aisle without apparent buttresses was nothing more than a house of cards waiting for a breath to come crashing down.
[13]
It is evident from the pictures of the church’s exterior that the building was altered in height. Additional sections were added to the two main levels of the structure, which is of interest for the structural analysis. Also considering that the buttresses were not built according to the original plan.

2.4.2. The Damage to the Matriz Church after the Earthquake

Physicist Alberto Semanate assessed the damages of the Matriz, stating the following:
The side walls and aisle have shifted away from their original positions, while the central vault has crumbled. The cause of the destruction was not solely due to the intensity of the earthquake, but rather the pressure exerted on the reinforcement, which resulted in a powerful compression of the side walls.
[3]
Regarding the aisle and dome of the transversal chapel that started from the church tower and ran along the entire right façade, they suffered minor damage, the lantern was severely damaged, and the dome had fractured ribs.
[14]
After the technical evaluation of the church, it was considered that the damages were reparable [2]. However, days later, the decision was made to definitively demolish the entire building to construct the current cathedral church, designed by architect Luis Andino [10], following the new canons of modern movement architecture. It was inaugurated in 1954.

2.4.3. The Theory of Limit Analysis of Structures

From a technical perspective, several methods exist for evaluating structural stability based on static graphics parameters. The analysis of the safety theorem or the theory of the limit analysis of structures follows the principles developed by scientist Jacques Heyman, whose long-standing foundations can be studied through extensive bibliography [15,16,17].
In general, it considers the following: with any given structure, if it is possible to find an equilibrium situation compatible with the loads that does not violate the limit condition, the structure will not collapse. Applied to brickworks, this means that if it is possible to draw a thrust line within the structure, the structure will not sink.
The power of the theorem lies in the fact that the thrust-line equilibrium situation can be chosen freely. A line, or a set of lines, can apply safety conditions to each of the sections it crosses, thus obtaining a lower limit for the geometric safety coefficient, considering that all structures at least have that safety coefficient.
A structural analysis using graphic methods is carried out on brick arches built with composite and heterogeneous materials. The analysis assumptions are as follows: there is zero tensile strength, compressive strength can be considered infinite, and there can be no displacement between the voussoirs since the friction and weight are very high [18]. It is believed that the thrust lines are the way in which the internal stresses generated travel through the structure [19].
According to Huerta [18], “this theorem establishes that an arch will not collapse if it is possible to draw a thrust line inside it. Small variations in boundary conditions or internal compatibility (contact between voussoirs, etc.), which lead to cracking and abrupt variations in the position of the thrust line (significantly altering internal forces), do not affect the stability of the arch, which will withstand these aggressions from the environment without problems”. The thrust line is obtained through graphical statics.
In the graphical statics, the lines are directly affected by variations in loads, either by self-weight or additional loads. Robert Hoock, in 1670, mentions that if the forces follow the shape of the inverted catenary, they are reduced to the minimum section, and the arch does not collapse, meaning that the geometry of the structural element can contain the stress line and maintain stability [20]. It is essential to distinguish between the resistance line and the pressure line, which is understood as the envelope of the thrust directions [19].
To verify stability, the angle formed by the direction of the resultant in each section plane must be within the limits defined by a right cone whose axis is normal to the contact surface at the center of thrusts, and whose angle is twice the angle of friction between the solids. The intersection of the resultant directions in each section is tangent to the line called the line of inclinations [19].
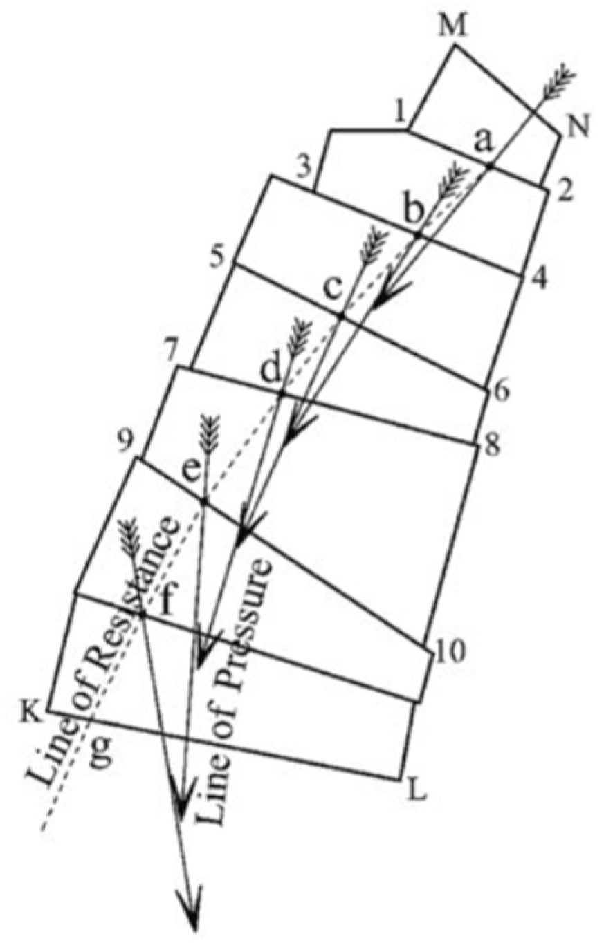
According to the conceptual scheme proposed by Moseley (Figure 8), there is a differentiation between the resistance line and the pressure line. However, the directions of the successive thrust forces are arbitrary and not properly proportioned according to the weights of the corresponding stone blocks. In order to determine the equilibrium state of a structure, it is essential to have knowledge of both lines—the thrust line and the line of inclinations [20].
Due to the existence of an infinite number of physically admissible failure directions, the principle of stationary potential energy emerges as the most powerful tool for analyzing masonry arches in their limited state of equilibrium, where the vertical rupture is the most critical failure direction, as it results in the highest value of minimum thickness needed for an elliptical arch to support its own weight [21].
There are two distinguishable physically admissible methods regarding the minimum thrust lines, one using a polar coordinate system and the other using Cartesian coordinates. Both depend on the stereotomy applied to the arch, specifying that the response for the minimum thickness of symmetrical masonry arches is not unique and depends on the adopted coordinate system [22].
The resolution in canonical geometric models is immediate, simple, and very intuitive. The possibility of particularizing the arches allows for an exploration of equilibrium possibilities, highlighting their direct relationship with geometry [23].
This theorem is widely used in Europe for the analysis of its many architectural monuments; although it has less history in America, it has become a useful tool for understanding the structural behavior of masonry structures, aside from computer programs. It maintains the authenticity of the empirical structure, and at the same time, respects its mechanical characteristics and resistance principles [24].

2.5. Vault Section Selection and Analysis

This study consisted of analyzing a section of the central aisle, based on the photographic and historical evidence mentioned above.
In the case of the demolished Matriz church, and once the documentation regarding the collapse of its central vault in the 1949 earthquake was analyzed, it was considered necessary to study its mechanical behavior.
Therefore, the purpose of this research was to demonstrate through the graphic static method the relationship between the stability, safety, and geometry of the structure, to establish a possible technical response to the collapse, beyond the impact of the earthquake.
The central barrel vault with lunettes, made of pumice stone (Figure 9), apparently had the same characteristics in seven of its eight sections, ending its head in an apse, and its foot in the narthex equivalent to the eighth section. This previous section articulated the entire composition of the façade wall and the tower from where the front lateral aisle of the church started, referring to finishes that remained standing after the earthquake.
This study conducted on the Matriz church analyzed the mechanical behavior of its central aisle using the theory of the limit analysis of structures. This approach helped in understanding the stability conditions of brick buildings in their limited state, which can be useful in preventing eventual collapses. This study also involved a graphic simulation to understand the peculiarities of the church’s mechanical behavior and the possible causes that could have led to poor work execution.

3. Results

3.1. Analysis of the Vault

3.1.1. Section Considered

The central aisle, with similar characteristics along its entire length, had the challenge of spanning the largest free span of 10.20 m. Since it was the most structurally critical section of the church, due to it not having buttresses, a standard section was considered for analysis, corresponding to one of the seven sections with a transverse measurement of 5.80 m (Figure 10), which is the most common measurement.

3.1.2. Analysis of the Section

In the section considered for analysis, a simplified structural study was conducted, applying the theory of the limit analysis of structures. In this section, half of the vault was divided into 13 parts, from which the area and the center of gravity were obtained. With these geometric data and with the specific weight of pumice of 9 kN/m3, it was possible to obtain the lines of action and the value of the weights of each vault section. To obtain the weight, the area is multiplied by the length of the section considered (5.80 m) and by the specific weight of the stone.
For a total weight of the vault of 152.58 kN, with a thrust between 106.72 and 130.50 kN, it was found that infinite thrust lines can be drawn, resulting in a stable vault, prior to the equilibrium study of the other structural elements (Figure 11).
Next, the equilibrium of the rest of the elements of the church was studied: the side domes (C), the transverse wall between them (MT), and the longitudinal wall separating the central aisle from the lateral one (ML) (Figure 12).
A partial equilibrium analysis was performed on the elements of the lateral aisle that affect the equilibrium of the central aisle, namely, the dome and the transverse wall. With a thickness of 20 cm, the weight of a quarter of the dome was obtained, equivalent to 13.61 kN, and an average thrust line was obtained, which fits a little tight in the section of the dome (for this reason only one is drawn), which generates a thrust of 11.12 kN.
Regarding the weight of the transverse wall as 120.90 kN, it is possible to draw many thrust lines inside it. Two quite extreme lines were drawn, which in turn generate very variable thrusts, between 30.47 and 113.51 kN (Figure 13).
Finally, the thrusts of the central aisle were unified with those of the dome and the transverse wall, and the effect of the longitudinal wall, between the central aisle and the side aisle. This wall has been divided into five parts, due to changes in thickness, and to divide the areas that remain, above and below the application of the thrusts of the dome, and of the transverse wall.

3.1.3. General Graphics

Below are the general graphics of the analyzed structural set (Figure 14, Figure 15, Figure 16 and Figure 17).
The following drawing represents the force polygons that carry all the thrust lines of the analyzed structural set. That is, those that represent the thrusts of the central vault, plus those of the vertical weight of the longitudinal wall on the dome, and those of the transverse wall. Also, those of the horizontal thrusts of the half dome (very small compared to those coming from the central vault) and with the thrust lines of the transverse wall (in this wall they are quite larger, and very variable, as seen before) (Figure 15).
In the following drawing, it is possible to see the thrust lines in the study area in detail. Here, it is seen more clearly that the thrust line, obtained with the combined action of the central vault and the walls, comes out in the upper area. That is, on the side aisle (dome and transverse wall) (Figure 16).
The dome has a small effect, since its weight, and consequently, its thrust, is very small in relation to the rest of the church. The wall has a much larger effect and, since it can be considered to have a very variable value, it is able to “restore” the equilibrium of the wall, centering the line of thrust in such a way that it passes through the base of the pillars.
The following drawing details the area in which the line of thrust leaves the wall, right between the central vault and the lateral dome. In this place, it is verified that the building is not stable (Figure 17). Here, it is possible to see that the green line, with maximum thrust, leaves of the section of the wall, and the purple line, with minimum thrust, passes right through the limit.

3.1.4. Structural Response

The structural analysis performed on the virtual reconstruction of Ambato’s Matriz Church confirmed that from a technical standpoint, using the limit analysis of structures tool, its apparent construction deficiency could have led to a potential collapse at any moment, as had been evidenced by its significant cracking two years before its collapse. Furthermore, if an external factor such as an earthquake could intervene, the imminent risk of collapse would increase even further.
It is also important to note that the analysis model was carried out in a continuously repeating segment of the church along the central vault, considering the structural ensemble of the central vault, pillars, and adjacent domes. It was found that there was no possibility to adjust the distribution of the force polygon in the analyzed structural configuration, causing there to be no safety margin for the central vault. Indeed, as was verified, the thrust lines in the vault, despite being built with pumice stone, generated significant compression in the supporting structure.
It was possible to determine, with the force polygons, and therefore with the thrust lines, how these lines exited from the base of the vault, demonstrating that there was not a sufficient equilibrium of forces in these elements to contain them. The risk of collapse was imminent. It is evident that the construction of buttresses would have contributed to the stability of the analyzed set.
With the absence of buttresses, which are fundamental in masonry works, a structural element devoid of reinforcements was obtained, which could collapse at any moment, with the action of an earthquake bringing an even higher risk.

4. Discussion

Having a reliable graphic restitution document of the Matriz church has allowed us to take a real approach to the constructive conditions of the church before the 1949 earthquake. Nowadays, many records of built constructions are made [25]; it is an indispensable resource to have an architectural survey of a building’s current state—both for structural analysis and for new architectural intervention proposal—that is, a digital resource for multiple uses, within which there is also the social context.
Digital technology currently allows both photography and computer images to be equivalent graphic formats, both in terms of technical resources and the evocative values relating to built heritage. Likewise, the balance between reliable surveying, visual expression, and social contextualization, as the general purposes of these images, has given rise to three basic categories: realistic documentation, post-edited views and reconstructions, and reinterpretation exercises [26].
In the case of the Matriz church, the social context was very important for it to be built, and in that sense, with respect to an emblematic missing building, this study was a contribution to the recovery of the historical architectural memory of the city. In this case, we also responded, in a technical way, to a potential constructive problem that the church always had.
In the case of this structural analysis, the historical research and the graphic restitution of the Matriz church gave the basis for its realization. The limit analysis of structures method used to analyze the stability of arches, vaults, and domes is based on the equilibrium of forces in cross-sections of the structure. By dividing the vault or arch under loading conditions, this method allows for determining the maximum forces acting on the structure and, therefore, an evaluation of its stability.
Despite its simplifications and limitations, this method remains a valuable tool in the analysis of these structures; it is often complemented by other approaches to obtain more precise and complete results. Nowadays, its application continues, for studying the stability of historical buildings and making decisions for their restoration or structural rehabilitation [27]. It is therefore a valid tool for use in the field of built heritage.
The result with the limit analysis of structures method, was that the thrust lines were not within the base of the central vault structure, causing its structural instability. It should be noted that, despite the constructive problem of the Matriz church, it remained standing and in operation, apparently in optimal conditions.
This problem can occur in these masonry structures for a long time, until their collapse. Hence, the importance of the use of this tool, for the assessment of structures that present cracks or hinges, cracks that are natural in a material that does not resist traction [28], and that can occur in construction, either due to poor execution or due to the simple arrangement of the structure.
Through the limit analysis of structures, the opinions that served as the basis for its realization could be verified; namely, the historical assertions regarding the possible technical construction deficiencies, and the fact that buttresses were not built to resist the thrusts of the central vault—a potential factor contributing to its collapse in the 1949 earthquake.
What type of buttresses, and what their optimal location would have been, may be the product of new research.
The work carried out constitutes a contribution to construction history in Ambato, and to the mechanical behavior of this type of building, for stylistic comparative analyses as well as preventive measures for similar existing buildings, especially in a seismic concentration zone. It is also a contribution towards the appropriate conservation of built heritage, which is considered a sustainable resource due to its long durability and recyclability.
Its development led to the creation of a research line for the Faculty of Design and Architecture at Universidad Técnica of Ambato, focusing on early 20th-century architecture in the central Sierra of Ecuador.

5. Conclusions

The testimony regarding the absence of buttresses in the construction of the Matriz church, along with the cracks present in the central vault in 1947, was fundamental in being able to provide a technical response to its mechanical behavior, through the limit analysis of structures.
As predicted in 1947, it was a matter of time before its collapse, which finally occurred in the 1949 earthquake.
With the analysis carried out, it was technically proven that the central vault of the church was not stable and that it could have collapsed at any moment.
However, the result remains an approximation, since it was obtained with an interpretation of the church’s construction. That is, virtually reconstructing it with the outlined graphic testimonies.
Since masonry constructions tend to settle over time, presenting cracks, especially with the presence of earthquakes, it is important to observe their mechanical behavior through the limit analysis of structures before any intervention. So, it is also possible to detect possible construction failures, as was the case with the Matriz church, where its structural failure was not corrected in time to prevent its collapse.

Author Contributions

Conceptualization, F.S.L.-U.; methodology, F.S.L.-U., E.R.M. and I.J.G.C.; software, E.R.M. and F.S.L.-U.; validation, E.R.M. and F.S.L.-U.; formal analysis, E.R.M., I.J.G.C. and F.S.L.-U.; investigation, F.S.L.-U.; resources, F.S.L.-U.; data curation, E.R.M., I.J.G.C. and F.S.L.-U.; writing—original draft preparation, F.S.L.-U. and E.R.M.; writing—review and editing, F.S.L.-U., L.E.C.-R. and A.G.-B.; visualization, F.S.L.-U.; supervision, F.S.L.-U.; project administration, F.S.L.-U.; funding acquisition, F.S.L.-U. All authors have read and agreed to the published version of the manuscript.

Funding

This work was financed by the Dirección de Investigación y Desarrollo of the Universidad Técnica de Ambato, grant number UTA-CONIN-2021-0233-R, through the general research project entitled «Análisis arquitectónico del núcleo central de Ambato entre 1895 y 1949: estilos, tipos, técnicas, pérdidas y permanencias»; based on which this work was carried out.

Institutional Review Board Statement

Not applicable.

Informed Consent Statement

Not applicable.

Data Availability Statement

This article analyzes, for the first time, the structural behavior of the Matriz church using the theory of structural limit analysis.

Acknowledgments

Special thanks to the Dirección de Investigación y Desarrollo of the Universidad Técnica de Ambato, which supported this work, as well as the Facultad de Diseño y Arquitectura, to the public and private institutions, people related, researchers, and to the entire university team that collaborated and monitored the work.

Conflicts of Interest

The authors declare no conflicts of interest.

References

  1. IGPN; Instituto Geofísico; Escuela Politécnica Nacional. El Gran Terremoto de Pelileo: 5 de Agosto de 1949. 2011. Available online: https://www.igepn.edu.ec/servicios/noticias/456-gran-terremoto-de-pelileo-5-de-agosto-de-1949 (accessed on 21 April 2023).
  2. Torres, J. Ambato Terremoto y Reconstrucción (1949–1961); Universidad Andina Simón Bolívar: Quito, Ecuador, 2021. [Google Scholar]
  3. Semanate, A. Sismología del Terremoto de Pelileo; Casa de la Cultura Ecuatoriana: Quito, Ecuador, 1950. [Google Scholar]
  4. MCE. Las voces Vivas del Terremoto de 1949. Pelileo: El Primer Memorial Público de Conciencia del Ecuador; Ministerio de Cultura del Ecuador, Ilustre Municipio de Pelileo, Subsecretaría de Patrimonio Cultural: Quito, Ecuador, 2010. [Google Scholar]
  5. Holguín, I. La Matriz en el Siglo XX. Nostalgia por el Ambato que se Fue; Ilustre Municipio de Ambato: Ambato, Ecuador, 2009. [Google Scholar]
  6. LIFE. Disaster strikes Ecuador. LIFE Mag. 1949, 27, 26–27. [Google Scholar]
  7. López Ulloa, F. La construcción tradicional en Ambato-Ecuador, a finales del siglo XIX y principios del XX. La piedra Pishilata. In Actas del Octavo Congreso Nacional de Historia de la Construcción. Madrid, 9–12 de octubre de 2013; Instituto Juan de Herrera: Madrid, Spain, 2013; pp. 573–580. [Google Scholar]
  8. Cevallos, A. Arte, Diseño y Arquitectura en el Ecuador: La Obra del Padre Bruning, 1899–1938; Museos del Banco Central del Ecuador, Ediciones Abya-Yala: Quito, Ecuador, 1994. [Google Scholar]
  9. INPC; Fotografía Patrimonial; Instituto Nacional de Patrimonio Cultural. Terremoto de Ambato Iglesia Catedral. 2022. Available online: http://fotografiapatrimonial.gob.ec/web/es/galeria/element/14227 (accessed on 19 May 2023).
  10. AAH. Facebook Ambato Ayer y Hoy. 2022. Available online: https://www.facebook.com/Ambatoayeryhoy/photos (accessed on 17 December 2021).
  11. FAA. Fotos Antiguas de Ambato Antiguo 1840–1980. 2022. Available online: https://www.facebook.com/groups/fotosantiguasdeambato/?locale=es_LA (accessed on 17 December 2021).
  12. Echeverría, B. La Catedral de Ambato; Editorial Pio XII: Ambato, Ecuador, 1968. [Google Scholar]
  13. Poveda, L. Estudio del Repertorio Religioso Patrimonial del Centro de la Ciudad de Ambato para el Desarrollo de una Propuesta de Reconstrucción Virtual Con Nuevas Tecnologías de Visualización. Bachelor´s Thesis, Universidad Tecnológica Indoamerica, Ambato, Ecuador, 2020. Available online: http://repositorio.uti.edu.ec//handle/123456789/1665 (accessed on 7 March 2024).
  14. Heyman, J. The Masonry Arch; Ellis Horwood Ltd.: Chichester, UK, 1982. [Google Scholar]
  15. Heyman, J. Teoría, Historia y Restauración de Estructuras de Fábrica; Instituto Juan de Herrera: Madrid, Spain, 1995. [Google Scholar]
  16. Heyman, J. El Esqueleto de Piedra. Mecánica de la Arquitectura de Fábrica; Instituto Juan de Herrera: Madrid, Spain, 1999. [Google Scholar]
  17. Heyman, J. The safety of masonry arches. Int. J. Mech. Sci. 1969, 11, 363–385. [Google Scholar] [CrossRef]
  18. Huerta, S. Arcos, Bóvedas y Cúpulas. Geometría y Equilibrio en el Cálculo Tradicional de Estructuras de Fábrica; Instituto Juan de Herrera: Madrid, Spain, 2004. [Google Scholar]
  19. Casado, A. Análisis Estructural por Medio de los Métodos Gráficos. Master´s Thesis, Universidad Jaume I, Barcelona, Castellón de la Plana, Spain, 2012. [Google Scholar]
  20. Huerta, S. Wedges and plate-bandes: Mechanical theories after De la Hire. In L’architrave, le Plancher, la Plate-Forme. Nouvelle Histoire de la Construction; Architecture Essais; Presses Polytechniques et Universitaires Nomandes: Lausanne, Switzerland, 2012; pp. 405–435. [Google Scholar]
  21. Alexakis, H.; Makris, N. Limit equilibrium analysis of masonry arches. Arch. Appl. Mech. 2015, 85, 1363–1381. [Google Scholar] [CrossRef]
  22. Alexakis, H.; Makris, N. Minimum thickness of elliptical masonry arches. Acta Mech. 2013, 224, 2977–2991. [Google Scholar] [CrossRef]
  23. Mencías Carrizosa, D. La Geometría Analítica como Herramienta de Análisis Estructural de Fábricas Históricas. Doctoral Thesis, Universidad Politénica de Madrid, Madrid, Spain, 2017. Available online: http://oa.upm.es/47167/ (accessed on 7 March 2024).
  24. Roca, P. Fiabilidad de las Estructuras Patrimoniales; Universidad Politécnica de Cataluña: Barcelona, Spain, 2010. [Google Scholar]
  25. Lillo, S.; Rodrigo, A.; Esteve, C. Methodology for the graphic restitution of a missing building: The Casa de Armas of Valencia. Rev. EGA Expresión Gráfica Arquit. 2021, 26, 96–107. [Google Scholar] [CrossRef]
  26. Cabanes, J.; Girbés, J. Digital photography and infographics as image generation technologies for the documentation, visual expression, and social contextualization of the built heritage. A global approach. Rev. EGA Expresión Gráfica Arquit. 2023, 28, 196–207. [Google Scholar] [CrossRef]
  27. Huerta, S. The analysis of masonry architecture: A historical approach: To the memory of Professor Henry J. Cowan. Archit. Sci. Rev. 2008, 51, 297–328. [Google Scholar] [CrossRef]
  28. Huerta, S.; Fuentes, P. Informe Sobre la Estabilidad de las Bóvedas y el Sistema de Contrarresto de la Nave y el Crucero de la Iglesia de La Peregrina (Convento de San Francisco) en Sahagún. Inform. Ayuntamiento de Sahagún, TRYCSA. 2010. Available online: https://oa.upm.es/2628/2/HUERTA_MONO_2010_01.pdf (accessed on 6 September 2023).
Figure 1. Ambato Matriz Church. Front facade ca. 1935 [5].
Figure 1. Ambato Matriz Church. Front facade ca. 1935 [5].
Sustainability 16 03918 g001
Figure 2. Ambato Matriz Church. Front facade [4] and interior of the central aisle after the 1949 earthquake [6].
Figure 2. Ambato Matriz Church. Front facade [4] and interior of the central aisle after the 1949 earthquake [6].
Sustainability 16 03918 g002
Figure 3. Ambato Matriz Church. (a) Façade designed by Pedro Brüning, 1910 [9]; (b) demolished façade after the 1949 earthquake [9]. Illustration by the authors.
Figure 3. Ambato Matriz Church. (a) Façade designed by Pedro Brüning, 1910 [9]; (b) demolished façade after the 1949 earthquake [9]. Illustration by the authors.
Sustainability 16 03918 g003
Figure 4. Ambato Matriz Church. Superposition of axes in the original drawing by Father Brüning [9] to extract the dimensions of the aisle. Illustration by the authors.
Figure 4. Ambato Matriz Church. Superposition of axes in the original drawing by Father Brüning [9] to extract the dimensions of the aisle. Illustration by the authors.
Sustainability 16 03918 g004
Figure 5. Ambato Matriz Church. Graphic restitution of the floor plan and block reference.
Figure 5. Ambato Matriz Church. Graphic restitution of the floor plan and block reference.
Sustainability 16 03918 g005
Figure 6. Ambato Matriz Church. Graphic restitution of the front façade.
Figure 6. Ambato Matriz Church. Graphic restitution of the front façade.
Sustainability 16 03918 g006
Figure 7. Ambato Matriz Church. Graphic restitution of the transverse section at the foot of the temple and transversal chapel.
Figure 7. Ambato Matriz Church. Graphic restitution of the transverse section at the foot of the temple and transversal chapel.
Sustainability 16 03918 g007
Figure 8. Line of resistance and line of pressure. Graphic method of analysis [18].
Figure 8. Line of resistance and line of pressure. Graphic method of analysis [18].
Sustainability 16 03918 g008
Figure 9. Ambato Matriz Church. Central aisle [10]. Roof components and reference plan. Illustration by the authors.
Figure 9. Ambato Matriz Church. Central aisle [10]. Roof components and reference plan. Illustration by the authors.
Sustainability 16 03918 g009
Figure 10. Ambato Matriz Church. Typical section of the central aisle for analysis [11]. Illustration by the authors.
Figure 10. Ambato Matriz Church. Typical section of the central aisle for analysis [11]. Illustration by the authors.
Sustainability 16 03918 g010
Figure 11. Ambato Matriz Church. Structural analysis. Section of the central vault divided into 13 parts and thrust lines, lines in purple show the minimum thrust situation and lines in green show the maximum thrust situation. Illustration by the authors.
Figure 11. Ambato Matriz Church. Structural analysis. Section of the central vault divided into 13 parts and thrust lines, lines in purple show the minimum thrust situation and lines in green show the maximum thrust situation. Illustration by the authors.
Sustainability 16 03918 g011
Figure 12. Ambato Matriz Church. Structural analysis. Set of structural elements adjacent to the central vault. Illustration by the authors.
Figure 12. Ambato Matriz Church. Structural analysis. Set of structural elements adjacent to the central vault. Illustration by the authors.
Sustainability 16 03918 g012
Figure 13. Ambato Matriz Church. Structural analysis. Thrust lines of the dome of the lateral aisle and the transverse wall. Illustration by the authors.
Figure 13. Ambato Matriz Church. Structural analysis. Thrust lines of the dome of the lateral aisle and the transverse wall. Illustration by the authors.
Sustainability 16 03918 g013
Figure 14. Ambato Matriz Church. Structural analysis. Section and plan of the analyzed structural set, with the total thrust lines. Illustration by the authors.
Figure 14. Ambato Matriz Church. Structural analysis. Section and plan of the analyzed structural set, with the total thrust lines. Illustration by the authors.
Sustainability 16 03918 g014
Figure 15. Ambato Matriz Church. Structural analysis. Force polygons that carry all the thrust lines of the analyzed structural set. Illustration by the authors.
Figure 15. Ambato Matriz Church. Structural analysis. Force polygons that carry all the thrust lines of the analyzed structural set. Illustration by the authors.
Sustainability 16 03918 g015
Figure 16. Ambato Matriz Church. Structural analysis. Thrust lines in the study area. Illustration by the authors.
Figure 16. Ambato Matriz Church. Structural analysis. Thrust lines in the study area. Illustration by the authors.
Sustainability 16 03918 g016
Figure 17. Ambato Matriz Church. Structural analysis. Detail of the area where the line of thrust leaves of the wall. Illustration by the authors.
Figure 17. Ambato Matriz Church. Structural analysis. Detail of the area where the line of thrust leaves of the wall. Illustration by the authors.
Sustainability 16 03918 g017
Disclaimer/Publisher’s Note: The statements, opinions and data contained in all publications are solely those of the individual author(s) and contributor(s) and not of MDPI and/or the editor(s). MDPI and/or the editor(s) disclaim responsibility for any injury to people or property resulting from any ideas, methods, instructions or products referred to in the content.

Share and Cite

MDPI and ACS Style

López-Ulloa, F.S.; Redondo Martínez, E.; Gil Crespo, I.J.; Goyes-Balladares, A.; Chávez-Rubio, L.E. The Collapse of the Vaults of the Ambato Matriz Church in the 1949 Earthquake: A Response with a Technical Approach. Sustainability 2024, 16, 3918. https://doi.org/10.3390/su16103918

AMA Style

López-Ulloa FS, Redondo Martínez E, Gil Crespo IJ, Goyes-Balladares A, Chávez-Rubio LE. The Collapse of the Vaults of the Ambato Matriz Church in the 1949 Earthquake: A Response with a Technical Approach. Sustainability. 2024; 16(10):3918. https://doi.org/10.3390/su16103918

Chicago/Turabian Style

López-Ulloa, Fabián S., Esther Redondo Martínez, Ignacio Javier Gil Crespo, Andrea Goyes-Balladares, and Luis Enrique Chávez-Rubio. 2024. "The Collapse of the Vaults of the Ambato Matriz Church in the 1949 Earthquake: A Response with a Technical Approach" Sustainability 16, no. 10: 3918. https://doi.org/10.3390/su16103918

APA Style

López-Ulloa, F. S., Redondo Martínez, E., Gil Crespo, I. J., Goyes-Balladares, A., & Chávez-Rubio, L. E. (2024). The Collapse of the Vaults of the Ambato Matriz Church in the 1949 Earthquake: A Response with a Technical Approach. Sustainability, 16(10), 3918. https://doi.org/10.3390/su16103918

Note that from the first issue of 2016, this journal uses article numbers instead of page numbers. See further details here.

Article Metrics

Back to TopTop