Abstract
The enhancement of carbon sequestration and emissions reduction has emerged as a primary concern in China’s rural regions. Nevertheless, numerous completed rural wastewater treatment facilities necessitate retrofitting due to suboptimal operational conditions. Consequently, evaluating the greenhouse gas (GHG) emissions impact and carbon reduction advantages of rural wastewater treatment facility retrofitting is essential. Existing research predominantly focuses on urban wastewater treatment plants, with minimal attention given to GHG emissions impact during the construction and demolition stages of wastewater treatment facilities. In this investigation, we developed a life cycle assessment (LCA)-based evaluation model to appraise the GHG emissions impact and carbon reduction benefits of retrofitting rural wastewater treatment facilities. We examined a renovation project in Sanxiushan Village, Xiamen City, Fujian Province, incorporating the integrated plant treatment technology of constructed wetlands. Our findings indicate that retrofitting offers significant advantages in terms of GHG emissions reduction, even when accounting for implicit GHG emissions. The establishment of supplementary terraced constructed wetlands and landscape greening can yield more substantial carbon reduction benefits. Moreover, we discovered that implicit GHG emissions during the construction stage can be mitigated by employing local, recycled, and low-carbon materials. Modifying vegetation community structure and prioritizing vegetation species selection can enhance the carbon storage capacity of plants, reducing overall life cycle GHG emissions and augmenting emissions reduction benefits. The evaluation model developed in this study can facilitate the promotion of low-carbon construction and operation of rural wastewater treatment facilities.
1. Introduction
On 9 August 2021, the IPCC (Intergovernmental Panel on Climate Change) released the Working Group I of the Sixth Assessment Report (AR6): Human activities have led to ecosystem destruction and excessive GHG emissions, causing the warming of the Earth’s surface and an increase in the frequency and intensity of extreme weather events [1]. Therefore, mitigating climate change and reducing GHG emissions have become a global consensus. According to the Global Carbon Atlas, China leads the world’s GHG emissions, having reached 27% of the world in 2021 [2]. China’s efforts to combat climate change have attracted widespread attention in the academic field [3].
In the study of GHG emissions reduction, GHG emissions in the field of wastewater treatment cannot be ignored. According to the latest available statistics, China’s GHG emissions in the field of wastewater treatment rose from 0.76 billion tCO2eq in 2010 to 1.00 billion tCO2eq in 2014 [4], and the total GHG emissions of China’s entire wastewater treatment industry may reach 3.65 billion tCO2eq by 2030, accounting for 2.95% of China’s total GHG emissions, a value that exceeds the total annual GHG emissions of France in 2019. China’s GHG emissions from rural domestic wastewater reached 0.83 million tCO2eq in 2015, a value that could rise to 1.03 million tCO2eq by 2030 [5] or even more than a quarter of Norway’s total GHG emissions in 2019. Thus, it can be seen that China’s wastewater treatment industry has more room for GHG emissions reductions, and reducing GHG emissions in the rural wastewater treatment sector will also be of great significance to China’s GHG emissions reductions.
At present, there are three main wastewater treatment processes used in the rural areas of China: integrated equipment treatment technology, ecological treatment technology, and traditional wastewater treatment technology (a simplified form of an urban wastewater treatment plant) [6]. Among the advantages of the “integrated plant treatment process” are ease of transport, simple installation, and low operational energy consumption [7]. However, the process may not meet the standards for ammonia, nitrogen, total phosphorus, and total nitrogen in the effluent during operation [8]. According to the “Technical Standards for Rural Sewage Treatment Facilities” issued by the Department of Standards and Quotations of the Ministry of Housing and Construction of China, when the pollutant content of the effluent from the “integrated sewage treatment equipment” cannot meet the relevant standards for sewage treatment, it is appropriate to add natural ecological treatment technologies, such as constructed wetlands, for the deep purification of the tailwater [9] and then create an “integrated equipment treatment process—constructed wetland” sewage treatment model. The advantage of this model is the low cost of its construction and operation, which can further optimize water quality while also having ecological benefits. Currently, many Chinese rural villages follow traditional wastewater treatment technologies, and most of the wastewater treatment facilities are in poor operating condition and urgently need to be renovated due to the high operating costs, complex management techniques, and insufficient treatment capacity [10]. In 2022, China’s Ministry of Housing and Construction and the Development and Reform Commission released the “Implementation Plan for Carbon Dumping in Urban and Rural Construction” to support the promotion of low-carbon construction and renovation of rural domestic waste and sewage treatment [11]. Rural wastewater treatment in China is becoming a research focus in the field of GHG emissions reduction [12].
Studies have shown that the appropriate low-carbon retrofitting of wastewater treatment facilities can reduce GHG emissions compared to other industries with greater carbon reduction benefits [13]. For example, Yue Zhang et al. (2020) constructed a mathematical model to compare the changes in GHG emissions during the use of three wastewater treatment plants after upgrading, and the results showed that a moderate upgrade is beneficial to carbon reduction [14]. Liu Lingchi et al. (2022) explored the GHG emissions intensity of different post-renovation use processes of urban wastewater treatment plants, and the results showed that the total GHG emissions reduction efficiency after renovation could reach 39.92% [15]. The above studies placed a higher emphasis on the GHG emissions reduction effect of the use stage of wastewater treatment plants after retrofitting and less on the GHG emissions impact of the construction and demolition stages.
The accurate accounting of GHG emissions is an important part of an effective response to climate change. LCA (life cycle assessment), a commonly used and developed method, can comprehensively quantify GHG emissions throughout the construction, use, and demolition stages. LCA methods are being increasingly used by researchers to reduce the environmental impact of wastewater treatment facilities. Zang et al. (2020) argued that the GHG emissions during the construction and demolition stages should not be neglected [16,17]. Andrew et al. (2021) argued that the carbon impact and carbon reduction benefits of different sizes and types of wastewater treatment plants (stations) should be quantified from a whole life cycle perspective [18]. C. Remy et al. (2013) used the LCA method to quantify GHG emissions from sludge treatment in municipal wastewater treatment plants and verified the potential of using the LCA method as a GHG emissions reduction algorithm for wastewater treatment [18]. Beibei Liu et al. (2013) used the LCA method to conduct a comparative study of carbon reduction perspectives of six sludge treatment technologies and disposal strategies, and the results showed that the use of aerobic composting as a sludge disposal method has greater environmental benefits [19]. S. Lehtoranta et al. (2007) used the LCA method to study the impact of GHG emissions in the use stage of different wastewater treatment modes in rural Finland and clarified that direct wastewater discharge, electricity consumption, and centralized sludge treatment are the main causes of GHG emissions [20]. Studies by Flores et al. (2019), and Fuchs et al. (2011) concluded that the construction stage of wastewater treatment plants has an impact rate of about 15–50% on the whole life cycle GHG emissions [21]. Nguyen T.K.L. et al. (2021) The study highlights the importance of using the life cycle assessment (LCA) method to evaluate the environmental impacts in the field of wastewater treatment. The research also indicates that the carbon emissions during the construction phase of wastewater treatment plants can be quite significant, reaching up to 3.5 times the carbon emissions during the operational phase [22].
According to the above literature review, most of the current studies on the carbon impact and carbon reduction benefits of wastewater treatment facilities focus on urban wastewater treatment plants (WWPT). Although scholars consider that the GHG emissions of rural wastewater treatment in China cannot be ignored, there are relatively few studies that analyze the carbon impact and carbon reduction benefits of rural wastewater treatment retrofit measures in China. Considering the GHG emissions reduction potential in the field of rural wastewater treatment in China and the current operational status of rural wastewater facilities, there is an urgent need to evaluate the GHG emissions reduction effects of rural wastewater treatment retrofitting in China over the whole life cycle.
In this study, a method is developed to calculate the whole life cycle GHG emissions impact of renovating a rural wastewater treatment facility. Taking the southeast coastal area as the spatial boundary, the GHG emissions assessment of the “integrated equipment treatment process—constructed wetland” wastewater treatment model is carried out, including two systems of wastewater treatment stations, Constructed wetlands, and their landscape greening. Regarding the whole life cycle perspective, the GHG emissions impact of the construction, use (It includes three parts: operation of integrated sewage treatment station, operation of constructed wetland, and maintenance of terrestrial plants), and demolition stages, and the GHG emissions change and carbon reduction benefit of the use stage before and after the renovation are evaluated. This accounting method refines and expands the carbon emissions accounting scope for wastewater treatment retrofit projects on both spatial and temporal scales, helping to enhance the carbon emissions reduction efficiency of rural wastewater treatment facilities and promote low-carbon development in rural wastewater treatment in China.
2. Materials and Methods
2.1. System Boundary
This study assessed the GHG emissions impact and carbon reduction benefits of the “integrated plant treatment technology—constructed wetland” wastewater treatment facility retrofitting in a rural area of the southeast coast, including two systems: wastewater treatment stations and constructed wetlands, and their landscaping. The study followed the international standard ISO 14040 (Principles and Framework for Environmental Management Life Cycle Assessment) [23], and calculated the GHG emissions impact of the construction, the pre-retrofit and post-retrofit use, the post-retrofit demolition, and the carbon storge impact of the post-retrofit use stages. Figure 1 depicts the boundary of the assessment system in this paper:
Figure 1.
Evaluation system boundary.
The system boundary of the GHG emissions and carbon storge calculation system in this study is described as follows:
(1) Estimation of GHG emissions during the construction stage: At this stage, greenhouse gas (GHG) emissions mainly stem from the production of building materials, the operation of construction machinery and equipment, and the transportation of vehicles. Regarding GHG emissions generated by the production process of construction materials, the regulations of the Ministry of Housing and Urban-Rural Development of China identify two sources: (1) indirect GHG emissions from the extraction, production, and transportation of raw materials and energy, and (2) direct GHG emissions from the production process of building materials. The energy sources used in the production of building materials include coal, electricity, fuel oil, and diesel, with coal and electricity accounting for approximately 86% of the entire building materials industry’s energy consumption [24]. GHG emissions resulting from the operation of construction machinery and the transportation of vehicles are associated with gasoline, diesel, and electricity consumption. (2) Estimation of GHG emissions during the operational stage: encompassing nitrous oxide (N2O) and methane (CH4) emissions from wastewater treatment and constructed wetland operations, greenhouse gas emissions are generated during the production process of wastewater treatment agents (Chemical agents used in the wastewater treatment process are commonly referred to as wastewater treatment agents, with the aim of utilizing chemical reactions to improve wastewater treatment efficiency. Common wastewater treatment agents include coagulants, flocculants, disinfectants, etc.), as well as fossil-origin GHG emissions associated with landscape maintenance. However, three aspects of GHG emissions are excluded from calculations during the operational stage.
First, carbon dioxide (CO2) generated by wastewater treatment and wetland operations is considered biogenic carbon and is thus excluded from the calculation scope. Secondly, sludge produced from rural wastewater treatment is relatively minimal (12.6 kg/day in the case study), and its GHG emissions predominantly consist of biogenic carbon. Consequently, GHG emissions resulting from sludge disposal are disregarded. Finally, the proportion of fossil-origin GHG emissions released by cleaning agents and other petrochemical derivatives is exceedingly low in the total organic carbon content of wastewater. Given the modest rural wastewater treatment volume (20 t/day in the case study), fossil-origin GHG emissions from wastewater are not considered.
(2) Estimation of carbon storage during the operational stage: This study quantifies the carbon reduction benefits of constructed wetland substrates, soil, and trees. Owing to the relatively short life cycles of shrubs, terrestrial herbaceous plants, and aquatic plants, the carbon stored in plant tissues is released into the atmosphere upon their death. Therefore, their carbon storage impact is not considered in this study. Conversely, the impact of carbon storage from trees is accounted for, as trees have longer life cycles, particularly in rural landscapes where their lifespan may exceed 50 years, rendering the carbon reduction benefits of trees significant.
It should also be noted that this study assumes trees in rural landscapes can grow under ideal conditions and will not be removed despite the cessation or renovation of constructed wetlands or wastewater treatment plants. Plant carbon storage is a complex system influenced by various factors, such as plant respiration, soil respiration, and temperature environment. This study, however, will not focus on these factors; in this case, tree carbon storage will be estimated using the i-Tree model to ensure a more comprehensive evaluation boundary.
(3) demolition stage, including the GHG emissions generated by the demolition construction, garbage transportation, and disposal. Due to the long life-cycle of landscape greening, this paper only considers the GHG emissions generated by wastewater treatment plants during the demolition stage.
2.2. Function Unit
The functional unit in LCA represents a quantitative measure of a product system’s functionality, primarily intended to standardize the system’s inputs and outputs, thus facilitating the comparison of a product’s environmental performance data. In this study, the research system’s functional unit (FU) is defined as kgCO2eq·t − 1·d − 1, representing the GHG emissions generated by treating one ton of wastewater daily, thereby standardizing the wastewater treatment system’s inputs and outputs.
Furthermore, because various greenhouse gases have disparate impacts on global climate change, this paper converts all non-CO2 greenhouse gases into CO2eq (carbon dioxide equivalent) using GWP(100) refers to the global warming potential of greenhouse gases over a 100-year time scale) provided by IPCC (AR6) [25]. This conversion allows for a more accurate comparison of other greenhouse gases’ impacts with that of carbon dioxide. In this study, the primary non-CO2 greenhouse gases requiring separate calculations are CH4 and N2O, possessing GWP(100) values of 28 and 265, respectively.
2.3. Calculation Method
2.3.1. Basic Calculation Methods for GHG Emissions and Carbon Storge
- Basic calculation method of GHG emissions
In this study, the emission factor method—the first GHG emissions calculation method proposed by the IPCC (which is still widely used) with carbon source factors based on geographical conditions and the principle of timeliness classified. The GHG emissions calculation formula is as follows.
where ER denotes CO2 emissions, kgCO2eq; ADi denotes activity level data for type i (activity level data reflect activities that lead to carbon sources, such as sewage treatment and soil improvement); and EFi denotes emission factor, the amount of carbon source per unit activity level, kgCO2eq/unit (kgCO2eq/t sewage, kgCO2eq/m2 grassland, etc.).
- 2.
- Basic calculation method of carbon storge
Before quantifying the carbon storge of green vegetation, we need to clarify the source of the carbon storge and the scope of the calculation. Carbon storage refers to the carbon accumulated in the plant tissues as the plant grows, which is eventually released back to the atmosphere during the death and decay of the tree; therefore, vegetation carbon storge was not calculated in this study.
In this study, the carbon storge were calculated from the use stage, including constructed wetlands and landscape trees for which is no uniform calculation method.
The carbon storge of trees was quantified using the “i-Tree Eco” module of the “i-Tree” model. The i-Tree model has a wide range of applications, particularly in assessing the ecological benefits of individual trees [26]. The main operating mechanism of the i-Tree model involves uploading field survey data and meteorological data from the study area into the software. This data is then converted into a specific format recognizable by the software terminal and uploaded for calculations. Ultimately, i-Tree generates a quantitative analysis report on the environmental impacts of plants [27,28].
The i-Tree model comprises eight modules, and this study utilizes the “i-Tree Eco” module, which is primarily used for the quantitative analysis of the environmental impacts of plants within the research area. Within this module, the carbon sequestration capacity of trees is one component of the i-Tree Eco environmental impact quantitative analysis. The calculation principle for carbon sequestration employs the allometric growth equations and conversion factors built into the software to determine the biomass of each tree. This information is then used to estimate the carbon storage and carbon sequestration potential of trees based on the carbon dioxide required for tree growth [29]. To use the i-Tree Eco module, various plant data must be input into the software, including total tree height, crown width, diameter at breast height (DBH), tree health, crown base height, crown light exposure range, and land use, all of which are obtained through field surveys. By combining this data with the climate data of the study area, accurate calculation results can be obtained within the software [30].
The carbon storge of constructed wetlands was estimated by the carbon storge rate method, whose calculation equation is as follows.
where CS denotes the impact of total GHG emissions in the whole life cycle of the reconstruction project, kg; Sj denotes the calculated area of type j carbon storge, m2; K denotes the carbon storge rate factor, that is, the carbon storge amount per unit area, kg/m2.
2.3.2. GHG Emissions and Carbon Storge Impact Assessment
In this study, the GHG emissions and carbon storge impacts of the retrofit project of the “integrated equipment treatment process—constructed wetland” model were calculated in three stages: construction (GHG emissions from construction materials and machinery), use (GHG emissions changes and carbon storge increase due to retrofitting measures), and demolition stages (GHG emissions from the demolition of the wastewater treatment station, and waste transportation and disposal). The retrofitting measures were evaluated by assessing the GHG emissions impacts caused by each retrofitting measure in these three stages. The GHG emissions impact of each retrofitting measure was calculated by the following equation.
where ER denotes the total GHG emissions of the renovation project; ERMA, EROP, and ERDE denotes the GHG emissions of the construction, use, and demolition stages, respectively; and CS denotes the carbon storge of the use stage.
- GHG emissions impact during the construction stage.
GHG emissions in the construction stage include GHG emissions from the production and transportation of materials, and from the energy consumption of machinery and equipment during the retrofit construction process. Taking the retrofitting measures of the wastewater treatment station as an example, we calculated the consumption of the construction materials, such as concrete and steel, as well as the energy consumption of transportation and construction activities, with the following formula.
where ERMA denotes GHG emissions in construction stage, kg; EFi denotes the GHG emission factor of the production stage of the i type of construction material (Table 1), kgCO2eq/unit; Qi denotes the usage of material I; EFj denotes GHG emissions factor of energy consumption of j construction processes, kgCO2eq/unit; and Tj denotes the total number of hours of j construction processes in the project construction process, h.
Table 1.
GHG (Greenhouse Gas) emissions factors in the construction stage. (Ministry of Housing and Urban–Rural Development of the People’s Republic of China, 2019) [31,32,33,34,35,36].
- 2.
- GHG emissions and carbon storge impacts during the use stage
GHG emissions in the use stage come from wastewater treatment station operations (wastewater treatment and wastewater treatment agents consumption) and constructed wetland vegetation maintenance (irrigation equipment and soil improvement). carbon storge in the use stage come from Constructed wetlands (organic carbon accumulation, carbon storge by photosynthesis of aquatic plants, and carbon storge by terrestrial trees and shrubs). The content and recommended data collection for the use stage, and activity level data for wastewater treatment stations, constructed wetlands, and landscaping can be collected through field surveys and consultation with treatment station managers.
- GHG emissions in the use stage were calculated using the following formula.
I. GHG emissions from wastewater treatment
The main sources are CH4 and N2O produced in the wastewater treatment process and the chemicals introduced in the wastewater, including PAM (polyacrylamide), PAC (polymeric aluminum chloride), and NaClO (sodium hypochlorite), which can be calculated as follows.
where ERWT is the GHG emissions from wastewater treatment, kgCO2eq; Ax is the activity emission from GHG emissions source x, kg; EFx is the GHG emissions factor of emission source x (Table 2); GWPx refers to the GWP value of greenhouse gas “x”., x represents the type of greenhouse gas. respectively; n is the number of GHG emissions species discussed; Py denotes the amount of y agent delivery; and EFy denotes the GHG emissions factor of y agent; OPe denotes the amount of e equipment; and EFe denotes the GHG emissions factor of e agent fuel (Table 2).
Ⅱ. GHG emissions from vegetation maintenance
The main emission sources are maintenance measures, such as fertilization, irrigation, medication, and pruning [37]. Because this study case was located in a rural area, vegetation growth is close to the natural environment, and thus a low maintenance mode was adopted, with pruning and medication not being intensively used in the maintenance process [38]. Therefore, only GHG emissions from fertilization and irrigation of landscape greenery were assessed; among them, GHG emissions from the fertilization of soil improvement were calculated, using nitrogen fertilizer (urea) as an example, with the following formula.
where ERGM denotes the GHG emissions of landscape maintenance, kg; EFe denotes the GHG emissions factor of landscape soil amendment fertilization (Table 2), kgCO2eq/t; Qe denotes soil amendment fertilization in year e (t); EFg denotes the carbon footprint factor of the energy consumption of equipment operation for landscape operation process g, kgCO2eq/unit; and Qg denotes the total energy consumption of equipment g.
Table 2.
GHG emissions factors for the use stage [39,40].
Table 2.
GHG emissions factors for the use stage [39,40].
| Content | Name | Unit | GHG Emissions Factors (kgCO2eq/Unit) | GHG Emission Sources | |
|---|---|---|---|---|---|
| Wastewater treatment station operation | Wastewater Treatment | Wastewater Treatment CH4 Discharge | KgCO2eq/kgCOD | 0.25 | wastewater treatment process |
| Wastewater Treatment N2O Discharge | KgCO2eq/kgN | 0.005 | |||
| Equipment operation in an integrated wastewater treatment plant | KgCO2eq/Kw | 0.8086 | equipment operation energy | ||
| wastewater treatment agents consumption | PAM | KgCO2eq/kg | 1.5 kg | wastewater treatment agents production | |
| PAC | KgCO2eq/kg | 1.6 kg | |||
| NaClO | KgCO2eq/kg | 1.4 kg | |||
| Landscaping Maintenance | Fertilizing | Nitrogen fertilizer (urea) | KgCO2eq/kg N | 2.041 | fertilizer production |
| Irrigation | Water pumping | KgCO2eq/Kw | 0.8086 | Equipment operation energy | |
Ⅲ. GHG emissions from Constructed wetlands
CH4, N2O, and CO2 emissions are generated during the treatment of wastewater, and according to IPCC regulations [41,42], the CO2 released from constructed wetlands is part of the natural cycle of organic matter and is not counted in the GHG emissions inventor [43]. Therefore, only CH4 and N2O emissions from constructed wetlands were assessed in this paper. The calculation of GHG emissions from constructed wetlands in this paper referred to the 2013 Supplement to the 2006 IPCC Guidelines for National Greenhouse Gas Inventories: Wetland [44] (hereinafter referred to as “Wetlands”) for the calculation of GHG emissions from wastewater treatment constructed wetlands. The “Wetlands” provides a guide to GHG emissions inventories for constructed wetlands used for wastewater treatment, providing measures of CH4 and N2O emissions due to carbon and nitrogen inputs in the wastewater treatment process [45,46]. In particular, CH4 emissions are associated with BOD in domestic wastewater and N2O emissions are associated with the nitrogen content introduced to the wetland via wastewater [47].
where ERCW(CH4) denotes the CH4 annual discharge, kgCH4/years; TOWg denotes total organic matter entering the constructed wetland effluent, kg BOD/years or kg COD/years; EFg denotes discharge factor, kgCH4/kg BOD or kgCH4/kg COD; and g denotes the wetland type.
where EFg indicates the discharge factor, kgCH4/kg BOD or kgCH4/kg COD; g indicates the wetland type; Bo indicates the maximum CH4 production capacity, kgCH4/kg BOD or kgCH4/kg COD (according to IPCC, domestic wastewater was taken as 0.6 kgCH4/kg BOD); MCFg indicates the CH4 correction factor (Table 3 shows the different types provided by IPCC) for the MCF values of constructed wetlands. As the wetland before the transformation is a surface-flow constructed wetland, MCF value was taken as 0.4. The terraced constructed wetland, after the transformation, is a multi-stage mixed wetland, which has the advantages of single-stage wetlands, such as surface-flow constructed wetland, horizontal-flow constructed wetland, and vertical-flow constructed wetland [48]. (However, since the IPCC does not classify terraced constructed wetlands separately, the MCF value of terraced wetlands in this paper was taken as its mean value of 0.17).
Table 3.
CH4 correction factors for different wetland types [49].
- The formula for calculating the carbon storge in the use stage is
I. Carbon storge of landscape greening
In this study, landscape green vegetation was divided into three parts: carbon storge performance of trees, carbon storge performance of shrubs and ground cover, and soil carbon storge on land. The sum is the total carbon storge of landscape green vegetation, and its calculation formula is as follows:
where, CSVE(T) denotes tree carbon storge, kg/years; CSVE(S), denotes terrestrial soil carbon storge, kg/years.
First, we analyzed the carbon storge of trees (CSVE(T)). The i-Tree Eco module in the i-Tree model was chosen to quantify the carbon storge of trees. Several studies have demonstrated the accuracy of the i-Tree Eco module in assessing vegetation carbon storge. For example, Alonzo et al. (2016) verified the accuracy of i-Tree for tree carbon stock estimation by comparing the calculated urban forest carbon stocks in Santa Barbara, California, with the values estimated by the i-Tree model [50], and Boukili et al. (2017) used the i-Tree model to estimate the carbon storge for 463 trees and compared the results with the Urban Tree Database (UTD). The results demonstrated the accuracy of i-Tree for the assessment of carbon storge benefits [51].
Secondly, the carbon storge performance of landscape greening land plants is also estimated using the carbon storge rate method [52]. According to the existing research results, the data of carbon storge rate per unit land area of vegetation per year is shown in Table 4. The calculation formula of soil carbon storge performance of landscape greening as follows:
where, CSVE(S) denotes soil carbon storge of landscape green space (kg/years); Sj denotes planting area of type j green space (m2); Cpj denotes soil carbon storge rate of type j green space (kg/m2/years).
Table 4.
Average annual soil carbon storge rate under different vegetation community types [52,53,54].
II. Constructed wetland carbon storge
The sources of carbon storge in Constructed wetlands include atmospheric carbon fixation by organic carbon fixation of effluent by soil in constructed wetlands. Since the amount of carbon stored by constructed wetlands is affected by many factors and the actual measurement process is time-consuming and complicated [55], Xu Houtao et al. (2011) observed the sewage treatment type constructed wetland with different vegetation for one year, and found that the soil–organic carbon density of the constructed wetland was between 0.96 and 1.67 kg/m2 [56], In this study, the median of 1.32 kg/m2 was taken as the soil carbon fixation rate of the constructed wetland. The calculation formula of the carbon storge performance of the constructed wetlands is as follows:
where CSCW denotes the amount of carbon stored by constructed wetlands, kg/years; CSC denotes the Soil organic carbon accumulation in constructed wetland system, kg/m2/years; SCW denotes the area of constructed wetland, m2.
- 3.
- GHG emissions impact during the dismantling stage
The main source of GHG emissions during the demolition stage is the energy consumption of the various machines at the demolition site and the transportation and disposal of waste building materials [24], whereas the main source of carbon reduction is the recycling of building materials. Most non-recyclable building materials are dumped in the open or transported to landfills after demolition, whereas recyclable building materials need to be processed and recycled. Since the actual energy consumption data of this stage are not easy to obtain, and at the same time, the GHG emissions of this stage account for a very low proportion in the entire life cycle [57], they can be estimated according to the existing research results. For example, Ju Ying and Chen Yi, after sorting out the research results of construction GHG emissions calculations in China for 17 years, concluded that the energy consumption of the building demolition stage accounts for about 10% of the construction energy consumption [58], and this study estimated its values according to this proportion (see Table 5 for GHG emissions factors and recycling rates of waste disposal).
Table 5.
GHG emissions factors for the waste disposal of construction consumables [59,60,61].
Renewable construction waste was calculated at 50% of the GHG emissions of the primary raw materials it can replace and was deducted from the calculation [58].The dismantling of GHG emissions was expressed as follows according to the previous expression, that is,
where ERDE denotes the GHG emissions during the demolition stage, kgCO2/unit; 0.1 denotes GHG emissions ratio factor of demolition stage to construction stage; Mi denotes the amount of i construction materials, kg; EFir denotes the carbon footprint of recycling of waste construction materials; kgCO2eq/kg; EFi denotes the GHG emissions factor of the reproduction process of renewable building materials, kgCO2 eq/t; Ri denotes the recycling rate of the ith material; and EFh denotes the GHG emissions factor of the construction materials that cannot be recycled (this paper only considered their disposal in the nearest landfill).
2.4. Evaluation Indicators
2.4.1. Carbon Payback Time Assessment (CPBT)
In order to evaluate the carbon reduction effect of constructed wetlands and their impact on the environment more intuitively, this study adopted carbon payback time (CPBT) as the evaluation index. The carbon payback time is expressed as the ratio of embodied carbon (EC) to annual carbon reduction during the use stage after retrofitting, as well as the embodied carbon (EC) including GHG emissions from the construction stage (materials, transportation, construction, etc.) and the maintenance and demolition stages [62].
where CM denotes embodied carbon, kgCO2eq, and Di denotes the annual carbon reduction in the use stage after retrofitting, kgCO2eq.
2.4.2. Carbon Reduction Efficiency
In order to compare the carbon reduction effect before and after the renovation of wastewater treatment facilities, this paper used the carbon reduction rate as a measure of assessment with the following formula.
where CR denotes the carbon reduction efficiency; CBU denotes the average annual GHG emissions value of the use stage before retrofitting; CAU denotes the average annual GHG emissions value of the use stage after retrofitting and CEC = CMA + CDE denotes the implied GHG emissions value.
3. Case Studies
Three common domestic wastewater treatment technologies in rural China (distributed wastewater treatment process, integrated equipment treatment process, and natural ecological treatment process [6,62,63]) have been mostly developed on the basis of the A/O process (A/O stands for AnoxicOxic) [64], that is, anaerobic–aerobic process method, whose main advantages are shocked load resistance, high carrying capacity, strong adaptability, less sludge, and better denitrification. It is suitable for small- and medium-sized wastewater treatment facilities.
The “Integrated A/O Process” belongs to “Integrated Equipment Wastewater Treatment Technology,” which has the advantages of various A/O treatment processes while also featuring a small footprint, easy transportation, and installation. The “constructed wetland sewage treatment process” is part of the “ecological treatment process”. With its low investment, operating costs, and relatively good treatment effect, it has a more open development prospect in the purification and treatment of rural domestic sewage [65]. In this study, the “integrated AO process” was combined with a constructed wetland to form the “Integrated AO Process-Constructed Wetland” wastewater treatment model according to the recommendations of the “Technical Standards for Rural Wastewater Treatment Facilities” of China [9] (the process flow is shown in Figure 2).
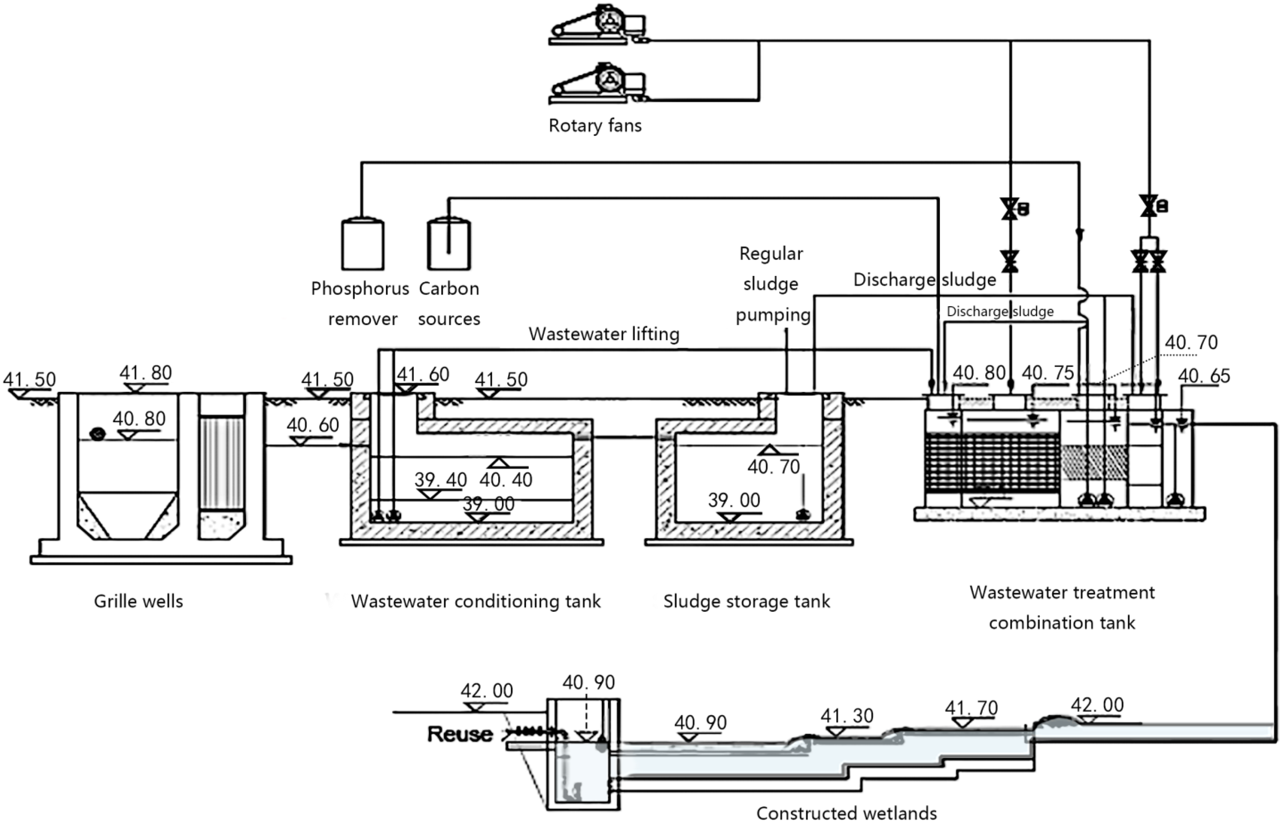
Figure 2.
Process flow diagram of the Sanxiushan wastewater treatment facility.
3.1. Case Selection
This study selected the “Integrated AO Process—Constructed Wetland” retrofit project in Sanxiushan Village, Wuxian Town, Xiamen City, Fujian Province, China, to assess its life-cycle carbon impacts and carbon reduction benefits. The case study is located in the southeast coastal region of China with hot summers and warm winters; the location of the retrofit case is shown in Figure 3.
Figure 3.
Transformation plan and state before transformation.
The following section describes the condition of the “Anaerobic Digester—Surface Flow Constructed Wetland” wastewater treatment process facility before its renovation. The anaerobic digester had reached its maximum service life, and the aging of the facility resulted in very low wastewater treatment efficiency. The surface-flow constructed wetlands, also due to the small scale of the treatment facility and its low decontamination capacity, could not play a considerable role in the treatment of sewage [66,67], which basically degraded to anaerobic ponds. This had a negative impact on the local ecological environment, with an urgent need for renovation.
The wastewater treatment process after the retrofit process is “AO-Gradient Constructed Wetland”. The full life cycle of the retrofit was 20 years. Figure 4 shows the retrofitting process and the post-retrofit site of the study case, which involved two elements.
Figure 4.
Retrofitting process and the post-retrofit site of the study case, which involved two elements.
The first renovation measure was to update and upgrade the anaerobic digestion tank, using the “Integrated AO Process”. After the renovation, the average COD value of the effluent from the sewage treatment station was stabilized at 50 mg/L and TN 20.79 mg/L by on-site measurement.
The production process of wastewater treatment agents, as mentioned earlier, generates greenhouse gas emissions. Therefore, this study not only recorded the COD and TN data of influent and effluent during the wastewater treatment process but also documented the usage of wastewater treatment agents. The main wastewater treatment agents used in this study include the coagulant PAC (polyaluminum chloride), flocculant PAM (polyacrylamide), and wastewater disinfectant NaClO (sodium hypochlorite) (see Table 6 for the relevant parameters of sewage treatment before and after the renovation).
Table 6.
Wastewater treatment parameters.
The second transformation measure was to choose a better treatment effect relative to the surface-flow terraced constructed wetland [68] for tailwater depth treatment after the transformation of the terraced constructed wetland area of 452.88 square meters. After the wastewater falls through the terrace wetland, the dissolved oxygen environment of the wetland is improved, creating conditions for microbial reproduction and phosphorus removal and denitrification [69]. The effluent quality after deep tailwater treatment was higher than the Fujian Province’s “rural domestic sewage treatment facilities water pollutant discharge standards” (DB 35/1869-2019) level 1 discharge standards (COD 60 mg/L, TN 20 mg/L). In addition, the constructed wetland saw a plant increase of 77 trees, a bamboo forest of 20 square meters, and a lawn of 813 square meters (see Table 7 for the configuration of the new green plants).
Table 7.
Activity level data for the construction and demolition stages.
3.2. Accounting for GHG Emissions in Retrofit Projects
3.2.1. Inventory of GHG Emissions and Carbon Storge of Retrofit Projects
By consulting the retrofitting constructors, this study determined the GHG emissions and carbon storge inventories of retrofitting measures, as shown in Table 8, where “+” indicates GHG emissions and “–” indicates GHG emissions reduction. In the construction stage, the GHG emissions sources mainly include the construction of treatment stations and constructed wetland renovation. In the use stage, the GHG emissions sources mainly include the operation of the wastewater treatment station and the maintenance of the constructed wetland landscape greenery; the GHG emissions reduction sources mainly include the increase in the greenery vegetation and the graded constructed wetland. In the demolition stage, the GHG emissions sources mainly include demolition construction, waste transportation, and disposal.
Table 8.
Accounting inventory of GHG emissions and carbon storge.
3.2.2. Data Sources
The activity level data for each stage were collected through field research, construction budget lists, reference statistics, and as-built information.
- Construction and demolition stages
GHG emissions during the construction and demolition stages were calculated by the number of construction materials collected and the corresponding construction methods. The data on construction consumables were obtained from the “Quantity List of the Upgrading and Renovation of Sanxiushan Village Domestic Sewage Treatment Station in Wuxian Town” (later referred to as “Quantity List”) prepared by the construction party; the energy consumption and usage time of machinery construction were based on the relevant contents in the “Quantity List”, “Consumption Quotas for Landscape Engineering in Fujian Province”, and “Construction Machinery Unit Cost Quotas for Housing Construction and Municipal Infrastructure Works (2020 Edition) Calculation of workload (see Table 8 for activity level data collection in the construction and demolition stages).
- 2.
- Use stage
In this study, GHG emissions and carbon storge inventory data for the pre- and post-retrofit use stages were determined by interviewing wastewater treatment station staff and reviewing the relevant literature [69,70]. The sources of GHG emissions before the retrofitting were mainly GHG emissions from the operation of the wastewater treatment facilities and constructed wetlands as a carbon source. The main sources of GHG emissions affecting the use stage after the retrofitting include the operation of the new wastewater treatment station, the retrofitted constructed wetland, and the addition of landscape greenery. The activity level data for each measure were obtained by reviewing retrofit planning documents, references, industry standards, and statistics, combined with field research (see Table 9 for activity level data collection for the use stage).
Table 9.
Activity level data for the use stage.
4. Results
4.1. Whole Life-Cycle Carbon Impact and Carbon Reduction Benefits
In this study, the life-cycle impact on the carbon emission is calculated according to three aspects: the materialization stage (construction materials, machinery, and transportation vehicles), use stage (change of carbon emission caused by the renovation measures), and demolition stage (waste transportation and disposal). Renovation activities were evaluated by assessing the carbon emission impacts caused by each renovation measure at the three stages.
According to the calculation results of the whole life-cycle GHG emissions, this renovation generates a total of 311,780.15 kgCO2eq, the GHG emissions per ton of sewage are 15,589.01 kgCO2eq/t. Of the total emissions, the construction stage generated 92,649.94 kgCO2eq, which translates to 4632.50 kgCO2eq/t per ton of sewage. The use stage generated 10,739.48 kgCO2eq/year, resulting in 86.97 kgCO2eq/t per ton of sewage. Lastly, the demolition stage generated 4340.57 kgCO2eq. (for the overall impact of GHG emissions and carbon reduction benefits, see Figure 5).
Figure 5.
Life-cycle impacts of GHG emissions and carbon reduction benefits.
A total of 15.55% of GHG emissions during the construction stage originated from the construction of the constructed wetlands and its landscape greening (14,409.03 kgCO2eq), accounting for 4.62% of the whole life-cycle GHG emissions, of which 67.07% came from the construction energy consumption (10,615.65 kgCO2eq), with earth and stone machinery having the highest GHG emissions impact rate (Figure 6b). In addition, the excavation of the constructed wetland and transportation and planting of trees also generate a large amount of GHG emissions from the use of earth and stone machinery (Figure 6b).
Figure 6.
Implied GHG (Greenhouse Gas) emissions: (a) GHG emissions from construction stage; (b) GHG emissions from fossil construction machinery (c) the distribution of GHG emissions from the demolition stage.
The remaining 32.93% of GHG emissions during the construction of the constructed wetland and its landscaping came from construction materials (5212.35 kgCO2eq), with materials such as sand and gravel having the highest impact rate (Figure 6a).
The main reason for GHG emissions is that the constructed wetland construction process uses a considerable amount of artificial sand and gravel materials (gravel, strip and landscape stones, etc.), and since the mining and transportation of these artificial sand and gravel generate considerable amounts of GHG emissions, the use of local natural stone is more conducive to GHG emissions reductions.
4.1.1. Carbon Reduction Impact of the Use Stage before and after Retrofitting
The GHG emissions during the utilization stage prior to renovation were approximately 17,209.63 kgCO2eq/years; the average annual GHG emissions per ton of sewage were about 860.48 kgCO2eq/years/t; the GHG emissions of the use stage after retrofitting were about 10,739.48 kgCO2eq/years; and the average annual GHG emissions per ton of sewage were about 536.97 kgCO2eq/years/t. Considering the GHG emissions and carbon storge calculation results, the GHG emissions of the use stage before and after retrofitting are shown in Figure 7.
Figure 7.
GHG emissions statistics of the use stage before and after the renovation.
During the pre-renovation use stage, a total of 33.83% of the GHG emissions came from the daily operation of wastewater treatment plant equipment (5821.92 kgCO2eq/years); 52.49% of the GHG emissions came from the wastewater treatment station (9033.28 kgCO2eq/years); and 13.68% of the GHG emissions came from the daily maintenance of the constructed wetlands (2354.43 kgCO2eq/years).
During the post-renovation use stage, the GHG emissions were reduced, thanks to the carbon reduction benefits generated by the constructed wetland and its landscape greening measures. The carbon reduction measures can achieve an annual carbon reduction of 10,739.48 kgCO2eq/years in the use stage, that is, the whole life cycle can reduce GHG emissions 10,2267.63 kgCO2eq. Among them, the annual carbon storage of artificial wetlands is 597.80 kgCO2eq/yr, accounting for −3.83% of the total life-cycle carbon emissions; the annual carbon storage of land landscape greening is 1002.98 kgCO2eq/yr, accounting for −6.43% of the total life-cycle carbon emissions; and the annual carbon storage of land soil is 3512.6 kgCO2eq/yr, accounting for −22.53% of the total life-cycle carbon emissions.
Figure 8 shows carbon sequestration by different types of trees in Sanxiushan village in this case project. Among trees, Cinnamomum camphora have the highest annual carbon storge (50.43 kg/years), followed by Prunus persica (19.19 kg/years), Pyrus communis (15.03 kg/years), Lagertroemia (10.89 kg/years), and Plumeria rubra (1.32 kg/years). The total carbon storge of Prunus persica was the highest (441.37 kg/years), followed by Cinnamomum camphora (302.55 kg/years), Pyrus communis (120.24 kg/years), Lagertroemia (98.02 kg/years), and Plumeria rubra (40.48 kg/years).
Figure 8.
Carbon sequestration by different types of trees in Sanxiushan village.
4.1.2. Post-Retrofit Dismantling Stage
The GHG emissions from the demolition stage is about 12,226.60 kgCO2eq, according to Equation (15), the demolition construction generates about 1358.51 kgCO2eq, the rest is the GHG emissions from the disposal of waste materials, and the recycling of waste building materials can reduce 7886.03 kgCO2eq; therefore, the total GHG emissions from the demolition stage is about 4340.57 kgCO2eq; among them the most GHG emissions are generated from the disposal of concrete after demolition, calculated according to the data in Table 4, which is 63,408.57 kgCO2eq without considering recycling and only 2191.78 kgCO2eq with considering recycling; in addition, recycling metals can bring the greatest carbon reduction benefits, and Hossain et.al. (2017) concluded that metal recycling can reduce GHG emissions and can replace iron ore to produce new steel [70]; Yedan Liu (2020) studied the life-cycle GHG emissions of recycling and disposal of common building materials and showed that only the recycling GHG emissions of metals were negative (−37.3142 kgCO2eq/t) [71]. The distribution of GHG emissions in the demolition stage is shown in Figure 6c.
4.2. Carbon Payback Time (CPBT)
The carbon payback period can be used to quantify the environmental benefits of carbon reduction. For example, J.T. Mitchell et al. (2010) used the LCA method to quantify the impact of plantation forestry on the carbon payback period of a wind farm in the UK and showed that the wind farm achieved the carbon payback within 3 years of constructing the plantation [72]. Ruixiong Li et al. (2019) used the LCA method to calculate the carbon payback period of a tower-type concentrated solar power plant in China to being close to 4 years [73].
The total GHG emissions of the construction and demolition stages of the case project were 92,649.94 kgCO2eq and 4340.57 kgCO2eq, respectively, that is, the average annual emission of the implicit carbon (embodied carbon) of the renovation process was 4849.53 kgCO2eq/years, and the average annual GHG emissions reduction of the use stage after the renovation was −5113.38 kgCO2eq/years. According to the calculation of Equation (16), the carbon recovery period of this case project renovation was 18.97 years, and the carbon recovery period of the constructed wetland and its landscape greening construction project was only 2.82 years, which means that carbon recovery can be carried out during the entire life cycle.
4.3. Carbon Reduction Efficiency
Carbon reduction efficiency is the ratio of carbon reduction effect before and after retrofitting. Luo Xiaoyu et al. (2022) [72] used the LCA method to assess the carbon reduction efficiency of retrofitting old residential areas and showed that the carbon reduction effect was overestimated by 5.54% (from 29.59% to 35.13%) when embodied carbon (EC) was ignored [74].
The GHG emissions of the case project in the use stage before retrofitting was 17,209.63 kgCO2eq/years, and after retrofitting, it was reduced to 10,739.48 kgCO2eq/years, with the average annual emission of embodied carbon during retrofitting being 4849.53 kgCO2eq/years. According to the calculation of Equation (17), the carbon reduction efficiency of the case project without considering embodied carbon was 37.60%; when considering embodied carbon, the value was 9.42%. This means that the carbon reduction efficiency would be overestimated by 28.18% if embodied carbon is not considered.
5. Discussion
The results of this case study show that, even if the carbon reduction efficiency is reduced when considering the implicit GHG emissions, retrofitting is still beneficial from the perspective of carbon reduction. Based on the results of the above study, the case study can further reduce GHG emissions and thus improve the emission reduction benefits from the following perspectives:
- Reduction in implied GHG emissions
The GHG emissions of the entire life cycle of this research case was about 311,780.15 kgCO2eq, of which the implicit GHG emissions in the construction stage was about 99,619.48 kgCO2eq, accounting for 29.72%; the use stage generated 214,789.64 kgCO2eq, accounting for 68.89%; and the GHG emissions in the demolition stage was very small, about 4340.57 kgCO2eq, accounting for only 1.39%.
The study indicated that the material selection and recycling of waste building materials should be emphasized, and reductions in GHG emissions of building materials can be achieved by selecting local materials, recycling materials, and using low-carbon materials to further reduce the implicit GHG emissions in the construction stage. As for the selection of local materials, since the transportation process of the building materials also generates certain GHG emissions, to reduce the transportation of materials and their impact on global warming, as well as to promote local economic development, more use of local building materials should be promoted.
The GHG emissions from the use of recycled steel in China are only 20~50% of those coming from the use of newly produced steel [75]. If recycled steel was–used in this case project, an additional GHG emissions reduction of 9708.35 kgCO2eq~15,533.36 kgCO2eq could have been achieved, accounting for 10.48~16.77% of GHG emissions in the construction stage. In terms of applying low-carbon building materials, this case project produced more GHG emissions from cement and concrete in addition to steel, and low-carbon building materials can be selected to reduce GHG emissions in the construction stage. Low-carbon cement with C2S as the main mineral component (such as Gob elite cement) has been used in China, which can reduce GHG emissions by 18% compared with traditional cement [76], and if applied in this case project, it could have reduced GHG emissions by an additional 3082.70 kgCO2eq, accounting for 3.33% of GHG emissions in the construction stage. The carbon reduction efficiency of AA concrete [77] is usually between 55% and 75% compared with that of OPC concrete and, if applied in this case project, it could have reduced emissions by an additional 9359.30 kgCO2eq, accounting for 10.10% of the GHG emissions in the construction stage.
- 2.
- Enhancement of carbon storge in terraced Constructed wetlands and their landscape greenery
(1). Changing the Constructed wetland substrate
Constructed wetlands are extremely complex ecosystems, which must reduce their GHG emissions within a controllable range to avoid becoming a carbon source. The complexity of GHG emissions and the carbon storge principle of constructed wetlands are influenced by the climate environment and the composition of wastewater (PH value, DO concentration, and carbon to nitrogen ratio, etc.), and these factors are difficult to control. Therefore, the most prudent approach is undoubtedly to reduce GHG emissions by choosing a suitable constructed wetland substrate. Constructed wetland substrates can regulate the internal environment (including porosity, specific surface area, electrical conductivity, hydrodynamic properties, surface electrical properties, ion exchange properties, dissolved oxygen content, redox potential, and pH) [78] and the ecological bodies (plant growth status and microbial community structure, abundance, etc.), which in turn significantly affect the final release of each GHG emission flux from the constructed wetland into the atmosphere. Therefore, regarding the effect of constructed wetland substrates on GHG emissions, it is mainly through the differences in substrate characteristics that change the internal environment, optimize plant growth and microbial community structure and enzyme activity, and affect organic matter degradation and denitrification processes, which in turn change GHG emission fluxes. The physicochemical properties of different types of substrates vary, and the ability to reduce GHG emissions also varies significantly, and considerable research has been conducted on these topics. This study summarized the effects of different types of substrates on GHG emissions fluxes of constructed wetlands [78,79,80], as shown in Table 10, through which it can be found that changes in substrates have a greater impact on GHG emissions from constructed wetlands. For example, ideally, biochar constructed wetlands can reduce GHG emissions by at least 78.01% compared to gravel substrates.
Table 10.
The effects of different types of substrates on GHG emissions fluxes from constructed wetlands.
(2). Adjustment of the structure of the vegetation community
Considering the implications of plant carbon storge, the GHG emissions in the use stage can be further reduced by adjusting the vegetation community structure. The vertical structure, depression, planting density, and other characteristics of vegetation communities affect Greenland carbon storge by influencing the growth rate of plants within the community, microenvironment, etc. Escobedo et al. (2010) showed that adding shrubs and low-growing small trees to the vertical structure of plant communities, that is, a multi-level vertical structure, helps to enhance the carbon storge effect [81]. In addition, suitable planting density also helps nutrient utilization and the decomposition of apo plankton, thus improving carbon storge [82].
(3). Focus on GHG emissions from vegetation maintenance processes
Scientific conservation is crucial to carbon reduction in constructed wetlands; for example, some studies have shown that reeds have a significant contribution to GHG emissions from constructed wetlands [83], which may be related to the decomposition of reed root secretions and plant death residues [84,85], and that reeds planted in wetlands with long-term flooded areas are prone to anoxic rotting, and their CH4 emissions can reach up to 15 times that of unplanted reed wetlands [86,87], whereas with proper maintenance, GHG emissions from artificial reed wetlands can be significantly reduced from 160 mg/m2/d~400 mg/m2/d to 16 mg/m2/d~112 mg/m2/d [84].
6. Conclusions
- This research introduces an approach for assessing the impact of GHG emissions and carbon mitigation advantages stemming from the refurbishment of rural wastewater treatment facilities in southeastern coastal regions of China. The approach encompasses three stages: construction, utilization, and demolition, and involves two wastewater treatment systems: wastewater treatment stations and constructed wetlands. The investigators examined the renovation of a wastewater treatment facility in Sanxiushan Village, Xiamen City, Fujian Province, employing the “integrated equipment treatment technology—Constructed wetland” system. The primary findings are derived from computations using this case study.
- The impact of implied GHG emissions is substantial. Based on the calculated results, carbon reduction efficacy is overestimated by 28.18% (from 37.60% to 9.42%) when overlooking implicit GHG emissions. This indicates that the construction stage of the retrofitting process significantly impacts the carbon reduction outcome. Furthermore, if construction materials are entirely recycled and repurposed during the demolition stage, GHG emissions can be effectively decreased (from 12,226.60 kgCO2eq to 4340.57 kgCO2eq). Luo Xiaoyu et al. (2022) [72] demonstrated that GHG emissions during the demolition stage can be negative if full recycling of building materials is taken into account [88].
- Despite considering the effect of implicit GHG emissions, the transformation is advantageous. The optimal carbon recovery duration for the case study project was 18.97 years, with the carbon recovery period for the terraced constructed wetlands and their landscape greenery being only 2.82 years. The shorter the carbon recovery period, the greater the carbon reduction benefits in the usage stage post-renovation. Consequently, in similar projects, expanding the area of landscape greenery, carefully selecting tree species, and optimizing vegetation community structure can effectively diminish the GHG emissions throughout the entire life cycle of the “integrated equipment treatment technology—constructed wetland”.
This investigation quantifies GHG emissions by considering constructed wetlands as a carbon source and accounting for the carbon impacts of renovation processes and measures. Nonetheless, this study has certain limitations. First, the methodology relies heavily on materials and GHG emission factors, which could change with process enhancements. Second, carbon storage calculation is an exceedingly intricate process, and this study only offers a cursory evaluation to ensure the calculation boundaries’ completeness. More comprehensive data necessitates ongoing tracking and research. Moreover, renovation usage can affect GHG emissions, particularly under extreme conditions such as typhoons, heavy rainfall, and droughts. If the post-renovation usage period does not reach the intended service life, recovering the implicit carbon generated by renovation may prove challenging. Further examination is required to evaluate these factors’ impact on carbon reduction. Lastly, since this study considers only a single case study and the renovation measures involved were not exhaustive, the accounting results and proposed renovation measures still require validation from other similar engineering implementation cases. The selection of carbon reduction technologies is often constrained by financial concerns, and future research could consider incremental costs and economic payback periods to conduct multi-objective assessments of renovation technologies.
Sources of charts: All other pictures in this paper are drawn by the author.
Author Contributions
X.L., Writing—original draft, completed the field research and wrote the paper. H.Z., Leader of the original research group, contributed to the methodology and supervised the paper, provided key data. M.Y., Management and coordination responsibility for the research activity planning and execution. L.L., Preparation, creation, and/or presentation of the published work by those from the original research group, specifically critical review, commentary or revision—including pre-or post publication stages. Y.Q., Writing—reviewing and editing. All authors have read and agreed to the published version of the manuscript.
Funding
This study was supported by Key Laboratory of Southeast Coastal Ecological Human Settlements in Fujian Province.
Institutional Review Board Statement
Not applicable.
Informed Consent Statement
Not applicable.
Data Availability Statement
Not applicable.
Conflicts of Interest
The authors declare no conflict of interest.
References
- Panja, P. Deforestation, Carbon dioxide increase in the atmosphere and global warming: A modelling study. Int. J. Model. Simul. 2019, 41, 209–219. [Google Scholar] [CrossRef]
- Liu, Z.M.; Zhang, Y. Temporal and spatial transition characteristics, influencing factors and peak path design of carbon emissions in China. J. Southwest Univ. Soc. Sci. 2022, 48, 99–112. [Google Scholar]
- Dai, S.; Qian, Y.; He, W.; Wang, C.; Shi, T. The spatial spillover effect of China’s carbon emissions trading policy on industrial carbon intensity: Evidence from a spatial difference-in-difference method. Struct. Change Econ. D 2022, 63. [Google Scholar] [CrossRef]
- The People’s Republic of China First Biennial Update Report on Climate Change. Available online: https://www.mee.gov.cn/ywgz/ydqhbh/wsqtkz/201904/P020190419522735276116.pdf (accessed on 15 February 2023).
- Lu, J.Y. Carbon Footprint and Reduction Potential of Chinese Waste Water Treatment Sector. Master’s Thesis, University of Science and Technology of China, Hefei, China, 2019. [Google Scholar]
- Gardner, E.A.; Morton, D.; Sands, J.; Matthews, P.; Cook, F.; Jayawardane, N.S. The filter system for tertiary treatment of sewage effluent by land application—Its performance in a subtropical environment. Water Sci. Technol. 2001, 43, 335–342. [Google Scholar] [CrossRef] [PubMed]
- Li, Y.T.; Shi, Y.M.; Wang, J. Research progress on integrated treatment technologies of rural domestic sewage. J. Environ. Eng. Technol. 2021, 11, 499–506. [Google Scholar]
- Zhu, Y.G.; Yang, J.; Qiao, M.M. Project case of domestic sewage treatment by buried integrated AO contact oxidation technology. Technol. Water Treat. 2017, 43, 134–138. [Google Scholar]
- Technical Requirements of Operation Performance Assessment for Rural and Small Town Sewage Treatment Facilities. Available online: https://www.cnis.ac.cn/bydt/bzyjzq/gbyjzq/201909/P020190926570333354570.pdf (accessed on 15 February 2023).
- Announcement, No. 1, 2021: Tracking Audit Results of the Implementation of Major National Policies and Measures in the Third Quarter of 2020 Website of the National Audit Office. Available online: https://www.audit.gov.cn/n5/n25/c142989/content.html (accessed on 8 April 2023).
- Notice of the National Development and Reform Commission of the Ministry of Housing and Urban-Rural Development on Issuing the Implementation Plan for Carbon Peaking in Urban and Rural Construction Urban and Rural Construction (including Housing) Gov.cn. Available online: http://www.gov.cn/zhengce/zhengceku/2022-07/13/content_5700752.htm (accessed on 8 April 2023).
- Li, W.; Zhou, Y.; Dai, X.; Hu, F. Evaluation of rural tourism landscape resources in terms of carbon neutrality and rural revitalization. Sustainability 2022, 14, 2863. [Google Scholar] [CrossRef]
- She, Y.J. Research on Infrastructure Investment Portfolio of Mountainous Townships in Southwest China in the Perspective of Sustainable Construction. Ph.D. Dissertation, Chongqing University, Chongqing, China, 2018. [Google Scholar]
- Zhang, Y.; Ge, T.; Liu, J.; Sun, Y.; Liu, Y.; Zhao, Q.; Tian, T. The comprehensive measurement method of energy conservation and emission reduction in the whole process of urban sewage treatment based on carbon emission. Environ. Sci. Pollut. R 2021, 8, 56727–56740. [Google Scholar] [CrossRef] [PubMed]
- Liu, L.; Zhang, X.; Lyu, Y. Performance comparison of sewage treatment plants before and after their upgradation using emergy evaluation combined with economic analysis: A case from Southwest China. Ecol. Model. 2022, 472, 110077. [Google Scholar] [CrossRef]
- Zhang, X.; Wang, F. Analysis of embodied carbon in the building life cycle considering the temporal perspectives of emissions: A case study in China. Energy Build. 2017, 155, 404–413. [Google Scholar] [CrossRef]
- Zhang, X.; Liu, K.; Zhang, Z. Life cycle carbon emissions of two residential buildings in China: Comparison and uncertainty analysis of different assessment methods. J. Clean. Prod. 2020, 266, 122037. [Google Scholar] [CrossRef]
- Pham, A.; Moussavi, S.; Thompson, M.; Dvorak, B. Environmental life cycle impacts of small wastewater treatment plants: Design recommendations for impact mitigation. Water Res. 2021, 207, 117758. [Google Scholar] [CrossRef] [PubMed]
- Remy, C.; Lesjean, B.; Waschnewski, J. Identifying energy and carbon footprint optimization potentials of a sludge treatment line with Life Cycle Assessment. Water Sci. Technol. 2013, 67, 63–73. [Google Scholar] [CrossRef] [PubMed]
- Liu, B.; Wei, Q.; Zhang, B.; Bi, J. Life cycle GHG emissions of sewage sludge treatment and disposal options in Tai Lake Watershed, China. Sci. Total Environ. 2013, 447, 361–369. [Google Scholar] [CrossRef] [PubMed]
- Lehtoranta, S.; Vilpas, R.; Mattila, T.J. Comparison of carbon footprints and eutrophication impacts of rural on-site wastewater treatment plants in Finland. J. Clean Prod. 2014, 65, 439–446. [Google Scholar] [CrossRef]
- Laura, F.; Joan, G.; Rocío, P.; Marianna, G. Constructed wetlands for winery wastewater treatment: A comparative Life Cycle Assessment. Sci. Total Environ. 2019, 659. [Google Scholar]
- Valerie, J.F.; James, R.M.; John, S.G. Life cycle assessment of vertical and horizontal flow constructed wetlands for wastewater treatment considering nitrogen and carbon greenhouse gas emissions. Water Res. 2010, 45, 2073–2081. [Google Scholar]
- Li, F. Analysis of energy situation in China’s building materials industry. Jiangsu Build. Mater. 2007, 4, 59–60. [Google Scholar] [CrossRef]
- AR6 Synthesis Report: Climate Change 2023. Available online: https://www.ipcc.ch/report/ar6/syr/ (accessed on 8 April 2023).
- Ma, N.; He, X.; Shi, X.; Chen, W. Assessment of urban forest economic benefits based on i-Tree model: Research progress. Chin. J. Ecol. 2011, 30, 810–817. [Google Scholar]
- Wang, Q.; Zhang, Z.; Wang, P. An assessment of ecosystem services of urban green spaces based on i-Tree. J. Landsc. Res. 2019, 11, 53–56. [Google Scholar]
- Wu, J.; Wang, Y.; Qiu, S.; Peng, J. Using the modified i-Tree Eco model to quantify air pollution removal by urban vegetation. Sci. Total Environ. 2019, 688, 673–683. [Google Scholar] [CrossRef] [PubMed]
- Nowak, D.J. Atmospheric carbon reduction by urban trees. J. Environ. Manag. 1993, 37, 207–217. [Google Scholar] [CrossRef]
- Tree. i-Tree Eco User’s Manual. Available online: https://www.itreetools.org/documents/275/EcoV6_UsersManual.2021.09.22.pdf (accessed on 28 April 2023).
- GBT 51366-2019; Standards for Calculating Carbon Emissions from Buildings. Ministry of Housing and Urban-Rural Development of China: Beijing, China, 2019; Volume 2023.
- Ministry of Ecology and Environment. China Regional Power Grid Baseline Emission Factor for 2019 Emission Reduction Project; Ministry of Ecology and Environment of the People’s Republic of China: Beijing, China, 2023.
- Dong, K. Study on the Building Carbon Dioxide Emissions Based Onrein Forced Concretestructures. Master’s Dissertation, Qingdao Technological University, Qingdao, China, 2011. [Google Scholar]
- Na, L. Research on Carbon Emission Calculation and Emission Reduction Strategies of Building Based on Life Cycle Assessment. Master’s Dissertation, Shijiazhuang Tiedao University, Shijiazhuang, China, 2014. [Google Scholar]
- Liu, R.J.; Zhang, Z.H.; Zhou, L. Comparative study on Environmental effects of waterproofing materials during life cycle. Environ. Pollut. Control. 2011, 33, 103–106. [Google Scholar]
- Cang, Y.J. Study on Accounting Methods of Building Carbon Emission in Embodied Stage. Master’s Dissertation, Xi’an University of Architecture and Technology, Xi’an, China, 2018. [Google Scholar]
- Huang, L.Q.; Zhang, Y.; Deng, Y.R.; Ling, L.L.; Liu, X.Z.; Xiao, R.B. The carbon footprint accounting and assessment of urban green space-taking Guangzhou as an example. For. Resour. Manag. 2017, 9, 65–73. [Google Scholar]
- Li, C.J.; Jia, P.Y.; Dong, L. Preliminary study on the near nature garden plant community and its evaluation index system. In Proceedings of the 2007 Annual Meeting of Ornamental Horticulture Committee of Chinese Society of Horticulture, Baoding, China, 9 August 2007; p. 3. [Google Scholar]
- IPCC/OECD. Ipcc Draft Guidelines for National Greenhouse Gas Inventories; Intergovernmental Panel on Climate Change/Organisation for Economic Co-operation and Development Joint Programme; IPCC: Geneva, Switzerland; OECD: Paris, France, 1994; p. 364. [Google Scholar]
- Chen, S.; Lu, F.; Wang, X.K. Estimation of greenhouse gases emission factors for China′s nitrogen, phosphate, and potash fertilizers. Acta Ecol. Sin. 2015, 35, 6371–6383. [Google Scholar]
- Luo, B.; Du, Y.; Han, W.; Geng, Y.; Wang, Q.; Duan, Y.; Ren, Y.; Liu, D.; Chang, J.; Ge, Y. Reduce health damage cost of greenhouse gas and ammonia emissions by assembling plant diversity in floating constructed wetlands treating wastewater. J. Clean. Prod. 2020, 244, 118927. [Google Scholar] [CrossRef]
- Zhang, S.; Liu, F.; Luo, P.; Xiao, R.; Zhu, H.; Wu, J. Nitrous oxide emissions from pilot scale three-stage con-structed wetlands with variable nitrogen loading. Bioresour. Technol. 2019, 289, 121687. [Google Scholar] [CrossRef]
- Hao, X.; Meng, X.; Hu, R. Emissions, influence and control of greenhouse gases in constructed wetlands. China Water Wastewater 2016, 32, 39–47. [Google Scholar]
- Publications—IPCC-TFI. Available online: https://www.ipcc-nggip.iges.or.jp/public/wetlands/ (accessed on 16 February 2023).
- Salm, J.-O.; Maddison, M.; Tammik, S.; Soosaar, K.; Truu, J.; Mander, Ü. Emissions of CO2, CH4 and N2O from undisturbed, drained and mined peatlands in Estonia. Hydrobiologia 2012, 692, 41–55. [Google Scholar] [CrossRef]
- Soosaar, K.; Mander, Ü.; Maddison, M.; Kanal, A.; Kull, A.; Lõhmus, K.; Truu, J.; Augustin, J. Dynamics of gaseous nitrogen and carbon fluxes in riparian alder forests. Ecol. Eng. 2010, 37, 40–53. [Google Scholar] [CrossRef]
- Wu, J.; Zhang, J.; Jia, W.; Xie, H.; Zhang, B. Relationships of nitrous oxide fluxes with water quality parameters in free water surface constructed wetlands. Front. Environ. Sci. Eng. China 2009, 3, 241–247. [Google Scholar] [CrossRef]
- Lu, S.; Li, K.; Jia, J.; Wan, Z.; Wang, G.; Liu, P. Phosphorus removal efficiency of simulated series vertical flow constructed wetlands treating river water. Res. Environ. Sci. 2016, 29, 1218–1223. [Google Scholar]
- Supplement to the 2006 IPCC Guidelines for National Greenhouse Gas Inventories: Wetlands—IPCC. Available online: https://www.ipcc.ch/publication/2013-supplement-to-the-2006-ipcc-guidelines-for-national-greenhouse-gas-inventories-wetlands/ (accessed on 29 March 2023).
- Michael, A.; Joseph, P.M.; David, J.N.; Dar, A.R. Mapping urban forest structure and function using hyperspectral imagery and lidar data. Urban For. Urban Green. 2016, 17, 135–147. [Google Scholar]
- Boukili, V.K.; Bebber, D.P.; Mortimer, T.; Venicx, G.; Lefcourt, D.; Chandler, M.; Eisenberg, C. Assessing the performance of urban forest carbon sequestration models using direct measurements of tree growth. Urban For. Urban Green. 2017, 24, 212–221. [Google Scholar] [CrossRef]
- Wu, W.T.; Xia, G.Y.; Bao, Z.Y. The assessment of the carbon fixation and oxygen release value of the urban green space in Hangzhou. Chin. Landsc. Archit. 2016, 32, 117–121. [Google Scholar]
- Wang, Y.Q. Assessment of Function and Valuation about the Ecosystem Services Provided by Urban Forest in Xiamen. Master’s Dissertation, Fujian Agriculture and Forestry University, Fuzhou, China, 2011. [Google Scholar]
- Li, X.B. Carbon Sequestration of Urban forestsand Lawns in Fuzhou City. Ph.D. Dissertation, Fujian Normal University, Fuzhou, China, 2012. [Google Scholar]
- Xin, C. Studies on Influencing Factors and Reduction Measure of Greenhouse Gas Emissions in Constructed Wetland Wastewater Treatment Systems. Master’s Dissertation, Northeast Institute of Geography and Agroecology, University of Chinese Academy of Sciences, Beijing, China, 2020. [Google Scholar]
- Xu, H.T.; Wang, L.Q.; Shen, J.; Ji, G.H.; Zhao, F.B. Plant and soil organic carbon pools in a constructed wetland of Shatianhu River. Chin. J. Ecol. 2011, 30, 1083–1090. [Google Scholar]
- Zhang, K.; Li, Y.Y. Comparative analysis of carbon emission in the whole life cycle of high-rise reinforced concrete residential buildings in China. Urban. Archit. 2020, 17, 36–38. [Google Scholar]
- Ying, J.; Yi, C. Research on the building carbon emission calculation method in compliance with the theory of full lifecycle—Based upon statistical analysis of CNKI’s domestic literature dated between 1997–2013. Hous. Sci. 2014, 34, 32–37. [Google Scholar]
- Xu, J.; Shi, Y.; Xie, Y.; Zhao, S. A BIM-based construction and demolition waste information management system for greenhouse gas quantification and reduction. J. Clean. Prod. 2019, 229, 308–324. [Google Scholar] [CrossRef]
- Gao, C.K.; Chen, S.; Chen, S.; Wang, S.C. Life cycle assessment of integrated iron and steel works in China. J. Harbin Inst. Technol. 2016, 48, 177–181. [Google Scholar]
- Bok, Y.J.; Tae, S.H.; Kim, R.Y. Analysis of CO2 Emission in the Waste Disposal Process Based on Computation of Construction Waste. In Advanced Materials Research; Trans Tech Publications Ltd.: Incheon, Republic of Korea, 2014; Volume 1025, pp. 1079–1082. [Google Scholar] [CrossRef]
- Asdrubali, F.; Ballarini, I.; Corrado, V.; Evangelisti, L.; Grazieschi, G.; Guattari, C. Energy and environmental payback times for an NZEB retrofit. Build Environ. 2019, 147, 461–472. [Google Scholar] [CrossRef]
- Heaven, S.; Salter, A.; Clarke, D. Influence of annual climate variability on design and operation of waste stabilisation ponds for continental climates. Water Sci. Technol. 2007, 55, 37–46. [Google Scholar] [CrossRef] [PubMed]
- Yuan, Z.S. Operation Parameter Optimization of Combined Process of A/O-Constructed Wetland and Screening of Plants for the Treatment of Rural Waste Water. Master’s Dissertation, Nanjing Agricultural University, Nanjing, China, 2014. [Google Scholar]
- Hu, X.B.; Luo, H.; Jin, Z.Q.; Zhang, Z.Y. Research progress of rural domestic sewage treatment technology. Appl. Chem. Ind. 2020, 49, 2871–2876. [Google Scholar]
- Carsten, S.; Jörg, G.; Bernhard, R. Treatment of rainbow trout farm effluents in constructed wetland with emergent plants and subsurface horizontal water flow. Aquaculture 2003, 217, 207–221. [Google Scholar]
- Kuschk, P.; Wiessner, A.; Kappelmeyer, U.; Weissbrodt, E.; Kästner, M.; Stottmeister, U. Annual cycle of nitrogen removal by a pilot-scale subsurface horizontal flow in a constructed wetland under moderate climate. Water Res. 2003, 37. [Google Scholar] [CrossRef] [PubMed]
- Shen, L.Y.; Wu, J.; Zhong, F.; Xiang, D.F.; Chen, S.P. Effect of step feeding on the performance of multi-stage vertical flow constructed wetland for municipal wastewater treatment. J. Lake Sci. 2017, 29, 1084–1090. [Google Scholar] [CrossRef]
- Zhong, Q.S.; Sun, X.W.; Wang, J.Y.; Chen, J. Multilevel waterfall-organic filler constructed wetland for rural domestic sewage treatment. Environ. Eng. 2014, 32, 18–22. [Google Scholar]
- Hossain, M.U.; Wu, Z.; Poon, C.S. Comparative environmental evaluation of construction waste management through different waste sorting systems in Hong Kong. Waste Manag. 2017, 69, 325–335. [Google Scholar] [CrossRef]
- Liu, Y.D. Research of Comprehensive Benefit Evaluation and Strategic Choice of Construction Waste Disposal. Master’s Dissertation, Guangzhou University, Guangzhou, China, 2020. [Google Scholar]
- Luo, X.; Ren, M.; Zhao, J.; Wang, Z.; Ge, J.; Gao, W. Life cycle assessment for carbon emission impact analysis for the renovation of old residential areas. J. Clean. Prod. 2022, 367, 132930. [Google Scholar] [CrossRef]
- Mitchell, J.T.; Grace, J.; Harrison, G.P. CO2 payback time for a wind farm on afforested peatland in the UK. Mires Peat 2010, 4, 10. [Google Scholar]
- Li, R.; Zhang, H.; Wang, H.; Tu, Q.; Wang, X. Integrated hybrid life cycle assessment and contribution analysis for CO2 emission and energy consumption of a concentrated solar power plant in China. Energy 2019, 174, 310–322. [Google Scholar] [CrossRef]
- Ke, L. Study on Low Carbon Design of High and Large Space Public Building in Hot Summer and Cold Winter Area of China. Ph.D. Dissertation, Southeast University, Cape Girardeau, MO, USA, 2021. [Google Scholar]
- Al, P.C.E. Low-Carbon Buildings and Low-Carbon Cities; China Environmental Publishing Group: Beijing, China, 2018. [Google Scholar]
- Yang, K.H.; Song, J.K.; Song, K.I. Assessment of CO2 reduction of alkali-activated concrete. J. Clean. Prod. 2013, 39, 265–272. [Google Scholar] [CrossRef]
- Xu, G.; Li, Y.; Hou, W.; Wang, S.; Kong, F. Effects of substrate type on enhancing pollutant removal performance and reducing greenhouse gas emission in vertical subsurface flow constructed wetland. J. Environ. Manag. 2020, 280, 111674. [Google Scholar] [CrossRef] [PubMed]
- Zhao, Z.J.; Hao, Q.J.; Tu, T.T.; Hu, M.L.; Zhang, X.Y.; Jiang, C.S. Effects of Ferric-Carbon Micro-Electrolysis and Zeolite on Water Purification and Green House Gas Emissions of Aeration Constructed Wetland. Master’s Dissertation, Southwest University, Cape Girardeau, MO, USA, 2021. [Google Scholar]
- Xu, G.M. Effect of Sub Strate Configuration on Constructed Wetland Performance and Greenhouse Gas Flux. Master’s Dissertation, Qingdao University, Qingdao, China, 2020. [Google Scholar]
- Jiao, D. Research of the Selection and Decision Model of Construction Equipment under Carbon Constraints. Master’s Dissertation, Dalian University of Technology, Dalian, China, 2011. [Google Scholar]
- Escobedo, F.; Varela, S.; Zhao, M.; Wagner, J.E.; Zipperer, W. Analyzing the efficacy of subtropical urban forests in offsetting carbon emissions from cities. Environ. Sci. Policy 2010, 13, 362–372. [Google Scholar] [CrossRef]
- Wang, Y.; Chang, Q.; Li, X. Promoting sustainable carbon sequestration of plants in urban greenspace by planting design: A case study in parks of Beijing. Urban For. Urban Green. 2021, 64, 127291. [Google Scholar] [CrossRef]
- Brix, H.; Sorrell, B.K.; Lorenzen, B. Are phragmites-dominated wetlands a net source or net sink of greenhouse gases? Aquat. Bot. 2001, 69, 313–324. [Google Scholar] [CrossRef]
- Sorrell, B.K.; Brix, H.; Schierup, H.H.; Lorenzen, B. Die-back of phragmites australis: Influence on the distribution and rate of sediment methanogenesis. Biogeochemistry 1997, 36, 173–188. [Google Scholar] [CrossRef]
- Chen, H.; Zhou, S.; Wu, N.; Wang, Y.F.; Luo, P.; Shi, F.S. Advance in studies on production, oxidation and emission flux of methane from wetlands. Chin. J. Appl. Environ. Biol. 2006, 12, 726–733. [Google Scholar]
- Huang, G.H.; Xiao, D.N.; Li, Y.X.; Chen, G.X.; Yang, Y.C.; Zhao, C.W. CH4 emissions from the reed wetland. Acta Ecol. Sin. 2001, 21, 1494–1497. [Google Scholar]
- Wang, W.Q.; Zeng, C.S.; Tong, C. Reviews on the mechanism of methane emission and methane flux in reed (Phragmites australis) marsh. Agric. Syst. Sci. Compr. Study 2008, 24, 20–25. [Google Scholar]
Disclaimer/Publisher’s Note: The statements, opinions and data contained in all publications are solely those of the individual author(s) and contributor(s) and not of MDPI and/or the editor(s). MDPI and/or the editor(s) disclaim responsibility for any injury to people or property resulting from any ideas, methods, instructions or products referred to in the content. |
© 2023 by the authors. Licensee MDPI, Basel, Switzerland. This article is an open access article distributed under the terms and conditions of the Creative Commons Attribution (CC BY) license (https://creativecommons.org/licenses/by/4.0/).







