Next Article in Journal
The Impact of Innovation-Driven Strategy on High-Quality Economic Development: Evidence from China
Previous Article in Journal
A Conceptual Landscape-Level Approach to Assess the Impacts of Forestry on Biodiversity
 
 
Font Type:
Arial Georgia Verdana
Font Size:
Aa Aa Aa
Line Spacing:
Column Width:
Background:
Article

Comparative Life Cycle Assessment of a Historic and a Modern School Building, Located in the City of Naoussa, Greece

Laboratory of Building Materials, School of Civil Engineering, Aristotle University of Thessaloniki, 54124 Thessaloniki, Greece
*
Author to whom correspondence should be addressed.
Sustainability 2022, 14(7), 4216; https://doi.org/10.3390/su14074216
Submission received: 25 January 2022 / Revised: 28 March 2022 / Accepted: 30 March 2022 / Published: 1 April 2022
(This article belongs to the Section Sustainable Materials)

Abstract

Life Cycle Assessment is often applied as a methodological approach for evaluating the environmental performance and impact of the building sector, including building stock. In the present study, two school buildings, located in the city of Naoussa, N. Greece were analyzed, including a historic and a modern one. The survey concerned on-site inspection and documentation of the structures, data collection and analysis, Life Cycle Impact assessment, as well as comparative evaluation of the results. The objective was to indicate the constructional and performance characteristics of the buildings, as well as to comparatively evaluate their environmental performance and impact. Since historic school buildings still function as educational units, these aspects are crucial and may determine their future operation and use. For LCA, the expected life span of the buildings was taken into account (60 years for the modern school and 140 years for the historic one), as well as all life cycle stages (product, construction, use, end of life, beyond building life). Various indicators were assessed, such as Global Warming Potential (GWP), Fossil Fuel Consumption, Total Primary Energy, Non-Renewable Primary Energy. From the correlation of the results, it was asserted that although the two buildings present similar operational characteristics and needs, they have different environmental performances and impacts, mainly attributed to their different service life and structural characteristics. Although the operational GWP value of the historic building is higher (due to the extended life span), the embodied one is significantly lower (due to the natural materials used for its construction). Other indicators, such as fossil fuel consumption are also higher in the case of the modern school building, indicating that its environmental footprint is more intense.

1. Introduction

Historic schools started to be erected during the 18th century, while their construction was systemized at the end of the 19th century [1,2,3,4,5,6]. They were mainly built with stone masonry, following the diachronic principles of construction and applying locally available raw materials [5,6]. At the beginning of the 20th century, secondary concrete elements started to be used, so as to enhance the stability of the structures, such as floor plates, beams and columns [2,6,7,8]. In all cases, the ground plan of the buildings played an important role, including a symmetric allocation of the inner spaces and distribution of the openings [8,9,10,11].
Nowadays, there is a great stock of historic school buildings in Europe that still function as schools, are used for a secondary purpose (i.e., cultural centers or museums) or are abandoned [2,6,9,10,11,12,13,14]. Their abandonment, due to structural damages they confronted or abolition of the hosted school unit, usually leads to the aggravation of their preservation state. In some cases, historic school buildings were demolished and replaced by modern ones.
The values encompassed in their structure are multiple (historic, architectural, constructional, educational) since they have been diachronically the educational and cultural landmarks of their area [6]. In the case of rural settlements, schools were usually erected in prominent locations (often in the city center), serving as a social key element of their development. To this point, their preservation is important, taking into account the tangible and intangible principles of their construction, as well as their diachronic impact on the citizens’ life.
In order to assess the environmental performance and impact of the building sector, including the building stock, Life Cycle Assessment (LCA) is usually implemented. Although it is a complex task, due to the multiscale factors taken into account, it involves processes related to the planning, construction, use, and deconstruction of buildings [15,16,17,18,19,20]. Historic structures, on the other hand, are usually difficult to be assessed, due to the complexity of their constructional elements, especially in the case of their diachronic operation [21].
In this paper, two school buildings were studied, in an effort to determine their environmental performance and impact. They both refer to primary schools, located in N. Greece, concerning a historic building (built in 1921) and a modern one (built in 2001). Their architectural, constructional and operational characteristics were assessed, while LCA methodology was followed. The aim of the study was the comparative evaluation of all results, in order to identify the key elements of their performance. Additionally, an effort was made to identify the behavior of the historic school, contrary to the modern one so as to assess whether its use is feasible and could be further improved.
The novelty of the study tackles several aspects, taking into account that there is a lack of LCA studies in historic structures. It focuses on a specific building type (non-residential buildings), operating as educational units and presenting similar operational characteristics, whilst their constructional physiognomy and lifespan are different. Since historic school buildings are usually unlisted and non-treated as heritage assets, their future, mostly linked to their functional integrity, is not predefined. For maintaining this significant part of cultural heritage, a crucial aspect is the identification of the buildings’ performance and potential, which can be also approximated by LCA. The comparative assessment of a historic and a modern building is also a significant output that could lead to further relevant studies in the future.

2. Life Cycle Assessment in the Building Sector

As stated, LCA concerns a thorough methodology for determining the energy performance of buildings throughout their service life. During the first stage, the goals and objectives of the study are determined, as well as the boundaries foreseen [16]. In the second (Life Cycle Inventory, LCI), the data input is implemented, assessed during the third stage (Life Cycle Impact Assessment, LCIA), where potential environmental impacts may be foreseen. The last stage concerns the comparative evaluation of all results, providing relevant recommendations and limitations. During a cradle to cradle approach [18] and according to EN 15643 [19], further aspects may be assessed (economic, social, and environmental), interrelated to the technical and functional performance of the structure.
Regarding the environmental footprint of buildings, they lead to 30–40% of the worldwide energy consumption, as well as 40–50% of the greenhouse gas emission [16,17]. Additionally, building materials’ production is responsible for 8–12% of the global CO2 emissions, having a great impact on natural resources consumption [17,20]. Generally, during the construction phase of a building around 40% of the total energy consumption is required (primary energy) [17]. Thus, the usage stage requires 60% of the total energy, mainly attributed to heating/cooling, lighting demands, as well as other operational needs [17].
As mentioned, LCA may be accomplished in the building stock, including residential and non-residential buildings (public and commercial use) [17,21,22], while there are limited studies on historic structures’ assessment [4,17,21]. According to literature, there is a high range of the embodied energy values (initial and recurring) of non-residential buildings, varying from 2 to 55% of the total energy demand and up to 57% of the Global Warming Potential (GWP) [17]. This may be due to the type, size and characteristics of the buildings, as well as their use and operational demands [17,21,22]. A major aspect, influencing all results, is their service life, which can vary from 50 to 150 years [17,21,22,23,24,25,26]. Generally, the initial embodied energy decreases when the lifespan is increased [25].
On the other hand, the environmental performance and energy efficiency of buildings are crucial aspects to be taken into account [27]. Thermally efficient building designs or renovations, linked with higher construction costs may lead to energy cost savings during the life cycle of the building [27]. To this point, as well as in other cases (i.e., demolition and recycling), Life Cycle Costing (LCC) analysis may be a valuable tool to determine cost-saving and other relevant perspectives [28].
School buildings, usually present high embodied energy values, related to their architectural and constructional characteristics (number of floors, plans, building materials etc.), while during a service life of 60 years the embodied and operational energy are almost equally distributed [25]. High-embodied energy constructional materials and elements (i.e., steel, concrete, glass) increase the initial embodied energy, constituting their selection, applicability and recycling potential a major issue [16,21,25].
To this point, EN 15643 [29], refers to multiple parameters related to the social performance and impact of buildings for their sustainable assessment, while Directive 2002/91/EC [30], promotes the minimum energy performance requirements of the building stock unless they would alter the characteristics of structures with architectural/historic merit. Life Cycle Assessment may therefore assist in the decision-making for reducing the building’s environmental impact and establishing environmentally-focused strategies [29].

3. Materials and Methods

During the study, two school buildings, located in the city center of Naoussa (N. Greece) were analyzed. They are both functioning as primary schools, a historic building (Galakia) erected in 1921 and a modern one (Sefertzio) constructed in 2001. They have been comparatively studied since they have similar architectural characteristics and operational needs. They are both three-story buildings with semi-basement, elevated ground floor and 1st floor, while the type and dimensions of their plans are similar.
The survey consisted of various stages, including on-site inspection and photographic documentation, in order to identify their architectural, functional and constructional characteristics, following former studies [7]. A thorough investigation was implemented in both cases, with an update of the existing architectural plans (provided by the responsible Authorities), as well as a determination of their structural aspects (building materials, techniques), operational needs and requirements. To this point, school archives were assessed, as well as a close collaboration with the schools’ directors and relevant authorities (Municipality, Educational Directorate). All results were classified and comparatively evaluated in order to determine the physiognomy and structure of the buildings.
The second stage included the life cycle assessment of the 2 school buildings, concerning data analysis, identification of their environmental performance and footprint, as well as comparative evaluation of all results. The methodology followed ΕΝ 15978:2011 [31], while the Global Methodology for the Environmental Assessment οf Buildings [32], as well as other standards and reports [33,34,35,36] were taken into account.
In order to accomplish the research goals, several aspects were taken into account, such as the type and characteristics of the building elements, including substructure, superstructure and services. The functional equivalent was also assessed, concerning technical and operational characteristics, the life cycle stages of the buildings (construction, use, end of life stage), correlated with the relevant Modules, as well as other environmental parameters, such as embodied and operational energy consumption, burdens etc. Finally, relevant scenarios were assessed, as well as environmental impacts and indicators, in order to determine the environmental parameter results per life cycle module.
For implementing the LCA of the buildings, the open software ‘Athena impact estimator for buildings’ [37] was used. All relevant data were uploaded to the system, taking into account relevant assumptions and simplifications. Generally, LCA studies include multiple assumptions related to the energy requirements in all stages of the building’s life cycle, especially concerning the demolition phase [29]. In this case, the following assumptions were made, according to relevant studies [29]:
  • Regarding the geographical location, restricted to Canada and US, the city of New York was selected, presenting similar environmental conditions to Northern Greece.
  • The life limit of the buildings was assumed to be 2061, with a 60-year life span for the modern (built in 2001), and 140 for the historic (1921) building.
  • No interventions during its life cycle were taken into account for the historic building.
  • The service life of the structural components was considered to be similar to that of the buildings.
  • Local raw materials were assumed to have been used in both cases.
  • The operational use and cost of the buildings were according to the data provided by the relevant authorities.
  • The environmental impact was considered to be constant over time.
The methodology followed is presented in Figure 1.

4. Results and Discussion

4.1. Architectural and Constructional Characteristics of the School Buildings

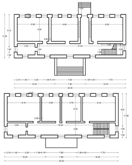
The 3rd Primary School of Naoussa (Galakia) (Figure 2), built in 1921, is a three-story building, consisting of a semi-basement (extended only in the NE part), elevated ground floor (0.6–1.2 m above the ground level) and 1st floor. The floor plan is rectangular (dimensions: 28.3 × 11 m) (Figure 3), while the roof is wooden, covered with traditional ceramic tiles. The orientation of the main facade is northwestern. The ground plan is simple (Figure 3), with an elongated corridor, located on the NW side of the building and a transversal one in the SE part. Classrooms are successively arranged in the SE part of the ground and 1st floor, alongside the elongated corridor (Figure 3). Generally, there is a symmetric organization of the floor plan in both the elongated and vertical axis, mainly observed on the 1st floor, whilst openings are symmetrically distributed in the building shell. Externally, facades follow the plan, depicting the arrangement of the inner spaces, while decorative elements highlight construction.
The total height of the building is 11m. The internal height of the semi-basement is 2.7 m, and 4.37 m for the ground and 1st floors. Masonries are built with rubble and semi-ashlar stones and lime-based mortars, presenting a decreasing thickness in height. External walls are 0.82–0.78 m thick in the basement, 0.78 m on the ground floor and 0.74 m on the 1st floor, whilst internal walls are 0.6m and 0.38 m thick on the ground and 1st floor, respectively. The floor type varies, with a concrete slab extended in the corridors of the ground floor and the staircase, while the rest of the floors are wooden (Figure 4).
The 4th Primary school of Naoussa (Sefertzio) was built in 2001 (Figure 5). It is a modern, three-story building with a semi-basement, raised ground floor (0.85–1.5 m from the ground level), 1st floor and tiled roof. It has an approximate rectangular floor plan (dimensions: 20.6 × 12.4 m) (Figure 6) and a total height of 10.5 m. The orientation of the main facade is eastern, whereas the internal height of the semi-basement is 3.8 m and 3.15 m is the height of the ground and 1st floor. The construction refers to reinforced concrete horizontal and vertical load-bearing elements, as well as brick masonries, 0.4 m thick. The thickness of the concrete plates is 0.25 m. The semi-basement hosts auxiliary spaces (storage rooms, library, gym), the ground floor has 3 classrooms and a WC, while on the 1st floor there are 3 classrooms and 2 offices (Figure 7). The floor plan is symmetric both in the elongated and vertical axis, with a symmetric distribution of the openings. Facades follow traditional morphological elements, such as cornices and windows frames.

4.2. Life Cycle Assessment of the School Buildings

The architectural, constructional and functional characteristics of the two school buildings, according to EN 15978 [31], are presented in Table 1.

4.3. Data Input

All relevant data (Table 1) were input into the software, such as location, building type (institutional), total height, floor plan area, constructional aspects, as well as the annual electricity consumption for lighting and the diesel consumption for heating (Figure 8). Regarding the expected lifetime of the schools, the year 2061 was considered to be the time limit, taking into account 60 years of operation for the modern school (built in 2001). According to the literature [17,21,22,23,24,25,26,29], the lifespan of buildings may range from 50 to 150 years, while in the case of schools, a cycle of 60 years is promoted [25]. In this case, the historic school would have an operational use of 140 years (1921–2061).
After the input of all data, there is an automatic calculation of the mass value of the building materials for each school. The results are presented in Figure 9 and Figure 10.
According to the data input, the software may also define some environmental and social impact indicators, regarding each life cycle stage of the schools (product, construction, use, end of life, beyond building life). These concern Global Warming Potential (GWP), Fossil Fuel Consumption, Acidification Potential, HH Particulate, Ozone Depletion Potential, Smog Potential, Eutrophication Potential, Total Primary Energy and Non-Renewable Primary Energy. The results are presented in Figure 11.
In an effort to assess a correlation of the indicators in the historic and modern schools, Figure 12 is provided. It refers to the contribution of the structural elements to GWP and fossil fuel consumption, showing the different types of results attained. Additionally, the correlation of the operational GWP (formed during the use stage) and the embodied one (referring to materials used during all life cycle stages) is given.
According to the results (Figure 12a,b), GWP indicator values (defining the increase of average temperature due to the greenhouse effect), present significant differences between the two schools. The modern building value is almost triple compared to the historic one, mainly determined by walls and floors. The highest GWP percentage for the modern school refers to walls (35.34%), while for the historic one walls are about 57% of the total value. Results are in line with relevant studies, showing that modern structures lead to a greater QWP impact, due to the type of materials used (i.e., reinforced concrete) [17,21,38,39]. On the contrary, traditional materials (i.e., stone, wood) seem to present a lower GWP. Chen et al. [39], supports that GWP was 24% lower in a timber building compared to a concrete one.
Regarding the operational and embodied GWP (Figure 12c,d), the operational value is almost equal to the ¾ of the embodied one in both buildings, while in the historic school, the embodied is 27 times less than the operational GWP. To this point, the natural materials used for its construction (stone, lime-based mortars), as well as its extended service life (140 years) play an important role. Other studies [16,21,25,40,41,42,43] present relevant results, highlighting that the selection of building materials is interlinked with the embodied energy values. Asif et al. [40] pointed out that in a residential building, concrete contributed to 61% of the initial embodied energy, contrary to traditional materials (tiles, wood), due to its high total amount. Ding [25], stated that in Australian school buildings, recurrent embodied energy had a proportion of 52% of the total embodied energy consumption, with the respective initial embodied energy being 48%. Chastas et al [41], on the other hand, identified that the increase of a building lifespan from 25 to 75 years, despite recurring embodied energy increases, could lead to a 14–29% decrease in the total embodied energy.
The fossil fuel consumption indicator includes non-renewable primary energy sources (i.e., carbon, diesel, gas) for operational needs. According to the results (Figure 12e,f), the total value of the modern school is almost double the historic one. The high consumption of the historic school probably is due to its large service life, as well as the lack of any thermal insulation.

5. Discussion

From the evaluation of the results, it was asserted that the performance of the school buildings significantly varies. The structural element category, defining the Indicators’ values, is mostly walls, while the minimum effect may be attributed to the roof for the modern building and the floors for the historic one. The primary role of walls in the performance of the building sector has been also identified by other researchers [25,39].
According to the operational and embodied values of some indicators (GWP, Fossil fuel consumption, Total primary energy, Non-renewable energy), it is observed that in the historic school, operational energy ranges from 28 (for GWP) to 38 (for non-renewable energy) times more than the embodied value, while in the modern one the operational value is 3.5 to 6.5 times higher than the embodied one (Figure 13). Meanwhile, the operational value of all 4 indicators for the historic school is 280% higher than those of the modern building, while the embodied value of the historic building is 36–50% higher.
It is therefore assessed that the operational needs of the historic building are much higher than the embodied values (concerning the materials in all life cycle stages), whilst in the modern school the operational needs are significantly lower. This could be related to the extended service life of the historic school (140 years), the lack of heating insulation, as well as its larger ground plan (>58 m2). The low embodied demand of the historic school may result from the natural building materials used for its construction (stone masonry).
In Table 2, a correlation of the indicators’ values is given for each life cycle stage of the buildings. It may be assessed that the historic school outweighs the modern one in all life cycle stages (production, construction, end of life, disposal), except for during its use.

6. Conclusions

The comparative assessment of the modern and historic school buildings, showed their different environmental performance and impact, although they are situated in the same area and present similar operational characteristics and demands. From an evaluation of the results, it was concluded that their service life and construction materials constitute the main parameters affecting their behavior.
Generally, it may be asserted that the environmental impact of the modern school is significantly higher compared to the historic one. On the other hand, the high operational energy consumption of the latter may be attributed to its extended lifespan, as well as the lack of insulating materials in its structure. It could be therefore stated that a proper renovation of the historic building, taking into account its environmental requirements, as well as its architectural and structural aspects may be the key element of its performance and preservation for future generations.

Author Contributions

Conceptualization, V.P.; methodology, V.P.; software, V.G.; validation, V.P.; formal analysis, V.G.; investigation, V.G.; resources, V.P. and V.G.; data curation, V.P. and V.G.; writing—original draft preparation, V.P.; writing—review and editing, V.P.; visualization, V.P. and V.G.; supervision, V.P. All authors have read and agreed to the published version of the manuscript.

Funding

This research received no external funding.

Institutional Review Board Statement

Not applicable.

Informed Consent Statement

Not applicable.

Data Availability Statement

Not applicable.

Conflicts of Interest

The authors declare no conflict of interest.

References

  1. Salvado, F.; Marques de Almeida, N.; Vale e Azevedo, A. Historical analysis of the economic life-cycle performance of public school buildings. Build. Res. Inf. 2019, 47, 813–832. [Google Scholar] [CrossRef]
  2. Abreu Marques, B.; de Brito, J.; Correia, J.R. Constructive characteristics and degradation condition of Liceu Secondary Schools in Portugal. Int. J. Archit. Herit. 2015, 9, 896–911. [Google Scholar] [CrossRef]
  3. Guarini, M.R.; Morano, P.; Sica, F. Historical school buildings. Amulti-criteria approach for urban sustainable projects. Sustainability 2020, 12, 1076. [Google Scholar] [CrossRef]
  4. Lassandro, P.; Cosola, T.; Tundo, A. School building heritage: Energy efficiency, thermal and lighting comfort evaluation via virtual tour. Energy Procedia 2015, 78, 3168–3173. [Google Scholar] [CrossRef]
  5. Watters, D.M. Our Catholic school: Themes and patterns in early Catholic school buildings and architecture before 1872. Edinb. Univ. Press 2020, 71, 1–66. [Google Scholar] [CrossRef]
  6. Pachta, V. Historic and constructional aspects of stone schools in Greece: The case of the Aristotle municipality in Chalkidiki. J. Archit. Urban. 2021, e45, 143–154. [Google Scholar] [CrossRef]
  7. Pachta, V.; Terzi, V.; Malandri, E. Architectural, Constructional and Structural Aspects of a Historic School in Greece. The Case of the Elementary School in Arnaia, Chalkidiki. Heritage 2021, 4, 1–19. [Google Scholar] [CrossRef]
  8. Perrone, D.; O’ Reilly, G.J.; Monteiro, R.; Filiatrault, A. Assessing seismic risk in typical Italian school buildings: From in-situ survey to loss estimation. Int. J. Disaster Risk Reduct 2019, 44, 101448. [Google Scholar] [CrossRef]
  9. Buvik, K.; Andersen, G.; Tangen, S. Ambitious renovation of a historical school building in cold climate. Energy Procedia 2014, 48, 1442–1448. [Google Scholar] [CrossRef]
  10. Doukas, D.I.; Bruce, T. Energy Audit and Renewable Integration for Historic Buildings: The case of Craiglockhart Primary School. Procedia Environ. Sci. 2017, 38, 77–85. [Google Scholar] [CrossRef]
  11. Martinez-Molina, A.; Boarin, P.; Tort-Ausina, I.; Vivancos, J.L. Post-occupancy evaluation of a historic primary school in Spain: Comparing PMV, TSV and PD for teachers’ and pupils’ thermal comfort. Build. Environ. 2017, 117, 248–259. [Google Scholar] [CrossRef]
  12. Khledj, S.; Bencheikh, H. Impact of a Retrofitting Project on Thermal Comfort and Energy Efficiency of a Historic School in Miliana, Algeria. Int. J. Archit. Herit. 2019, 15, 407–425. [Google Scholar] [CrossRef]
  13. Dascalaki, E.G.; Sermpetzoglou, V.G. Energy performance and indoor environmental quality in Hellenic schools. Energy Build. 2011, 43, 718–727. [Google Scholar] [CrossRef]
  14. Lerma, C.; Mas, A.; Blasco, V. Analysis Procedure of a Previous Planning Organization: The Area of the Seminary School of Corpus Christi in Valencia, Spain. Int. J. Archit. Herit. 2013, 7, 135–152. [Google Scholar] [CrossRef][Green Version]
  15. Fonseca i Casas, P.; Fonseca i Casas, A. Using Specification and Description Language for Life Cycle Assesment in Buildings. Sustainability 2017, 9, 1004. [Google Scholar] [CrossRef]
  16. Ahmad Faiz, A.R.; Sumiani, Y. A review of life cycle assessment method for building industry. Renew. Sustain. Energy Rev. 2015, 45, 244–248. [Google Scholar]
  17. Varun; Sharma, A.; Shree, V.; Nautiyal, H. Life cycle environmental assessment of an educational building in Northern India: A case study. Sustain. Cities Soc. 2012, 4, 22–28. [Google Scholar] [CrossRef]
  18. Van der Grintern, B. Cradle to Cradle in a Nutshell. C2C Summary and Design Tools. 2008, Netherlands. Available online: www.bramvandergrinten.nl (accessed on 24 January 2022).
  19. EN 15643-3; Sustainability of Construction Works—Assessment of Buildings. Part 3: Framework for the Assessment of Social Performance. European Committee for Standardization: Brussels, Belgium, 2021.
  20. Gielen, D. Building Materials and CO2-Western European Emissions Reduction Strategies. MATTER Project Report. Energy Research Centre of the Netherlands (ECN). 1997. Available online: https://www.osti.gov/etdeweb/biblio/584724 (accessed on 24 January 2022).
  21. Vilches, A.; Garcia-Martinez, A.; Sanchez-Montanes, B. Life cycle assessment (LCA) of building refurbishment: A literature review. Energy Build. 2017, 135, 286–301. [Google Scholar] [CrossRef]
  22. Droutsa, K.G.; Kontoyiannidis, S.; Balaras, C.A.; Argiriou, A.A.; Dascalaki, E.G.; Varotsos, K.V.; Giannakopoulos, C. Climate Change Scenarios and Their Implications on the Energy Performance of Hellenic Non-Residential Buildings. Sustainability 2021, 13, 13005. [Google Scholar] [CrossRef]
  23. Mohammadpourkarbasi, H.; Sharples, S. Eco-Retrofitting Very Old Dwellings: Current and Future Energy and Carbon Performance for Two UK Cities. Available online: https://www.semanticscholar.org/paper/ECO-RETROFITTING-VERY-OLD-DWELLINGS-%3A-CURRENT-AND-Mohammadpourkarbasi-Sharples/79aea8e581723d0510eb08ae73094da614771bac (accessed on 24 January 2022).
  24. Ardente, F.; Beccali, M.; Cellura, M.; Mistretta, M. Energy and environmental benefits in public buildings as a result of retrofit actions. Renew. Sustain. Energy Rev. 2011, 15, 460–470. [Google Scholar] [CrossRef]
  25. Ding, G.K.C. Life cycle energy assessment of Australian secondary schools. Build. Res. Inf. 2007, 35, 487–500. [Google Scholar] [CrossRef]
  26. Zabalza Bribian, I.; Aranda Uson, A.; Scarpellini, S. Life cycle assessment in buildings: State-of-the-art and simplified LCA methodology as a complement for building certification. Build. Environ. 2009, 44, 2510–2520. [Google Scholar] [CrossRef]
  27. Morrissey, J.; Horne, R.E. Life cycle cost implications of energy efficiency measures in new residential buildings. Energy Build. 2011, 43, 915–924. [Google Scholar] [CrossRef]
  28. Gluch, P.; Baumann, H. The life cycle costing (LCC) approach: A conceptual discussion of its usefulness for environmental decision-making. Build. Environ. 2004, 39, 571–580. [Google Scholar] [CrossRef]
  29. Atmaca, A.; Atmaca, N. Life cycle energy (LCEA) and carbon dioxide emissions (LCCO2A) assessment of two residential buildings in Gaziantep, Turkey. Energy Build. 2015, 102, 417–431. [Google Scholar] [CrossRef]
  30. The Energy Performance of Buildings, the European Parliament and the Council. 16 December 2002. Available online: https://www.eumonitor.eu/9353000/1/j9vvik7m1c3gyxp/vitgbgibfwnr (accessed on 24 January 2022).
  31. BS EN 15978:2011; Sustainability of Construction Works—Assessment of Environmental Performance of Buildings–Calculation Method. European Committee for Standardization: Brussels, Belgium, 2012.
  32. BRE Global. Methodology for The Environmental Assessment of Buildings, PN 326 Rev 0.0. Available online: https://www.greenbooklive.com/filelibrary/EN_15804/PN326-BRE-EN-15978-Methodology.pdf (accessed on 24 January 2022).
  33. EN 15804:2012+A1:2013; Sustainability of Construction Works—Environmental Product Declarations—Core Rules for the Product Category of Construction Products. European Committee for Standardization: Brussels, Belgium, 2014.
  34. prENrev 15251:2006 (E); Indoor Environmental Input Parameters for Design and Assessment of Energy Performance of Buildings Addressing Indoor Air Quality, Thermal Environment, Lighting and Acoustics. Available online: http://www.cres.gr/greenbuilding/PDF/prend/set4/WI_31_Pre-FV_version_prEN_15251_Indoor_Environment.pdf (accessed on 24 January 2022).
  35. EN 15603:2008; Energy Performance of Buildings. Overall Energy Use and Definition of Energy Ratings. European Committee for Standardization: Brussels, Belgium, 2008.
  36. Sala, S.; Crenna, E.; Secchi, M.; Pant, R. Global Normalisation Factors for the Environmental Footprint and Life Cycle Assessment; JRC Technical Reports, Joint Research Centre (JRC); Publications Office of the European Union: Luxembourg, 2017; ISBN 978-92-79-77213-9. [Google Scholar] [CrossRef]
  37. Athena Impact Estimator for Buildings. Available online: https://calculatelca.com/software/impact-estimator/overview/ (accessed on 24 January 2022).
  38. Emami, N.; Marteinsson, B.; Heinonen, J. Environmental Impact Assessment of a School Building in Iceland Using LCA-Including the Effect of Long Distance Transport of Materials. Buildings 2016, 6, 46. [Google Scholar] [CrossRef]
  39. Chen, C.X.; Pierobon, F.; Jones, S.; Maples, I.; Gong, Y.; Ganguly, I. Comparative Life Cycle Assessment of Mass Timber and Concrete Residential Buildings: A Case Study in China. Sustainability 2022, 14, 144. [Google Scholar] [CrossRef]
  40. Asif, M.; Muneer, T.; Kelley, R. Life cycle assessment: A case study of a dwelling home in Scotland. Build. Env. 2007, 42, 1391–1404. [Google Scholar] [CrossRef]
  41. Chastas, P.; Theodosiou, T.; Bikas, D. Embodied energy in residential buildings-towards the nearly zero energy building: A literature review. Build. Environ. 2016, 105, 267–282. [Google Scholar] [CrossRef]
  42. Tsoka, S.; Theodosiou, T.; Papadopoulou, K.; Tsikaloudaki, K. Assessing the Energy Performance of Prefabricated Buildings Considering Different Wall Configurations and the Use of PCMs in Greece. Energies 2020, 13, 5026. [Google Scholar] [CrossRef]
  43. Gamarra, A.R.; Lago, C.; Herrera-Orozco, I.; Lechón, Y.; Almeida, S.M.; Lage, J.; Silva, F. Low-Carbon Economy in Schools: Environmental Footprint and Associated Externalities of Five Schools in Southwestern Europe. Energies 2021, 14, 6238. [Google Scholar] [CrossRef]
Figure 1. Chart depiction of the methodology followed for the assessment of the school buildings.
Figure 1. Chart depiction of the methodology followed for the assessment of the school buildings.
Sustainability 14 04216 g001
Figure 2. The NW (left) and SE facade (right) of the historic school building (Galakia).
Figure 2. The NW (left) and SE facade (right) of the historic school building (Galakia).
Sustainability 14 04216 g002
Figure 3. The ground (up) and floor plan (down) of the historic school building (Galakia).
Figure 3. The ground (up) and floor plan (down) of the historic school building (Galakia).
Sustainability 14 04216 g003
Figure 4. Figures of the internal of the historic school building (Galakia). Corridor of the ground floor (left), corridor of the 1st floor (middle), staircase (right).
Figure 4. Figures of the internal of the historic school building (Galakia). Corridor of the ground floor (left), corridor of the 1st floor (middle), staircase (right).
Sustainability 14 04216 g004
Figure 5. The Eastern (left) and Southern facade (right) of the modern school building (Sefertzio).
Figure 5. The Eastern (left) and Southern facade (right) of the modern school building (Sefertzio).
Sustainability 14 04216 g005
Figure 6. The ground (left) and floor plan (right) of the modern school building (Sefertzio).
Figure 6. The ground (left) and floor plan (right) of the modern school building (Sefertzio).
Sustainability 14 04216 g006
Figure 7. Figures of the internal of the modern school building (Sefertzio). Basement (left), staircase (middle), corridor of the 1st floor and entrance to classes and office (right).
Figure 7. Figures of the internal of the modern school building (Sefertzio). Basement (left), staircase (middle), corridor of the 1st floor and entrance to classes and office (right).
Sustainability 14 04216 g007
Figure 8. Data input for the historic school (Galakia).
Figure 8. Data input for the historic school (Galakia).
Sustainability 14 04216 g008
Figure 9. The building materials report for the historic school building (Galakia).
Figure 9. The building materials report for the historic school building (Galakia).
Sustainability 14 04216 g009
Figure 10. The building materials report for the modern school building (Sefertzio).
Figure 10. The building materials report for the modern school building (Sefertzio).
Sustainability 14 04216 g010
Figure 11. Indicators and total values for each life cycle stage of the schools. Historic school building (Galakia, up), modern school building (Sefertzio, down).
Figure 11. Indicators and total values for each life cycle stage of the schools. Historic school building (Galakia, up), modern school building (Sefertzio, down).
Sustainability 14 04216 g011
Figure 12. Comparative assessment of Indicators. (a) Contribution of structural elements to GWP (historic school), (b) Contribution of structural elements to GWP (modern school), (c) operational and embodied GWP (historic school), (d) operational and embodied GWP (historic school), (e) contribution of structural elements to fossil fuel consumption (historic school), (f) contribution of structural elements to fossil fuel consumption (modern school).
Figure 12. Comparative assessment of Indicators. (a) Contribution of structural elements to GWP (historic school), (b) Contribution of structural elements to GWP (modern school), (c) operational and embodied GWP (historic school), (d) operational and embodied GWP (historic school), (e) contribution of structural elements to fossil fuel consumption (historic school), (f) contribution of structural elements to fossil fuel consumption (modern school).
Sustainability 14 04216 g012aSustainability 14 04216 g012b
Figure 13. Fluctuation of GWP indicators for every life cycle stage of both schools. (a) operational GWP, (b) embodied GWP.
Figure 13. Fluctuation of GWP indicators for every life cycle stage of both schools. (a) operational GWP, (b) embodied GWP.
Sustainability 14 04216 g013aSustainability 14 04216 g013b
Table 1. Characteristics of the two school buildings, according to EN 15978.
Table 1. Characteristics of the two school buildings, according to EN 15978.
GroupElement (Building Aspect)Sub-ElementsHistoric School (Galakia)Modern School (Sefertzio)
1.
Substructure
FoundationsMaterialstone masonryRC
External walls semi-basementMaterialSandstone, lime-based mortarRC, brick masonry with thermal insulation
Thickness0.74–0.82 m0.4 m
Internal wallsMaterialstone masonrybrick masonry
Thickness0.38–0.6 m0.4 m
Semi basement floorMaterialPC/natural groundRC plate
Floor coveringsclay tiles/natural groundmosaic/wood
Total thickness0.2 m0.25 m
Stairway with access to semi-basementLocationNE façade internal stairway
MaterialRCRC
Width1.55 m1.2 m
Coveringsmarblemarble
BalustradesNometallic
2.
Superstructure
Vertical load-bearing elements Materialstone masonry pillars in the corridor (every 7–8 m)RC columns
MasonriesMaterial (ext./int.)sandstone, lime-based mortarsbricks with thermal insulation
Thickness/(ext./int.)ground floor0.78 m/0.6 m0.4 m
1st floor0.74 m/0.38 m0.4 m
Ground floorMaterialwood/PC-RC platesRC
Coveringswood/mosaic/clay tilesmosaic/marble/clay tiles
Thickness0.2–0.3 m0.25 m
1st floorMaterialwoodRC
Coveringswoodmarble
Thickness0.4 m0.25 m
BalconyPlatesteel beam (type I), mortar
Coveringswaterproof membrane
Parapetstone masonry
RoofTypefour-fold wooden rooffour-fold roof
Materialbrick tiles, woodbrick tiles, insulation, RC
Internal staircaseLocationW part Centrally at the W facade
MaterialRCRC
Width1.4 m1.4 m
Coverings mosaicmarble
Railingsmetallicmetallic
External staircase (entrance)Number21
LocationSE, NWE
MaterialPCRC
Width3.15 m/6.7 m2.9 m
Coverings marbleMarble
Railingsmetallicmetallic
3.
Heights
Building heightTotal height11 m10.48 m
Raised ground floorYesYes
Ground floor level 0.6–1.2 m0.85–1.5 m
Internal heightsSemi basement1.5–2.05 m3.8 m
Ground floor4.37 m3.15 m
1st floor4.37 m3.15 m
4.
Architectural characteristics
Floor plansPlot area2063.6 m2662.985 m2
Floor plan area313.6 m2260.91 m2
Dimensions28.3 × 11 m20.6 × 12.4 m
Semi basement useNumber46
Usecomputer center/auxiliaryComputer center/gym/library/auxiliary
Ground floor spacesClassroomsNr33
dimensions8 × 6 m/6.8 × 6 m/8 × 6 m7.3 × 5.6 m/7.4 × 6.3 m
orientationNAA/A και N/A
Auxiliary spacesNumber/use 3/Director office, kitchen 1:WC
dimensions4.5 × 2.84 m/2.84 × 1.56m31.1m2
orientationNE, NWW, S
1st floor spacesClassroomsNr53
dimensions8.15 × 6.15 m/4.6 × 6.15m 7.28 × 5.6 m/7.4 × 6.35m
orientationSE, NE, NWE, S
Auxiliary spacesNumber/use 2/directorteachers office
dimensions4.18 × 4 m/31.1 m
orientationE, W, S
5.
Openings
External doorsNumber42
OrientationSE/NE/NWE/W
Access toground floor/semi-basement/balconyground floor/stairway to 1st floor
Dimensions (bxh)1.5 × 3.8 m/1.5 × 1.8 m/1.7 × 3.1 m/1.7 × 2.4 m2 × 2.5 m/1 × 2.5 m
Materialmetallic wooden
WindowsNumber per facadeNW:7/SE:20/SW:2/NE:2 S:14/E:19/W:6
Number/floor 1/14/167/14/16
Dimensionsbasement1.2 × 0.65 m1.2 × 0.3/0.9 m
ground 1.4 × 1.5–2.8 m1.2–4.4 × 1.5 m
1st floor1.4–1.5 × 2.3–2.8 m1.5 × 1.2–4.4 m
Material metallic with single glassPVC with double glass
Internal doorsDimensions1 × 2.5 m1 × 2.5 m
Materialmetallicmetallic
6.
Services
WaterUse kitchen WC/kitchen
ElectricityConsumption/year1035 € (2018–2019)
10,792 kWh
740 € (2018–2019)
11,644 kWh
HeatHeating sourceCentral heating, diesel Central heating, diesel
Diesel cons./year6900 lt (2018–2019): 3101.36 €5400 lt (2018–2019): 6175.10 €
Heating needsOctober–AprilOctober–April
Nr/dms radiators basement1/1.3 × 1.3 m8/1 × 1 m
ground 15/0.5–0.8 × 1 m11/0.7 × 0.8–1 m
1st floor13/0.6–0.9 × 1 m14/0.7 × 0.8–1 m
Location of radiatorsbetween openingsunder openings
Boiler roomN, semi-basementNW, semi-basement
Cooling naturalnatural
7. Functionality Human resourcesStudents (2018–2019)11694
Teachers (2018–2019)1514
Table 2. School building presenting the highest value of indicators per life cycle stage (Modern: M, Historic: H).
Table 2. School building presenting the highest value of indicators per life cycle stage (Modern: M, Historic: H).
Impact IndicatorA1–A3A4–A5B2–B6C1–C4DTotal
Global Warming PotentialMMHMMH
Acidification PotentialMMHMMH
HH ParticulateMHHMMH
Eutrophication PotentialMMHMMH
Ozone Depletion PotentialMMHMMH
Smog PotentialMMHMMH
Total Primary EnergyMMHMMH
Non-renewable EnergyMMHMMH
Fossil Fuel consumptionMMHMMH
Publisher’s Note: MDPI stays neutral with regard to jurisdictional claims in published maps and institutional affiliations.

Share and Cite

MDPI and ACS Style

Pachta, V.; Giourou, V. Comparative Life Cycle Assessment of a Historic and a Modern School Building, Located in the City of Naoussa, Greece. Sustainability 2022, 14, 4216. https://doi.org/10.3390/su14074216

AMA Style

Pachta V, Giourou V. Comparative Life Cycle Assessment of a Historic and a Modern School Building, Located in the City of Naoussa, Greece. Sustainability. 2022; 14(7):4216. https://doi.org/10.3390/su14074216

Chicago/Turabian Style

Pachta, Vasiliki, and Vasiliki Giourou. 2022. "Comparative Life Cycle Assessment of a Historic and a Modern School Building, Located in the City of Naoussa, Greece" Sustainability 14, no. 7: 4216. https://doi.org/10.3390/su14074216

APA Style

Pachta, V., & Giourou, V. (2022). Comparative Life Cycle Assessment of a Historic and a Modern School Building, Located in the City of Naoussa, Greece. Sustainability, 14(7), 4216. https://doi.org/10.3390/su14074216

Note that from the first issue of 2016, this journal uses article numbers instead of page numbers. See further details here.

Article Metrics

Back to TopTop