Research on Dynamic Characteristics of Joint of RC Frame Structure with NES
Abstract
:1. Introduction
2. Experimental Setup
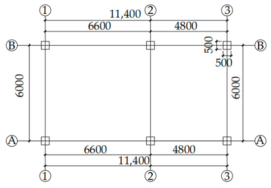
2.1. Prototype Structure
2.2. The Design of Model and Similarity Relation
2.3. Design and Manufacture of NES
2.4. NES Arrangement and Test Point
2.5. Loading Sequence
3. Results and Discussion
3.1. Damage Process and Assessment
3.2. Natural Frequency
3.3. Steel Strain
3.3.1. Strain of Longitudinal Reinforcements of Beam
3.3.2. Strain of Longitudinal Reinforcements of Column
3.3.3. The Strain of Stirrups in Joints
3.4. Strains and Shear Stresses of Concrete in Joints
3.5. Failure Mode of Joints
4. Analysis of Nodal Shear Strength
4.1. Theoretical Calculation for Nodal Shear Strength
4.2. Analysis of Theoretical Strength and Experimental Ones
5. Discussion
6. Conclusions
- (1)
- According to the natural frequency analysis, when the PGA increased from 0.2 g to 0.4 g, the natural frequency decline rate of the frame structure using NES was close to that of the ordinary frame structure without NES, which verifies that the NES has a noticeable effect on improving the seismic capacity of RC frame structures.
- (2)
- The strains of reinforced concrete beams, columns, and stirrup can be reduced effectively up to 50% by NES, and the plastic hinges at the beam ends were delayed in their occurrence. The plastic hinge first appeared at the beam ends, following by the shear failure at the joints; NES is more helpful in realizing the seismic measures.
- (3)
- Under the earthquake, the tensile and compressive strains at joints of the RC frame structure with NES were distributed asymmetrically. As a result, compressive stresses were greater than tensile stresses, representing a failure mode of the “diagonal compression bar mechanism” at joints. So, NES can reduce the shear failure range of concrete and effectively decrease the internal forces shear at joints.
- (4)
- The reinforcements at the column ends were yielded and could not firmly connect the columns with the model structure foundation. Then the bearing capacity of the column bases disappeared, which caused the ultimate failure of the NES-added RC frame structure.
- (5)
- In the final stage of the test, when the stress and strain are less than the theoretical calculation value, serious damage occurs, indicating that the actual bearing capacity is lower than the theoretical calculation value.
Author Contributions
Funding
Institutional Review Board Statement
Informed Consent Statement
Data Availability Statement
Acknowledgments
Conflicts of Interest
References
- Ye, L.P.; Lu, X.Z. Analysis on seismic damage of buildings in the Wenchuan earthquake. J. Build. Struct. 2008, 29, 1–9. [Google Scholar]
- Zhan, Y.X.; Jiang, L.M.; Tang, C.Q.; Wu, C.L. A numerical simulation analysis of the influence of axial compression ratio on the seismic capacity. J. Hunan Univ. Technol. 2017, 31, 30–34, 40. [Google Scholar]
- Pantelides, C.P.; Hansen, J.; Nadauld, J.; Reaveley, L.D. Assessment of Reinforced Concrete Building Exterior Joints with Substandard Details; University of California, Berkeley: Berkeley, CA, USA, 2002. [Google Scholar]
- Park, S.J.; Mosalam, K.M. Experimental and Analytical Studies on Reinforced Concrete Buildings with Seismically Vulnerable Beam-Column Joints; University of California, Berkeley: Berkeley, CA, USA, 2012. [Google Scholar]
- Masi, A.; Santarsiero, G.; Lignola, G.P.; Verderame, G.M. Study of the seismic behavior of external RC beam-column joints through experimental tests and numerical simulations. Eng. Struct. 2013, 52, 207–219. [Google Scholar] [CrossRef]
- Fu, J.P.; Zhang, C.; Chen, T.; Bai, S.L. Experimental investigation of shear mechanism and effect of axial-compression ratio on joints in earthquake-resistant reinforced concrete frames. J. Build. Struct. 2006, 3, 67–77. [Google Scholar]
- Chen, L.L.; Yu, J.; Wang, J. Factors analysis and polarization parameters research on failure modes of reinforced concrete frame joints. Build. Struct. 2012, 42, 76–80, 92. [Google Scholar]
- Fan, G.X.; Song, Y.P.; Wang, L.C.; Wang, D.B. Experimental study of the influence of strain rate on the dynamic performance of interior reinforced concrete beam-column joints. China Civ. Eng. J. 2014, 47, 11–18. [Google Scholar]
- Vakakis, A.F.; Gendelman, O.V. Energy Pumping in Coupled Mechanical Oscillators, Part II: Resonance Capture. Trans. ASME J. Appl. Mech. 2001, 68, 42–48. [Google Scholar] [CrossRef]
- Nucera, F.; Vakakis, A.F.; McFarland, D.M.; Bergman, L.A.; Kerschen, G. Targeted Energy Transfer in Vibro-impact Oscillators for Seismic Mitigation. Nonlinear Dyn. 2007, 50, 651–677. [Google Scholar] [CrossRef]
- Starosvetsky, Y.; Gendelman, O. Attractors of the harmonically forced linear oscillator with attached nonlinear energy sinkII: Optimization of nonlinear vibration absorber. Nonlinear Dyn. 2008, 50, 47–57. [Google Scholar]
- Zhang, Y.C.; Kong, X.R. Initial conditions for targeted energy transfer in coupled nonlinear oscillators. J. Harbin Inst. Technol. 2012, 44, 21–26. [Google Scholar]
- Wang, J.J.; Zhang, C.; Liu, Z.B.; Li, H.B. Experimental Research and Robustness Analysis of Asymmetric Nonlinear Mass Damper. J. Vib. Shock. 2022, 41, 176–182, 237. [Google Scholar]
- Wang, J.J.; Li, H.B.; Liu, Z.B. Research on the vibration reduction performance of high-rise structures with additional orbital nonlinear energy wells. J. Vib. Shock. 2020, 39, 173–180. [Google Scholar]
- Li, S.; Lou, J.J.; Liu, S.Y.; Chai, K. Analysis of vibration suppression effect of nonlinear energy well under shock excitation. J. Huazhong Univ. Sci. Technol. Nat. Sci. Ed. 2019, 47, 87–92. [Google Scholar]
- Yao, Y.Y.; Song, W.Z.; Li, B.; Chen, Z.Y.; Zhang, C.J.; Gao, Q. Analysis of NES Vibration Suppression Based on Energy Dissipation. Chin. J. Constr. Mach. 2020, 18, 384–389. [Google Scholar]
- Wang, J.J.; Wierschem, N.; Spencer, B.F.; Lu, X.L. Experimental study of track nonlinear energy sinks for dynamic response reduction. Eng. Struct. 2015, 94, 9–15. [Google Scholar] [CrossRef]
- Wang, F.X.; Ding, H. Mass design of nonlinear energy sinks. Eng. Struct. 2022, 250, 113438. [Google Scholar] [CrossRef]
- Dekemele, K.; Torre, P.V.; Loccufier, M. Design, construction and experimental performance of a nonlinear energy sink in mitigating multi-modal vibrations. J. Sound Vib. 2020, 473, 115243. [Google Scholar] [CrossRef]
- Zang, J.; Zhang, Y.W.; Hu, D.; Yang, T.Z.; Chen, L.Q. The evaluation of a nonlinear energy sink absorber based on the transmissibility. Mech. Syst. Signal Process. 2019, 125, 99–122. [Google Scholar] [CrossRef]
- Bab, S.; Khadem, S.; Mahdiabadi, M.; Shahgholi, M. Vibration mitigation of a rotating beam under external periodic force using a nonlinear energy sink (NES). J. Vib. Control. 2017, 23, 1001–1025. [Google Scholar] [CrossRef]
- Li, W.K.; Wierschem, N.E.; Li, X.; Yang, T.J. On the energy transfer mechanism of the single-sided vibro-impact nonlinear energy sink. J. Sound Vib. 2018, 437, 166–179. [Google Scholar] [CrossRef]
- Qiu, D.; Seguy, S.; Paredes, M. Design criteria for optimally tuned vibro-impact nonlinear energy sink. J. Sound Vib. 2019, 442, 497–513. [Google Scholar] [CrossRef] [Green Version]
- Zhang, Y.W.; Yuan, B.; Fang, B.; Chen, L.Q. Reducing thermal shock-induced vibration of an axially moving beam via a nonlinear energy sink. Nonlinear Dyn. 2017, 87, 1159–1167. [Google Scholar] [CrossRef]
- Guo, H.L.; Liu, B.; Yu, Y.Y.; Cao, S.Q.; Chen, Y.S. Galloping suppression of a suspended cable with wind loading by a nonlinear energy sink. Arch. Appl. Mech. 2017, 87, 1007–1018. [Google Scholar] [CrossRef]
- Boroson, E.; Missoum, S. Stochastic optimization of nonlinear energy sinks. Struct. Multidisc. Optim. 2017, 55, 633–646. [Google Scholar] [CrossRef]
- Zhang, Y.W.; Hou, S.; Zhang, Z.; Zang, J.; Ni, Z.Y.; Teng, Y.Y.; Chen, L.Q. Nonlinear vibration absorption of laminated composite beams in complex environment. Nonlinear Dyn. 2020, 99, 2605–2622. [Google Scholar] [CrossRef]
- Geng, X.F.; Ding, H. Two-modal resonance control with an encapsulated nonlinear energy sink. J. Sound Vib. 2022, 520, 11667. [Google Scholar] [CrossRef]
- Jin, Y.Z.; Liu, K.F.; Xiong, L.Y.; Tang, L.H. A non-traditional variant nonlinear energy sink for vibration suppression and energy harvesting. Mech. Syst. Signal Process. 2022, 181, 109479. [Google Scholar] [CrossRef]
- Qiu, D.; Paredes, M.; Seguy, S. Variable pitch spring for nonlinear energy sink: Application to passive vibration control. Proc. Inst. Mech. Eng. Part C J. Mech. Eng. Sci. 2019, 233, 611–622. [Google Scholar] [CrossRef]
- Chen, H.Y.; Mao, X.Y.; Ding, H.; Chen, L.Q. Elimination of multimode resonances of composite plate by inertial nonlinear energy sinks. Mech. Syst. Signal Process. 2020, 135, 106383. [Google Scholar] [CrossRef]
- Chen, J.E.; Sun, M.; Hu, W.H.; Zhang, J.H.; Zhou, C.W. Performance of non-smooth nonlinear energy sink with descending stiffness. Nonlinear Dyn. 2020, 100, 255–267. [Google Scholar] [CrossRef]
- Fang, B.; Theurich, T.; Krack, M.; Bergman, L.A.; Vakakis, A.F. Vibration suppression and modal energy transfers in a linear beam with attached vibro-impact nonlinear energy sinks. Commun. Nonlinear Sci. Numer. Simul. 2020, 91, 105415. [Google Scholar] [CrossRef]
- Zang, J.; Yuan, T.C.; Lu, Z.Q.; Zhang, Y.W.; Ding, H.; Chen, L.Q. A lever-type nonlinear energy sink. J. Sound Vib. 2018, 437, 119–134. [Google Scholar] [CrossRef]
- Tan, D.D.; Lu, Z.Q.; Gu, D.H.; Ding, H.; Chen, L.Q. A ring vibration isolator enhanced by a nonlinear energy sink. J. Sound Vib. 2021, 508, 116201. [Google Scholar] [CrossRef]
- Dekemele, K.; de Keyser, R.; Loccufier, M. Performance measures for targeted energy transfer and resonance capture cascading in nonlinear energy sinks. Nonlinear Dyn. 2018, 93, 259–284. [Google Scholar] [CrossRef]
- Li, T.; Gourc, E.; Seguy, S.; Berlioz, A. Dynamics of two vibro-impact nonlinear energy sinks in parallel under periodic and transient excitations. Int. J. Non-Linear Mech. 2017, 90, 100–110. [Google Scholar] [CrossRef]
- Wierschem, N.E.; Hubbard, S.A.; Luo, J.; Fahnestock, L.A.; Spencer, B.F.; McFarland, D.M.; Quinn, D.D.; Vakakis, A.F.; Bergman, L.A. Response attenuation in a large-scale structure subjected to blast excitation utilizing a system of essentially nonlinear vibration absorbers. J. Sound Vib. 2017, 389, 52–72. [Google Scholar] [CrossRef]
- Yang, K.; Zhang, Y.W.; Ding, H.; Yang, T.Z.; Li, Y.; Chen, L.Q. Nonlinear Energy Sink for Whole-Spacecraft Vibration Reduction. J. Vib. Acoust. 2017, 139, 021011. [Google Scholar] [CrossRef]
- Dai, H.L.; Abdelkefi, A.; Wang, L. Vortex-induced vibrations mitigation through a nonlinear energy sink. Commun. Nonlinear Sci. Numer. Simul. 2017, 42, 22–36. [Google Scholar] [CrossRef]
- Yang, K.; Zhang, Y.W.; Ding, H.; Chen, L.Q. The transmissibility of nonlinear energy sink based on nonlinear output frequency-response functions. Commun. Nonlinear Sci. Numer. Simul. 2017, 44, 184–192. [Google Scholar] [CrossRef]
- Liu, Z.P.; Lu, X.L.; Lu, Z.; Wang, J.J. Experimental investigation on vibration control effect of track nonlinear energy sink. J. Build. Struct. 2016, 37, 1–9. [Google Scholar]
- GB 50010-2010; Code for Design of Concrete Structures. China Academy of Building Research; China Architecture & Building Press: Beijing, China, 2010.
- GB 50011-2010; Code for Seismic Design of Buildings. China Academy of Building Research; China Architecture & Building Press: Beijing, China, 2010.
- Zhang, M.Z. Some problems in the application of similarity law in earthquake simulation experiments. Earthq. Eng. Eng. Dyn. 1997, 17, 52–58. [Google Scholar] [CrossRef]
- Hwang, S.J.; Lee, H.J. Analytical model for predicting shear strengths of interior reinforced concrete beam-column joints for seismic resistance. Struct. J. 2000, 97, 35–44. [Google Scholar]




















| Physical Quantity | Formula | Calculated |
|---|---|---|
| Length | 0.25 | |
| Elastic Modulus | 0.63 | |
| Density | 2.23 | |
| Stress | 0.63 | |
| Time | 0.47 | |
| Acceleration | 1.13 | |
| Frequency | 2.12 |
| Diameter of Reinforcement (d/mm) | Yield Strength (fy/MPa) | Tensile Strength (fsu/MPa) | Modulus of Elasticity (Es/MPa) |
|---|---|---|---|
| 8 | 523 | 675 | 1.98 × 105 |
| 6 | 414 | 614 | 2.01 × 105 |
| 4 | 413 | 538 | 2.02 × 105 |
| 3.5 | 299 | 365 | 1.97 × 105 |
| Spring Stiffness (N/mm) | Oscillator Mass (kg) | Oscillator Dimension (mm) | Maximum Stroke (mm) |
|---|---|---|---|
| 65 | 36 | 170 × 170 × 170 | 300 |
| Working Condition | Seismic Wave | Location of NES | Peak Acceleration/g |
|---|---|---|---|
| T1 | Wolong wave | The fourth layer The fifth layer | 0.24 |
| T2 | El-Centro wave | The fourth layer The fifth layer | 0.21 |
| T3 | Wolong wave | Closed | 0.22 |
| T4 | El-Centro wave | Closed | 0.22 |
| T5 | Wolong wave | The fourth layer The fifth layer | 0.41 |
| T6 | El-Centro wave | The fourth layer The fifth layer | 0.40 |
| Working Condition | f/Hz | f/f0 |
|---|---|---|
| Before | 4.9 | 100% |
| T1 | 4.6 | 93.8% |
| T2 | 4.4 | 89.8% |
| T3 | 3.9 | 79.6% |
| T4 | 3.5 | 71.4% |
| T5 | 3.1 | 63.3% |
| T6 | 2.6 | 53.1% |
| Working Condition | Location | LS-1 | LS-2 | LS-3 | LS-4 | LS-5 | LS-6 | LS-7 |
|---|---|---|---|---|---|---|---|---|
| T1 | U | 317 | 359 | 495 | 454 | 348 | 590 | 284 |
| D | 459 | 656 | 349 | 183 | 324 | 373 | 178 | |
| T2 | U | 578 | 835 | 1054 | 722 | 811 | 1231 | 767 |
| D | 543 | 708 | 554 | 357 | 418 | 465 | 347 | |
| T3 | U | 529 | 875 | 1359 | 1059 | 2517 | 1734 | 651 |
| D | 1091 | 1015 | 1865 | 777 | 995 | 1125 | 539 | |
| T4 | U | 625 | 939 | 1143 | 954 | 2322 | — | 1665 |
| D | — | — | — | — | 957 | — | — | |
| T5 | U | 734 | 964 | 1651 | 1198 | 2958 | — | 1377 |
| D | — | — | — | — | 1488 | — | — | |
| T6 | U | 964 | 1319 | 2163 | 1856 | 3850 | — | 2507 |
| D | — | — | — | — | 3652 | — | — |
| Working Condition | A1 | A2 | A3 | |||||||||||||
|---|---|---|---|---|---|---|---|---|---|---|---|---|---|---|---|---|
| F1-SD | F1-SU | F1-SJ | F2-SD | F2-SU | F1-SD | F1-SU | F1-SJ | F2-SD | F2-SU | F1-SD | F1-SU | F1-SJ | F2-SD | F2-SU | ||
| T1 | O | 568 | 210 | 294 | 264 | 244 | 351 | 283 | 345 | 240 | 188 | 548 | 460 | 532 | 439 | 252 |
| I | 381 | 348 | 429 | 337 | 280 | 386 | 269 | 328 | 119 | 191 | — | 590 | 718 | 469 | 272 | |
| T2 | O | 969 | 314 | 389 | 320 | 222 | 883 | 867 | 883 | 472 | 282 | 658 | 494 | 592 | 199 | 190 |
| I | 758 | 665 | 667 | 457 | 175 | 992 | 549 | 641 | 346 | 200 | — | 665 | 717 | 514 | 334 | |
| T3 | O | 1373 | 653 | 457 | 676 | 450 | 915 | 713 | 664 | 758 | 492 | 1254 | 1094 | 979 | 562 | 353 |
| I | 1071 | 628 | 583 | 649 | 430 | 1057 | 603 | 569 | 538 | 305 | — | 854 | 791 | 762 | 435 | |
| T4 | O | 1347 | 1012 | 675 | 810 | 660 | 1498 | 1161 | 995 | 749 | 577 | 930 | 732 | 703 | 325 | 225 |
| I | 1329 | 1140 | 815 | 688 | 432 | 1392 | 1131 | 894 | 549 | 346 | — | 958 | 845 | 795 | 449 | |
| T5 | O | 1983 | 1300 | 1692 | 996 | 689 | 1940 | 1242 | 1772 | 876 | 438 | 1986 | 1172 | 1458 | 769 | 375 |
| I | 1407 | 966 | 1170 | 748 | 572 | 1536 | 844 | 930 | 584 | 387 | — | 1124 | 1276 | 940 | 371 | |
| T6 | O | 2469 | 1695 | 2182 | 1024 | 925 | 2898 | 1416 | 1953 | 1094 | 942 | 2823 | 1159 | 1577 | 880 | 742 |
| I | 2628 | 1202 | 1268 | 926 | 606 | 2082 | 1654 | 2149 | 1144 | 618 | — | 1159 | 1377 | 908 | 450 | |
| Working Condition | A1 | A2 | A3 | |||||||||
|---|---|---|---|---|---|---|---|---|---|---|---|---|
| GA1S | GA1N | GA1W | GA1E | GA2S | GA2N | GA2W | GA2E | GA3S | GA3N | GA3W | GA3E | |
| T1 | 72 | 234 | 121 | 76 | 207 | 248 | 443 | 226 | 201 | 107 | — | 195 |
| T2 | 129 | 359 | 339 | 123 | 422 | 352 | 491 | 416 | 395 | 288 | — | 327 |
| T3 | 234 | 399 | 376 | 145 | 478 | 367 | 632 | 638 | 245 | 227 | — | 307 |
| T4 | 167 | 398 | 826 | 404 | 582 | 467 | 639 | 519 | 465 | 349 | — | 386 |
| T5 | 347 | 532 | 2176 | 233 | 536 | 460 | 2392 | 2430 | 2249 | 156 | — | 391 |
| T6 | 443 | 856 | 2345 | 513 | 628 | 566 | 2955 | 2415 | 2916 | 237 | — | 441 |
| Position | T1 | T2 | T3 | T4 |
|---|---|---|---|---|
| A1 | 9.50 kN | 38.94 kN | 42.74 kN | 77.32 kN |
| A2 | 13.27 kN | 49.39 kN | 59.84 kN | 93.71 kN |
| A3 | 8.39 kN | 25.80 kN | 26.12 kN | 38.94 kN |
Publisher’s Note: MDPI stays neutral with regard to jurisdictional claims in published maps and institutional affiliations. |
© 2022 by the authors. Licensee MDPI, Basel, Switzerland. This article is an open access article distributed under the terms and conditions of the Creative Commons Attribution (CC BY) license (https://creativecommons.org/licenses/by/4.0/).
Share and Cite
Yang, H.; Yang, B.; Wang, H.; Zhang, M.; Ni, S. Research on Dynamic Characteristics of Joint of RC Frame Structure with NES. Sustainability 2022, 14, 11229. https://doi.org/10.3390/su141811229
Yang H, Yang B, Wang H, Zhang M, Ni S. Research on Dynamic Characteristics of Joint of RC Frame Structure with NES. Sustainability. 2022; 14(18):11229. https://doi.org/10.3390/su141811229
Chicago/Turabian StyleYang, Haixu, Baolei Yang, Haibiao Wang, Maohua Zhang, and Songyuan Ni. 2022. "Research on Dynamic Characteristics of Joint of RC Frame Structure with NES" Sustainability 14, no. 18: 11229. https://doi.org/10.3390/su141811229
APA StyleYang, H., Yang, B., Wang, H., Zhang, M., & Ni, S. (2022). Research on Dynamic Characteristics of Joint of RC Frame Structure with NES. Sustainability, 14(18), 11229. https://doi.org/10.3390/su141811229
